
domáce zariadenie
Komplexné obrazy vyrobené z dreva sú akrobacie. Najlepším priateľom Wooda je epoxid. Aj keď to bude vyžadovať veľa, bude to stáť za to..

Nakreslite neobvyklý vzor z malých guľatiny a naplňte živicou. Zaujímavou možnosťou by bolo nainštalovať malú farebnú žiarovku dovnútra, kým živica nestvrdne.
Budete prekvapení, keď uvidíte výsledok. Výrobky kombinované s epoxidovou živicou získavajú chladný vzhľad a pútajú pozornosť.

Je veľmi ľahké vyrobiť hračky z dreva na novoročnú dovolenku. Videl rôzne figúrky a lepil na ne fotografie.

To všetko dodá útulnosti útulnú atmosféru. Skutoční remeselníci majú stojany na knihy, vyskúšajte to, možno máte aj vy talent?

Nápady na domov mimo mesta
Predstavte si, že ste v krajine. Strom, ktorý bol nedávno vyrúbaný, sa môže zmeniť na zaujímavé remeslo. Predpokladajme však, že strom tam už nie je a zostane iba peň. Ak je na skvelom mieste, môžete z neho vytvoriť stôl alebo stoličku..

Asi by ste sa zbavili pňa. Stačí vziať pílu, sekeru a dláto. Odrežte prebytočné kusy dreva a odložte ich, zbavte sa sekery dužiny vo vnútri pňa a naplánujte si výšku budúcej stoličky. Plánovanie bude ľahké, ale fyzicky náročné. Potom, čo vnútornosti pňa ležia v blízkosti a samotné sedadlo je pripravené, bežte na brúsny papier, dlho a únavne sa zbavujte všetkých triesok. Ak plánujete natrvalo opustiť túto stoličku, potom produkt zalakujte. Voila, obyčajný pahýľ, ktorý by išiel zapáliť kachle, sa zmenil na stoličku. Teraz je to záhradná výzdoba.

Možno chýba skutočná ruská rozprávka? Nie je problém, na prácu potrebujete brezovú guľatinu. Vystrihnú z neho osla a z ďalších polienok sa zloží vozík. Z rezov sú vytvorené zajace a všetko je pripravené. Teraz stránka vyzerá ako čistinka z rozprávky.

Dvor môže byť útulný, preto nainštalujte drevený nábytok, ktorý si vyrobíte sami. Napríklad lavice, a ak ste ovládali remeslá z dreva a ste už majstrom v tomto odbore, postavte si hojdacie kreslo.

Pódium



Čelo postele




Vešiak
Každý chlapec, ktorý dosiahol vek 10 rokov, môže vyrobiť taký výrobok. Na proces musí dohliadať dospelá osoba. Vyrobiť vešiak je celkom jednoduché, pričom bude nielen dlho zdobiť chodbu, ale bude aj užitočný.
Ak chcete vytvoriť falošný, musíte pripraviť:
- 3 dosky 10 * 70 cm;
- 2 dosky 15 * 40 cm;
- 2 kovové rohy;
- 3 háčiky;
- skrutkovač;
- samorezné skrutky;
- farba alebo lak.

DIY doskové remeslá: príklad jednoduchého vešiaka s tromi doskami


Kresba vešiaka na dosky
Algoritmus vykonávania závesu je táto postupnosť akcií:
- Dosky zo všetkých strán dôkladne nalakujte alebo nalakujte.
- Vezmite 3 dosky, rozložte ich na rovný povrch tak, aby medzi nimi bola medzera 5 cm. Na vrch položte jednu z dosiek s rozmermi 15 x 40 cm. Konštrukciu pripevnite skrutkovačom a samoreznými skrutkami.
- Na bokoch dosky, umiestnenej vodorovne, priskrutkujte kovové rohy. Pripojte k nim voľnú dosku.
- Skrutkovačom naskrutkujte 3 háčiky pod hornú časť vešiaka.
Organizér na obuv
Na chodbe je často na podlahe veľa topánok. Táto situácia veľmi kazí celý internet. Tento problém môžete vyriešiť vytvorením organizéra z bežných dosiek..
Na výrobu poličky na topánky musíte použiť nasledujúce materiály a nástroje:
- 6 dosiek 15 * 90 cm;
- 4 dosky 5 * 45 cm;
- 8 dosiek 15 * 50 cm;
- 8 kovových rohov:
- kladivo;
- nechty;
- farba alebo lak.






Keď je všetko pripravené, môžete sa pustiť do práce..
Proces je nasledujúci sled akcií:
- Vezmite 8 rovnakých dosiek, usporiadajte ich do dvojíc. Pripevnite ich kolmo k sebe a dodatočne ich zaistite kovovými rohmi.
- Nastavte rohy zvisle. Na každom z nich urobte značku umiestnenú v strede.
- Spojte 3 dosky 15 * 90 cm dohromady. Na to musíte pribiť každý okraj na dosku 5 * 45. Nainštalujte túto konštrukciu na úroveň značiek drevených rohov..
- Na bočné strany hornej časti budúceho organizéra pribite 2 dosky 5 * 45 cm. Na ne pripevnite zvyšné dosky.
- Rozložte plastový obal, položte naň stojan na topánky. Zakryte výrobok lakom alebo farbou.
Rack
DIY remeslá z dosiek môžu byť skutočným prínosom. Väčšina rodín napríklad čelí problému s nedostatkom úložného priestoru na rôzne položky do domácnosti..
Problém môžete vyriešiť a zároveň upútať dieťa užitočnou činnosťou, ak si stojan vyrobíte sami. Zároveň sa dá ľahko vstúpiť do akéhokoľvek interiéru, pretože predtým správne vybral farbu farby.
Pred prácou by ste mali pripraviť nasledujúce nástroje a materiály:
- 6 drevených blokov 5 * 5 * 160 cm;
- 4 dosky 25 * 60 cm;
- 8 drevených blokov 3 * 3 * 25 cm;
- samorezné skrutky;
- skrutkovač;
- farbivo.

Pripravte dosky

Dosky nakrájajte na stojany

Zostavte bočné podpery

Stojan je možné zostaviť vo zvislej polohe

Rack vyrobený z dosiek je pripravený
Ak chcete vytvoriť stojan, musíte postupovať podľa týchto pokynov:
- Na všetkých dlhých tyčiach urobte 4 značky. Vzdialenosť medzi nimi by mala byť 40 cm.
- Vezmite 3 tyčinky. Položte ich na rovnú rovinu tak, aby medzi nimi bol interval 5 cm Spojte konštrukciu s malými tyčami. Upevnenie by sa malo vykonať podľa značiek.
- Opakujte predchádzajúci krok so zvyšnými kusmi dreva.
- Pripojte 2 strany stojana umiestnením dosiek na vrch malých blokov. Výsledok bezpečne zafixujte pomocou skrutkovača a samorezných skrutiek.
- Maľujte výrobok, pričom venujte zvláštnu pozornosť malým detailom a rohom.
Bočný stolík
Konferenčný stolík je skvelý nápad pre doskové remeslo. Ozdobí každú miestnosť a môže byť užitočná. Napríklad za takýmto nábytkom je vhodné usporiadať stretnutia s priateľmi. Stôl môže tiež hrať úlohu dodatočného úložného priestoru. Výsledkom je, že samotný výrobok vyzerá veľmi esteticky, takže sa ľahko zmestí do akéhokoľvek interiéru.

Kresba klasického konferenčného stolíka

Upevnenie rámu pomocou samorezných skrutiek

Rám konferenčného stolíka

Na jeho dokončenie je potrebné zásobiť sa nasledujúcou sadou nástrojov a materiálov:
- 4 drevené bloky 5 * 5 * 60 cm;
- 1 kus dreva 5 * 5 * 60 cm;
- 2 dosky 10 * 100 cm;
- 2 dosky 10 * 60 cm;
- 4 dosky 15 * 100 cm;
- 4 široké kovové rohy;
- samorezné skrutky;
- skrutkovač;
- lak.
Algoritmus na vytvorenie tabuľky je nasledujúci sled fáz:
- Vytvorte obdĺžnikovú štruktúru. Aby ste to urobili, musíte vziať dosky s rozmermi 10 * 100 cm a 10 * 60 cm. Pripojte ich pomocou kovových rohov.
- Do vnútra výsledného obdĺžnika pripevnite zvisle 4 drevené bloky. Preto by mala byť získaná základňa stola s nohami..
- Pomocou skrutkovača a samorezných skrutiek namontujte zostávajúci drevený blok kolmo na dosky 10 * 100 cm.
- Spustite dosku. Aby ste to urobili, musíte pripevniť dosky 15 x 100 cm na vrch základne stola. Pri práci musíte zaistiť, aby materiál tesne priliehal k sebe..
- Zakryte stôl lakom. Ak je to žiaduce, môžete lak nahradiť farbou, ktorá zodpovedá farbe interiéru..
Koryto
DIY remeslá z dosiek môžu byť jednoduchšie ako možnosti popísané vyššie. Výrobok prinesie nemenej úžitok, naučí deti, ako sa starať o zvieratá, a poskytne im príležitosť získať nové zručnosti..
Kŕmidlo pomôže zaujať dieťa nielen v čase vytvárania remesla, ale aj na dlhú dobu bude možné pravidelne prinášať jedlo a vodu pre vtáky.
Pred začatím práce by ste mali zásobiť nasledujúcu sadu nástrojov a materiálov:
- 4 dosky 10 * 25 cm;
- 4 dosky 3 * 20 cm;
- 4 dosky 5 * 20 cm;
- 4 dosky 5 * 25 cm;
- 4 drevené bloky 2 * 2 * 20 cm;
- 8 úzkych kovových rohov;
- skrutkovač;
- samorezné skrutky.


Ak chcete vyrobiť podávač vtákov, musíte postupovať podľa týchto pokynov:
- Upevnite dohromady 2 dosky 10 * 25 cm. Na to musíte použiť samorezné skrutky a dve dosky 3 * 20. Získate tak spodnú časť produktu..
- Spustite nárazníky. Upevnite 2 dosky 5 x 25 cm po dĺžke dna a 5 x 20 cm na šírku. Okrem toho ich navzájom pripevnite pomocou kovových rohov.
- Vyrobte strechu podávača. Ak to chcete urobiť, zopakujte 2 predchádzajúce kroky..
- Pripojte spodnú časť výrobku k streche pomocou drevených tyčí.
Stolička
Ďalšia možnosť pre drevený falošný materiál, ktorú je ľahké vykonať s vašim dieťaťom. Môžete vyrobiť niekoľko taburetiek naraz, pridať k nim vankúše, ktoré je možné ušiť aj samostatne, a získať tak pohodlný nábytok.
Pred začatím práce pripravte nasledujúce nástroje a materiály:
- 2 dosky 250 * 25 cm;
- Drevotrieska 25 * 30 cm;
- doska 9 * 20 cm;
- okraj na prilepenie;
- železo;
- skrutkovač;
- 4 potvrdenia;
- kladivo;
- nôž;
- 5 sekaní;
- lepidlo.


Pracovný proces je reprezentovaný nasledujúcim algoritmom akcií:
- Zakryte všetky materiály pre stoličku okrajom. Aby ste to urobili, musíte žehličku čo najviac zahriať a spustiť ju po povrchu. Neskôr musíte handrou trochu stlačiť okraj. Odrežte všetko nepotrebné, dosku alebo drevotriesku otočte a znova prilepte na druhú stranu.
- Zaskrutkujte prvú nohu na priečnu tyč, ktorá bude doskou 9 x 20 cm. Na to použite 2 potvrdenia a skrutkovač. Opakujte rovnaké kroky na druhej strane.
- V drevotrieske a v spodnej časti stoličky urobte 5 zapustených otvorov. Vnútri pridajte kvapku lepidla a spojte sedadlo s nohami.
Hojdačka
DIY remeslá z dosiek môžu byť veľmi jednoduché, ale zároveň majú veľký prínos. Jednou z týchto možností je hojdačka. V tomto prípade je navrhnutý jednoduchý model, ktorý je ľahké vytvoriť sami. Môže byť pripevnený k akémukoľvek stromu alebo špeciálnym podperám. Ak je v dome malé dieťa, mali by byť cez dvere zavesené háčiky..













Pred začatím pracovného postupu je potrebné zásobiť sa nasledujúcimi materiálmi a nástrojmi:
- 2 dosky 15 * 30 cm;
- 2 dosky 3 * 20 cm;
- elektrická skladačka;
- skrutkovač;
- 4 samorezné skrutky;
- 2 laná.
Algoritmus vytvárania je nasledujúca postupnosť akcií:
- Na každú z dosiek 15 * 30 cm urobte 2 vypité. Jeden v strede krátkeho okraja, druhý bližšie k okraju na dlhej strane.
- Spustite sedadlo spojením materiálu z predchádzajúceho kroku. Výsledok zafixujte doskami 3 * 20 cm a priskrutkujte ich samoreznými skrutkami.
- Pretiahnite laná cez drážky.
Police na knihy
Veľmi funkčné a praktické využitie dosiek. Každý dom predsa potrebuje závesnú policu na uloženie kníh..









Materiály a nástroje potrebné v procese práce:
- 2 dosky 10 * 50 cm;
- 4 dosky 15 * 70 cm;
- farbivo;
- kefa;
- 4 kovové rohy;
- skrutkovač;
- samorezné skrutky.
Proces vytvárania police pre knihy je nasledujúci algoritmus:
- Všetok materiál vymaľujte a nechajte uschnúť.
- Dosky umiestnite 10 x 50 cm rovnobežne k sebe. Pripojte ich zhora a zdola pomocou dvoch dosiek 15 x 70 cm.
- Pripojte kovové rohy. Nainštalujte na ne police a spojte ich samoreznými skrutkami.
Všetky druhy políc



záhradný nábytok

Výrobcovia záhradného nábytku sa snažia používať prírodné materiály. Nielenže perfektne zapadajú do prírodného prostredia, ale sú aj trvanlivé. Je zrejmé, že náklady na drevené stoličky a stoly sú vysoké. Môžete si ich skúsiť vyrobiť sami, pričom budete mať poruke nástroje a zvyšky dreva.

Originálny podávač guľatiny
Existuje mnoho spôsobov, ako si vyrobiť pohodlné kŕmidlo pre vtáky. Remeslá z prírodných materiálov pôsobia najekologickejšie.
Spracovaná malá guľatina je prírodný podávač, ktorý vyzerá harmonicky medzi vetvami a je vhodný pre vtáky. Výrobný proces krok za krokom:
- Z kmeňa stromu je odrezaný kmeň dlhý 25-30 cm a priemer 15-20 cm.
- Na valci je označený rez so šírkou asi 10 cm a vyrezaný.
- Vnútorná časť guľatiny je opatrne narezaná a steny zostávajú hrubé 4-5 cm.
- Boky podávača sú uzavreté okrúhlymi matricami.
- Pomocou samorezných skrutiek sú upevňovacie prvky skrútené a podávač je zavesený na vetve.
Mali by ste zvoliť drevo, ktoré je mierne zdeformované a nepodlieha skaze (orech, jelša).





Rám vetvičky stromu
Krásne rodinné fotografie dodávajú domácemu prostrediu šarm a osobnosť. Nezvyčajné rámčeky vždy upozorňujú na fotografie a obrázky. Na vytvorenie dekoru stačí na prechádzkach pozbierať niekoľko sušených konárov horského popola, lipy, topoľa. Budete tiež potrebovať pravidelný drevený rám, lepiacu pištoľ, nožnice na prerezávanie, hnedú akrylovú farbu. Vetvičky sú vopred očistené od starej kôry, umyté, sušené. Fázy práce:
- Fotorámik je zbavený skla, lepenky a pokrytý vrstvou akrylovej farby. Zaschnutie dekoratívnej vrstvy trvá asi hodinu.
- Pomocou prerezávača sa odrežú vetvičky na dlhé a krátke strany rámu.
- Vetvičky sa postupne prilepia k základni a položia sa na každú stranu rámu. Tenké prvky môžu byť úhľadne tkané do veľkých.
Posledným dotykom je upevnenie dekoru na ráme. Za týmto účelom môžete prilepiť sušené listy, bobule, drevené korálky, umelý mach, kúsky sisalu.






Švédska sviečka
Čo môže byť krajšie ako večerné posedenia v prírode okolo útulného ohňa? Pôvodný spôsob vytvorenia malého, dlho horiaceho ohňa je vybavenie švédskej sviečky. Budete potrebovať obyčajnú rovnomernú guľatinu vysokú 40-55 cm s priemerom 10-40 cm Pílový rez by mal byť rovnomerný, aby guľatina stála pevne a neprevrhla sa. Aspen je považovaný za ideálny, pretože ihličnaté stromy môžu pri horení iskriť a brezové polená rýchlo horia a uvoľňujú veľa sadzí..
Poleno je nakrájané ako koláč – najmenej štyri kusy. Rezy môžete vykonávať ručne, ale je jednoduchšie použiť reťazovú pílu – bude to rýchlejšie a plynulejšie. Rezy sa robia s výškou asi ¾ výšky guľatiny. Čím viac rezov, tým rýchlejšie bude drevo horieť.







Ďalším jednoduchým a praktickým spôsobom je zámkové rozdelenie bloku na štyri časti. Jadro prvkov je trochu vyrezané a guľatina je opäť zostavená. Blok môžete upevniť drôtom a zabaliť ho zospodu. Dutina je naplnená pilinami a mierne navlhčená benzínom.
Postaviť také improvizované užitočné ohnisko nebude ťažké, hlavnou vecou je vybrať rovnú plochu. Ak plánujete variť kebab, je zvolený vyšší denník, na jednoduché osvetlenie stránky stačí blok vysoký 20-25 cm.






Sova vyrobená z dreva
Klesaním stromov na mieste by ste sa nemali ponáhľať so zberom guľatiny a konárov v prístreškoch. Skvelým nápadom na zjemnenie pňa je položenie rodiny sov. Na zostavenie plavidla budete potrebovať kusy guľatiny, konáre rôznych hrúbok a priemerov alebo kusy preglejky.
Rezy s hrúbkou 5-8 cm a najväčším priemerom sú vhodné pre základy. Na každom porezanom tele sú pribité dva kruhy – oči. Oči zozbierané z rezov rôznych priemerov pôsobia textúrovanejšie. Po stranách malého telíčka sú tepané polovice rezov, napodobňujúce krídla. Medzi očami je pripevnená malá vetva predstavujúca nos. Stočená kôra je upevnená nad očami.

Aby kompozícia vyzerala viac umelecky, môžete „zasadiť“ malú figúrku sovy na hrubú vetvu..






Doska na krájanie dreva
Každá žena v domácnosti má v kuchyni svoju vlastnú sadu známych a potrebných nástrojov. Krájacia doska nie je najdôležitejšia položka, ale je ťažké bez nej niečo rýchlo nakrájať a nakrájať. Prirodzene, doska vyrobená z akéhokoľvek masívneho kusa dreva bude trvať dlhšie ako výrobok lepený z tyčí alebo preglejkových dosiek.
Na výrobu remesiel vlastnými rukami budete potrebovať plochú dosku (najlepšie dubovú), skladačku, elektrickú vŕtačku, brúsny papier, ochranný olej. Inštrukcie:
- Pred rezaním výrobku je povrch obrobku brúsený brúsnym papierom.
- Potom sa obrys doštičky nakreslí ceruzkou..
- Pomocou skladačky je obrobok úhľadne rezaný.
- Elektrická vŕtačka vyvŕta otvor v rukoväti.
- So stolárskym pilníkom sú okraje a rohy dosky trpezlivo spracované.
- Na dokončenie mechanických prác sa doska utrie brúsnou špongiou..
- Dosku posypeme obrúskom a povrch dreva pokryjeme hrubou vrstvou Belinkového oleja. Nechajte kompozíciu namočiť 10-15 minút a zvyšky odstráňte špongiou.
Doska by mala schnúť 20-24 hodín. Olejový film odhaľuje nádhernú drevitú textúru.






Tic-tac-toe špička z dreva
Obľúbenú hru si užívajú deti i dospelí. Začínajúci remeselníci môžu nezávisle robiť remeslo. Budete potrebovať jeden veľký rez pílou s priemerom asi 10-15 cm a 12 polotovarov s priemerom 2 až 3 cm (môžete použiť drevo z jabĺk alebo čerešní). Fázy práce:
- Všetky obrobky sú brúsené (boky a rezané povrchy).
- Na veľkom poli vyznačte vypálením značkovacej čiary (tvorí sa 9 sektorov).
- Na malých rezoch je spálených šesť núl a krížov.

Vrstva laku dodá remeslu kompletný vzhľad. Jednoduchší spôsob, ako vytvoriť hru, je použiť ploché kamienky. Nátierky a kríže je možné kresliť farbami. Je vhodné skladovať kamienky v textilnom vrecku, ktoré slúži aj ako ihrisko. Na tkaninu stačí použiť označenie špeciálnymi farbami (môžete použiť banálne guľôčkové pero).
Snehuliak vyrobený z dreva
Veselý snehuliak bude originálnou novoročnou ozdobou interiéru. Dieťa môže s pomocou rodičov vyrobiť také remeslo aj pre školské súťaže. Budete potrebovať dosku s rozmermi asi 5 x 10 cm, vetvičky, vŕtačku, brúsny papier, bielu a čiernu akrylovú farbu, kompas a šablónový papier. Fázy práce sú jednoduché, ale odporúča sa rozlišovať medzi detskou a dospelou prácou..
Deti na list papiera nakreslia kompasom tvar snehuliaka a vystrihnú šablónu. Obrobok je predčistený brúsnym papierom. Šablóna je vysledovaná na strome. Aby figúrka stála sama, spodná časť plavidla je plochá. Dospelý odreže výrobok z dosky a pilníkov pilníkom, vyvŕta výklenky pre úchytky-vetvičky.
Deti začínajú zdobiť: figúrka je pokrytá bielou farbou. Keď vrstva zaschne, natierajú úsmev a oči čiernou farbou. Bambulky vyrobené z vaty a natreté čiernou farbou dodajú snehuliakovi elegantný vzhľad. Konce pierok s vetvičkami sú potreté lepidlom a zasunuté do otvorov na obrázku. Červený nos môže byť vyrobený z polymérnej hliny alebo môžete z červeného papiera vyvaliť kužeľ. Pletená šatka a klobúk dodajú remeslu hotový vzhľad.






Váza na kvety z dreva
Pre školské súťaže bude dekoratívna váza na kvety krásnym remeslom. Vytvorenie produktu je jednoduché: kovová nádoba je prilepená malými rezmi vetvičiek. Aby mala váza krásny vzhľad, používajú rezy z rôznych stromov..
Pôvodná textúra remesla bude krásne zdôraznená vrstvou laku. Pri práci je dôležité vyplniť medzery medzi rezmi, takže musíte použiť vetvy rôznych hrúbok.






Veselé dekorácie na letné sídlo
Zo zvyškov reziva a guľatiny je ľahké vytvoriť mnoho dekorácií pre letnú chatu. Trochu času, predstavivosti a trpezlivosti – a kreatívne domáce remeslá ozdobia záhradu a vytvoria na mieste útulnosť:
- polená vysoká 40-50 cm sa premenia na elegantné konope, na ktoré sa dá pohodlne sedieť. Odporúča sa umiestniť odpočinkový kútik do tieňa a ozdobiť ho štýlovými miniatúrami – mlyn, loď, figúrky zvierat (vlk, medveď, sova, tiger);
- je lepšie nainštalovať drevené lavičky pozdĺž záhradných chodníkov, aby ste si počas večerných prechádzok mohli vychutnať výhľad do záhrady a vôňu kvetov;
- nemusíte rúbať nepotrebné stromy v jednej rovine so zemou. Pôvodné figúrky sú vystrihnuté z 50-60 cm vysokých pňov, olúpané z kôry a ozdobené drevorezbami a jednoducho nalakované. Skrútené naplavené drevo sa „premieňa“ na jašterice alebo figúrky zvierat.
Detský priestor bude neobvykle vyzdobený detským ihriskom z rezov píly a malým elegantným domčekom. Dizajn s oknom a vchodom je nízky a zdobený svetlými farbami.






Ako vyrobiť vianočný stromček z konárov
Novoročné remeslá vždy zdobia byt a prinášajú tam pocit oslavy a radostného vzrušenia. Zostaviť vianočný stromček nie je ťažké: začínajú vytvorením základného venca s priemerom 20-25 cm z tenkého suchého viniča. K nemu sú rovnomerne pripevnené pevné rovné vetvy alebo lamely a vytvorí sa kužeľ. Vetvičky hore zviažu tesne. Rybí kónus je spletený viničom ako košík. Aby štruktúra získala pevnosť, sú spoje vetiev zlepené tepelnou pištoľou.
Vianočný stromček môžete ozdobiť rôznymi prvkami: šiškami, žaludmi, sušenými kvetmi, škoricovými tyčinkami, viničnými guľkami. Posledným dotykom je omotanie stromčeka špagátom a vytvarovanie vrcholu. Lesklý a elegantný dizajn je možné vytvoriť pomocou bielych perleťových korálikov nalepených na šnúrke.






Konáre tienidla
Čím sú vetvy dlhšie, tým je väčšia pravdepodobnosť, že ich použijete na objemné obrobky. Tienidlo pre podlahové svietidlo spĺňa túto definíciu:
- Na okrajoch 16-30 vetiev rovnakej dĺžky sú vyvŕtané otvory;
- Do horných otvorov sa vloží krátky drôt 2 mm a do spodných otvorov sa vloží dlhý kus;
- Akýkoľvek výrobok kužeľovitého tvaru s tupým koncom (vedro, pohovka) je zabalený do vetiev;
- Horné a dolné drôty sú nerovnomerne pritiahnuté k sebe a vytvárajú obrobok v tienidle;
- V prípade potreby je k tematickému rámovaniu zvnútra pripevnený drôtený rám pod kazetou.

Pred výrobou dreveného tienidla je potrebné z konárov odstrániť kôru. Mimochodom, tento postup sa vždy odporúča. To isté platí pre vyhladenie povrchu dreva. Hovoríme najmä o eliminácii silne vyčnievajúcich uzlov.

Plafond z pobočiek
Umelé tienidlá veľmi zaťažujú svietidlo. Ďalšou vecou je plafond vyrobený z konárov. Po príprave 50-100 vetiev s dĺžkou 40-70 mm môžete začať robiť:
- Najprv sa balónik nafúkne;
- Ďalej je lopta orezaná vetvami tým, že ich navzájom prilepíte;
- Ďalšou fázou je uvoľnenie vzduchu z lopty;
- Ďalej zostáva postaviť lampu do okrúhleho tienidla a zavesiť ju zo stropu..

Ale najskôr je najlepšie robiť remeslá pre ľahké drevo pre začiatočníkov, vrátane malej stolnej lampy s lampou a batériou..

Všetky druhy žiaroviek zo starého dreva


Možnosti drevených hodín


Ozdobný kruh na hodinky
Ako číselník je možné použiť hotový kruh s priemerom 100-200 mm. Zostáva kúpiť tematickú súpravu, ktorá obsahuje:
- Čísla;
- Šípky;
- Mechanizmus s priehradkou na batérie.

Túto súpravu je však možné odstrániť z opotrebovaných nástenných hodín, ktorých je na blšom trhu vždy dostatok..

Výzdoba z kruhov
Kruhy sú z rovnakého guľatého dreva, ale už majú veľký priemer. Podľa toho v nich môžete vytvárať rôzne vzory, ako ukazujú jednotlivé fotografie remesiel z dreva, ktoré si urobíte sami.
Kým však začnete rezať, musíte sa vyzbrojiť elektrickou skladačkou, vŕtačkou a predstavivosťou. Kreatívna myšlienka pomôže vytvoriť sprisahanie. Vŕtačka je potrebná na vŕtanie otvorov, ktoré budú slúžiť ako základ pre ponorenie skladačky. Ten vytvára priamo vzory deja.

Roztomilá drevená krabička na kolieskach

Držiak na kľúče vyrobený z dreva
Je to gazdiná, ktorá pomôže vyriešiť problém so stratou kľúčov. Toto je najľahšia možnosť, ktorú je možné vyrobiť z dreva rýchlo a krásne. Pílený strom je starostlivo obrúsený, nalakovaný alebo natretý v požadovanej farbe. Háčiky na kľúče sú pripevnené k rezanej ploche alebo k boku.
Priaznivci zložitých remesiel si môžu vyrobiť otvorený policový box, na ktorého prednej strane sú háčiky na kľúče. Na poličke môžete uložiť peňaženky, korešpondenciu, rôzne drobnosti.
Hlavným pravidlom pre vytváranie remesiel vlastnými rukami je absencia kreatívnych obmedzení. Na zdobenie semi-starožitného vidieckeho nábytku môžete použiť nečakané techniky. Let fantázie dodá dreveným výrobkom pre domácnosť (šatníky, stoly, žiarovky, stoličky) sofistikovanosť a individualitu..






Sada nástrojov

Môžete vytvoriť poriadok na webe pomocou všetkých rovnakých dosiek. Ostatné stavebné materiály a domáce potreby je možné pred zvedavými očami ľahko skryť postavením drevených škatúľ z baru. Nie je potrebná žiadna špeciálna technika. Práca sa vykonáva podľa schémy: náčrt, merania, prevedenie rámu a krytu. Tento dizajn nevyrazí z celkového interiéru a skryje niektoré položky pred susedmi.
Pieskovisko

Ak máte dosky aj po dokončení fasády a terasy, urobte prosím niečo pekné pre svoje deti. Môžete z nich postaviť bezpečné a krásne pieskovisko. Materiál si pripravíte sami, to znamená, že povrch dôkladne prebrúsite bez toho, aby ste tam nechali zubáče a nerovnosti. Dieťa si pri sedení vo vnútri pieskoviska neublíži a nebude viesť triesku. Dizajn sa ľahko vyrába a nevyžaduje žiadne špeciálne schopnosti. Hlavnou vecou je vziať dostatočný počet dosiek, kladiva a klincov..
Záhon
Ak po stavbe altánku alebo kúpeľa zostalo drevo, prečo nepripojiť zvyšky k záhradnej ploche. Kvetinový záhon je dobrý nápad. Zvyšky stromov a stavebných materiálov sú zvyčajne spálené alebo jednoducho vyhodené, ale navrhujeme to inak..

Výroba kvetinového záhonu:
- Pripravte si materiály a nástroje (drevo, dláto a kladivo, motorová píla, lietadlo).
- Rezané drevo na malé kúsky. Tu nemusíte dodržiavať určitú schému, stačí vám vaša predstavivosť. Ako sa rozhodnete pre tvar a dĺžku dielov, a rozoznať.
- Hladký povrch tyčí. Na to potrebujete brúsku alebo lietadlo..
- Dláto a kladivo pomôžu tvarovať budúci záhon.
- Nezabudnite urobiť priehlbinu, kde bude položená pôda a vysadené nové kvety..

Buďte originálni, premyslite si tvar, dizajn záhona, vyberte správne odrody kvetov. V dôsledku toho získate dobre upravenú kvetinovú záhradu, ktorá sa na mieste bude perfektne kombinovať s výrobkami z dreva..
Originálne nápady na dekor dreva

Remeslá z dosiek vlastnými rukami: originálna polica vyrobená z dosiek a pohárov na kvetináče a kvety
Drevo vyzerá v interiéri vždy dobre. Preto môžete dosky použiť na vytváranie remesiel pre váš domov. Nástenné stojany na vázy s kvetmi budú vyzerať zaujímavo.
V tomto prípade potrebujete minimálne množstvo materiálov:
- 4 dosky 20 * 20 cm;
- 4 krúžky z akéhokoľvek materiálu, ktorý môže držať vázy;
- 4 banky;
- skrutkovač;
- 8 samorezných skrutiek.
Proces vytvárania remesiel je nasledujúci sled akcií:
- Položte prvú dosku diamantom.
- Pomocou skrutkovača a samorezných skrutiek pripevnite krúžok k kosoštvorcu. Prejdite nádobou cez krúžok.
- Zopakujte predchádzajúce kroky so zvyšnými doskami.
Potom môžete remeslá pripevniť na stenu. Je lepšie ich usporiadať aj vo forme kosoštvorca. Do takýchto váz môžete dať akékoľvek kvety..
Ďalšou zaujímavou myšlienkou dekorácie je špeciálny panel pre fotografie. Takýto falošný pomôže ozdobiť akýkoľvek obytný priestor a bude vyzerať veľmi originálne. Súčasne bude vytvorenie dreveného panelu trvať minimálny čas. Pre najštýlovejší vzhľad je najlepšie použiť čiernobiele fotografie..

Pred začatím práce by ste mali pripraviť nasledujúce materiály a nástroje:
- 2 identické dlhé dosky ľubovoľnej šírky;
- lak;
- 2 kovové struny;
- 4 samorezné skrutky;
- skrutkovač;
- drevené štipce na bielizeň;
- Foto.
Potom musíte vykonať nasledujúce kroky:
- Dosky opatrne zalakujte zo všetkých strán. Nechajte ich uschnúť.
- Odstúpte 3 cm od okraja dosiek a upevnite skrutky. Nemali by byť úplne ponorené do materiálu..
- Navlečte strunu na samorezné skrutky. Zostávajúce konce nemusíte skrývať.
- Zaveste fotografie na šnúrky tak, že ich prichytíte špendlíkmi.
Ďalšou možnosťou ukladania fotografií je rám v ekologickom štýle. Všetky materiály, ktoré sa používajú na vytvorenie remesla, sú navzájom harmonicky kombinované. Niekoľko podobných fotorámikov bude v interiéri vyzerať zaujímavo, umiestnených na akomkoľvek hrubo hotovom drevenom povrchu. Proces vytvárania je celkom jednoduchý, takže môže upútať aj malé dievčatko..
V takom prípade je potrebné, aby niektoré úkony prevzal alebo ovládal dospelý. To platí najmä pre použitie horúceho lepidla a skrutkovača.
Pred prácou musíte pripraviť nasledujúcu sadu nástrojov:
- 2 dosky 10 * 15 cm;
- 2 dosky 2 * 20 cm;
- 4 samorezné skrutky;
- skrutkovač;
- farbivo;
- kefa;
- špendlík;
- vrecovina;
- špagát;
- horúca pištoľ;
- nožnice;
- zapaľovač.
Algoritmus na vytvorenie fotorámika z dosiek v ekologickom štýle:
- Spojte 2 dosky 10 * 15 cm a spojte ich so zvyškom dosiek. V tomto prípade je lepšie použiť malé samorezné skrutky, aby upevňovacie prvky neboli nápadné.
- Rám zakryte farbou. Nechajte uschnúť.
- Z pytloviny vystrihnite obdĺžnik. Okraje materiálu ošetrite zapaľovačom, aby sa neskôr neopotrebovali.
- Pytlovinu zvinieme do mašle. Upevnite stred bičíkom.
- Na fotorámček prilepte mašľu a špendlík.



DIY remeslá z dosiek môžu byť veľmi výnimočné. Napríklad trendový ekologický štýl v interiéri je možné zdôrazniť pomocou drevených svietnikov. Na takúto prácu by ste si mali vybrať staré dosky..
Na jednej strane by nemali mať rovnomerný rez, ale mali by byť mierne zlomené. Čím starší materiál vyzerá, tým budú svietniky zaujímavejšie a originálnejšie. Na tieto účely môžete dosku úmyselne zostarnúť tak, že ju rozbijete.
Pred začatím práce je potrebné pripraviť nasledujúce nástroje a materiály:
- 3 dosky akejkoľvek veľkosti;
- 3 dosky 10 * 10 cm;
- 6 kovových rohov;
- skladačka;
- skrutkovač;
- samorezné skrutky;
- 3 sviečky.
Ďalej musíte postupovať podľa pokynov:
- Odrežte jeden koniec z dlhých dosiek tak, aby jeden z okrajov mal rovnomerný rez.
- Na každú z dosiek priskrutkujte 2 kovové rohy. Použite ich na pripevnenie políc.
- Usporiadajte sviečky.

Ďalším mimoriadnym riešením dizajnu sú hodinky v ekologickom štýle. Ich dokončenie je veľmi jednoduché, takže každé dieťa pod dohľadom dospelého sa s touto úlohou vyrovná..
Na prácu budete potrebovať nasledujúce nástroje a materiály:
- 3 dosky 15 * 5 cm;
- 2 tyče 2 * 2 * 15 cm;
- hodinový mechanizmus s rukami;
- batéria;
- horúca pištoľ;
- šablóna s číslami;
- ceruzka;
- horák;
- vŕtačka;
- skrutkovač;
- samorezné skrutky.
Pracovný proces je reprezentovaný postupnosťou akcií:
- Dosky pritlačte k sebe presne tak, aby vznikol štvorec. Zaistite konštrukciu tyčami. V takom prípade by skrutky nemali byť viditeľné zo zadnej strany..
- Označte stred námestia. Tu vyvŕtajte dieru pre šípy.
- Šablónou a ceruzkou nakreslite čísla 3, 6, 9 a 12. Ošetrite ich horákom.
- Nainštalujte hodinový stroj pomocou horúcej pištole.


Drevená gazdiná môže byť užitočná aj ako prvok domácej dekorácie súčasne. Takáto vec je v dome nepostrádateľná, pretože je oveľa pohodlnejšie, keď sú všetky kľúče uložené na jednom mieste..
Na vytváranie remesiel by ste mali mať k dispozícii nasledujúcu sadu nástrojov:
- doska 10 * 25 cm;
- malé drevené chopiki;
- tesárske lepidlo;
- kladivo;
- vŕtačka;
- ceruzka;
- spaľovač.
Po príprave môžete pokračovať v nasledujúcich krokoch:
- Dosku umiestnite vodorovne. Bližšie k spodnému okraju urobte značky pre chopiky. V dome by ich malo byť toľko, koľko je kľúčov..
- Vyvŕtajte slepé otvory. Do každého pridajte kvapku lepidla na drevo a choďte na chopiki.
- Ceruzkou označte budúci nápis. Môže to byť vo forme slova „domov“ alebo výrazu „vitajte“, v poslednej dobe sa často používa rodinné priezvisko.
- Na spracovanie nápisu použite horák.

Remeslá z dosiek, ktoré môžete robiť so svojimi deťmi vlastnými rukami, môžu pripomínať skutočné majstrovské diela. Môžete napríklad vytvoriť obraz z dreveného panelu. Práca je kreatívna.
Preto sa dieťa môže do procesu zapojiť úplne aj čiastočne. Realizácia panelu predpokladá prítomnosť šablóny. Môžu byť použité rôzne obrázky. Bicykel alebo bežiaci kôň budú vyzerať zaujímavo.
Na vytvorenie produktu musíte použiť nasledujúce nástroje a materiály:
- 4 dosky 12 * 70 cm;
- 2 drevené bloky 3 * 3 * 40 cm;
- 4 viacfarebné farby;
- Biela farba;
- kefa;
- Scotch;
- šablóna;
- brúsny papier;
- skrutkovač;
- samorezné skrutky.
Pracovný proces predpokladá nasledujúci algoritmus akcií:
- Každú dosku namaľujte inou farbou. Suché. Potom je potrebné dosky opatrne spracovať brúsnym papierom. Zároveň sa nemusíte obávať skutočnosti, že odery nie sú rovnomerne rozložené v celom materiáli..
- Dosky rozložte na rovný povrch tak, aby medzi nimi neboli žiadne medzery. Spojte ich s drevenými kockami. Samorezné skrutky by nemali prechádzať. Z prednej strany upevňovacieho bodu by nemalo byť viditeľné.
- Zaistite šablónu páskou. Vyplňte obrázok bielou farbou. Suché.
Rada
- Keď sa rozhodnete zostaviť výrobok vlastnými rukami. Ukážku alebo fotografiu montáže určite nájdite na internete alebo v knihách. Vďaka tomu nebudete plytvať časom a materiálom na výrobu. Teraz sa vám zdá, že je to jednoduché, ale v skutočnosti je všetko komplikovanejšie. Hlavnou vecou je veriť v seba a nevzdávať sa. Keď máte nazbieranú vtáčiu búdku, môžete pokojne nazbierať ďalšiu. Toto pravidlo platí pre akékoľvek výrobky z dreva, hlavnou vecou nie je zabudnúť na technológiu montáže a tvorby.
- Nebojte sa riešiť náročné nápady. Získate veľa skúseností, čo je veľmi užitočné.
- Aby to bolo jednoduchšie, môžete si kúpiť elektrické náradie. Ale to nezradí sprievod fyzickej práce.
- Ak ste urobili vtáčiu búdku, lavičku, stoličku a ďalšie stavby. Nájdite pre nich využitie. Vezmite vtáčiu búdku do lesa, pripevnite ju k stromu. Postavte lavičku do garáže alebo na letnú chatu.
- V tejto náročnej úlohe neustále zdokonaľujte svoju techniku. Toto je obzvlášť dôležité pre skúsených remeselníkov. Učenie je teraz jednoduché, hľadajte videá a cvičte.
- Nebojte sa ukázať svoje výrobky ostatným. Často existujú ľudia, ktorí sú pripravení objednať si zaujímavé drevené remeslá. Do týchto produktov vložte všetku svoju silu a lásku a buďte si istí, že sa na vás priatelia vašich zákazníkov obrátia. A priatelia priateľov si objednajú celú sadu domáceho nábytku.

Fotografické nápady pre domáce remeslá z dreva









































Čo môžete urobiť sami zo zvyškov baru: zaujímavé nápady, majstrovské kurzy, video tipy
domáce zariadenie
Komplexné obrazy vyrobené z dreva sú akrobacie. Najlepším priateľom Wooda je epoxid. Aj keď to bude vyžadovať veľa, bude to stáť za to..
Nakreslite neobvyklý vzor z malých guľatiny a naplňte živicou. Zaujímavou možnosťou by bolo nainštalovať malú farebnú žiarovku dovnútra, kým živica nestvrdne.
Budete prekvapení, keď uvidíte výsledok. Výrobky kombinované s epoxidovou živicou získavajú chladný vzhľad a pútajú pozornosť.
Je veľmi ľahké vyrobiť hračky z dreva na novoročnú dovolenku. Videl rôzne figúrky a lepil na ne fotografie.
To všetko dodá útulnosti útulnú atmosféru. Skutoční remeselníci majú stojany na knihy, vyskúšajte to, možno máte aj vy talent?
Nápady na domov mimo mesta
Predstavte si, že ste v krajine. Strom, ktorý bol nedávno vyrúbaný, sa môže zmeniť na zaujímavé remeslo. Predpokladajme však, že strom tam už nie je a zostane iba peň. Ak je na skvelom mieste, môžete z neho vytvoriť stôl alebo stoličku..
Asi by ste sa zbavili pňa. Stačí vziať pílu, sekeru a dláto. Odrežte prebytočné kusy dreva a odložte ich, zbavte sa sekery dužiny vo vnútri pňa a naplánujte si výšku budúcej stoličky. Plánovanie bude ľahké, ale fyzicky náročné. Potom, čo vnútornosti pňa ležia v blízkosti a samotné sedadlo je pripravené, bežte na brúsny papier, dlho a únavne sa zbavujte všetkých triesok. Ak plánujete natrvalo opustiť túto stoličku, potom produkt zalakujte. Voila, obyčajný pahýľ, ktorý by išiel zapáliť kachle, sa zmenil na stoličku. Teraz je to záhradná výzdoba.
Možno chýba skutočná ruská rozprávka? Nie je problém, na prácu potrebujete brezovú guľatinu. Vystrihnú z neho osla a z ďalších polienok sa zloží vozík. Z rezov sú vytvorené zajace a všetko je pripravené. Teraz stránka vyzerá ako čistinka z rozprávky.
Dvor môže byť útulný, preto nainštalujte drevený nábytok, ktorý si vyrobíte sami. Napríklad lavice, a ak ste ovládali remeslá z dreva a ste už majstrom v tomto odbore, postavte si hojdacie kreslo.
Pódium
Čelo postele
Vešiak
Každý chlapec, ktorý dosiahol vek 10 rokov, môže vyrobiť taký výrobok. Na proces musí dohliadať dospelá osoba. Vyrobiť vešiak je celkom jednoduché, pričom bude nielen dlho zdobiť chodbu, ale bude aj užitočný.
Ak chcete vytvoriť falošný, musíte pripraviť:
DIY doskové remeslá: príklad jednoduchého vešiaka s tromi doskami
Kresba vešiaka na dosky
Algoritmus vykonávania závesu je táto postupnosť akcií:
Organizér na obuv
Na chodbe je často na podlahe veľa topánok. Táto situácia veľmi kazí celý internet. Tento problém môžete vyriešiť vytvorením organizéra z bežných dosiek..
Na výrobu poličky na topánky musíte použiť nasledujúce materiály a nástroje:
Keď je všetko pripravené, môžete sa pustiť do práce..
Proces je nasledujúci sled akcií:
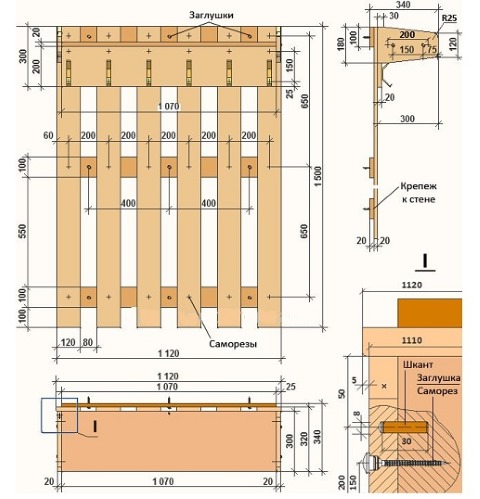
Rack
DIY remeslá z dosiek môžu byť skutočným prínosom. Väčšina rodín napríklad čelí problému s nedostatkom úložného priestoru na rôzne položky do domácnosti..
Problém môžete vyriešiť a zároveň upútať dieťa užitočnou činnosťou, ak si stojan vyrobíte sami. Zároveň sa dá ľahko vstúpiť do akéhokoľvek interiéru, pretože predtým správne vybral farbu farby.
Pred prácou by ste mali pripraviť nasledujúce nástroje a materiály:
Pripravte dosky
Dosky nakrájajte na stojany
Zostavte bočné podpery
Stojan je možné zostaviť vo zvislej polohe
Rack vyrobený z dosiek je pripravený
Ak chcete vytvoriť stojan, musíte postupovať podľa týchto pokynov:
Bočný stolík
Konferenčný stolík je skvelý nápad pre doskové remeslo. Ozdobí každú miestnosť a môže byť užitočná. Napríklad za takýmto nábytkom je vhodné usporiadať stretnutia s priateľmi. Stôl môže tiež hrať úlohu dodatočného úložného priestoru. Výsledkom je, že samotný výrobok vyzerá veľmi esteticky, takže sa ľahko zmestí do akéhokoľvek interiéru.
Kresba klasického konferenčného stolíka
Upevnenie rámu pomocou samorezných skrutiek
Rám konferenčného stolíka
Na jeho dokončenie je potrebné zásobiť sa nasledujúcou sadou nástrojov a materiálov:
Algoritmus na vytvorenie tabuľky je nasledujúci sled fáz:
Koryto
DIY remeslá z dosiek môžu byť jednoduchšie ako možnosti popísané vyššie. Výrobok prinesie nemenej úžitok, naučí deti, ako sa starať o zvieratá, a poskytne im príležitosť získať nové zručnosti..
Kŕmidlo pomôže zaujať dieťa nielen v čase vytvárania remesla, ale aj na dlhú dobu bude možné pravidelne prinášať jedlo a vodu pre vtáky.
Pred začatím práce by ste mali zásobiť nasledujúcu sadu nástrojov a materiálov:
Ak chcete vyrobiť podávač vtákov, musíte postupovať podľa týchto pokynov:
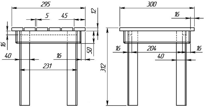
Stolička
Ďalšia možnosť pre drevený falošný materiál, ktorú je ľahké vykonať s vašim dieťaťom. Môžete vyrobiť niekoľko taburetiek naraz, pridať k nim vankúše, ktoré je možné ušiť aj samostatne, a získať tak pohodlný nábytok.
Pred začatím práce pripravte nasledujúce nástroje a materiály:
Pracovný proces je reprezentovaný nasledujúcim algoritmom akcií:
Hojdačka
DIY remeslá z dosiek môžu byť veľmi jednoduché, ale zároveň majú veľký prínos. Jednou z týchto možností je hojdačka. V tomto prípade je navrhnutý jednoduchý model, ktorý je ľahké vytvoriť sami. Môže byť pripevnený k akémukoľvek stromu alebo špeciálnym podperám. Ak je v dome malé dieťa, mali by byť cez dvere zavesené háčiky..
Pred začatím pracovného postupu je potrebné zásobiť sa nasledujúcimi materiálmi a nástrojmi:
Algoritmus vytvárania je nasledujúca postupnosť akcií:
Police na knihy
Veľmi funkčné a praktické využitie dosiek. Každý dom predsa potrebuje závesnú policu na uloženie kníh..
Materiály a nástroje potrebné v procese práce:
Proces vytvárania police pre knihy je nasledujúci algoritmus:
Všetky druhy políc
záhradný nábytok
Výrobcovia záhradného nábytku sa snažia používať prírodné materiály. Nielenže perfektne zapadajú do prírodného prostredia, ale sú aj trvanlivé. Je zrejmé, že náklady na drevené stoličky a stoly sú vysoké. Môžete si ich skúsiť vyrobiť sami, pričom budete mať poruke nástroje a zvyšky dreva.
Originálny podávač guľatiny
Existuje mnoho spôsobov, ako si vyrobiť pohodlné kŕmidlo pre vtáky. Remeslá z prírodných materiálov pôsobia najekologickejšie.
Spracovaná malá guľatina je prírodný podávač, ktorý vyzerá harmonicky medzi vetvami a je vhodný pre vtáky. Výrobný proces krok za krokom:
Mali by ste zvoliť drevo, ktoré je mierne zdeformované a nepodlieha skaze (orech, jelša).
Rám vetvičky stromu
Krásne rodinné fotografie dodávajú domácemu prostrediu šarm a osobnosť. Nezvyčajné rámčeky vždy upozorňujú na fotografie a obrázky. Na vytvorenie dekoru stačí na prechádzkach pozbierať niekoľko sušených konárov horského popola, lipy, topoľa. Budete tiež potrebovať pravidelný drevený rám, lepiacu pištoľ, nožnice na prerezávanie, hnedú akrylovú farbu. Vetvičky sú vopred očistené od starej kôry, umyté, sušené. Fázy práce:
Posledným dotykom je upevnenie dekoru na ráme. Za týmto účelom môžete prilepiť sušené listy, bobule, drevené korálky, umelý mach, kúsky sisalu.
Švédska sviečka
Čo môže byť krajšie ako večerné posedenia v prírode okolo útulného ohňa? Pôvodný spôsob vytvorenia malého, dlho horiaceho ohňa je vybavenie švédskej sviečky. Budete potrebovať obyčajnú rovnomernú guľatinu vysokú 40-55 cm s priemerom 10-40 cm Pílový rez by mal byť rovnomerný, aby guľatina stála pevne a neprevrhla sa. Aspen je považovaný za ideálny, pretože ihličnaté stromy môžu pri horení iskriť a brezové polená rýchlo horia a uvoľňujú veľa sadzí..
Poleno je nakrájané ako koláč – najmenej štyri kusy. Rezy môžete vykonávať ručne, ale je jednoduchšie použiť reťazovú pílu – bude to rýchlejšie a plynulejšie. Rezy sa robia s výškou asi ¾ výšky guľatiny. Čím viac rezov, tým rýchlejšie bude drevo horieť.
Ďalším jednoduchým a praktickým spôsobom je zámkové rozdelenie bloku na štyri časti. Jadro prvkov je trochu vyrezané a guľatina je opäť zostavená. Blok môžete upevniť drôtom a zabaliť ho zospodu. Dutina je naplnená pilinami a mierne navlhčená benzínom.
Postaviť také improvizované užitočné ohnisko nebude ťažké, hlavnou vecou je vybrať rovnú plochu. Ak plánujete variť kebab, je zvolený vyšší denník, na jednoduché osvetlenie stránky stačí blok vysoký 20-25 cm.
Sova vyrobená z dreva
Klesaním stromov na mieste by ste sa nemali ponáhľať so zberom guľatiny a konárov v prístreškoch. Skvelým nápadom na zjemnenie pňa je položenie rodiny sov. Na zostavenie plavidla budete potrebovať kusy guľatiny, konáre rôznych hrúbok a priemerov alebo kusy preglejky.
Rezy s hrúbkou 5-8 cm a najväčším priemerom sú vhodné pre základy. Na každom porezanom tele sú pribité dva kruhy – oči. Oči zozbierané z rezov rôznych priemerov pôsobia textúrovanejšie. Po stranách malého telíčka sú tepané polovice rezov, napodobňujúce krídla. Medzi očami je pripevnená malá vetva predstavujúca nos. Stočená kôra je upevnená nad očami.
Aby kompozícia vyzerala viac umelecky, môžete „zasadiť“ malú figúrku sovy na hrubú vetvu..
Doska na krájanie dreva
Každá žena v domácnosti má v kuchyni svoju vlastnú sadu známych a potrebných nástrojov. Krájacia doska nie je najdôležitejšia položka, ale je ťažké bez nej niečo rýchlo nakrájať a nakrájať. Prirodzene, doska vyrobená z akéhokoľvek masívneho kusa dreva bude trvať dlhšie ako výrobok lepený z tyčí alebo preglejkových dosiek.
Na výrobu remesiel vlastnými rukami budete potrebovať plochú dosku (najlepšie dubovú), skladačku, elektrickú vŕtačku, brúsny papier, ochranný olej. Inštrukcie:
Doska by mala schnúť 20-24 hodín. Olejový film odhaľuje nádhernú drevitú textúru.
Tic-tac-toe špička z dreva
Obľúbenú hru si užívajú deti i dospelí. Začínajúci remeselníci môžu nezávisle robiť remeslo. Budete potrebovať jeden veľký rez pílou s priemerom asi 10-15 cm a 12 polotovarov s priemerom 2 až 3 cm (môžete použiť drevo z jabĺk alebo čerešní). Fázy práce:
Vrstva laku dodá remeslu kompletný vzhľad. Jednoduchší spôsob, ako vytvoriť hru, je použiť ploché kamienky. Nátierky a kríže je možné kresliť farbami. Je vhodné skladovať kamienky v textilnom vrecku, ktoré slúži aj ako ihrisko. Na tkaninu stačí použiť označenie špeciálnymi farbami (môžete použiť banálne guľôčkové pero).
Snehuliak vyrobený z dreva
Veselý snehuliak bude originálnou novoročnou ozdobou interiéru. Dieťa môže s pomocou rodičov vyrobiť také remeslo aj pre školské súťaže. Budete potrebovať dosku s rozmermi asi 5 x 10 cm, vetvičky, vŕtačku, brúsny papier, bielu a čiernu akrylovú farbu, kompas a šablónový papier. Fázy práce sú jednoduché, ale odporúča sa rozlišovať medzi detskou a dospelou prácou..
Deti na list papiera nakreslia kompasom tvar snehuliaka a vystrihnú šablónu. Obrobok je predčistený brúsnym papierom. Šablóna je vysledovaná na strome. Aby figúrka stála sama, spodná časť plavidla je plochá. Dospelý odreže výrobok z dosky a pilníkov pilníkom, vyvŕta výklenky pre úchytky-vetvičky.
Deti začínajú zdobiť: figúrka je pokrytá bielou farbou. Keď vrstva zaschne, natierajú úsmev a oči čiernou farbou. Bambulky vyrobené z vaty a natreté čiernou farbou dodajú snehuliakovi elegantný vzhľad. Konce pierok s vetvičkami sú potreté lepidlom a zasunuté do otvorov na obrázku. Červený nos môže byť vyrobený z polymérnej hliny alebo môžete z červeného papiera vyvaliť kužeľ. Pletená šatka a klobúk dodajú remeslu hotový vzhľad.
Váza na kvety z dreva
Pre školské súťaže bude dekoratívna váza na kvety krásnym remeslom. Vytvorenie produktu je jednoduché: kovová nádoba je prilepená malými rezmi vetvičiek. Aby mala váza krásny vzhľad, používajú rezy z rôznych stromov..
Pôvodná textúra remesla bude krásne zdôraznená vrstvou laku. Pri práci je dôležité vyplniť medzery medzi rezmi, takže musíte použiť vetvy rôznych hrúbok.
Veselé dekorácie na letné sídlo
Zo zvyškov reziva a guľatiny je ľahké vytvoriť mnoho dekorácií pre letnú chatu. Trochu času, predstavivosti a trpezlivosti – a kreatívne domáce remeslá ozdobia záhradu a vytvoria na mieste útulnosť:
Detský priestor bude neobvykle vyzdobený detským ihriskom z rezov píly a malým elegantným domčekom. Dizajn s oknom a vchodom je nízky a zdobený svetlými farbami.
Ako vyrobiť vianočný stromček z konárov
Novoročné remeslá vždy zdobia byt a prinášajú tam pocit oslavy a radostného vzrušenia. Zostaviť vianočný stromček nie je ťažké: začínajú vytvorením základného venca s priemerom 20-25 cm z tenkého suchého viniča. K nemu sú rovnomerne pripevnené pevné rovné vetvy alebo lamely a vytvorí sa kužeľ. Vetvičky hore zviažu tesne. Rybí kónus je spletený viničom ako košík. Aby štruktúra získala pevnosť, sú spoje vetiev zlepené tepelnou pištoľou.
Vianočný stromček môžete ozdobiť rôznymi prvkami: šiškami, žaludmi, sušenými kvetmi, škoricovými tyčinkami, viničnými guľkami. Posledným dotykom je omotanie stromčeka špagátom a vytvarovanie vrcholu. Lesklý a elegantný dizajn je možné vytvoriť pomocou bielych perleťových korálikov nalepených na šnúrke.
Konáre tienidla
Čím sú vetvy dlhšie, tým je väčšia pravdepodobnosť, že ich použijete na objemné obrobky. Tienidlo pre podlahové svietidlo spĺňa túto definíciu:
Pred výrobou dreveného tienidla je potrebné z konárov odstrániť kôru. Mimochodom, tento postup sa vždy odporúča. To isté platí pre vyhladenie povrchu dreva. Hovoríme najmä o eliminácii silne vyčnievajúcich uzlov.
Plafond z pobočiek
Umelé tienidlá veľmi zaťažujú svietidlo. Ďalšou vecou je plafond vyrobený z konárov. Po príprave 50-100 vetiev s dĺžkou 40-70 mm môžete začať robiť:
Ale najskôr je najlepšie robiť remeslá pre ľahké drevo pre začiatočníkov, vrátane malej stolnej lampy s lampou a batériou..
Všetky druhy žiaroviek zo starého dreva
Možnosti drevených hodín
Ozdobný kruh na hodinky
Ako číselník je možné použiť hotový kruh s priemerom 100-200 mm. Zostáva kúpiť tematickú súpravu, ktorá obsahuje:
Túto súpravu je však možné odstrániť z opotrebovaných nástenných hodín, ktorých je na blšom trhu vždy dostatok..
Výzdoba z kruhov
Kruhy sú z rovnakého guľatého dreva, ale už majú veľký priemer. Podľa toho v nich môžete vytvárať rôzne vzory, ako ukazujú jednotlivé fotografie remesiel z dreva, ktoré si urobíte sami.
Kým však začnete rezať, musíte sa vyzbrojiť elektrickou skladačkou, vŕtačkou a predstavivosťou. Kreatívna myšlienka pomôže vytvoriť sprisahanie. Vŕtačka je potrebná na vŕtanie otvorov, ktoré budú slúžiť ako základ pre ponorenie skladačky. Ten vytvára priamo vzory deja.
Roztomilá drevená krabička na kolieskach
Držiak na kľúče vyrobený z dreva
Je to gazdiná, ktorá pomôže vyriešiť problém so stratou kľúčov. Toto je najľahšia možnosť, ktorú je možné vyrobiť z dreva rýchlo a krásne. Pílený strom je starostlivo obrúsený, nalakovaný alebo natretý v požadovanej farbe. Háčiky na kľúče sú pripevnené k rezanej ploche alebo k boku.
Priaznivci zložitých remesiel si môžu vyrobiť otvorený policový box, na ktorého prednej strane sú háčiky na kľúče. Na poličke môžete uložiť peňaženky, korešpondenciu, rôzne drobnosti.
Hlavným pravidlom pre vytváranie remesiel vlastnými rukami je absencia kreatívnych obmedzení. Na zdobenie semi-starožitného vidieckeho nábytku môžete použiť nečakané techniky. Let fantázie dodá dreveným výrobkom pre domácnosť (šatníky, stoly, žiarovky, stoličky) sofistikovanosť a individualitu..
Sada nástrojov
Môžete vytvoriť poriadok na webe pomocou všetkých rovnakých dosiek. Ostatné stavebné materiály a domáce potreby je možné pred zvedavými očami ľahko skryť postavením drevených škatúľ z baru. Nie je potrebná žiadna špeciálna technika. Práca sa vykonáva podľa schémy: náčrt, merania, prevedenie rámu a krytu. Tento dizajn nevyrazí z celkového interiéru a skryje niektoré položky pred susedmi.
Pieskovisko
Ak máte dosky aj po dokončení fasády a terasy, urobte prosím niečo pekné pre svoje deti. Môžete z nich postaviť bezpečné a krásne pieskovisko. Materiál si pripravíte sami, to znamená, že povrch dôkladne prebrúsite bez toho, aby ste tam nechali zubáče a nerovnosti. Dieťa si pri sedení vo vnútri pieskoviska neublíži a nebude viesť triesku. Dizajn sa ľahko vyrába a nevyžaduje žiadne špeciálne schopnosti. Hlavnou vecou je vziať dostatočný počet dosiek, kladiva a klincov..
Záhon
Ak po stavbe altánku alebo kúpeľa zostalo drevo, prečo nepripojiť zvyšky k záhradnej ploche. Kvetinový záhon je dobrý nápad. Zvyšky stromov a stavebných materiálov sú zvyčajne spálené alebo jednoducho vyhodené, ale navrhujeme to inak..
Výroba kvetinového záhonu:
Buďte originálni, premyslite si tvar, dizajn záhona, vyberte správne odrody kvetov. V dôsledku toho získate dobre upravenú kvetinovú záhradu, ktorá sa na mieste bude perfektne kombinovať s výrobkami z dreva..
Originálne nápady na dekor dreva
Remeslá z dosiek vlastnými rukami: originálna polica vyrobená z dosiek a pohárov na kvetináče a kvety
Drevo vyzerá v interiéri vždy dobre. Preto môžete dosky použiť na vytváranie remesiel pre váš domov. Nástenné stojany na vázy s kvetmi budú vyzerať zaujímavo.
V tomto prípade potrebujete minimálne množstvo materiálov:
Proces vytvárania remesiel je nasledujúci sled akcií:
Potom môžete remeslá pripevniť na stenu. Je lepšie ich usporiadať aj vo forme kosoštvorca. Do takýchto váz môžete dať akékoľvek kvety..
Ďalšou zaujímavou myšlienkou dekorácie je špeciálny panel pre fotografie. Takýto falošný pomôže ozdobiť akýkoľvek obytný priestor a bude vyzerať veľmi originálne. Súčasne bude vytvorenie dreveného panelu trvať minimálny čas. Pre najštýlovejší vzhľad je najlepšie použiť čiernobiele fotografie..
Pred začatím práce by ste mali pripraviť nasledujúce materiály a nástroje:
Potom musíte vykonať nasledujúce kroky:
Ďalšou možnosťou ukladania fotografií je rám v ekologickom štýle. Všetky materiály, ktoré sa používajú na vytvorenie remesla, sú navzájom harmonicky kombinované. Niekoľko podobných fotorámikov bude v interiéri vyzerať zaujímavo, umiestnených na akomkoľvek hrubo hotovom drevenom povrchu. Proces vytvárania je celkom jednoduchý, takže môže upútať aj malé dievčatko..
V takom prípade je potrebné, aby niektoré úkony prevzal alebo ovládal dospelý. To platí najmä pre použitie horúceho lepidla a skrutkovača.
Pred prácou musíte pripraviť nasledujúcu sadu nástrojov:
Algoritmus na vytvorenie fotorámika z dosiek v ekologickom štýle:
DIY remeslá z dosiek môžu byť veľmi výnimočné. Napríklad trendový ekologický štýl v interiéri je možné zdôrazniť pomocou drevených svietnikov. Na takúto prácu by ste si mali vybrať staré dosky..
Na jednej strane by nemali mať rovnomerný rez, ale mali by byť mierne zlomené. Čím starší materiál vyzerá, tým budú svietniky zaujímavejšie a originálnejšie. Na tieto účely môžete dosku úmyselne zostarnúť tak, že ju rozbijete.
Pred začatím práce je potrebné pripraviť nasledujúce nástroje a materiály:
Ďalej musíte postupovať podľa pokynov:
Ďalším mimoriadnym riešením dizajnu sú hodinky v ekologickom štýle. Ich dokončenie je veľmi jednoduché, takže každé dieťa pod dohľadom dospelého sa s touto úlohou vyrovná..
Na prácu budete potrebovať nasledujúce nástroje a materiály:
Pracovný proces je reprezentovaný postupnosťou akcií:
Drevená gazdiná môže byť užitočná aj ako prvok domácej dekorácie súčasne. Takáto vec je v dome nepostrádateľná, pretože je oveľa pohodlnejšie, keď sú všetky kľúče uložené na jednom mieste..
Na vytváranie remesiel by ste mali mať k dispozícii nasledujúcu sadu nástrojov:
Po príprave môžete pokračovať v nasledujúcich krokoch:
Remeslá z dosiek, ktoré môžete robiť so svojimi deťmi vlastnými rukami, môžu pripomínať skutočné majstrovské diela. Môžete napríklad vytvoriť obraz z dreveného panelu. Práca je kreatívna.
Preto sa dieťa môže do procesu zapojiť úplne aj čiastočne. Realizácia panelu predpokladá prítomnosť šablóny. Môžu byť použité rôzne obrázky. Bicykel alebo bežiaci kôň budú vyzerať zaujímavo.
Na vytvorenie produktu musíte použiť nasledujúce nástroje a materiály:
Pracovný proces predpokladá nasledujúci algoritmus akcií:
Rada
Fotografické nápady pre domáce remeslá z dreva