
Силата на характера не се крие в способността да пробиеш стени, а в способността да намериш врати. Още по -добре, не само да можете да ги намерите, но и да можете да създадете тези врати. Тази статия ще говори за това как да реализирате силата си в ежедневието и как да направите врата със собствените си ръце..
Как да се подготвим
Изглежда, че съвременният пазар е толкова широк, че на него можете да намерите врата с всякаква форма, размер и качество. Но това не винаги е така. Особено когато става въпрос за изключителен, специален вид дърво, ефектен витраж, необичайна форма. Купуването на стандартен фабричен дизайн е скучно и посредствено. И да направите врата със собствените си ръце е много лесна задача, особено ако има подходящо платно, чифт умели ръце и малко време.

Въпреки това, за да направите сами красива и висококачествена врата, първо трябва да проучите тънкостите и нюансите на материала, да оцените сложността на технологията и изчисленията и да идентифицирате клопки по време на нейното инсталиране..
Първо трябва да подготвите всички материали и инструменти, които ще ви трябват за работа. Всъщност крайният резултат се влияе не само от качеството на самите суровини, но и от качеството и надеждността на помощните инструменти и материали, които са били използвани при монтажа и монтажа на вратата.. И това ще изисква:
- ръчна фреза. С негова помощ се извършва обработката на дървен продукт, той се оформя, елементите на жлеба се смилат;
- ръчен циркуляр;
- Български. В този случай той ще служи за шлайфане на дърва;
- отвертка за монтаж на врата;
- строително ниво и рулетка;
- чук;
- молив или маркер.

Независимо какъв вид продукт трябва да бъде направен, независимо дали става въпрос за интериор, вход или врати за лятна вила, за всички се използва единна технология. Ето защо, след като изучите тази статия, можете лесно да направите домашни врати за всякакви нужди. Освен инструменти, ще ви трябва и самият материал. Като правило те избират масив от различни видове дърво: дъб, ясен, бреза, лиственица, бор.
Някои хора предпочитат екзотични видове: махагон, венге, бук. Изборът зависи от личните предпочитания, типа стая и общата интериорна концепция.

Когато правите конструкция със собствените си ръце, трябва да вземете предвид факта, че дървено платно ще изисква предварителна обработка, особено за твърда дървесина. Когато избирате дървено платно, трябва да се съсредоточите върху гарантирането, че дървото е равномерно, гладко. Не трябва да има пукнатини или дупки за възли. Избраната плоскост първо се суши в добре проветриво помещение при температура около 25 ° C.
Можете да го изсушите навън, но само при сухо време, за предпочитане през лятото на централна Русия. В зависимост от вида дърво и първоначалното му състояние, сушенето на платното може да отнеме до десет дни..
Популярни модели
Преди да продължите с производството на врати, трябва да помислите какъв тип ще бъдат (шарнирни или плъзгащи се), да вземете решение за формата и дизайна. Най -важните характеристики на всички врати са функционалност и външен вид, защото те ще станат неразделна част от интериора.

Нека характеризираме основните модели:
- Много популярен днес плъзгащи се врати. Вратата от типа “отделение” може да бъде или еднокрила, или с две крила. Плъзгащите се врати на ролки са алтернатива на конвенционалните опции с люлеещи се врати, особено ако има остър проблем за спестяване на място. Има два вида плъзгащи се врати: долни релси и горни релси. Така че, използвайки механична система с по-ниски водачи, вратата “върви” по вградените ролки, намалявайки натоварването на стените.
Такава система за закрепване на плъзгаща се врата е изгодна за тънки прегради в апартаменти..
- Между отделни врати дизайните с шарнирен механизъм са особено популярни. Плъзгащите се врати на панти обикновено са изработени от стъкло, поради по -ниското си тегло в сравнение с масивни дървени колеги. В допълнение към факта, че този тип врати също заема малко място в апартамента, плюс това е, че стъклената му повърхност перфектно пропуска светлина в стаята. Тази опция е много подходяща, ако планирате да ремонтирате “Хрушчов”, за да освободите и без това малката площ на апартамента от ненужни структури.
- Врата на книгата, подобно на врата на отделение, тя помага да се спести полезно пространство в апартамента. Сгъваемата му структура се състои от две отделни платна, свързани помежду си, така че при отваряне едната част да пада върху другата, същата, без да претрупва интериора. Те често се инсталират в съблекални и в бани до спалнята..
- Сгъваема врата – друг вариант за малки апартаменти. В сравнение с люлеещите се врати, такива врати могат да спестят до два метра пространство. Този вид продукт може да се използва във всеки интериор. Дизайнът на вратите за акордеон е разнообразен. Има дори интересни опции със сложни витражи.
- Всички знаят панелни врати остават популярни и до днес поради естетическите си характеристики. Ламперираната врата се различава от обичайната с факта, че вътре в рамката на вратата са поставени допълнителни по -тънки платна. По този начин дори най -скучната врата може да бъде направена много оригинална, като се използват вложки с текстурирани шарки или резби. Областта на използване на тези врати са не само офис помещения, но и жилищни сгради и апартаменти.
производство
Стандартната шарнирна врата се състои от няколко части:
- каса на врата;
- крила на вратите;
- крепежни елементи;
- замък;
- рамки под формата на чинии.

Ако платното на продукта не е монолитна дъска от масив, а има няколко компонента, е необходимо да се изясни от какво ще бъдат направени и какво е тяхното функционално предназначение. Рамката на конструкцията е рамката. Той определя основните размери на продукта, придава му твърдост и форма. Външната видима част на платното е представена с обвивка. В това си качество могат да служат не само дървени панели, но и пластмасови профили или стъклени витражи..

Ако задачата е да направите входната врата, тогава трябва да се погрижите за изолацията, която е поставена вътре, под облицовката.
Тази статия ще предостави информация как самостоятелно да направите врата с най -простия дизайн с механизъм за закрепване на панти, без изолация и сложни опции за облицовка като стъклени декоративни елементи и резбовани панели..
Измервания
Седем пъти мери веднъж. Тази поговорка ще бъде по -подходяща от всякога, когато правите своя собствена врата. Всъщност крайният резултат ще зависи от това колко правилно са направени измерванията. И не е нужно да измисляте кои части да измервате. Всички основни параметри са известни отдавна, достатъчно е просто да ги запишете върху лист хартия и да ги измерите с помощта на обикновена строителна лента.

Наложително е да се измери:
- ширина на вратата (разстояние от левия до десния ръб на крилото);
- височина на вратата (разстояние от пода до горната точка);
- ширината на вратата;
- дебелината на вратата;
- наклонът на отвора (ако има изкривявания);
- равномерност (определете елементите, чийто размер се различава от основния).

При определяне на ширината на продукта се препоръчва да се измери разстоянието между страничните части на отвора в площта на пода, в центъра на отвора и на горната граница на отвора и да се намери средната стойност. Ако е необходимо, ако тези стойности се различават, отворът може да бъде подрязан..
За вътрешна врата ширината обикновено е 80-90 см, за входна врата-90-120 см. Височината на вратата се определя от височината на отвора и е приблизително 200-210 см. Измерванията се правят с същата рулетка от пода до горната точка на вратата.
Трябва да се има предвид, че ако все още няма подово покритие в апартамента, тогава измерената височина няма да бъде напълно точна, следователно за начало се препоръчва да завършите работата с пода, така че всички параметри на бъдещата врата да бъдат взети под внимание правилно. При определяне на височината на вратата измерванията се извършват и в три точки (крайно ляво, централно и крайно дясно).

Дебелината на вратата се измерва подобно на ширината на вратата. Просто трябва да вземете предвид, че ширината на кутията ще бъде малко по -голяма, тъй като е необходимо да се остави разстояние между вратата и кутията за свободно движение на вратата. И все пак, при формирането на кутията, трябва да се помни, че ширината й трябва да бъде няколко сантиметра по -малка от измерената ширина на отвора, тъй като по време на монтажа е необходимо да се оставят технологични празнини.

Дебелината на вратата се измерва в шест точки (дебелина в долната, средната, горната част за левия ръб и същите позиции за десния ръб). Този параметър ще зависи от дебелината на стената, в която ще се монтира вратата. За входа обикновено е повече, отколкото за интериора, но има и изключения. Тук също трябва да обърнете внимание на наличието на нестандартни размери на дебелината на отвора. В този случай е необходимо да се предвидят допълнения, които да компенсират този момент.

За да се опрости инсталирането на конструкцията, необходимо е първо да се определи равномерността на отвора. Използвайки нивото на сградата, проверете вертикалата на отвора (в три точки) и диагонала. С помощта на рулетка измерете разстоянието вътре в отвора по диагонал, от горния ъгъл до дъното, за всяка страна. И двете стойности трябва да са приблизително равни. В случай на силни отклонения не само външният вид на конструкцията ще се влоши, но и надеждността на системата за закрепване се поставя под въпрос.

След като основните параметри са измерени, преминете към коригиране на нередности и изкривявания. За да направят това, те извършват измазване на тези места или отрязват излишъка с помощта на мелница. Идеалният вариант би бил подравняването на отвора с листове от гипсокартон..

Премахването на недостатъците, идентифицирани в процеса на измерване на размерите на продукта, със сигурност ще има положителен ефект върху по -нататъшната работа и ще премахне много неприятни моменти по време на монтажа..
Материали (редактиране)
Съвременният пазар е пренаситен с различни опции за врати от най -различни материали. Дървото обаче остава традиционно. Поради високите си показатели за качество, както и свойството да се съчетават перфектно с дървени мебели и паркетни дъски, дървените врати станаха по -търсени, особено в интериора на апартаменти и селски къщи..
В допълнение към естетическите си характеристики, дървените изделия имат редица други предимства: здравината на материала, лекотата на обработка на материала, способността да задържа топлината, добрата звукоизолация, както и екологичността..
Струва си да се обърне внимание на факта, че ако изборът е паднал върху дървена врата, тогава всички други части също трябва да бъдат изработени от дърво (кутия, дъски, удължители).

Сред недостатъците на дървото може да се отбележи запалимостта, способността да абсорбира влагата и да се разширява и, разбира се, високата цена.
Най -популярните, но не и най -лесните за производство, са панелните врати. По-добре е да използвате готови фрези като вътрешни вложки, тъй като тяхното рязане е трудоемка работа. На строителния пазар можете да закупите комплект фрези за бъдеща врата. За да спестите от материал, крилото на вратата може да бъде направено от дъски, вместо от широко монолитно крило.

Ако трябва да направите врата към лятна вила или баня, можете да използвате още по -евтини материали. Добра алтернатива на масивното дърво ще бъде врата от шперплат. Това е доста здрав материал; по време на неговото производство, белените фурнирни листове се залепват един за друг, така че влакната на единия лист да са перпендикулярни на влакната на другия. Външните слоеве шперплат са залепени с фурнир от трепетлика, бор или лиственица (тези видове фурнир имат добра здравина и естетичен вид).

Облицовъчните продукти също са евтин вариант. Предимството на този материал е, че за да направите врата, не е необходимо да използвате фабрична облицовка, можете да направите отделни профили от скрап материали.

В допълнение към естествените материали, широко се използват синтетични поликарбонати. Изборът на този материал за производството на врата е изгоден, когато се предполага, че неблагоприятните метеорологични условия (влажност, температура) ще повлияят на конструкцията. Но ако по -рано поликарбонатът е бил използван за производството на оранжерии, сега той лесно се използва за входни врати, основното е да се осигури надеждна основа и изолация.

Ако желаете, можете да изградите структура от други полимери. Често се прави алуминиева рамка с вложки от плексиглас. Изглежда доста стилно, но тези материали са доста скъпи.
Как да направите рамка на врата?
Преди да започнете да сглобявате рамката на вратата, трябва да проучите нейната структура. И така, рамката на вратата се състои от четири основни части: два стълба (най -дългите части), праг и горна напречна греда (къси части). За начало измерете дължината на стелажите. В случай на използване на праг, той е равен на дължината на вратата плюс 2-3 сантиметра за празнина от всяка страна. Ако няма праг, вместо празнина от дъното добавете 15-20 сантиметра. Това ще позволи на вратата да се движи свободно от пода..

Измерените стойности се проследяват върху платното и всяка стойка се изрязва със специален нож..
Напречната греда и прагът са един и същ компонент. Тяхната дължина се състои от ширината на вратата, същите две празнини и дебелината на рамката. Измерените размери се прехвърлят върху дървено платно и се изрязват един или два елемента в зависимост от необходимостта от праг. В горната напречна греда на кутията се изрязват жлебове, маркиращи линиите, където стелажите се пресичат с горната напречна греда, и внимателно изрежете тези секции с мозайката от всяка страна.

След като всички канали са изрязани, стойките и напречната греда са подравнени на пода, за да се уверят, че съвпадат. След това изрязаните части се шлайфат внимателно с шкурка, като се елиминират всички неравности и груби грапавини. Когато всички елементи на кутията са готови, можете да започнете сглобяването.
За да сглобите конструкцията, ще ви е необходима бормашина или отвертка. В отвертката се вкарва 2-3 мм свредло и се пробиват отвори в подравнените ъгли на бъдещата кутия. Тези дупки ще запазят материала непокътнат при завинтване на винтовете. Завийте винтовете във всеки отвор със свредло Phillips. Рамката на вратата е почти готова.

За да сте сигурни, че кутията е направена правилно, трябва да я поставите на пода и да поставите избраното крило на вратата вътре, като прецените наличието на празнини между тях. Струва си да се отбележи, че ако задачата е независимо да направите плъзгаща се конструкция, тогава трябва да вземете предвид нейния отличителен механизъм. Когато се отвори, такава врата ще се премести отстрани, като моливник (влезте в стената или легнете върху нея), следователно, когато оформяте кутията, трябва да осигурите жлеб за вратата в един от стелажите.
Как да направите самата врата: инструкции стъпка по стъпка
Сега нека разгледаме как да направим самата врата. За стопански постройки вратата ще бъде обикновен щит, изработен от отделни дъски, закрепени заедно с дървени ремъци. Вътрешните дървени врати трябва да имат по -естетичен вид, тук не са приложими прости фитинги.

Работата трябва да се извърши върху дърводелска стойка или върху маса, която ще позволи на продукта да бъде напълно позициониран върху него..
За оформяне на крилото на вратата се използват набраздени дъски с жлебове (можете също да изрежете каналите сами). Дебелината на дъските трябва да бъде от 2,5 до 4 сантиметра, в зависимост от това дали ще е интериорна или входна врата. Подготвените дъски се сгъват в щит. Ако се вземат набраздени дъски, тогава каналите се отстраняват по външните дъски с помощта на циркулярен трион.
Дъските са залепени заедно с дърводелско лепило, като трябва да се спазва моделът на годишните пръстени (те трябва да лежат в една и съща посока, така че дисбалансът да не се откроява върху крайния продукт). Заготовката на вратата се поставя в менгеме, за да се комбинират по -плътно елементите, и лепилото се оставя да изсъхне. След това цялата повърхност на мрежата се прекарва с фреза, специално внимание се отделя на фугите и неравномерните фрагменти.

Ако дебелината на дъските не е достатъчна, за да използвате вратата като вход, тогава можете да залепите дъските на два слоя. Такава врата ще бъде доста масивна и тежка..
След това преминете към проектирането на готовия щит. С помощта на шаблон прехвърлете рисунката върху дървено платно, първо с молив. Използвайки рутер с ръчен механизъм, те внимателно изрязват шаблона, сменяйки фрезите. Готовият чертеж и самото платно трябва да бъдат обработени с шкурка, след това да се попият със специален антисептичен разтвор. Ако вратата е входна, тогава тя трябва да бъде обработена с влагоустойчиви средства и забавители на горенето. Така че ще продължи много по -дълго..
Как да вмъкнете?
На рамката на вратата маркирайте местата, където ще бъдат разположени пантите. На крилото на вратата се правят маркировки и на съответните места. За да направите това, поставете го във вертикално положение, горната част ще бъде от страната, където са прикрепени пантите. От обратната страна маркирайте местоположението на замъка. Преди това вратата се поставя в кутия, маркировката се проверява, отбелязва се местоположението на заключващия език върху кутията, след това се вкарват пантите, след това се прилагат към вратата и към кутията, пробити с бормашина. Езикът е добре подрязан с мозайката.

За да се монтира правилно ключалката на вратата, тя първо се поставя върху мястото на инсталиране на продукта, обгражда се и всички необходими технологични дупки се маркират с точки. След като се определи дълбочината на монтиране на ключалката, тя се поставя на маркираното място и се завинтва. Сега, когато всички части са готови, трябва да ги инсталирате правилно..

Първо вкарваме рамката на вратата в отвора. Ние го подравняваме и закрепваме с клинове. Можете да регулирате кутията, вече монтирана в стената, като удряте клиновете с чук. След това в отворите, пробити в стената и кутията, се вкарват дюбели и самонарезни винтове. И последното и най -важно нещо е сглобяването на вратата и рамката.
По -добре е да извършите тази операция заедно, за да избегнете наранявания, тъй като крилото на вратата е тежка конструкция. Като държим вратата в тегло, фиксираме пантите с самонарезни винтове.

След като сглобяването на основните части приключи, можете да направите лиштвите. По-лесно е да закупите готово в магазина или да го направите сами, като използвате дървени заготовки с дебелина 1-1,5 см и обикновен мозайката. Всеки ръб на корпуса се изрязва под ъгъл от 45 градуса и се регулира по дължина. Готовите продукти се фиксират на нивото на кутията с помощта на лепило за дърво или малки пирони..

Като цяло работата по инсталирането на вратата, с компетентен подход и висококачествени материали, ще отнеме не повече от два дни. И горните препоръки могат да се използват за направата на врати от други материали, като се променят само някои от инструментите.
Довършителни работи
Довършването ще помогне да се придаде на крайния продукт завършен вид. Можете да го направите и сами, това е по -приятна и по -малко сложна работа, отколкото инсталирането и сглобяването на самата врата.. Довършването на вратите може да се извърши по следния начин:
- боядисване на врати;
- лакиране;
- лепене с тапет или декоративен филм;
- декупаж;
- вложка от огледала и цветни стъкла;
- подплата с плат;
- използването на методи за стареене на дървено платно.

Ако не искате да губите време за декориране на вратата си, можете просто да я нарисувате с обикновена боя или петно, а след това, ако желаете, да я лакирате. Водоустойчив тапет и самозалепващ се филм са удобни за използване, ако вратата е монтирана в банята, тъй като това допълнително ще й осигури защита от влага. Ако търсите стилен дизайн, изследвайте фалшивите техники за стареене. Така че дори обикновена домашна врата може да се превърне в изящен интериорен елемент..
Опции за декор
За тези, които не харесват скучните стандартни опции за облицовки, можете да предложите по -интересни дизайнерски решения за дизайна на продукта. Например стенописи за врати. С помощта на добре подбран модел можете да направите ефектна врата, която ще се превърне в ярък акцент в стаята..

Интересен вариант за декорация са стари географски карти или черно -бели фотографии. Изрезките от вестници или плакати от списания също ще изглеждат необичайно, предизвиквайки приятна носталгия. Можете да залепите вратата с цветна лента. Тази опция е подходяща за селска къща или детска стая.

Ако се предпочита бохемски стил, след това боядисват корнизите в контрастен цвят. Често се използват шаблони. Особено творческите натури могат да изразят себе си и да нарисуват работата си с маслени или акрилни бои, като предварително са подготвили основата на вратата. Децата ще харесат оригиналните стикери под формата на приказни герои или комикси.

Врата, украсена с кърпа, е подходяща за кухнята. Но тук първо трябва да проучите свойствата на тази тъкан и характеристиките на нейното свиване. Като лепило се използва обикновена паста на базата на казеин или CMC. Вратата изглежда интересно с рамка от кожа, закована с мебелни шипове.

Огледало, поставено или залепено към конструкцията на вратата, ще изглежда функционално. А за семейство с малки деца можете дори да пропуснете декорацията изобщо. Тя ще възникне с помощта на умели детски химикалки. Сладко и смешно.
Красиви примери в интериора
Разбира се, основната функция на всяка врата е шумоизолация, запазване на топлината и лично пространство. Не забравяйте обаче, че вратата е включена в списъка с основни елементи, които придават на външния вид на стаята определен стил. Цветът на вратите е от голямо значение за интериора. Но понякога интериорът е различен в различните стаи и трябва да изберете вратата толкова добре, че да върви добре и с двата стила. Трудно е, но нищо не е невъзможно.
Основното правило в този случай е да се съсредоточите върху общия стил на дома. Определете кой интериор преобладава и изберете продукт в съответствие с него.

Неутралният цвят на вратата, съчетан с цвета на пода или тавана, е идеалният изход от ситуация, в която не искате да заблудите главата си. Добър вариант са плъзгащите се стъклени конструкции. Те ще бъдат подходящи в почти всеки апартамент, независимо дали е класически или високотехнологичен. В същото време за високотехнологичния стил е подходяща опцията с хромиран корпус. Можете да направите рамка на врата от метал или да направите метални връзки на нейното платно.

Ако вратата е изправена пред задачата за зониране в рамките на една стая, тогава екранната врата с решетъчно тяло и тъкана основа ще бъде добър избор. Освен това, което го прави много по -лесно от всяка друга врата, просто трябва да работите върху подвижната връзка на елементите. Опитайте се сами да направите вратата и вашият продукт ще стане не само мебел, но и лична гордост..

За това как да направите врата със собствените си ръце, вижте следващия видеоклип..
Как да направите врата със собствените си ръце?
Силата на характера не се крие в способността да пробиеш стени, а в способността да намериш врати. Още по -добре, не само да можете да ги намерите, но и да можете да създадете тези врати. Тази статия ще говори за това как да реализирате силата си в ежедневието и как да направите врата със собствените си ръце..
Как да се подготвим
Изглежда, че съвременният пазар е толкова широк, че на него можете да намерите врата с всякаква форма, размер и качество. Но това не винаги е така. Особено когато става въпрос за изключителен, специален вид дърво, ефектен витраж, необичайна форма. Купуването на стандартен фабричен дизайн е скучно и посредствено. И да направите врата със собствените си ръце е много лесна задача, особено ако има подходящо платно, чифт умели ръце и малко време.
Въпреки това, за да направите сами красива и висококачествена врата, първо трябва да проучите тънкостите и нюансите на материала, да оцените сложността на технологията и изчисленията и да идентифицирате клопки по време на нейното инсталиране..
Първо трябва да подготвите всички материали и инструменти, които ще ви трябват за работа. Всъщност крайният резултат се влияе не само от качеството на самите суровини, но и от качеството и надеждността на помощните инструменти и материали, които са били използвани при монтажа и монтажа на вратата.. И това ще изисква:
Независимо какъв вид продукт трябва да бъде направен, независимо дали става въпрос за интериор, вход или врати за лятна вила, за всички се използва единна технология. Ето защо, след като изучите тази статия, можете лесно да направите домашни врати за всякакви нужди. Освен инструменти, ще ви трябва и самият материал. Като правило те избират масив от различни видове дърво: дъб, ясен, бреза, лиственица, бор.
Някои хора предпочитат екзотични видове: махагон, венге, бук. Изборът зависи от личните предпочитания, типа стая и общата интериорна концепция.
Когато правите конструкция със собствените си ръце, трябва да вземете предвид факта, че дървено платно ще изисква предварителна обработка, особено за твърда дървесина. Когато избирате дървено платно, трябва да се съсредоточите върху гарантирането, че дървото е равномерно, гладко. Не трябва да има пукнатини или дупки за възли. Избраната плоскост първо се суши в добре проветриво помещение при температура около 25 ° C.
Можете да го изсушите навън, но само при сухо време, за предпочитане през лятото на централна Русия. В зависимост от вида дърво и първоначалното му състояние, сушенето на платното може да отнеме до десет дни..
Популярни модели
Преди да продължите с производството на врати, трябва да помислите какъв тип ще бъдат (шарнирни или плъзгащи се), да вземете решение за формата и дизайна. Най -важните характеристики на всички врати са функционалност и външен вид, защото те ще станат неразделна част от интериора.
Нека характеризираме основните модели:
Такава система за закрепване на плъзгаща се врата е изгодна за тънки прегради в апартаменти..
производство
Стандартната шарнирна врата се състои от няколко части:
Ако платното на продукта не е монолитна дъска от масив, а има няколко компонента, е необходимо да се изясни от какво ще бъдат направени и какво е тяхното функционално предназначение. Рамката на конструкцията е рамката. Той определя основните размери на продукта, придава му твърдост и форма. Външната видима част на платното е представена с обвивка. В това си качество могат да служат не само дървени панели, но и пластмасови профили или стъклени витражи..
Ако задачата е да направите входната врата, тогава трябва да се погрижите за изолацията, която е поставена вътре, под облицовката.
Тази статия ще предостави информация как самостоятелно да направите врата с най -простия дизайн с механизъм за закрепване на панти, без изолация и сложни опции за облицовка като стъклени декоративни елементи и резбовани панели..
Измервания
Седем пъти мери веднъж. Тази поговорка ще бъде по -подходяща от всякога, когато правите своя собствена врата. Всъщност крайният резултат ще зависи от това колко правилно са направени измерванията. И не е нужно да измисляте кои части да измервате. Всички основни параметри са известни отдавна, достатъчно е просто да ги запишете върху лист хартия и да ги измерите с помощта на обикновена строителна лента.
Наложително е да се измери:
При определяне на ширината на продукта се препоръчва да се измери разстоянието между страничните части на отвора в площта на пода, в центъра на отвора и на горната граница на отвора и да се намери средната стойност. Ако е необходимо, ако тези стойности се различават, отворът може да бъде подрязан..
За вътрешна врата ширината обикновено е 80-90 см, за входна врата-90-120 см. Височината на вратата се определя от височината на отвора и е приблизително 200-210 см. Измерванията се правят с същата рулетка от пода до горната точка на вратата.
Трябва да се има предвид, че ако все още няма подово покритие в апартамента, тогава измерената височина няма да бъде напълно точна, следователно за начало се препоръчва да завършите работата с пода, така че всички параметри на бъдещата врата да бъдат взети под внимание правилно. При определяне на височината на вратата измерванията се извършват и в три точки (крайно ляво, централно и крайно дясно).
Дебелината на вратата се измерва подобно на ширината на вратата. Просто трябва да вземете предвид, че ширината на кутията ще бъде малко по -голяма, тъй като е необходимо да се остави разстояние между вратата и кутията за свободно движение на вратата. И все пак, при формирането на кутията, трябва да се помни, че ширината й трябва да бъде няколко сантиметра по -малка от измерената ширина на отвора, тъй като по време на монтажа е необходимо да се оставят технологични празнини.
Дебелината на вратата се измерва в шест точки (дебелина в долната, средната, горната част за левия ръб и същите позиции за десния ръб). Този параметър ще зависи от дебелината на стената, в която ще се монтира вратата. За входа обикновено е повече, отколкото за интериора, но има и изключения. Тук също трябва да обърнете внимание на наличието на нестандартни размери на дебелината на отвора. В този случай е необходимо да се предвидят допълнения, които да компенсират този момент.
За да се опрости инсталирането на конструкцията, необходимо е първо да се определи равномерността на отвора. Използвайки нивото на сградата, проверете вертикалата на отвора (в три точки) и диагонала. С помощта на рулетка измерете разстоянието вътре в отвора по диагонал, от горния ъгъл до дъното, за всяка страна. И двете стойности трябва да са приблизително равни. В случай на силни отклонения не само външният вид на конструкцията ще се влоши, но и надеждността на системата за закрепване се поставя под въпрос.
След като основните параметри са измерени, преминете към коригиране на нередности и изкривявания. За да направят това, те извършват измазване на тези места или отрязват излишъка с помощта на мелница. Идеалният вариант би бил подравняването на отвора с листове от гипсокартон..
Премахването на недостатъците, идентифицирани в процеса на измерване на размерите на продукта, със сигурност ще има положителен ефект върху по -нататъшната работа и ще премахне много неприятни моменти по време на монтажа..
Материали (редактиране)
Съвременният пазар е пренаситен с различни опции за врати от най -различни материали. Дървото обаче остава традиционно. Поради високите си показатели за качество, както и свойството да се съчетават перфектно с дървени мебели и паркетни дъски, дървените врати станаха по -търсени, особено в интериора на апартаменти и селски къщи..
В допълнение към естетическите си характеристики, дървените изделия имат редица други предимства: здравината на материала, лекотата на обработка на материала, способността да задържа топлината, добрата звукоизолация, както и екологичността..
Струва си да се обърне внимание на факта, че ако изборът е паднал върху дървена врата, тогава всички други части също трябва да бъдат изработени от дърво (кутия, дъски, удължители).
Сред недостатъците на дървото може да се отбележи запалимостта, способността да абсорбира влагата и да се разширява и, разбира се, високата цена.
Най -популярните, но не и най -лесните за производство, са панелните врати. По-добре е да използвате готови фрези като вътрешни вложки, тъй като тяхното рязане е трудоемка работа. На строителния пазар можете да закупите комплект фрези за бъдеща врата. За да спестите от материал, крилото на вратата може да бъде направено от дъски, вместо от широко монолитно крило.
Ако трябва да направите врата към лятна вила или баня, можете да използвате още по -евтини материали. Добра алтернатива на масивното дърво ще бъде врата от шперплат. Това е доста здрав материал; по време на неговото производство, белените фурнирни листове се залепват един за друг, така че влакната на единия лист да са перпендикулярни на влакната на другия. Външните слоеве шперплат са залепени с фурнир от трепетлика, бор или лиственица (тези видове фурнир имат добра здравина и естетичен вид).
Облицовъчните продукти също са евтин вариант. Предимството на този материал е, че за да направите врата, не е необходимо да използвате фабрична облицовка, можете да направите отделни профили от скрап материали.
В допълнение към естествените материали, широко се използват синтетични поликарбонати. Изборът на този материал за производството на врата е изгоден, когато се предполага, че неблагоприятните метеорологични условия (влажност, температура) ще повлияят на конструкцията. Но ако по -рано поликарбонатът е бил използван за производството на оранжерии, сега той лесно се използва за входни врати, основното е да се осигури надеждна основа и изолация.
Ако желаете, можете да изградите структура от други полимери. Често се прави алуминиева рамка с вложки от плексиглас. Изглежда доста стилно, но тези материали са доста скъпи.
Как да направите рамка на врата?
Преди да започнете да сглобявате рамката на вратата, трябва да проучите нейната структура. И така, рамката на вратата се състои от четири основни части: два стълба (най -дългите части), праг и горна напречна греда (къси части). За начало измерете дължината на стелажите. В случай на използване на праг, той е равен на дължината на вратата плюс 2-3 сантиметра за празнина от всяка страна. Ако няма праг, вместо празнина от дъното добавете 15-20 сантиметра. Това ще позволи на вратата да се движи свободно от пода..
Измерените стойности се проследяват върху платното и всяка стойка се изрязва със специален нож..
Напречната греда и прагът са един и същ компонент. Тяхната дължина се състои от ширината на вратата, същите две празнини и дебелината на рамката. Измерените размери се прехвърлят върху дървено платно и се изрязват един или два елемента в зависимост от необходимостта от праг. В горната напречна греда на кутията се изрязват жлебове, маркиращи линиите, където стелажите се пресичат с горната напречна греда, и внимателно изрежете тези секции с мозайката от всяка страна.
След като всички канали са изрязани, стойките и напречната греда са подравнени на пода, за да се уверят, че съвпадат. След това изрязаните части се шлайфат внимателно с шкурка, като се елиминират всички неравности и груби грапавини. Когато всички елементи на кутията са готови, можете да започнете сглобяването.
За да сглобите конструкцията, ще ви е необходима бормашина или отвертка. В отвертката се вкарва 2-3 мм свредло и се пробиват отвори в подравнените ъгли на бъдещата кутия. Тези дупки ще запазят материала непокътнат при завинтване на винтовете. Завийте винтовете във всеки отвор със свредло Phillips. Рамката на вратата е почти готова.
За да сте сигурни, че кутията е направена правилно, трябва да я поставите на пода и да поставите избраното крило на вратата вътре, като прецените наличието на празнини между тях. Струва си да се отбележи, че ако задачата е независимо да направите плъзгаща се конструкция, тогава трябва да вземете предвид нейния отличителен механизъм. Когато се отвори, такава врата ще се премести отстрани, като моливник (влезте в стената или легнете върху нея), следователно, когато оформяте кутията, трябва да осигурите жлеб за вратата в един от стелажите.
Как да направите самата врата: инструкции стъпка по стъпка
Сега нека разгледаме как да направим самата врата. За стопански постройки вратата ще бъде обикновен щит, изработен от отделни дъски, закрепени заедно с дървени ремъци. Вътрешните дървени врати трябва да имат по -естетичен вид, тук не са приложими прости фитинги.
Работата трябва да се извърши върху дърводелска стойка или върху маса, която ще позволи на продукта да бъде напълно позициониран върху него..
За оформяне на крилото на вратата се използват набраздени дъски с жлебове (можете също да изрежете каналите сами). Дебелината на дъските трябва да бъде от 2,5 до 4 сантиметра, в зависимост от това дали ще е интериорна или входна врата. Подготвените дъски се сгъват в щит. Ако се вземат набраздени дъски, тогава каналите се отстраняват по външните дъски с помощта на циркулярен трион.
Дъските са залепени заедно с дърводелско лепило, като трябва да се спазва моделът на годишните пръстени (те трябва да лежат в една и съща посока, така че дисбалансът да не се откроява върху крайния продукт). Заготовката на вратата се поставя в менгеме, за да се комбинират по -плътно елементите, и лепилото се оставя да изсъхне. След това цялата повърхност на мрежата се прекарва с фреза, специално внимание се отделя на фугите и неравномерните фрагменти.
Ако дебелината на дъските не е достатъчна, за да използвате вратата като вход, тогава можете да залепите дъските на два слоя. Такава врата ще бъде доста масивна и тежка..
След това преминете към проектирането на готовия щит. С помощта на шаблон прехвърлете рисунката върху дървено платно, първо с молив. Използвайки рутер с ръчен механизъм, те внимателно изрязват шаблона, сменяйки фрезите. Готовият чертеж и самото платно трябва да бъдат обработени с шкурка, след това да се попият със специален антисептичен разтвор. Ако вратата е входна, тогава тя трябва да бъде обработена с влагоустойчиви средства и забавители на горенето. Така че ще продължи много по -дълго..
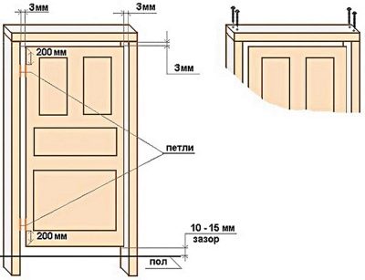
Как да вмъкнете?
На рамката на вратата маркирайте местата, където ще бъдат разположени пантите. На крилото на вратата се правят маркировки и на съответните места. За да направите това, поставете го във вертикално положение, горната част ще бъде от страната, където са прикрепени пантите. От обратната страна маркирайте местоположението на замъка. Преди това вратата се поставя в кутия, маркировката се проверява, отбелязва се местоположението на заключващия език върху кутията, след това се вкарват пантите, след това се прилагат към вратата и към кутията, пробити с бормашина. Езикът е добре подрязан с мозайката.
За да се монтира правилно ключалката на вратата, тя първо се поставя върху мястото на инсталиране на продукта, обгражда се и всички необходими технологични дупки се маркират с точки. След като се определи дълбочината на монтиране на ключалката, тя се поставя на маркираното място и се завинтва. Сега, когато всички части са готови, трябва да ги инсталирате правилно..
Първо вкарваме рамката на вратата в отвора. Ние го подравняваме и закрепваме с клинове. Можете да регулирате кутията, вече монтирана в стената, като удряте клиновете с чук. След това в отворите, пробити в стената и кутията, се вкарват дюбели и самонарезни винтове. И последното и най -важно нещо е сглобяването на вратата и рамката.
По -добре е да извършите тази операция заедно, за да избегнете наранявания, тъй като крилото на вратата е тежка конструкция. Като държим вратата в тегло, фиксираме пантите с самонарезни винтове.
След като сглобяването на основните части приключи, можете да направите лиштвите. По-лесно е да закупите готово в магазина или да го направите сами, като използвате дървени заготовки с дебелина 1-1,5 см и обикновен мозайката. Всеки ръб на корпуса се изрязва под ъгъл от 45 градуса и се регулира по дължина. Готовите продукти се фиксират на нивото на кутията с помощта на лепило за дърво или малки пирони..
Като цяло работата по инсталирането на вратата, с компетентен подход и висококачествени материали, ще отнеме не повече от два дни. И горните препоръки могат да се използват за направата на врати от други материали, като се променят само някои от инструментите.
Довършителни работи
Довършването ще помогне да се придаде на крайния продукт завършен вид. Можете да го направите и сами, това е по -приятна и по -малко сложна работа, отколкото инсталирането и сглобяването на самата врата.. Довършването на вратите може да се извърши по следния начин:
Ако не искате да губите време за декориране на вратата си, можете просто да я нарисувате с обикновена боя или петно, а след това, ако желаете, да я лакирате. Водоустойчив тапет и самозалепващ се филм са удобни за използване, ако вратата е монтирана в банята, тъй като това допълнително ще й осигури защита от влага. Ако търсите стилен дизайн, изследвайте фалшивите техники за стареене. Така че дори обикновена домашна врата може да се превърне в изящен интериорен елемент..
Опции за декор
За тези, които не харесват скучните стандартни опции за облицовки, можете да предложите по -интересни дизайнерски решения за дизайна на продукта. Например стенописи за врати. С помощта на добре подбран модел можете да направите ефектна врата, която ще се превърне в ярък акцент в стаята..
Интересен вариант за декорация са стари географски карти или черно -бели фотографии. Изрезките от вестници или плакати от списания също ще изглеждат необичайно, предизвиквайки приятна носталгия. Можете да залепите вратата с цветна лента. Тази опция е подходяща за селска къща или детска стая.
Ако се предпочита бохемски стил, след това боядисват корнизите в контрастен цвят. Често се използват шаблони. Особено творческите натури могат да изразят себе си и да нарисуват работата си с маслени или акрилни бои, като предварително са подготвили основата на вратата. Децата ще харесат оригиналните стикери под формата на приказни герои или комикси.
Врата, украсена с кърпа, е подходяща за кухнята. Но тук първо трябва да проучите свойствата на тази тъкан и характеристиките на нейното свиване. Като лепило се използва обикновена паста на базата на казеин или CMC. Вратата изглежда интересно с рамка от кожа, закована с мебелни шипове.
Огледало, поставено или залепено към конструкцията на вратата, ще изглежда функционално. А за семейство с малки деца можете дори да пропуснете декорацията изобщо. Тя ще възникне с помощта на умели детски химикалки. Сладко и смешно.
Красиви примери в интериора
Разбира се, основната функция на всяка врата е шумоизолация, запазване на топлината и лично пространство. Не забравяйте обаче, че вратата е включена в списъка с основни елементи, които придават на външния вид на стаята определен стил. Цветът на вратите е от голямо значение за интериора. Но понякога интериорът е различен в различните стаи и трябва да изберете вратата толкова добре, че да върви добре и с двата стила. Трудно е, но нищо не е невъзможно.
Основното правило в този случай е да се съсредоточите върху общия стил на дома. Определете кой интериор преобладава и изберете продукт в съответствие с него.
Неутралният цвят на вратата, съчетан с цвета на пода или тавана, е идеалният изход от ситуация, в която не искате да заблудите главата си. Добър вариант са плъзгащите се стъклени конструкции. Те ще бъдат подходящи в почти всеки апартамент, независимо дали е класически или високотехнологичен. В същото време за високотехнологичния стил е подходяща опцията с хромиран корпус. Можете да направите рамка на врата от метал или да направите метални връзки на нейното платно.
Ако вратата е изправена пред задачата за зониране в рамките на една стая, тогава екранната врата с решетъчно тяло и тъкана основа ще бъде добър избор. Освен това, което го прави много по -лесно от всяка друга врата, просто трябва да работите върху подвижната връзка на елементите. Опитайте се сами да направите вратата и вашият продукт ще стане не само мебел, но и лична гордост..
За това как да направите врата със собствените си ръце, вижте следващия видеоклип..