
Как да направите врата към банята със собствените си ръце е въпрос, който тревожи много жители на частни къщи. В производството няма нищо сложно, но има нюанси, от които ще зависи успехът на извършената работа: изборът на материал за платното, неговото боядисване, правилата за монтаж. Това и много други са разгледани в тази статия..
Особености
Стаята за баня изисква две врати: едната води в самата стая, другата разделя банята и съблекалнята. Ако във ваната има няколко стаи, всички те са разделени с врати – това също трябва да се има предвид при изграждането на вратата. Конструкцията на вратата за стая като баня например трябва да е устойчива на вода. Материалът се използва така, че платното да не изгние, да не се намокри и в него да не започнат бактерии и гъбички..

Конструкцията също трябва да е херметична, за да поддържа стаята топла. Това значително влияе върху експлоатационния живот на продукта и устойчивостта му към температурни падания.
Материали (редактиране)
Има няколко вида врати за сауни, които са класифицирани според материала на производство: врати от дърво, стъкло и врати с прозорци с двоен стъклопакет.
Дървени
Най -често срещаният материал е дърво, тъй като е влагоустойчиво, хигроскопично и издържа на високи температури. Дъските за врати за баня могат да бъдат изработени от трепетлика, липа, дъб, лиственица. В края на краищата, именно тези видове дървесина имат свойството да повлияват положително на човек, докато се къпе.. Цената за вратата ще зависи от вида дърво:
- Дъб – много плътна дървесина, която не е склонна да набъбва.
- Лиственица подходящ за влажни помещения. Полезните свойства включват: антисептичен ефект, както и устойчивост на гниене, мухъл и различни насекоми не се придържат към него.
- Аспен евтина порода, която се представя добре при много сухи и влажни условия.

За всяка порода трябва да има висококачествена масивна дървесина без възли. В противен случай всички възли ще изпаднат. Материалът трябва да има съдържание на влага 15%. Вратата може да бъде направена от дъски, трупи или дървени къщи.
Стъклена чаша
Стъклените врати се използват в сауните за отделяне на съблекалнята от сухата баня. Има много възможности за боядисване на стъклената повърхност: до пълноценни рисунки. Стъклените врати са: матови, прозрачни, непрозрачни и полупрозрачни. Вратите могат да се монтират в рамка или да се прикрепят към рамката на вратата.
Стъклените врати не могат да бъдат направени сами поради особената сложност на производството. Като поръчате такава врата, можете само да я инсталирате. При избора на стъклена конструкция се обръща специално внимание на фитингите, практичността, надеждността и безопасността при употреба. Вратата трябва да изглежда естетически приятна. За да се осигури херметичност, комплектът трябва да бъде изработен от силиконови уплътнения. Вместо ключалка има магнит в дръжката и касата на вратата. Този тип заключване никога не се проваля..

Има модели, при които магнитите заместват ключалките с форма на топка, но тъй като те се провалят с течение на времето, магнитите са най-добрият вариант. Моделите с три шарнирни панти са по -надеждни. Изисквания за стъклен лист: той трябва да бъде закален, с висока якост, с дебелина 8-10 мм. Материалът за производство на рамката на вратата е алуминий. Стъклената врата и алуминиевата рамка осигуряват пълна водоустойчивост. Недостатъкът е уплътненията, които са подложени на износване при високи температури и висока влажност, но не е трудно да ги смените..
С прозорци с двоен стъклопакет
Изолираните металопластични врати поддържат херметичността и задържат топлината добре в стаята. Те могат да бъдат инсталирани не само на входа на банята, но и в банята, както и да разделят други помещения. Вратата на парната баня е изработена от дърво. Има възможност за комбиниране на дърво със стъклопакет. Конструкцията на дървена врата с прозорец с двоен стъклопакет включва самата рамка с алуминиеви вложки, както и един или повече прозорци с двоен стъклопакет. Такава врата не се нуждае от специални грижи. Достатъчно е да избършете прозорците с двоен стъклопакет от двете страни с препарат, а за вратата е подходяща мека кърпа, която премахва замърсяванията.
Как да го инсталирате сами?
Преди да направите дървена конструкция, трябва да решите нейния размер и да изберете строителен материал. Домашно изработена врата за баня се изработва в съответствие с предварително създаден проект, в който се определят размерите на продукта. Данните могат да бъдат променени в бъдеще. Създаването на проекта започва с измерване на параметрите на вратата, за да се определят размерите на произведената конструкция. За да сведете до минимум топлинните загуби, височината на вратата не трябва да надвишава 170 см, а ширината 60-75 см. Разстоянието между задниците трябва да бъде в рамките на 60-70 см. Задачата на вратата е да запази топлината, следователно, функцията за защита от непоканени гостите трябва да бъдат изключени.

Вратата на банята трябва да е лека. Това е необходимо в случай, че избухне пожар, така че вратата да не се превърне в пречка за излизане от горящата стая..
Ако сте нов в този бизнес и никога не сте правили врати, тогава трябва да практикувате, преди да започнете. Боровите дъски са идеални за това..

За да започнете, трябва да закупите определени материали:
- Подова дъска с език 50×30 мм.
- Пръчка, предназначена за ленти 60×80 мм.
- Подплата 12х96 мм.
- Примки 3 бр.
- Самонарезни винтове.
- Мебелни щифтове, използвани за закрепване.

За да направите врата, трябва да създадете платно. За да направим това, изрязваме дъските с необходимата дължина и избираме дъската, от която ще се отреже шипът. След това обработваме целия материал със фуга, докато се образува равна повърхност. След отстраняване на 1,5-2 мм дебелината се намалява до 26 мм.
Сглобяването на острието започва с поставянето на шипа на едната дъска в жлеба на другата дъска. Структурата трябва да е възможно най -стегната. За да направите маркировка, трябва да измерите размер, който е 70 мм по -малък от ширината на вратата. След това премахваме първата и последната дъска. С помощта на трион се отърваме от остатъците. Много е важно да не повредите шипа на първата дъска, а на последната – жлеба.

Събираме платното от дъските. Сглобяването на конструкцията включва залепване вътре в жлебовете и след това свързване на дъските – една към друга чрез поставяне на шиповете в жлеба. След това платното се избива с чук, за да се постигне максимална плътност на конструкцията..
По време на периода на сушене платното трябва да бъде здраво закрепено към работната маса, за да се избегне изместване на конструкцията. За да закрепите платното, трябва да го фиксирате с две дървени дъски, като го поставите между тях. Плътното фиксиране може да се постигне чрез забиване на клин между конструкцията и шината от двете страни. Платното се полага върху ПДЧ и с помощта на скоби се фиксира върху повърхността на масата.

Когато платното изсъхне, върху него могат да се образуват различни дефекти под формата на неравности и пукнатини. За премахване на пукнатини се използва лепило, смесено с дървени стърготини, и равнина, за да се отстранят нередностите..
Докато платното изсъхва (2-3 дни), ние правим каишката. Щангите, които закупихме, са изрязани до нашия размер. Вертикалните пръти трябва да са равни на височината на самата врата. Пръчките, които се поставят отгоре и отдолу, трябва да са по -малки. За да изберете слота за детайлите, трябва да използвате рутер и крайна фреза. Жлебовете трябва да са 26×25 мм. След това отгоре на жлеба се избира друг канал с ширина 50 мм и дълбочина 10 мм. Оказва се стъпаловиден жлеб за платното, който е обшит с дъска. Дълбоките канали са предназначени за набраздени дъски, а широките за облицовка. За да съответства точно на жлеба, шипът трябва да бъде изрязан с фреза под формата на стъпала. Веднъж сглобена, кутията трябва да има правилните ъгли. В случай на отклонения, те могат да бъдат коригирани с фреза..

Инсталираме каишката за платното. Преди да поставите първо вертикални, а след това хоризонтални пръти, те трябва да бъдат обработени с инструмента, който е бил използван за платното. За да стане структурата плътна, тя се избива с чук. За здравина добавете PVA лепило към жлебовете. За лесно разглобяване на платното в случай на ремонт, лентата, разположена в долната част, не е залепена. За да предотвратите разпадането на конструкцията, трябва да фиксирате всички пръти със самонарезни винтове в краищата.

Остатъците от работата по производството на лентите могат да послужат като материали за дръжките и болтовете. Но е по -добре, ако има налични заготовки. Дръжките могат да бъдат украсени с дърворезби, може да се направи издълбана арка – ножовка е подходяща за това. За висококачествено дърворезба трябва да прехвърлите предварително подготвена скица към материала и да изрежете шаблона.
За да направите болт, изрежете един чифт скоби, вътре в които ще има език. Преди да поставите дръжките и болта, трябва да маркирате мястото на закрепването им на вратата. След това трябва да пробиете дупка с дълбочина 4 см в края на дръжката. Взимаме бормашина с по -малък диаметър, за да създадем дупка, през която трябва да се мине, като същевременно трябва да хванем вратата.

Завиваме самонарезния винт във вратата с 2-2,5 мм. За втората дупка всичко е същото. Инсталираме щифт от дърво в отворите за закрепване и го смиламе с шкурка. Процесът на закрепване на скобите се извършва по същата технология..
Не се препоръчва да се правят метални дръжки поради риск от изгаряне по тях, затова най -добрият материал за дръжката също е дърво..
Най -доброто от всичко са панти от месингови врати. Когато използвате други метални материали, се препоръчва да ги боядисвате с антикорозионна боя. Вратата отвътре може да се остави такава, каквато е, или да се подреже с дъска. Външната страна е лакирана, за да удължи живота на вратата. Хастарът е фиксиран с малки пирони. За да се скрият капачките, се използват нови дъски, които се набиват в канала под ъгъл..

На първо място, структурата трябва да бъде обработена със състав срещу появата на гъбички и мухъл. Не се препоръчва извършването на тази процедура за трепетлика. За всички други видове дървесина е необходима обработка. За да маркираме ръбовете на облицовката, се отдръпваме на 15 мм от тях и очертаваме контур. Преди да монтирате облицовъчните ленти във вратата, те трябва да бъдат отрязани до дължината, от която се нуждаем. За закрепване на лентите се използват пирони и самонарезни винтове..

Самият процес на инсталиране се различава за различните видове врати:
Дървени
След като приключи с производството на вратата, тя се монтира във вратата, в която се изрязват каналите. Размерите на каналите трябва да надвишават ширината на кутията с 5-10 мм, за да можете да отрежете вратата по време на инсталационния процес и да направите дистанционер с клинове.

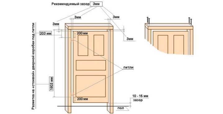
След това кутията се монтира в каналите. При монтажа е важно да не се обърквате в коя посока ще се отвори вратата. Когато горната хоризонтална лента се навива, тя трябва да се поддържа от вертикална стойка. След това трябва да поставите прага на дъното, като контролирате позицията на кутията с помощта на ниво. За да фиксирате кутията и да я прикрепите към стената, първо трябва да забиете клинове между стената и кутията, а след това да използвате дюбелите, като пробиете отвори за тях. След като постигнете надеждно закрепване на кутията, пантите на вратите се монтират.

Първият контур се поставя на разстояние от 20 до 25 см от горния ръб на платното. За втория: разстояние 40-45 см. Третият контур е настроен на разстояние 20-25 от долния ръб. Поради това разположение на пантите вратата няма да се изкриви, особено ако конструкцията е тежка.
След това монтираме вратата на пантите и използваме ролка, за да прикрием пукнатините, образувани между кутията и стената..
Стъклена чаша
За да инсталирате всяка врата, се нуждаете от точни изчисления. Особено внимание се обръща на този тип при изчисленията. За да монтирате вратите в рамката, е необходимо да оставите празнина между стъклената конструкция и пода. Размерът на пролуката е 5-7 мм. Когато инсталирате рамката на вратата, ключовият аспект е да инсталирате всичко точно с изчисленията, в противен случай няма да работи, за да инсталирате плътно платното. За да направите това, трябва да спазвате правилния ъгъл между вертикалните и хоризонталните части на кутията..

Когато фиксирате кутията на самонарезни винтове, нейното положение се контролира от нивото на сградата. Размерът на рамката трябва да бъде по -малък от вратата за подравняване и сигурно закрепване. След дистанционната кутия с дървени клинове, конструкцията се завинтва към стената със самонарезни винтове. За да премахнете празнините между кутията и стената, използвайте полиуретанова пяна. Излишната пяна, образувана след изсушаване, се отстранява. След това каналите в рамката на вратата се запълват със силиконов пълнител.

Стъклена врата се вписва без усилие в правилно поставена рамка. Не забравяйте да поставите силиконови дистанционни елементи между метала и стъклото. След това вратата трябва да бъде изложена и да се завинтва към скобата. След това прикрепяме дръжката заедно с ключалката в отворите, предназначени за тях. Последният етап: отстраняване на празнини с декоративна обвивка.
Със стъклопакет
Рамка за врата със стъклен модул е инсталирана почти по същия начин, както за стъклена врата. Процесът включва и дървени дистанционери, а ниво се използва за определяне на правилната позиция. Но най -често металните плочи се използват за закрепване на кутията, или през “ушите” на задниците. За да премахнете пукнатините в кутията, възникнали по време на инсталационния процес, използвайте пяна и дъски, включени в комплекта, заедно с рамката на вратата.

Вратата е монтирана на сенници. Предимството на този метод на инсталиране е неговата простота, тъй като всички компоненти са монтирани и свързани. За да се създаде солидна структура, те трябва само да се комбинират. Дървена кутия е направена както за входната врата, така и за входа на парната баня. Ако изберете стъклена врата в метална кутия, можете да се изгорите. Вратата към парната баня не е завършена поради изпаряването на лакове, лепило.
Как правилно да изолирате?
Един прост начин да изолирате вратата за баня е да вземете решетките и да направите рамка от тях, като я приковате към вратата с отстъп от границата на платното с 15 мм. И за да запълни празното пространство вътре в рамката, се поставя лист от твърда дъска, увеличаваща топлоустойчивостта на конструкцията на вратата. Когато вратата е затворена, изолацията се огъва, блокирайки потока на студен въздух. Възможни са и други опции. Например, за да изолирате вратата на сауната от студа с енергийна гъвкавост, този материал е прикрепен по ръба на платното със строителен телбод. Метални ламели са прикрепени върху всичко за сигурно фиксиране. Цялата работа отнема не повече от 10 минути.

Възможно е да се създаде термична завеса:
- Първо, нека започнем подготовката на уплътняващата рамка. Като се използва примерът на крило на врата с размер 80×180 cm, е необходимо да се направят 2 ленти 10×100 cm и две ленти 10×220 см от уплътнителя. След това лентите се заковават по ръба на вратата на разстояние 2 см от рамката на вратата.
- След това ще направим два чифта решетки, едната с размер 184x2x2 см, другата – 80x2x2 см всяка. Пръчките са заковани върху изолацията върху рамката на вратата. След това прътите се увиват в изолация, а остатъците се отстраняват. След това се изработва екран от изкуствена кожа или брезент 120х200 см. Закрепете тъканта към платното, като го развиете от лявата страна, за да поставите лента 2х2х200 см.
- Оставащият след осребряване 10 -сантиметров блок е прикрепен към стената с дясната страна. Ръбът на лентата е покрит с декоративна лента и отгоре са прикрепени пръстени (6-8 бр.).
- Завийте 60 мм самонарезен винт върху декоративната шина. Разстоянието трябва да е равно на диаметъра на пръстените. Оставете 20 мм навън. Към самонарезния винт е прикрепен проводник с дължина 1 м и се изтегля през пръстените. Краят на жицата е прикрепен към друг самонарезен винт. След това е необходимо да фиксирате две пружини на две места (от лявата страна на платното). След това трябва да шиете пръстените към екрана (срещу пружините), които вече могат да се преместват в различни посоки..
Как да рисувам?
Дървените конструкции изискват специални грижи, за да запазят първоначалния си вид и да удължат експлоатационния си живот. За да се предпази вратата на сауната от топлинни ефекти, платното е покрито с боя. Защитата не е единствената причина вратите да бъдат боядисани. Боядисаната врата изглежда по -естетически. Боята за врати за баня трябва да отговаря на определени изисквания:
- Предпазвайте дървесината от излагане на високи температури.
- Удължете живота на продукта.
- Създайте естетическа привлекателност.

При избора на боя се вземат предвид нейните технически свойства, както и вида на материала за боядисване (дървесни видове). Друг критерий за избор на боя е състоянието на боядисаната повърхност..
Боята трябва да съдържа висококачествени лакове и импрегнации, предназначени да предотвратят негативния ефект на ултравиолетовото лъчение върху дървото..

Лаковете за дърво имат специални свойства:
- Осигуряване на висока паропропускливост.
- Повторно боядисване на дървото без премахване на съществуващия слой.
- Пигменти за естетика на дървения панел.
За да се увеличи устойчивостта на дървените материали към различни влияния, се използват акрили, съдържащи се в боята, които са свързващи вещества. Акрилните бои се предлагат в широка гама от цветове. Повърхността преди нанасяне на акрилна боя не изисква допълнителна обработка.

Дървената повърхност се нуждае от специална подготовка за процеса на боядисване:
- Почистваме дървото от съществуващия слой боя.
- Шлайфане, премахване на драскотини и вдлъбнатини.
- Отстраняваме петна с шпакловка. Когато покривате платното с лак, масло или петно от дърво, трябва да имате шпакловка, предназначена за определен вид дърво. За да се отървете от дълбоките вдлъбнатини, използвайте автошпак без фибростъкло.
- След като изчакате известно време, индивидуално за всяка замазка, повърхността се шлайфа с шкурка.
- След почистване повърхността се вакуумира и избърсва.

След приключване на всички етапи на подготовка можете да започнете да боядисвате повърхността. Ако никога преди не сте рисували, трябва да тренирате върху отделно парче дърво, за да усъвършенствате уменията си..
- Преди боядисване четката се разрошава и влакната, които могат да се отделят, се отстраняват. Валякът е най -подходящ, за да осигури равномерно боядисване..
- Боядисването на панелни врати се състои от три етапа:
- Първо, боядисвайте горния край (отляво надясно).
- След като изчакаме изсъхването, преминаваме към втория етап – надлъжно оцветяване.
- Третият етап е боядисване на долния край (отдясно наляво).
Четката е подходяща за панелни врати, тъй като влакната боядисват вдлъбнатините. Нанесете малко количество боя, не прекалявайте. След това вратата се боядисва с валяк, както е описано по -горе..
Как да поправя?
С течение на времето вратата и нейното покритие ще се износят. Появяват се различни дефекти под формата на пукнатини, празнини и други неща, които трябва да бъдат коригирани. Затова използвайте нашите съвети, за да поправите лесно вратата си. За да се премахнат пукнатини и драскотини по крилото на вратата, е необходима шпакловка. Шпакловката е съобразена с цвета на дървесния вид. Мястото, където се е образувал дефектът, се запълва с шпакловка и след изсушаване се обработва с шкурка.

Дупката може да бъде поправена по същия начин. Ако отворът е голям, той се запълва с полиуретанова пяна и след това се нанася шпакловка. Може да се наложи повторно запълване, за да стане повърхността напълно равна. Много малки дупки могат да бъдат скрити с дюбел: пробиваме дупка и забиваме дюбел, поставяйки го върху лепило. След завършване шлайфаме повърхността. Премахнете празнината с дъска, като забиете на мястото, където вратата не приляга плътно.

За ремонтиране на платно от фиброкартон се използват парчета шперплат, които се приковават към повредената зона с малки пирони. Дупка в такъв материал се затваря с кука, изработена от тел, която трябва да залепите върху повредената зона. След това ръбовете се притискат и залепват. След изсушаване шевът трябва да бъде почистен и обработен с фиксиращ материал. Голяма дупка може да се поправи със същия метод, използван за дърво..

Ремонт на ПДЧ. За да подредите материала, имате нужда от спринцовка и лепило. Премахваме платното. Разслояването на материала се коригира с лепило, което запълваме и притискаме страничните стени. До момента, в който изсъхне, поставяме вратата под пресата. След това ръбът се обработва със защитна лента. Ремонтните дейности завършват с привеждане на крилото на вратата в първоначалния му вид: боядисване, лак, облицовка, все още можете да облицовате вратата отново.
За информация как да направите врата към банята, вижте следващото видео..
Примери и варианти
Ето примери за това какви врати можете да създадете, като следвате нашите съвети стъпка по стъпка. Вариант на домашна врата в блокова вана. Антична врата – идеална за селска баня. Нарича се още селянин. За да създадете по -добър ефект, можете да преместите плана на външната врата навътре..

Как да направите врата към банята със собствените си ръце?
Как да направите врата към банята със собствените си ръце е въпрос, който тревожи много жители на частни къщи. В производството няма нищо сложно, но има нюанси, от които ще зависи успехът на извършената работа: изборът на материал за платното, неговото боядисване, правилата за монтаж. Това и много други са разгледани в тази статия..
Особености
Стаята за баня изисква две врати: едната води в самата стая, другата разделя банята и съблекалнята. Ако във ваната има няколко стаи, всички те са разделени с врати – това също трябва да се има предвид при изграждането на вратата. Конструкцията на вратата за стая като баня например трябва да е устойчива на вода. Материалът се използва така, че платното да не изгние, да не се намокри и в него да не започнат бактерии и гъбички..
Конструкцията също трябва да е херметична, за да поддържа стаята топла. Това значително влияе върху експлоатационния живот на продукта и устойчивостта му към температурни падания.
Материали (редактиране)
Има няколко вида врати за сауни, които са класифицирани според материала на производство: врати от дърво, стъкло и врати с прозорци с двоен стъклопакет.
Дървени
Най -често срещаният материал е дърво, тъй като е влагоустойчиво, хигроскопично и издържа на високи температури. Дъските за врати за баня могат да бъдат изработени от трепетлика, липа, дъб, лиственица. В края на краищата, именно тези видове дървесина имат свойството да повлияват положително на човек, докато се къпе.. Цената за вратата ще зависи от вида дърво:
За всяка порода трябва да има висококачествена масивна дървесина без възли. В противен случай всички възли ще изпаднат. Материалът трябва да има съдържание на влага 15%. Вратата може да бъде направена от дъски, трупи или дървени къщи.
Стъклена чаша
Стъклените врати се използват в сауните за отделяне на съблекалнята от сухата баня. Има много възможности за боядисване на стъклената повърхност: до пълноценни рисунки. Стъклените врати са: матови, прозрачни, непрозрачни и полупрозрачни. Вратите могат да се монтират в рамка или да се прикрепят към рамката на вратата.
Стъклените врати не могат да бъдат направени сами поради особената сложност на производството. Като поръчате такава врата, можете само да я инсталирате. При избора на стъклена конструкция се обръща специално внимание на фитингите, практичността, надеждността и безопасността при употреба. Вратата трябва да изглежда естетически приятна. За да се осигури херметичност, комплектът трябва да бъде изработен от силиконови уплътнения. Вместо ключалка има магнит в дръжката и касата на вратата. Този тип заключване никога не се проваля..
Има модели, при които магнитите заместват ключалките с форма на топка, но тъй като те се провалят с течение на времето, магнитите са най-добрият вариант. Моделите с три шарнирни панти са по -надеждни. Изисквания за стъклен лист: той трябва да бъде закален, с висока якост, с дебелина 8-10 мм. Материалът за производство на рамката на вратата е алуминий. Стъклената врата и алуминиевата рамка осигуряват пълна водоустойчивост. Недостатъкът е уплътненията, които са подложени на износване при високи температури и висока влажност, но не е трудно да ги смените..
С прозорци с двоен стъклопакет
Изолираните металопластични врати поддържат херметичността и задържат топлината добре в стаята. Те могат да бъдат инсталирани не само на входа на банята, но и в банята, както и да разделят други помещения. Вратата на парната баня е изработена от дърво. Има възможност за комбиниране на дърво със стъклопакет. Конструкцията на дървена врата с прозорец с двоен стъклопакет включва самата рамка с алуминиеви вложки, както и един или повече прозорци с двоен стъклопакет. Такава врата не се нуждае от специални грижи. Достатъчно е да избършете прозорците с двоен стъклопакет от двете страни с препарат, а за вратата е подходяща мека кърпа, която премахва замърсяванията.
Как да го инсталирате сами?
Преди да направите дървена конструкция, трябва да решите нейния размер и да изберете строителен материал. Домашно изработена врата за баня се изработва в съответствие с предварително създаден проект, в който се определят размерите на продукта. Данните могат да бъдат променени в бъдеще. Създаването на проекта започва с измерване на параметрите на вратата, за да се определят размерите на произведената конструкция. За да сведете до минимум топлинните загуби, височината на вратата не трябва да надвишава 170 см, а ширината 60-75 см. Разстоянието между задниците трябва да бъде в рамките на 60-70 см. Задачата на вратата е да запази топлината, следователно, функцията за защита от непоканени гостите трябва да бъдат изключени.
Вратата на банята трябва да е лека. Това е необходимо в случай, че избухне пожар, така че вратата да не се превърне в пречка за излизане от горящата стая..
Ако сте нов в този бизнес и никога не сте правили врати, тогава трябва да практикувате, преди да започнете. Боровите дъски са идеални за това..
За да започнете, трябва да закупите определени материали:
За да направите врата, трябва да създадете платно. За да направим това, изрязваме дъските с необходимата дължина и избираме дъската, от която ще се отреже шипът. След това обработваме целия материал със фуга, докато се образува равна повърхност. След отстраняване на 1,5-2 мм дебелината се намалява до 26 мм.
Сглобяването на острието започва с поставянето на шипа на едната дъска в жлеба на другата дъска. Структурата трябва да е възможно най -стегната. За да направите маркировка, трябва да измерите размер, който е 70 мм по -малък от ширината на вратата. След това премахваме първата и последната дъска. С помощта на трион се отърваме от остатъците. Много е важно да не повредите шипа на първата дъска, а на последната – жлеба.
Събираме платното от дъските. Сглобяването на конструкцията включва залепване вътре в жлебовете и след това свързване на дъските – една към друга чрез поставяне на шиповете в жлеба. След това платното се избива с чук, за да се постигне максимална плътност на конструкцията..
По време на периода на сушене платното трябва да бъде здраво закрепено към работната маса, за да се избегне изместване на конструкцията. За да закрепите платното, трябва да го фиксирате с две дървени дъски, като го поставите между тях. Плътното фиксиране може да се постигне чрез забиване на клин между конструкцията и шината от двете страни. Платното се полага върху ПДЧ и с помощта на скоби се фиксира върху повърхността на масата.
Когато платното изсъхне, върху него могат да се образуват различни дефекти под формата на неравности и пукнатини. За премахване на пукнатини се използва лепило, смесено с дървени стърготини, и равнина, за да се отстранят нередностите..
Докато платното изсъхва (2-3 дни), ние правим каишката. Щангите, които закупихме, са изрязани до нашия размер. Вертикалните пръти трябва да са равни на височината на самата врата. Пръчките, които се поставят отгоре и отдолу, трябва да са по -малки. За да изберете слота за детайлите, трябва да използвате рутер и крайна фреза. Жлебовете трябва да са 26×25 мм. След това отгоре на жлеба се избира друг канал с ширина 50 мм и дълбочина 10 мм. Оказва се стъпаловиден жлеб за платното, който е обшит с дъска. Дълбоките канали са предназначени за набраздени дъски, а широките за облицовка. За да съответства точно на жлеба, шипът трябва да бъде изрязан с фреза под формата на стъпала. Веднъж сглобена, кутията трябва да има правилните ъгли. В случай на отклонения, те могат да бъдат коригирани с фреза..
Инсталираме каишката за платното. Преди да поставите първо вертикални, а след това хоризонтални пръти, те трябва да бъдат обработени с инструмента, който е бил използван за платното. За да стане структурата плътна, тя се избива с чук. За здравина добавете PVA лепило към жлебовете. За лесно разглобяване на платното в случай на ремонт, лентата, разположена в долната част, не е залепена. За да предотвратите разпадането на конструкцията, трябва да фиксирате всички пръти със самонарезни винтове в краищата.
Остатъците от работата по производството на лентите могат да послужат като материали за дръжките и болтовете. Но е по -добре, ако има налични заготовки. Дръжките могат да бъдат украсени с дърворезби, може да се направи издълбана арка – ножовка е подходяща за това. За висококачествено дърворезба трябва да прехвърлите предварително подготвена скица към материала и да изрежете шаблона.
За да направите болт, изрежете един чифт скоби, вътре в които ще има език. Преди да поставите дръжките и болта, трябва да маркирате мястото на закрепването им на вратата. След това трябва да пробиете дупка с дълбочина 4 см в края на дръжката. Взимаме бормашина с по -малък диаметър, за да създадем дупка, през която трябва да се мине, като същевременно трябва да хванем вратата.
Завиваме самонарезния винт във вратата с 2-2,5 мм. За втората дупка всичко е същото. Инсталираме щифт от дърво в отворите за закрепване и го смиламе с шкурка. Процесът на закрепване на скобите се извършва по същата технология..
Не се препоръчва да се правят метални дръжки поради риск от изгаряне по тях, затова най -добрият материал за дръжката също е дърво..
Най -доброто от всичко са панти от месингови врати. Когато използвате други метални материали, се препоръчва да ги боядисвате с антикорозионна боя. Вратата отвътре може да се остави такава, каквато е, или да се подреже с дъска. Външната страна е лакирана, за да удължи живота на вратата. Хастарът е фиксиран с малки пирони. За да се скрият капачките, се използват нови дъски, които се набиват в канала под ъгъл..
На първо място, структурата трябва да бъде обработена със състав срещу появата на гъбички и мухъл. Не се препоръчва извършването на тази процедура за трепетлика. За всички други видове дървесина е необходима обработка. За да маркираме ръбовете на облицовката, се отдръпваме на 15 мм от тях и очертаваме контур. Преди да монтирате облицовъчните ленти във вратата, те трябва да бъдат отрязани до дължината, от която се нуждаем. За закрепване на лентите се използват пирони и самонарезни винтове..
Самият процес на инсталиране се различава за различните видове врати:
Дървени
След като приключи с производството на вратата, тя се монтира във вратата, в която се изрязват каналите. Размерите на каналите трябва да надвишават ширината на кутията с 5-10 мм, за да можете да отрежете вратата по време на инсталационния процес и да направите дистанционер с клинове.
След това кутията се монтира в каналите. При монтажа е важно да не се обърквате в коя посока ще се отвори вратата. Когато горната хоризонтална лента се навива, тя трябва да се поддържа от вертикална стойка. След това трябва да поставите прага на дъното, като контролирате позицията на кутията с помощта на ниво. За да фиксирате кутията и да я прикрепите към стената, първо трябва да забиете клинове между стената и кутията, а след това да използвате дюбелите, като пробиете отвори за тях. След като постигнете надеждно закрепване на кутията, пантите на вратите се монтират.
Първият контур се поставя на разстояние от 20 до 25 см от горния ръб на платното. За втория: разстояние 40-45 см. Третият контур е настроен на разстояние 20-25 от долния ръб. Поради това разположение на пантите вратата няма да се изкриви, особено ако конструкцията е тежка.
След това монтираме вратата на пантите и използваме ролка, за да прикрием пукнатините, образувани между кутията и стената..
Стъклена чаша
За да инсталирате всяка врата, се нуждаете от точни изчисления. Особено внимание се обръща на този тип при изчисленията. За да монтирате вратите в рамката, е необходимо да оставите празнина между стъклената конструкция и пода. Размерът на пролуката е 5-7 мм. Когато инсталирате рамката на вратата, ключовият аспект е да инсталирате всичко точно с изчисленията, в противен случай няма да работи, за да инсталирате плътно платното. За да направите това, трябва да спазвате правилния ъгъл между вертикалните и хоризонталните части на кутията..
Когато фиксирате кутията на самонарезни винтове, нейното положение се контролира от нивото на сградата. Размерът на рамката трябва да бъде по -малък от вратата за подравняване и сигурно закрепване. След дистанционната кутия с дървени клинове, конструкцията се завинтва към стената със самонарезни винтове. За да премахнете празнините между кутията и стената, използвайте полиуретанова пяна. Излишната пяна, образувана след изсушаване, се отстранява. След това каналите в рамката на вратата се запълват със силиконов пълнител.
Стъклена врата се вписва без усилие в правилно поставена рамка. Не забравяйте да поставите силиконови дистанционни елементи между метала и стъклото. След това вратата трябва да бъде изложена и да се завинтва към скобата. След това прикрепяме дръжката заедно с ключалката в отворите, предназначени за тях. Последният етап: отстраняване на празнини с декоративна обвивка.
Със стъклопакет
Рамка за врата със стъклен модул е инсталирана почти по същия начин, както за стъклена врата. Процесът включва и дървени дистанционери, а ниво се използва за определяне на правилната позиция. Но най -често металните плочи се използват за закрепване на кутията, или през “ушите” на задниците. За да премахнете пукнатините в кутията, възникнали по време на инсталационния процес, използвайте пяна и дъски, включени в комплекта, заедно с рамката на вратата.
Вратата е монтирана на сенници. Предимството на този метод на инсталиране е неговата простота, тъй като всички компоненти са монтирани и свързани. За да се създаде солидна структура, те трябва само да се комбинират. Дървена кутия е направена както за входната врата, така и за входа на парната баня. Ако изберете стъклена врата в метална кутия, можете да се изгорите. Вратата към парната баня не е завършена поради изпаряването на лакове, лепило.
Как правилно да изолирате?
Един прост начин да изолирате вратата за баня е да вземете решетките и да направите рамка от тях, като я приковате към вратата с отстъп от границата на платното с 15 мм. И за да запълни празното пространство вътре в рамката, се поставя лист от твърда дъска, увеличаваща топлоустойчивостта на конструкцията на вратата. Когато вратата е затворена, изолацията се огъва, блокирайки потока на студен въздух. Възможни са и други опции. Например, за да изолирате вратата на сауната от студа с енергийна гъвкавост, този материал е прикрепен по ръба на платното със строителен телбод. Метални ламели са прикрепени върху всичко за сигурно фиксиране. Цялата работа отнема не повече от 10 минути.
Възможно е да се създаде термична завеса:
Как да рисувам?
Дървените конструкции изискват специални грижи, за да запазят първоначалния си вид и да удължат експлоатационния си живот. За да се предпази вратата на сауната от топлинни ефекти, платното е покрито с боя. Защитата не е единствената причина вратите да бъдат боядисани. Боядисаната врата изглежда по -естетически. Боята за врати за баня трябва да отговаря на определени изисквания:
При избора на боя се вземат предвид нейните технически свойства, както и вида на материала за боядисване (дървесни видове). Друг критерий за избор на боя е състоянието на боядисаната повърхност..
Боята трябва да съдържа висококачествени лакове и импрегнации, предназначени да предотвратят негативния ефект на ултравиолетовото лъчение върху дървото..
Лаковете за дърво имат специални свойства:
За да се увеличи устойчивостта на дървените материали към различни влияния, се използват акрили, съдържащи се в боята, които са свързващи вещества. Акрилните бои се предлагат в широка гама от цветове. Повърхността преди нанасяне на акрилна боя не изисква допълнителна обработка.
Дървената повърхност се нуждае от специална подготовка за процеса на боядисване:
След приключване на всички етапи на подготовка можете да започнете да боядисвате повърхността. Ако никога преди не сте рисували, трябва да тренирате върху отделно парче дърво, за да усъвършенствате уменията си..
Четката е подходяща за панелни врати, тъй като влакната боядисват вдлъбнатините. Нанесете малко количество боя, не прекалявайте. След това вратата се боядисва с валяк, както е описано по -горе..
Как да поправя?
С течение на времето вратата и нейното покритие ще се износят. Появяват се различни дефекти под формата на пукнатини, празнини и други неща, които трябва да бъдат коригирани. Затова използвайте нашите съвети, за да поправите лесно вратата си. За да се премахнат пукнатини и драскотини по крилото на вратата, е необходима шпакловка. Шпакловката е съобразена с цвета на дървесния вид. Мястото, където се е образувал дефектът, се запълва с шпакловка и след изсушаване се обработва с шкурка.
Дупката може да бъде поправена по същия начин. Ако отворът е голям, той се запълва с полиуретанова пяна и след това се нанася шпакловка. Може да се наложи повторно запълване, за да стане повърхността напълно равна. Много малки дупки могат да бъдат скрити с дюбел: пробиваме дупка и забиваме дюбел, поставяйки го върху лепило. След завършване шлайфаме повърхността. Премахнете празнината с дъска, като забиете на мястото, където вратата не приляга плътно.
За ремонтиране на платно от фиброкартон се използват парчета шперплат, които се приковават към повредената зона с малки пирони. Дупка в такъв материал се затваря с кука, изработена от тел, която трябва да залепите върху повредената зона. След това ръбовете се притискат и залепват. След изсушаване шевът трябва да бъде почистен и обработен с фиксиращ материал. Голяма дупка може да се поправи със същия метод, използван за дърво..
Ремонт на ПДЧ. За да подредите материала, имате нужда от спринцовка и лепило. Премахваме платното. Разслояването на материала се коригира с лепило, което запълваме и притискаме страничните стени. До момента, в който изсъхне, поставяме вратата под пресата. След това ръбът се обработва със защитна лента. Ремонтните дейности завършват с привеждане на крилото на вратата в първоначалния му вид: боядисване, лак, облицовка, все още можете да облицовате вратата отново.
За информация как да направите врата към банята, вижте следващото видео..
Примери и варианти
Ето примери за това какви врати можете да създадете, като следвате нашите съвети стъпка по стъпка. Вариант на домашна врата в блокова вана. Антична врата – идеална за селска баня. Нарича се още селянин. За да създадете по -добър ефект, можете да преместите плана на външната врата навътре..