
Всяко селскостопанско животно се нуждае от комфортни условия на живот. Важно е да помислите внимателно за щандовете си за добитък, особено ако кравите и биковете ще бъдат държани на каишка през цялото време, без паша. И също така, когато създавате места за отглеждане на добитък, трябва внимателно да обмислите препоръчаните стандарти..
Какво е?
Щанд за крави и бикове е важна част от живота на тези животни, пряко влияещ върху обема и качеството на техните продукти.. Когато говедата се държат вързани през по -голямата част от деня, е необходимо да се подхожда отговорно към подреждането на вътрешното пространство на обора, чиито най -важни елементи са сергиите. Размерът им трябва да съответства на породата добитък.
Конюшнята е място, чиято площ и височина са достатъчни за издръжката на един индивид. Най -често е ограден от всички страни.
Основни изисквания
Когато поставяте щанд за бик или крава, е важно да вземете предвид специфичните норми за това.. Само компетентният дизайн на плевнята ще направи конструкцията ефективна и удобна за добитъка. На първо място, сергиите или отделенията трябва да са безопасни и удобни. За изграждането на плевнята като цяло трябва да изберете правилното място. Желателно е тя да не се намира в низините. Това ще предпази от наводнения от разтопени или подземни води..
Освен това всяка сграда трябва да бъде оборудвана с дренаж и да бъде разположена на разстояние от жилищни сгради и източници с питейна вода.. За изграждането на сграда е важно избраните материали да са с качество и дълготрайност. При планирането на структура трябва да се вземат предвид нуждите на кравите. Така че, за доене на индивиди е необходимо да се осигури удобно и надеждно фиксиране по време на доене. В този случай се взема предвид, че каишката не пречи на животното, когато яде или пие. Индивидът трябва да се движи свободно из щанда, а служителите трябва да имат достъп до него..

Стандартните изисквания за конюшни и отглеждане на добитък включват редица правила.
- Безопасност на добитъка, както и на хората, работещи с него.
- Осигуряване на безпрепятствено движение на добитък при влизане и излизане. Освен това добитъкът трябва да лежи и да се издига свободно..
- Животните трябва да бъдат снабдени с чиста питейна вода по всяко време..
- Правилно и безопасно фиксиране на животни.
Предполага се, че по време на отглеждане на щандове животните се държат в отделните си сергии за 10 или повече часа. Ето защо те се нуждаят от комфорт. Струва си да се изясни, че ходенето е важно за биковете при всяко време, затова до плевнята за тяхната поддръжка трябва да бъде оборудван специален двор с балдахин.
Много е добре, ако до плевнята има място за подреждане на сено или сламени сена, както и силозна яма. Мястото за събиране на тор също не трябва да е твърде далеч..
Размери (редактиране)
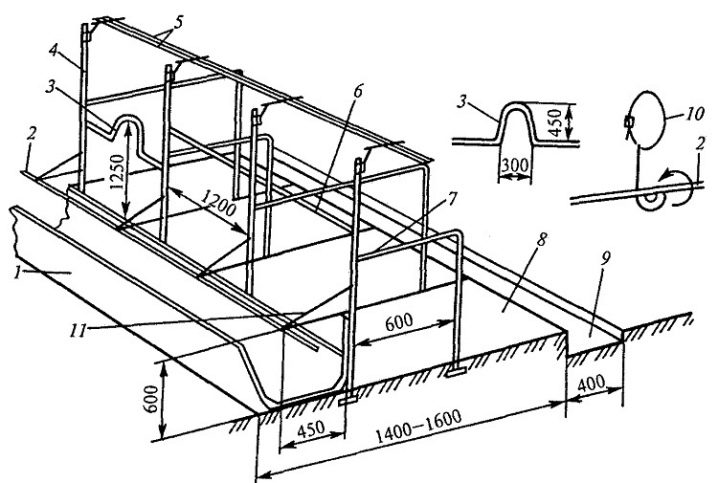
Размерът на плевнята с привързано отглеждане на животни директно зависи от броя на добитъка. Така, възрастна крава трябва да бъде разположена на парцел от 6 кв. м. Освен това, за индивид с теле, този показател се увеличава до 8-10 квадратни метра. м. За да могат хората и животните да се движат свободно между сергиите, преминаването трябва да бъде направено с ширина 120-150 см. Що се отнася до таваните, те трябва да се повдигат на 250-300 см над пода.
Съвременните сергии обикновено са проектирани така, че ширината е малко повече от 1 м, а дължината е 1,7-2 м.. Хранилките са най -добре разположени отпред, а коритата за оборски тор отзад. В този случай размерите на последния трябва да бъдат 20×10 cm (съответно ширина и дълбочина). Тук също е важно да се вземе предвид наклона на пода, така че суспензията да тече по -добре. За съхранение през зимата на каишка с дълбоки легла, събирачът на каша не е задължителен елемент..

Напоследък по препоръка на специалисти се предпочитат къси щандове. За млечно стадо оптималната дължина на мястото трябва да варира от 140 до 180 см, а ширината – от 100 до 120 см.. Разликата в данните за размерите зависи от теглото на животните. Що се отнася до предната стена на коритото, височината й е 17-26 см. Зад редицата сергии трябва да се подреди 1 метров проход. Обикновено се прави от бетон или камъни. Необходим е за отстраняване на оборския тор.
Специални прозорци с клапани трябва да влизат в прохода, през който ще се отстраняват отпадъците от добитък. Важна част от плевнята, особено през летния период, са прозорците. Трябва да има поне 2-3 от тях. В този случай минималният размер на прозореца е 50×70 cm.
Освен това е необходимо да се осигури изолация на тавана и вратите..
Как да се изгради?
Преди да продължите с организирането на сергии за млечни крави и телета за угояване у дома, е необходимо да попълните чертежите. За да направите това, трябва предварително да изчислите всички размери и да вземете предвид собствените си желания..
Фондация
Най -важната част от навес за едър рогат добитък, както всяка структура, е основата. Важно е да завършите правилно тази част от конструкцията на сградата за животни.. При некачествена основа всички други части на конструкцията ще бъдат ненадеждни, колкото и да се стараят да ги оправят. За основата на всяка конструкция важните точки са: здравина, достатъчна носеща способност и добра хидроизолация. Ако се очаква плевнята да се използва в продължение на 10 или повече години, тогава основата трябва да бъде направена от бетон. Силата на този материал ще бъде напълно достатъчна дори за стадо възрастни животни и млади животни, да не говорим за няколко крави с телета..
При което се изключват влага, неприятни миризми и увреждания от гризачи. Видът на основата може да бъде избран според метода на изграждане: лентов, монолитен или колонен. Колонна версия на бетонна основа е подходяща за дървена сграда. Но за тухлени сгради е по -добре да изберете монолитен тип фундамент..
За да се постави такава основа, трябва да се изкопае яма, да се направи кофраж, да се подготви подсилваща клетка и да се добави натрошен камък и пясък. След това можете да излеете всичко с бетон, а когато се втвърди, покрийте повърхността му с покривен материал.
Етаж
Преди това дълго време версията от кирпич с дъски се смяташе за добър под за щанд за крави.. Последните бяха уплътнени в глинена смес. Тази опция е удобна, защото е лесно да я направите сами. Когато организирате пода в обора, трябва да помислите как да го направите, така че животните с копита да могат да се движат по него удобно и безопасно. Особено важно е да изберете материал, който да изключи прекомерната влага в пода. Сред най -добрите варианти за подови настилки, фермерите отбелязват дървени. Удобен е, защото се монтира лесно. В допълнение, дървеният под задържа топлината добре. Срокът му на експлоатация обаче е доста кратък..
Най -издръжливият вариант е бетонен под, който не се страхува особено от влага.. Дори голямото тегло на животните не води до деформация на такъв под, а също така пречи на гризачите да си направят много приюти. Наклонът в плевнята е на 2-3% от хоризонта. Това е достатъчно, за да могат течните отпадъци от животинския живот да попаднат в хранилището за тор чрез гравитация, без да се задържат на пода на сергията..
Стени
Почти всеки вид материал е подходящ за стените на плевнята. Разбира се, за голяма ферма за млечни продукти е най-добре да използвате тухли от пясъчно-вар или блокове от пяна. За големи помещения кирпичената тухла е много подходяща.
Изгорената тухла е подходяща и за плевня, но трябва да се има предвид, че стените трябва да са с дебелина 1,5 тухли или повече.. Дървената конструкция ще бъде по -скъпа, а експлоатационният живот на такива конструкции е много по -кратък. Този екологично чист материал е препоръчително да се използва само в малки ферми. В региони, където има силни студове, също е важно да се осигури изолация. Стените трябва да станат надеждна защита от вятъра, както и да създадат оптимален микроклимат вътре в сградата..
Покрив
Най -често за покрива на навеса се използват шисти или керемиди. Фермите, разположени в южните райони, използват поликарбонат за тези цели. Много е добре, ако под покрива се създаде въздушна междина под формата на таван. Това позволява топлината да остане на закрито при силни студове. Освен това таванското помещение може да бъде чудесно място за съхранение на някои видове храна и различни прибори.
Оборудваме места
За добитъка е важно да има достатъчно естествена светлина в обора. За това дори по време на проектирането отворите на прозорците са посочени на структурната диаграма. Често за навес се избира повдигащ или шарнирен тип прозорци. В допълнение към прозорците, през зимата в навеса трябва да се осигурят осветителни лампи..
Вентилационната система играе важна роля, особено ако животните са постоянно държани на каишка. Недостатъчният чист въздух влияе върху здравето на животните и добива на мляко. А също така вентилацията помага за регулиране на температурата в помещението, която не трябва да надвишава 25 градуса през лятото..

По правило сергиите са украсени (оградени) с дървени решетки или метални тръби. В някои ферми можете дори да видите капитални прегради от камък.. Заслужава да се отбележи, че преградите са непрактични, тъй като ще бъде трудно да се направят промени в разположението на добитъка, ако е необходимо (например, когато се увеличава). Трябва да се отбележи следният важен момент: кравата или бикът не трябва да могат да се обръщат в сергията, за да се избегне ненужно замърсяване..
Всяка щанга е снабдена с хранилка с форма на корито. Най -добре е да го поставите на пода. Хранилките могат да бъдат направени сгъваеми, стационарни или повдигащи. Удобно е, ако вътрешните страни в средата ще имат изрез за врата на животното. За спокойното доене е много важно да можете да завържете животното. Най -простото фиксиране са дървени решетки и скоби, които поддържат главата на кравата..
Най -добрият вариант е подвижна яка, а веригата трябва да бъде избрана като основна каишка..
Как да оборудваме пешеходен двор?
Пешеходната писалка е необходима за поддържане на щанда. Това забавно забавление има положителен ефект върху говедата.. По правило пешеходният двор е разположен от южната страна на плевнята, така че студените ветрове не създават проблеми. Площта на загора трябва да е достатъчна за свободното движение на добитъка. Например, 500 -метрова писта е достатъчна за две възрастни крави и няколко телета. Оптималната цифра за възрастна крава е 15 квадратни метра. метра площ, за млади бикове – 10, а за телета – 5. Препоръчително е настилката в двора да бъде твърда, тъй като това ви позволява да намалите площта за ходене.
Мястото за ходене трябва да бъде оборудвано с тенти за защита на животните от атмосферните влияния. Най -добре е да отградите отредената площ за крави с трупи. Необходимо е също така да се осигури порта с подходящи размери. През зимата кравите и биковете трябва да са в зоната за разходка 5-6 часа, през лятото-13-14 часа. Поради това е необходимо да се организират хранилки и поилки за животни в кошарата. Ако желаете, можете да оборудвате зоната за доене на чист въздух.

Вижте следващото видео за това как да получите достатъчно вода до плевнята и как да поддържате плевнята винаги чиста..
Всичко за сергиите за крави и бикове
Всяко селскостопанско животно се нуждае от комфортни условия на живот. Важно е да помислите внимателно за щандовете си за добитък, особено ако кравите и биковете ще бъдат държани на каишка през цялото време, без паша. И също така, когато създавате места за отглеждане на добитък, трябва внимателно да обмислите препоръчаните стандарти..
Какво е?
Щанд за крави и бикове е важна част от живота на тези животни, пряко влияещ върху обема и качеството на техните продукти.. Когато говедата се държат вързани през по -голямата част от деня, е необходимо да се подхожда отговорно към подреждането на вътрешното пространство на обора, чиито най -важни елементи са сергиите. Размерът им трябва да съответства на породата добитък.
Конюшнята е място, чиято площ и височина са достатъчни за издръжката на един индивид. Най -често е ограден от всички страни.
Основни изисквания
Когато поставяте щанд за бик или крава, е важно да вземете предвид специфичните норми за това.. Само компетентният дизайн на плевнята ще направи конструкцията ефективна и удобна за добитъка. На първо място, сергиите или отделенията трябва да са безопасни и удобни. За изграждането на плевнята като цяло трябва да изберете правилното място. Желателно е тя да не се намира в низините. Това ще предпази от наводнения от разтопени или подземни води..
Освен това всяка сграда трябва да бъде оборудвана с дренаж и да бъде разположена на разстояние от жилищни сгради и източници с питейна вода.. За изграждането на сграда е важно избраните материали да са с качество и дълготрайност. При планирането на структура трябва да се вземат предвид нуждите на кравите. Така че, за доене на индивиди е необходимо да се осигури удобно и надеждно фиксиране по време на доене. В този случай се взема предвид, че каишката не пречи на животното, когато яде или пие. Индивидът трябва да се движи свободно из щанда, а служителите трябва да имат достъп до него..
Стандартните изисквания за конюшни и отглеждане на добитък включват редица правила.
Предполага се, че по време на отглеждане на щандове животните се държат в отделните си сергии за 10 или повече часа. Ето защо те се нуждаят от комфорт. Струва си да се изясни, че ходенето е важно за биковете при всяко време, затова до плевнята за тяхната поддръжка трябва да бъде оборудван специален двор с балдахин.
Много е добре, ако до плевнята има място за подреждане на сено или сламени сена, както и силозна яма. Мястото за събиране на тор също не трябва да е твърде далеч..
Размери (редактиране)
Размерът на плевнята с привързано отглеждане на животни директно зависи от броя на добитъка. Така, възрастна крава трябва да бъде разположена на парцел от 6 кв. м. Освен това, за индивид с теле, този показател се увеличава до 8-10 квадратни метра. м. За да могат хората и животните да се движат свободно между сергиите, преминаването трябва да бъде направено с ширина 120-150 см. Що се отнася до таваните, те трябва да се повдигат на 250-300 см над пода.
Съвременните сергии обикновено са проектирани така, че ширината е малко повече от 1 м, а дължината е 1,7-2 м.. Хранилките са най -добре разположени отпред, а коритата за оборски тор отзад. В този случай размерите на последния трябва да бъдат 20×10 cm (съответно ширина и дълбочина). Тук също е важно да се вземе предвид наклона на пода, така че суспензията да тече по -добре. За съхранение през зимата на каишка с дълбоки легла, събирачът на каша не е задължителен елемент..
Напоследък по препоръка на специалисти се предпочитат къси щандове. За млечно стадо оптималната дължина на мястото трябва да варира от 140 до 180 см, а ширината – от 100 до 120 см.. Разликата в данните за размерите зависи от теглото на животните. Що се отнася до предната стена на коритото, височината й е 17-26 см. Зад редицата сергии трябва да се подреди 1 метров проход. Обикновено се прави от бетон или камъни. Необходим е за отстраняване на оборския тор.
Специални прозорци с клапани трябва да влизат в прохода, през който ще се отстраняват отпадъците от добитък. Важна част от плевнята, особено през летния период, са прозорците. Трябва да има поне 2-3 от тях. В този случай минималният размер на прозореца е 50×70 cm.
Освен това е необходимо да се осигури изолация на тавана и вратите..
Как да се изгради?
Преди да продължите с организирането на сергии за млечни крави и телета за угояване у дома, е необходимо да попълните чертежите. За да направите това, трябва предварително да изчислите всички размери и да вземете предвид собствените си желания..
Фондация
Най -важната част от навес за едър рогат добитък, както всяка структура, е основата. Важно е да завършите правилно тази част от конструкцията на сградата за животни.. При некачествена основа всички други части на конструкцията ще бъдат ненадеждни, колкото и да се стараят да ги оправят. За основата на всяка конструкция важните точки са: здравина, достатъчна носеща способност и добра хидроизолация. Ако се очаква плевнята да се използва в продължение на 10 или повече години, тогава основата трябва да бъде направена от бетон. Силата на този материал ще бъде напълно достатъчна дори за стадо възрастни животни и млади животни, да не говорим за няколко крави с телета..
При което се изключват влага, неприятни миризми и увреждания от гризачи. Видът на основата може да бъде избран според метода на изграждане: лентов, монолитен или колонен. Колонна версия на бетонна основа е подходяща за дървена сграда. Но за тухлени сгради е по -добре да изберете монолитен тип фундамент..
За да се постави такава основа, трябва да се изкопае яма, да се направи кофраж, да се подготви подсилваща клетка и да се добави натрошен камък и пясък. След това можете да излеете всичко с бетон, а когато се втвърди, покрийте повърхността му с покривен материал.
Етаж
Преди това дълго време версията от кирпич с дъски се смяташе за добър под за щанд за крави.. Последните бяха уплътнени в глинена смес. Тази опция е удобна, защото е лесно да я направите сами. Когато организирате пода в обора, трябва да помислите как да го направите, така че животните с копита да могат да се движат по него удобно и безопасно. Особено важно е да изберете материал, който да изключи прекомерната влага в пода. Сред най -добрите варианти за подови настилки, фермерите отбелязват дървени. Удобен е, защото се монтира лесно. В допълнение, дървеният под задържа топлината добре. Срокът му на експлоатация обаче е доста кратък..
Най -издръжливият вариант е бетонен под, който не се страхува особено от влага.. Дори голямото тегло на животните не води до деформация на такъв под, а също така пречи на гризачите да си направят много приюти. Наклонът в плевнята е на 2-3% от хоризонта. Това е достатъчно, за да могат течните отпадъци от животинския живот да попаднат в хранилището за тор чрез гравитация, без да се задържат на пода на сергията..
Стени
Почти всеки вид материал е подходящ за стените на плевнята. Разбира се, за голяма ферма за млечни продукти е най-добре да използвате тухли от пясъчно-вар или блокове от пяна. За големи помещения кирпичената тухла е много подходяща.
Изгорената тухла е подходяща и за плевня, но трябва да се има предвид, че стените трябва да са с дебелина 1,5 тухли или повече.. Дървената конструкция ще бъде по -скъпа, а експлоатационният живот на такива конструкции е много по -кратък. Този екологично чист материал е препоръчително да се използва само в малки ферми. В региони, където има силни студове, също е важно да се осигури изолация. Стените трябва да станат надеждна защита от вятъра, както и да създадат оптимален микроклимат вътре в сградата..
Покрив
Най -често за покрива на навеса се използват шисти или керемиди. Фермите, разположени в южните райони, използват поликарбонат за тези цели. Много е добре, ако под покрива се създаде въздушна междина под формата на таван. Това позволява топлината да остане на закрито при силни студове. Освен това таванското помещение може да бъде чудесно място за съхранение на някои видове храна и различни прибори.
Оборудваме места
За добитъка е важно да има достатъчно естествена светлина в обора. За това дори по време на проектирането отворите на прозорците са посочени на структурната диаграма. Често за навес се избира повдигащ или шарнирен тип прозорци. В допълнение към прозорците, през зимата в навеса трябва да се осигурят осветителни лампи..
Вентилационната система играе важна роля, особено ако животните са постоянно държани на каишка. Недостатъчният чист въздух влияе върху здравето на животните и добива на мляко. А също така вентилацията помага за регулиране на температурата в помещението, която не трябва да надвишава 25 градуса през лятото..
По правило сергиите са украсени (оградени) с дървени решетки или метални тръби. В някои ферми можете дори да видите капитални прегради от камък.. Заслужава да се отбележи, че преградите са непрактични, тъй като ще бъде трудно да се направят промени в разположението на добитъка, ако е необходимо (например, когато се увеличава). Трябва да се отбележи следният важен момент: кравата или бикът не трябва да могат да се обръщат в сергията, за да се избегне ненужно замърсяване..
Всяка щанга е снабдена с хранилка с форма на корито. Най -добре е да го поставите на пода. Хранилките могат да бъдат направени сгъваеми, стационарни или повдигащи. Удобно е, ако вътрешните страни в средата ще имат изрез за врата на животното. За спокойното доене е много важно да можете да завържете животното. Най -простото фиксиране са дървени решетки и скоби, които поддържат главата на кравата..
Най -добрият вариант е подвижна яка, а веригата трябва да бъде избрана като основна каишка..
Как да оборудваме пешеходен двор?
Пешеходната писалка е необходима за поддържане на щанда. Това забавно забавление има положителен ефект върху говедата.. По правило пешеходният двор е разположен от южната страна на плевнята, така че студените ветрове не създават проблеми. Площта на загора трябва да е достатъчна за свободното движение на добитъка. Например, 500 -метрова писта е достатъчна за две възрастни крави и няколко телета. Оптималната цифра за възрастна крава е 15 квадратни метра. метра площ, за млади бикове – 10, а за телета – 5. Препоръчително е настилката в двора да бъде твърда, тъй като това ви позволява да намалите площта за ходене.
Мястото за ходене трябва да бъде оборудвано с тенти за защита на животните от атмосферните влияния. Най -добре е да отградите отредената площ за крави с трупи. Необходимо е също така да се осигури порта с подходящи размери. През зимата кравите и биковете трябва да са в зоната за разходка 5-6 часа, през лятото-13-14 часа. Поради това е необходимо да се организират хранилки и поилки за животни в кошарата. Ако желаете, можете да оборудвате зоната за доене на чист въздух.
Вижте следващото видео за това как да получите достатъчно вода до плевнята и как да поддържате плевнята винаги чиста..