
Задължителна част от всяка крайградска зона е представена от душ и тоалетна. Невъзможно е да си представим комфортен престой без тях. Най -често на такива места се поставя външен душ. Но ако желаете, можете да построите сграда, която комбинира няколко функционални обекта едновременно. Това спестява място на територията, както и строителни материали, необходими за изграждането на комунален блок..
Такава сграда е проектирана за различни нужди.. След като подредите уютна стая в него, можете спокойно да се отпуснете в горещата част на деня. Освен това е удобно да се използва отделен обект вместо склад за съхранение на сезонни плодове и зеленчуци, плодове, отгледани и събрани сами на сайта.
Особености
Външно сградата е структура, която едновременно комбинира няколко работни помещения за различни цели вътре.. Най -често такава сграда е оборудвана с тоалетна и душ.. Често такива навеси са разделени на отделения за удобно разпределение и последващо съхранение на инструменти, всякакви прибори, необходими в страната..
Любителите на автомобили често комбинират зона за отдих с гараж.. Във всеки случай размерът на помощния блок за лятна вила с тоалетна и душ, други функционални стаи зависи от вкуса и идеята на собственика на сайта, наличното свободно пространство.
За да се спести място, в конструкцията често се монтира ъглова душ кабина, което е подходящо да се допълни с отопление..
Къде да поставите?
Обичайно е да се разграничават две опции за местоположението на помощните помещения в лятната вила. Те са обединени под един покрив в един комплекс или са разпръснати отделно в двора в свободно стоящи блокове.
Препоръчва се домакинските блокове да бъдат разположени в засенчени зони, които не са подходящи за поставяне на легла или зони за активно забавление. Изключение от това правило би била лятна кухня или трапезария. Такива предмети трябва винаги да са обърнати към слънчевата страна..
Материали (редактиране)
Хозблоковете са универсални структури. За тяхното изграждане най -често се използват следните материали:
- дърво;
- метал;
- пластмаса;
- различни завършвания.
Изборът в полза на конкретни материали зависи изцяло от предпочитанията и финансовите възможности на собственика на лятната вила, от предназначението на хамбара.
Най -често изборът спира върху дървото и неговите производни, които изглеждат особено изгодни на фона на природата..
При избора на оптимален строителен материал си струва допълнително да се вземат предвид характеристиките на мястото за строителство, продължителността на експлоатация, наличният бюджет.

Най-рентабилните пластмасови модели, те също се характеризират с ниско тегло. Дървените помощни блокове се отличават с такива качества като:
- естетичен външен вид;
- издръжливост;
- абсолютна екологичност.
Много производители покриват дървени строителни материали със защитни импрегнации, които предотвратяват повреда на продуктите от насекоми, мухъл.
Уличните конструкции с малки размери, изработени от метал, често са оборудвани с гаражи и складови помещения. Те често са оборудвани на строителни обекти като кабини. Тухлените сгради са най -издръжливите и здрави.
Проекти
На този етап от строителството се съставя план с чертежи, избира се зоната за строителство. Размерите на бъдещата сграда са показани на хартия, посочени са вътрешни стени или прегради. Това ще помогне да се определи възможно най -точно количеството материали за изграждане..
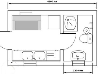
Hozblok с тоалетна и душ или дървен труп под един покрив може да се направи както желаете. Трябва да се разгледа възможността за правоъгълна конструкция, чиито размери са 4×2 м. Посочените комуникации са оптимално разположени в нея, всяка от които е оборудвана с отделна входна врата. Средната стая все още се допълва с отвор за прозорец..
Като цяло размерите на всяка зона се задават по индивидуални причини..

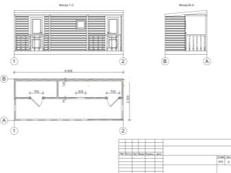
Интересен ще бъде комбиниран селски проект за комунален блок с подобна правоъгълна форма и три стандартни стаи за тоалетна, душ кабина и килер или навес за инвентар. Разликата от предишната версия се крие във вътрешната връзка на областите. Съответно в средата има една врата, рамкирана от двете страни с ъглови прозорци..
В следващия градински проект „3 в 1“ може да се проследи различно подреждане на помещенията. Две от тях са стеснени, стандартно са предназначени за тоалетна с душ, а под навеса или складовото помещение остава по -просторна площ. Има три входни врати.
Струва си да се идентифицира друг търсен проект, който се отличава с поставянето на врати към стаи от противоположните страни.. Две малки зони са разпределени за душ и топла тоалетна, заедно с тях просторно помещение за плевня, организирано съхранение.
Как да се изгради?
Преди да започнете строителството на селскостопанска сграда, трябва да вземете решение за проекта, да съставите най -точния чертеж. И само следващата стъпка ще бъде началото на строителните дейности, резултатът от които ще бъде създаването на лесна за използване и практична структура. Ако първоначално оформлението е неправилно, издигнатата конструкция няма да остави правилното впечатление..
Най-често в летни вили се използват евтини и бюджетни материали при създаването на блок за домашни потреби. Най -често срещаните са производни от дърво, които се вписват оптимално в заобикалящата природа извън града..
Ако имате минимални умения в областта на строителството, конструкцията може да бъде направена самостоятелно.

Невъзможно е да си представим провеждането на определените събития без подходящи инструменти. Преди да създадете обект, който съчетава душ, тоалетна или гараж с зона за отдих под един покрив, трябва да се въоръжите със следните устройства:
- молив с хартия за рисуване;
- аршин;
- ниво;
- шнур;
- клещи;
- резервоар за вода;
- бетонобъркачка;
- лопата;
- брадва;
- самонарезни винтове;
- ножовка;
- самолет;
- отвертка;
- помощна кола.

В хода на извършване на определени манипулации ще стане ясно какъв инвентар липсва.. Всички нужди се определят индивидуално. Възможно е някои от определените елементи да се окажат излишни, всичко ще бъде определено в процеса на работа. Има последователни стъпки, които се препоръчват да се следват при изграждането на многофункционална сграда на лятна вила.
Първата стъпка е да изберете най -подходящото място. Територията, разположена в низината, в ямата, няма да бъде подходяща. След това се полага основа, за предпочитане колонна, която се предхожда от маркиране директно върху земята. Тук трябва да използвате въже и ролетка. Изкопава се яма според подготвената маркировка, чиято оптимална дълбочина е до 2 метра. Що се отнася до ширината, тя зависи от желанията на собственика на сайта..
Общоприетият стандартен размер е 100×150 cm.

Изкопаната дупка трябва да бъде подсилена, за което се използва разтвор на циментова основа и тухли, които се държат заедно според принципа на лепило. Когато тези стени са напълно подготвени, ровът се запълва с чакъл, смесен с пясък. След това всичко се бетонира. В резултат на това се създава контейнер, който не позволява цялото съдържание да преминава през стените..
На следващия етап се монтира колонна основа.. За това се подготвят дупки на дълбочина 80 см. В тях се поставя пясък, внимателно се уплътнява. Върху него се засипва слой от чакъл с подобна дебелина, уплътнен. Освен това колоните се спускат в дупките, поръсени с пясък от всички страни.

Ако в помощния блок има душ и тоалетна, трябва да се оборудва дренажна тръба. Тя се настанява на най -удобното място, след което я извеждат. Най -лесният начин да сглобите рамката според проекта е от бара, което не отнема много време. Върху него се поставят специални стелажи, чиято лента се извършва по горния ръб.
Що се отнася до отворите за врати и прозорци за всяка стая под един покрив, те също могат да бъдат направени от дървен материал, ако е възможно. Тяхното местоположение може да бъде от двете страни на сградата..

Важен етап от строителния процес е организацията на покрива. За тази цел се използват няколко вида материали, като се вземат предвид индивидуалните предпочитания, желания и финансови възможности.. Пример за това е:
- покривен материал;
- стоманена ламарина;
- шисти;
- велпапе и др.
Въпреки това, много летни жители дават приоритет на плочките. Произвежда се в различни цветови варианти, с правилния избор, той ще бъде в хармония с всички обекти в страната, създавайки единна композиция.

Удобството и простотата, комфортът по време на експлоатация на помощно устройство с няколко функционални зони до голяма степен зависи от правилно изпълненото подово покритие. За тази цел обикновено се използват дъски..
Не забравяйте за външната декорация на сградата.. Съществуващата дървена облицовка е намазана с масло.
Издръжливите и всесезонни конструкции са изолирани с вълна от фибростъкло, пяна, които се фиксират с лепило или строителен телбод.

Последният етап е представен от интериорна декорация. Тоалетната и душът са облицовани с пластмасова дъска. Всеки организира интериора според своите нужди. Това могат да бъдат държачи за тоалетна хартия, кърпи, рафтове за сапун и шампоан и други аксесоари.. В складовото помещение също не можете без рафтове, предназначени за тежки товари, кутии, контейнери.
Ако в сградата са подредени лятна трапезария и зона за отдих, е подходящо да се направи компактна маса, където да се съберете с приятелска компания, семейство. Чекмеджета за кухненски прибори, подложки, нощни шкафчета ще бъдат полезни..
Красиви примери
Помощният блок остава оптимален и често се преустройва, под покрива на който са оборудвани душ кабина, баня и всяка къща за преобличане, необходима във фермата. Такава структура ви позволява значително да спестите място на сайта..

Къщите за смяна са търсени само с летен душ и тоалетна, където на покрива има бъчва с вода. Резервоарът е избран в съответствие с конструктивните особености на конструкцията, не разваля цялостния външен вид.
Най-добрият вариант е сграда, допълнена от веранда от отворен тип под формата на просторна веранда.

За информация как да направите помощен блок с тоалетна и душ, вижте следващото видео..
Всичко за изграждането на помощни единици с тоалетна и душ за лятна резиденция
Задължителна част от всяка крайградска зона е представена от душ и тоалетна. Невъзможно е да си представим комфортен престой без тях. Най -често на такива места се поставя външен душ. Но ако желаете, можете да построите сграда, която комбинира няколко функционални обекта едновременно. Това спестява място на територията, както и строителни материали, необходими за изграждането на комунален блок..
Такава сграда е проектирана за различни нужди.. След като подредите уютна стая в него, можете спокойно да се отпуснете в горещата част на деня. Освен това е удобно да се използва отделен обект вместо склад за съхранение на сезонни плодове и зеленчуци, плодове, отгледани и събрани сами на сайта.
Особености
Външно сградата е структура, която едновременно комбинира няколко работни помещения за различни цели вътре.. Най -често такава сграда е оборудвана с тоалетна и душ.. Често такива навеси са разделени на отделения за удобно разпределение и последващо съхранение на инструменти, всякакви прибори, необходими в страната..
Любителите на автомобили често комбинират зона за отдих с гараж.. Във всеки случай размерът на помощния блок за лятна вила с тоалетна и душ, други функционални стаи зависи от вкуса и идеята на собственика на сайта, наличното свободно пространство.
За да се спести място, в конструкцията често се монтира ъглова душ кабина, което е подходящо да се допълни с отопление..
Къде да поставите?
Обичайно е да се разграничават две опции за местоположението на помощните помещения в лятната вила. Те са обединени под един покрив в един комплекс или са разпръснати отделно в двора в свободно стоящи блокове.
Препоръчва се домакинските блокове да бъдат разположени в засенчени зони, които не са подходящи за поставяне на легла или зони за активно забавление. Изключение от това правило би била лятна кухня или трапезария. Такива предмети трябва винаги да са обърнати към слънчевата страна..
Материали (редактиране)
Хозблоковете са универсални структури. За тяхното изграждане най -често се използват следните материали:
Изборът в полза на конкретни материали зависи изцяло от предпочитанията и финансовите възможности на собственика на лятната вила, от предназначението на хамбара.
Най -често изборът спира върху дървото и неговите производни, които изглеждат особено изгодни на фона на природата..
При избора на оптимален строителен материал си струва допълнително да се вземат предвид характеристиките на мястото за строителство, продължителността на експлоатация, наличният бюджет.
Най-рентабилните пластмасови модели, те също се характеризират с ниско тегло. Дървените помощни блокове се отличават с такива качества като:
Много производители покриват дървени строителни материали със защитни импрегнации, които предотвратяват повреда на продуктите от насекоми, мухъл.
Уличните конструкции с малки размери, изработени от метал, често са оборудвани с гаражи и складови помещения. Те често са оборудвани на строителни обекти като кабини. Тухлените сгради са най -издръжливите и здрави.
Проекти
На този етап от строителството се съставя план с чертежи, избира се зоната за строителство. Размерите на бъдещата сграда са показани на хартия, посочени са вътрешни стени или прегради. Това ще помогне да се определи възможно най -точно количеството материали за изграждане..
Hozblok с тоалетна и душ или дървен труп под един покрив може да се направи както желаете. Трябва да се разгледа възможността за правоъгълна конструкция, чиито размери са 4×2 м. Посочените комуникации са оптимално разположени в нея, всяка от които е оборудвана с отделна входна врата. Средната стая все още се допълва с отвор за прозорец..
Като цяло размерите на всяка зона се задават по индивидуални причини..
Интересен ще бъде комбиниран селски проект за комунален блок с подобна правоъгълна форма и три стандартни стаи за тоалетна, душ кабина и килер или навес за инвентар. Разликата от предишната версия се крие във вътрешната връзка на областите. Съответно в средата има една врата, рамкирана от двете страни с ъглови прозорци..
В следващия градински проект „3 в 1“ може да се проследи различно подреждане на помещенията. Две от тях са стеснени, стандартно са предназначени за тоалетна с душ, а под навеса или складовото помещение остава по -просторна площ. Има три входни врати.
Струва си да се идентифицира друг търсен проект, който се отличава с поставянето на врати към стаи от противоположните страни.. Две малки зони са разпределени за душ и топла тоалетна, заедно с тях просторно помещение за плевня, организирано съхранение.
Как да се изгради?
Преди да започнете строителството на селскостопанска сграда, трябва да вземете решение за проекта, да съставите най -точния чертеж. И само следващата стъпка ще бъде началото на строителните дейности, резултатът от които ще бъде създаването на лесна за използване и практична структура. Ако първоначално оформлението е неправилно, издигнатата конструкция няма да остави правилното впечатление..
Най-често в летни вили се използват евтини и бюджетни материали при създаването на блок за домашни потреби. Най -често срещаните са производни от дърво, които се вписват оптимално в заобикалящата природа извън града..
Ако имате минимални умения в областта на строителството, конструкцията може да бъде направена самостоятелно.
Невъзможно е да си представим провеждането на определените събития без подходящи инструменти. Преди да създадете обект, който съчетава душ, тоалетна или гараж с зона за отдих под един покрив, трябва да се въоръжите със следните устройства:
В хода на извършване на определени манипулации ще стане ясно какъв инвентар липсва.. Всички нужди се определят индивидуално. Възможно е някои от определените елементи да се окажат излишни, всичко ще бъде определено в процеса на работа. Има последователни стъпки, които се препоръчват да се следват при изграждането на многофункционална сграда на лятна вила.
Първата стъпка е да изберете най -подходящото място. Територията, разположена в низината, в ямата, няма да бъде подходяща. След това се полага основа, за предпочитане колонна, която се предхожда от маркиране директно върху земята. Тук трябва да използвате въже и ролетка. Изкопава се яма според подготвената маркировка, чиято оптимална дълбочина е до 2 метра. Що се отнася до ширината, тя зависи от желанията на собственика на сайта..
Общоприетият стандартен размер е 100×150 cm.
Изкопаната дупка трябва да бъде подсилена, за което се използва разтвор на циментова основа и тухли, които се държат заедно според принципа на лепило. Когато тези стени са напълно подготвени, ровът се запълва с чакъл, смесен с пясък. След това всичко се бетонира. В резултат на това се създава контейнер, който не позволява цялото съдържание да преминава през стените..
На следващия етап се монтира колонна основа.. За това се подготвят дупки на дълбочина 80 см. В тях се поставя пясък, внимателно се уплътнява. Върху него се засипва слой от чакъл с подобна дебелина, уплътнен. Освен това колоните се спускат в дупките, поръсени с пясък от всички страни.
Ако в помощния блок има душ и тоалетна, трябва да се оборудва дренажна тръба. Тя се настанява на най -удобното място, след което я извеждат. Най -лесният начин да сглобите рамката според проекта е от бара, което не отнема много време. Върху него се поставят специални стелажи, чиято лента се извършва по горния ръб.
Що се отнася до отворите за врати и прозорци за всяка стая под един покрив, те също могат да бъдат направени от дървен материал, ако е възможно. Тяхното местоположение може да бъде от двете страни на сградата..
Важен етап от строителния процес е организацията на покрива. За тази цел се използват няколко вида материали, като се вземат предвид индивидуалните предпочитания, желания и финансови възможности.. Пример за това е:
Въпреки това, много летни жители дават приоритет на плочките. Произвежда се в различни цветови варианти, с правилния избор, той ще бъде в хармония с всички обекти в страната, създавайки единна композиция.
Удобството и простотата, комфортът по време на експлоатация на помощно устройство с няколко функционални зони до голяма степен зависи от правилно изпълненото подово покритие. За тази цел обикновено се използват дъски..
Не забравяйте за външната декорация на сградата.. Съществуващата дървена облицовка е намазана с масло.
Издръжливите и всесезонни конструкции са изолирани с вълна от фибростъкло, пяна, които се фиксират с лепило или строителен телбод.
Последният етап е представен от интериорна декорация. Тоалетната и душът са облицовани с пластмасова дъска. Всеки организира интериора според своите нужди. Това могат да бъдат държачи за тоалетна хартия, кърпи, рафтове за сапун и шампоан и други аксесоари.. В складовото помещение също не можете без рафтове, предназначени за тежки товари, кутии, контейнери.
Ако в сградата са подредени лятна трапезария и зона за отдих, е подходящо да се направи компактна маса, където да се съберете с приятелска компания, семейство. Чекмеджета за кухненски прибори, подложки, нощни шкафчета ще бъдат полезни..
Красиви примери
Помощният блок остава оптимален и често се преустройва, под покрива на който са оборудвани душ кабина, баня и всяка къща за преобличане, необходима във фермата. Такава структура ви позволява значително да спестите място на сайта..
Къщите за смяна са търсени само с летен душ и тоалетна, където на покрива има бъчва с вода. Резервоарът е избран в съответствие с конструктивните особености на конструкцията, не разваля цялостния външен вид.
Най-добрият вариант е сграда, допълнена от веранда от отворен тип под формата на просторна веранда.
За информация как да направите помощен блок с тоалетна и душ, вижте следващото видео..