
Баните с помощен блок са много удобно и обещаващо решение. Много хора могат да се възползват от проектите за комбинирането му с плевня и гараж под един покрив. Също така си струва да разберете как да изградите ъглова баня, комбинирана с беседка или тераса..
Особености
Подреждането на баня с помощен блок отваря редица интересни и необикновени перспективи. Традиционно банята се счита само за място за измиване, а понякога като цяло те се ограничават само до летен душ.. Но комбинацията с помощния блок дава на стаята допълнителни функции:
- работилница;
- гараж;
- кухня и трапезария;
- съхранение на инструменти и спешно необходими неща.

При изграждане на баня, комбинирана с помощен блок:
- пространството е намалено в сравнение с отделни сгради;
- дизайнът се оказва по-рентабилен;
- трябва да помислите внимателно за изпълнението на сградата, мерките за пожарна безопасност.
Проекти
Най -лесният начин е да изготвите проект за баня, комбинирана под един покрив с плевня. Такава структура изглежда доста подходяща за всяка лятна вила. И, което е важно, това се оказва оптималният избор от практическа гледна точка.. При обмислянето на проект във всеки случай е необходимо да се предвидят отделни входове. Това се дължи не само на удобството, но и на основните съображения за безопасност..

Ако се планира водоснабдяването на сградата, тогава за това е най -правилно да се направи клон от основната водоснабдителна система на обекта. Същото изискване трябва да важи и за канализационния план. Банята отделя, макар и относително безопасни течни отпадъци, но в много големи количества. Винаги предвиждайте отделен клон за изхвърляне на отпадъчни води в дере или в основната мрежа.
В редки случаи е възможно да се управлява септична яма и колкото повече жители и посетители, толкова по -трудно е да се направи това..

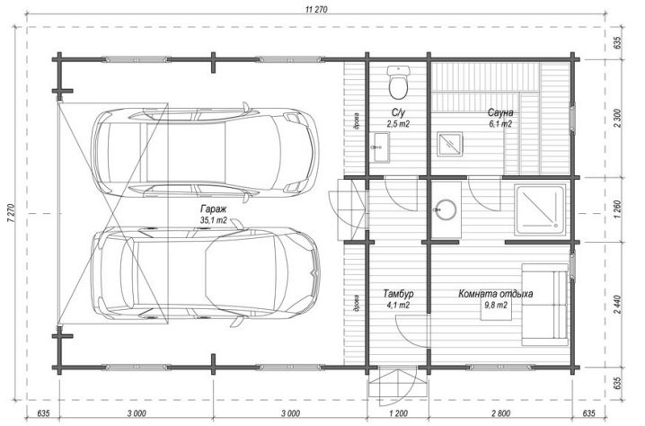
Но не забравяйте да помислите за алтернативно решение – оформлението на банята с гараж за 2 коли. В тази версия 35 м2 са разпределени за домашен паркинг. Площта на сауната е около 6 м2, а банята е само 2,5 квадратни метра. м, но на практика това е достатъчно. Има дори отделен вестибюл с площ от около 4 квадратни метра. м. Предполага се, че ще почива в специално помещение от 8-9 м2.

Не е лошо решение – комбиниране на баня с беседка в ъглов модел. Най -лесният начин е да направите отворено разширение от дърво. Издълбаните дървени елементи ще бъдат декорацията. Външно такава структура изглежда като голям балдахин, въпреки че мнозина с готовност ще я сравнят с веранда. В централната част на беседката е поставена маса, която се превръща в атрактивна точка за домакини и гости.

Но е по -добре да вземете кухненски прибори и предмети за готвене на храна, защото в противен случай ще бъде твърде тесно и неудобно. Но е по -правилно да се оборудва по -обемна беседка. След това можете да поставите вътре:
- печете;
- B-B-Q;
- мангал;
- удобни пейки.

Разбира се, проектът ще трябва да осигури висококачествена вентилация, както и стриктно да спазва стандартите за пожарна безопасност.. Можете да оборудвате по -защитена конструкция – баня с рамкова работилница; все пак трябва да се спазват същите защитни мерки, но главно в банята на сградата. В този случай строителството обикновено се извършва върху винтови купчини..
Можете да проявите оригиналност, ако построите баня не само със селскостопанска сграда за лятна резиденция, но и с тераса, оградена със стъклени стени. Тогава ще бъде възможно, като се поддържа визуална връзка с външната среда, надеждно да се предпазите от вятър, дъжд, дори от сняг. Разбира се, в този случай си струва да използвате удароустойчиво стъкло, което ще издържи доста дълго време..
Във всеки случай банята трябва да бъде разположена последна по посока на доминиращите ветрове сред всички сгради. По очевидни причини приближаването му до дървени огради и градински дървета, храсти също не е много разумно..

Когато баня и жилищна сграда са построени отделно една от друга (това е най -доброто решение), разстоянието между тях трябва да остане най -малко 8 м. Препоръчително е да се отдалечи и от пътя – дори според законодателните норми, най -малко 5 м.
Важно: ако във ваната има и тоалетна, тя трябва да се отстрани от кладенците и отворените водни обекти, доколкото е възможно. Дори при изготвянето на лятна тераса е необходимо да се предвиди оборудването на постоянен под. В идеалния случай терасата трябва да минава по цялото тяло на основната сграда.
Какъв материал да изберете?
За изпълнение на проекта могат да се използват различни материали..
Дневник
Структурата на трупи изглежда изключително традиционна и стабилна. Има доста видове съединяване на трупи, които ви позволяват да разнообразите външния вид на сградата.. Висококачествените заготовки от този вид обаче не са евтини и съществува голям риск да бъдете изправени пред измама..
Наложително е да се извърши обработка с огнезащитни средства. Това ще намали риска от пожар, но в същото време значително ще обезцени естествеността на материала..
Греди
Ваните от дървени трупи също трябва да бъдат третирани със забавители на огъня. Разликата е, че вече импрегнираните продукти обикновено се продават. По -късната обработка обаче ще трябва да се повтори.. Разбира се, повечето добри импрегнации са безопасни за здравето, но те не са евтини.. И все пак дървените конструкции трябва да бъдат признати за доста достоен избор..
Тухла
Този материал е много по -устойчив на огън от дървото. Често дори след пожар значителна част от него може да се използва повторно.. Не трябва да възникват проблеми от екологичния план. Една добра тухла струва поне 100 години.
Трябва обаче да се помни за голямото количество ръчна работа и необходимостта от оборудване на мощна база. Все пак си струва да се извърши вътрешна декорация от дърво..
Газобетон
Този материал е евтин – по -евтин от тухли и е сравним с дървото. Голям плюс е минималното количество мокра работа. Големият размер на блоковете намалява броя на фугите – и те не само са склонни да пропускат топлината, но и отнемат много време от строителите. Трябва да се отбележи обаче, че газобетонът абсорбира влагата и е необходимо да се покрие със защитен слой. Заедно с довършителните работи, структурата не е толкова евтина – следователно банята от газобетон трябва да се счита за последна..
Къде да поставите?
Когато е възможно, трябва да отделите място по -близо до водата за баня с помощен блок. (Спазвайки, разбира се, санитарните стандарти). Също толкова важно е да се има предвид, че сградата трябва да бъде защитена от наводнения по време на високи води. Препоръчително е да скриете банята от любопитни очи, маскирайки я с храсти, други сгради. Също така си струва да оградите пътеките, водещи до банята..
В по -голямата част от случаите е невъзможно да се построи баня в близост до резервоар. Изход обаче има – можете да инсталирате сградата на хълм.
Местоположение на хълм също е добра идея. В този случай оборудвайте землянка или полуземлянка на стълбове..

Още няколко препоръки:
- образуват входа от южната страна;
- позиционирайте прозорците на юг или югозапад, за да осигурите максимална естествена светлина;
- самата баня и входът към нея за предпочитане трябва да бъдат разположени така, че да можете да ги наблюдавате от вкъщи, изключвайки всякакви изненади.
Етапи на строителство
Изграждането на баня с помощен блок включва няколко стъпки.
Фондация
Напълно възможно е да изградите основата със собствените си ръце – и оптималното решение е, че основата на частта за къпане и помощния блок са еднакви. Всички необходими комуникации се изтеглят предварително към вътрешното разширение. Най -често се използва колонна основа. На неравни повърхности се препоръчва използването на метални купчини; разстоянието между тях е 1-2 м.
Маркирането за всяка основа трябва да се извърши с помощта на колове и опънати нишки. Освен това ще трябва да маркирате местата, където ще трябва да стоят опорите. Дупките се изкопават поне до дълбочината на замръзване на почвата. Препоръка: ако почвата съдържа много глина, това ви позволява да правите без кофраж при изливане на бетон.
Всички видове основи трябва да се издигат на 30-60 см над земята.
Стени
Външните стени и прегради са оформени от профилиран дървен материал, напречното му сечение е 140х90 мм. Оптималната височина от пода до тавана е 2 м. В сауните са предвидени дървени рамки с двоен стъклопакет; височината на вратата е 1,8 м, а ширината е 80 см.
Монтирането на дървения материал един към друг не трябва да се извършва твърде плътно. Всички празнини трябва да бъдат наситени с изолационен материал. Поставянето на блокове под прозорци и врати трябва да се извършва веднага по време на строителството. Върху изолацията трябва да се постави фолио. Алуминиевата лента е залепена в ставите.
Покрив
Основата за покрива се монтира непосредствено по периметъра. Към него са прикрепени греди. Важно: ако коминът или вентилацията ще бъдат отстранени не през покрива, а през стената, това трябва да стане предварително, преди да се монтира покривът. Изборът на покрив е ограничен само от финансови съображения. Типичен дизайн:
- рамка от бор бор 50х80 мм;
- минерална вата;
- термична защита поради алуминиево фолио.
Довършителни работи
По очевидни причини е непрактично да се използва пластмаса за довършителни работи. Най -добрият вариант е дърво. Твърдението, че е невъзможно да се обшие парната баня с иглолистни дъски, е умишлено погрешно. Друг добър вариант е да използвате подплата. Предпочитан пиков монтаж, за да се избегне кондензация.
При строеж „до ключ“ строителите най -често монтират облицовката по вертикален начин. Това опростява дизайна на ъглите и спестява ценно време. Но проблемът е, че ако дъската падне, ще трябва да разглобите и поправите цялата конструкция.. Препоръчва се облицовката да се изолира със слой от каменна вата.
Важно: по -правилно е да откажете използването на покривен материал и пергамин.
Красиви примери
Снимката показва една от възможните опции за баня с помощен блок под един двускатен покрив. Те дори успяха да оборудват отделен вход, да направят красива веранда и декоративни стълбове..

Но сградата може да изглежда различно – например ъгловата комбинация от по -висока баня и относително ниско място за съхранение на дърва за огрев..
Комбинираната структура на светлинен лъч с тъмен покрив също изглежда много добре. Веднага става ясно, че сградата е включена в избраната концепция за ландшафтен дизайн.

Преглед на баня с помощен блок във видеото по -долу.
Всичко за бани с помощен блок
Баните с помощен блок са много удобно и обещаващо решение. Много хора могат да се възползват от проектите за комбинирането му с плевня и гараж под един покрив. Също така си струва да разберете как да изградите ъглова баня, комбинирана с беседка или тераса..
Особености
Подреждането на баня с помощен блок отваря редица интересни и необикновени перспективи. Традиционно банята се счита само за място за измиване, а понякога като цяло те се ограничават само до летен душ.. Но комбинацията с помощния блок дава на стаята допълнителни функции:
При изграждане на баня, комбинирана с помощен блок:
Проекти
Най -лесният начин е да изготвите проект за баня, комбинирана под един покрив с плевня. Такава структура изглежда доста подходяща за всяка лятна вила. И, което е важно, това се оказва оптималният избор от практическа гледна точка.. При обмислянето на проект във всеки случай е необходимо да се предвидят отделни входове. Това се дължи не само на удобството, но и на основните съображения за безопасност..
Ако се планира водоснабдяването на сградата, тогава за това е най -правилно да се направи клон от основната водоснабдителна система на обекта. Същото изискване трябва да важи и за канализационния план. Банята отделя, макар и относително безопасни течни отпадъци, но в много големи количества. Винаги предвиждайте отделен клон за изхвърляне на отпадъчни води в дере или в основната мрежа.
В редки случаи е възможно да се управлява септична яма и колкото повече жители и посетители, толкова по -трудно е да се направи това..
Но не забравяйте да помислите за алтернативно решение – оформлението на банята с гараж за 2 коли. В тази версия 35 м2 са разпределени за домашен паркинг. Площта на сауната е около 6 м2, а банята е само 2,5 квадратни метра. м, но на практика това е достатъчно. Има дори отделен вестибюл с площ от около 4 квадратни метра. м. Предполага се, че ще почива в специално помещение от 8-9 м2.
Не е лошо решение – комбиниране на баня с беседка в ъглов модел. Най -лесният начин е да направите отворено разширение от дърво. Издълбаните дървени елементи ще бъдат декорацията. Външно такава структура изглежда като голям балдахин, въпреки че мнозина с готовност ще я сравнят с веранда. В централната част на беседката е поставена маса, която се превръща в атрактивна точка за домакини и гости.
Но е по -добре да вземете кухненски прибори и предмети за готвене на храна, защото в противен случай ще бъде твърде тесно и неудобно. Но е по -правилно да се оборудва по -обемна беседка. След това можете да поставите вътре:
Разбира се, проектът ще трябва да осигури висококачествена вентилация, както и стриктно да спазва стандартите за пожарна безопасност.. Можете да оборудвате по -защитена конструкция – баня с рамкова работилница; все пак трябва да се спазват същите защитни мерки, но главно в банята на сградата. В този случай строителството обикновено се извършва върху винтови купчини..
Можете да проявите оригиналност, ако построите баня не само със селскостопанска сграда за лятна резиденция, но и с тераса, оградена със стъклени стени. Тогава ще бъде възможно, като се поддържа визуална връзка с външната среда, надеждно да се предпазите от вятър, дъжд, дори от сняг. Разбира се, в този случай си струва да използвате удароустойчиво стъкло, което ще издържи доста дълго време..
Във всеки случай банята трябва да бъде разположена последна по посока на доминиращите ветрове сред всички сгради. По очевидни причини приближаването му до дървени огради и градински дървета, храсти също не е много разумно..
Когато баня и жилищна сграда са построени отделно една от друга (това е най -доброто решение), разстоянието между тях трябва да остане най -малко 8 м. Препоръчително е да се отдалечи и от пътя – дори според законодателните норми, най -малко 5 м.
Важно: ако във ваната има и тоалетна, тя трябва да се отстрани от кладенците и отворените водни обекти, доколкото е възможно. Дори при изготвянето на лятна тераса е необходимо да се предвиди оборудването на постоянен под. В идеалния случай терасата трябва да минава по цялото тяло на основната сграда.
Какъв материал да изберете?
За изпълнение на проекта могат да се използват различни материали..
Дневник
Структурата на трупи изглежда изключително традиционна и стабилна. Има доста видове съединяване на трупи, които ви позволяват да разнообразите външния вид на сградата.. Висококачествените заготовки от този вид обаче не са евтини и съществува голям риск да бъдете изправени пред измама..
Наложително е да се извърши обработка с огнезащитни средства. Това ще намали риска от пожар, но в същото време значително ще обезцени естествеността на материала..
Греди
Ваните от дървени трупи също трябва да бъдат третирани със забавители на огъня. Разликата е, че вече импрегнираните продукти обикновено се продават. По -късната обработка обаче ще трябва да се повтори.. Разбира се, повечето добри импрегнации са безопасни за здравето, но те не са евтини.. И все пак дървените конструкции трябва да бъдат признати за доста достоен избор..
Тухла
Този материал е много по -устойчив на огън от дървото. Често дори след пожар значителна част от него може да се използва повторно.. Не трябва да възникват проблеми от екологичния план. Една добра тухла струва поне 100 години.
Трябва обаче да се помни за голямото количество ръчна работа и необходимостта от оборудване на мощна база. Все пак си струва да се извърши вътрешна декорация от дърво..
Газобетон
Този материал е евтин – по -евтин от тухли и е сравним с дървото. Голям плюс е минималното количество мокра работа. Големият размер на блоковете намалява броя на фугите – и те не само са склонни да пропускат топлината, но и отнемат много време от строителите. Трябва да се отбележи обаче, че газобетонът абсорбира влагата и е необходимо да се покрие със защитен слой. Заедно с довършителните работи, структурата не е толкова евтина – следователно банята от газобетон трябва да се счита за последна..
Къде да поставите?
Когато е възможно, трябва да отделите място по -близо до водата за баня с помощен блок. (Спазвайки, разбира се, санитарните стандарти). Също толкова важно е да се има предвид, че сградата трябва да бъде защитена от наводнения по време на високи води. Препоръчително е да скриете банята от любопитни очи, маскирайки я с храсти, други сгради. Също така си струва да оградите пътеките, водещи до банята..
В по -голямата част от случаите е невъзможно да се построи баня в близост до резервоар. Изход обаче има – можете да инсталирате сградата на хълм.
Местоположение на хълм също е добра идея. В този случай оборудвайте землянка или полуземлянка на стълбове..
Още няколко препоръки:
Етапи на строителство
Изграждането на баня с помощен блок включва няколко стъпки.
Фондация
Напълно възможно е да изградите основата със собствените си ръце – и оптималното решение е, че основата на частта за къпане и помощния блок са еднакви. Всички необходими комуникации се изтеглят предварително към вътрешното разширение. Най -често се използва колонна основа. На неравни повърхности се препоръчва използването на метални купчини; разстоянието между тях е 1-2 м.
Маркирането за всяка основа трябва да се извърши с помощта на колове и опънати нишки. Освен това ще трябва да маркирате местата, където ще трябва да стоят опорите. Дупките се изкопават поне до дълбочината на замръзване на почвата. Препоръка: ако почвата съдържа много глина, това ви позволява да правите без кофраж при изливане на бетон.
Всички видове основи трябва да се издигат на 30-60 см над земята.
Стени
Външните стени и прегради са оформени от профилиран дървен материал, напречното му сечение е 140х90 мм. Оптималната височина от пода до тавана е 2 м. В сауните са предвидени дървени рамки с двоен стъклопакет; височината на вратата е 1,8 м, а ширината е 80 см.
Монтирането на дървения материал един към друг не трябва да се извършва твърде плътно. Всички празнини трябва да бъдат наситени с изолационен материал. Поставянето на блокове под прозорци и врати трябва да се извършва веднага по време на строителството. Върху изолацията трябва да се постави фолио. Алуминиевата лента е залепена в ставите.
Покрив
Основата за покрива се монтира непосредствено по периметъра. Към него са прикрепени греди. Важно: ако коминът или вентилацията ще бъдат отстранени не през покрива, а през стената, това трябва да стане предварително, преди да се монтира покривът. Изборът на покрив е ограничен само от финансови съображения. Типичен дизайн:
Довършителни работи
По очевидни причини е непрактично да се използва пластмаса за довършителни работи. Най -добрият вариант е дърво. Твърдението, че е невъзможно да се обшие парната баня с иглолистни дъски, е умишлено погрешно. Друг добър вариант е да използвате подплата. Предпочитан пиков монтаж, за да се избегне кондензация.
При строеж „до ключ“ строителите най -често монтират облицовката по вертикален начин. Това опростява дизайна на ъглите и спестява ценно време. Но проблемът е, че ако дъската падне, ще трябва да разглобите и поправите цялата конструкция.. Препоръчва се облицовката да се изолира със слой от каменна вата.
Важно: по -правилно е да откажете използването на покривен материал и пергамин.
Красиви примери
Снимката показва една от възможните опции за баня с помощен блок под един двускатен покрив. Те дори успяха да оборудват отделен вход, да направят красива веранда и декоративни стълбове..
Но сградата може да изглежда различно – например ъгловата комбинация от по -висока баня и относително ниско място за съхранение на дърва за огрев..
Комбинираната структура на светлинен лъч с тъмен покрив също изглежда много добре. Веднага става ясно, че сградата е включена в избраната концепция за ландшафтен дизайн.
Преглед на баня с помощен блок във видеото по -долу.