
Банята е незаменимо средство за релаксация след тежък ден, чудесно място за среща с приятели. Удобно е да използвате услугите на строителна компания, но ще трябва да платите голяма сума.
Много летни жители предпочитат да строят бани със собствените си ръце..
Предимства и недостатъци
Традиционно руските бани са построени от дърво. В днешно време все по-често за такива цели се използват огнеупорни тухли, които са по-безопасни, но не по-малко екологични. Този строителен материал е лесен за използване и ви позволява да реализирате проект за баня с всякаква сложност. Преди да започнете изграждането на тухлена баня, е необходимо да се запознаете с предимствата и недостатъците на самия материал и структурата му.
Огнеустойчивата тухла е по-скъпа от дървесината, но има и много предимства, а именно:
- високо ниво на пожарна безопасност – тухлата е много по -добра от дървесината по отношение на огнеустойчивостта. Огнеупорни тухли са отлична огнеустойчивост, което не може да се каже за дърво;
- издръжливост – тухлена баня може да издържи повече от 50 години;
- екологичност – при производството на тухли се използват естествени, естествени суровини, материалът не представлява опасност за човешкото здраве;
- лекота на използване – не се изискват специални грижи за тухлената фасада на банята;
- използването на тухли ще направи възможно изграждането на бани с различни форми и размери, за въплъщение дори на най -сложните архитектурни проекти, за използване на различни видове интериорни и екстериорни декорации. Силата на сградата ви позволява да експериментирате с вътрешното оформление и формата на покрива.
Недостатъците на тухлените бани са следните:
- голям топлинен капацитет – ще отнеме много повече време, за да се затопли тухлена парна баня, отколкото подобна дървена конструкция;
- повишена хигроскопичност – за да се избегне образуването на влага в помещението, е наложително да се извърши комплекс от хидро, паро- и топлоизолационни работи;
- цената на строителния материал – огнеупорна тухла е доста скъп материал, следователно изграждането на баня няма да бъде евтино;
- необходимостта от изграждане на лента, дълбока основа и довършителни работи;
- за да се осигури запазване на топлината, ще е необходима голяма дебелина на стената.
Видове конструкции
Когато изграждате тухлена баня, можете да избирате различни форми и дизайн. Качеството на банята зависи до голяма степен от правилното вътрешно оформление. Готовите проекти ще ви помогнат да не направите грешка. Можете да издигнете сграда точно според представените чертежи или да използвате проекта като идея и да го промените според личните предпочитания.

Струва си да разгледате няколко от най -популярните опции, кратки инструкции как да ги създадете.
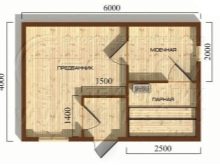
Едноетажна сауна 6х4 м с тераса
Този проект предполага наличието на такива три помещения като:
- тоалетна;
- баня;
- парна баня.
Оформлението на банята може да бъде променено чрез смяна на вратите. трябва да бъде отбелязано че влизането директно в салона не е добър вариант. Факт е, че когато вратите се отворят, студът ще влезе вътре. Тераса или прикрепен вестибюл ще помогнат за отстраняване на недостатъка..
Проектите за баня с тераси са много популярни. Терасата може да бъде оборудвана по ваша преценка, можете да инсталирате удобни мебели за среща с приятели, да поставите билярдна зала.
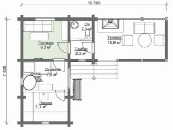
Ъглови вани
Основната характеристика на баните от ъглов тип е тяхната не съвсем стандартна форма, която изглежда красива и стилна. Този вариант на строителство се характеризира с разположението на парната баня перпендикулярно на останалата част от сградата..
Основните предимства на ъгловите вани са следните:
- разположението на пещта за парната баня в централната част на сградата осигурява отопление за всички стаи наведнъж и спомага за намаляване на топлинните загуби;
- ъгловите бани спестяват място на сушата. Обикновено се поставят в ъгъла на партидата. Те са идеални за строителство в проблемни зони, където този тип конструкция може да се използва за “заобикаляне” на комуникации или например голямо дърво;
- ако желаете, можете да си направите ъглова баня с басейн или басейн за гмуркане. Изпълнението на такъв проект ще изисква значителни материални разходи и наличието на голяма сградна площ;
- формата на сградата ви позволява да прикрепите ъглова парна баня към къщата или лятната кухня. Разнообразието от опции ви позволява да изберете проект въз основа на вашите нужди и възможности, формата на парцела.
Какъв материал да изберете?
На съвременния пазар могат да се намерят няколко вида тухли:
- Червена керамична куха и плътна. Керамичните тухли могат да бъдат както облицовъчни, така и зидани. Плътната тухла е здрав, издръжлив и устойчив на замръзване материал. Използва се за зидария на носещи стени, цокли, вентилационни канали и комини. Недостатъкът е високата топлопроводимост, поради което външните стени са разположени в два реда. Плътната тухла е тежък материал, така че основата трябва да е достатъчно здрава, за да издържи тежестта на стените. Цената на материала е висока, тъй като за производството му са необходими много суровини.
Кухите тухли са леки и имат добри топлоизолационни свойства. Не е подходящ за полагане на цокли, комини.
- Керамична пореста. При неговото производство се използва глинена смес с добавяне на дървени стърготини. По време на изпичането дървените стърготини се изгарят, образувайки въздушни пори в материала, предотвратявайки проникването на въздух. Това постига топлопроводимост, близка до дървесината. Такъв строителен материал е лек, издръжлив и има добри топло- и звукоизолационни качества..
- Бял силикат. Този издръжлив материал има добри топлоизолационни свойства, но не понася добре температурните крайности, разрушава се от влага..
- Огнеупорен шамот. Материал с гранулирана структура се произвежда чрез синтероване на шамотен прах с натрошена огнеупорна глина. Не се прилага за зидани стени. Използва се за изграждане на конструкции, които трябва да издържат на високи температури – печки и камини. Огнеупорни тухли акумулират топлина, поддържат температурата на пещта дълго време, отделят топлина при охлаждане.
Направи си сам
Чертежи
Преди да продължите с изграждането на баня, е необходимо правилно да съставите чертеж (проект) на бъдещото строителство. Трябва да се вземат предвид всички структурни характеристики: външен вид, брой и размер на помещенията, електрическа схема на комуникациите, разпределение на теглото на конструкциите, изчисляване на количеството на необходимите материали. Най-простите проекти на бани с малки размери се състоят от една стая, която съчетава парна баня, пералня и съблекалня.
Вярно е, че тази опция не е много удобна, затова в повечето чертежи сградите се състоят от помещения като:
- парна баня. Важно е да се има предвид, че вратата се отваря навън, както се изисква от правилата за пожарна безопасност. Препоръчва се височината от пода до тавана в парната баня да не надвишава 2,5 м. Това ще ви позволи да изразходвате по -малко материални ресурси, време и усилия за изграждане на баня и затопляне на помещенията до необходимата температура;
- стая за почивка. Обикновено в него е инсталирана маса, удобни мебели, така че да можете да седнете, да похапнете и да си поговорите;
- съблекалня. Може да се използва и като съблекалня чрез инсталиране на гардероби и закачалки за дрехи;
- измиване. Той представлява душ кабина или басейн.

За разработване на чертеж на сграда можете да се свържете с проектантската организация. Специалистите по проектиране компетентно ще създадат проект, като вземат предвид желанията на клиента, изискванията на законодателството в областта на строителството и правилата за пожарна безопасност.
За да спестите пари, можете да използвате готовите проекти на тухлени бани, предоставени в тази статия..
Фондация
Ако имате завършен проект за бъдещата баня, можете да започнете изграждането на основата. Като се има предвид, че тухлените конструкции са доста тежки, основата трябва да е здрава, за да издържи тежестта на конструкцията. Най -добрият избор са лентови основи.
Изграждането на основата се състои от следните етапи:
- подготовка и почистване на обекта от различни отломки, камъни, нежелана растителност и други неща;
- маркиране на бъдещата сграда според проекта. По стените и в ъглите се монтират колчета, между които се опъва здрава нишка;
- изкоп на изкоп (дълбочина 0,3-0,8 м, ширина 25-40 см). Важно е да се вземе предвид, че основата трябва да започне поне с един метър по -високо от потока на подземните води;
- слой пясък (10–20 cm) се изсипва на дъното на изкопа, навлажнява се с вода и се трамбова добре;
- слой от натрошен камък се полага върху пясъчния слой, навлажнява се и също така се уплътнява плътно;
- На получената възглавница се поставят 1-2 слоя хидроизолационен материал. Най -често се използва покривен материал или геотекстил;
- монтаж на кофраж от дъски. Тя трябва да се издига на 30–60 см над земята;
- вътре е монтирана подсилена основа от метални пръти с диаметър 1,2-1,6 см. Редовете са завързани заедно със здрава тел;
- задължително е предварително да се навлажнят вътрешните части на кофража;
- циментобетонен разтвор се излива в получената структура. Можете да го направите сами, като използвате пресят речен или кариерен пясък, фин чакъл, цимент и вода;
- кофражът обикновено се отстранява след 5-14 дни, в зависимост от температурата на въздуха. За да се предотврати деформация през първите няколко дни, основата трябва да се полива 3-4 пъти на ден. За да се предпази основата от валежи от глина и натрошен камък, се излива сляпа зона с ширина 1 м. Циментът се втвърдява до необходимата здравина след 28 дни.

Наложително е да направите дупки за вентилация в основата с диаметър 8-12 см и да изградите отделна основа за печката, ако планирате да използвате нагревател.
Като се има предвид, че бетонът е в състояние да абсорбира добре влагата, се препоръчва добре да се третира надземната част със специални хидроизолационни смеси преди полагане на стените. На етапа на изграждане на основата е необходимо да се предвиди окабеляване на водоснабдителни и дренажни системи. Електричество и газ могат да бъдат инсталирани по -късно.
Стени
След като завършите хидроизолацията на основата, можете да започнете изграждането на стените. Най-често се използва едноредова система за обличане, тъй като е лесна за използване, може да се издигне самостоятелно без проблеми. Тази система се състои от редуващи се лъжици и свързани редове тухли. Редът на лъжицата е ред тухли, които са положени със страната им по стената, а редът на дупето е положен с краищата им към външната страна на стената..
Има три вида тухлена зидария, като например:
- плътна – тухлата се полага в два реда без празнина между редовете. Той е по -издръжлив;
- с вентилационна междина 40–60 mm;
- лек. Този тип се състои от две стени, между които се излива изолация (експандирана глина или фина шлака).

По -често се използва лека зидария, тъй като ви позволява да намалите натиска върху основата и да спестите от строителни материали. Независимо от вида на зидарията, стените трябва да се издигат от ъглите. Първоначално е необходимо да се поставят шест реда тухли върху хоросан в ъглите.. Трябва да нарисувате шнур по всеки ред. Те са увити около пирони, които се вкарват в шевовете между тухлите на разстояние 3-4 мм от вертикалата на реда. Така се определя равномерността на зидарията. За същата цел използвайте сградно ниво и отвес..
Мазето на банята се препоръчва да бъде поставено от масивно, а самите стени да бъдат направени от кухи тухли. По време на полагането трябва да направите всичко бързо, така че циментовият разтвор да не се втвърди предварително. Когато извършвате строителни работи през лятото, тухлата трябва да бъде предварително навлажнена с вода. Дебелината на циментовия слой трябва да бъде 2–3 cm.
Има няколко варианта на масивна зидария, сред които:
- “Един ред” – постоянна смяна на реда на дупето и лъжицата;
- “Многоредово” – редовете на дупето преминават през 5-6 реда лъжици.
При полагане на залепени редове е необходимо да се нанася хоросан с отстъп 10 мм при запълване на фугите и с 30–35 мм при полагане на шайба. Ако има тухли с различни стружки, дефекти, те могат да се използват за полагане на редове с лъжици, с изключение на ъглите и опорните зони.
Наложително е да се изгради екран за пещта от огнеупорни тухли. Той служи като своеобразен калъф за фурна и насърчава плавното нагряване.
Покрив и под
Покривната конструкция може да бъде направена в един, два или повече наклона. Трябва да се има предвид, че колкото по -сложна е покривната конструкция, толкова по -скъпа ще бъде инсталацията. Постепенната последователност на работа също зависи от избора на дизайн. В горните редове на стените се пробиват отвори за закрепващите щифтове. Върху тях се монтират греди Mauerlat и таван..
Ако краищата на гредите са в контакт със стените, те се обвиват с покривен материал. След това настилката се изгражда от необработени дъски. На същия етап се определя отвор за комина..

За да се увеличи експлоатационният живот на таванските греди, те трябва да бъдат покрити с хидроизолационен слой.. Можете да използвате абсент от плат, който е удобен за закрепване със строителни скоби. Отгоре се изсипва слой, състоящ се от смес от глина и дървени стърготини. След изсушаване се поръсва с пясък.
В точката на контакт на комина с тавана се извършва облицовка с метални листове.

След това рафтовата система се сглобява. Рафтовите крака са прикрепени към Mauerlat с помощта на метални ъгли и самонарезни винтове.
Ако покривът има два или повече наклона, тогава между склоновете се монтират допълнителни опори. Върху гредите е монтирана щайга с малки ламели, покрита с хидроизолация и велпапе, метални плочки или други съвременни аналози. Ако е необходимо, направете контрарешетка.

За монтажа на пода се използват греди със сечение 15×10, 25×10 mm, които се монтират към дъното на стените с помощта на метални ъгли. Баровете са заковани към изоставането от двете страни – основата за основата. Върху тях се закрепва дъска, след това слой хидроизолация, изолация и втори слой хидроизолация. След това готовият под се монтира..
Затопляне и хидроизолация
Хидроизолацията и изолацията са необходими за подобряване на функционалните качества на тухлена баня.
Хидроизолацията може да се извърши по два начина, като например:
- метод на боядисване – отвътре всички повърхности на ваната са покрити с хидроизолационни средства: битумна мастика или епоксидни смоли;
- метод на поставяне – вътрешните повърхности могат да бъдат облицовани с покривен материал от ламарина или ролка. И също за тази цел се използва полиетиленова пяна, покрита с фолио. Удобно е да го фиксирате с дървени летви, а фугите трябва да бъдат запечатани с алуминиева лента. Тя трябва да се монтира от вътрешната страна на ваната с огледалната страна нагоре..
Оставете празнина между PE пяната и стената.

Топлоизолацията е най -важният аспект при създаването на баня. Функционалността на стаята зависи от това. Ако банята не се затопли добре, цялата работа ще отиде в канализацията..
В помещения с висока влажност е важно да се постигне отлична вентилация на изолационните материали. По този начин банята ще се затопли по -бързо и количеството на кондензата ще намалее, тъй като ще се изпари по -бързо..

Като изолационен материал можете да използвате термоплаки, минерална вата, полистирол, фибростъкло или пеноплекс. Топлоизолационните работи трябва да започнат от началния етап – изграждането на основата и подреждането на пода.
Популярният и най -достъпен начин за изолация на банята под земята е поставянето на запечатани бутилки на редове под заварена мрежа. Редовете на бутилките се покриват с пясък и се разливат с вода, след което се пълнят с цимент.
За да не студът не дърпа краката във ваната, се препоръчва да се напълни земята под пода със слой от експандирана глина и шлака.

За изолация на стени се използва следната приблизителна последователност от слоеве:
- решетка от дървен материал или алуминиев профил за гипсокартон;
- минерална вата – дебелината на слоя за парната баня е 10 см, за спомагателните помещения – 5 см;
- материал, устойчив на влага – дъска, импрегнирана от гъбички и мухъл;
- пароизолационна изолация “Изоспан”;
- вертикални контра лайсни;
- подплата.
Такъв дизайн на изолация изяжда много вътрешно пространство, което трябва да се вземе предвид при планирането. Ако площта на банята е малка, за да се спести място, е по -добре да се използва пяна за изолация на стените.. Върху него поставете пароизолацията, решетката и хастара. Тази опция се оказва по -тънка и екологична, химически неутрална и не отделя вредни вещества при високи температури..
Пяно стъкло има един недостатък – това е висока цена. На пароизолацията на парната баня и пералнята трябва да се обърне необходимото внимание.. Под дървената обвивка трябва да се постави фолиева минерална вата. Таванът също трябва да бъде изолиран.. За да изолирате съблекалнята, можете да използвате занаятчийска хартия вместо фолио, което ще намали разходите за процеса.
За да подобрите топлоизолацията, поставете прозорците възможно най -ниско и направете високи прагове в парната баня. Важно е да направите прозорците малки. Колкото по -голяма е площта на остъкляването, толкова по -големи са топлинните загуби. Площта на прозореца в банята трябва да бъде не повече от 5% от площта на пода. Рамките трябва да бъдат плътно прилепнали към обвързванията, пропуските трябва да бъдат внимателно уплътнени.

Топлоизолацията на тухлена баня може да се извърши навън, за тези цели е подходяща пяна.
Красиви примери за готови сгради
Съвременната баня е не само функционална стая, но и място за комфортна почивка с членове на семейството или приятели в страната. Представяме на вашето внимание примери за готови сгради.
Просторна сауна с уютна тераса. Белият цвят върви добре с дървени парапети и стълбове за тераси.

Правоъгълна баня от лека тухла с оригинален ъглов прозорец изглежда стилно и привлекателно.

Компактната вана от червена тухла е най -добрият избор.

Оригиналното външно покритие на тухлената баня придава необичаен външен вид..

Стилна сауна с малка тераса от тъмно дърво ще се хареса на мнозина.

За преглед на проекта на тухлена баня със стая за релакс вижте следното видео.
Тухлена баня: плюсове и минуси
Банята е незаменимо средство за релаксация след тежък ден, чудесно място за среща с приятели. Удобно е да използвате услугите на строителна компания, но ще трябва да платите голяма сума.
Много летни жители предпочитат да строят бани със собствените си ръце..
Предимства и недостатъци
Традиционно руските бани са построени от дърво. В днешно време все по-често за такива цели се използват огнеупорни тухли, които са по-безопасни, но не по-малко екологични. Този строителен материал е лесен за използване и ви позволява да реализирате проект за баня с всякаква сложност. Преди да започнете изграждането на тухлена баня, е необходимо да се запознаете с предимствата и недостатъците на самия материал и структурата му.
Огнеустойчивата тухла е по-скъпа от дървесината, но има и много предимства, а именно:
Недостатъците на тухлените бани са следните:
Видове конструкции
Когато изграждате тухлена баня, можете да избирате различни форми и дизайн. Качеството на банята зависи до голяма степен от правилното вътрешно оформление. Готовите проекти ще ви помогнат да не направите грешка. Можете да издигнете сграда точно според представените чертежи или да използвате проекта като идея и да го промените според личните предпочитания.
Струва си да разгледате няколко от най -популярните опции, кратки инструкции как да ги създадете.
Едноетажна сауна 6х4 м с тераса
Този проект предполага наличието на такива три помещения като:
Оформлението на банята може да бъде променено чрез смяна на вратите. трябва да бъде отбелязано че влизането директно в салона не е добър вариант. Факт е, че когато вратите се отворят, студът ще влезе вътре. Тераса или прикрепен вестибюл ще помогнат за отстраняване на недостатъка..
Проектите за баня с тераси са много популярни. Терасата може да бъде оборудвана по ваша преценка, можете да инсталирате удобни мебели за среща с приятели, да поставите билярдна зала.
Ъглови вани
Основната характеристика на баните от ъглов тип е тяхната не съвсем стандартна форма, която изглежда красива и стилна. Този вариант на строителство се характеризира с разположението на парната баня перпендикулярно на останалата част от сградата..
Основните предимства на ъгловите вани са следните:
Какъв материал да изберете?
На съвременния пазар могат да се намерят няколко вида тухли:
Кухите тухли са леки и имат добри топлоизолационни свойства. Не е подходящ за полагане на цокли, комини.
Направи си сам
Чертежи
Преди да продължите с изграждането на баня, е необходимо правилно да съставите чертеж (проект) на бъдещото строителство. Трябва да се вземат предвид всички структурни характеристики: външен вид, брой и размер на помещенията, електрическа схема на комуникациите, разпределение на теглото на конструкциите, изчисляване на количеството на необходимите материали. Най-простите проекти на бани с малки размери се състоят от една стая, която съчетава парна баня, пералня и съблекалня.
Вярно е, че тази опция не е много удобна, затова в повечето чертежи сградите се състоят от помещения като:
За разработване на чертеж на сграда можете да се свържете с проектантската организация. Специалистите по проектиране компетентно ще създадат проект, като вземат предвид желанията на клиента, изискванията на законодателството в областта на строителството и правилата за пожарна безопасност.
За да спестите пари, можете да използвате готовите проекти на тухлени бани, предоставени в тази статия..
Фондация
Ако имате завършен проект за бъдещата баня, можете да започнете изграждането на основата. Като се има предвид, че тухлените конструкции са доста тежки, основата трябва да е здрава, за да издържи тежестта на конструкцията. Най -добрият избор са лентови основи.
Изграждането на основата се състои от следните етапи:
Наложително е да направите дупки за вентилация в основата с диаметър 8-12 см и да изградите отделна основа за печката, ако планирате да използвате нагревател.
Като се има предвид, че бетонът е в състояние да абсорбира добре влагата, се препоръчва добре да се третира надземната част със специални хидроизолационни смеси преди полагане на стените. На етапа на изграждане на основата е необходимо да се предвиди окабеляване на водоснабдителни и дренажни системи. Електричество и газ могат да бъдат инсталирани по -късно.
Стени
След като завършите хидроизолацията на основата, можете да започнете изграждането на стените. Най-често се използва едноредова система за обличане, тъй като е лесна за използване, може да се издигне самостоятелно без проблеми. Тази система се състои от редуващи се лъжици и свързани редове тухли. Редът на лъжицата е ред тухли, които са положени със страната им по стената, а редът на дупето е положен с краищата им към външната страна на стената..
Има три вида тухлена зидария, като например:
По -често се използва лека зидария, тъй като ви позволява да намалите натиска върху основата и да спестите от строителни материали. Независимо от вида на зидарията, стените трябва да се издигат от ъглите. Първоначално е необходимо да се поставят шест реда тухли върху хоросан в ъглите.. Трябва да нарисувате шнур по всеки ред. Те са увити около пирони, които се вкарват в шевовете между тухлите на разстояние 3-4 мм от вертикалата на реда. Така се определя равномерността на зидарията. За същата цел използвайте сградно ниво и отвес..
Мазето на банята се препоръчва да бъде поставено от масивно, а самите стени да бъдат направени от кухи тухли. По време на полагането трябва да направите всичко бързо, така че циментовият разтвор да не се втвърди предварително. Когато извършвате строителни работи през лятото, тухлата трябва да бъде предварително навлажнена с вода. Дебелината на циментовия слой трябва да бъде 2–3 cm.
Има няколко варианта на масивна зидария, сред които:
При полагане на залепени редове е необходимо да се нанася хоросан с отстъп 10 мм при запълване на фугите и с 30–35 мм при полагане на шайба. Ако има тухли с различни стружки, дефекти, те могат да се използват за полагане на редове с лъжици, с изключение на ъглите и опорните зони.
Наложително е да се изгради екран за пещта от огнеупорни тухли. Той служи като своеобразен калъф за фурна и насърчава плавното нагряване.
Покрив и под
Покривната конструкция може да бъде направена в един, два или повече наклона. Трябва да се има предвид, че колкото по -сложна е покривната конструкция, толкова по -скъпа ще бъде инсталацията. Постепенната последователност на работа също зависи от избора на дизайн. В горните редове на стените се пробиват отвори за закрепващите щифтове. Върху тях се монтират греди Mauerlat и таван..
Ако краищата на гредите са в контакт със стените, те се обвиват с покривен материал. След това настилката се изгражда от необработени дъски. На същия етап се определя отвор за комина..
За да се увеличи експлоатационният живот на таванските греди, те трябва да бъдат покрити с хидроизолационен слой.. Можете да използвате абсент от плат, който е удобен за закрепване със строителни скоби. Отгоре се изсипва слой, състоящ се от смес от глина и дървени стърготини. След изсушаване се поръсва с пясък.
В точката на контакт на комина с тавана се извършва облицовка с метални листове.
След това рафтовата система се сглобява. Рафтовите крака са прикрепени към Mauerlat с помощта на метални ъгли и самонарезни винтове.
Ако покривът има два или повече наклона, тогава между склоновете се монтират допълнителни опори. Върху гредите е монтирана щайга с малки ламели, покрита с хидроизолация и велпапе, метални плочки или други съвременни аналози. Ако е необходимо, направете контрарешетка.
За монтажа на пода се използват греди със сечение 15×10, 25×10 mm, които се монтират към дъното на стените с помощта на метални ъгли. Баровете са заковани към изоставането от двете страни – основата за основата. Върху тях се закрепва дъска, след това слой хидроизолация, изолация и втори слой хидроизолация. След това готовият под се монтира..
Затопляне и хидроизолация
Хидроизолацията и изолацията са необходими за подобряване на функционалните качества на тухлена баня.
Хидроизолацията може да се извърши по два начина, като например:
Оставете празнина между PE пяната и стената.
Топлоизолацията е най -важният аспект при създаването на баня. Функционалността на стаята зависи от това. Ако банята не се затопли добре, цялата работа ще отиде в канализацията..
В помещения с висока влажност е важно да се постигне отлична вентилация на изолационните материали. По този начин банята ще се затопли по -бързо и количеството на кондензата ще намалее, тъй като ще се изпари по -бързо..
Като изолационен материал можете да използвате термоплаки, минерална вата, полистирол, фибростъкло или пеноплекс. Топлоизолационните работи трябва да започнат от началния етап – изграждането на основата и подреждането на пода.
Популярният и най -достъпен начин за изолация на банята под земята е поставянето на запечатани бутилки на редове под заварена мрежа. Редовете на бутилките се покриват с пясък и се разливат с вода, след което се пълнят с цимент.
За да не студът не дърпа краката във ваната, се препоръчва да се напълни земята под пода със слой от експандирана глина и шлака.
За изолация на стени се използва следната приблизителна последователност от слоеве:
Такъв дизайн на изолация изяжда много вътрешно пространство, което трябва да се вземе предвид при планирането. Ако площта на банята е малка, за да се спести място, е по -добре да се използва пяна за изолация на стените.. Върху него поставете пароизолацията, решетката и хастара. Тази опция се оказва по -тънка и екологична, химически неутрална и не отделя вредни вещества при високи температури..
Пяно стъкло има един недостатък – това е висока цена. На пароизолацията на парната баня и пералнята трябва да се обърне необходимото внимание.. Под дървената обвивка трябва да се постави фолиева минерална вата. Таванът също трябва да бъде изолиран.. За да изолирате съблекалнята, можете да използвате занаятчийска хартия вместо фолио, което ще намали разходите за процеса.
За да подобрите топлоизолацията, поставете прозорците възможно най -ниско и направете високи прагове в парната баня. Важно е да направите прозорците малки. Колкото по -голяма е площта на остъкляването, толкова по -големи са топлинните загуби. Площта на прозореца в банята трябва да бъде не повече от 5% от площта на пода. Рамките трябва да бъдат плътно прилепнали към обвързванията, пропуските трябва да бъдат внимателно уплътнени.
Топлоизолацията на тухлена баня може да се извърши навън, за тези цели е подходяща пяна.
Красиви примери за готови сгради
Съвременната баня е не само функционална стая, но и място за комфортна почивка с членове на семейството или приятели в страната. Представяме на вашето внимание примери за готови сгради.
Просторна сауна с уютна тераса. Белият цвят върви добре с дървени парапети и стълбове за тераси.
Правоъгълна баня от лека тухла с оригинален ъглов прозорец изглежда стилно и привлекателно.
Компактната вана от червена тухла е най -добрият избор.
Оригиналното външно покритие на тухлената баня придава необичаен външен вид..
Стилна сауна с малка тераса от тъмно дърво ще се хареса на мнозина.
За преглед на проекта на тухлена баня със стая за релакс вижте следното видео.