
Задължителна сграда на мястото на вашата селска къща е баня, чийто размер зависи от площта на самия обект. В повечето случаи е възможно да се изгради малка стая за водни процедури. Но ако имате късмет да закупите просторен парцел, препоръчваме ви да разгледате проектите на бани 6 на 9 метра – това са оптималните размери за удобно забавление.
Плюсове и минуси на баня с размери 6 на 9
Такива проекти имат своите плюсове и минуси.. Помислете първо за позитивите.
-
Несъмнено предимството е просторна зона, където можете спокойно да реализирате фантазиите си за планиране. Например, в тази сграда можете да проектирате не само пералня, парна баня, но и стая за отдих, плувен басейн, баня, както и място за чай..
-
Такава голяма площ ще бъде плюс за хората, които ценят тишината и спокойствието. Към основните функционални зони могат да се добавят солена стая, стая за релакс и масаж.
-
Ако плановете включват изграждане на двуетажна къща за процедури, тогава вторият етаж може да се даде за лятна веранда или къща за гости с добра функционалност.

Сега нека преминем към минусите.
-
Сред недостатъците на проекта отбелязваме високата цена. Подреждането на дървена къща 6×9 m ще струва повече от проект 4×4 m.
-
С всички изчисления на малка площ, количеството полезно пространство на сайта се намалява. Всъщност в допълнение към самата конструкция е необходимо да се осигури място за комуникации, надвеси на покрива, мазе отлив.
-
Проблемно е да се затопли такава голяма площ просто с котел за баня: ще е необходимо да се инсталира пълноценна система за топлоснабдяване.
Преглед на типичните оформления
Всяко строителство започва с разработването на проект. Необходимо е да се изготви подробен план и чертеж, указващ броя на стаите, вратите и прозорците. Препоръчва се също така незабавно да се посочат размерите на помещенията, вратите, прозорците и мебелите за баня..
Диаграма за скициране на окабеляване и други комуникации е задължителна..

След това решаваме материала, от който се планира изграждането на баня с размери 6×9 m. Лидерите в строителството са проекти от дървени трупи. При наличието на много други материали (рамка, дървен бетон), баня комплекс от дърво е класика на жанра: има идеална атмосфера, естетика. Добър вариант е дървена къща, направена от 6 на 9. Дървото се свива леко и запазва топлината добре.
Дори едноетажна сауна с такъв размер ще изглежда доста просторна.. Освен основните стаи за лечение, всичко може да се планира. Съветваме ви да се съсредоточите върху проекта с вестибюл: тук ще бъде удобно да съхранявате обувки и връхни дрехи. В допълнение, преддверието ще предпазва основното помещение от студа..

Има проекти, където има място за баня. Това е напълно оправдано: няма да заема много място, но някои трудности се решават с тоалетната, а останалото става удобно, особено през зимата.

Струва си да се обърне внимание на баните с тераса.
Може да се направи малък, като се планира място за маса и столове..

Ако се вземе решение за изграждане на двуетажна сграда, тогава вторият етаж може да бъде предоставен на пълноценна къща за гости със спални, балкон.

Предлагаме няколко препоръки за разработването на проект за баня с размери 6×9 m:
-
планирайте строителната зона в район с ниска водна поява;
-
поставете комплекса за баня далеч от кладенец, кладенец с питейна вода, компостна яма, тоалетна;
-
удобно е да се планира сграда до езерце – лесно е да се организира водоснабдяване.
Индивидуални планове
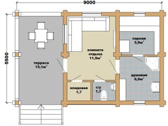
Един от търсените проекти в Русия е баня с тераса. В края на краищата през лятото след баня не е интересно да седнете на закрито, но на чист въздух е приятно. Всеки планира интериора по свой вкус. Удобно е да седнете тук с голяма компания. Можете да планирате просторно измиване, душ, да построите малка гореща вана.

Проектът с таванско помещение предполага местоположението на няколко хола, тераса, балкон.
Ще бъде полезно да се оборудва спа зоната.

За лятна вила най-добрият вариант би бил едноетажна къща с вана. Половината за баня е предназначена за няколко души или вашето семейство. Тук те подреждат пералня, баня, парна баня. Удобен за проектиране на вестибюл, стая за чай, малък басейн.

Добра компактност, собствениците получават капацитета от двуетажната баня. Тук има всичко за почивка и релакс. Например, първият етаж е зает от баня, стая за отдих, тераса, вестибюл, пералня и парна баня. Вторият етаж е най -добре използван за жилищни помещения. Ако печката е монтирана към обща стена между парната баня и стаята за отдих, тогава топлината ще бъде навсякъде.

Удобно е да поставите антре и две спални на втория етаж.. Най -приемливият вариант на повдигащата конструкция е стълбище за полет. Удобно е да планирате входа към спалните на втория етаж от стаята за отдих. От спалните има изход към залата, а след това към балкона. По -добре е стаите да се поставят успоредно, отколкото последователно..
Така помещенията ще бъдат изолирани, случаят с помещения за преминаване е изключен. За гостите на двете стаи е по -удобно да излезете от залата на балкона.

На етапа на планиране винаги има много мисли и съмнения.. За да може всичко да си дойде на мястото, препоръчваме да използвате съветите на професионални строители.
-
Тамбурът, коридорът или съблекалнята са планирани с такова изчисление, че за един човек имате нужда от 1,5-2 м2 площ. По -добре е да изолирате стаята, да я оборудвате с прозорец. Не забравяйте да оставите място за закачалка или гардероб, както и за дърва за огрев.
- Случва се баня да е необходима само през топлия сезон.. Това обикновено се случва, ако тя е в лятна вила, която не може да бъде достигната през зимата. В този случай не се колебайте да смените съблекалнята на терасата..
- Ако има душ кабина, тя трябва да бъде отделена от останалите помещения.. Това разделение се дължи на разликата в температурата във всички помещения. Освен това вземането на душ е интимна процедура..
- Голямата площ на комплекса за баня изисква мощна вентилационна система, правилни изчисления за района, компетентна отоплителна система, комбинация от естествено с изкуствено осветление.
- Често пералнята се комбинира с парна баня.. Но трябва да знаете, че нормата на площ на човек е 1-2 м2. Най -добрата форма за водни процедури е квадрат. Обикновено многостепенните рафтове се монтират към стена без прозорци. А самата парна баня трябва да е в дълбините на банята.

Проектът за баня 6 на 9 е сериозна здрава конструкция. Вътрешната зона може да бъде проектирана по ваш вкус, включително основните функционални зони, добавяйки по ваша преценка стаи за отдих и комфорт. Цената на строителството обаче нараства значително в сравнение с проекти с по -малка площ. Банята с площ 6х9 м е идеална за голямо семейство. Без съмнение, комплекс за баня с този размер ще ви помогне да решите най -смелите си мечти и идеи..

Проекти за баня с размери 6 на 9 метра
Задължителна сграда на мястото на вашата селска къща е баня, чийто размер зависи от площта на самия обект. В повечето случаи е възможно да се изгради малка стая за водни процедури. Но ако имате късмет да закупите просторен парцел, препоръчваме ви да разгледате проектите на бани 6 на 9 метра – това са оптималните размери за удобно забавление.
Плюсове и минуси на баня с размери 6 на 9
Такива проекти имат своите плюсове и минуси.. Помислете първо за позитивите.
Несъмнено предимството е просторна зона, където можете спокойно да реализирате фантазиите си за планиране. Например, в тази сграда можете да проектирате не само пералня, парна баня, но и стая за отдих, плувен басейн, баня, както и място за чай..
Такава голяма площ ще бъде плюс за хората, които ценят тишината и спокойствието. Към основните функционални зони могат да се добавят солена стая, стая за релакс и масаж.
Ако плановете включват изграждане на двуетажна къща за процедури, тогава вторият етаж може да се даде за лятна веранда или къща за гости с добра функционалност.
Сега нека преминем към минусите.
Сред недостатъците на проекта отбелязваме високата цена. Подреждането на дървена къща 6×9 m ще струва повече от проект 4×4 m.
С всички изчисления на малка площ, количеството полезно пространство на сайта се намалява. Всъщност в допълнение към самата конструкция е необходимо да се осигури място за комуникации, надвеси на покрива, мазе отлив.
Проблемно е да се затопли такава голяма площ просто с котел за баня: ще е необходимо да се инсталира пълноценна система за топлоснабдяване.
Преглед на типичните оформления
Всяко строителство започва с разработването на проект. Необходимо е да се изготви подробен план и чертеж, указващ броя на стаите, вратите и прозорците. Препоръчва се също така незабавно да се посочат размерите на помещенията, вратите, прозорците и мебелите за баня..
Диаграма за скициране на окабеляване и други комуникации е задължителна..
След това решаваме материала, от който се планира изграждането на баня с размери 6×9 m. Лидерите в строителството са проекти от дървени трупи. При наличието на много други материали (рамка, дървен бетон), баня комплекс от дърво е класика на жанра: има идеална атмосфера, естетика. Добър вариант е дървена къща, направена от 6 на 9. Дървото се свива леко и запазва топлината добре.
Дори едноетажна сауна с такъв размер ще изглежда доста просторна.. Освен основните стаи за лечение, всичко може да се планира. Съветваме ви да се съсредоточите върху проекта с вестибюл: тук ще бъде удобно да съхранявате обувки и връхни дрехи. В допълнение, преддверието ще предпазва основното помещение от студа..
Има проекти, където има място за баня. Това е напълно оправдано: няма да заема много място, но някои трудности се решават с тоалетната, а останалото става удобно, особено през зимата.
Струва си да се обърне внимание на баните с тераса.
Може да се направи малък, като се планира място за маса и столове..
Ако се вземе решение за изграждане на двуетажна сграда, тогава вторият етаж може да бъде предоставен на пълноценна къща за гости със спални, балкон.
Предлагаме няколко препоръки за разработването на проект за баня с размери 6×9 m:
планирайте строителната зона в район с ниска водна поява;
поставете комплекса за баня далеч от кладенец, кладенец с питейна вода, компостна яма, тоалетна;
удобно е да се планира сграда до езерце – лесно е да се организира водоснабдяване.
Индивидуални планове
Един от търсените проекти в Русия е баня с тераса. В края на краищата през лятото след баня не е интересно да седнете на закрито, но на чист въздух е приятно. Всеки планира интериора по свой вкус. Удобно е да седнете тук с голяма компания. Можете да планирате просторно измиване, душ, да построите малка гореща вана.
Проектът с таванско помещение предполага местоположението на няколко хола, тераса, балкон.
Ще бъде полезно да се оборудва спа зоната.
За лятна вила най-добрият вариант би бил едноетажна къща с вана. Половината за баня е предназначена за няколко души или вашето семейство. Тук те подреждат пералня, баня, парна баня. Удобен за проектиране на вестибюл, стая за чай, малък басейн.
Добра компактност, собствениците получават капацитета от двуетажната баня. Тук има всичко за почивка и релакс. Например, първият етаж е зает от баня, стая за отдих, тераса, вестибюл, пералня и парна баня. Вторият етаж е най -добре използван за жилищни помещения. Ако печката е монтирана към обща стена между парната баня и стаята за отдих, тогава топлината ще бъде навсякъде.
Удобно е да поставите антре и две спални на втория етаж.. Най -приемливият вариант на повдигащата конструкция е стълбище за полет. Удобно е да планирате входа към спалните на втория етаж от стаята за отдих. От спалните има изход към залата, а след това към балкона. По -добре е стаите да се поставят успоредно, отколкото последователно..
Така помещенията ще бъдат изолирани, случаят с помещения за преминаване е изключен. За гостите на двете стаи е по -удобно да излезете от залата на балкона.
На етапа на планиране винаги има много мисли и съмнения.. За да може всичко да си дойде на мястото, препоръчваме да използвате съветите на професионални строители.
Тамбурът, коридорът или съблекалнята са планирани с такова изчисление, че за един човек имате нужда от 1,5-2 м2 площ. По -добре е да изолирате стаята, да я оборудвате с прозорец. Не забравяйте да оставите място за закачалка или гардероб, както и за дърва за огрев.
Проектът за баня 6 на 9 е сериозна здрава конструкция. Вътрешната зона може да бъде проектирана по ваш вкус, включително основните функционални зони, добавяйки по ваша преценка стаи за отдих и комфорт. Цената на строителството обаче нараства значително в сравнение с проекти с по -малка площ. Банята с площ 6х9 м е идеална за голямо семейство. Без съмнение, комплекс за баня с този размер ще ви помогне да решите най -смелите си мечти и идеи..