
Проекти на двуетажни къщи 150 кв. m са много привлекателни за разработчиците. Но е важно правилно да обмислите оформлението на къща с гараж и сауна. Струва си да се разгледат характеристиките на тухлени къщи и къщи, построени от други материали с височина 2 етажа.
Главна информация
Модерна двуетажна къща от 150 кв. m изглежда впечатляващо и впечатляващо. Изграждането му е много полезно за собствениците на парцели с малки размери.. Тя ви позволява да подготвите цялото необходимо жилищно пространство, без да излизате от прословутите червени линии. Любопитно е, че любителите на астрономията също ще се зарадват на такова жилище – горе могат да се отдадат на хобито си, без да пречат на никого.. Но дори и да няма такова хоби, двуетажното жилище с увеличен брой стаи със сигурност ще бъде полезно за всяко голямо семейство..

На втория етаж можете лесно да организирате стая за игра или зона за отдих. Възможността за зониране на пространството и решаване на проблема с вечно заета баня също е привлекателна. Но трябва да разберете, че сграда с височина два етажа ще струва повече и ще изисква оборудване на стълбище.

Окончателното решение трябва да се вземе независимо. И все пак в много случаи достойнствата на двуетажни сгради надвишават техните слабости..
Опции за оформление
С гараж
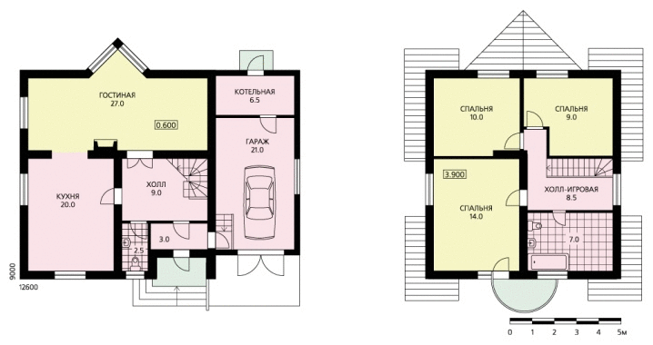
Когато декорирате селска двуетажна вила, спалните обикновено се намират на горния етаж. Но е полезно да се оборудва първото ниво с място за кола – около 20-22 кв. това е достатъчно със сигурност. Размерът на котелното помещение ще бъде 5,6 м2 и това е напълно достатъчно за ефективно отопление на жилището. 18-метровата тераса улеснява наслаждаването на околния пейзаж. Гардеробът от малко над 4 м2 ще побере всички необходими връхни дрехи и е хубаво да се съберете в хола с цялото семейство или приятелска компания..

Алтернативно решение включва подреждането на кухня-трапезария с размер 11,6 кв. м. В 34-метровата всекидневна можете лесно да организирате партита. Приятно е да се събирате на верандата през топлия сезон. Но ако гаражът, прикрепен отвън, се премести на мястото си, той също ще работи добре. Горивното помещение е малко по -малко от предишния случай, но се справя със задачата си..
Други
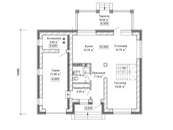
Добрият план за двуетажна къща от тухли или други материали включва парна баня и баня на приземния етаж. Те бяха логично разположени един до друг. Друга баня беше поставена на отсрещния ъгъл, за да може да се използва за готвене и за ежедневна хигиена. Имаше дори място за солиден басейн. На 2 -рия етаж има място за спални и частично за втората светлина.

Тухлена къща с баня може да изглежда така. Душът и парната заедно превишават 10 кв. м, което е доста удобно. Дори голямо семейство може да се събере в хол от около 22 м2 без проблеми. След процедурите за къпане времето обикновено се прекарва в стаята за отдих на горния етаж. Балконът и терасата помагат да се любувате на околностите.
Опции за дизайн
Стилът на декорация обикновено се избира според вашия вкус.. Но все пак е полезно да се ръководите от общи принципи, когато оформяте външния вид на помещенията.. Същият конструктивистки подход не трябва да се ограничава до радикални експерименти с форми и линии. Това задължително включва висококачествени и екологично чисти материали. Насърчава се използването на панорамни прозорци и плътни остъклени стени.

Почти всички частни къщи в Русия са построени в дух на стил синтез, което предполага липсата на някакъв специфичен стил изобщо. Фасадата на сградата е завършена в сложна, причудлива цветова схема. Финият артистичен усет е много важен. За облицовка се използва мек покрив или метална керемида.

Внимание: само опитен архитект или дизайнер може компетентно да въплъти истински синтез. Ако се опитате да го възпроизведете сами, ще се измъкнете от нищото и ще трябва да забравите за високата продажна цена..
Любителите на простотата и елегантния дизайн трябва да обърнат внимание на стила плевня. Двускатният покрив на такава къща е лишен от надвеси. За основа често се вземат естествени трупи или залепени греди. Терасите са направени от дърво. Вътрешната декорация е толкова строга и лаконична, колкото и външната.
Красиви примери за проекти
- Ето как може да изглежда двуетажна къща, построена от бар. Естествената, дискретна красота се съчетава хармонично с класическата концепция за дизайн.
- Комбинираната (сглобена от блокове от пяна и дърво) изглежда не по -лошо. Покривът му оставя приятно впечатление и дори тръба на заден план..
- Разбира се, здравите тухлени сгради също изглеждат елегантни. Те не са непременно боядисани в чист тухлен цвят, както е показано на снимката..

Проекти на двуетажни къщи с площ от 150 кв. м
Проекти на двуетажни къщи 150 кв. m са много привлекателни за разработчиците. Но е важно правилно да обмислите оформлението на къща с гараж и сауна. Струва си да се разгледат характеристиките на тухлени къщи и къщи, построени от други материали с височина 2 етажа.
Главна информация
Модерна двуетажна къща от 150 кв. m изглежда впечатляващо и впечатляващо. Изграждането му е много полезно за собствениците на парцели с малки размери.. Тя ви позволява да подготвите цялото необходимо жилищно пространство, без да излизате от прословутите червени линии. Любопитно е, че любителите на астрономията също ще се зарадват на такова жилище – горе могат да се отдадат на хобито си, без да пречат на никого.. Но дори и да няма такова хоби, двуетажното жилище с увеличен брой стаи със сигурност ще бъде полезно за всяко голямо семейство..
На втория етаж можете лесно да организирате стая за игра или зона за отдих. Възможността за зониране на пространството и решаване на проблема с вечно заета баня също е привлекателна. Но трябва да разберете, че сграда с височина два етажа ще струва повече и ще изисква оборудване на стълбище.
Окончателното решение трябва да се вземе независимо. И все пак в много случаи достойнствата на двуетажни сгради надвишават техните слабости..
Опции за оформление
С гараж
Когато декорирате селска двуетажна вила, спалните обикновено се намират на горния етаж. Но е полезно да се оборудва първото ниво с място за кола – около 20-22 кв. това е достатъчно със сигурност. Размерът на котелното помещение ще бъде 5,6 м2 и това е напълно достатъчно за ефективно отопление на жилището. 18-метровата тераса улеснява наслаждаването на околния пейзаж. Гардеробът от малко над 4 м2 ще побере всички необходими връхни дрехи и е хубаво да се съберете в хола с цялото семейство или приятелска компания..
Алтернативно решение включва подреждането на кухня-трапезария с размер 11,6 кв. м. В 34-метровата всекидневна можете лесно да организирате партита. Приятно е да се събирате на верандата през топлия сезон. Но ако гаражът, прикрепен отвън, се премести на мястото си, той също ще работи добре. Горивното помещение е малко по -малко от предишния случай, но се справя със задачата си..
Други
Добрият план за двуетажна къща от тухли или други материали включва парна баня и баня на приземния етаж. Те бяха логично разположени един до друг. Друга баня беше поставена на отсрещния ъгъл, за да може да се използва за готвене и за ежедневна хигиена. Имаше дори място за солиден басейн. На 2 -рия етаж има място за спални и частично за втората светлина.
Тухлена къща с баня може да изглежда така. Душът и парната заедно превишават 10 кв. м, което е доста удобно. Дори голямо семейство може да се събере в хол от около 22 м2 без проблеми. След процедурите за къпане времето обикновено се прекарва в стаята за отдих на горния етаж. Балконът и терасата помагат да се любувате на околностите.
Опции за дизайн
Стилът на декорация обикновено се избира според вашия вкус.. Но все пак е полезно да се ръководите от общи принципи, когато оформяте външния вид на помещенията.. Същият конструктивистки подход не трябва да се ограничава до радикални експерименти с форми и линии. Това задължително включва висококачествени и екологично чисти материали. Насърчава се използването на панорамни прозорци и плътни остъклени стени.
Почти всички частни къщи в Русия са построени в дух на стил синтез, което предполага липсата на някакъв специфичен стил изобщо. Фасадата на сградата е завършена в сложна, причудлива цветова схема. Финият артистичен усет е много важен. За облицовка се използва мек покрив или метална керемида.
Внимание: само опитен архитект или дизайнер може компетентно да въплъти истински синтез. Ако се опитате да го възпроизведете сами, ще се измъкнете от нищото и ще трябва да забравите за високата продажна цена..
Любителите на простотата и елегантния дизайн трябва да обърнат внимание на стила плевня. Двускатният покрив на такава къща е лишен от надвеси. За основа често се вземат естествени трупи или залепени греди. Терасите са направени от дърво. Вътрешната декорация е толкова строга и лаконична, колкото и външната.
Красиви примери за проекти