
Животът извън града във вашия дом има редица неоспорими предимства: въздух без прах, без шум. Важна роля играе подреждането на банята на мястото, защото това е допълнителен източник на комфорт.
Особености
Оптималните размери за такива конструкции обикновено са 6×6 метра. В такава зона лесно можете да поставите най -необходимите неща. Площта за баня 6×6 метра може да се нарече идеален формат за баня. Такива параметри позволяват да се подредят всички необходими помещения, да се доставят необходимите мебели, както и отоплително оборудване. Такива размери на стаята осигуряват добра почивка за 8-10 души едновременно.
Изграждането на обект започва с определяне на мястото, където ще бъде разположена конструкцията.

Банята включва следните помещения:
- парна баня;
- душ кабина;
- баня;
- съблекалня;
- тоалетна.

Най -често срещаният материал е дърво, дървен материал или трупи..
При изготвянето на проект трябва да се има предвид, че вътрешната стая винаги е по -малка от площта на сградата по външния контур. Най -често банята е в непосредствена близост до основната къща..
Избор на материал
По време на строителството се използват и следните материали:
- камък;
- тухла;
- черупка скала;
- шлакови блокове;
- пенобетон;
- газобетон.

Използват се трупи или греди с диаметър 25–35 см, които се нарязват „в чаша”. Вътрешните размери на помещенията ще бъдат около 30 квадратни метра, което е напълно достатъчно, за да се подредят всички необходими помещения и дори да се направи затворена веранда. Най -лесният и евтин начин да направите основа за баня е на винтови купчини. Върху тях се поставя рамката на обекта, изработена от дървен материал или трупи.. Здравината на пилотната основа по никакъв начин не е по -ниска от лентовата, нейните предимства са следните:
- икономическа целесъобразност;
- простота;
- издръжливост;
- не отнема много време за свиване.

Можете да построите баня, като направите рамка от дървена къща или кутия от каменни блокове. Интериорът трябва да бъде завършен само с дърво, което не е импрегнирано с грундове или лакове. В този случай дървото е идеалният материал и е почти невъзможно да се намери заместител за него.. Основните му предимства са следните:
- не отделя никакви вредни вещества;
- има идеална топлопроводимост;
- има необходимия коефициент на разширение.

В парните бани обикновено се използва дървена облицовка от липа, кедър или бреза. В днешно време дървото абаша е на мода, техническите характеристики на това дърво са наистина добри. Абаши расте в топли страни. Не се деформира под въздействието на високи температури. Облицовката, изработена от този материал, не прави възможно съхраняването на топлина в помещението. Дървото освобождава и различни хранителни вещества, които имат положителен ефект върху организма..
Липата е евтина на цената, тя е идеална за облицовка на стените на парната баня. Материалът не се деформира от високи температури и прекомерна влага.

Кедърът също е ценен материал и е много подходящ за облицовка на парна баня или стая за отдих. По време на работа дървото отделя смоли за дълъг период от време, които имат благоприятен ефект върху човешкото тяло. Миризмата на кедър е приятна, но има само една опасност: смолата може да се отдели обилно и температурата й да е под сто градуса по Целзий, което може да доведе до изгаряния по кожата.
Препоръчително е да запомните, че в парната баня въздухът може да се затопли до + 120-130 градуса по Целзий. Ето защо е забранено да се покриват стените с някаква „химия“ или грундове, защото това е опасно за здравето.

От нагревателите най -често се използва техническа вълна, която е надеждно положена с хидроизолация. Този материал е екологично чист, не се влияе от околната среда, върху него не се появява плесен или мухъл, не е включен в диетата на гризачите.
Аспенът е най -евтиният материал. По отношение на топлопроводимостта трепетликата отстъпва на кедъра или абаша. Ако стената е обшита с трепетлика, това не е най -лошият вариант. Подът е направен от плочки или дъски, експлоатационният живот на дъска е значително по -нисък. За дървени подови настилки често се използва дъска с език и жлеб..
Тънкости на дизайна
Когато съставяте план на проекта, трябва да запомните основните детайли.. Оформлението е разделено на няколко области, опциите могат да бъдат различни, но обикновено следните стаи са винаги на разположение:
- парна баня;
- душ кабина;
- баня.

Стаите са проектирани по индивидуален проект, всеки собственик знае по -добре колко хора ще почиват едновременно, как най -добре да планират стая за релакс и парна баня. За по -рационално оформление на дървената къща се използват някои традиционни техники. Печката е разположена близо до стената, която е в непосредствена близост до ъгловата стая за почивка. В този случай не трябва да забравяме за пожарната безопасност. Дупката в пещта обикновено се показва в съблекалнята.
Вестибюлът е много важен, защото ви позволява да пестите топлина през студения сезон, а също така се отнася и за свободната зона..

При разработването на схематичен чертеж на баня с размери 6×6 метра следва да се вземат предвид следните подробности:
- разрешено е да се прави от всяка част на обекта;
- канализационната тръба се намира до дренажната яма;
- парната баня е проектирана много повече от пералнята;
- басейнът често се прави в стаята за отдих.

Не е трудно да планирате площ от 6х6 метра за баня. В самата парна баня е оборудвана мивка; се прави печка на дърва или електрическа печка. Широки дървени рафтове, чиито размери са не по -малко от петдесет сантиметра, се избиват от бара. Тоалетната трябва да се намира до тоалетната. Съблекалнята традиционно е заделена за битовия блок, дърва за огрев и въглища, в нея се съхраняват аксесоари за баня и можете също да се преобличате в нея..

Салонът е мястото за вечеря и гледане на телевизия. Стените на това помещение са обшити с дървена дъска, а понякога се използват листове от неръждаема стомана с дебелина 2-3 мм. Такава баня перфектно ще поддържа оптималната температура, което ще спести кубически метра дърва за огрев или въглища..
Препоръчително е да обърнете специално внимание на вестибюла, в който можете да оборудвате съблекалнята. В същото време това техническо помещение е един вид топлоизолатор, който предпазва изхода на въздуха, загрят в парната баня..

Размерът на стаята е 6×6 метра, повече от достатъчно, за да побере всички важни елементи. Рационално е да затоплите стаята за отдих с помощта на печка, която е в непосредствена близост до тази стая. В съблекалнята обикновено поставят всичко необходимо за приятно забавление – маси, столове, кухненски шкафове, камина. Често има и кухня с хладилник, газова печка и микровълнова печка..
По време на разработването на проект е важно да се надгражда върху броя на хората, които обикновено ще бъдат в стаята. За формат 6х6 метра можете да разчитате на 8-10 души. Базовата цифра е взета по този начин: един човек може да заема полезно пространство от порядъка на 1,15 квадратни метра. Познавайки този коефициент, е лесно да се изчисли проектът и рационалното подреждане на полезни площи на различни помещения.

Често прозорец с двоен стъклопакет е инсталиран в стаята за отдих. Подобрява обмена на въздух.
Невъзможно е да не споменем стаята, чието значение е трудно да се надцени – това е перално помещение. Обикновено водата се нагрява с бойлер, който е в близък контакт с печката. Душ кабина също често се поставя в тоалетната..

Факторите, които влияят върху оформлението на банята са следните:
- размера на фурната и нейните функционални характеристики;
- пространството между печката и предметите в стаята;
- общият брой на туристите;
- количеството мебели и оборудване;
- размера на вратите и в каква посока се отварят;
- параметри на дървени рафтове.
Двуетажна
Банята може да бъде построена и на два етажа. Покривът му може да бъде от всякакъв вид. Често такива предмети се правят с покриви под формата на кула или бедро, които изглеждат доста оригинални на сайта. На втория етаж се правят стаи за нощувка, като там може да се постави и тераса..
Едноетажна
Наличието на веранда е важен момент в икономиката на сауната. Верандата може да бъде добро място за туристите да се събират през топли или дори студени сезони. Стените на терасата могат да бъдат изолирани, прозорците с двоен стъклопакет могат да бъдат монтирани в отворите на прозорците. Терасата на приземния етаж през лятото може ефективно да предпази от дъжд.
С таванско помещение
Вторият етаж може да бъде направен под формата на таван. Изграждането на такава конструкция със собствените си ръце не е трудно. Таванското помещение всъщност е таванско помещение, което е пригодено за полезни нужди..
Изграждането на таванско помещение е икономически изгодно, едновременно играе ролята на покрив и представлява стая.
Етапи на строителство
Етапите на строителство са разделени на следните етапи:
- изграждане на фундамент;
- монтаж на рамка;
- покривна конструкция;
- интериорна декорация.

В началото на строителството основното е да се вземе решение за вида на основата. На пръв поглед лентовата основа е здрава, но струва много пари; период от 3 до 6 месеца също е необходим за нейното свиване. Не всяка почва може да се използва за отливане на такава основа. В низините или почвите, където има прекомерна влага, не се препоръчва да се прави такава основа..
Много е изгодно да инсталирате пилотна основа. Това отнема минимум време и неговата сила по никакъв начин не отстъпва на лентата.

Може да се направи всяка рамка, но отвътре обвивката е от дърво. Важно е да се разбере, че при изчисляване на използваемата площ е необходимо да се вземе предвид колко място мебелите ще заемат. Височината на парната баня обикновено е около два метра, височината на другите помещения може да бъде до три метра. Такива размери ви позволяват да поставите цялото необходимо оборудване и мебели..
С размери 6х6 метра, има “място за маневри”, което ще направи възможно комфортното настаняване на всички гости. Често се правят допълнителни места за настаняване на допълнителен брой хора..

Тези параметри позволяват оптимално разпределение на топлите въздушни потоци в помещението. Стаята трябва да бъде най -малко два метра по ширина и дължина. Рафтовете са изработени с дължина около 2,3 метра и ширина най -малко половин метър.
Банята 6х6 метра надеждно предпазва от ниски температури и лошо време. На вътрешната основа неговата полезна площ е 25 квадратни метра, докато верандата е 8 квадратни метра, парната баня е 7 квадратни метра, пералнята е 6 квадратни метра, а съблекалнята е 4 квадратни метра. Тези размери са приблизителни и отразяват общата тенденция. И също така много производители произвеждат стандартни вани, които могат да бъдат сглобени на сайта. Цената на такива обекти започва от 450 хиляди рубли.
Примери за готови сгради
Бани от бар с таванско помещение. Пример за комбиниране на покрив с полезна зона, в която можете да почивате.

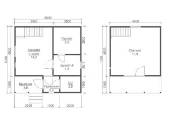
Планът на рамковата вана е 6 х 6 метра. Така се начертава план-диаграма, която дава визуално представяне на бъдещия обект..

Изграждането на баня от трупи. Този материал се използва успешно от много години..

За преглед на проекта за баня с размери 6 x 6 метра вижте следното видео.
Проект за баня 6х6: оформление, примери за готови сгради
Животът извън града във вашия дом има редица неоспорими предимства: въздух без прах, без шум. Важна роля играе подреждането на банята на мястото, защото това е допълнителен източник на комфорт.
Особености
Оптималните размери за такива конструкции обикновено са 6×6 метра. В такава зона лесно можете да поставите най -необходимите неща. Площта за баня 6×6 метра може да се нарече идеален формат за баня. Такива параметри позволяват да се подредят всички необходими помещения, да се доставят необходимите мебели, както и отоплително оборудване. Такива размери на стаята осигуряват добра почивка за 8-10 души едновременно.
Изграждането на обект започва с определяне на мястото, където ще бъде разположена конструкцията.
Банята включва следните помещения:
Най -често срещаният материал е дърво, дървен материал или трупи..
При изготвянето на проект трябва да се има предвид, че вътрешната стая винаги е по -малка от площта на сградата по външния контур. Най -често банята е в непосредствена близост до основната къща..
Избор на материал
По време на строителството се използват и следните материали:
Използват се трупи или греди с диаметър 25–35 см, които се нарязват „в чаша”. Вътрешните размери на помещенията ще бъдат около 30 квадратни метра, което е напълно достатъчно, за да се подредят всички необходими помещения и дори да се направи затворена веранда. Най -лесният и евтин начин да направите основа за баня е на винтови купчини. Върху тях се поставя рамката на обекта, изработена от дървен материал или трупи.. Здравината на пилотната основа по никакъв начин не е по -ниска от лентовата, нейните предимства са следните:
Можете да построите баня, като направите рамка от дървена къща или кутия от каменни блокове. Интериорът трябва да бъде завършен само с дърво, което не е импрегнирано с грундове или лакове. В този случай дървото е идеалният материал и е почти невъзможно да се намери заместител за него.. Основните му предимства са следните:
В парните бани обикновено се използва дървена облицовка от липа, кедър или бреза. В днешно време дървото абаша е на мода, техническите характеристики на това дърво са наистина добри. Абаши расте в топли страни. Не се деформира под въздействието на високи температури. Облицовката, изработена от този материал, не прави възможно съхраняването на топлина в помещението. Дървото освобождава и различни хранителни вещества, които имат положителен ефект върху организма..
Липата е евтина на цената, тя е идеална за облицовка на стените на парната баня. Материалът не се деформира от високи температури и прекомерна влага.
Кедърът също е ценен материал и е много подходящ за облицовка на парна баня или стая за отдих. По време на работа дървото отделя смоли за дълъг период от време, които имат благоприятен ефект върху човешкото тяло. Миризмата на кедър е приятна, но има само една опасност: смолата може да се отдели обилно и температурата й да е под сто градуса по Целзий, което може да доведе до изгаряния по кожата.
Препоръчително е да запомните, че в парната баня въздухът може да се затопли до + 120-130 градуса по Целзий. Ето защо е забранено да се покриват стените с някаква „химия“ или грундове, защото това е опасно за здравето.
От нагревателите най -често се използва техническа вълна, която е надеждно положена с хидроизолация. Този материал е екологично чист, не се влияе от околната среда, върху него не се появява плесен или мухъл, не е включен в диетата на гризачите.
Аспенът е най -евтиният материал. По отношение на топлопроводимостта трепетликата отстъпва на кедъра или абаша. Ако стената е обшита с трепетлика, това не е най -лошият вариант. Подът е направен от плочки или дъски, експлоатационният живот на дъска е значително по -нисък. За дървени подови настилки често се използва дъска с език и жлеб..
Тънкости на дизайна
Когато съставяте план на проекта, трябва да запомните основните детайли.. Оформлението е разделено на няколко области, опциите могат да бъдат различни, но обикновено следните стаи са винаги на разположение:
Стаите са проектирани по индивидуален проект, всеки собственик знае по -добре колко хора ще почиват едновременно, как най -добре да планират стая за релакс и парна баня. За по -рационално оформление на дървената къща се използват някои традиционни техники. Печката е разположена близо до стената, която е в непосредствена близост до ъгловата стая за почивка. В този случай не трябва да забравяме за пожарната безопасност. Дупката в пещта обикновено се показва в съблекалнята.
Вестибюлът е много важен, защото ви позволява да пестите топлина през студения сезон, а също така се отнася и за свободната зона..
При разработването на схематичен чертеж на баня с размери 6×6 метра следва да се вземат предвид следните подробности:
Не е трудно да планирате площ от 6х6 метра за баня. В самата парна баня е оборудвана мивка; се прави печка на дърва или електрическа печка. Широки дървени рафтове, чиито размери са не по -малко от петдесет сантиметра, се избиват от бара. Тоалетната трябва да се намира до тоалетната. Съблекалнята традиционно е заделена за битовия блок, дърва за огрев и въглища, в нея се съхраняват аксесоари за баня и можете също да се преобличате в нея..
Салонът е мястото за вечеря и гледане на телевизия. Стените на това помещение са обшити с дървена дъска, а понякога се използват листове от неръждаема стомана с дебелина 2-3 мм. Такава баня перфектно ще поддържа оптималната температура, което ще спести кубически метра дърва за огрев или въглища..
Препоръчително е да обърнете специално внимание на вестибюла, в който можете да оборудвате съблекалнята. В същото време това техническо помещение е един вид топлоизолатор, който предпазва изхода на въздуха, загрят в парната баня..
Размерът на стаята е 6×6 метра, повече от достатъчно, за да побере всички важни елементи. Рационално е да затоплите стаята за отдих с помощта на печка, която е в непосредствена близост до тази стая. В съблекалнята обикновено поставят всичко необходимо за приятно забавление – маси, столове, кухненски шкафове, камина. Често има и кухня с хладилник, газова печка и микровълнова печка..
По време на разработването на проект е важно да се надгражда върху броя на хората, които обикновено ще бъдат в стаята. За формат 6х6 метра можете да разчитате на 8-10 души. Базовата цифра е взета по този начин: един човек може да заема полезно пространство от порядъка на 1,15 квадратни метра. Познавайки този коефициент, е лесно да се изчисли проектът и рационалното подреждане на полезни площи на различни помещения.
Често прозорец с двоен стъклопакет е инсталиран в стаята за отдих. Подобрява обмена на въздух.
Невъзможно е да не споменем стаята, чието значение е трудно да се надцени – това е перално помещение. Обикновено водата се нагрява с бойлер, който е в близък контакт с печката. Душ кабина също често се поставя в тоалетната..
Факторите, които влияят върху оформлението на банята са следните:
Двуетажна
Банята може да бъде построена и на два етажа. Покривът му може да бъде от всякакъв вид. Често такива предмети се правят с покриви под формата на кула или бедро, които изглеждат доста оригинални на сайта. На втория етаж се правят стаи за нощувка, като там може да се постави и тераса..
Едноетажна
Наличието на веранда е важен момент в икономиката на сауната. Верандата може да бъде добро място за туристите да се събират през топли или дори студени сезони. Стените на терасата могат да бъдат изолирани, прозорците с двоен стъклопакет могат да бъдат монтирани в отворите на прозорците. Терасата на приземния етаж през лятото може ефективно да предпази от дъжд.
С таванско помещение
Вторият етаж може да бъде направен под формата на таван. Изграждането на такава конструкция със собствените си ръце не е трудно. Таванското помещение всъщност е таванско помещение, което е пригодено за полезни нужди..
Изграждането на таванско помещение е икономически изгодно, едновременно играе ролята на покрив и представлява стая.
Етапи на строителство
Етапите на строителство са разделени на следните етапи:
В началото на строителството основното е да се вземе решение за вида на основата. На пръв поглед лентовата основа е здрава, но струва много пари; период от 3 до 6 месеца също е необходим за нейното свиване. Не всяка почва може да се използва за отливане на такава основа. В низините или почвите, където има прекомерна влага, не се препоръчва да се прави такава основа..
Много е изгодно да инсталирате пилотна основа. Това отнема минимум време и неговата сила по никакъв начин не отстъпва на лентата.
Може да се направи всяка рамка, но отвътре обвивката е от дърво. Важно е да се разбере, че при изчисляване на използваемата площ е необходимо да се вземе предвид колко място мебелите ще заемат. Височината на парната баня обикновено е около два метра, височината на другите помещения може да бъде до три метра. Такива размери ви позволяват да поставите цялото необходимо оборудване и мебели..
С размери 6х6 метра, има “място за маневри”, което ще направи възможно комфортното настаняване на всички гости. Често се правят допълнителни места за настаняване на допълнителен брой хора..
Тези параметри позволяват оптимално разпределение на топлите въздушни потоци в помещението. Стаята трябва да бъде най -малко два метра по ширина и дължина. Рафтовете са изработени с дължина около 2,3 метра и ширина най -малко половин метър.
Банята 6х6 метра надеждно предпазва от ниски температури и лошо време. На вътрешната основа неговата полезна площ е 25 квадратни метра, докато верандата е 8 квадратни метра, парната баня е 7 квадратни метра, пералнята е 6 квадратни метра, а съблекалнята е 4 квадратни метра. Тези размери са приблизителни и отразяват общата тенденция. И също така много производители произвеждат стандартни вани, които могат да бъдат сглобени на сайта. Цената на такива обекти започва от 450 хиляди рубли.
Примери за готови сгради
Бани от бар с таванско помещение. Пример за комбиниране на покрив с полезна зона, в която можете да почивате.
Планът на рамковата вана е 6 х 6 метра. Така се начертава план-диаграма, която дава визуално представяне на бъдещия обект..
Изграждането на баня от трупи. Този материал се използва успешно от много години..
За преглед на проекта за баня с размери 6 x 6 метра вижте следното видео.