
Безбройните ползи, които идват от използването на сауни, ги правят популярни сред собствениците на жилища, които искат да се насладят на релаксиращ, лечебен и енергизиращ ефект върху имота си. Като се има предвид, че наличните на пазара модели могат да струват няколко хиляди долара, би било добра идея да ги изградите сами с по -малко инвестиции..
Всеки може самостоятелно да задоволи изискванията си, за да създаде уникална и красива сауна на два етажа. Ето защо е важно да знаете какви красиви проекти на двуетажна баня съществуват..
Особености
Има огромен асортимент от двуетажни бани, които можете да построите сами. Някои хора обичат идеята да създадат своя собствена сауна изцяло от нулата, използвайки чертежите на някой друг, и това е наистина уникално преживяване, което означава, че дизайнът на сауната може да бъде персонализиран..
В началото на строителството е необходимо внимателно да се обмислят проектите, след което да се направи правилният избор.
Двуетажна баня заема по-малко място на сайта, функционална е и съдържа повече стаи от едноетажна..

С такава вана не е нужно да харчите много пари за отопление на втория етаж – горещият въздух от парната се издига и загрява стаите. Невъзможно е да не се отбележи представящият външен вид на такава вана..
Можете да инсталирате малък басейн вътре, просто намерете място за него.
Многобройните проекти на двуетажна баня изискват пълноценна комуникационна система. Тоест, можете да живеете в него като в къща, ако за кратко, включително през зимата.
Проекти
Външна вана
Традиционно банята е била отделна пристройка извън къщата, поради което има много проекти, отделени от жилищното пространство на баните. Откритата сауна може да струва малко повече поради защитата от атмосферни влияния и евентуално водоснабдяване и захранване.
От друга страна, сауната на открито лесно ви позволява да инсталирате печка на дърва за традиционна сауна.
Вътрешна вана
Сауната може лесно да бъде разположена в мазето или на тавана. Ако обаче изградите закрита сауна до ваната, можете да използвате банята за баня като удобна съблекалня..
Двуетажните сауни могат да варират по размер от 3 x 4, 4×4, 6×4 m за един човек до 10 x 14 m или повече за 8 души. Повечето домашни сауни са с размери 6 x 9 m с таван 7 x 8 m.
За да изберете най-подходящия проект за двуетажна баня, е необходимо да определите допълнителните функции, които сауната ще изпълнява..

Освен това трябва да се вземе предвид следната информация:
- максималният брой хора, които ще бъдат в банята едновременно, и планираният размер на помещенията;
- тип почва и терен на обекта (от тези данни ще зависи вида на изградената основа);
- броя на сградите на обекта, както и тяхното местоположение;
- необходимостта от изграждане на балкон, тераса или веранда.

В зависимост от това колко хора ще посетят банята, трябва да определите нейния размер. За семейство от 4-5 души ще бъде достатъчна малка двуетажна сграда.
Ако не планирате да оборудвате пълноценен втори етаж с няколко стаи, можете да изберете баня с таван, чийто дизайн ще ви позволи да удвоите използваемата площ с минимални разходи..

За случайна почивка на гости на компанията или ако трябва да живеете в къщата повече от ден, трябва да планирате изграждането на по -просторна сауна с няколко стаи на втория етаж, където можете да оборудвате стая за отдих, спалня, фитнес зала с уреди за тренировки, билярдна маса или маса за тенис..
Местоположението на втория етаж на мини -СПА салона се счита за все по -популярно – за това ще е необходимо да декорирате интериора в стил, подходящ за добра почивка. В такъв ъгъл, който перфектно допълва парната баня и миенето, можете да оборудвате целия комплекс за отдих, да създадете масажна маса или вибриращи масажори за релаксация.
Материали (редактиране)
За вътрешната сауна можете да направите същия етаж като в банята. Ако банята ще бъде на открито, ще трябва да се постави подходяща бетонна основа. Стените в стоманена рамка могат да бъдат изградени от дървен материал. Стените на сауната обикновено са направени от смърч, трепетлика, елша, бук или кедър..
Блокове от пяна
Най-популярната е двуетажната баня от пяна. Той е малко по -нисък в екологичните изисквания спрямо дървените къщи от дървени трупи.
Той обаче има няколко предимства:
- лесен за инсталиране;
- е лек;
- не се страхува от огън;
- вътрешната декорация е по -лека, отколкото в тухлени или бетонни сгради.
Баня от трупи
Това е стар руски тип баня с много предимства: топлина, сухота и интересен външен вид. Дървени трупи – разбира се, кръгли, важно е да се направи истинска баня, красива, издръжлива, с плътно опаковани трупи, внимателно обработена с антисептични съединения срещу гъбички и гниене.
Баня с веранда на приземния етаж е подходяща от този материал..

При избора на трупи трябва да се обърне специално внимание на влакната в дървесината – те трябва да са прави, а не извити, в противен случай дървеният труп може да се напука по време на свиване или да се напука след свиване.
Греди
Има три вида дървен материал:
- Прост. Един от най -евтините, с не много добър външен вид и затова се използва в случаите, когато сградата се планира да бъде покрита отвътре и отвън с друга облицовка (например сайдинг). По правило такива бани се издигат, ако на мястото вече има къща и е необходимо да се “коригира” архитектурният вид на банята с основната сграда.
- Профилиран. Тя може да бъде проста и залепена – разликата от този тип е във формата на напречното сечение и особеностите на връзката: производителите оставят канали и шипове върху работните повърхности на профилираната греда (според принципа на плътни заключващи фуги ). Характеристика на този тип греда е, че няма нужда от допълнително уплътняване на фугата или уплътненията..
- Залепени. Цената му е малко по-висока от обичайното-наред с това, залепената версия има определени предимства: висока скорост на монтаж, „готов“ тип баня, която не изисква допълнително довършване, предварително импрегниране с антисептични съединения, огнеустойчивост и устойчивост до валежи.

Най -“удобният” в работата е залепеният дървен материал – той отговаря на съвременните изисквания за безопасност, има огнеустойчивост, влагоустойчивост, не се страхува от големи температурни колебания и насекоми -вредители.
Дизайн
Дизайнът на банята зависи от вида на сауната, а именно: традиционна или инфрачервена. Изборът зависи от толерантността към горещия въздух и терапевтичните ефекти, които собственикът търси.
Традиционната сауна използва нагревател на дърва, който загрява и предава топлина във въздуха, като по този начин повишава вътрешната температура. Традиционните единици ограничават терапевтичния си ефект, като отпускат тялото ви и го изпотяват, за да изхвърлят токсините.
Инфрачервената сауна се основава на инфрачервени нагреватели, направени от керамика или метал, с инфрачервени лампи, които генерират инфрачервено лъчение, подобно на топлината на слънцето. За разлика от традиционния въздух, който създава горещ въздух, той създава топлина, която се абсорбира директно от тялото, без да повишава твърде много температурата на въздуха. Тези единици включват широк спектър от предимства, като по -добро кръвообращение, по -силна имунна система, по -здраво сърце и по -красива кожа..

Докато традиционните сауни използват много топлина и пара, за да създадат подходяща среда вътре, съвременните сауни предпочитат инфрачервена отоплителна система..
Те са удобни за използване, тъй като работят при по -ниски температури, сухи сауни, така че нямат бактерии и проблеми с поддръжката, свързани с използването на вода и пара.

Двуетажните бани се различават значително по външен вид, струва си да се вземат предвид както архитектурните особености на сградата, така и характеристиките на пейзажа.
Това ще ви позволи да планирате бъдещия си проект по най -удобния начин:
- поставете банята на сайта, като вземете предвид нейния размер и характеристики;
- важно е да изберете дизайн, който да е в хармония не само с дома, но и с природата и околната среда;
- изберете най -атрактивния дизайн за цялото семейство;
- важно е да се намерят интересни архитектурни решения.
Бани с тераса
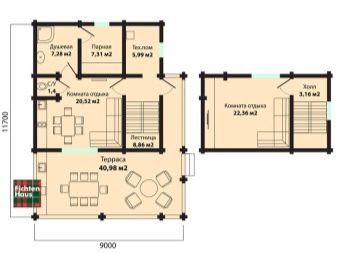
По правило това е разширение на стая 3х4 м, която се отваря на открито. Подобни проекти са предпочитани от големи семейства, за да се събират вечер, за да обсъждат събитията от изминалия ден с чаша чай или кафе. Освен това, тераси спестяват няколко допълнителни квадратни метра земя, които ще бъдат заети от отделна беседка.
Единственият недостатък на наклонената тераса в съседство с банята е невъзможността да се оборудва зона за барбекю. Трябва да има два входа на терасата (особено на терасите на първия етаж на сградата) – от улицата и през банята, където основата на колоната (или стълба) трябва да служи като основа за терасата. Има проекти на двуетажни бани с тераси, които имат плъзгащи се оградни стени. Акцентът на този дизайн е, че през лятото можете да премахнете едната страна на терасата, като я избутате към „плъзгащата се“ порта. Собствениците получават пълноценна затворена веранда, която при желание може да се отвори.
Баня със стая за релакс
Изпълнението на плана 2 в 1 (сауна + стая за релакс) дава възможност да се освободи място в крайградската зона за басейна. В такъв случай басейнът може да бъде разположен както на открито, така и под навес. Възможно е също така да се инсталира басейн в остъклена пристройка или на тераса.
От предимствата на баните с басейн: можете да получите полезни процедури за здраве и естетически дизайн. Проблемът може да е в източването на басейна по време на почистване или смяната на старата с чиста вода. Ето защо много е важно да се осигури дренажна система.

Ако пространството позволява, отпадъчните води могат да се използват повторно за същото напояване на градината чрез инсталиране на септична яма за пречистване на отпадъчни води.
Красиви примери
Много красива версия на банята 9х9 м с басейн. Тя може да бъде отворена или затворена. Затворена зимна версия може да бъде вътре в самата баня, на приземния й етаж. Такава баня може да бъде с размери 6х9 м и дори със собствен гараж..

Двуетажна баня в провинцията с веранда 6х8 м, където можете да прекарате летни вечери.

Ъглова вана 6х6 м от пенобетон може да изглежда като истински замък.

Вана с дървени трупи с размери 4×6 м може да създаде атмосферата на Норвегия във всяка лятна вила.

Вътрешната декорация на баня от дървен материал може да изглежда така.

Много красива версия на баня с двускатен покрив от трупи изглежда като истинска резиденция.

В следващия видеоклип вижте преглед на двуетажна рамкова вана 6х6 м.
Красиви проекти на двуетажна баня
Безбройните ползи, които идват от използването на сауни, ги правят популярни сред собствениците на жилища, които искат да се насладят на релаксиращ, лечебен и енергизиращ ефект върху имота си. Като се има предвид, че наличните на пазара модели могат да струват няколко хиляди долара, би било добра идея да ги изградите сами с по -малко инвестиции..
Всеки може самостоятелно да задоволи изискванията си, за да създаде уникална и красива сауна на два етажа. Ето защо е важно да знаете какви красиви проекти на двуетажна баня съществуват..
Особености
Има огромен асортимент от двуетажни бани, които можете да построите сами. Някои хора обичат идеята да създадат своя собствена сауна изцяло от нулата, използвайки чертежите на някой друг, и това е наистина уникално преживяване, което означава, че дизайнът на сауната може да бъде персонализиран..
В началото на строителството е необходимо внимателно да се обмислят проектите, след което да се направи правилният избор.
Двуетажна баня заема по-малко място на сайта, функционална е и съдържа повече стаи от едноетажна..
С такава вана не е нужно да харчите много пари за отопление на втория етаж – горещият въздух от парната се издига и загрява стаите. Невъзможно е да не се отбележи представящият външен вид на такава вана..
Можете да инсталирате малък басейн вътре, просто намерете място за него.
Многобройните проекти на двуетажна баня изискват пълноценна комуникационна система. Тоест, можете да живеете в него като в къща, ако за кратко, включително през зимата.
Проекти
Външна вана
Традиционно банята е била отделна пристройка извън къщата, поради което има много проекти, отделени от жилищното пространство на баните. Откритата сауна може да струва малко повече поради защитата от атмосферни влияния и евентуално водоснабдяване и захранване.
От друга страна, сауната на открито лесно ви позволява да инсталирате печка на дърва за традиционна сауна.
Вътрешна вана
Сауната може лесно да бъде разположена в мазето или на тавана. Ако обаче изградите закрита сауна до ваната, можете да използвате банята за баня като удобна съблекалня..
Двуетажните сауни могат да варират по размер от 3 x 4, 4×4, 6×4 m за един човек до 10 x 14 m или повече за 8 души. Повечето домашни сауни са с размери 6 x 9 m с таван 7 x 8 m.
За да изберете най-подходящия проект за двуетажна баня, е необходимо да определите допълнителните функции, които сауната ще изпълнява..
Освен това трябва да се вземе предвид следната информация:
В зависимост от това колко хора ще посетят банята, трябва да определите нейния размер. За семейство от 4-5 души ще бъде достатъчна малка двуетажна сграда.
Ако не планирате да оборудвате пълноценен втори етаж с няколко стаи, можете да изберете баня с таван, чийто дизайн ще ви позволи да удвоите използваемата площ с минимални разходи..
За случайна почивка на гости на компанията или ако трябва да живеете в къщата повече от ден, трябва да планирате изграждането на по -просторна сауна с няколко стаи на втория етаж, където можете да оборудвате стая за отдих, спалня, фитнес зала с уреди за тренировки, билярдна маса или маса за тенис..
Местоположението на втория етаж на мини -СПА салона се счита за все по -популярно – за това ще е необходимо да декорирате интериора в стил, подходящ за добра почивка. В такъв ъгъл, който перфектно допълва парната баня и миенето, можете да оборудвате целия комплекс за отдих, да създадете масажна маса или вибриращи масажори за релаксация.
Материали (редактиране)
За вътрешната сауна можете да направите същия етаж като в банята. Ако банята ще бъде на открито, ще трябва да се постави подходяща бетонна основа. Стените в стоманена рамка могат да бъдат изградени от дървен материал. Стените на сауната обикновено са направени от смърч, трепетлика, елша, бук или кедър..
Блокове от пяна
Най-популярната е двуетажната баня от пяна. Той е малко по -нисък в екологичните изисквания спрямо дървените къщи от дървени трупи.
Той обаче има няколко предимства:
Баня от трупи
Това е стар руски тип баня с много предимства: топлина, сухота и интересен външен вид. Дървени трупи – разбира се, кръгли, важно е да се направи истинска баня, красива, издръжлива, с плътно опаковани трупи, внимателно обработена с антисептични съединения срещу гъбички и гниене.
Баня с веранда на приземния етаж е подходяща от този материал..
При избора на трупи трябва да се обърне специално внимание на влакната в дървесината – те трябва да са прави, а не извити, в противен случай дървеният труп може да се напука по време на свиване или да се напука след свиване.
Греди
Има три вида дървен материал:
Най -“удобният” в работата е залепеният дървен материал – той отговаря на съвременните изисквания за безопасност, има огнеустойчивост, влагоустойчивост, не се страхува от големи температурни колебания и насекоми -вредители.
Дизайн
Дизайнът на банята зависи от вида на сауната, а именно: традиционна или инфрачервена. Изборът зависи от толерантността към горещия въздух и терапевтичните ефекти, които собственикът търси.
Традиционната сауна използва нагревател на дърва, който загрява и предава топлина във въздуха, като по този начин повишава вътрешната температура. Традиционните единици ограничават терапевтичния си ефект, като отпускат тялото ви и го изпотяват, за да изхвърлят токсините.
Инфрачервената сауна се основава на инфрачервени нагреватели, направени от керамика или метал, с инфрачервени лампи, които генерират инфрачервено лъчение, подобно на топлината на слънцето. За разлика от традиционния въздух, който създава горещ въздух, той създава топлина, която се абсорбира директно от тялото, без да повишава твърде много температурата на въздуха. Тези единици включват широк спектър от предимства, като по -добро кръвообращение, по -силна имунна система, по -здраво сърце и по -красива кожа..
Докато традиционните сауни използват много топлина и пара, за да създадат подходяща среда вътре, съвременните сауни предпочитат инфрачервена отоплителна система..
Те са удобни за използване, тъй като работят при по -ниски температури, сухи сауни, така че нямат бактерии и проблеми с поддръжката, свързани с използването на вода и пара.
Двуетажните бани се различават значително по външен вид, струва си да се вземат предвид както архитектурните особености на сградата, така и характеристиките на пейзажа.
Това ще ви позволи да планирате бъдещия си проект по най -удобния начин:
Бани с тераса
По правило това е разширение на стая 3х4 м, която се отваря на открито. Подобни проекти са предпочитани от големи семейства, за да се събират вечер, за да обсъждат събитията от изминалия ден с чаша чай или кафе. Освен това, тераси спестяват няколко допълнителни квадратни метра земя, които ще бъдат заети от отделна беседка.
Единственият недостатък на наклонената тераса в съседство с банята е невъзможността да се оборудва зона за барбекю. Трябва да има два входа на терасата (особено на терасите на първия етаж на сградата) – от улицата и през банята, където основата на колоната (или стълба) трябва да служи като основа за терасата. Има проекти на двуетажни бани с тераси, които имат плъзгащи се оградни стени. Акцентът на този дизайн е, че през лятото можете да премахнете едната страна на терасата, като я избутате към „плъзгащата се“ порта. Собствениците получават пълноценна затворена веранда, която при желание може да се отвори.
Баня със стая за релакс
Изпълнението на плана 2 в 1 (сауна + стая за релакс) дава възможност да се освободи място в крайградската зона за басейна. В такъв случай басейнът може да бъде разположен както на открито, така и под навес. Възможно е също така да се инсталира басейн в остъклена пристройка или на тераса.
От предимствата на баните с басейн: можете да получите полезни процедури за здраве и естетически дизайн. Проблемът може да е в източването на басейна по време на почистване или смяната на старата с чиста вода. Ето защо много е важно да се осигури дренажна система.
Ако пространството позволява, отпадъчните води могат да се използват повторно за същото напояване на градината чрез инсталиране на септична яма за пречистване на отпадъчни води.
Красиви примери
Много красива версия на банята 9х9 м с басейн. Тя може да бъде отворена или затворена. Затворена зимна версия може да бъде вътре в самата баня, на приземния й етаж. Такава баня може да бъде с размери 6х9 м и дори със собствен гараж..
Двуетажна баня в провинцията с веранда 6х8 м, където можете да прекарате летни вечери.
Ъглова вана 6х6 м от пенобетон може да изглежда като истински замък.
Вана с дървени трупи с размери 4×6 м може да създаде атмосферата на Норвегия във всяка лятна вила.
Вътрешната декорация на баня от дървен материал може да изглежда така.
Много красива версия на баня с двускатен покрив от трупи изглежда като истинска резиденция.
В следващия видеоклип вижте преглед на двуетажна рамкова вана 6х6 м.