
В повечето случаи металните печки от тръба трудно могат да се нарекат естетическа мебел, тъй като в крайна сметка основната им функционална цел е бързото и качествено отопление на парната баня. Отличителна черта на такава печка е възможността за собствено производство, което значително намалява разходите при инсталиране на вана..
Характеристики на избор
Печка за тръбна баня е най -често срещаният вариант на нагревател за парна баня с всякакъв размер. Такава пещ изпълнява своите функции с високо качество, безопасна е както по време на строителната фаза, така и по време на работа. Основното предимство е възможността за самостоятелно изграждане на такава печка..
Когато избирате конкретен проект за нагревател, трябва да вземете предвид размера и оформлението на сдвоената стая, както и личните предпочитания.. За парна баня с малка площ обикновено се препоръчва да се инсталира вертикална печка от тръба. Това е по -компактен вариант, който не заема много вътрешно пространство. Дизайнът на такава инсталация предполага наличието на не само горивна камера, но и допълнителна зона за полагане на камъни, както и резервоар за вода за отопление. Външно печката прилича на класическа бурканска печка.

Ако изборът падна върху този сорт, тогава трябва да се помни, че представената опция има по -ниски топлинни качества, а вратите на пещта и пепелниците са поставени в двойна стая.
Ако пространството позволява, тогава трябва да се даде повече предпочитание на хоризонталния сорт. Има и зони за полагане на камъни и контейнер за нагряване на вода, но вратите и пепелникът се намират в края на инсталацията и затова могат да бъдат поставени извън парната баня, например в съблекалнята или извън вана, което значително опростява процеса на разпалване.
Отоплителната площ на камъните се увеличава много поради по -голямата дължина на тази опция, естествената конвекция на топъл въздух се увеличава в парната баня.
Сред основните предимства на стоманените тръби, използвани за печка за сауна, си струва да се подчертае следното:
- стабилността на покритието при механично натоварване;
- надеждно разсейване на топлината;
- нисък коефициент на разширение при нагряване;
- способността да задържа топлината дори след изгаряне на дърва;
- възможност за използване на всякакъв вид гориво;
- минимум заваръчни шевове;
- бързо загряване на парната баня.

Няколко недостатъка на металните конструкции не могат да бъдат пренебрегнати:
- металът се нагрява бързо, но също толкова бързо се охлажда, тоест трябва да добавяте гориво доста често, за да поддържате необходимата температура на въздуха;
- топлината се разпространява неравномерно в пространството на помещението.
Ако сравним метална и тухлена печка за баня, последната губи по такива критерии като скоростта на нагряване, вероятността от отравяне с въглероден окис, лекотата на производство.
Когато избирате метална тръба за отопление на баня, обърнете внимание на следните точки:
- проверете здравината на конструкцията;
- уверете се, че няма повреди или корозия на повърхността;
- ако се открият дефекти, трябва да се извърши подсилване със заварени метални пластири;
- функционални отвори могат да бъдат направени в корозивни зони.

Не използвайте високо въглеродна стомана или легирана стомана. Те не са подходящи за направа на пещ. За предпочитане е да изберете стомана със съдържание на въглерод до 2%. Можете да изчислите високовъглероден материал по състоянието на искри, когато повърхността се търка с шкурка. Той има бели искри под формата на звезди, разпръснати в различни посоки, докато искрите от мека стомана са жълтеникави и прави. Легираната стомана ще има червени, оранжеви или ярко бели искри, ако се тества по същия начин..
Печките за сауна се правят не само от метални тръби, но и от ламарина. Най -често от този материал излиза правоъгълна форма..
В сравнение с такава инсталация, кръглата тръба има следните предимства:
- метална тръба е много по -лесна по отношение на производството – всъщност тя вече е готова горивна камера, за разлика от листове, които трябва да се режат, нарязват, сглобяват и заваряват;
- тръбите са най -икономичният вариант;
- процесът на топлообмен с околния въздух в присъствието на кръгла печка за баня е по -ефективен;
- от гледна точка на движението на димните газове, завършената кръгла тръба също е по -селективна;
- експлоатационният живот на кръглата пещ е по -дълъг, дори при сравняване на правоъгълни и цилиндрични тръби от един и същ материал.
Схема и размери
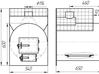
Когато избирате най -предпочитания вариант на тръбата, трябва да вземете предвид вътрешното сечение и дебелината на стоманата. За да направите това, погледнете маркировката: например, тя казва “400 * 7”, което означава 400 мм – диаметър, 7 мм – дебелина на стената на профилната тръба. За печки за сауни се препоръчва използването на тръби с диаметър 500-600 мм и дебелина 7-13 мм, но това не е необходимо, изборът на размера на металната тръба зависи от площта на парна баня и необходимия обем вода.

Най -често срещаният размер на тръбата за баня е 530 мм, такива инсталации се считат за оптимални за стандартни парни бани. Някои сауни не могат да се похвалят с просторни парни бани, те се използват по -скоро наистина за измиване, а не за продължителна почивка, а след това тук се поставят малки печки, например с диаметър 426 мм. Ако пространството на парната баня позволява, тогава е подходяща и тръба с диаметър 630 мм..
Вертикален
Вертикалните пещи обикновено са с компактни размери. Решетката и печката са разположени една под друга и следователно диаметърът на печката е диаметърът на тръбата. Приготвянето на този сорт не е трудно..
Хоризонтално
Сглобяването на хоризонталната версия изисква по -трудоемка работа. За парни бани се използват тръбни пещи, те се отличават с показатели за висока якост и създават условия за ефективен пренос на топлина във въздуха на банята.
Разлики между вертикални и хоризонтални типове фурни:
- пламъкът във вертикална тръба изминава кратък път към комина в горната част на конструкцията, нажежаемите газове почти не докосват страните на тялото и са разположени предимно в средата;
- хоризонталната версия позволява потоци на горещ газ към горната част на инсталацията, след което газът, поради разреждането на въздуха, навлиза в комина;
- дизайнът на вертикалната печка загрява стените на парната баня с високо качество, но подът и въздухът в горната част на помещението не могат да се затоплят ефективно;
- хоризонталната версия загрява всички части на пространството, с изключение на зоната в съседство с пода и мястото под горивната камера.

Преди да създадете пещ от всякакъв тип, но особено хоризонтална, е необходимо да направите компетентна рисунка на бъдещото устройство. Начертайте диаграма на продукта, посочете всички размери върху нея и следвайте ясно тези инструкции. Грешките, направени на етапа на производство на печката, могат да повлияят не само на работата на инсталацията, но и да застрашат здравето на останалите. В допълнение, това значително ще опрости процеса на инсталиране..

За майстора, който първо е решил да свърши тази работа, е по-добре да използва готова рисунка или да инсталира типичен модел.
Как да го направите сами?
След като избрахме опцията за тръбата и начертахме диаграмата по размер, пристъпваме към самосглобяването на печката.
Основните изисквания за инсталиране на домашна печка за сауна:
- тръбата се монтира върху основата с отстъп от 200 мм от стената, дори и горната пещ да е лека;
- в зоната, където ще излезе металната тръба, е необходимо да се направи удебеляване от 120 мм;
- 500 мм – минимален надвес на тръбата над покрива;
- всички дървени части се обработват с изолационен материал със слой глина;
- повърхността на комина в зоната между тавана и покрива преминава през етапите на измазване, върху материала се нанася варов разтвор;
- рафтовете трябва да бъдат разположени до стената, където се намира фурната.

За работа ще ви трябват следните материали и инструменти:
- парче тръба за тялото на печка за сауна;
- парче тръба за изпускане на газ;
- метален лист с дебелина 10-12 мм;
- елементи на пещта, можете да ги купите или направите сами: решетка, врати за отделяне на горивната камера и вентилатора, пепелник;
- Български;
- заваръчна машина.
Както бе отбелязано по -горе, можете да направите аксесоари за печки със собствените си ръце, но закупените части, въпреки че ще струват доста пари, все пак ще ускорят работата и резултатът ще бъде по -естетичен.

Технологията за вертикално сглобяване се основава на разрез на тръба с дължина един и половина метра.
Сглобяването на вертикалната версия се извършва на определени етапи..
- Разработваме кофраж за квадратна основа. За да определите размера, добавете един и половина метра към страничния диаметър. За армиране е необходимо да се постави армировка в бетона. Минималната дебелина на основата е 200 мм. След като бетонът е втвърдил, полагаме тухли върху повърхността.
- Взимаме метър парче тръба, изрязваме отдолу отвор 50×200 мм; по време на работа този участък ще служи като пепелник. Уверете се, че дъното на детайла е напълно плоско.
- Укрепваме дъното на горивната камера над вратата на вентилатора. Изрязваме метален кръг с дебелина 12 мм и повече, организираме решетка в центъра на листа, която представлява решетка с размери на ширината на прътите, съответстващи на разстоянието между тях.
- Отстъпваме от дъното около 50 мм и изрязваме дупка за горивната камера. Параметри на вратата – 250х300 мм. Заваряваме пантите и оборудваме крилото.
- В горната част на горивната камера монтираме правоъгълна платформа, изработена от метал, заварена в ъглите към тръбата, служеща като устройство за отрязване. Въздухът, който ще се разпространява между стените на тръбата и ръбовете на този лист, ще затопли по -добре стените на устройството.
- Поставете нагревателя върху конструкцията. Развиваме долната му част от решетка с пръти с дебелина 12-16 мм. Отстъпваме нагоре 50-100 мм и го заваряваме. Вратата е направена според принципите на врата за горене.
- Резервоарът за вода може да бъде направен от останалия лист с дължина 1,5 метра, дъното му ще покрива горната част на нагревателя. В средата на диска, който трябва да се използва за заваряване на дъното, пробиваме отвор за тръбата. Организираме подвижен капак, образуваме кран в долната част.
Вертикалната фурна за ваната е готова. Няма нужда от скъпи материали и съвременни високотехнологични инструменти за производство. Но все пак капитанът трябва да има заварена практика.
За да направите хоризонтален изглед на пещта, ще ви трябва парче тръба с дължина 0,8 метра. Вратата обикновено се монтира в съблекалнята; в този дизайн е невъзможно да се монтира резервоар за вода в тръбата.
Принципите на сглобяване включват няколко етапа..
- Първият етап е отново подреждането на основата. Правим това по същия начин, както при инсталирането на вертикалната опция..
- Изрежете правоъгълник с параметри 400×800 мм от метал с дебелина 100-120 мм, заварете решетката в центъра.
- Заваряваме изрязания детайл вътре в бъдещия нагревател. Уверете се, че заваръчните шевове на решетката са отгоре, а не отдолу. Тогава те получават по -малко стрес..
- Изрежете правоъгълна метална равнина, заоблена отгоре, широка 600 мм, висока 700 мм. Това ще бъде предната стена на печката..
- В предната част правим дупки за горивната камера и пепелника, монтираме вратите.
- За задната стена правим правоъгълник, изрязан от метал. Параметри на детайла – 700×900 мм.
- Създайте отвор 150×150 mm в горната част на кутията отзад. Организираме трезор от метални листове и го оборудваме отгоре. Изрежете участък в трезора за мястото на последващо заваряване на тръбата, преместете го напред със 100 мм.
- Заваряваме върху тръбата. Сводът е дъното на нагревателя. Ние правим стена отпред.
- Резервоар за вода, закупен или ръчно заварен, монтиран на гърба на конструкцията.

След сглобяването на всякакъв вид пещ е необходимо да се почисти от котлен камък и ръжда..
Нека разгледаме по -отблизо някои от аспектите на инсталирането на домашна печка..
Фондация
Първият етап за изграждането на пещта. Тя трябва да се извършва в съответствие с всички правила и изисквания..
За да създадем, изпълняваме следните действия:
- събаряме квадратен кофраж с височина 200 мм;
- равномерно на квадрати 200х200 мм, подредете армировката надлъжно и напречно в един слой;
- закрепваме армировъчните елементи с тел за плетене в зоните на свързване;
- забийте четири парчета армировка по краищата на решетката, прикрепете решетката към тях.

Две седмици след изливането е необходимо да отворите прозорците и вратите в стаята и да покриете основата с мокри парцали. Това ще предотврати напукване на повърхността. Препоръчва се да навлажнете парцалите за няколко седмици.
Решетка
Решетката е специална решетка, предназначена да осигури сцепление.
Събирането на решетката също е лесна задача. За това:
- изрязваме правоъгълник с необходимия параметър от метала, тоест така, че да отговаря напълно на вътрешните размери на тръбата;
- изрежете центъра в подготвената плоча, така че да има зони за заваряване по краищата;
- заварете метални пръти хоризонтално или вертикално.
Съвети за изработка
Преди да започнете да сглобявате печка за сауна със собствените си ръце, използвайте съветите на професионалисти.
- Опитайте се да получите спирални тръбни резници, те са по -точни, не толкова елипсовидни и са направени от по -подходяща стомана. Можете да ги закупите и на цената на металния скрап. Можете да използвате безшевни тръби, но само за производството на малки елементи.
- Много хора предпочитат да използват валцуван метал от неръждаема стомана за сглобяване на горивна камера, резервоар за вода и комин. Това е добър вариант, но не забравяйте, че заваряването ще изисква използването на електроди от неръждаема стомана или специална заваръчна тел..
- По време на работния процес се препоръчва заваряване на опори към тръбата, така че да не се преобърне и да усложни работата.
- Когато инсталирате вертикален модел, е необходимо да оставите поне 1/3 от диаметъра на печката, отвори за навлизане на дим в комина.
- Препоръчва се външната каменна врата да се постави така, че по време на работа да е насочена в обратна посока от мястото, където хората почиват. Това ще предпази посетителите на банята от изгаряне от гореща пара, ако влагата попадне върху горещи камъни, като същевременно поддържа топлината..
- Много майстори съветват поставянето на заваръчния шев под решетката, тъй като свързващите шевове се разрушават предимно от температурата..
- Препоръчва се външните стени на комина да се изолират с дебел слой минерална или базалтова вата, за да се намали вероятността от корозия вътре в конструкцията..
- Необходимо е резервоарът да се напълни с вода преди разпалването – влагата, която попадне върху металната повърхност, може да предизвика изгаряния от удар с пара.
- За декоративни цели се препоръчва металната фурна да се покрие с огнеупорна боя..
- Ако печката е покрита с боя, тогава е по -добре да я загреете на чист въздух преди монтажните работи. Така излишната боя ще изгори, без да навреди на човешкото тяло..
- Покрийте печката с тухлена решетка. Това ще осигури по -равномерно разпределение на нагрятия въздух, както и ще предпази туристите от тежки изгаряния..
Успешни примери
Проучете опциите за вертикални и хоризонтални фурни от снимката в Интернет. Сред тях са естетически боядисани модели и по -прости сортове, но производственият дизайн и инсталацията не се различават особено. Не е нужно да сте професионалист за това, основното е да следвате схемата и посочените размери..
7 снимки
Тухлена облицовка
За да направите металната печка по -естетична, се препоръчва да я покриете с тухли..
Примерите за стилизиране могат да варират.
- Плътна облицовка. Осигурява бърз пренос на топлина, което донякъде намалява производителността на отоплителното устройство. Изпълнява изключително декоративна функция.
- Топлинен щит. Това е малка каменна ограда. Увеличава преноса на топлина и създава комфортни условия за почиващите в непосредствена близост до печката.
- Облицован конвектор с вентилационни отвори. Най -универсалният вариант. Подходящ за декориране на всяка метална конструкция, независимо от площта на помещението.
Потъмняване
Друг добър пример за декориране на метална конструкция е блусинг. Този метод е повърхностна обработка с помощта на химични съединения, които не само придават на устройството естетически свойства, но и предпазват от корозия за дълго време..

Нанесеният слой ще издържи по -дълго, ако металната повърхност е предварително много добре почистена. За да направите това, не е необходимо да купувате професионални състави, можете самостоятелно да приготвите разтвор от бутилов алкохол (4 грама), фосфорна киселина (150 грама) и вода (1 литър).
След почистване и отстраняване на остатъчните киселини е необходимо пещта да се разтопи до 150 градуса и да се покрие метала със слой сода каустик за един час. Ще бъде по -удобно да пръскате състава.
Оцветяване
Сега могат да се намерят специални топлоустойчиви бои за боядисване на метални пещи. Когато избирате вид боя, трябва да запомните, че по -гладка и по -лъскава повърхност отделя много по -малко топлина, а грубата тръба, боядисана в тъмен цвят, разпределя топлината максимално. Не се препоръчва използването на алуминиева боя за тази цел..

Печката за сауна „направи си сам“ е не само отлична алтернатива на фабричната версия, но и възможност за изпълнение на проект, който ще отговаря на индивидуалните условия-пространството на парната баня, предпочитанията за качество на парата (суха или мокра) ), лични нужди.
Видео майсторски клас за направата на печка за вана от тръба, вижте по -долу.
Как да направите печка за сауна от тръба?
В повечето случаи металните печки от тръба трудно могат да се нарекат естетическа мебел, тъй като в крайна сметка основната им функционална цел е бързото и качествено отопление на парната баня. Отличителна черта на такава печка е възможността за собствено производство, което значително намалява разходите при инсталиране на вана..
Характеристики на избор
Печка за тръбна баня е най -често срещаният вариант на нагревател за парна баня с всякакъв размер. Такава пещ изпълнява своите функции с високо качество, безопасна е както по време на строителната фаза, така и по време на работа. Основното предимство е възможността за самостоятелно изграждане на такава печка..
Когато избирате конкретен проект за нагревател, трябва да вземете предвид размера и оформлението на сдвоената стая, както и личните предпочитания.. За парна баня с малка площ обикновено се препоръчва да се инсталира вертикална печка от тръба. Това е по -компактен вариант, който не заема много вътрешно пространство. Дизайнът на такава инсталация предполага наличието на не само горивна камера, но и допълнителна зона за полагане на камъни, както и резервоар за вода за отопление. Външно печката прилича на класическа бурканска печка.
Ако изборът падна върху този сорт, тогава трябва да се помни, че представената опция има по -ниски топлинни качества, а вратите на пещта и пепелниците са поставени в двойна стая.
Ако пространството позволява, тогава трябва да се даде повече предпочитание на хоризонталния сорт. Има и зони за полагане на камъни и контейнер за нагряване на вода, но вратите и пепелникът се намират в края на инсталацията и затова могат да бъдат поставени извън парната баня, например в съблекалнята или извън вана, което значително опростява процеса на разпалване.
Отоплителната площ на камъните се увеличава много поради по -голямата дължина на тази опция, естествената конвекция на топъл въздух се увеличава в парната баня.
Сред основните предимства на стоманените тръби, използвани за печка за сауна, си струва да се подчертае следното:
Няколко недостатъка на металните конструкции не могат да бъдат пренебрегнати:
Ако сравним метална и тухлена печка за баня, последната губи по такива критерии като скоростта на нагряване, вероятността от отравяне с въглероден окис, лекотата на производство.
Когато избирате метална тръба за отопление на баня, обърнете внимание на следните точки:
Не използвайте високо въглеродна стомана или легирана стомана. Те не са подходящи за направа на пещ. За предпочитане е да изберете стомана със съдържание на въглерод до 2%. Можете да изчислите високовъглероден материал по състоянието на искри, когато повърхността се търка с шкурка. Той има бели искри под формата на звезди, разпръснати в различни посоки, докато искрите от мека стомана са жълтеникави и прави. Легираната стомана ще има червени, оранжеви или ярко бели искри, ако се тества по същия начин..
Печките за сауна се правят не само от метални тръби, но и от ламарина. Най -често от този материал излиза правоъгълна форма..
В сравнение с такава инсталация, кръглата тръба има следните предимства:
Схема и размери
Когато избирате най -предпочитания вариант на тръбата, трябва да вземете предвид вътрешното сечение и дебелината на стоманата. За да направите това, погледнете маркировката: например, тя казва “400 * 7”, което означава 400 мм – диаметър, 7 мм – дебелина на стената на профилната тръба. За печки за сауни се препоръчва използването на тръби с диаметър 500-600 мм и дебелина 7-13 мм, но това не е необходимо, изборът на размера на металната тръба зависи от площта на парна баня и необходимия обем вода.
Най -често срещаният размер на тръбата за баня е 530 мм, такива инсталации се считат за оптимални за стандартни парни бани. Някои сауни не могат да се похвалят с просторни парни бани, те се използват по -скоро наистина за измиване, а не за продължителна почивка, а след това тук се поставят малки печки, например с диаметър 426 мм. Ако пространството на парната баня позволява, тогава е подходяща и тръба с диаметър 630 мм..
Вертикален
Вертикалните пещи обикновено са с компактни размери. Решетката и печката са разположени една под друга и следователно диаметърът на печката е диаметърът на тръбата. Приготвянето на този сорт не е трудно..
Хоризонтално
Сглобяването на хоризонталната версия изисква по -трудоемка работа. За парни бани се използват тръбни пещи, те се отличават с показатели за висока якост и създават условия за ефективен пренос на топлина във въздуха на банята.
Разлики между вертикални и хоризонтални типове фурни:
Преди да създадете пещ от всякакъв тип, но особено хоризонтална, е необходимо да направите компетентна рисунка на бъдещото устройство. Начертайте диаграма на продукта, посочете всички размери върху нея и следвайте ясно тези инструкции. Грешките, направени на етапа на производство на печката, могат да повлияят не само на работата на инсталацията, но и да застрашат здравето на останалите. В допълнение, това значително ще опрости процеса на инсталиране..
За майстора, който първо е решил да свърши тази работа, е по-добре да използва готова рисунка или да инсталира типичен модел.
Как да го направите сами?
След като избрахме опцията за тръбата и начертахме диаграмата по размер, пристъпваме към самосглобяването на печката.
Основните изисквания за инсталиране на домашна печка за сауна:
За работа ще ви трябват следните материали и инструменти:
Както бе отбелязано по -горе, можете да направите аксесоари за печки със собствените си ръце, но закупените части, въпреки че ще струват доста пари, все пак ще ускорят работата и резултатът ще бъде по -естетичен.
Технологията за вертикално сглобяване се основава на разрез на тръба с дължина един и половина метра.
Сглобяването на вертикалната версия се извършва на определени етапи..
Вертикалната фурна за ваната е готова. Няма нужда от скъпи материали и съвременни високотехнологични инструменти за производство. Но все пак капитанът трябва да има заварена практика.
За да направите хоризонтален изглед на пещта, ще ви трябва парче тръба с дължина 0,8 метра. Вратата обикновено се монтира в съблекалнята; в този дизайн е невъзможно да се монтира резервоар за вода в тръбата.
Принципите на сглобяване включват няколко етапа..
След сглобяването на всякакъв вид пещ е необходимо да се почисти от котлен камък и ръжда..
Нека разгледаме по -отблизо някои от аспектите на инсталирането на домашна печка..
Фондация
Първият етап за изграждането на пещта. Тя трябва да се извършва в съответствие с всички правила и изисквания..
За да създадем, изпълняваме следните действия:
Две седмици след изливането е необходимо да отворите прозорците и вратите в стаята и да покриете основата с мокри парцали. Това ще предотврати напукване на повърхността. Препоръчва се да навлажнете парцалите за няколко седмици.
Решетка
Решетката е специална решетка, предназначена да осигури сцепление.
Събирането на решетката също е лесна задача. За това:
Съвети за изработка
Преди да започнете да сглобявате печка за сауна със собствените си ръце, използвайте съветите на професионалисти.
Успешни примери
Проучете опциите за вертикални и хоризонтални фурни от снимката в Интернет. Сред тях са естетически боядисани модели и по -прости сортове, но производственият дизайн и инсталацията не се различават особено. Не е нужно да сте професионалист за това, основното е да следвате схемата и посочените размери..
Тухлена облицовка
За да направите металната печка по -естетична, се препоръчва да я покриете с тухли..
Примерите за стилизиране могат да варират.
Потъмняване
Друг добър пример за декориране на метална конструкция е блусинг. Този метод е повърхностна обработка с помощта на химични съединения, които не само придават на устройството естетически свойства, но и предпазват от корозия за дълго време..
Нанесеният слой ще издържи по -дълго, ако металната повърхност е предварително много добре почистена. За да направите това, не е необходимо да купувате професионални състави, можете самостоятелно да приготвите разтвор от бутилов алкохол (4 грама), фосфорна киселина (150 грама) и вода (1 литър).
След почистване и отстраняване на остатъчните киселини е необходимо пещта да се разтопи до 150 градуса и да се покрие метала със слой сода каустик за един час. Ще бъде по -удобно да пръскате състава.
Оцветяване
Сега могат да се намерят специални топлоустойчиви бои за боядисване на метални пещи. Когато избирате вид боя, трябва да запомните, че по -гладка и по -лъскава повърхност отделя много по -малко топлина, а грубата тръба, боядисана в тъмен цвят, разпределя топлината максимално. Не се препоръчва използването на алуминиева боя за тази цел..
Печката за сауна „направи си сам“ е не само отлична алтернатива на фабричната версия, но и възможност за изпълнение на проект, който ще отговаря на индивидуалните условия-пространството на парната баня, предпочитанията за качество на парата (суха или мокра) ), лични нужди.
Видео майсторски клас за направата на печка за вана от тръба, вижте по -долу.