
Когато търся проект за баня, искам той да бъде максимално удобен. Това включва не само процедурите за къпане: наличието на зона за отдих има значение.
Едно от успешните решения, според дизайнерите, е баня с веранда под един покрив. Дизайнът на такава сграда обаче има редица характеристики..
Особености
Според установените разпоредби, верандата е продължение на същата основа заедно с основната конструкция. Освен това, за разлика от беседката, тя има една обща стена с банята. Останалите опции за дизайн могат да бъдат много разнообразни. Например, верандата за баня може да бъде отворена или затворена.
Всеки тип структура има свои собствени характеристики, които трябва да се вземат предвид на етапа на проектиране на конструкцията. Например, при един покрив е важно да се създаде същото тегло натоварване на стените. В противен случай с течение на времето стените могат да бъдат изкривени и свиването на конструкцията ще бъде неравномерно..

При изграждането на такава баня е важно да се вземат предвид и други характеристики, сред които изборът на място на сайта има значение. Това е необходимо, за да не се застоява влагата и е имало възможност за оттичане на течност.
Те обмислят и основата, която обикновено е висока за такива сгради. Това се дължи и на защитата на банята с веранда от постоянна влага и студ, което е свързано с дъждовно време. В същото време котата е най -доброто място за създаване на такива структури..
Наличието на веранда под един покрив с вана ви позволява да проектирате удобна конструкция с липса на използваемо пространство. Освен това поради една обща преграда се спестява материал за изграждането на носещата стена. Така в къщата ще се поберат пералня, парна баня и един вид стая за почивка..

С рамкови панелни сгради на сградата можете да спестите бюджета си. В този случай банята може да има не само 1, но и 2 етажа. Това ще ви позволи да използвате по -ефективно вътрешното пространство. Например, ще бъде възможно да се разпредели стая за готвене, както и спалня..
Ако подходите разумно към проектирането на сградата, дори билярдна зала, антре и складово помещение могат да бъдат поставени на втория етаж. Такива структури обаче са типични за сгради с достатъчно кадри..
Фондация
Проектите могат да бъдат много разнообразни. Например, ако желаете, можете да поставите барбекю в такава къща. Обикновено кадрите, броят на етажите, ограждащите конструкции, интериорното подреждане зависят от вкусовите предпочитания и бюджета..
В зависимост от вида на основата, във ваната може да се постави тежка печка. За такъв проект се използва монолитна лента тип фундамент.. Излива се до височината на пода, включително цялата площ на сградата, като се вземе предвид барбекюто.
В случай на поставяне на барбекю, изобщо не е необходимо да се извършва ивична основа.. Ще бъде достатъчно да направите купчина или колонен. Например, тя може да бъде вързана с рамка, изработена от дървен материал със сечение 15х15 см, върху която е поставен подът. За да се осигурят противопожарни мерки, подовата настилка е изработена от огнеупорни материали. Това ще ви позволи да поставите мангал във ваната, в допълнение към измиването, да заемете място в сградата за готвене на барбекю и барбекю.
Основното изискване в началния етап на строителството е надеждността на основата. В противен случай сградата няма да се различава по издръжливост..
Строителни материали
За изграждането на баня с веранда се използват различни суровини. Въпреки това, при условия на висока влажност, които обикновено са характерни за банята, човек трябва да бъде особено внимателен при избора на материал. Обикновено за него се използва дърво.. Най -добрият вид суровина е иглолистната дървесина.. Въпреки естествения си произход и податливостта на разрушаване по време на работа, те са по -устойчиви на гниене.
В допълнение, такива материали са по-лесни за обработка по време на строителството на сгради от тип баня..
За да придадат на иглолистните дървета желаните качества, те се подлагат на огнеупорни и противогъбични обработки..
Такива суровини се използват за основно строителство. Те обаче не са подходящи за вътрешна декорация на стени, подове и тавани (особено в парна баня). Това може да доведе до отделяне на смола под въздействието на висока температура, което може да причини изгаряния по кожата на потребителя на ваната..

Обикновено стволовете от масивни дървета се използват при изграждането на дървени бани. Дървената къща се нарязва съгласно правилата на специална технология, като се изрязват канали с канали за удобство на перпендикулярно полагане. При калибриране на трупи такава структура ще изглежда красива..
Процесът на издигане на баня с веранда от бар може да бъде механизиран. В този случай всяка изрязана греда се засажда върху дървени щифтове.
За верандата обикновено се използва същият материал като за основната конструкция. По -рядко, заедно с дърво, се използват тухли и ондулин. При остъкляване такава структура ще прилича на малка къща, която може да се използва за отдих по всяко време на годината. При проектирането се вземат предвид редица нюанси, за да се направи останалата част от собствениците на жилища възможно най -удобни..

Например, веранда може да бъде адаптирана за трапезария с зона за готвене, място за приемане на гости, стая за отдих, а понякога и спалня. Някои проекти са замислени по такъв начин, че банята може да се превърне в къща за гости, ако е необходимо. В този случай формата на верандата може да бъде ъглова, традиционна правоъгълна, квадратна.
Ъгловото разположение на верандата ще ви позволи да изведете комина през покрива и да премахнете дима във ваната.
Вътре могат да се използват материали, устойчиви на влага и пара. Дървените деривати тук не са добри, тъй като те ще се разслоят с течение на времето. Но повърхностните облицовки със стени, таванни панели и ламели са доста приложими.
Не може да се използва в парни бани и миене на гипсокартон и облицовки на гипсова основа. Плочките обаче могат да се използват за украса на верандата, вестибюла и съблекалнята. Като алтернатива можете да поставите дъска.
Проекти: Съчетаване на функционалност и естетика
Един от значимите аспекти е зонирането на банята. Разделянето на отделни функционални области ще позволи ясна организация, която ще помогне за поддържане на реда. В зависимост от замисления дизайн, вътре могат да се използват прегради, плъзгащи се екрани, изработени от пластмаса или стъкло. Изборът им зависи от правилната организация на топло- и хидроизолацията..
Красиво изглежда баня с веранда под един покрив, която на входа на главната сграда на верандата има стъпала и огради. Това ще ви позволи да проектирате сградата, като вземете предвид общата концепция за ландшафтен дизайн. Например, стъпалата могат да бъдат украсени със свежи цветя, една от стените на верандата може да бъде украсена с озеленяване. Като цяло такива сгради предоставят много възможности за проектиране..

Банята на мястото може да се отличи с отделно осветление. Лампите на входа, направени под формата на улични лампи, ще изглеждат красиви. Ако желаете можете да направите няколко аксесоари за верандата със собствените си ръце. Например, това могат да бъдат вази от бетон, счупено стъкло или необичаен панел за декориране на стената на верандата.
Дизайнът на рамките или тяхната необичайна конфигурация може да изглежда не по -малко интересно. В същото време можете да поставите удобни мебели на терасата, да окачите хамак, да поставите маса за организиране на чаени партита. Днес няма да е трудно да намерите мобилни мебели. На рафтовете на магазините можете да изберете например пластмасови мебелни комплекти, наподобяващи дивани, плетени столове, включително маси с ажурен модел.
Ако пространството на верандата е затворено, вътре може да се монтира камина, като по този начин се създаде стая за гости от разширението с атмосфера на домашен комфорт.

Стилно решение би било да се използват контрастни материали за дърво. Това ще направи текстурата на масива по -изразителна, ще освободи банята от усещането за тежест, присъщо на сградите с изобилие от дърво в декорацията.. Извън банята една от стените на верандата може да бъде украсена с имитация на камък или тухла. Такъв материал няма да направи натоварването на стените по -тежко, докато структурата ще изглежда по -интересна.
В зависимост от идеята за дизайн, верандата може да има повече от един вход. Например, може да има две от тях, разположени отстрани на разширението. Те могат да доведат до една врата, което може да бъде удобно за домакинствата.
Банята може да се намира недалеч от къщата, но е неприемливо да се комбинират две сгради с помощта на веранда.

Отделно, заслужава да се отбележи възможността за подреждане на басейна пред банята. За удобство на достъпа до него се изгражда проход. В този случай настилката около самия басейн се изпълнява на същото ниво. За това можете да използвате дъска за тераса. Този дизайн изглежда стилен, а неговата функционалност и комфорт се открояват забележимо на фона на други проекти за бани с веранда.
Декорацията на прозорци заслужава специално внимание. За тяхна сметка днес е възможно не само да се запълнят помещенията на банята със светлина, но и да се направи сградата привлекателна в архитектурно отношение. Изборът на правилната форма, размер и функционалност на прозорците с двоен стъклопакет ще гарантира, наред с други неща, вентилацията на банята, ако изберете продукти с вентилация. Освен това можете да изберете дизайна на прозорците по такъв начин, че заедно с основната идея на къщата банята да изглежда красива и да не прилича на голяма дървена кутия..
Примери за
Нищо няма да ви каже повече за функционалността от илюстративните примери. Те ясно показват разграничението на пространствата за парна баня, пералня, стая за почивка.
- 4х6 м. Проектът на едноетажна баня с разпределени помещения за парна баня, душ кабина и стая за отдих 4х4,5 м. В същото време се оставя пространство от 4 х 1,5 м за верандата.
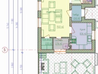
- 6х8 м. Този проект ясно демонстрира кадрите от всяка стая в баня с веранда. Например, площта 2х6 м е разпределена за верандата, обща площ от 8,1 квадратни метра е предвидена за парната баня. м, за пералното помещение – същото. Стаята за почивка е 3 на 6 m.
- 6,3×9,7 м. Вариантът демонстрира разположението на вратите и приблизителното подреждане на мебелите. Предвижда наличието на парна баня, душ, стая за отдих, баня, както и веранда с кът за хранене.
- Този проект е подходящ за просторни сгради. Той включва парна баня, баня, вестибюл, обща стая, баня, кухня, помощно помещение, пещ. За верандата е запазено пространство от 7,1×3,7 m.
- 5.4×8 м. Друг пример с подреждането на мебели. Включва душ, парна баня, стая за релакс, вестибюл и веранда.
- 5х6 м. Разпределяне на по -голяма площ за веранда и стая за отдих, където можете да организирате уютен кът за гости. Проектът включва парна баня и пералня.
- 5х4 м. Настаняване на основните помещения: парна баня, пералня, релакс и веранда.

Когато пространството е ограничено до минимум или площта е нестандартна (тясна, например 3×6 m), трябва да победите дизайнерските характеристики на банята. Разположението на мебелите е направено линейно., обърнете специално внимание на страната на отваряне и затваряне на врати, за да не създавате ограничения за потребителите. При липса на кадри те се придържат към повече функционалност, като избират компактни мебели и водопровод. Не забравяйте да вземете под внимание ъгъла на наклон на покрива, което е особено важно при разнообразието с един наклон.
Обикновено височината на една от стените в този дизайн не надвишава 1,5 м. Някои трудности с поставянето на мебели, водопровод и необходими аксесоари могат да причинят възможности за проектиране на двуетажни сгради с таванско помещение. В такива случаи трябва внимателно да обмислите местоположението на всеки интериор, така че да не лишава потребителя от комфорт..

Дори отстрани и начинът на отваряне на прозорците имат значение. В този случай се вземат предвид не само прозорците на банята, но и конструкцията на остъклената веранда. Това е важно за всякакви кадри от банята и ще позволи, ако е необходимо, да се проветрят помещенията, особено ако в общата стая има камина или верандата е оборудвана с кухня. Конструкциите могат да бъдат оцветени със специален филм, предаване на светлина, но скриване на случващото се в помещенията.
Между другото, филмът може да се използва и за декориране на стъклени завеси, ако такива са предвидени от дизайна на проекта. Той ще украси интериора, може да имитира различни видове материали до кожата на влечугите и камъка. С правилния избор на нюанс и ефект, той може да придаде цялост на стила на банята, да посочи определена идея за стилистика.
В допълнение, материалът ще предпази стъклото от механични повреди, ще спести топлина вътре, което ще намали количеството гориво, използвано за поддържане на подходящата атмосфера за вземане на процедури за баня..
Осветление
Този въпрос изисква специален подход. Независимо от дизайна и размера на осветителните тела, общо правило е да се използват предпазни средства за вътрешно обзавеждане на правилната височина спрямо опасните зони.. Не можете да украсите банята вътре с полилеи с отворени сенници. Можете да го украсите красиво с вградено осветление. Тук също можете да използвате техниката на зониране..
Например, можете да определите тоалетната с централно осветление, като я допълвате със спомагателно осветление от тип безопасност, което включва светодиоди. Ако използвате оптични влакна и LED лента, можете да създадете уникално композитно осветление във ваната..

В същото време той няма да излъчва живачни пари във въздуха, както обичайните енергоспестяващи лампи. Освен това можете да изберете всеки нюанс на блясъка на такива лампи, ако украсите интериорното подреждане на банята или една от нейните стаи с разнообразие от RGB.
Масивните лампи са нежелателни за осветяване на вана. Това визуално ще добави тежест към интериора на помещенията, независимо дали става дума за съблекалня, пералня или парна баня..
Нуждаем се от опции с решетъчни огради или затворени сенници, изработени от трайно стъкло, които могат да бъдат разположени на разстояние 2,3 м от тавана и поне на 60 см от източника на вода и пара. Прожекторите биха били добро решение., вградени в стенни или таванни панели.
В следващото видео ви очакват етапите на изграждане на баня с беседка под един покрив..
Баня с веранда под един покрив: красиви проекти
Когато търся проект за баня, искам той да бъде максимално удобен. Това включва не само процедурите за къпане: наличието на зона за отдих има значение.
Едно от успешните решения, според дизайнерите, е баня с веранда под един покрив. Дизайнът на такава сграда обаче има редица характеристики..
Особености
Според установените разпоредби, верандата е продължение на същата основа заедно с основната конструкция. Освен това, за разлика от беседката, тя има една обща стена с банята. Останалите опции за дизайн могат да бъдат много разнообразни. Например, верандата за баня може да бъде отворена или затворена.
Всеки тип структура има свои собствени характеристики, които трябва да се вземат предвид на етапа на проектиране на конструкцията. Например, при един покрив е важно да се създаде същото тегло натоварване на стените. В противен случай с течение на времето стените могат да бъдат изкривени и свиването на конструкцията ще бъде неравномерно..
При изграждането на такава баня е важно да се вземат предвид и други характеристики, сред които изборът на място на сайта има значение. Това е необходимо, за да не се застоява влагата и е имало възможност за оттичане на течност.
Те обмислят и основата, която обикновено е висока за такива сгради. Това се дължи и на защитата на банята с веранда от постоянна влага и студ, което е свързано с дъждовно време. В същото време котата е най -доброто място за създаване на такива структури..
Наличието на веранда под един покрив с вана ви позволява да проектирате удобна конструкция с липса на използваемо пространство. Освен това поради една обща преграда се спестява материал за изграждането на носещата стена. Така в къщата ще се поберат пералня, парна баня и един вид стая за почивка..
С рамкови панелни сгради на сградата можете да спестите бюджета си. В този случай банята може да има не само 1, но и 2 етажа. Това ще ви позволи да използвате по -ефективно вътрешното пространство. Например, ще бъде възможно да се разпредели стая за готвене, както и спалня..
Ако подходите разумно към проектирането на сградата, дори билярдна зала, антре и складово помещение могат да бъдат поставени на втория етаж. Такива структури обаче са типични за сгради с достатъчно кадри..
Фондация
Проектите могат да бъдат много разнообразни. Например, ако желаете, можете да поставите барбекю в такава къща. Обикновено кадрите, броят на етажите, ограждащите конструкции, интериорното подреждане зависят от вкусовите предпочитания и бюджета..
В зависимост от вида на основата, във ваната може да се постави тежка печка. За такъв проект се използва монолитна лента тип фундамент.. Излива се до височината на пода, включително цялата площ на сградата, като се вземе предвид барбекюто.
В случай на поставяне на барбекю, изобщо не е необходимо да се извършва ивична основа.. Ще бъде достатъчно да направите купчина или колонен. Например, тя може да бъде вързана с рамка, изработена от дървен материал със сечение 15х15 см, върху която е поставен подът. За да се осигурят противопожарни мерки, подовата настилка е изработена от огнеупорни материали. Това ще ви позволи да поставите мангал във ваната, в допълнение към измиването, да заемете място в сградата за готвене на барбекю и барбекю.
Основното изискване в началния етап на строителството е надеждността на основата. В противен случай сградата няма да се различава по издръжливост..
Строителни материали
За изграждането на баня с веранда се използват различни суровини. Въпреки това, при условия на висока влажност, които обикновено са характерни за банята, човек трябва да бъде особено внимателен при избора на материал. Обикновено за него се използва дърво.. Най -добрият вид суровина е иглолистната дървесина.. Въпреки естествения си произход и податливостта на разрушаване по време на работа, те са по -устойчиви на гниене.
В допълнение, такива материали са по-лесни за обработка по време на строителството на сгради от тип баня..
За да придадат на иглолистните дървета желаните качества, те се подлагат на огнеупорни и противогъбични обработки..
Такива суровини се използват за основно строителство. Те обаче не са подходящи за вътрешна декорация на стени, подове и тавани (особено в парна баня). Това може да доведе до отделяне на смола под въздействието на висока температура, което може да причини изгаряния по кожата на потребителя на ваната..
Обикновено стволовете от масивни дървета се използват при изграждането на дървени бани. Дървената къща се нарязва съгласно правилата на специална технология, като се изрязват канали с канали за удобство на перпендикулярно полагане. При калибриране на трупи такава структура ще изглежда красива..
Процесът на издигане на баня с веранда от бар може да бъде механизиран. В този случай всяка изрязана греда се засажда върху дървени щифтове.
За верандата обикновено се използва същият материал като за основната конструкция. По -рядко, заедно с дърво, се използват тухли и ондулин. При остъкляване такава структура ще прилича на малка къща, която може да се използва за отдих по всяко време на годината. При проектирането се вземат предвид редица нюанси, за да се направи останалата част от собствениците на жилища възможно най -удобни..
Например, веранда може да бъде адаптирана за трапезария с зона за готвене, място за приемане на гости, стая за отдих, а понякога и спалня. Някои проекти са замислени по такъв начин, че банята може да се превърне в къща за гости, ако е необходимо. В този случай формата на верандата може да бъде ъглова, традиционна правоъгълна, квадратна.
Ъгловото разположение на верандата ще ви позволи да изведете комина през покрива и да премахнете дима във ваната.
Вътре могат да се използват материали, устойчиви на влага и пара. Дървените деривати тук не са добри, тъй като те ще се разслоят с течение на времето. Но повърхностните облицовки със стени, таванни панели и ламели са доста приложими.
Не може да се използва в парни бани и миене на гипсокартон и облицовки на гипсова основа. Плочките обаче могат да се използват за украса на верандата, вестибюла и съблекалнята. Като алтернатива можете да поставите дъска.
Проекти: Съчетаване на функционалност и естетика
Един от значимите аспекти е зонирането на банята. Разделянето на отделни функционални области ще позволи ясна организация, която ще помогне за поддържане на реда. В зависимост от замисления дизайн, вътре могат да се използват прегради, плъзгащи се екрани, изработени от пластмаса или стъкло. Изборът им зависи от правилната организация на топло- и хидроизолацията..
Красиво изглежда баня с веранда под един покрив, която на входа на главната сграда на верандата има стъпала и огради. Това ще ви позволи да проектирате сградата, като вземете предвид общата концепция за ландшафтен дизайн. Например, стъпалата могат да бъдат украсени със свежи цветя, една от стените на верандата може да бъде украсена с озеленяване. Като цяло такива сгради предоставят много възможности за проектиране..
Банята на мястото може да се отличи с отделно осветление. Лампите на входа, направени под формата на улични лампи, ще изглеждат красиви. Ако желаете можете да направите няколко аксесоари за верандата със собствените си ръце. Например, това могат да бъдат вази от бетон, счупено стъкло или необичаен панел за декориране на стената на верандата.
Дизайнът на рамките или тяхната необичайна конфигурация може да изглежда не по -малко интересно. В същото време можете да поставите удобни мебели на терасата, да окачите хамак, да поставите маса за организиране на чаени партита. Днес няма да е трудно да намерите мобилни мебели. На рафтовете на магазините можете да изберете например пластмасови мебелни комплекти, наподобяващи дивани, плетени столове, включително маси с ажурен модел.
Ако пространството на верандата е затворено, вътре може да се монтира камина, като по този начин се създаде стая за гости от разширението с атмосфера на домашен комфорт.
Стилно решение би било да се използват контрастни материали за дърво. Това ще направи текстурата на масива по -изразителна, ще освободи банята от усещането за тежест, присъщо на сградите с изобилие от дърво в декорацията.. Извън банята една от стените на верандата може да бъде украсена с имитация на камък или тухла. Такъв материал няма да направи натоварването на стените по -тежко, докато структурата ще изглежда по -интересна.
В зависимост от идеята за дизайн, верандата може да има повече от един вход. Например, може да има две от тях, разположени отстрани на разширението. Те могат да доведат до една врата, което може да бъде удобно за домакинствата.
Банята може да се намира недалеч от къщата, но е неприемливо да се комбинират две сгради с помощта на веранда.
Отделно, заслужава да се отбележи възможността за подреждане на басейна пред банята. За удобство на достъпа до него се изгражда проход. В този случай настилката около самия басейн се изпълнява на същото ниво. За това можете да използвате дъска за тераса. Този дизайн изглежда стилен, а неговата функционалност и комфорт се открояват забележимо на фона на други проекти за бани с веранда.
Декорацията на прозорци заслужава специално внимание. За тяхна сметка днес е възможно не само да се запълнят помещенията на банята със светлина, но и да се направи сградата привлекателна в архитектурно отношение. Изборът на правилната форма, размер и функционалност на прозорците с двоен стъклопакет ще гарантира, наред с други неща, вентилацията на банята, ако изберете продукти с вентилация. Освен това можете да изберете дизайна на прозорците по такъв начин, че заедно с основната идея на къщата банята да изглежда красива и да не прилича на голяма дървена кутия..
Примери за
Нищо няма да ви каже повече за функционалността от илюстративните примери. Те ясно показват разграничението на пространствата за парна баня, пералня, стая за почивка.
Когато пространството е ограничено до минимум или площта е нестандартна (тясна, например 3×6 m), трябва да победите дизайнерските характеристики на банята. Разположението на мебелите е направено линейно., обърнете специално внимание на страната на отваряне и затваряне на врати, за да не създавате ограничения за потребителите. При липса на кадри те се придържат към повече функционалност, като избират компактни мебели и водопровод. Не забравяйте да вземете под внимание ъгъла на наклон на покрива, което е особено важно при разнообразието с един наклон.
Обикновено височината на една от стените в този дизайн не надвишава 1,5 м. Някои трудности с поставянето на мебели, водопровод и необходими аксесоари могат да причинят възможности за проектиране на двуетажни сгради с таванско помещение. В такива случаи трябва внимателно да обмислите местоположението на всеки интериор, така че да не лишава потребителя от комфорт..
Дори отстрани и начинът на отваряне на прозорците имат значение. В този случай се вземат предвид не само прозорците на банята, но и конструкцията на остъклената веранда. Това е важно за всякакви кадри от банята и ще позволи, ако е необходимо, да се проветрят помещенията, особено ако в общата стая има камина или верандата е оборудвана с кухня. Конструкциите могат да бъдат оцветени със специален филм, предаване на светлина, но скриване на случващото се в помещенията.
Между другото, филмът може да се използва и за декориране на стъклени завеси, ако такива са предвидени от дизайна на проекта. Той ще украси интериора, може да имитира различни видове материали до кожата на влечугите и камъка. С правилния избор на нюанс и ефект, той може да придаде цялост на стила на банята, да посочи определена идея за стилистика.
В допълнение, материалът ще предпази стъклото от механични повреди, ще спести топлина вътре, което ще намали количеството гориво, използвано за поддържане на подходящата атмосфера за вземане на процедури за баня..
Осветление
Този въпрос изисква специален подход. Независимо от дизайна и размера на осветителните тела, общо правило е да се използват предпазни средства за вътрешно обзавеждане на правилната височина спрямо опасните зони.. Не можете да украсите банята вътре с полилеи с отворени сенници. Можете да го украсите красиво с вградено осветление. Тук също можете да използвате техниката на зониране..
Например, можете да определите тоалетната с централно осветление, като я допълвате със спомагателно осветление от тип безопасност, което включва светодиоди. Ако използвате оптични влакна и LED лента, можете да създадете уникално композитно осветление във ваната..
В същото време той няма да излъчва живачни пари във въздуха, както обичайните енергоспестяващи лампи. Освен това можете да изберете всеки нюанс на блясъка на такива лампи, ако украсите интериорното подреждане на банята или една от нейните стаи с разнообразие от RGB.
Масивните лампи са нежелателни за осветяване на вана. Това визуално ще добави тежест към интериора на помещенията, независимо дали става дума за съблекалня, пералня или парна баня..
Нуждаем се от опции с решетъчни огради или затворени сенници, изработени от трайно стъкло, които могат да бъдат разположени на разстояние 2,3 м от тавана и поне на 60 см от източника на вода и пара. Прожекторите биха били добро решение., вградени в стенни или таванни панели.
В следващото видео ви очакват етапите на изграждане на баня с беседка под един покрив..