
Банята е задължителен атрибут на крайградския и селския живот. В него можете не само да се измиете, но и да загреете, пара, да се отпуснете и да подобрите здравето си. Посещението в банята е цял ритуал, който дава мир, спокойствие, сила и енергия..
Затова към строителството трябва да се подхожда много сериозно и отговорно. Трябва да започнете с проект. А именно: изберете какъв размер ще бъде структурата. Преди това в селата се строеха малки бани – 3 на 3 м или 3 на 4 м. Разбира се, такава сграда е привлекателна финансово, но все още има малко удобства в нея. Комбинирането на перално отделение и парна баня не винаги е удобно.
В момента пазарът предлага голям брой проекти за всеки вкус и бюджет.. Проектът за баня с размер 4 на 6 m изглежда оптимален.. Той може да осигури стая за почивка, парна баня и душ с такъв размер, че 5-6 души могат удобно да се измият, изпарят и да се отпуснат..
Особености
Още преди началото на строителството трябва да определите на мястото мястото, където ще стои банята. Добре е, ако върху него има лек наклон – това ще улесни притока на вода. По -добре е той да оборудва септична яма, за да не замърсява околната природа..
Проектът на баня 4 на 6 m е разработен, като се вземат предвид свойствата на материала, от който се предполага, че ще бъде изграден. Най -често те са изградени от дърво. Тук също има някои тънкости. Например, брезата не е подходяща за тези цели, тъй като абсорбира много влага и бързо започва да гние. Иглолистното дърво също не е подходящо – под въздействието на високи температури започва да „плаче“, а дъбът – да се напуква. Аспенът е най -добрият избор., който също има добри ароматерапевтични свойства.
Като цяло банята 4х6 м е най -приемливият вариант. Такава сграда ще ви позволи удобно да настаните достатъчен брой хора, да оборудвате необходимите помещения и няма да изисквате големи разходи..

Когато избирате материал за строителство, вида на основата и т.н., трябва да запомните, че с течение на времето сградата ще се свие. Това е важен момент, който трябва да се има предвид при разработването на проект и издигането на сграда..
По желание банята може да бъде направена на 2 етажа. Сега няма да изненадате никого с това, но такова решение ще донесе много ползи. Достатъчно е да се отбележи, че вторият етаж всъщност ще бъде стая с размери 6×4 метра, в която можете да подредите удобна зона за отдих или да оборудвате стаи за гости.
Избор на материал
Когато избирате материали за изграждането на баня, трябва да се съсредоточите върху общия дизайн на обекта, в който сградата трябва да се вписва хармонично, личните предпочитания и свойства на всеки вид строителни материали.
Дървената сауна от дървени трупи е добра стара класика. Дървото е екологично, издръжливо, запазва топлината добре и ще бъде възможно да се спестят пари за вътрешна и външна декорация – самото естествено дърво е много естетично.
В допълнение към трупите можете да използвате лента. Разликата между пръчка и трупа е само в това, че първата на разрез се оказва квадратна форма, а втората – кръгла.

Дървеният материал по същия начин не изисква допълнително довършване, има същите свойства като дървения труп, но при издигане на дървена къща дървеният материал се монтира по -лесно и се консумира по -малко – следователно разходите за строителство се намаляват.
Броят на горските кубчета, необходими за строителството, се изчислява индивидуално за всеки проект. За да направите това, трябва да знаете размерите на основата (височина, дължина, ширина), броя на редовете армировка, нейния диаметър, размерите на дъските за кофраж и т.н..
Нарязаната баня, разбира се, е добър вариант, но не и единственият вариант. Сградата може да бъде направена от тухли, керамзитобетон или газосиликатни блокове, от газобетонни блокове, шлакови блокове и други. Всеки от тези материали има предимства и недостатъци..

Разширеният глинен бетон, например, запазва топлината добре, е здрав, издръжлив, устойчив на влага, устойчив е на огън, не е податлив на мухъл и плесен. В допълнение, бетонната стена от керамзит е много по -лека от например тухлена стена и се издига по -бързо..
Недостатъците на този материал са много по -малко.. Те включват:
- непривлекателен външен вид на блоковете, изискващ допълнителни разходи за довършване;
- необходимостта от внимателно изчисление по време на строителството, като се вземе предвид здравината на блоковете;
- материалът не диша добре.

Основните предимства на газосиликатните блокове са тяхната огнеустойчивост и екологичност..
Порестата структура на газобетон позволява на този материал да запазва топлината добре, да осигурява шумоизолация и също така да поддържа нормално ниво на влажност.
Безспорните предимства на шлакоблока са:
- достъпна цена;
- скорост на строителството;
- звукоизолация;
- декоративните видове шлакоблокове не изискват допълнително довършване.
Сред недостатъците са непривлекателният външен вид на обикновени шлакоблокове (без декорация), голямо тегло, нестабилност към влага (започва да се срутва).

Друг вариант е да инсталирате рамкова вана. Той се възстановява дори в производството, материалът се коригира и се проверява дали всичко се взема предвид. След това разглобяват и изграждат на място.
Такава структура се изгражда бързо, не изисква капиталова основа.

Що се отнася до основата, можем да кажем, че най -приемливият ще бъде дизайн на ленти. Ако теглото на покривната конструкция не е твърде голямо, е допустимо да се използват винтови пилоти при издигане на основата. В този случай трябва да се уверите, че монтажът на пилоти се извършва на всеки 50-70 сантиметра..
Оформление
Схемата за сауна 4х6 не е само парна баня и пералня. Може да бъде оборудван с покрита веранда за комфортно прекарване през студения сезон, открита тераса за релакс през лятото.

Ако банята има втори етаж със спалня, където гостите могат да нощуват, тя се превръща в истински комплекс за баня. В допълнение към спалнята, басейн, билярд и стая за отдих могат да бъдат поставени на втория етаж. След това първият се разпределя в парната баня и отделението за измиване..
Когато съставяте чертеж на бъдещата структура, е необходимо предварително да помислите за местоположението и размера на стаите. Например площта на съблекалнята, която предотвратява проникването на студен въздух в помещението, се измерва в размер на 1,3 м2 на човек плюс мястото, където ще се съхраняват нещата и принадлежностите за баня.

За парната баня – различни стандарти. Трябва да има поне 1 квадратен метър пространство на човек, плюс разстоянието между фурната и стените, плюс пътеки. Оптималната височина на тази стая се счита за 2-2,1 м..
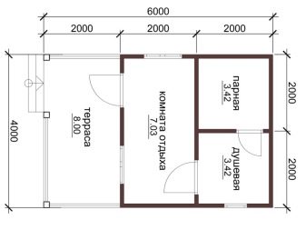
Като цяло стандартният план за баня 4 на 6 метра се състои от:
- съблекалня;
- парни бани;
- пране отдел;
- стаи за почивка.

Веранда, тераса, таванско помещение – това е по преценка на собствениците. Размерите на сградата дават възможност да се играе с размера и разположението на стаите..
Банята ще бъде построена ръчно или по поръчка – проектът е необходим във всеки случай. Това ще ви позволи предварително да разпределите помещения, да определите техните размери, образно да си представите къде ще се намира, да използвате най-рационално пространството.
Покривът може да бъде скатен или двускатен. Вторият вариант изглежда по -ефектно, по -естетически.. Баня с двускатен покрив, освен това, ще ви позволи да използвате пространството за оборудване на стая за почивка или за съхранение на неща.

По -добре е банята да е изработена от същите материали, в същия стил като къщата – това ще запази целостта на стила, ще създаде хармоничен ансамбъл на сайта. Като цяло, когато изграждате баня, не трябва да забравяте за общия дизайн на имота. Сградата трябва да се вписва в нея, а не да се откроява от общата картина с дизайна си.
Добре е сайтът да е оборудван с кладенец – това ще гарантира постоянното наличие на прясна вода във ваната и ще ви спести от ненужни разходи.
Строителни работи
Преди да започнете строителството, трябва да спазвате няколко правила:
- Банята трябва да се намира на хълм. Ако на мястото няма естествена кота, ще трябва да изградите изкуствена. В този случай строителството ще трябва да бъде отложено за една година – така че почвата да може да се утаи, да се уплътни по естествен начин.
- Необходимо е да се реши проблемът с водоснабдяването. Добър вариант е използването на кладенец.
- Сградата трябва хармонично да се вписва в цялостния дизайн на обекта.
- Доставката и съхранението на строителни материали е друг важен въпрос, който изисква ранно решение..

Веднага щом се вземат предвид всички нюанси, можете да започнете работа.
На първо място, трябва да попълните основата. Дълбочината му зависи от вида на почвата на площадката и от това колко близо са подземните води до повърхността..
Ако почвата е глинеста или песъчлива, основата може да е плитка. На глинеста влажна почва тя ще трябва да бъде положена по -дълбоко – под марката, върху която почвата замръзва през зимата.
Ако при полагане на основата се използват бетонни блокове, ще бъде препоръчително да се направи пясъчна възглавница под тях. Това ще им попречи да се „изпъкнат“.
Типичен проект за баня с размери 4×6 m предполага сграда с пет стени. Следователно те започват да изграждат дяла в началния етап..

Преди да продължите с полагането на първата корона (ако банята е изградена от трупи или дървен материал), повърхността на основата трябва да бъде обработена със специална смес, която ще осигури хидроизолация на основата. Тя може да бъде мастика или хидроизолационен материал на рула..
Първата корона е отправна точка на цялата конструкция. Крайният резултат зависи от неговата точност..
След като всички връзки са фиксирани, трябва да проверите колко равномерно е засаден дървеният материал и дали ъглите са точно измерени.

Ако има дори и най -малката неточност, по -добре е да я преработите, в противен случай по време на експлоатация сградата ще “води”, може да се появят пукнатини и това ще съкрати експлоатационния живот на сградата.
По -добре е да започнете втория ред от ъгъла.. Всеки ред трябва да бъде положен с влакна от юта – това ще осигури добра топлоизолация.
По -нататъшната работа продължава по предварително изготвен план. Подробен чертеж на бъдещата баня трябва да бъде съставен внимателно, всички размери трябва да бъдат точно посочени върху нея, в противен случай ще има закъснение по време на строителния процес, което ще повлияе на скоростта на работа.
Веднага щом височината на стените достигне необходимото ниво, можете да започнете изграждането на покрива. Преди да започнете всякакви покривни работи, трябва да покриете таванните греди с дъски.. На първо място, трябва да проверите всички размери на горната корона (или ред), така че противоположните стени да са строго успоредни една на друга.. След това се монтират гредите, решетката, покривното покритие, дренажната система.

Следващата стъпка е подът. Тя трябва да бъде изолирана навсякъде, с изключение на парната баня и пералнята.. За тази цел е подходяща минерална вата.. Пароизолацията ще бъде осигурена от съвременни материали.
На първо място се монтира грубо покритие. Върху него се полага хидроизолационен материал – той предпазва памучната вата от влага отдолу. След това се полага минералната вата – внимателно, без празнини, покриваща цялата повърхност на пода. Отгоре се полага пароизолационно покритие. След това се полага довършителният под. Може да се фиксира с прости нокти..
Ако е необходимо, подовата настилка може да се шлайфа, первазите могат да бъдат заковани, лакирани.

В традиционната руска баня обикновено има три стаи – съблекалня, пералня и парна баня. Но много собственици на селски къщи допълват този класически комплект със стая за отдих, басейн, вестибюл или таванско помещение..
Независимо от конфигурацията, размерът на всяка стая трябва да е достатъчен за комфортен престой. Дължината на фасадата на банята 4 на 6 m ви позволява да спазвате това изискване. На какво обаче не си струва спестяването – това е на топлоизолация. Дори ако престоят в страната и следователно използването на банята се предполага само през лятото, трябва да осигурите добра топлоизолация. Това ще позволи на банята да се загрее бързо и да се затопли за дълго време..

В процеса на изграждане на стени трябва предварително да очертаете къде ще бъдат разположени прозорците и вратите. В този случай не бива да изрязвате цяла лента или трупа – можете да изпробвате наличните остатъци.
Вътрешно подреждане
Вътрешната декорация на банята зависи само от личните предпочитания на собствениците на сайта. Това може да бъде класически дизайн с естествено дърво, могат да се използват и съвременни материали..
Например, в пералня често можете да намерите душ кабини или просто тави, които осигуряват бързо източване на вода, предотвратявайки попадането на вода върху други предмети. Това е добро решение за сауна, декорирана в модерен стил..
Интериорът на стаята за почивка може да включва не само маса и столове, но и удобни дивани, телевизор, шкафове за съхранение на аксесоари за баня..

В парната баня рафтовете са необходим атрибут на интериорната декорация. Те трябва да са достатъчно широки, за да седят удобно, докато се наслаждавате на парата. Оптималният размер на рафта е от 40 до 90 сантиметра.
В тази стая се предпочита дървото. Той е издръжлив, издържа добре на високи температури и не отделя вредни вещества. Някои дървесни видове, като трепетлика, отделят специални вещества, които са полезни за човешкото здраве и влияят положително на емоционалното му състояние..

Не се увличайте по метални повърхности, особено в парната баня и пералнята. Горещият метал може да причини изгаряния и наранявания, които могат да развалят не само настроението, но и евентуално да доведат до сериозни последици..
Като цяло комфортът и безопасността са основните критерии за интериорна декорация. Всеки има своя представа за комфорт, така че може да има много възможности за интериорен дизайн. Банята е място, където човек почива с тяло и душа. Естествените материали ще ви помогнат да направите престоя си в безопасност, а правилният дизайн на стаите и достатъчното пространство ще добавят комфорт..
Въпреки че изграждането на баня се счита за доста проста задача, е необходимо внимателно да се обмисли оформлението, материалите за вътрешна декорация и нейният стил. Тогава посещението на банята ще донесе максимално удоволствие и полза..
Примери за готови сгради
Банята 4 на 6 метра сама по себе си е впечатляваща структура и ако е оборудвана и с жилищен втори етаж, тя вече е истински комплекс за баня в миниатюра.

На втория етаж можете да подредите голяма стая за отдих, можете да разделите стаята на няколко малки – и да подредите там спални за гости. Или можете да допълните сауната с басейн, където ще бъде много приятно да плувате след парната баня..

Ако таванското помещение е необитаемо, там можете да съхранявате принадлежности за баня, запас от дърва за огрев или въглища, метли. В този случай разходите за подреждане и довършване на втория етаж ще бъдат намалени до минимум, а функционалността на цялата сграда ще се увеличи..
За преглед на проекта за баня с размери 4×6 от профилиран бар, вижте следното видео.
4×6 проекти за баня: характеристики на оформлението
Банята е задължителен атрибут на крайградския и селския живот. В него можете не само да се измиете, но и да загреете, пара, да се отпуснете и да подобрите здравето си. Посещението в банята е цял ритуал, който дава мир, спокойствие, сила и енергия..
Затова към строителството трябва да се подхожда много сериозно и отговорно. Трябва да започнете с проект. А именно: изберете какъв размер ще бъде структурата. Преди това в селата се строеха малки бани – 3 на 3 м или 3 на 4 м. Разбира се, такава сграда е привлекателна финансово, но все още има малко удобства в нея. Комбинирането на перално отделение и парна баня не винаги е удобно.
В момента пазарът предлага голям брой проекти за всеки вкус и бюджет.. Проектът за баня с размер 4 на 6 m изглежда оптимален.. Той може да осигури стая за почивка, парна баня и душ с такъв размер, че 5-6 души могат удобно да се измият, изпарят и да се отпуснат..
Особености
Още преди началото на строителството трябва да определите на мястото мястото, където ще стои банята. Добре е, ако върху него има лек наклон – това ще улесни притока на вода. По -добре е той да оборудва септична яма, за да не замърсява околната природа..
Проектът на баня 4 на 6 m е разработен, като се вземат предвид свойствата на материала, от който се предполага, че ще бъде изграден. Най -често те са изградени от дърво. Тук също има някои тънкости. Например, брезата не е подходяща за тези цели, тъй като абсорбира много влага и бързо започва да гние. Иглолистното дърво също не е подходящо – под въздействието на високи температури започва да „плаче“, а дъбът – да се напуква. Аспенът е най -добрият избор., който също има добри ароматерапевтични свойства.
Като цяло банята 4х6 м е най -приемливият вариант. Такава сграда ще ви позволи удобно да настаните достатъчен брой хора, да оборудвате необходимите помещения и няма да изисквате големи разходи..
Когато избирате материал за строителство, вида на основата и т.н., трябва да запомните, че с течение на времето сградата ще се свие. Това е важен момент, който трябва да се има предвид при разработването на проект и издигането на сграда..
По желание банята може да бъде направена на 2 етажа. Сега няма да изненадате никого с това, но такова решение ще донесе много ползи. Достатъчно е да се отбележи, че вторият етаж всъщност ще бъде стая с размери 6×4 метра, в която можете да подредите удобна зона за отдих или да оборудвате стаи за гости.
Избор на материал
Когато избирате материали за изграждането на баня, трябва да се съсредоточите върху общия дизайн на обекта, в който сградата трябва да се вписва хармонично, личните предпочитания и свойства на всеки вид строителни материали.
Дървената сауна от дървени трупи е добра стара класика. Дървото е екологично, издръжливо, запазва топлината добре и ще бъде възможно да се спестят пари за вътрешна и външна декорация – самото естествено дърво е много естетично.
В допълнение към трупите можете да използвате лента. Разликата между пръчка и трупа е само в това, че първата на разрез се оказва квадратна форма, а втората – кръгла.
Дървеният материал по същия начин не изисква допълнително довършване, има същите свойства като дървения труп, но при издигане на дървена къща дървеният материал се монтира по -лесно и се консумира по -малко – следователно разходите за строителство се намаляват.
Броят на горските кубчета, необходими за строителството, се изчислява индивидуално за всеки проект. За да направите това, трябва да знаете размерите на основата (височина, дължина, ширина), броя на редовете армировка, нейния диаметър, размерите на дъските за кофраж и т.н..
Нарязаната баня, разбира се, е добър вариант, но не и единственият вариант. Сградата може да бъде направена от тухли, керамзитобетон или газосиликатни блокове, от газобетонни блокове, шлакови блокове и други. Всеки от тези материали има предимства и недостатъци..
Разширеният глинен бетон, например, запазва топлината добре, е здрав, издръжлив, устойчив на влага, устойчив е на огън, не е податлив на мухъл и плесен. В допълнение, бетонната стена от керамзит е много по -лека от например тухлена стена и се издига по -бързо..
Недостатъците на този материал са много по -малко.. Те включват:
Основните предимства на газосиликатните блокове са тяхната огнеустойчивост и екологичност..
Порестата структура на газобетон позволява на този материал да запазва топлината добре, да осигурява шумоизолация и също така да поддържа нормално ниво на влажност.
Безспорните предимства на шлакоблока са:
Сред недостатъците са непривлекателният външен вид на обикновени шлакоблокове (без декорация), голямо тегло, нестабилност към влага (започва да се срутва).
Друг вариант е да инсталирате рамкова вана. Той се възстановява дори в производството, материалът се коригира и се проверява дали всичко се взема предвид. След това разглобяват и изграждат на място.
Такава структура се изгражда бързо, не изисква капиталова основа.
Що се отнася до основата, можем да кажем, че най -приемливият ще бъде дизайн на ленти. Ако теглото на покривната конструкция не е твърде голямо, е допустимо да се използват винтови пилоти при издигане на основата. В този случай трябва да се уверите, че монтажът на пилоти се извършва на всеки 50-70 сантиметра..
Оформление
Схемата за сауна 4х6 не е само парна баня и пералня. Може да бъде оборудван с покрита веранда за комфортно прекарване през студения сезон, открита тераса за релакс през лятото.
Ако банята има втори етаж със спалня, където гостите могат да нощуват, тя се превръща в истински комплекс за баня. В допълнение към спалнята, басейн, билярд и стая за отдих могат да бъдат поставени на втория етаж. След това първият се разпределя в парната баня и отделението за измиване..
Когато съставяте чертеж на бъдещата структура, е необходимо предварително да помислите за местоположението и размера на стаите. Например площта на съблекалнята, която предотвратява проникването на студен въздух в помещението, се измерва в размер на 1,3 м2 на човек плюс мястото, където ще се съхраняват нещата и принадлежностите за баня.
За парната баня – различни стандарти. Трябва да има поне 1 квадратен метър пространство на човек, плюс разстоянието между фурната и стените, плюс пътеки. Оптималната височина на тази стая се счита за 2-2,1 м..
Като цяло стандартният план за баня 4 на 6 метра се състои от:
Веранда, тераса, таванско помещение – това е по преценка на собствениците. Размерите на сградата дават възможност да се играе с размера и разположението на стаите..
Банята ще бъде построена ръчно или по поръчка – проектът е необходим във всеки случай. Това ще ви позволи предварително да разпределите помещения, да определите техните размери, образно да си представите къде ще се намира, да използвате най-рационално пространството.
Покривът може да бъде скатен или двускатен. Вторият вариант изглежда по -ефектно, по -естетически.. Баня с двускатен покрив, освен това, ще ви позволи да използвате пространството за оборудване на стая за почивка или за съхранение на неща.
По -добре е банята да е изработена от същите материали, в същия стил като къщата – това ще запази целостта на стила, ще създаде хармоничен ансамбъл на сайта. Като цяло, когато изграждате баня, не трябва да забравяте за общия дизайн на имота. Сградата трябва да се вписва в нея, а не да се откроява от общата картина с дизайна си.
Добре е сайтът да е оборудван с кладенец – това ще гарантира постоянното наличие на прясна вода във ваната и ще ви спести от ненужни разходи.
Строителни работи
Преди да започнете строителството, трябва да спазвате няколко правила:
Веднага щом се вземат предвид всички нюанси, можете да започнете работа.
На първо място, трябва да попълните основата. Дълбочината му зависи от вида на почвата на площадката и от това колко близо са подземните води до повърхността..
Ако почвата е глинеста или песъчлива, основата може да е плитка. На глинеста влажна почва тя ще трябва да бъде положена по -дълбоко – под марката, върху която почвата замръзва през зимата.
Ако при полагане на основата се използват бетонни блокове, ще бъде препоръчително да се направи пясъчна възглавница под тях. Това ще им попречи да се „изпъкнат“.
Типичен проект за баня с размери 4×6 m предполага сграда с пет стени. Следователно те започват да изграждат дяла в началния етап..
Преди да продължите с полагането на първата корона (ако банята е изградена от трупи или дървен материал), повърхността на основата трябва да бъде обработена със специална смес, която ще осигури хидроизолация на основата. Тя може да бъде мастика или хидроизолационен материал на рула..
Първата корона е отправна точка на цялата конструкция. Крайният резултат зависи от неговата точност..
След като всички връзки са фиксирани, трябва да проверите колко равномерно е засаден дървеният материал и дали ъглите са точно измерени.
Ако има дори и най -малката неточност, по -добре е да я преработите, в противен случай по време на експлоатация сградата ще “води”, може да се появят пукнатини и това ще съкрати експлоатационния живот на сградата.
По -добре е да започнете втория ред от ъгъла.. Всеки ред трябва да бъде положен с влакна от юта – това ще осигури добра топлоизолация.
По -нататъшната работа продължава по предварително изготвен план. Подробен чертеж на бъдещата баня трябва да бъде съставен внимателно, всички размери трябва да бъдат точно посочени върху нея, в противен случай ще има закъснение по време на строителния процес, което ще повлияе на скоростта на работа.
Веднага щом височината на стените достигне необходимото ниво, можете да започнете изграждането на покрива. Преди да започнете всякакви покривни работи, трябва да покриете таванните греди с дъски.. На първо място, трябва да проверите всички размери на горната корона (или ред), така че противоположните стени да са строго успоредни една на друга.. След това се монтират гредите, решетката, покривното покритие, дренажната система.
Следващата стъпка е подът. Тя трябва да бъде изолирана навсякъде, с изключение на парната баня и пералнята.. За тази цел е подходяща минерална вата.. Пароизолацията ще бъде осигурена от съвременни материали.
На първо място се монтира грубо покритие. Върху него се полага хидроизолационен материал – той предпазва памучната вата от влага отдолу. След това се полага минералната вата – внимателно, без празнини, покриваща цялата повърхност на пода. Отгоре се полага пароизолационно покритие. След това се полага довършителният под. Може да се фиксира с прости нокти..
Ако е необходимо, подовата настилка може да се шлайфа, первазите могат да бъдат заковани, лакирани.
В традиционната руска баня обикновено има три стаи – съблекалня, пералня и парна баня. Но много собственици на селски къщи допълват този класически комплект със стая за отдих, басейн, вестибюл или таванско помещение..
Независимо от конфигурацията, размерът на всяка стая трябва да е достатъчен за комфортен престой. Дължината на фасадата на банята 4 на 6 m ви позволява да спазвате това изискване. На какво обаче не си струва спестяването – това е на топлоизолация. Дори ако престоят в страната и следователно използването на банята се предполага само през лятото, трябва да осигурите добра топлоизолация. Това ще позволи на банята да се загрее бързо и да се затопли за дълго време..
В процеса на изграждане на стени трябва предварително да очертаете къде ще бъдат разположени прозорците и вратите. В този случай не бива да изрязвате цяла лента или трупа – можете да изпробвате наличните остатъци.
Вътрешно подреждане
Вътрешната декорация на банята зависи само от личните предпочитания на собствениците на сайта. Това може да бъде класически дизайн с естествено дърво, могат да се използват и съвременни материали..
Например, в пералня често можете да намерите душ кабини или просто тави, които осигуряват бързо източване на вода, предотвратявайки попадането на вода върху други предмети. Това е добро решение за сауна, декорирана в модерен стил..
Интериорът на стаята за почивка може да включва не само маса и столове, но и удобни дивани, телевизор, шкафове за съхранение на аксесоари за баня..
В парната баня рафтовете са необходим атрибут на интериорната декорация. Те трябва да са достатъчно широки, за да седят удобно, докато се наслаждавате на парата. Оптималният размер на рафта е от 40 до 90 сантиметра.
В тази стая се предпочита дървото. Той е издръжлив, издържа добре на високи температури и не отделя вредни вещества. Някои дървесни видове, като трепетлика, отделят специални вещества, които са полезни за човешкото здраве и влияят положително на емоционалното му състояние..
Не се увличайте по метални повърхности, особено в парната баня и пералнята. Горещият метал може да причини изгаряния и наранявания, които могат да развалят не само настроението, но и евентуално да доведат до сериозни последици..
Като цяло комфортът и безопасността са основните критерии за интериорна декорация. Всеки има своя представа за комфорт, така че може да има много възможности за интериорен дизайн. Банята е място, където човек почива с тяло и душа. Естествените материали ще ви помогнат да направите престоя си в безопасност, а правилният дизайн на стаите и достатъчното пространство ще добавят комфорт..
Въпреки че изграждането на баня се счита за доста проста задача, е необходимо внимателно да се обмисли оформлението, материалите за вътрешна декорация и нейният стил. Тогава посещението на банята ще донесе максимално удоволствие и полза..
Примери за готови сгради
Банята 4 на 6 метра сама по себе си е впечатляваща структура и ако е оборудвана и с жилищен втори етаж, тя вече е истински комплекс за баня в миниатюра.
На втория етаж можете да подредите голяма стая за отдих, можете да разделите стаята на няколко малки – и да подредите там спални за гости. Или можете да допълните сауната с басейн, където ще бъде много приятно да плувате след парната баня..
Ако таванското помещение е необитаемо, там можете да съхранявате принадлежности за баня, запас от дърва за огрев или въглища, метли. В този случай разходите за подреждане и довършване на втория етаж ще бъдат намалени до минимум, а функционалността на цялата сграда ще се увеличи..
За преглед на проекта за баня с размери 4×6 от профилиран бар, вижте следното видео.