
В съвременния интериор окачените тавани заемат гордо място. Те се предлагат в голямо разнообразие от форми и са монтирани от различни довършителни материали.. Несъмненото им предимство е простата инсталация с минимално време за изпълнение..
Особености
При мазилката от строителите се изисква известен натрупан опит. Този процес не може да се извърши без предварителна подготовка. Но почти всеки може да постави рамката на тавана с минимум инструменти. Основното нещо, което трябва да имате във вашия арсенал: бормашина, мозайката, отвертка и ниво. Трябва да се отбележи, че има вид таван, който изисква вниманието на професионалисти. Това е система за опънат таван. Инсталацията се извършва със специално оборудване, топлинен пистолет. Домашен майстор може самостоятелно да монтира система от окачен таван от гипсокартон, пластмаса, облицовка. А също и за овладяване на таванната конструкция на армстронг.

За да изберете правилния тип таванско покритие, трябва да вземете предвид следните фактори:
- функционалност;
- естетика;
- технически и оперативни аспекти.

При определяне на функционалните характеристики на окачени конструкции трябва да се използват инструкциите на производителя и техническите листове. Те описват подробно как да се извърши инсталацията, за кой тип помещения са подходящи различни видове тавани. Техническите описания предоставят примери за проектни изчисления, както и таблици с всички данни. Затова специалистите са разработили одобрени документи, в които се казва кои помещения са по -подходящи за този или онзи вид таванско покритие..

Необходимо е да се избере не само материалът за монтаж, но и да се разработи конфигурацията на тавана. Носещата рамка трябва ясно да изпълнява своите функции.
Изборът на типа таван се влияе значително от:
- необходимостта от инсталиране на вентилационна система;
- полагане на комуникации за свързване на електричество;
- кондициониране;
- необходимостта от специфични свойства на материала (звукопоглъщане, пожарна безопасност, устойчивост на удар);
- експлоатационен живот и възможност за подмяна на отделни елементи.

Всеки потребител има списък със собствените си изисквания, особено естетическите и дизайнерските. Но има и общоприети от производителите на системи за окачени тавани. Те включват функционалност, устойчивост на влага, топлоизолация и експлоатационен живот. Трябва да се ръководите от тях..
Акустиката е начин за разпространение на звук. За офис пространството това е много важен критерий. Ниското ниво на шум има благоприятен ефект върху работния процес и увеличава производителността на труда. Има специални акустични плочи от немски производители, които абсорбират добре звука. Използването им е оправдано в помещения с високи нива на шум..

Опасните тавани могат да осигурят свободен достъп до комуникации, тръби, вентилация, отопление и пожароизвестителни системи. За да отстраните проблема, достатъчно е да премахнете декоративните тавански плочки, които ще осигурят достъп до тавана. С помощта на фалшив таван можете лесно да скриете дефекти и пукнатини в основата. Монтажът, демонтажът и поддръжката отнемат по -малко време в сравнение с други довършителни работи. Окачена система позволява поставяне на повече осветителни тела и абсорбира шума.

Разработването на изключителни дизайнерски тавани с различни, понякога странни форми може да бъде много скъпо за собственика. Но тя ще бъде единствена по рода си. Съвременните материали позволяват да се направи клетъчната структура на окачения таван почти невидима. Можете да поръчате различни дизайни на плочи и след това да сглобите сложен индивидуален модел от тях на тавана.

Положителните аспекти на таванните конструкции са следните:
- скрийте дефектите и недостатъците на основата. Това е важно при извършване на ремонтни дейности в стари сгради, където таваните, като правило, са измазани. С течение на времето финишният слой се напука и дори може да падне на някои места. Този вид покритие трябва да се разбие напълно и разтворът да се нанесе отново;
- производителите на строителни материали предлагат много решения за изграждането, формата и дизайна на тавани. Цената зависи от преценката на клиента: от евтини до ексклузивни решения;
- много голям избор от покрития – стъклени плочки за таван, пластмаса, метал, гипсокартон, дърво. Има лъскави и матирани тавани, както и с 3D ефект;
- няма нужда да разглобявате целия таван, за да замените част от покритието;
- лесен за грижи. Достатъчна е влажна кърпа, освен това покритията са прахоустойчиви;
- в пресечното пространство можете да поставите комуникации, окабеляване, тръби, вентилация;
- окачените тавани включват използването на различни осветителни устройства, като растерни лампи, прожектори, LED системи, полилеи;
- дълъг експлоатационен живот. Рамковите елементи са с гаранция за 15 години употреба. При подходяща грижа елементите на коланите издържат по -дълго;
- имат топлоизолационни свойства, абсорбират звук, са огнеупорни, не зависят от рязка промяна в температурата.

Негативните аспекти на таванните конструкции са следните:
- намаляване на разстоянието от пода до тавана. Окачената конструкция, като правило, се опира на спици, чиято дължина е 25 см. В апартаменти с малки размери намаляването на височината на помещението ще бъде много забележимо;
- високо ниво на цените спрямо други материали. Избелването на тавана е по -евтино, като се вземе предвид развитието на строителната индустрия, е по -добре да изберете по -скъп и издръжлив материал. Всеки клиент се стреми към индивидуалност и това може да се постигне с помощта на съвременни решения;
- страх от висока влажност. В случай на наводнение ще е необходимо да се смени декоративното покритие и носещите елементи..
Материали (редактиране)
Окаченият таван се състои от метална рамка, която заема цялата площ на основата и таванните плочки, прикрепени към носещите конструкции.

Плочите могат да имат различни видове връзки:
- Клетки. Целият таван е разделен на квадрати или правоъгълници, които са покрити с плочи отзад..
- Плочки. Използва се предимно в офис помещения.
- Панели. Като декоративен елемент се приема панел под формата на правоъгълник с ширина над 30 см..
- Касета. Квадратите на рамковата конструкция са покрити с панели със същия размер.
- Рейки. По време на монтажа се използват декоративни ламели с различна дължина и ширина..
- Плътен таван. Най -често се сглобяват от листове от гипсокартон.
- Опънат таван. Използвано PVC фолио.

Декоративният завършек се състои от различни материали:
- Листове от гипсокартон. Те дават възможност за създаване на идеално гладко покритие, което може да бъде замазано, залепено с тапети, боядисано, нанесено с декоративна мазилка. С помощта на листове от гипсокартон в интериора се появяват тавани с различни нива и геометрични форми. Гипсокартонът е екологично чист и отговаря на санитарните стандарти. Неговите недостатъци включват факта, че се страхува от условия на висока влажност и се нуждае от покритие..
- Пластмасови панели. Изработени са от поликарбонат. Огледалната повърхност на пластмасовите тавани е отличен заместител на стъклени панели. Такъв таван е лесен за монтаж, устойчив на влага, устойчив на механични натоварвания, лесен за почистване..
- Метални. Това са алуминиеви или стоманени ламели, касети, панели. Те могат да бъдат матови или лъскави, с огледално покритие.
- дърво. Всеки продукт, изработен от естествено дърво, е гаранция за качество и издръжливост. Дървените изделия никога няма да излязат от мода, но големият им недостатък е високата им цена. Производителите предлагат да се използва по -евтин начин в декорацията. Използването на ПДЧ и MDF плоскости, чиято повърхност е покрита с шарки, имитиращи естествено дърво. Можете да намерите плочи, покрити с фурнир.
Телена рамка
Преди да продължите с инсталацията, трябва да изчислите количеството материали, да закупите инструмент, да обработите основата и да поставите маркировки.
Решетката е изработена от поцинковани стоманени профили. Тя не се страхува от влага, тъй като профилите са защитени от цинк. За таван от гипсокартон или пластмаса ще ви трябват таванни ленти (60×27 mm) и водачи (27×28 mm), както и окачвания, които ще държат конструкцията: пеперуди, съединители, анкерни окачвания, свързващи елементи. За закрепване трябва да закупите самонарезни винтове за метални и полипропиленови дюбели.
Инструменти
Основните инструменти за самостоятелно сглобяване на рамкови конструкции са както следва:
- ъглошлайф;
- перфоратор;
- лазерно ниво;
- рулетка, молив, линийка;
- строителни ножове и триони за метал или дърво;
- правило;
- отвес;
- ножици за метал;
- защитни очила;
- чук с махач на пирони;
- клещи, клещи за пресоване;
- ножовка за метал с фин зъб;
- отвертки, шило.

Нивото е необходимо, за да се приложат маркировките за монтажа на водещия елемент. Правилото се използва при рязане на листове от гипсокартон. След инсталирането на гипсокартон ще е необходимо допълнително довършване.. Инструменти и материали, от които може да се нуждаете:
- лента за подсилване на шевове;
- уплътнителна лента;
- грунд разтвор;
- замазка;
- валяк за боядисване и четка;
- нож за шпакловка;
- абразивен лист No240.
Как да се изчисли консумацията?
Разходи за тавана на Армстронг
Това са специални коефициенти, с които можете независимо да изчислите колко рамкови елементи и декоративни плочи са ви необходими, като знаете размера на тавана.
Знаейки нормите на потребление, можете:
- независимо изчислява количеството на необходимите материали;
- изчислете приблизителната цена на покупката;
- направете оценка;
- отпускат бюджет за работа.

Използвайки примера за таван с квадратна форма с обща площ 100m², ще направим изчисленията. Дължината на направляващата шина е 3,6 м. Монтира се на стъпки от 1,2 м. За да разберем необходимото количество, разделяме ширината на тавана 10 м на стъпката на монтаж (1,2 м). Оказва се 8,33 реда носители. Умножаваме дължината на стаята 10 м по броя на редовете. Почти 84 лин. м, а това са 28 броя лагерни профили. Напречна лента от 1,2 м се поставя на стъпки от 60 см. Повтаряме подобно изчисление: откриваме броя на редовете (10 м дължина се разделя на 0,6 м стъпка на монтаж). Имаме ги почти 17. В линейни метри това се оказва 167. А на парчета се оказва почти 140 (167 линейни метра трябва да се разделят на 1,2 м – дължината на шината).

Водачите от 0,6 м са поставени със стъпка от 1,2 м. м релси. Техният брой ще бъде 140 броя. Закачалките са поставени на ленти от 3,6 м със стъпка от 1,2 м. За 1 м² от тавана ще са необходими 0,7 закачалки. Ъгловият профил се изчислява по периметъра на помещението, дължината му е 3 м. За 1 м² са ви необходими 0,4 линейни метра. м.

С помощта на тези изчисления е възможно да се изчисли консумацията на таванни решетки, акустични. Не забравяйте, че това е средно изчисление. По-добре е да включите 7-10 допълнителни процента във всяка оценка, така че по-късно да няма неприятни ситуации. Трябва да вземете предвид следните фактори:
- формата на стаята;
- възможност за подреждане на релсите по диагонал;
- подрязващи плочи;
- процент на брака.
Разходи за разходи за таван от листове от гипсокартон
Вземете като пример таван с дължина 10 м и ширина 10 м. Размерът на тавана от гипсокартон е 2500x1200x9,5 mm. В резултат на изчисленията ще са необходими следните материали за работа:
- гипсокартон – 100 м²;
- CD профил – 87 броя;
- UD профил – 14 броя;
- окачване 60/27 – 160 броя;
- надлъжен съединител – 70 броя;
- съединител във формата на кръст – 160 броя;
- дюбел за таван – 1600 броя;
- самонарезен винт “бълха” – 900 броя;
- дюбел 6х40 – 200 броя;
- шпакловка – 40 кг;
- лента от фибростъкло – 130 rm. м.
Монтаж
Монтаж на окачен таван от гипсокартон
Първото нещо, което трябва да направите, е да намерите помощник. Много е трудно сами да фиксирате листове от гипсокартон, имате нужда от предпазна мрежа. По-добре е да започнете с обикновен таван на едно ниво, за предпочитане малка площ.
- Подготовка за монтаж. Трябва внимателно да огледате стените и таваните, да премахнете всичко, което може да попречи. Поставете комуникации, поправете пукнатини в основата на тавана.
- Маркирайте тавана. На тази стъпка трябва да вземете решение за осветителните устройства и тяхното свързване. Когато използвате прожектори, таванът пада с 3-4 см под общата им дължина, а когато използвате растерни светлини-с 5-10 см. Погледнете степента на кривина на стария таван, за да предотвратите подобни грешки с новия. Използвайки нивото, намерете най -долния ъгъл, от който ще започне маркировката. След като маркирахме ъглите, използваме правилото за измерване на равномерна хоризонтална линия по стените. Това е крайният ред на UD профила..
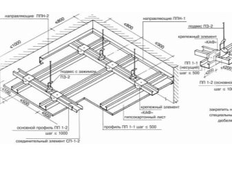
- Монтаж на рамкови елементи. Фиксираме направляващия профил по периметъра. За да направите това, на разстояние 30 см правим дупки за дюбели с перфоратор. Завиваме винтове за дърво в тях. Дължината на дюбелната тапа трябва да бъде най -малко 40 мм. CD профилите се инсталират на стъпки от 60 см. Те идват на 3 и 4 метра. За да придадете на рамката твърдост, трябва да използвате закачалки за профили, монтирани на стелажи, с стъпка на закрепване 40 cm.
- Полагане на комуникации и избор на място за лампата. За да инсталирате прожектор, трябва да направите дупка в гипсокартона с помощта на корона. Въвеждането на профил не е разрешено. В случай на полилей, той е прикрепен към основата или водещия профил. Профилът трябва да бъде допълнително подсилен със закачалки. Проводниците се поставят в специална гофрирана тръба. Комуникациите за повърхностно монтираното осветително тяло се извеждат през отвор в гипсокартона.
- Топлоизолация. Рамковата конструкция може и трябва да бъде изолирана с листове от минерална вата. Той не само служи като топлоизолация, но и абсорбира звука..
- Закрепване на листове от гипсокартон. Знаейки ширината между стените, трябва да изчислите колко цели листове са необходими и колко парчета. Нарежете листовете с помощен нож или пила за гипсокартон. Закрепете листовете от гипсокартон с самонарезни винтове за метал с стъпка 25 см. Главите на крепежните елементи са вдлъбнати в гипсокартон, така че да не ръждясват с течение на времето. Впоследствие те ще бъдат затворени с шпакловка. Специална лента се залепва към съединението на два листа и се замазва с гипсова смес. След пълно изсъхване шевовете трябва да бъдат шлифовани. Цялата повърхност трябва да бъде грундирана, така че финишът да се държи по -добре.
Монтаж на окачена конструкция от типа “Армстронг”
- Маркиране и схематичен чертеж. Както в предишния случай, първо трябва да съставите схема на оформление на структурите. След това преминете към маркиране. Профилите в такава система не са прикрепени към основата, но по линиите за маркиране капитанът ще се ориентира по -бързо, където ще бъдат разположени носещите профили и останалите джъмпери.
- За да монтирате окачен таван, имате нужда от него по -ниски с поне 15 см. Това е конструктивен минимален просвет за полагане на комуникации и инсталиране на лампи. Можете също да поставите изолация в това пространство. Най -удобният начин за маркиране на стена е използването на лазерно ниво. Вместо това можете да използвате обикновени нива на балончета..
- Полагане на комуникации. Преди да започнете да монтирате рамката, трябва да извършите цялата работа, свързана с електрическото окабеляване. Например, ако е известно, че осветителното устройство ще бъде голямо, тогава мястото на закрепването му трябва да бъде допълнително укрепено с окачвания..
- Инсталиране на рамката. След като завършите цялата работа, можете да продължите към инсталирането на профили. Ъгловите профили са прикрепени към бетонни основи с дюбели. Диаметърът им е 6 мм, поставени са на стъпки от 30 см по целия периметър. Ъгълът е закрепен към дървената основа с самонарезни винтове за дърво. Дължината им е 30 см.

Ако планирате да обшиете стените на стаята с листове от гипсокартон, тогава в металната стена се поставя допълнителен хоризонтален профил. Това се прави за твърдостта на конструкцията. Към този допълнителен профил е прикрепен ъгъл на стена. Според маркираните линии трябва да фиксирате набор от крепежни елементи (окачване, пеперуда, игла за плетене). За 1m² е необходим един комплект закачалки. На тези места, където са планирани осветителните тела, могат да се доставят допълнителни крепежни елементи.
Лагерните профили (3600) се поставят върху ъглите на стената и се закрепват със закачалки. Разстоянието между тях е 1,2 или 0,6 м. Зависи от начертаната диаграма. Цялата работа трябва да се контролира с помощта на ниво. Неподвижните носители трябва да бъдат разположени строго хоризонтално. Куките на окачванията са леко затегнати с клещи, така че носачите да се държат добре. 1200 носача са поставени на стъпки от 60 см. Те се вписват в слотовете на 3600 профила и щракват на място. Някои майстори ги сгъват, но това не е необходимо. Рамката така или иначе ще бъде твърда.
- Монтаж на таванни плочки. След като цялата работа по монтажа на рамковата конструкция приключи, се монтират лампи и декоративни плочи. Електрическите проводници са предварително свързани към желания квадрат, където ще бъде разположено осветителното тяло. А осветителното тяло е свързано с клемни блокове. Първо се монтират цели плочи. Те не са прикрепени към нищо, просто се поставят върху подготвената рамка. По правило външните клетки може да не съвпадат с размера на плочите, така че подрязването ще бъде необходимо. Плочите лесно се режат с ножовка и след това се поставят в отворите.

След като ги инсталирате, инсталирането на тавана може да се счита за завършено. Не се изисква допълнително довършване. Това е най -простата схема за полагане на плочи, но има и по -сложни опции, когато плочите се полагат диагонално или с изместване. Структурните елементи позволяват изработването на рамката с различни конфигурации. Избирайки такъв таван, капитанът получава възможност за самостоятелно проектиране. В края на краищата тези покрития могат да бъдат боядисани в различни цветове, комбинирани помежду си..

Трябва да се отбележи този тип панели като LED лампи. Това са панели, които приличат на екран, покрити с матов филм. Те са предназначени за системи за окачване на тавана и имат стандартен размер 600×600 мм. Тези панели имат вградени много мощни светодиоди, които излъчват ярка, но мека светлина.. Достатъчно е да имате една такава лампа, за да създадете разсеяна дневна светлина в стаята..
Производители
Основните производители на окачени тавани тип Armstrong:
- Amf;
- Ова;
- Geipel;
- Армстронг;
- Албес;
- Lumsset;
- “Бард”;
- Hunter douflas.

Окачени конструкции на тези европейски производители са изработени от стомана (0,6 мм), върху която е нанесен специален прахообразен състав. Стандартен размер на плочата 600х600 мм.
Рафтовите тавани са изработени от алуминиева сплав. Повърхността им е защитена с лаково покритие, което се нанася в два слоя. Ширина на релсите от 3 до 30 см.

Основни производители на гипсокартон:
- Кнауф;
- Gyproc;
- Lafarge;
- Ригипс.

Производители на опънати тавани:
- Barrisol;
- CTN;
- Extenzo;
- Понга;
- Lackfolie;
- Ренолит Аг;
- Saros Design;
- Cool Stretch;
- Цезал;
- Симплекс.
Съвети и трикове
В работата си трябва да използвате само доказани, висококачествени материали и инструменти. Монтираният таван ще се радва повече от една година както по дизайн, така и по качество на изпълнение..

Винаги трябва да започнете работа с маркирането и изготвяне на схема на оформление на елементите. Отделянето на време за съставяне на списък и правилно броене може да ви спести време в бъдеще. Не е нужно да бягате до магазина по -късно и да купувате това, което липсва.
Експертите препоръчват да се придържате към следните съвети:
- монтажните работи с гипсокартон трябва да се извършват в сухо помещение;
- използвайте нивото на всички етапи на работа;
- можете да шумоизолирате тавани с минерална вата. Той запълва пространството в монтираната рамка;
- не е необходимо да почиствате окачения таван с подсветка много често. Необходимо е да се погледне степента на замърсяване;
- дебелината на такъв таван трябва да е достатъчна. Технологията за инсталиране стъпка по стъпка и самият чертеж зависят от този индикатор. Сглобяването на по -висококачествен материал е по -лесно;
- когато извършвате ремонт, не забравяйте да закупите предварително аксесоари, крепежни елементи, остъкляващи мъниста и други, не забравяйте също да оставите отстъп под завесите;
- листа от гипсокартон трябва да лежат в хоризонтално положение за известно време, така че ще бъде по -лесно да ги сглобите.

Окаченият таван е лесен и евтин начин за изравняване на основата, който осигурява допълнителна звукоизолация. Не е трудно да извършите самостоятелно инсталирането на окачени конструкции. Но си струва да следвате инструкциите на производителя, като разполагате с всички необходими инструменти и минимални познания за инсталацията. С помощта на декоративни довършителни елементи можете да създадете стилно, висококачествено и уникално таванско покритие. Той ще служи много дълго, тъй като производителите осигуряват дълъг гаранционен срок за всички структурни елементи. Сега такива тавански покрития се окачват доста често..
Можете спокойно да експериментирате с дизайна и декорацията на касетъчния таван със собствените си ръце. При спазване на всички условия таваните ще украсяват стаята повече от десетина години. Всеки вид таван е уникален по свой начин. Гипсокартонът разширява гамата от дизайнерски решения, окачените тавани на Armstrong са издръжливи и лесни за монтаж, системата за опънати тавани осигурява огромен избор от цветове.

Можете да гледате как да инсталирате касетъчния таван CESAL в тоалетната в това видео.
Как да направите фалшив таван?
В съвременния интериор окачените тавани заемат гордо място. Те се предлагат в голямо разнообразие от форми и са монтирани от различни довършителни материали.. Несъмненото им предимство е простата инсталация с минимално време за изпълнение..
Особености
При мазилката от строителите се изисква известен натрупан опит. Този процес не може да се извърши без предварителна подготовка. Но почти всеки може да постави рамката на тавана с минимум инструменти. Основното нещо, което трябва да имате във вашия арсенал: бормашина, мозайката, отвертка и ниво. Трябва да се отбележи, че има вид таван, който изисква вниманието на професионалисти. Това е система за опънат таван. Инсталацията се извършва със специално оборудване, топлинен пистолет. Домашен майстор може самостоятелно да монтира система от окачен таван от гипсокартон, пластмаса, облицовка. А също и за овладяване на таванната конструкция на армстронг.
За да изберете правилния тип таванско покритие, трябва да вземете предвид следните фактори:
При определяне на функционалните характеристики на окачени конструкции трябва да се използват инструкциите на производителя и техническите листове. Те описват подробно как да се извърши инсталацията, за кой тип помещения са подходящи различни видове тавани. Техническите описания предоставят примери за проектни изчисления, както и таблици с всички данни. Затова специалистите са разработили одобрени документи, в които се казва кои помещения са по -подходящи за този или онзи вид таванско покритие..
Необходимо е да се избере не само материалът за монтаж, но и да се разработи конфигурацията на тавана. Носещата рамка трябва ясно да изпълнява своите функции.
Изборът на типа таван се влияе значително от:
Всеки потребител има списък със собствените си изисквания, особено естетическите и дизайнерските. Но има и общоприети от производителите на системи за окачени тавани. Те включват функционалност, устойчивост на влага, топлоизолация и експлоатационен живот. Трябва да се ръководите от тях..
Акустиката е начин за разпространение на звук. За офис пространството това е много важен критерий. Ниското ниво на шум има благоприятен ефект върху работния процес и увеличава производителността на труда. Има специални акустични плочи от немски производители, които абсорбират добре звука. Използването им е оправдано в помещения с високи нива на шум..
Опасните тавани могат да осигурят свободен достъп до комуникации, тръби, вентилация, отопление и пожароизвестителни системи. За да отстраните проблема, достатъчно е да премахнете декоративните тавански плочки, които ще осигурят достъп до тавана. С помощта на фалшив таван можете лесно да скриете дефекти и пукнатини в основата. Монтажът, демонтажът и поддръжката отнемат по -малко време в сравнение с други довършителни работи. Окачена система позволява поставяне на повече осветителни тела и абсорбира шума.
Разработването на изключителни дизайнерски тавани с различни, понякога странни форми може да бъде много скъпо за собственика. Но тя ще бъде единствена по рода си. Съвременните материали позволяват да се направи клетъчната структура на окачения таван почти невидима. Можете да поръчате различни дизайни на плочи и след това да сглобите сложен индивидуален модел от тях на тавана.
Положителните аспекти на таванните конструкции са следните:
Негативните аспекти на таванните конструкции са следните:
Материали (редактиране)
Окаченият таван се състои от метална рамка, която заема цялата площ на основата и таванните плочки, прикрепени към носещите конструкции.
Плочите могат да имат различни видове връзки:
Декоративният завършек се състои от различни материали:
Телена рамка
Преди да продължите с инсталацията, трябва да изчислите количеството материали, да закупите инструмент, да обработите основата и да поставите маркировки.
Решетката е изработена от поцинковани стоманени профили. Тя не се страхува от влага, тъй като профилите са защитени от цинк. За таван от гипсокартон или пластмаса ще ви трябват таванни ленти (60×27 mm) и водачи (27×28 mm), както и окачвания, които ще държат конструкцията: пеперуди, съединители, анкерни окачвания, свързващи елементи. За закрепване трябва да закупите самонарезни винтове за метални и полипропиленови дюбели.
Инструменти
Основните инструменти за самостоятелно сглобяване на рамкови конструкции са както следва:
Нивото е необходимо, за да се приложат маркировките за монтажа на водещия елемент. Правилото се използва при рязане на листове от гипсокартон. След инсталирането на гипсокартон ще е необходимо допълнително довършване.. Инструменти и материали, от които може да се нуждаете:
Как да се изчисли консумацията?
Разходи за тавана на Армстронг
Това са специални коефициенти, с които можете независимо да изчислите колко рамкови елементи и декоративни плочи са ви необходими, като знаете размера на тавана.
Знаейки нормите на потребление, можете:
Използвайки примера за таван с квадратна форма с обща площ 100m², ще направим изчисленията. Дължината на направляващата шина е 3,6 м. Монтира се на стъпки от 1,2 м. За да разберем необходимото количество, разделяме ширината на тавана 10 м на стъпката на монтаж (1,2 м). Оказва се 8,33 реда носители. Умножаваме дължината на стаята 10 м по броя на редовете. Почти 84 лин. м, а това са 28 броя лагерни профили. Напречна лента от 1,2 м се поставя на стъпки от 60 см. Повтаряме подобно изчисление: откриваме броя на редовете (10 м дължина се разделя на 0,6 м стъпка на монтаж). Имаме ги почти 17. В линейни метри това се оказва 167. А на парчета се оказва почти 140 (167 линейни метра трябва да се разделят на 1,2 м – дължината на шината).
Водачите от 0,6 м са поставени със стъпка от 1,2 м. м релси. Техният брой ще бъде 140 броя. Закачалките са поставени на ленти от 3,6 м със стъпка от 1,2 м. За 1 м² от тавана ще са необходими 0,7 закачалки. Ъгловият профил се изчислява по периметъра на помещението, дължината му е 3 м. За 1 м² са ви необходими 0,4 линейни метра. м.
С помощта на тези изчисления е възможно да се изчисли консумацията на таванни решетки, акустични. Не забравяйте, че това е средно изчисление. По-добре е да включите 7-10 допълнителни процента във всяка оценка, така че по-късно да няма неприятни ситуации. Трябва да вземете предвид следните фактори:
Разходи за разходи за таван от листове от гипсокартон
Вземете като пример таван с дължина 10 м и ширина 10 м. Размерът на тавана от гипсокартон е 2500x1200x9,5 mm. В резултат на изчисленията ще са необходими следните материали за работа:
Монтаж
Монтаж на окачен таван от гипсокартон
Първото нещо, което трябва да направите, е да намерите помощник. Много е трудно сами да фиксирате листове от гипсокартон, имате нужда от предпазна мрежа. По-добре е да започнете с обикновен таван на едно ниво, за предпочитане малка площ.
Монтаж на окачена конструкция от типа “Армстронг”
Ако планирате да обшиете стените на стаята с листове от гипсокартон, тогава в металната стена се поставя допълнителен хоризонтален профил. Това се прави за твърдостта на конструкцията. Към този допълнителен профил е прикрепен ъгъл на стена. Според маркираните линии трябва да фиксирате набор от крепежни елементи (окачване, пеперуда, игла за плетене). За 1m² е необходим един комплект закачалки. На тези места, където са планирани осветителните тела, могат да се доставят допълнителни крепежни елементи.
Лагерните профили (3600) се поставят върху ъглите на стената и се закрепват със закачалки. Разстоянието между тях е 1,2 или 0,6 м. Зависи от начертаната диаграма. Цялата работа трябва да се контролира с помощта на ниво. Неподвижните носители трябва да бъдат разположени строго хоризонтално. Куките на окачванията са леко затегнати с клещи, така че носачите да се държат добре. 1200 носача са поставени на стъпки от 60 см. Те се вписват в слотовете на 3600 профила и щракват на място. Някои майстори ги сгъват, но това не е необходимо. Рамката така или иначе ще бъде твърда.
След като ги инсталирате, инсталирането на тавана може да се счита за завършено. Не се изисква допълнително довършване. Това е най -простата схема за полагане на плочи, но има и по -сложни опции, когато плочите се полагат диагонално или с изместване. Структурните елементи позволяват изработването на рамката с различни конфигурации. Избирайки такъв таван, капитанът получава възможност за самостоятелно проектиране. В края на краищата тези покрития могат да бъдат боядисани в различни цветове, комбинирани помежду си..
Трябва да се отбележи този тип панели като LED лампи. Това са панели, които приличат на екран, покрити с матов филм. Те са предназначени за системи за окачване на тавана и имат стандартен размер 600×600 мм. Тези панели имат вградени много мощни светодиоди, които излъчват ярка, но мека светлина.. Достатъчно е да имате една такава лампа, за да създадете разсеяна дневна светлина в стаята..
Производители
Основните производители на окачени тавани тип Armstrong:
Окачени конструкции на тези европейски производители са изработени от стомана (0,6 мм), върху която е нанесен специален прахообразен състав. Стандартен размер на плочата 600х600 мм.
Рафтовите тавани са изработени от алуминиева сплав. Повърхността им е защитена с лаково покритие, което се нанася в два слоя. Ширина на релсите от 3 до 30 см.
Основни производители на гипсокартон:
Производители на опънати тавани:
Съвети и трикове
В работата си трябва да използвате само доказани, висококачествени материали и инструменти. Монтираният таван ще се радва повече от една година както по дизайн, така и по качество на изпълнение..
Винаги трябва да започнете работа с маркирането и изготвяне на схема на оформление на елементите. Отделянето на време за съставяне на списък и правилно броене може да ви спести време в бъдеще. Не е нужно да бягате до магазина по -късно и да купувате това, което липсва.
Експертите препоръчват да се придържате към следните съвети:
Окаченият таван е лесен и евтин начин за изравняване на основата, който осигурява допълнителна звукоизолация. Не е трудно да извършите самостоятелно инсталирането на окачени конструкции. Но си струва да следвате инструкциите на производителя, като разполагате с всички необходими инструменти и минимални познания за инсталацията. С помощта на декоративни довършителни елементи можете да създадете стилно, висококачествено и уникално таванско покритие. Той ще служи много дълго, тъй като производителите осигуряват дълъг гаранционен срок за всички структурни елементи. Сега такива тавански покрития се окачват доста често..
Можете спокойно да експериментирате с дизайна и декорацията на касетъчния таван със собствените си ръце. При спазване на всички условия таваните ще украсяват стаята повече от десетина години. Всеки вид таван е уникален по свой начин. Гипсокартонът разширява гамата от дизайнерски решения, окачените тавани на Armstrong са издръжливи и лесни за монтаж, системата за опънати тавани осигурява огромен избор от цветове.
Можете да гледате как да инсталирате касетъчния таван CESAL в тоалетната в това видео.