
بناء الحمام ضروري في أي كوخ صيفي وفي منزل ريفي. لكن الخيارات التقليدية ، التي تستخدم الطوب أو الخشب ، لها عدد من العيوب. لكن الهياكل الهيكلية المحرومة منها تحتاج إلى أن يتم تشييدها باستخدام تقنية خاصة..
25 صورة
الخصائص
من الصعب جدًا بناء المباني ، حتى المباني الصغيرة مثل الحمام ، بيديك من الطوب أو جذوع الأشجار. سوف تحتاج إلى إنفاق الكثير من المال على المواد ، وإعداد رسومات خالية من العيوب. وبدون مساعدة شخص ما ، لن يكون من الممكن القيام بمثل هذا العمل على الإطلاق. لذلك ، تستحق المشاريع الإطارية مزيدًا من الاهتمام.. علاوة على ذلك ، يتم تقليل استهلاك الخشب مقارنة بهياكل الأخشاب التقليدية بمقدار النصف بالضبط.

المباني خفيفة نسبيًا ، حتى لو كانت بأبعاد 6 × 4 أو 6 × 6 م ؛ إذا كان حجم الهيكل 3 × 4 ، 4 × 4 م ، فإن هذا الظرف يتجلى أكثر. لذلك لا داعي لإعداد أساسات متينة. من الممكن إنهاء الجدران الخارجية والداخلية في نفس الوقت ، وتزداد سرعة التركيب الكلية بشكل ملحوظ. أصغر مساحة من غرفة البخار 250 × 250 سم ويوصى باستخدام أنابيب الأسمنت الأسبستي بقطر 100 وطول 4000 مم للأساسات المملوءة بالخرسانة.
يتم تجفيف جميع العناصر الخشبية جيدًا قبل التثبيت.. يتم تجميع العوارض الخشبية على الأرض ، وبعد ذلك يتم رفعها بالتناوب ووضعها فوق رفوف الإطار. السقف مصنوع فقط في نسخة جيدة التهوية.
يُنصح بعدم رفع السقف في غرفة البخار فوق 210 سم ، وفقط بعد الانتهاء من الإطار ، يتم تقسيم الحمام إلى غرف منفصلة.
المميزات والعيوب
المزايا التي لا جدال فيها لبناء حمامات الإطار هي:
- سهولة البناء
- بناء رخيص (تكاليف مادية منخفضة) ؛
- تبسيط عمل الأساس بالمقارنة مع الخيارات الأخرى ؛
- الموصلية الحرارية الضعيفة
- القدرة على عمل قنوات اتصال داخل الجدران وعدم إفساد المظهر ؛
- استبعاد الانكماش
- لا حاجة لمعدات البناء المعقدة ؛
- السلامة البيئية (نادرة لمباني الميزانية الريفية) ؛
- القدرة على أداء جميع الأعمال دون إشراك المتخصصين ؛
- استبعاد الأعمال الرطبة – من الممكن البناء في الشتاء وحتى في حالة عدم وجود إمدادات مياه مستدامة ؛
- مجموعة متنوعة من التشطيبات.
11 صور
ولكن بعد دراسة مراجعات المالكين والمطورين بعناية ، يمكنك العثور على بعض أوجه القصور على الفور. يمكن القضاء على كل واحد منهم من خلال اتخاذ تدابير في الوقت المناسب ، فقط لأنك بحاجة إلى فهم المشاكل المحتملة بشكل صحيح. حمامات الإطار في شكلها النقي تبرد بسرعة ، وبالتالي ، بعد وقت قصير ، تظهر الفطريات القبيحة في الداخل. للتعامل مع هذه الصعوبة ، تحتاج فقط إلى استخدام عزل عالي الجودة..
لا يعمل الستايروفوم أو الصوف المعدني البسيط بفعالية كافية ، كما أن الخيار الأول يشتعل بسهولة.
من الممكن إطالة عمر خدمة الحمام اللوح إذا تم تشريب الأخشاب والألواح المستخدمة بالكامل بمطهرات لعينة خاصة. بعد 18-24 شهرًا ، يكون انكماش الإطار في بعض الأحيان 80-100 مم. نتيجة لذلك ، يتم تشويه التشطيبات الخارجية والداخلية. يمكنك تقليل هذا الخطر إذا كنت تأخذ الخشب المنشور المجفف في الغرفة..
التفاصيل الدقيقة للتصميم
لا تعني بساطة البناء وتوافره لغير المتخصصين أنه يمكنك بدء العمل بأمان دون تحضير. حتى تجربة مثل هذا العمل لا تعطي أسبابًا للموقف الرضا عن النفس.. سيساعد المشروع والرسومات المدروسة جيدًا للهيكل المستقبلي على تجنب الأخطاء الجسيمة..
في منطقة صغيرة (3 × 4 أو 4 × 4 م) ، يلزم زيادة كثافة استخدام المساحة. إذا أمكن ، يجب تجنب هذه الحمامات الصغيرة تمامًا إذا كانت هناك مساحة كافية للبناء.

أبسط مخطط هو عندما يتم الجمع بين غرفة البخار وغرفة الاستحمام وغرفة المرجل وحجرة خزانة الملابس. لكن مثل هذه الخطوة مقبولة فقط للهياكل الصغيرة أو الحمامات القابلة للنقل ، لأنه من المستحيل توزيع درجة الحرارة كما هو متوقع. لذلك ، يحاولون إنشاء غرف ، حتى مع أصغر الأبعاد ، وإن كانت صغيرة جدًا ، لكنها قائمة بذاتها. يمكن تسخين الحمام الذي تبلغ مساحته 3 × 4 أمتار باستخدام غلاية صغيرة أو موقد يعمل بالحطب. يجد المصممون الفرديون الفرصة لاستكمالها بشرفة أرضية أو تراس..

أصغر المشاريع لها عدد من الخصائص القيمة:
- استهلاك ضئيل لمواد البناء ؛
- التخلص شبه الكامل من النفايات ؛
- سرعة عالية في العمل
- المتانة والموثوقية (حيث لا يلزم توفير جودة المكونات في منطقة صغيرة).

يجب أن نتذكر أنه حتى التمديد الصغير من طابق واحد للمنزل يجب أن يتم تسجيله لدى سلطات التسجيل المساحي.
في قطعة أرض أكبر ، من الممكن تمامًا بناء حمام 6 × 6: سيسمح لك بالفعل ليس فقط بغسل الأوساخ عنك ، ولكن أيضًا لدعوة العائلة بأكملها وحتى مجموعة من الأصدقاء. تتضمن المشاريع النموذجية بمثل هذه الجوانب مساحة كبيرة من غرفة الاستراحة – يمكن أن تصل إلى 20 مترًا مربعًا. غالبًا ما توجد أيضًا سلالم تربط الطابق الأول بالعلية..

يتفوق الحمام المكون من طابقين على الحمام المكون من طابق واحد لأنه يسمح لك بتنظيم مساحة إضافية للحياة والترفيه. غالبًا ما توجد غرف لاستقبال الضيوف أو غرف نوم أو طاولات بلياردو أو غيرها من المعدات الرياضية.
بفضل تقنية الإطار ، يتعلق الجزء الأكبر من التكاليف بقاعدة المبنى ، وإذا كان موجودًا بالفعل ، فستكون مراحل العمل اللاحقة أكثر تكلفة..

في بناء طابقين ، فإن الخطوة الأولى هي إنشاء أساس من أعمدة الدعم ، ويجب تغطية القاعدة بطبقة من العزل المائي. يوصي الخبراء ببناء نظام الجمالون للحمام من الألواح بقسم 10×5 سم ، وعادة ما يذهب اللوح بسمك 2.2 سم إلى الصندوق.
يتم تجميع هيكل لوحة الإطار وفقًا لمبدأ مُصمم اللعبة. ليس من الصعب العثور على مجموعات من العناصر المناسبة لبناء غرفة غسيل مع حوض سباحة ، ثم يتم وضعها فقط على إطار مُعد. تأتي العدة عادةً مع تعليمات تقنية مفصلة للمساعدة في تجنب الأخطاء – فقط إذا تم اتباعها بدقة. في حالة الحمامات المتنقلة ، كل شيء أبسط – لا يتم تجميعها في مواقع البناء ، ولكن في المؤسسات الصناعية. كل ما تبقى للعملاء هو فقط استكمال الكتل النهائية بالتفاصيل اللازمة..

تتضمن معظم المشاريع استخدام أسطح الجملون ، ومساحة العلية الموجودة تحتها غير منظمة أو أنها صغيرة جدًا. ومع ذلك ، غالبًا ما يضعون في الداخل معدات الاستحمام. عند اختيار نوع الأساس ، يسترشدون بفئة التربة وحالتها. كتلة المبنى ، حتى لو أخذنا في الاعتبار وجود الطابق الثاني في عدد من المتغيرات ، صغيرة نسبيًا. تعتمد مؤشرات تصميم العزل على ما إذا كان الحمام سيستخدم على مدار السنة أم أنه مخصص فقط للموسم الدافئ..
حساب كمية المواد
ليس من الصعب حساب الحاجة إلى عقد الإطار المعدني: يمكن لأي بائع القيام بذلك ، بعد أن تعلم الأبعاد والأداء المطلوبين. في المشاريع النموذجية ، يتم تطبيع الاستهلاك الدقيق للمعادن ، وإذا تم تجميعها وفقًا لأمر فردي ، فسيتم إجراء جميع الحسابات بواسطة المصممين. لكن على الرغم من ذلك ، يجب السيطرة عليها ، لأنه حتى في المواد الحديدية ، يمكن لبعض البنائين ارتكاب “أخطاء” لصالحهم. قبل حساب احتياجات الخشب ، عليك أن تختار ما إذا كان سيتم استخدام الأخشاب أو السجل في هذه الحالة. تُفضل التصميمات القائمة على الأخشاب للأسباب التالية:
- يتم تقليل الانكماش بشكل ملحوظ ؛
- لا توجد قيود صارمة على الحجم والهندسة ؛
- العمل مبسط بشكل كبير.

أقوى الأخشاب ، وفقًا للخبراء ، مصنوع من الصنوبريات ، علاوة على ذلك ، فهي أقل عرضة للعمل المدمر للحشرات والكائنات الدقيقة التي تقضم الشجرة. الأبعاد القياسية للأخشاب التي يتم أخذها في الاعتبار في الحسابات تتراوح من 10×10 إلى 20×20 سم ، ويتم حساب الحجم بضرب الطول في ارتفاع وسمك عنصر واحد.
يدعي بعض الأساتذة أنك بحاجة إلى إضافة 10-30٪ إلى النتيجة. لكن هذه الخطوة غبية بصراحة ، لأنه ، على العكس من ذلك ، ستضطر إلى إنفاق القليل من الأخشاب – فهي غير مثبتة على فتحات النوافذ والأبواب..

يستبدل العملاء عديمي الخبرة وحتى البنائين طول المحيط بمنطقة ، ثم يضطرون إلى التوقف عن العمل وشراء المواد المفقودة وإنفاق الأموال على وسائل النقل الخاصة بهم. حتى لا تكون مخطئًا ، يجب عليك أيضًا التحقق بعناية من الملصقات والمستندات المصاحبة.. في بعض الحالات ، تشير بطاقات الأسعار وفي خطابات البائعين إلى أبعاد أخشاب أكبر قليلاً مما هي عليه في الواقع.
لتوفير المزيد من المال ، يمكنك تغيير الخشب إلى ألواح ، ويمكن أن تكون الكسوة مصنوعة من بطانة بلاستيكية أو صفائح ملفوفة. عند العمل ، يُقبل فقط المجالس من أعلى فئة.
مراحل البناء
بعد حساب الحاجة إلى المواد واختيار حجم حمام الإطار ، تحتاج إلى التعامل مع تسلسل أعمال البناء. لا توجد اختلافات جوهرية عن بناء الحمامات الأخرى أو منازل المدينة في ترتيب المراحل ، لكن كل منها يكشف عن خصائصه الخاصة..
المؤسسة
لذلك ، عند إقامة قاعدة ، من الأفضل استخدام الهياكل العمودية. يتم تجميعها من أنابيب الأسمنت الأسبستي التي يبلغ قطرها حوالي 10 سم ، معززة من الداخل بالخرسانة. ثم يقومون بتحديد الخطوط الخارجية ، وباستخدام المثقاب ، يقومون بحفر الفتحات التي يصل عمقها إلى مترين.
لمعلوماتك: قد يكون عمق الاختراق في بعض الحالات أكثر أو أقل. يتم اتخاذ هذا القرار بناءً على نوع التربة وعمق المياه الجوفية. يتم إدخال كل أنبوب في الفتحة ومغطى من الأعلى بالرمل الخشن ، علاوة على ذلك ، يتم صدمه جيدًا. عند صب الخرسانة ، يتم تحضيرها من:
- جزء واحد من أسمنت M200 ؛
- 4 قطع من الرمل
- 7.5 أجزاء من الحصى الناعم ؛
- 3 اجزاء ماء نقي.

وفقًا للتعليمات خطوة بخطوة ، يجب أن يكون ملء الأنابيب سلسًا ، ويتم وضع لوحة فولاذية قوية على كل منها عندما تكون جاهزة. يجب أن تجف الأنابيب المركبة ، وعندها فقط يأتي الدور لتركيب الأنابيب السفلية. الصندوق معالج بالمطهرات ومغطى بطبقة مقاومة للماء. يتم وضع جذوع الأشجار أعلى الربط ، والذي يتكون منه أرضية خشنة. في الفاصل الزمني الذي يفصل الهيكل عن التأخر والربط ، يتم وضع مواد التسقيف ، وأحيانًا يكون هذا المكان مغطى بكثرة بالمصطكي.
يجب أن يأخذ بناء الأساس تحت حمام الإطار ، الذي يتكون من طابقين أو ثلاثة طوابق ، في الاعتبار الحمل الكلي وضغط الثلج. لا يُسمح بالقواعد الخشبية إلا للحمامات المصغرة ، والتي تبلغ مساحتها الإجمالية 12 مترًا مربعًا. م وأقل. يجب إيلاء اهتمام متزايد لحساب قطر الأخشاب وأسطح التسوية.
تأكد من وضع عدة قضبان على نفس المستوى ، مع قطع حول المحيط بالأوتاد. تعمل هذه الأنظمة بشكل جيد في التربة الطينية ، حيث تعمل بثبات لسنوات عديدة..

عند بناء الحمامات على أكوام لولبية ، ليست هناك حاجة للانضمام إلى الهياكل الداعمة باستخدام قضيب أو قضبان قناة. تساعد هذه الدعامات في البناء حتى على منحدر تل أو على ضفة نهر شديدة التآكل مع تيار مضطرب. يتم إدخال الخوازيق في الأرض إما باستخدام معدات خاصة ، أو بسبب جهود العديد من البناة في نفس الوقت. عند العمل ، من المستحيل تمامًا انحراف الدعم عن خط الأفق..
في كل دورة رابعة ، يتم معايرة موضع الكومة بعناية باستخدام مستوى مغناطيسي. يحظر إزالة الهياكل المائلة أثناء التواء بالتكنولوجيا ، ويتم تصحيح موضعها باستخدام مستوى دوار. يمكن استخدام أي خرسانة قوية وحديد التسليح لإزالة الفجوات التي تفصل الركائز عن التربة المحيطة. بعد الانتهاء من التثبيت ، يتم فحص الأكوام للتأكد من تساويها. إذا كان كل شيء على ما يرام ، يتم لحام الرؤوس فوقها ؛ دائمًا ما يكون الصرف في الحمام مجهزًا ليس فقط في غرفة الغسيل ، ولكن أيضًا في غرفة البخار.

يحاول الكثير من الناس وضع الحمام على قاعدة شريطية. هذا الحل مقبول حتى في التربة المعرضة للحركة والهبوط ، والتي يمكن أن تنتفخ بسهولة. الشريط مقسم إلى فنلندية وكندية ؛ كلا مدرستي التكنولوجيا بسيطتان ، لكنهما يتطلبان نهجًا دقيقًا ومسؤولًا. يتم إنشاء الأساسات المتجانسة مباشرة في موقع البناء ، ويتم وضع الأساسات الجاهزة وتوصيلها فقط. في أغلب الأحيان ، يتم إرشادهم بعمق ضحل (يصل إلى 50 سم) ، وينتشر هذا الشريط بالتساوي تحت الجدران الحاملة.

غالبًا ما يكون اختيار الخيار الأساسي المناسب أمرًا صعبًا بدون المسوحات الجيولوجية. يمكن إجراء أبسط فحص بشكل مستقل: يتم التعرف على نوع التربة وخصائصها المرئية عن طريق حفر خندق بعمق 150 سم. إنهم يقيمون بعناية ليس فقط ارتفاع المياه الجوفية الدائمة ، ولكن أيضًا المستوى الذي تتجمد فيه الأرض.
بالنسبة لأي نوع من الأساسات ، يتم تنظيف موقع البناء من الأعشاب والشجيرات والزهور والأحمق مسبقًا. حتى جذوع الأشجار والجذور وأي أشياء يمكن أن تتداخل مع البناء لا ينبغي تركها..

تساعد الحبال القوية المصنوعة من الأقمشة الملونة على تبسيط عملية وضع العلامات. وفقًا للعلامات ، تحتاج إلى حفر استراحة للمؤسسة ، والتي سيكون عمقها 50 سم وعرضها 400 سم من المعلم المُجهز. وسادة المبنى مصنوعة من الرمل الذي يسكب بكثرة بالماء ويصدم. ثم الطبقة الأولى مغطاة بالركام. يتم تثبيت العزل المائي على طول الطائرات الجانبية للخندق. يتم استخدام مواد التسقيف بشكل تقليدي ، على الرغم من أن الاختراق الأكثر حداثة يحل محله..
يتم إنشاء القوالب على النحو التالي: تستخدم الحافة العلوية للعزل المائي لوضع الألواح ، وسمكها 50 مم ، وعرضها بحد أقصى 1.5 متر. يجب وضع الألواح بدون أدنى فجوات ، مع ارتفاع عن الأرض بمقدار 30 سم ، سلك تقوية ، جرح 50 مم أسفل أعلى نقطة من القوالب (تم إخفاؤها بالكامل لاحقًا بطبقة من الخرسانة). يتم صب الخرسانة بمزيج من الأسمنت والرمل والحصى ، من حيث الكثافة ، فهو يشبه القشدة الحامضة الكثيفة. يتم تحقيق تصلب إضافي بواسطة الملدنات.

يوصى بإعداد الهاون بنفسك ، لأنه أسرع بكثير من الحصول على الملاط من المصنع. بالإضافة إلى ذلك ، سيساعد هذا النهج في الحفاظ على جودة التماس البارد ، وتجنب تسرب الماء من خلاله ، مما قد يفسد القاعدة. والأهم من ذلك ، أن الاختلافات في التكلفة لا تذكر. بعد الانتهاء من العمل ، يتم تغطية الأساس بمادة غير منفذة للسائل. ستصلب الخرسانة في غضون 24 ساعة ، لكنها ستكتسب القوة النهائية بعد بضعة أسابيع فقط..
يجب عمل القوالب باستخدام ألواح متساوية وقوية بحيث يكون مظهرها مثاليًا. يتم تحريك الأظافر بدقة من الداخل إلى الخارج. إذا قمت بالعكس ، فسيكون من الصعب جدًا إزالة الدروع.. عند العمل على هياكل القوالب ، يجب أن تفكر على الفور في الاستنتاجات الخاصة بشبكات الصرف الصحي وإمدادات المياه والكابلات الكهربائية.. إذا لم يتم توفيرها على الفور ، فستحتاج إلى تحسين جودة الوحدة المتراصة وكسرها.
من المقبول تمامًا وضع أساس شريطي على شكل حزام متآلف أسفل حوض الاستحمام من الإطار إذا تمت إزالة طبقة التربة الخصبة واستبدالها بالرمل المصبوب.

يجب حماية كل من المحلول الأحادي والبنية الضحلة والقاعدة غير العميقة من قوة رفع الصقيع. للقيام بذلك ، استخدم:
- وسائل الصرف
- وجوه جانبية
- العزل حول المنطقة العمياء.
- إزالة التربة الرخوة واستبدالها بالرمل أو الحجر المكسر.

لا ينبغي استخدام الأحزمة الضحلة على منحدرات مختلفة: فهناك لن تتحمل قوى القص الكبيرة. عند البناء على رمل أو جسر مغبر ، يتم وضع لوح تمدد تحته. دائمًا ما يكون للوحدة المتراصة التي يتم تنفيذها بشكل صحيح ارتفاع أكبر من العرض. علاوة على ذلك ، فإن الفرق هو 2-4 مرات ؛ مثل هذه الخطوة ستجعل الجزء السفلي من الهيكل مثاليًا ، وسيكون من الممكن تشكيل كل من الحزم المتداخلة والأرضية.
الجدران والأرضية
يبدأون في العمل عن طريق وضع رفوف خاصة ، والتي سيتم تثبيتها بواسطة الحزام العلوي. يتم إضافة رفوف أخرى بينهما. سوف يجعلون الحمام أقوى وأكثر استقرارًا. الصندوق مغطى بألواح ، وهي متصلة بمسامير. بعد تجميع الأجزاء بالتتابع ، فإنها تشكل الهيكل أخيرًا..
في المباني الهيكلية ، يتم تركيب النوافذ والأبواب على الفور ، دون انتظار اكتمال العمل.

في معظم حمامات الإطار ، يتم إنشاء الأرضيات من جذوع الأشجار واللوحات ، ولكن لن يكون من الممكن تحديد الحجم المناسب لهذه العناصر بدقة دون إجراء حسابات معقدة. لكن هذا ليس ضروريًا – فقد يتعامل المطورون الخاصون جيدًا مع القيم المتوسطة الجاهزة. في معظم الحالات ، يُسمح باستخدام الألواح التي يتراوح سمكها من 30 إلى 40 مم وسجلات التشطيب القائمة على شريط بقسم 100 × 150 مم. يجب أن يتوافق سمك اللوح ، معبراً عنه بالمليمترات ، تقريبًا مع الفجوة بين الفواصل ، معبراً عنها بالسنتيمترات.
في حالة استخدام العزل الحراري ، يتم تصحيح الفجوات بين سجلات الأرضيات النهائية مع مراعاة طبقة العزل التي تم إنشاؤها.

بالنسبة للمواد الأساسية ، فإن جميع أنواع الأخشاب ذات الخدمة الطويلة مناسبة لإنشاء أرضية في حمام الإطار. لكن الحور والأخشاب اللينة الأخرى غير مقبولة. قبل الشراء والاستخدام ، يجب التحقق بعناية من جفاف وسلامة المواد ، وعدم وجود تشققات ، وانشقاقات وغيرها من المشاكل. من الناحية المثالية ، يجب أن تأتي جميع الأخشاب المنشورة من نفس الدفعة التي اجتازت التجفيف في الغرفة.
يُنصح بصنع الأرضيات النهائية من لوح ذي حواف أو مخدد ، حيث لا يحتاج إلى صنفرة إضافية ، ولكن يمكن أيضًا أن تكون القاعدة الخشنة غير مشقوقة.

غالبًا ما يكون بديل الهياكل الخشبية هو أرضية التسوية الذاتية. أصبح هذا الحل أكثر شيوعًا على مر السنين ، مما أدى إلى إزاحة الأسطح الخزفية والحجرية جانبًا.. يمكن النظر في المزايا الرئيسية لأرضية التسوية الذاتية:
- سلامة الطلاء الذي يتم إنشاؤه ؛
- قوة ميكانيكية عالية ومقاومة تآكل ممتازة ؛
- مستوى الصفر من خطر الحريق ؛
- عدم وجود الغبار والانبعاثات الضارة أثناء التشغيل ؛
- مجموعة متنوعة كبيرة من خيارات التصميم ، بما في ذلك الزخرفة بأنماط ثلاثية الأبعاد ؛
- صيانة أسهل بكثير من الهياكل الخشبية.

ولكن هناك أيضًا نقاط ضعف موضوعية: على سبيل المثال ، تصلب أرضية التسوية الذاتية أخيرًا بعد بضعة أيام فقط ، عندما يمكنك المشي على أرضية خشبية على الفور. هناك مخاطر عالية من الخدوش والأوساخ ، وتكلفة هذا الطلاء مرتفعة للغاية. يوصى بعمل أي أرضيات حمام بمنحدر باتجاه الصرف ، وهذا سيمنع الماء والصابون من الانتشار في جميع الاتجاهات. يمكن عمل أرضية التسوية الذاتية أفقيًا (بدون منحدر) أو صب الخليط على قاعدة بها منحدر بالفعل. يتطلب الخيار الأول إغلاق تقاطعات الأرضية بالجدران بعناية ، والثاني أكثر صعوبة في الأداء ، ولكنه يوجه كل السائل في الاتجاه الصحيح دفعة واحدة.
لا يمكن ببساطة “سكب” أرضية التسوية الذاتية: يتم تحضير ركائزها بعناية فائقة. في الجزء العلوي من الشجرة ، تحتاج إلى وضع قدد خرسانية قوية ومع التعزيز. كلما تم سكب الخليط في وقت أسرع ، كان ذلك أفضل – يفقد السيولة بسرعة ، وإذا حدث هذا قبل نهاية العمل ، فإن جميع التكاليف ستذهب سدى. في أغلب الأحيان ، يتم سكب الأرضيات معًا..
بالنسبة للحمامات ، يوصى باستخدام مركبات تعتمد على البولي يوريثين ، فقد أثبتت أنها أفضل بكثير من الإيبوكسي أو بولي ميثيل أكريلات.

عند العمل بالجدران ، في معظم الحالات ، يتم تصنيع الكسوة الأمامية على أساس البطانة أو اللوح. يتم توفير العزل المائي برق موضوعة تحت الجلد الخارجي. عندها فقط يتم استخدام العزل ، والذي يجب أن يكون صديقًا للبيئة وآمنًا للحريق. يتم تحديد السماكة الكلية للكعكة وطبقاتها الفردية من خلال المعلمات المناخية للمنطقة وخصائص استخدام حمام الإطار.
يجب ألا يحتوي الهيكل المستخدم على مدار العام على جدران أكثر سمكًا فحسب ، بل يجب أن يحتوي أيضًا على حاجز بخار خاص. أفضل حل لذلك هو غلاف بلاستيكي..

يعد طلاء الكسوة الجدارية ، حتى في غرف الملابس ، أمرًا غير مرغوب فيه ، لأن أبخرة حتى الدهانات والورنيش الأكثر أمانًا يمكن أن تكون ضارة بالصحة. عند التفكير في هيكل الجدران ، يتم إيلاء اهتمام خاص لكيفية مرور مجاري التهوية والأسلاك الكهربائية من خلالها. نظرًا لاستخدام المواد القابلة للاشتعال في الزخرفة الخارجية ، وغالبًا ما توجد الرطوبة الزائدة في الهواء ، يجدر إعطاء الأفضلية لقنوات الكابلات المغلقة والمعزولة تمامًا..
إذا تم الانتهاء من الغرف بألواح ، فيجب أن يكون سمكها حوالي 30 مم. عند القيمة المنخفضة ، تعاني القوة ، عند القيمة الأعلى ، يصبح الهيكل ثقيلًا.
سطح
يتم وضع الأجزاء الأساسية المستخدمة في بناء سقف حمام الإطار بشكل تدريجي وتجميعها مباشرة على الموقع. يجب أن يقف الجمالون على قاعدة الإطار المعدة. يساعد وضع السقف على لوح خشن على تبسيط إنشاء السقف. تشتمل كعكة النموذج دائمًا على أنظمة تهوية ، لذلك يتم ملء الفجوة من العوارض الخشبية إلى العارضة المقابلة بحاجز بخار. يجب ربط الخراطة بالخشب.
ثم يحين الوقت لصنع الجملونات من الألواح الموجهة أو الألواح عالية الجودة. في معظم الحالات ، يجب أن تقتصر على أبسط سقف أحادي النبرة ، والذي يتم تنفيذه بسرعة ودون صعوبة لا داعي لها. ولكن إذا اخترت تصميمًا أصليًا تمامًا ، فلن يتمكن كل متخصص من إكمال العمل بكفاءة وفي الوقت المحدد..
ما هو مهم للغاية ، مع نفس المنطقة ، تبين أن حلول الجملون أغلى بنسبة 50-100 ٪ ، وهذا الاختلاف غير مبرر حتى من خلال قدراتها المحددة. مع الحساب الصحيح ، سيستمر الغطاء ذو المنحدر الواحد لسنوات عديدة وسيكون كل هذا الوقت مناسبًا للغاية للاستخدام..

لا ينصح باستخدام الأسطح المسطحة للحمامات بأيديهم. الاقتصاد في مثل هذا الاختيار واضح فقط – فالحاجة إلى تهوية صناعية قوية مع ضعف طبيعي تمتص كل المدخرات. وفقًا للبناة المؤهلين ، يجب وضع السقف المائل على منحدر عام يتراوح من 20 إلى 30 درجة. إذا تم استيفاء هذا الشرط ، فسوف تنخفض الرواسب السائلة والصلبة تلقائيًا.
هناك طريقتان لإنشاء منحدر: تعمد جعل الجدران غير متساوية في الارتفاع أو عن طريق تثبيت الرفوف. مع الخيار الثاني ، يتم إنفاق المادة أقل ، لكن الحرارة ستستمر بشكل أسوأ.
يعرف أسقف الأسقف المتمرس على وجه اليقين أنه مع انخفاض منحدرات السقف ، يجب استخدام مواد مواجهة أكثر سلاسة. ولكن بزاوية أقل من 10 درجات ، حتى أفضل الحلول لا تسمح لك بالتخلص من البرك الناتجة وانجرافات الثلج. يتكون Mauerlat من خشب صنوبري مع مقطع عرضي لا يقل عن 15 × 15 سم ، ويتم تغطيته من الخارج بطبقة من العزل المائي (مشحم بالمصطكي أو ملفوف بمواد التسقيف). العوارض الخشبية مصنوعة حصريًا من الألواح المسطحة بقسم 5 × 15 سم ، وهي مصنوعة من الخشب الصلب.

مع هذه الأبعاد ، يتم تحقيق هامش أمان مثالي ويظل من الممكن تثبيت العزل حتى 15 سم ، إذا لزم الأمر. لمعلوماتك: يتم حساب طول العوارض الخشبية مع التكرار للتراكمات ، مما يحسن حماية الجدران من الماء. تم تجهيز جميع أطراف أرجل العوارض الخشبية بقطع لـ Mauerlats ، والتي يتم تثبيتها بمسامير أو شرائط معدنية. يتم ربط الخراطة بأرجل العوارض الخشبية بزوايا قائمة.
تحت بعض مواد التسقيف المعرضة للتشوه ، يتم بالضرورة إنشاء غلاف غير قابل للكسر يعتمد على الخشب الرقائقي المقاوم للرطوبة..

في حالات أخرى ، يتم وضع شرائح من الشرائح ، ويتراوح سمكها من 2.5 إلى 3 سم ، ولكن في كل حالة محددة ، بالطبع ، يجب أن تكون هذه السماكة موحدة طوال الوقت. يُنصح بتداخل الحمامات مع الأسقف المائلة مع ondulin أو المموج أو المعدن أو البلاط الناعم. إذا كان هناك سقف بسيط أدناه ، بدون علية أو علية ، فمن الضروري وضع بلاطة أو لفة عازلة. بغض النظر عن ذلك ، فإنهم يستخدمون:
- فيلم مسعور
- مثبطات الحريق والتشريب المطهر ؛
- السحابات ذات التصميم الخاص ؛
- الأدوات المختارة والمختبرة بعناية.

يجب أن ترتكز الأسقف أحادية النغمة على عوارض خشبية متباعدة على مسافة 0.5 – 0.8 متر ، ويجب تثبيت مادة التسقيف بالقاعدة باستخدام براغي خاصة ، بما في ذلك أغطية مطاطية صناعية. تساعد هذه القمم على منع تسرب المياه. إذا لم تكن هناك أدوات تثبيت متخصصة ، فأنت بحاجة إلى استخدام مسامير بسيطة ذاتية التنصت ، مع استكمالها بحشوات مطاطية خارجية. ثم تُخيط الجملونات ، وقد تم تجهيز الصرف – في هذا الصدد ، يتم الانتهاء من العمل الخارجي لحمام الإطار.
التشطيب
بغض النظر عن مدى موثوقية واستمرارية “الصندوق” الذي تم إنشاؤه ، فلن يكون من المفيد أن يقتصر عليه. من الضروري حماية هذه الهياكل من التأثيرات الخارجية السلبية وفي نفس الوقت جعلها أكثر جاذبية.
تساعد زخرفة الجدران الخارجية المطورين والمصممين على التعبير عن أذواقهم وأولوياتهم الجمالية. غالبًا ما يحاولون غمدهم بالانحياز واللوح. البيت الكتل والجص أقل شعبية من هذه المواد..

يجب فحص الجدران الخشنة قبل وضع أي كسوة. يجب ألا يكون لديهم حتى تشققات طفيفة ، يجب أن تتناسب مفاصل الإغلاق بشكل مريح مع بعضها البعض. بمساعدة انحياز الفينيل ، يمكنك إنشاء مجموعة متنوعة من اللوحات المرئية: تقليد خشب بسيط ، وجدار “من الطوب” ، وشيء عالي التقنية في الروح. لا تظهر الألواح البلاستيكية نفسها بشكل جيد ، وإذا كنت بحاجة إلى زيادة المظهر الطبيعي للحمام إلى أقصى حد ، فيجب عليك اختيار منزل كتلة.
في حالة اختيار البطانة ، يجب الاحتفاظ بها لعدة أيام حتى يتم التأقلم.

تزيين حمام الإطار من الداخل لا يقل أهمية عن من الخارج. يوصى بإعطاء الأفضلية للمواد الصديقة للبيئة ، فإن تكلفتها المتزايدة لها ما يبررها تمامًا. أصبح اختيار التصميم في الديكور الداخلي الآن غير محدود ، يمكنك استخدام أي نمط ، وليس بالضرورة النمط الروسي التقليدي. غرف ارتداء الملابس مزينة بالخشب النفضي والصنوبري. لكن يُنصح باختيار اللون الهادئ والمتوازن قدر الإمكان ، بالنظر إلى الغرض من الحمام.
7 صور
حجرات الغسيل مغطاة بلوح ، مبللة مسبقًا بمخاليط تمنع التعفن. يستخدم بعض المستهلكين الألواح البلاستيكية وحتى ألواح البولي كربونات. لا يوجد مكان للصنوبريات في غرفة البخار ، باستثناء خشب الأرز. من بين الأصناف المتساقطة ، المكان الأول دائمًا هو الزيزفون ، الذي لا يحترق عند لمسه ولا يتلاشى بعد الاستخدام الطويل. في المزيد من مشاريع الميزانية ، تعطى الأفضلية للأسبين والألدر.

يمكنك تزيين موقد ساونا من الطوب باستخدام البلاط: هذا الخيار هو أبسط وأرخص وفي نفس الوقت يتيح لك توفير مظهر جذاب. لا ينبغي تعليق البلاط على البناء ، بل يجب وضعه على قاعدة الموقد. يجدر التخلي عن التجصيص البسيط ، فهو لا يعطي نتائج لائقة حتى في الغرف الجافة. يتم الحصول على نتائج جيدة في بعض الأحيان عن طريق استخدام الحجر المزخرف..
إذا لم يتم وضع الموقد من الطوب ، ولكن تم توفيره حسب الطلب ، فإن الأمر يستحق اختيار الحل الذي يتوافق مع النمط المختار..
8 صور
تنفس
حتى أقوى المواد وأكثرها موثوقية لن تدوم طويلاً إذا ركود الرطوبة بالداخل. والتراكم المستمر للهواء العفن لن يمنح أي شخص متعة. يتم حل كل هذه المشاكل باستخدام تهوية مدروسة بعناية. في معظم الحالات ، يتم الاختيار بين أنظمة العرض والعادم والأنظمة الطبيعية. يتم ضمان الدوران الذاتي عن طريق وضع مدخل هواء على ارتفاع 0.5 متر من الأرضية ، ومنفذ هواء على نفس المسافة تقريبًا أسفل السقف.
من غير المقبول إطلاقا وضع كلا الفتحتين منخفضتين بشكل متساوٍ. سيؤدي هذا إلى “احتقان” في الهواء – سيكون هناك برد بالقرب من الأرض وحرارة لا تطاق على المظلة..
لا يمكن تجهيز المخرج في الأسفل إلا عند استخدام التهوية القسرية أو أنبوب التهوية الكبير. يمكن تنظيم مدخل الهواء البارد في المساحة خلف الموقد ، والمخرج الموجود في الأرضية نفسها ، إذا كان الطابق السفلي متصلًا بالتهوية بهواء خارجي أو أماكن أخرى. بالنسبة للحمامات المدمجة في المنزل ، يجب عليك دائمًا استخدام التهوية القسرية..
كيفية العزل?
من غير المعقول إلقاء اللوم على تبادل الهواء عالي الجودة والمكثف لنقص الحرارة في الحمام. دائمًا ما يكون السبب الحقيقي للمشكلة هو العزل الضعيف ومنخفض الجودة. في معظم الحالات ، يتم استخدام ألواح الصوف المعدني. نظرًا لكمية الهواء الكبيرة بالداخل ، فإنها تحتفظ بالحرارة تمامًا ، وتتيح لك نقطة الانصهار العالية ألا تخاف من النار. غالبًا ما يكون جدار الإطار معزولًا بألواح القصب ، وهي آمنة بيئيًا وتقوم بعملها بشكل جيد..
إن رخص المواد الاصطناعية الرغوية وخفتها ومقاومتها للرطوبة تجعل هذه الطلاءات الواقية من الأفضل. لكن من المهم أن نفهم أنه ليست كل المواد في هذه السلسلة مثالية بشكل متساوٍ. بالإضافة إلى ذلك ، يُسمح باستخدام أي عزل من هذا القبيل فقط في حالة استبعاد التسخين القوي..
يجب بالضرورة تغطية الحماية الحرارية من ملامسة الماء وبخار الماء. يتدهور العزل الرطب بسرعة ويفقد صفاته الإيجابية.

يتضمن النهج الكلاسيكي لعزل المواقد والمساحة المحيطة استخدام الأسبستوس لحماية المواد المختلفة. يمكن تطبيقها على شكل ألواح أو قماش.. ولكن نظرًا لخطر ألياف الأسبستوس على البشر ، فمن المستحسن استخدام طرق تشطيب أخرى:
- ألياف البازلت
- العزلة.
- حصائر مثقوبة بالإبرة.

يمكن للحرارة في الحمام الهروب ليس فقط من خلال الجدران ؛ تحدث معظم تسرباته من خلال الأرضيات والأسقف. لإنشاء حماية حرارية بداخلها ، يتم استخدام الطين الموسع في بعض الأحيان. في عزل الجدران ، يتم استخدامه بشكل أقل ، لأنه ثقيل جدًا (500 كجم لكل 1 م 3) مقارنةً بنظرائه المتاحين عمومًا. بالإضافة إلى ذلك ، فإن الطين الممتد أدنى بكثير من حيث الاحتفاظ بالحرارة لكل من الرغوة والصوف المعدني ، وبالتالي ينمو سمك الطبقة العازلة. وحتى إذا كان يمتص الماء ببطء ولكن بثبات ، فقد يكون من الصعب جدًا تجفيف المادة..
إن تدفئة المباني ذات الإطار بنشارة الخشب لها تاريخ طويل إلى حد ما. إنها آمنة تمامًا من الناحية البيئية والصحية ، لكن وضع مثل هذه الحماية الحرارية لن يعمل بسرعة. تستخدم نشارة الخشب ليس فقط للعزل ، ولكن أيضًا كفراش للحيوانات والأسمدة وفي العديد من الحالات الأخرى. لذلك ، لم يعد الموردون يتنازلون عنها مجانًا ، لكنهم يفضلون تلقي المال مقابل مثل هذا المنتج المطلوب. في مدينة كبيرة ، تُباع نشارة الخشب أيضًا في محلات السوبر ماركت ، ولكن هناك مستوى أعلى من السعر في المناشر.

فقط نشارة الخشب الصلب مناسبة للعمل. الرطوبة القصوى المسموح بها 20٪ ، والأفضل أن تكون أقل من ذلك. لم يتم استخدام نشارة الخشب النظيفة في مواقع البناء لفترة طويلة ، لأنها تستقر وتشكل فراغات ، وقد تظهر الفطريات بالداخل.
من الضروري معالجة المواد الخام بحمض البوريك أو كبريتات النحاس. يشمل الخليط القياسي أيضًا الطين أو الأسمنت (لإنهاء السقف) أو الجير أو الجبس.
يجب أن تكون طبقة نشارة الخشب الموجودة تحت الأرض 200 مم على الأقل ، ويمكن زيادة هذا الرقم بنسبة 50٪ أخرى في المناطق الشمالية من الاتحاد الروسي. يتضمن وضع السوائب خلط نفايات معالجة الأخشاب بمواد الربط ، ثم يتم صب التركيبة في قوالب مصنوعة من الخشب ، توضع عليها الأرضية. القاعدة محمية من الرطوبة باستخدام ورق الكرافت والبولي إيثيلين والمواد المماثلة. يقع التكوين بشكل موحد على المنطقة بأكملها ، ولا يجب ضغطه إلا في حالات نادرة. يتم الانتهاء من الاستعداد النهائي للعزل في غضون يومين..
أمثلة على المباني الجاهزة
يمكن عمل الحمامات ذات الإطار الجميل في مجموعة متنوعة من التصميمات. هذا ما يبدو عليه الهيكل بسقف غير شديد الانحدار مدفوع للأمام فوق الواجهة. يوجد نوع من المنصة أمام الباب ، والذي تحتاج إلى صعود سلم صغير إليه. من الواضح أن مفهوم التصميم مبني على روح الطبيعة القصوى للمبنى. تم الانتهاء من العديد من حمامات الزاوية ، التي تم بناؤها باستخدام تقنية الإطار ، بانحياز..

مع التنفيذ السليم ، اتضح أنه من الصعب للغاية تمييزها عن المباني الخشبية البسيطة. غالبًا ما يتضمن النهج الحديث للحمامات استخدام أسلوب بسيط. يظهر مثال صارخ في الصورة – لا يوجد سوى مظلة ، وسلم صغير وجدران اللوح ونافذة مستطيلة. يمكنك بناء مثل هذا الهيكل بيديك ، علاوة على ذلك ، في أقصر وقت ممكن. من السهل والمريح استخدام أي نوع من أنواع الغسيل المعروضة.

للحصول على معلومات حول كيفية بناء حمام الإطار ، انظر الفيديو التالي..
حمام الإطار: أمثلة على المشاريع
بناء الحمام ضروري في أي كوخ صيفي وفي منزل ريفي. لكن الخيارات التقليدية ، التي تستخدم الطوب أو الخشب ، لها عدد من العيوب. لكن الهياكل الهيكلية المحرومة منها تحتاج إلى أن يتم تشييدها باستخدام تقنية خاصة..
الخصائص
من الصعب جدًا بناء المباني ، حتى المباني الصغيرة مثل الحمام ، بيديك من الطوب أو جذوع الأشجار. سوف تحتاج إلى إنفاق الكثير من المال على المواد ، وإعداد رسومات خالية من العيوب. وبدون مساعدة شخص ما ، لن يكون من الممكن القيام بمثل هذا العمل على الإطلاق. لذلك ، تستحق المشاريع الإطارية مزيدًا من الاهتمام.. علاوة على ذلك ، يتم تقليل استهلاك الخشب مقارنة بهياكل الأخشاب التقليدية بمقدار النصف بالضبط.
المباني خفيفة نسبيًا ، حتى لو كانت بأبعاد 6 × 4 أو 6 × 6 م ؛ إذا كان حجم الهيكل 3 × 4 ، 4 × 4 م ، فإن هذا الظرف يتجلى أكثر. لذلك لا داعي لإعداد أساسات متينة. من الممكن إنهاء الجدران الخارجية والداخلية في نفس الوقت ، وتزداد سرعة التركيب الكلية بشكل ملحوظ. أصغر مساحة من غرفة البخار 250 × 250 سم ويوصى باستخدام أنابيب الأسمنت الأسبستي بقطر 100 وطول 4000 مم للأساسات المملوءة بالخرسانة.
يتم تجفيف جميع العناصر الخشبية جيدًا قبل التثبيت.. يتم تجميع العوارض الخشبية على الأرض ، وبعد ذلك يتم رفعها بالتناوب ووضعها فوق رفوف الإطار. السقف مصنوع فقط في نسخة جيدة التهوية.
يُنصح بعدم رفع السقف في غرفة البخار فوق 210 سم ، وفقط بعد الانتهاء من الإطار ، يتم تقسيم الحمام إلى غرف منفصلة.
المميزات والعيوب
المزايا التي لا جدال فيها لبناء حمامات الإطار هي:
ولكن بعد دراسة مراجعات المالكين والمطورين بعناية ، يمكنك العثور على بعض أوجه القصور على الفور. يمكن القضاء على كل واحد منهم من خلال اتخاذ تدابير في الوقت المناسب ، فقط لأنك بحاجة إلى فهم المشاكل المحتملة بشكل صحيح. حمامات الإطار في شكلها النقي تبرد بسرعة ، وبالتالي ، بعد وقت قصير ، تظهر الفطريات القبيحة في الداخل. للتعامل مع هذه الصعوبة ، تحتاج فقط إلى استخدام عزل عالي الجودة..
لا يعمل الستايروفوم أو الصوف المعدني البسيط بفعالية كافية ، كما أن الخيار الأول يشتعل بسهولة.
من الممكن إطالة عمر خدمة الحمام اللوح إذا تم تشريب الأخشاب والألواح المستخدمة بالكامل بمطهرات لعينة خاصة. بعد 18-24 شهرًا ، يكون انكماش الإطار في بعض الأحيان 80-100 مم. نتيجة لذلك ، يتم تشويه التشطيبات الخارجية والداخلية. يمكنك تقليل هذا الخطر إذا كنت تأخذ الخشب المنشور المجفف في الغرفة..
التفاصيل الدقيقة للتصميم
لا تعني بساطة البناء وتوافره لغير المتخصصين أنه يمكنك بدء العمل بأمان دون تحضير. حتى تجربة مثل هذا العمل لا تعطي أسبابًا للموقف الرضا عن النفس.. سيساعد المشروع والرسومات المدروسة جيدًا للهيكل المستقبلي على تجنب الأخطاء الجسيمة..
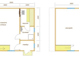
في منطقة صغيرة (3 × 4 أو 4 × 4 م) ، يلزم زيادة كثافة استخدام المساحة. إذا أمكن ، يجب تجنب هذه الحمامات الصغيرة تمامًا إذا كانت هناك مساحة كافية للبناء.
أبسط مخطط هو عندما يتم الجمع بين غرفة البخار وغرفة الاستحمام وغرفة المرجل وحجرة خزانة الملابس. لكن مثل هذه الخطوة مقبولة فقط للهياكل الصغيرة أو الحمامات القابلة للنقل ، لأنه من المستحيل توزيع درجة الحرارة كما هو متوقع. لذلك ، يحاولون إنشاء غرف ، حتى مع أصغر الأبعاد ، وإن كانت صغيرة جدًا ، لكنها قائمة بذاتها. يمكن تسخين الحمام الذي تبلغ مساحته 3 × 4 أمتار باستخدام غلاية صغيرة أو موقد يعمل بالحطب. يجد المصممون الفرديون الفرصة لاستكمالها بشرفة أرضية أو تراس..
أصغر المشاريع لها عدد من الخصائص القيمة:
يجب أن نتذكر أنه حتى التمديد الصغير من طابق واحد للمنزل يجب أن يتم تسجيله لدى سلطات التسجيل المساحي.
في قطعة أرض أكبر ، من الممكن تمامًا بناء حمام 6 × 6: سيسمح لك بالفعل ليس فقط بغسل الأوساخ عنك ، ولكن أيضًا لدعوة العائلة بأكملها وحتى مجموعة من الأصدقاء. تتضمن المشاريع النموذجية بمثل هذه الجوانب مساحة كبيرة من غرفة الاستراحة – يمكن أن تصل إلى 20 مترًا مربعًا. غالبًا ما توجد أيضًا سلالم تربط الطابق الأول بالعلية..
يتفوق الحمام المكون من طابقين على الحمام المكون من طابق واحد لأنه يسمح لك بتنظيم مساحة إضافية للحياة والترفيه. غالبًا ما توجد غرف لاستقبال الضيوف أو غرف نوم أو طاولات بلياردو أو غيرها من المعدات الرياضية.
بفضل تقنية الإطار ، يتعلق الجزء الأكبر من التكاليف بقاعدة المبنى ، وإذا كان موجودًا بالفعل ، فستكون مراحل العمل اللاحقة أكثر تكلفة..
في بناء طابقين ، فإن الخطوة الأولى هي إنشاء أساس من أعمدة الدعم ، ويجب تغطية القاعدة بطبقة من العزل المائي. يوصي الخبراء ببناء نظام الجمالون للحمام من الألواح بقسم 10×5 سم ، وعادة ما يذهب اللوح بسمك 2.2 سم إلى الصندوق.
يتم تجميع هيكل لوحة الإطار وفقًا لمبدأ مُصمم اللعبة. ليس من الصعب العثور على مجموعات من العناصر المناسبة لبناء غرفة غسيل مع حوض سباحة ، ثم يتم وضعها فقط على إطار مُعد. تأتي العدة عادةً مع تعليمات تقنية مفصلة للمساعدة في تجنب الأخطاء – فقط إذا تم اتباعها بدقة. في حالة الحمامات المتنقلة ، كل شيء أبسط – لا يتم تجميعها في مواقع البناء ، ولكن في المؤسسات الصناعية. كل ما تبقى للعملاء هو فقط استكمال الكتل النهائية بالتفاصيل اللازمة..
تتضمن معظم المشاريع استخدام أسطح الجملون ، ومساحة العلية الموجودة تحتها غير منظمة أو أنها صغيرة جدًا. ومع ذلك ، غالبًا ما يضعون في الداخل معدات الاستحمام. عند اختيار نوع الأساس ، يسترشدون بفئة التربة وحالتها. كتلة المبنى ، حتى لو أخذنا في الاعتبار وجود الطابق الثاني في عدد من المتغيرات ، صغيرة نسبيًا. تعتمد مؤشرات تصميم العزل على ما إذا كان الحمام سيستخدم على مدار السنة أم أنه مخصص فقط للموسم الدافئ..
حساب كمية المواد
ليس من الصعب حساب الحاجة إلى عقد الإطار المعدني: يمكن لأي بائع القيام بذلك ، بعد أن تعلم الأبعاد والأداء المطلوبين. في المشاريع النموذجية ، يتم تطبيع الاستهلاك الدقيق للمعادن ، وإذا تم تجميعها وفقًا لأمر فردي ، فسيتم إجراء جميع الحسابات بواسطة المصممين. لكن على الرغم من ذلك ، يجب السيطرة عليها ، لأنه حتى في المواد الحديدية ، يمكن لبعض البنائين ارتكاب “أخطاء” لصالحهم. قبل حساب احتياجات الخشب ، عليك أن تختار ما إذا كان سيتم استخدام الأخشاب أو السجل في هذه الحالة. تُفضل التصميمات القائمة على الأخشاب للأسباب التالية:
أقوى الأخشاب ، وفقًا للخبراء ، مصنوع من الصنوبريات ، علاوة على ذلك ، فهي أقل عرضة للعمل المدمر للحشرات والكائنات الدقيقة التي تقضم الشجرة. الأبعاد القياسية للأخشاب التي يتم أخذها في الاعتبار في الحسابات تتراوح من 10×10 إلى 20×20 سم ، ويتم حساب الحجم بضرب الطول في ارتفاع وسمك عنصر واحد.
يدعي بعض الأساتذة أنك بحاجة إلى إضافة 10-30٪ إلى النتيجة. لكن هذه الخطوة غبية بصراحة ، لأنه ، على العكس من ذلك ، ستضطر إلى إنفاق القليل من الأخشاب – فهي غير مثبتة على فتحات النوافذ والأبواب..
يستبدل العملاء عديمي الخبرة وحتى البنائين طول المحيط بمنطقة ، ثم يضطرون إلى التوقف عن العمل وشراء المواد المفقودة وإنفاق الأموال على وسائل النقل الخاصة بهم. حتى لا تكون مخطئًا ، يجب عليك أيضًا التحقق بعناية من الملصقات والمستندات المصاحبة.. في بعض الحالات ، تشير بطاقات الأسعار وفي خطابات البائعين إلى أبعاد أخشاب أكبر قليلاً مما هي عليه في الواقع.
لتوفير المزيد من المال ، يمكنك تغيير الخشب إلى ألواح ، ويمكن أن تكون الكسوة مصنوعة من بطانة بلاستيكية أو صفائح ملفوفة. عند العمل ، يُقبل فقط المجالس من أعلى فئة.
مراحل البناء
بعد حساب الحاجة إلى المواد واختيار حجم حمام الإطار ، تحتاج إلى التعامل مع تسلسل أعمال البناء. لا توجد اختلافات جوهرية عن بناء الحمامات الأخرى أو منازل المدينة في ترتيب المراحل ، لكن كل منها يكشف عن خصائصه الخاصة..
المؤسسة
لذلك ، عند إقامة قاعدة ، من الأفضل استخدام الهياكل العمودية. يتم تجميعها من أنابيب الأسمنت الأسبستي التي يبلغ قطرها حوالي 10 سم ، معززة من الداخل بالخرسانة. ثم يقومون بتحديد الخطوط الخارجية ، وباستخدام المثقاب ، يقومون بحفر الفتحات التي يصل عمقها إلى مترين.
لمعلوماتك: قد يكون عمق الاختراق في بعض الحالات أكثر أو أقل. يتم اتخاذ هذا القرار بناءً على نوع التربة وعمق المياه الجوفية. يتم إدخال كل أنبوب في الفتحة ومغطى من الأعلى بالرمل الخشن ، علاوة على ذلك ، يتم صدمه جيدًا. عند صب الخرسانة ، يتم تحضيرها من:
وفقًا للتعليمات خطوة بخطوة ، يجب أن يكون ملء الأنابيب سلسًا ، ويتم وضع لوحة فولاذية قوية على كل منها عندما تكون جاهزة. يجب أن تجف الأنابيب المركبة ، وعندها فقط يأتي الدور لتركيب الأنابيب السفلية. الصندوق معالج بالمطهرات ومغطى بطبقة مقاومة للماء. يتم وضع جذوع الأشجار أعلى الربط ، والذي يتكون منه أرضية خشنة. في الفاصل الزمني الذي يفصل الهيكل عن التأخر والربط ، يتم وضع مواد التسقيف ، وأحيانًا يكون هذا المكان مغطى بكثرة بالمصطكي.
يجب أن يأخذ بناء الأساس تحت حمام الإطار ، الذي يتكون من طابقين أو ثلاثة طوابق ، في الاعتبار الحمل الكلي وضغط الثلج. لا يُسمح بالقواعد الخشبية إلا للحمامات المصغرة ، والتي تبلغ مساحتها الإجمالية 12 مترًا مربعًا. م وأقل. يجب إيلاء اهتمام متزايد لحساب قطر الأخشاب وأسطح التسوية.
تأكد من وضع عدة قضبان على نفس المستوى ، مع قطع حول المحيط بالأوتاد. تعمل هذه الأنظمة بشكل جيد في التربة الطينية ، حيث تعمل بثبات لسنوات عديدة..
عند بناء الحمامات على أكوام لولبية ، ليست هناك حاجة للانضمام إلى الهياكل الداعمة باستخدام قضيب أو قضبان قناة. تساعد هذه الدعامات في البناء حتى على منحدر تل أو على ضفة نهر شديدة التآكل مع تيار مضطرب. يتم إدخال الخوازيق في الأرض إما باستخدام معدات خاصة ، أو بسبب جهود العديد من البناة في نفس الوقت. عند العمل ، من المستحيل تمامًا انحراف الدعم عن خط الأفق..
في كل دورة رابعة ، يتم معايرة موضع الكومة بعناية باستخدام مستوى مغناطيسي. يحظر إزالة الهياكل المائلة أثناء التواء بالتكنولوجيا ، ويتم تصحيح موضعها باستخدام مستوى دوار. يمكن استخدام أي خرسانة قوية وحديد التسليح لإزالة الفجوات التي تفصل الركائز عن التربة المحيطة. بعد الانتهاء من التثبيت ، يتم فحص الأكوام للتأكد من تساويها. إذا كان كل شيء على ما يرام ، يتم لحام الرؤوس فوقها ؛ دائمًا ما يكون الصرف في الحمام مجهزًا ليس فقط في غرفة الغسيل ، ولكن أيضًا في غرفة البخار.
يحاول الكثير من الناس وضع الحمام على قاعدة شريطية. هذا الحل مقبول حتى في التربة المعرضة للحركة والهبوط ، والتي يمكن أن تنتفخ بسهولة. الشريط مقسم إلى فنلندية وكندية ؛ كلا مدرستي التكنولوجيا بسيطتان ، لكنهما يتطلبان نهجًا دقيقًا ومسؤولًا. يتم إنشاء الأساسات المتجانسة مباشرة في موقع البناء ، ويتم وضع الأساسات الجاهزة وتوصيلها فقط. في أغلب الأحيان ، يتم إرشادهم بعمق ضحل (يصل إلى 50 سم) ، وينتشر هذا الشريط بالتساوي تحت الجدران الحاملة.
غالبًا ما يكون اختيار الخيار الأساسي المناسب أمرًا صعبًا بدون المسوحات الجيولوجية. يمكن إجراء أبسط فحص بشكل مستقل: يتم التعرف على نوع التربة وخصائصها المرئية عن طريق حفر خندق بعمق 150 سم. إنهم يقيمون بعناية ليس فقط ارتفاع المياه الجوفية الدائمة ، ولكن أيضًا المستوى الذي تتجمد فيه الأرض.
بالنسبة لأي نوع من الأساسات ، يتم تنظيف موقع البناء من الأعشاب والشجيرات والزهور والأحمق مسبقًا. حتى جذوع الأشجار والجذور وأي أشياء يمكن أن تتداخل مع البناء لا ينبغي تركها..
تساعد الحبال القوية المصنوعة من الأقمشة الملونة على تبسيط عملية وضع العلامات. وفقًا للعلامات ، تحتاج إلى حفر استراحة للمؤسسة ، والتي سيكون عمقها 50 سم وعرضها 400 سم من المعلم المُجهز. وسادة المبنى مصنوعة من الرمل الذي يسكب بكثرة بالماء ويصدم. ثم الطبقة الأولى مغطاة بالركام. يتم تثبيت العزل المائي على طول الطائرات الجانبية للخندق. يتم استخدام مواد التسقيف بشكل تقليدي ، على الرغم من أن الاختراق الأكثر حداثة يحل محله..
يتم إنشاء القوالب على النحو التالي: تستخدم الحافة العلوية للعزل المائي لوضع الألواح ، وسمكها 50 مم ، وعرضها بحد أقصى 1.5 متر. يجب وضع الألواح بدون أدنى فجوات ، مع ارتفاع عن الأرض بمقدار 30 سم ، سلك تقوية ، جرح 50 مم أسفل أعلى نقطة من القوالب (تم إخفاؤها بالكامل لاحقًا بطبقة من الخرسانة). يتم صب الخرسانة بمزيج من الأسمنت والرمل والحصى ، من حيث الكثافة ، فهو يشبه القشدة الحامضة الكثيفة. يتم تحقيق تصلب إضافي بواسطة الملدنات.
يوصى بإعداد الهاون بنفسك ، لأنه أسرع بكثير من الحصول على الملاط من المصنع. بالإضافة إلى ذلك ، سيساعد هذا النهج في الحفاظ على جودة التماس البارد ، وتجنب تسرب الماء من خلاله ، مما قد يفسد القاعدة. والأهم من ذلك ، أن الاختلافات في التكلفة لا تذكر. بعد الانتهاء من العمل ، يتم تغطية الأساس بمادة غير منفذة للسائل. ستصلب الخرسانة في غضون 24 ساعة ، لكنها ستكتسب القوة النهائية بعد بضعة أسابيع فقط..
يجب عمل القوالب باستخدام ألواح متساوية وقوية بحيث يكون مظهرها مثاليًا. يتم تحريك الأظافر بدقة من الداخل إلى الخارج. إذا قمت بالعكس ، فسيكون من الصعب جدًا إزالة الدروع.. عند العمل على هياكل القوالب ، يجب أن تفكر على الفور في الاستنتاجات الخاصة بشبكات الصرف الصحي وإمدادات المياه والكابلات الكهربائية.. إذا لم يتم توفيرها على الفور ، فستحتاج إلى تحسين جودة الوحدة المتراصة وكسرها.
من المقبول تمامًا وضع أساس شريطي على شكل حزام متآلف أسفل حوض الاستحمام من الإطار إذا تمت إزالة طبقة التربة الخصبة واستبدالها بالرمل المصبوب.
يجب حماية كل من المحلول الأحادي والبنية الضحلة والقاعدة غير العميقة من قوة رفع الصقيع. للقيام بذلك ، استخدم:
لا ينبغي استخدام الأحزمة الضحلة على منحدرات مختلفة: فهناك لن تتحمل قوى القص الكبيرة. عند البناء على رمل أو جسر مغبر ، يتم وضع لوح تمدد تحته. دائمًا ما يكون للوحدة المتراصة التي يتم تنفيذها بشكل صحيح ارتفاع أكبر من العرض. علاوة على ذلك ، فإن الفرق هو 2-4 مرات ؛ مثل هذه الخطوة ستجعل الجزء السفلي من الهيكل مثاليًا ، وسيكون من الممكن تشكيل كل من الحزم المتداخلة والأرضية.
الجدران والأرضية
يبدأون في العمل عن طريق وضع رفوف خاصة ، والتي سيتم تثبيتها بواسطة الحزام العلوي. يتم إضافة رفوف أخرى بينهما. سوف يجعلون الحمام أقوى وأكثر استقرارًا. الصندوق مغطى بألواح ، وهي متصلة بمسامير. بعد تجميع الأجزاء بالتتابع ، فإنها تشكل الهيكل أخيرًا..
في المباني الهيكلية ، يتم تركيب النوافذ والأبواب على الفور ، دون انتظار اكتمال العمل.
في معظم حمامات الإطار ، يتم إنشاء الأرضيات من جذوع الأشجار واللوحات ، ولكن لن يكون من الممكن تحديد الحجم المناسب لهذه العناصر بدقة دون إجراء حسابات معقدة. لكن هذا ليس ضروريًا – فقد يتعامل المطورون الخاصون جيدًا مع القيم المتوسطة الجاهزة. في معظم الحالات ، يُسمح باستخدام الألواح التي يتراوح سمكها من 30 إلى 40 مم وسجلات التشطيب القائمة على شريط بقسم 100 × 150 مم. يجب أن يتوافق سمك اللوح ، معبراً عنه بالمليمترات ، تقريبًا مع الفجوة بين الفواصل ، معبراً عنها بالسنتيمترات.
في حالة استخدام العزل الحراري ، يتم تصحيح الفجوات بين سجلات الأرضيات النهائية مع مراعاة طبقة العزل التي تم إنشاؤها.
بالنسبة للمواد الأساسية ، فإن جميع أنواع الأخشاب ذات الخدمة الطويلة مناسبة لإنشاء أرضية في حمام الإطار. لكن الحور والأخشاب اللينة الأخرى غير مقبولة. قبل الشراء والاستخدام ، يجب التحقق بعناية من جفاف وسلامة المواد ، وعدم وجود تشققات ، وانشقاقات وغيرها من المشاكل. من الناحية المثالية ، يجب أن تأتي جميع الأخشاب المنشورة من نفس الدفعة التي اجتازت التجفيف في الغرفة.
يُنصح بصنع الأرضيات النهائية من لوح ذي حواف أو مخدد ، حيث لا يحتاج إلى صنفرة إضافية ، ولكن يمكن أيضًا أن تكون القاعدة الخشنة غير مشقوقة.
غالبًا ما يكون بديل الهياكل الخشبية هو أرضية التسوية الذاتية. أصبح هذا الحل أكثر شيوعًا على مر السنين ، مما أدى إلى إزاحة الأسطح الخزفية والحجرية جانبًا.. يمكن النظر في المزايا الرئيسية لأرضية التسوية الذاتية:
ولكن هناك أيضًا نقاط ضعف موضوعية: على سبيل المثال ، تصلب أرضية التسوية الذاتية أخيرًا بعد بضعة أيام فقط ، عندما يمكنك المشي على أرضية خشبية على الفور. هناك مخاطر عالية من الخدوش والأوساخ ، وتكلفة هذا الطلاء مرتفعة للغاية. يوصى بعمل أي أرضيات حمام بمنحدر باتجاه الصرف ، وهذا سيمنع الماء والصابون من الانتشار في جميع الاتجاهات. يمكن عمل أرضية التسوية الذاتية أفقيًا (بدون منحدر) أو صب الخليط على قاعدة بها منحدر بالفعل. يتطلب الخيار الأول إغلاق تقاطعات الأرضية بالجدران بعناية ، والثاني أكثر صعوبة في الأداء ، ولكنه يوجه كل السائل في الاتجاه الصحيح دفعة واحدة.
لا يمكن ببساطة “سكب” أرضية التسوية الذاتية: يتم تحضير ركائزها بعناية فائقة. في الجزء العلوي من الشجرة ، تحتاج إلى وضع قدد خرسانية قوية ومع التعزيز. كلما تم سكب الخليط في وقت أسرع ، كان ذلك أفضل – يفقد السيولة بسرعة ، وإذا حدث هذا قبل نهاية العمل ، فإن جميع التكاليف ستذهب سدى. في أغلب الأحيان ، يتم سكب الأرضيات معًا..
بالنسبة للحمامات ، يوصى باستخدام مركبات تعتمد على البولي يوريثين ، فقد أثبتت أنها أفضل بكثير من الإيبوكسي أو بولي ميثيل أكريلات.
عند العمل بالجدران ، في معظم الحالات ، يتم تصنيع الكسوة الأمامية على أساس البطانة أو اللوح. يتم توفير العزل المائي برق موضوعة تحت الجلد الخارجي. عندها فقط يتم استخدام العزل ، والذي يجب أن يكون صديقًا للبيئة وآمنًا للحريق. يتم تحديد السماكة الكلية للكعكة وطبقاتها الفردية من خلال المعلمات المناخية للمنطقة وخصائص استخدام حمام الإطار.
يجب ألا يحتوي الهيكل المستخدم على مدار العام على جدران أكثر سمكًا فحسب ، بل يجب أن يحتوي أيضًا على حاجز بخار خاص. أفضل حل لذلك هو غلاف بلاستيكي..
يعد طلاء الكسوة الجدارية ، حتى في غرف الملابس ، أمرًا غير مرغوب فيه ، لأن أبخرة حتى الدهانات والورنيش الأكثر أمانًا يمكن أن تكون ضارة بالصحة. عند التفكير في هيكل الجدران ، يتم إيلاء اهتمام خاص لكيفية مرور مجاري التهوية والأسلاك الكهربائية من خلالها. نظرًا لاستخدام المواد القابلة للاشتعال في الزخرفة الخارجية ، وغالبًا ما توجد الرطوبة الزائدة في الهواء ، يجدر إعطاء الأفضلية لقنوات الكابلات المغلقة والمعزولة تمامًا..
إذا تم الانتهاء من الغرف بألواح ، فيجب أن يكون سمكها حوالي 30 مم. عند القيمة المنخفضة ، تعاني القوة ، عند القيمة الأعلى ، يصبح الهيكل ثقيلًا.
سطح
يتم وضع الأجزاء الأساسية المستخدمة في بناء سقف حمام الإطار بشكل تدريجي وتجميعها مباشرة على الموقع. يجب أن يقف الجمالون على قاعدة الإطار المعدة. يساعد وضع السقف على لوح خشن على تبسيط إنشاء السقف. تشتمل كعكة النموذج دائمًا على أنظمة تهوية ، لذلك يتم ملء الفجوة من العوارض الخشبية إلى العارضة المقابلة بحاجز بخار. يجب ربط الخراطة بالخشب.
ثم يحين الوقت لصنع الجملونات من الألواح الموجهة أو الألواح عالية الجودة. في معظم الحالات ، يجب أن تقتصر على أبسط سقف أحادي النبرة ، والذي يتم تنفيذه بسرعة ودون صعوبة لا داعي لها. ولكن إذا اخترت تصميمًا أصليًا تمامًا ، فلن يتمكن كل متخصص من إكمال العمل بكفاءة وفي الوقت المحدد..
ما هو مهم للغاية ، مع نفس المنطقة ، تبين أن حلول الجملون أغلى بنسبة 50-100 ٪ ، وهذا الاختلاف غير مبرر حتى من خلال قدراتها المحددة. مع الحساب الصحيح ، سيستمر الغطاء ذو المنحدر الواحد لسنوات عديدة وسيكون كل هذا الوقت مناسبًا للغاية للاستخدام..
لا ينصح باستخدام الأسطح المسطحة للحمامات بأيديهم. الاقتصاد في مثل هذا الاختيار واضح فقط – فالحاجة إلى تهوية صناعية قوية مع ضعف طبيعي تمتص كل المدخرات. وفقًا للبناة المؤهلين ، يجب وضع السقف المائل على منحدر عام يتراوح من 20 إلى 30 درجة. إذا تم استيفاء هذا الشرط ، فسوف تنخفض الرواسب السائلة والصلبة تلقائيًا.
هناك طريقتان لإنشاء منحدر: تعمد جعل الجدران غير متساوية في الارتفاع أو عن طريق تثبيت الرفوف. مع الخيار الثاني ، يتم إنفاق المادة أقل ، لكن الحرارة ستستمر بشكل أسوأ.
يعرف أسقف الأسقف المتمرس على وجه اليقين أنه مع انخفاض منحدرات السقف ، يجب استخدام مواد مواجهة أكثر سلاسة. ولكن بزاوية أقل من 10 درجات ، حتى أفضل الحلول لا تسمح لك بالتخلص من البرك الناتجة وانجرافات الثلج. يتكون Mauerlat من خشب صنوبري مع مقطع عرضي لا يقل عن 15 × 15 سم ، ويتم تغطيته من الخارج بطبقة من العزل المائي (مشحم بالمصطكي أو ملفوف بمواد التسقيف). العوارض الخشبية مصنوعة حصريًا من الألواح المسطحة بقسم 5 × 15 سم ، وهي مصنوعة من الخشب الصلب.
مع هذه الأبعاد ، يتم تحقيق هامش أمان مثالي ويظل من الممكن تثبيت العزل حتى 15 سم ، إذا لزم الأمر. لمعلوماتك: يتم حساب طول العوارض الخشبية مع التكرار للتراكمات ، مما يحسن حماية الجدران من الماء. تم تجهيز جميع أطراف أرجل العوارض الخشبية بقطع لـ Mauerlats ، والتي يتم تثبيتها بمسامير أو شرائط معدنية. يتم ربط الخراطة بأرجل العوارض الخشبية بزوايا قائمة.
تحت بعض مواد التسقيف المعرضة للتشوه ، يتم بالضرورة إنشاء غلاف غير قابل للكسر يعتمد على الخشب الرقائقي المقاوم للرطوبة..
في حالات أخرى ، يتم وضع شرائح من الشرائح ، ويتراوح سمكها من 2.5 إلى 3 سم ، ولكن في كل حالة محددة ، بالطبع ، يجب أن تكون هذه السماكة موحدة طوال الوقت. يُنصح بتداخل الحمامات مع الأسقف المائلة مع ondulin أو المموج أو المعدن أو البلاط الناعم. إذا كان هناك سقف بسيط أدناه ، بدون علية أو علية ، فمن الضروري وضع بلاطة أو لفة عازلة. بغض النظر عن ذلك ، فإنهم يستخدمون:
يجب أن ترتكز الأسقف أحادية النغمة على عوارض خشبية متباعدة على مسافة 0.5 – 0.8 متر ، ويجب تثبيت مادة التسقيف بالقاعدة باستخدام براغي خاصة ، بما في ذلك أغطية مطاطية صناعية. تساعد هذه القمم على منع تسرب المياه. إذا لم تكن هناك أدوات تثبيت متخصصة ، فأنت بحاجة إلى استخدام مسامير بسيطة ذاتية التنصت ، مع استكمالها بحشوات مطاطية خارجية. ثم تُخيط الجملونات ، وقد تم تجهيز الصرف – في هذا الصدد ، يتم الانتهاء من العمل الخارجي لحمام الإطار.
التشطيب
بغض النظر عن مدى موثوقية واستمرارية “الصندوق” الذي تم إنشاؤه ، فلن يكون من المفيد أن يقتصر عليه. من الضروري حماية هذه الهياكل من التأثيرات الخارجية السلبية وفي نفس الوقت جعلها أكثر جاذبية.
تساعد زخرفة الجدران الخارجية المطورين والمصممين على التعبير عن أذواقهم وأولوياتهم الجمالية. غالبًا ما يحاولون غمدهم بالانحياز واللوح. البيت الكتل والجص أقل شعبية من هذه المواد..
يجب فحص الجدران الخشنة قبل وضع أي كسوة. يجب ألا يكون لديهم حتى تشققات طفيفة ، يجب أن تتناسب مفاصل الإغلاق بشكل مريح مع بعضها البعض. بمساعدة انحياز الفينيل ، يمكنك إنشاء مجموعة متنوعة من اللوحات المرئية: تقليد خشب بسيط ، وجدار “من الطوب” ، وشيء عالي التقنية في الروح. لا تظهر الألواح البلاستيكية نفسها بشكل جيد ، وإذا كنت بحاجة إلى زيادة المظهر الطبيعي للحمام إلى أقصى حد ، فيجب عليك اختيار منزل كتلة.
في حالة اختيار البطانة ، يجب الاحتفاظ بها لعدة أيام حتى يتم التأقلم.
تزيين حمام الإطار من الداخل لا يقل أهمية عن من الخارج. يوصى بإعطاء الأفضلية للمواد الصديقة للبيئة ، فإن تكلفتها المتزايدة لها ما يبررها تمامًا. أصبح اختيار التصميم في الديكور الداخلي الآن غير محدود ، يمكنك استخدام أي نمط ، وليس بالضرورة النمط الروسي التقليدي. غرف ارتداء الملابس مزينة بالخشب النفضي والصنوبري. لكن يُنصح باختيار اللون الهادئ والمتوازن قدر الإمكان ، بالنظر إلى الغرض من الحمام.
حجرات الغسيل مغطاة بلوح ، مبللة مسبقًا بمخاليط تمنع التعفن. يستخدم بعض المستهلكين الألواح البلاستيكية وحتى ألواح البولي كربونات. لا يوجد مكان للصنوبريات في غرفة البخار ، باستثناء خشب الأرز. من بين الأصناف المتساقطة ، المكان الأول دائمًا هو الزيزفون ، الذي لا يحترق عند لمسه ولا يتلاشى بعد الاستخدام الطويل. في المزيد من مشاريع الميزانية ، تعطى الأفضلية للأسبين والألدر.
يمكنك تزيين موقد ساونا من الطوب باستخدام البلاط: هذا الخيار هو أبسط وأرخص وفي نفس الوقت يتيح لك توفير مظهر جذاب. لا ينبغي تعليق البلاط على البناء ، بل يجب وضعه على قاعدة الموقد. يجدر التخلي عن التجصيص البسيط ، فهو لا يعطي نتائج لائقة حتى في الغرف الجافة. يتم الحصول على نتائج جيدة في بعض الأحيان عن طريق استخدام الحجر المزخرف..
إذا لم يتم وضع الموقد من الطوب ، ولكن تم توفيره حسب الطلب ، فإن الأمر يستحق اختيار الحل الذي يتوافق مع النمط المختار..
تنفس
حتى أقوى المواد وأكثرها موثوقية لن تدوم طويلاً إذا ركود الرطوبة بالداخل. والتراكم المستمر للهواء العفن لن يمنح أي شخص متعة. يتم حل كل هذه المشاكل باستخدام تهوية مدروسة بعناية. في معظم الحالات ، يتم الاختيار بين أنظمة العرض والعادم والأنظمة الطبيعية. يتم ضمان الدوران الذاتي عن طريق وضع مدخل هواء على ارتفاع 0.5 متر من الأرضية ، ومنفذ هواء على نفس المسافة تقريبًا أسفل السقف.
من غير المقبول إطلاقا وضع كلا الفتحتين منخفضتين بشكل متساوٍ. سيؤدي هذا إلى “احتقان” في الهواء – سيكون هناك برد بالقرب من الأرض وحرارة لا تطاق على المظلة..
لا يمكن تجهيز المخرج في الأسفل إلا عند استخدام التهوية القسرية أو أنبوب التهوية الكبير. يمكن تنظيم مدخل الهواء البارد في المساحة خلف الموقد ، والمخرج الموجود في الأرضية نفسها ، إذا كان الطابق السفلي متصلًا بالتهوية بهواء خارجي أو أماكن أخرى. بالنسبة للحمامات المدمجة في المنزل ، يجب عليك دائمًا استخدام التهوية القسرية..
كيفية العزل?
من غير المعقول إلقاء اللوم على تبادل الهواء عالي الجودة والمكثف لنقص الحرارة في الحمام. دائمًا ما يكون السبب الحقيقي للمشكلة هو العزل الضعيف ومنخفض الجودة. في معظم الحالات ، يتم استخدام ألواح الصوف المعدني. نظرًا لكمية الهواء الكبيرة بالداخل ، فإنها تحتفظ بالحرارة تمامًا ، وتتيح لك نقطة الانصهار العالية ألا تخاف من النار. غالبًا ما يكون جدار الإطار معزولًا بألواح القصب ، وهي آمنة بيئيًا وتقوم بعملها بشكل جيد..
إن رخص المواد الاصطناعية الرغوية وخفتها ومقاومتها للرطوبة تجعل هذه الطلاءات الواقية من الأفضل. لكن من المهم أن نفهم أنه ليست كل المواد في هذه السلسلة مثالية بشكل متساوٍ. بالإضافة إلى ذلك ، يُسمح باستخدام أي عزل من هذا القبيل فقط في حالة استبعاد التسخين القوي..
يجب بالضرورة تغطية الحماية الحرارية من ملامسة الماء وبخار الماء. يتدهور العزل الرطب بسرعة ويفقد صفاته الإيجابية.
يتضمن النهج الكلاسيكي لعزل المواقد والمساحة المحيطة استخدام الأسبستوس لحماية المواد المختلفة. يمكن تطبيقها على شكل ألواح أو قماش.. ولكن نظرًا لخطر ألياف الأسبستوس على البشر ، فمن المستحسن استخدام طرق تشطيب أخرى:
يمكن للحرارة في الحمام الهروب ليس فقط من خلال الجدران ؛ تحدث معظم تسرباته من خلال الأرضيات والأسقف. لإنشاء حماية حرارية بداخلها ، يتم استخدام الطين الموسع في بعض الأحيان. في عزل الجدران ، يتم استخدامه بشكل أقل ، لأنه ثقيل جدًا (500 كجم لكل 1 م 3) مقارنةً بنظرائه المتاحين عمومًا. بالإضافة إلى ذلك ، فإن الطين الممتد أدنى بكثير من حيث الاحتفاظ بالحرارة لكل من الرغوة والصوف المعدني ، وبالتالي ينمو سمك الطبقة العازلة. وحتى إذا كان يمتص الماء ببطء ولكن بثبات ، فقد يكون من الصعب جدًا تجفيف المادة..
إن تدفئة المباني ذات الإطار بنشارة الخشب لها تاريخ طويل إلى حد ما. إنها آمنة تمامًا من الناحية البيئية والصحية ، لكن وضع مثل هذه الحماية الحرارية لن يعمل بسرعة. تستخدم نشارة الخشب ليس فقط للعزل ، ولكن أيضًا كفراش للحيوانات والأسمدة وفي العديد من الحالات الأخرى. لذلك ، لم يعد الموردون يتنازلون عنها مجانًا ، لكنهم يفضلون تلقي المال مقابل مثل هذا المنتج المطلوب. في مدينة كبيرة ، تُباع نشارة الخشب أيضًا في محلات السوبر ماركت ، ولكن هناك مستوى أعلى من السعر في المناشر.
فقط نشارة الخشب الصلب مناسبة للعمل. الرطوبة القصوى المسموح بها 20٪ ، والأفضل أن تكون أقل من ذلك. لم يتم استخدام نشارة الخشب النظيفة في مواقع البناء لفترة طويلة ، لأنها تستقر وتشكل فراغات ، وقد تظهر الفطريات بالداخل.
من الضروري معالجة المواد الخام بحمض البوريك أو كبريتات النحاس. يشمل الخليط القياسي أيضًا الطين أو الأسمنت (لإنهاء السقف) أو الجير أو الجبس.
يجب أن تكون طبقة نشارة الخشب الموجودة تحت الأرض 200 مم على الأقل ، ويمكن زيادة هذا الرقم بنسبة 50٪ أخرى في المناطق الشمالية من الاتحاد الروسي. يتضمن وضع السوائب خلط نفايات معالجة الأخشاب بمواد الربط ، ثم يتم صب التركيبة في قوالب مصنوعة من الخشب ، توضع عليها الأرضية. القاعدة محمية من الرطوبة باستخدام ورق الكرافت والبولي إيثيلين والمواد المماثلة. يقع التكوين بشكل موحد على المنطقة بأكملها ، ولا يجب ضغطه إلا في حالات نادرة. يتم الانتهاء من الاستعداد النهائي للعزل في غضون يومين..
أمثلة على المباني الجاهزة
يمكن عمل الحمامات ذات الإطار الجميل في مجموعة متنوعة من التصميمات. هذا ما يبدو عليه الهيكل بسقف غير شديد الانحدار مدفوع للأمام فوق الواجهة. يوجد نوع من المنصة أمام الباب ، والذي تحتاج إلى صعود سلم صغير إليه. من الواضح أن مفهوم التصميم مبني على روح الطبيعة القصوى للمبنى. تم الانتهاء من العديد من حمامات الزاوية ، التي تم بناؤها باستخدام تقنية الإطار ، بانحياز..
مع التنفيذ السليم ، اتضح أنه من الصعب للغاية تمييزها عن المباني الخشبية البسيطة. غالبًا ما يتضمن النهج الحديث للحمامات استخدام أسلوب بسيط. يظهر مثال صارخ في الصورة – لا يوجد سوى مظلة ، وسلم صغير وجدران اللوح ونافذة مستطيلة. يمكنك بناء مثل هذا الهيكل بيديك ، علاوة على ذلك ، في أقصر وقت ممكن. من السهل والمريح استخدام أي نوع من أنواع الغسيل المعروضة.
للحصول على معلومات حول كيفية بناء حمام الإطار ، انظر الفيديو التالي..