
جمع المعلومات والمرحلة التحضيرية
تتوفر رسومات مجانية لمنازل الإطار بوفرة على الإنترنت. نحن لا نتحدث عن مجموعات من وثائق المشروع الجاهزة ، ولكن عن رسومات المنازل الخاصة والمنازل الريفية في عدة طوابق مع علية ومرآب. الرسم في هذه الحالة عبارة عن عدة خطط مماثلة للتخطيط الداخلي ، ومخططات لموقع الاتصالات وتوجيه المبنى إلى النقاط الأساسية..

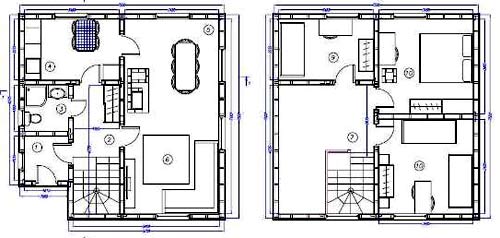
تخطيطات الطابق الأول والثاني من كوخ من طابقين
من أجل إنشاء منزل أحلامك ، تحتاج إلى التعرف على وفرة خيارات التخطيط الحالية والمجانية. إذا كانت جميع المنازل تبدو في وقت سابق مثل بعضها البعض ، وحتى في المظهر يمكن للمرء أن يقول ماذا وكيف يقع في الداخل ، فإن جميع الصور النمطية اليوم تنهار..
يمكن للمنزل الكلاسيكي ذي الصندوق المربع أن يحتوي على مجموعة متنوعة من الحلول المعمارية وتصميماته الرائعة. من أجل اختيار أفضل عرض لنفسك في سوق اليوم ، يجدر النظر في أكثر من عشرة مشاريع مجانية ورسومات تفصيلية وتخطيطات للمنازل الخاصة.
اختيار موقع للبناء
بعد تحديد الاتجاه الرئيسي ، المسافة المسموح بها من مدينة كبيرة ، وكذلك المستوطنات المنزلية ذات الأولوية ، والمستوطنات ، وجمعيات الحدائق أو ببساطة الأرض من فئة IZhS ، يمكنك اختيار الموقع الأنسب. إذا كان ذلك ممكنًا ، فمن الأفضل إلقاء نظرة فاحصة على المناطق المسطحة إلى حد ما والخالية من الغرسات. قد يكون الاستثناء هو المناطق في الغابات ، وتحيط بها أشجار الصنوبر التي يعود تاريخها إلى قرن من الزمان. المرتفعات مفضلة على الأراضي المنخفضة. يتميز المنزل المبني على تلة بأفضل خصائص الأداء. في مثل هذا الموقع ، لا توجد مشكلة عمليا مع ارتفاع المياه الجوفية ، وتبادل الهواء بشكل أفضل ومستوى أعلى من التشمس. بالإضافة إلى ذلك ، من نوافذ هذا المنزل ، خاصة إذا كان مبنى من طابقين أو ثلاثة طوابق ، يتم فتح منظر جميل للمحيط..

عند بناء منزل على تل ، سيكون من الممكن توفير الكهرباء والتدفئة بشكل كبير ، لأن مثل هذا الترتيب ، إذا تم اختيار التصميم الصحيح للمنزل ، سيضمن أقصى اختراق لأشعة الشمس في المبنى. تتيح تقنيات البناء الحديثة ليس فقط استخدام الطاقة الطبيعية للإضاءة الطبيعية لمنزل ريفي ، ولكن أيضًا لتجميع الحرارة المتولدة ، واستخدامها لتدفئة المبنى.
توجيه الكوخ إلى النقاط الأساسية
يعتمد تصميم المنزل تمامًا على موقع الموقع بالنسبة للنقاط الأساسية واتجاه الكوخ نفسه. ما يجب الانتباه إليه أيضًا هو شكل المبنى ونوع السقف..

عند بناء منزل بسقف مائل ، يجب تحويل الواجهة الأكثر انفتاحًا إلى الجنوب ، ويجب أن يكون منحدر السقف موجهًا نحو الشمال. عند بناء سقف الجملون الكلاسيكي أو السقف المعقد ، من الممكن حدوث بعض الانحرافات عن التوصيات العامة. في الموقع ، يجب وضع المنزل في الجزء الشمالي الشرقي. سيسمح ذلك للمبنى بتلقي أقصى قدر ممكن من ضوء الشمس ، بالإضافة إلى إنشاء حد أدنى من الظل في المنطقة المحيطة. نادراً ما يؤخذ هذا العامل في الاعتبار في المرحلة الأولى من البناء ، وبالتالي يخلق العديد من المشاكل مع ترتيب منطقة الترفيه وتخطيط الموقع وتطوير تصميم المناظر الطبيعية. يتم تخطيط المنازل بطريقة تجعل الواجهة المركزية تواجه الجانب الجنوبي. يمكن استكمال المنزل بشرفة ضخمة أو شرفة أرضية مفتوحة أو تراس. تقع على الجانب المشمس ، وهي مكان رائع للاسترخاء في الهواء الطلق..

عندما يتم تحديد قطعة أرض ، يتم تحديد مكان لبناء منزل ويتم توجيه الصندوق إلى النقاط الأساسية ، يمكنك وضع خطة منزل. يعتمد موقع الغرف بالداخل أيضًا على النقاط الأساسية:
- الشرق والجنوب الشرقي – غرف نوم الوالدين وغرف الضيوف ؛
- الجنوب والجنوب الشرقي – غرفة المعيشة وغرف الأطفال وغرف النوم ؛
- الغرب والجنوب الغربي – غرفة المعيشة وغرفة الأسرة وغرفة الطعام ؛
- الشمال – المطبخ ، القاعة ، غرف المرافق غير السكنية ، مناطق التخزين.
قد يكون ترتيب الغرف مختلفًا بسبب قواعد فنغ شوي. يتضمن التدريس اختيار موقع الغرفة داخل المنزل وفقًا لخصائص المالك. على الرغم من أنه يمكن أيضًا تتبع المبادئ العامة. يجب أن يتم بناء تصميم المنزل بحيث يتم فتح منظر بانورامي خلاب من النافذة في الغرف المخصصة للراحة والاستجمام..
يمكن أن تكون حديقة جميلة وساحة فناء مزينة بشكل صحيح ومناظر طبيعية ممتعة. من الأفضل تجنب موقع المنزل الذي تصطدم فيه النوافذ بسياج فارغ أو مباني خارجية أو منازل مجاورة.
تفاصيل التخطيط المستقبلي
قبل أن تبدأ في تصميم منزل ونقل أفكارك إلى ورقة ، عليك أن تقرر بعض الفروق الدقيقة التي سيتوافق معها هيكلنا أو لا. يتم ذلك بحيث لا يرتكب المهندس المعماري أثناء التخطيط الكثير من الأخطاء ، ويقرر إضافة غرفتين إضافيتين ، على سبيل المثال ، بعد رسم السقف بالفعل..

لذلك ، من أجل رسم مخطط للمنزل بنفسك على جهاز كمبيوتر أو على قطعة من الورق ، يجب أن تأخذ في الاعتبار الفروق الدقيقة التالية:
- عدد الطوابق التي ستكون موجودة في المبنى ؛
- ما إذا كان الحمام مطلوبًا في الطابق الثاني وما يليه ؛
- هل سيكون هناك علية تحت السطح.
- هل يوجد جراج في المبنى؟
- ما يجب أن يكون السقف
- كم عدد الغرف سيكون هناك ؛
- سيكون هناك قبو.
وهذه ليست سوى الفروق الدقيقة الرئيسية التي يجب على المهندس المعماري اتباعها عند التخطيط للمنزل. في المستقبل ، قد يكون لديك أسئلة أخرى أثناء التخطيط: هل يحتاج المنزل إلى شرفة وتراس ولوجيا وما إلى ذلك؟.
ما الذي يجب التركيز عليه عند عمل الرسومات
يجب أن يبدأ المشروع بشكل تراكمي ، مع مراعاة جميع الخصائص الهندسية والهيكلية للمنزل. عند بناء مبنى ، عليك التفكير في إمكانيات ترتيب الكهرباء وإمدادات المياه والصرف الصحي حتى أثناء شراء قطعة أرض. حتى لو تم تنفيذ تطوير الرسومات بعناية شديدة ، فقد لا يأخذ الشخص السيء المعرفة في الاعتبار جميع التفاصيل الدقيقة. لهذا السبب ، أثناء البناء ، قد تنشأ ظروف غير متوقعة من شأنها إبطاء البناء لفترة طويلة إلى حد ما..
تعمل المجموعة المتنوعة الحديثة من مواد البناء والمعلومات المتاحة على تبسيط العمل بشكل كبير للمطورين من القطاع الخاص. الآن على الشبكة ، يمكنك بسهولة العثور على عدد كبير من جميع أنواع المشاريع القياسية المجانية ، حيث يسهل عليك اختيار شيء مناسب لك.
ولكن في الوقت نفسه ، يجب أن نتذكر أنه لا أحد سيقدم عملاً جيدًا وعالي الجودة مجانًا للاستخدام الواسع. كل ما يتم تقديمه على الإنترنت ليس نتيجة كاملة ، الأمر الذي يتطلب عملاً جادًا للغاية يمكنك القيام به بنفسك..
تصميم مناسب لمنزل من طابق واحد

تخطيط منطقة الضواحي

مخططات ورسومات المباني السكنية بالأبعاد
رسومات المراحيض الخشبية للمنازل الصيفية

نرسم مخطط الموقع أو كيفية تنظيم المساحة
مهما كان حجم الموقع ، يجب التخطيط له بشكل صحيح. لجعل المنطقة المجاورة مناسبة للاستخدام ، يتم تنفيذ تخطيط الموقع قبل بدء بناء المنزل وإجراء أعمال الأرض. المرحلة الأولى هي تخصيص المجالات الوظيفية وموقعها بالنسبة لبعضها البعض. في الرسم التخطيطي ، عادةً ما يتم الإشارة إلى المناطق المستقلة الصغيرة بالدوائر والأشكال البيضاوية:
- مكان لمبنى سكني.
- المرآب أو وقوف السيارات.

- بيت الضيافة أو الحمام أو الساونا ؛
- مرحاض ، دش خارجي ، ملحقات أخرى ؛
- أكشاك ، منطقة ترفيهية ؛
- مكان للنزهات: مطبخ صيفي وأدوات متنوعة للطبخ على نار مفتوحة ؛
- ملعب للأطفال.
- منطقة البستنة
- عناصر تصميم الديكور والمناظر الطبيعية.
قد تكون بعض المجالات الوظيفية مفقودة ، وبعضها قد يكون رمزيًا بحتًا – كل شيء فردي ويتم تضمينه في الخطة وفقًا لرغبات العميل المحددة. يمكن إجراء تخطيط الموقع يدويًا ، أو يمكنك استخدام برامج مجانية لهذه الأغراض.

القاعدة الأساسية لتصميم الموقع هي الحفاظ على أقصى مستوى من التشمس ، وكذلك عدم إعاقة تبادل الهواء في المنطقة. للقيام بذلك ، يجدر التخلي عن بناء الجدران والأسوار العالية للصم..
قد يكون الاستثناء هو الاتجاه الشمالي والغربي – حيث تهب الرياح القوية والباردة في أغلب الأحيان.
وقبل أن يكون لديك مطبخ صيفي ، تحتاج إلى اتخاذ قرار بشأن وردة الرياح والقيام بذلك بطريقة لا ينتشر فيها دخان الفحم والأطباق المطبوخة فوق موقعك ، بل يتخطى السياج فورًا.
السور الكلاسيكي والبديل
من النادر غياب الجيران. حتى في منزل الفرد ، من الممكن أن يكون هناك اتصال وثيق مع العائلات المجاورة. على الرغم من أن تصميم المنازل مصمم بطريقة تزيد من الحماية والخصوصية ، إلا أننا معرضون للخطر خارج المبنى..

بناء الأسوار الفارغة العالية ليس دائمًا ممكنًا ومناسبًا. قوانين البناء ، على سبيل المثال ، تحظر تركيب الأسوار التي يزيد ارتفاعها عن متر واحد بين منطقتين متجاورتين. في هذه الحالة ، يمكنك استخدام بدائل غير ضارة ولكنها فعالة للغاية. يمكن أن يكون السياج:
- المباني الملحقة.
- المساحات الخضراء؛
- شبكات ودعامات لتسلق النباتات ؛
- شاشات الحدائق والبرجولات والأقواس.
إذا سمح اتجاه الموقع ، فيمكنك إحاطة الجيران مباشرة بالمنزل ، ووضعه بطريقة تغطي الفناء من أعين المتطفلين.
منزل مع مرآب أو مرآب بالقرب من المنزل
عند اختيار مشاريع المنازل الخاصة ، يجدر النظر في مسافة قريبة من وسائل النقل العام وعدد السيارات في الأسرة. إذا كانت هناك محطات حافلات قريبة ، وقطار كهربائي قريب ، ولا توجد سيارة ولا يُتوقع ، فإن تخطيط منزل بدون مرآب مناسب. هذا الخيار مقبول أكثر في حالة بناء منزل ريفي. ولكن مع ذلك ، هناك حاجة إلى منطقة صغيرة لوقوف السيارات أمام المنزل مباشرة. في حالة قدوم الضيوف إليك ، أحضر معك مواد بناء أو إذا كانت هناك حاجة أخرى لسيارة. يعد تصميم المنازل التي تحتوي على مرآب مدمج أكثر ملاءمة لبناء الأكواخ التي سيتم استخدامها على مدار العام. في هذه الحالة ، من الضروري مراعاة عدد السيارات حتى لا تتجاوز أبعاد المرآب..

يمكن أن يكون المرآب المدمج غرفة مدفأة وغير مدفأة ، وتقع في الطابق السفلي أو في نفس المستوى مع الطابق الأول من المبنى. توفر المشاريع المختلفة خيارات مختلفة للوصول إلى المبنى. يمكنك الدخول إلى المرآب فقط من الشارع ، عبر بوابة الدخول والبوابة الخاصة. الحل الأكثر مثالية هو ترتيب المدخل والمخرج الثاني: من المرآب يمكنك الذهاب مباشرة إلى المنزل ، متجاوزًا الشارع. تكلفة بناء المرآب ، جنبًا إلى جنب مع منزل يتم بناؤه على نفس الأساس ، وتحت نفس السقف والجدران المشتركة ، أعلى بكثير من تكلفة الهيكل المنفصل. ومع ذلك ، فإن الموثوقية والوظائف وإمكانيات استخدامه تتفوق بشكل كبير على مبنى قائم بذاته..

يتطلب أي خيار لموقع المرآب مساحة صغيرة لوقوف السيارات. من المريح جدًا ترك السيارة أمام المنزل وعدم تشغيلها في المرآب إذا كنت تقود سيارتك بشكل متكرر خلال النهار. أيضًا ، سيستخدم أصدقاؤك موقف السيارات عندما يأتون للزيارة. يجب أن يكون موقف السيارات والجراج بالقرب من البوابة قدر الإمكان. يعتبر الدخول المباشر مثاليًا ، والذي يستبعد المناورات غير الضرورية على أراضي الموقع. إنه أكثر ملاءمة من وجهة نظر العملية ، ومفيد من وجهة نظر استخدام المنطقة..
اختيار عدد طوابق المنزل
يعتمد عدد الطوابق في الكوخ على رغبة أصحاب المنازل وخصائص موقع معين. من المقبول عمومًا أن يكون المنزل المكون من طابق واحد أكثر ملاءمة للاستخدام ، وأن المبنى المكون من طابقين أو أكثر أرخص في البناء وأكثر اقتصادا من حيث التدفئة واستهلاك الطاقة..

كوخ
يُنصح ببناء منزل من طابق واحد عندما يتم تخصيص مساحة كبيرة ومسطحة للبناء. في هذه الحالة ، ستكون تكلفة أعمال الأرض ضئيلة. ستشعر العائلات التي تضم كبار السن والأطفال الصغار براحة أكبر في مثل هذا المنزل. عدم وجود سلالم ومستوى ثان يجعل المنزل أكثر أمانًا وملاءمة للاستخدام. يمكن أن يشبه تصميم المنازل في طابق واحد من مساحة كبيرة منزل مانور قديم ، أو يمكن أن يكون له مظهر حديث للغاية. كل هذا يتوقف على شكل الصندوق والسقف والشكل الخارجي والمواد والتقنيات المستخدمة.
منزل من طابقين
تسمح لك مشاريع المنازل المكونة من طابقين باختيار منازل ريفية مناسبة ، وإنشاء منازل ريفية كبيرة ، وإيجاد حل في وجود قطعة أرض صغيرة. توفر خطة المنزل المكونة من طابقين المزيد من الفرص لوضع غرف المرافق واستخدام الزخارف المعمارية الوظيفية:
- شرفات.
- المدرجات.
- الشرفات.
- شبابيك النوافذ؛
- كراج.
يمكن أن يلبي تصميم المنازل المكونة من طابقين أكثر المتطلبات تواضعًا ويمثل صندوقًا عاديًا بدون زخرفة ، أو يكون قصرًا كاملاً بواجهات معقدة الشكل وخطوط سقف مكسورة.

التخطيط الداخلي للمنزل
تنقسم المساحة الداخلية للمنزل وجميع الغرف إلى مناطق وظيفية.
- منطقة معيشة نهارية – مطبخ ، غرفة طعام ، غرفة معيشة ، غرفة عائلية ، مكتب.
- منطقة المعيشة الليلية هي غرف نوم وغرف أطفال وغرف ضيوف وغرفة ملابس.
- المناطق المشتركة – قاعة المدخل ، القاعة ، الممر ، مساحة الدرج ، الحمامات.
- كتلة المرافق – مخازن ، غرفة المرجل ، المرآب.
- المرافق الاختيارية – صالة ألعاب رياضية ، ساونا ، حمام سباحة ، سينما ، غرفة موسيقى ، إلخ..
اعتمادًا على عدد طوابق المبنى ، يتم تطبيق التقسيم الرأسي والأفقي على المساحة الداخلية. عند بناء منازل كبيرة جدًا ، يمكن أن تتضمن خطة الكوخ كلا المبدأين..

تقليديا ، في المنازل المكونة من طابقين ، يتم ترتيب الغرف الخاصة بالطابق العلوي ، والطابق السفلي عبارة عن غرف مشتركة وغرف المرافق. وفقًا للقواعد الأخرى ، تم جعل الجزء العلوي من المنزل إقطاعية للأطفال والضيوف ، وتم ترتيب منطقة الوالدين أدناه. يفترض تخطيط المنازل في طابق واحد التقسيم نفسه ، لكنه يستخدم اتجاهًا أفقيًا. تقع غرف المعيشة في جزء واحد من المنزل – بشكل رئيسي في الجنوب والشرق. يتم تجميع الغرف المشتركة والمرافق في جزء آخر من المنزل – الشمال والغرب. إذا كان المبنى محدودًا بحجمه الصغير ، فلا يمكن جعل بعض الغرف مستقلة أو مميزة. بعضها متوافق تمامًا. على سبيل المثال ، يتعايش المطبخ وغرفة الطعام وغرفة المعيشة جيدًا في مكان واحد. كل ما تحتاجه هو تقسيم المناطق المرئية والتأثيث المناسب.

الشرفة أو الشرفة: إضافة ممتعة لمنزل ريفي
لن يكون تطوير خطة لمنزل مع شرفة أو شرفة أرضية أغلى بكثير من صندوق عادي بدون هذه الهياكل المعمارية. سيكون البناء أيضًا مقبولًا من حيث الميزانية. لكن فوائد وفوائد هذا الملحق الشامل. اعتمادًا على المكان الذي توفر فيه خطة المنزل شرفة ، ستعتمد أيضًا الميزات الداخلية للتخطيط..
- يمكن أن تزين الشرفة الأرضية الواجهة الرئيسية للمبنى وتندمج مع الشرفة.
- يمكن أن تقع الشرفة الأرضية على جانب غرفة المعيشة ولها منفذ منفصل من هذه الغرفة. في مثل هذا التراس ، يمكنك تجهيز منطقة ترفيهية صيفية أو وضع كراسي هزازة أو ببساطة إعداد طاولة قهوة محاطة بأثاث من الخيزران..
- الشرفة من جانب المطبخ هي فرصة فريدة لتحريك منطقة تناول الطعام تحت السماء المفتوحة في الصيف.
بغض النظر عن الموقع ، سيظل التراس دائمًا مكانًا رائعًا للاسترخاء في الطقس الممطر والقاسي. هنا يمكنك الجلوس بشكل مريح مع الأصدقاء أو تنظيم الأنشطة الترفيهية للأطفال في الطقس السيئ.
الميزة الوحيدة لتخطيط المنازل والمدرجات في الظروف المناخية المحلية هي ترتيب منطقة مغطاة بمساحة زجاجية كبيرة. يتيح لك ذلك استخدام غرفة غير مدفأة في الأحوال الجوية السيئة ، والحفاظ على مواد التشطيب في شكل مناسب لفترة أطول ، وحمايتها من آثار هطول الأمطار.
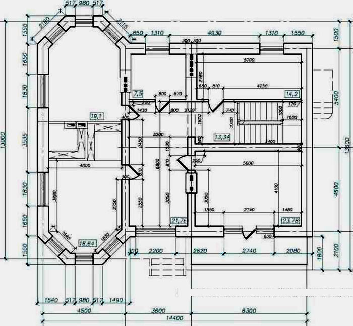
ما هو التخطيط مع الأبعاد؟?
سيشمل تخطيط المنزل عدة نقاط مهمة إلى حد ما. قبل أن تفهم التعقيدات المعمارية ، تحتاج إلى فهم الفرق بين مشروع المنزل – المعلمات وأوصاف البناء والحسابات المستقبلية.
ويشمل محاسبة مواد البناء وكذلك النظام المجاور:
- وصف العناصر المعمارية – رسم المبنى ، غرف المرافق ، مخططات المباني السكنية ، تصميمات الأبواب والنوافذ.
- حساب هيكل الأساس والسقف والصناديق وكذلك الرسومات التخطيطية للرسومات مع ملاحظات إضافية.
- المعدات الكهربائية مع مخطط تفصيلي لربط المنزل بالشبكة الكهربائية ومخطط لمآخذ التوصيل.
- الخدمات الهندسية – الغاز والتهوية وخزان الصرف الصحي والتدفئة والسباكة.
كما هو مذكور أعلاه ، سيتضمن الهيكل التخطيطي مخططًا للمنزل مع علية ، حيث يتم تحديد المنطقة والموقع الداخلي لمباني المبنى الرئيسي ، مع وصف الأبواب والسلالم والقواطع والنوافذ في المخطط. اتضح أنه في حالة الرفض من خدمات المهندس المعماري ، فإن جميع مكونات وثائق المشروع ستقع على عاتق مالك العقار. الحقيقة هي أن تخطيط الشقة لا يمكن أن يوجد ببساطة بشكل منفصل عن الحساب المخطط. ومع ذلك ، وبتوجيه من المصمم ، يمكن لمالك المبنى رسم مخطط بمفرده..
كيف تصنع كعكة كعكة بيديك
لبدء بناء القصر ، من الضروري تصميم أماكن الغرف والأقسام الداخلية. يجب أن يكون رسم الخطة متسقًا مع العملية التكنولوجية:
ثم ارسم الهياكل الوظيفية:
- الحمام.
- معدات الغاز.
- شبكات السباكة.
- أنابيب التهوية.
- امتدادات السلالم (إذا تم توفيرها وفقًا للمخطط).
- هياكل الجدران الحاملة.
يشار إلى حدود الغرف غير السكنية بخط منقط. سيتم تحديد ارتفاع الغرفة وكذلك عدد الطوابق بشكل منفصل. علاوة على ذلك ، يتم تعيين رقم لكل كائن فردي ، على أساسه سيتم إنشاء الجدول. يتم تنفيذ بقية الإجراءات من قبل قسم الهندسة المعمارية المباشر.
مخططات المباني السكنية مع التخطيط
قبل اختيار مثال لمشروع البناء على قطعة أرض خاصة لمنزل ريفي ، من الضروري تحديد عدد الطوابق الموجودة في الغرفة. ستعتمد المنطقة ، وكذلك الميزانية ، على هذا. سوف يلعب الغرض من المبنى أيضًا دورًا مهمًا. في بعض الحالات ، تكون مساحة البناء حجة ممتازة لصالح بناء مبنى في طابق واحد..
مشروع البيت على طابق واحد 8 * 8 متر
هناك طلب كبير على مخطط مبنى سكني ورسم هيكل 8 * 8 أمتار في البناء الفردي ، وحتى في ظل ظروف المبنى الكثيف للغاية. هذا بسبب تكلفتها المعتدلة إلى حد ما. يمكن أن تختلف خطة المنزل المكون من طابق واحد اعتمادًا على ما إذا كان هناك طوابق سفلية أو مرآب أو علية أو مباني. إذا لزم الأمر ، يمكنك أيضًا تشغيل الأرضية الصفرية..
مخطط منزل ريفي 9 * 9 أمتار
يسمح لك مورد الأرض المحدود بوضع أكواخ كبيرة جدًا بحجم 9 * 9 أمتار. مشروع هذه المباني مكتمل ، وهو قادر أيضًا على استيعاب جميع المباني اللازمة وفقًا لخطة فردية. يمكن أن تكون تكنولوجيا البناء ومواد البناء مختلفة. عند التخطيط ، من المهم مراعاة قواعد التصميم مع وجود أرضية على شكل علية أو حجرة لتخزين سيارة شخصية..
تخطيط المنزل 10 * 10 متر
كوخ مماثل مناسب للعائلات الصغيرة. قبل البدء في التخطيط ، يجب أن تأخذ في الاعتبار كيفية تحديد موقع المبنى على الموقع ، وعدد السكان الذين سيعيشون. من المهم للغاية مراعاة أنواع التدفئة وإمدادات المياه ، فضلاً عن إمكانية إضافة التراسات ، فضلاً عن أماكن الجراج. سيقدر عشاق الغرف الكبيرة هذه الخطة بالتأكيد بنسبة 100٪. ستلبي الغرف الكبيرة المستطيلة جميع خصائص المبنى الخاص الفردي. نقدم لكم مشاهدة فيديو مراجعة لتخطيط منزل 10 * 10 متر.
منزل من طابقين + مخطط
تطوير منزل من طابقين ومشروعه بحجم كبير يجب أن يثق به المهندس المعماري. إن التنسيب المعقول للغرف سيجعل المبنى أكثر راحة. يجب أن تناقش مسبقًا مكان تركيب الدرج ، وكذلك موقع الغرفة بالنسبة إلى جوانب الإضاءة. يجب أن تواجه نوافذ المطبخ بالضرورة الجنوب. يجب وضع غرفة المعيشة في الغرب ، وستظل دائمًا مضيئة في غرفة النوم إذا كانت تواجه الشرق. سيكون من الجيد وضع الدرج من الجزء الشمالي. يجب أيضًا مراعاة موقع الكوخ بالنسبة للشوارع. على سبيل المثال ، يجب أن تكون الصالات وغرف النوم بعيدة عن الطرق السريعة المزعجة. يمكنك مناقشة جميع الفروق الدقيقة مع المصمم.
رسومات المنازل من الإطار
يتضمن رسم الإطار من منزل السجل مواد رسومية ونصية ، مع نماذج للبناء المستقبلي ، بالإضافة إلى وصفها التفصيلي. يمكنك شراء مشروع نموذجي جاهز أو تقديم طلب لخطة منزل ريفي بناءً على طلب فردي. تتكون تقنية الإطار للمنازل التي يمكن تشييدها بسرعة من جزأين – رسومات مع صورة تخطيطية ، وهي مهمة للبناء ، بالإضافة إلى جواز سفر معماري. سيكون وصف هيكل المبنى وتخطيط كتلة الواجهة ، المشار إليها في جواز السفر ، مطلوبًا إذا كنت بحاجة إلى تقديم مستندات إلى مؤسسة ائتمانية من أجل الحصول على قرض عقاري. توضح الرسومات جميع أحجام وتنسيقات المستندات المطلوبة لتقديمها إلى جهة حكومية من أجل تأكيد رخصة البناء.
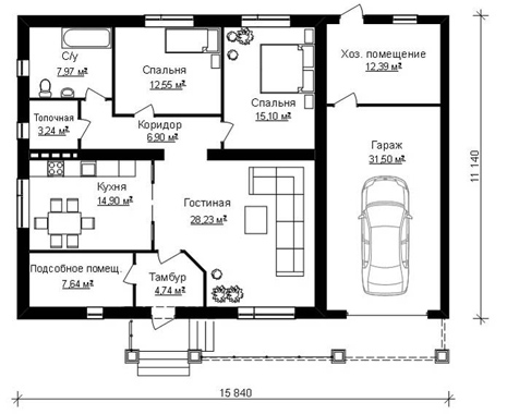
مشاريع منزل خاص من طابق واحد
تم تقديمها كمنازل ريفية ومباني كبيرة كبيرة.

مشروع منزل من طابق واحد مع علية
تم تشييدها على قطع أراضي فسيحة إلى حد ما ، حيث تحتوي على بقعة بناء كبيرة. لإقامة مريحة لعائلة مكونة من أربعة أفراد – طفلين وشخصين بالغين – يكفي منزل بمساحة 120-160 متر مربع. وإذا أضفت مرآبًا ومبانيًا خارجية إلى منزل من طابق واحد ، فستزداد المساحة بشكل كبير. وفي منطقة صغيرة ، قد لا تكون هناك مساحة كافية لكل هذا..
تتمثل ميزة هذه المشاريع في عدم وجود سلالم في المنزل ، والقدرة على تثبيت حمام واحد فقط ، وراحة التنقل في مساحة من مستوى واحد. سلبي – منطقة بناء واسعة ، والحاجة إلى تخطيط دقيق لتقليل المساحة الميتة غير المستخدمة.
اقرأ أيضًا برامج تصميم المناظر الطبيعية
مشاريع أكواخ من طابقين
مناسب إذا كنت بحاجة إلى وضع منزل كبير المساحة على قطعة أرض صغيرة ، بالإضافة إلى تقسيم المناطق بشكل واضح: يتم نقل غرف النوم ومنطقة الترفيه إلى الطابق الثاني من المنزل في العلية ، وتقع غرف المرافق والغرف المشتركة في الأول.
يمكن بناء الكوخ المكون من طابقين من مجموعة متنوعة من المواد. هنا توجد مشاريع من الطوب ، ومنازل مصنوعة من كتل ، من جذوع الأشجار ، باستخدام تقنية لوحة الإطار. تتمثل ميزة هذا المنزل في أن تكاليف البناء والتدفئة أرخص من تدفئة المباني لمنزل بنفس المحيط ، ولكن في طابق واحد. ناقص كوخ من طابقين في وجود الدرج الإلزامي في المنزل. إنه لا يعقد حياة كبار السن والأطفال الصغار فحسب ، بل يأكل أيضًا جزءًا كبيرًا من المنطقة الصالحة للاستخدام..

مشروع كوخ من طابقين مع تخطيطات
مشروع تصميم المنزل
مرحلة التصميم النهائي. في هذه المرحلة ، يقررون نوع المظهر الذي سيكتسبه المنزل المستقبلي ، وكذلك الديكور الداخلي للمبنى. بالطبع ، من الأفضل التفكير في مشروع التصميم حتى في مرحلة إعداد المشروع الرئيسي..

مجموعة متنوعة من خطط المباني متعددة الطوابق للمعيشة
تحتل المباني متعددة الشقق والمباني الشاهقة المرتبة الأولى في ممارسة بناء المساكن. ويرجع ذلك إلى الرغبة في زيادة عدد المباني السكنية ، من خلال كثافة المباني في الطوابق وتقليل مساحات البناء..
يعد المنزل المكون من طابق واحد ورسم المخطط بالأبعاد في غاية الأهمية (مثل النقطة الأخيرة) ، لأنه بخلاف ذلك سيكون هناك ارتفاع كبير في تكلفة الشبكات الهندسية ، ستزداد المسافة من المنزل إلى العمل. يؤثر اختيار هيكل نوع المحمل ، وهو نوع من تخطيط المبنى في الحجم على شكل وكفاءة وهيكل مبنى متعدد الطوابق. يمكن أن تختلف المنازل في الحلول المعمارية والتخطيطية ، وسيكون موقع المبنى ذا أهمية كبيرة. يمكن أن تكون خطة البناء للعديد من الشقق من عدة أنواع.
الأكثر شعبية كان المقطعية. تعتبر المباني المكونة من خمسة طوابق والتي تم بناؤها قبل 50 عامًا مثالاً ممتازًا. يحتوي المنزل على درج ، يجاوره عدد معين من الشقق. الملاعب نفسها ذات أشكال مختلفة ، والشقق مثل الاستوديو ، غرفة واحدة ، غرفتين وثلاث غرف. عادة ما يكون لهذا الترتيب مخرج مشترك للأرضية ومدخل منفصل. هذا الخيار اقتصادي ولديه أيضًا عزل ممتاز للشقة. يمكن أن يكون عدد المداخل من 4 إلى 12 ، في حالة منفصلة حتى 16. سيعتمد عددها على:
قطع أراضي للتطوير.
- تركيبة التربة.
- رغبات العميل.
تعتبر مجموعة متنوعة من أغطية الألواح المقطعية قائمة على أساس النقاط. وتسمى أيضًا برجًا ، يمكن أن يكون لها مخطط أرضي مشابه كما في حالة الأقسام. ولكن يوجد مدخل واحد فقط ، على سبيل المثال ، إذا تم تخصيص قطعة أرض صغيرة لعملية البناء ، وكان بها نقوش معقدة ، فستكون هذه الخطة خيارًا ممتازًا. لا يمكن العثور على منازل من نوع ممر مختلف في كثير من الأحيان. الفرق هنا هو أنه بدلاً من الدرج ، تم بناء ممر طويل ، ستذهب إليه جميع الشقق.
يرجى ملاحظة أن اتجاه الشقة هنا من جانب واحد – العيب الرئيسي لهذا الترتيب ، كما أن العزل ليس على أعلى مستوى. لهذا السبب ، يوجد مخطط مماثل عادة في بناء النزل والفنادق..
تشبه المنازل من نوع المعرض إلى حد ما منازل الممر. يمكن لكل شقة الوصول إلى معرض على طول الجدار الهيكلي الطولي. هذه الشقق جيدة التهوية ، حتى مع الحد الأدنى من المساحة. من الناحية الاقتصادية ، يعد هذا الترتيب مربحًا للغاية ، لأنه يسمح بخدمات العديد من الشقق بعدد صغير من السلالم أو المصاعد. ومع ذلك ، فإن العملية التكنولوجية للعزل الحراري في مناخ محلي قاسي لا تتميز دائمًا بالجودة الممتازة والمتانة..
قياس
قد يواجه أي خيال عدم القدرة على ملاءمته للأبعاد الحالية للشقة. لذلك ، فإن القياس الكفء للمباني هو أساس أسس المشروع المستقبلي..
ارسم أو اطبع مخطط شقتك ووضح عليه جميع الأبعاد الحقيقية لمبانيك. ضع علامة على الاتصالات والفتحات والارتفاعات على الخطة. باستخدام البوصلة ، حدد النقاط الأساسية.

خطة لتوسيع نطاق
الآن يجب أن ترسم مخطط الشقة بمقياس ، على سبيل المثال ، 1:50. يمكن القيام بذلك بالطريقة القديمة باستخدام المساطر وأقلام الرصاص..
ويمكنك وضع خطة في برامج خاصة على جهاز كمبيوتر ، على سبيل المثال ، في تطبيق Remplanner الممتاز ، حيث لا يمكنك رسم مخطط مجانًا فحسب ، بل يمكنك إنشاء مشروع تصميم كامل للشقة بأكملها.

وظائف Remplanner مثيرة للإعجاب: عدد غير محدود من الخيارات لإعادة تطوير الأثاث وترتيبه ، والتصور ثلاثي الأبعاد ، وحساب تكلفة المواد وحتى حساب التقديرات ونطاق العمل للبناة! بالإضافة إلى المساعدة المهنية المجانية في جميع المراحل.
وبالمناسبة ، تم اختبار Remplanner واعتماده من قبل مهندسين ومصممين حقيقيين – يمكنك تجربته بنفسك.!

Remplanner مخطط على الإنترنت
مهمة فنية
الشروط المرجعية هي خطتك لمزيد من العمل في المشروع. في ذلك ، تشير إلى رغباتك فيما يتعلق بأسلوب وتكوين ومحتوى المبنى والمعلومات الأخرى التي ستساعد في جعل التصميم الداخلي منطقيًا قدر الإمكان وتلبية جميع متطلباتك..
بالإضافة إلى جزء النص ، التقط صورًا للديكورات الداخلية التي ترغب في الإلهام بها أثناء العمل. يمكن القيام بذلك قبل أخذ قياسات الغرفة..

حل التخطيط
حان الوقت الآن لاتخاذ خطة الشقة ومحاولة وضع رغباتك الموضحة في الشروط المرجعية عليها. إذا كانت إعادة التطوير مطلوبة ، فتعلم أولاً كيفية القيام بذلك بشكل قانوني. في الغرف الناتجة ، حدد المناطق الوظيفية ورتب الأثاث اللازم.
للحصول على تصميم مريح ، ننصحك بدراسة “الكتاب المقدس لمصمم الشقق” – عمل بيتر نيوفرت ولودفيج نيف “التصميم والبناء”.

النموذج الحجمي
حان الوقت لتحويل التصميم المسطح للشقة إلى نموذج ثلاثي الأبعاد والقيام بنزهة مدروسة فيه! أقوم بعمل نموذج كهذا في SketchUp.
نتيجة لذلك ، هناك فهم لمدى ملاءمة الأفكار “المسطحة” في الحياة ، وفهم الاستخدام الكفء لأنواع مختلفة من مواد التشطيب ، ويتم العمل على تفاصيل الأثاث وغير ذلك الكثير. بالنسبة إلى “الإطار” الناتج ، ستتمكن دون تردد من التقاط مواد التشطيب وكل ما تحتاجه.

حل الأسلوب
قبل البدء في هذه المرحلة ، لديك فهم وظيفي ومريح واضح للديكور الداخلي الخاص بك في المستقبل. حان الوقت الآن لإعادة قراءة الشروط المرجعية ومراجعة صور التصميمات الداخلية الملهمة والبدء في التصميم بالمعنى الضيق للكلمة..
عند اختيار مواد التشطيب والأثاث وعناصر الإضاءة والعناصر الزخرفية ، لا تنسَ معلمات شقتك. يمكن أن تمنع الأسقف المنخفضة ونقص الضوء الطبيعي وعوامل أخرى التجسيد الجميل لأفكارك. بالمناسبة ، سيكون من السهل بعد ذلك ترجمة المواد المختارة إلى ميزانية تقريبية لشرائها..

المخططات
حان الوقت لترجمة أفكارك إلى خطة عمل كفؤة لتنفيذها! في نسخ تخطيط الشقة ، تحتاج إلى إنشاء رسومات لتفكيك وتركيب ووضع مواد التشطيب وتحديد نقاط تركيبات الإضاءة وترتيب المقابس والمفاتيح ورسم تخطيط البلاط في الحمامات.
يجب عليك إنشاء خطة عمل واضحة تسمح لك بإعادة جدولة عملية الإصلاح بهدوء والرضا عن نتيجتها. نعم ، مع رسومات العمل ، الإصلاحات لها نهايتها!

كيفية رسم منزل بيديك تعليمات خطوة بخطوة
جمع المعلومات والمرحلة التحضيرية
تتوفر رسومات مجانية لمنازل الإطار بوفرة على الإنترنت. نحن لا نتحدث عن مجموعات من وثائق المشروع الجاهزة ، ولكن عن رسومات المنازل الخاصة والمنازل الريفية في عدة طوابق مع علية ومرآب. الرسم في هذه الحالة عبارة عن عدة خطط مماثلة للتخطيط الداخلي ، ومخططات لموقع الاتصالات وتوجيه المبنى إلى النقاط الأساسية..
تخطيطات الطابق الأول والثاني من كوخ من طابقين
من أجل إنشاء منزل أحلامك ، تحتاج إلى التعرف على وفرة خيارات التخطيط الحالية والمجانية. إذا كانت جميع المنازل تبدو في وقت سابق مثل بعضها البعض ، وحتى في المظهر يمكن للمرء أن يقول ماذا وكيف يقع في الداخل ، فإن جميع الصور النمطية اليوم تنهار..
يمكن للمنزل الكلاسيكي ذي الصندوق المربع أن يحتوي على مجموعة متنوعة من الحلول المعمارية وتصميماته الرائعة. من أجل اختيار أفضل عرض لنفسك في سوق اليوم ، يجدر النظر في أكثر من عشرة مشاريع مجانية ورسومات تفصيلية وتخطيطات للمنازل الخاصة.
اختيار موقع للبناء
بعد تحديد الاتجاه الرئيسي ، المسافة المسموح بها من مدينة كبيرة ، وكذلك المستوطنات المنزلية ذات الأولوية ، والمستوطنات ، وجمعيات الحدائق أو ببساطة الأرض من فئة IZhS ، يمكنك اختيار الموقع الأنسب. إذا كان ذلك ممكنًا ، فمن الأفضل إلقاء نظرة فاحصة على المناطق المسطحة إلى حد ما والخالية من الغرسات. قد يكون الاستثناء هو المناطق في الغابات ، وتحيط بها أشجار الصنوبر التي يعود تاريخها إلى قرن من الزمان. المرتفعات مفضلة على الأراضي المنخفضة. يتميز المنزل المبني على تلة بأفضل خصائص الأداء. في مثل هذا الموقع ، لا توجد مشكلة عمليا مع ارتفاع المياه الجوفية ، وتبادل الهواء بشكل أفضل ومستوى أعلى من التشمس. بالإضافة إلى ذلك ، من نوافذ هذا المنزل ، خاصة إذا كان مبنى من طابقين أو ثلاثة طوابق ، يتم فتح منظر جميل للمحيط..
عند بناء منزل على تل ، سيكون من الممكن توفير الكهرباء والتدفئة بشكل كبير ، لأن مثل هذا الترتيب ، إذا تم اختيار التصميم الصحيح للمنزل ، سيضمن أقصى اختراق لأشعة الشمس في المبنى. تتيح تقنيات البناء الحديثة ليس فقط استخدام الطاقة الطبيعية للإضاءة الطبيعية لمنزل ريفي ، ولكن أيضًا لتجميع الحرارة المتولدة ، واستخدامها لتدفئة المبنى.
توجيه الكوخ إلى النقاط الأساسية
يعتمد تصميم المنزل تمامًا على موقع الموقع بالنسبة للنقاط الأساسية واتجاه الكوخ نفسه. ما يجب الانتباه إليه أيضًا هو شكل المبنى ونوع السقف..
عند بناء منزل بسقف مائل ، يجب تحويل الواجهة الأكثر انفتاحًا إلى الجنوب ، ويجب أن يكون منحدر السقف موجهًا نحو الشمال. عند بناء سقف الجملون الكلاسيكي أو السقف المعقد ، من الممكن حدوث بعض الانحرافات عن التوصيات العامة. في الموقع ، يجب وضع المنزل في الجزء الشمالي الشرقي. سيسمح ذلك للمبنى بتلقي أقصى قدر ممكن من ضوء الشمس ، بالإضافة إلى إنشاء حد أدنى من الظل في المنطقة المحيطة. نادراً ما يؤخذ هذا العامل في الاعتبار في المرحلة الأولى من البناء ، وبالتالي يخلق العديد من المشاكل مع ترتيب منطقة الترفيه وتخطيط الموقع وتطوير تصميم المناظر الطبيعية. يتم تخطيط المنازل بطريقة تجعل الواجهة المركزية تواجه الجانب الجنوبي. يمكن استكمال المنزل بشرفة ضخمة أو شرفة أرضية مفتوحة أو تراس. تقع على الجانب المشمس ، وهي مكان رائع للاسترخاء في الهواء الطلق..
عندما يتم تحديد قطعة أرض ، يتم تحديد مكان لبناء منزل ويتم توجيه الصندوق إلى النقاط الأساسية ، يمكنك وضع خطة منزل. يعتمد موقع الغرف بالداخل أيضًا على النقاط الأساسية:
قد يكون ترتيب الغرف مختلفًا بسبب قواعد فنغ شوي. يتضمن التدريس اختيار موقع الغرفة داخل المنزل وفقًا لخصائص المالك. على الرغم من أنه يمكن أيضًا تتبع المبادئ العامة. يجب أن يتم بناء تصميم المنزل بحيث يتم فتح منظر بانورامي خلاب من النافذة في الغرف المخصصة للراحة والاستجمام..
يمكن أن تكون حديقة جميلة وساحة فناء مزينة بشكل صحيح ومناظر طبيعية ممتعة. من الأفضل تجنب موقع المنزل الذي تصطدم فيه النوافذ بسياج فارغ أو مباني خارجية أو منازل مجاورة.
تفاصيل التخطيط المستقبلي
قبل أن تبدأ في تصميم منزل ونقل أفكارك إلى ورقة ، عليك أن تقرر بعض الفروق الدقيقة التي سيتوافق معها هيكلنا أو لا. يتم ذلك بحيث لا يرتكب المهندس المعماري أثناء التخطيط الكثير من الأخطاء ، ويقرر إضافة غرفتين إضافيتين ، على سبيل المثال ، بعد رسم السقف بالفعل..
لذلك ، من أجل رسم مخطط للمنزل بنفسك على جهاز كمبيوتر أو على قطعة من الورق ، يجب أن تأخذ في الاعتبار الفروق الدقيقة التالية:
وهذه ليست سوى الفروق الدقيقة الرئيسية التي يجب على المهندس المعماري اتباعها عند التخطيط للمنزل. في المستقبل ، قد يكون لديك أسئلة أخرى أثناء التخطيط: هل يحتاج المنزل إلى شرفة وتراس ولوجيا وما إلى ذلك؟.
ما الذي يجب التركيز عليه عند عمل الرسومات
يجب أن يبدأ المشروع بشكل تراكمي ، مع مراعاة جميع الخصائص الهندسية والهيكلية للمنزل. عند بناء مبنى ، عليك التفكير في إمكانيات ترتيب الكهرباء وإمدادات المياه والصرف الصحي حتى أثناء شراء قطعة أرض. حتى لو تم تنفيذ تطوير الرسومات بعناية شديدة ، فقد لا يأخذ الشخص السيء المعرفة في الاعتبار جميع التفاصيل الدقيقة. لهذا السبب ، أثناء البناء ، قد تنشأ ظروف غير متوقعة من شأنها إبطاء البناء لفترة طويلة إلى حد ما..
تعمل المجموعة المتنوعة الحديثة من مواد البناء والمعلومات المتاحة على تبسيط العمل بشكل كبير للمطورين من القطاع الخاص. الآن على الشبكة ، يمكنك بسهولة العثور على عدد كبير من جميع أنواع المشاريع القياسية المجانية ، حيث يسهل عليك اختيار شيء مناسب لك.
ولكن في الوقت نفسه ، يجب أن نتذكر أنه لا أحد سيقدم عملاً جيدًا وعالي الجودة مجانًا للاستخدام الواسع. كل ما يتم تقديمه على الإنترنت ليس نتيجة كاملة ، الأمر الذي يتطلب عملاً جادًا للغاية يمكنك القيام به بنفسك..
تصميم مناسب لمنزل من طابق واحد
تخطيط منطقة الضواحي
مخططات ورسومات المباني السكنية بالأبعاد
نرسم مخطط الموقع أو كيفية تنظيم المساحة
مهما كان حجم الموقع ، يجب التخطيط له بشكل صحيح. لجعل المنطقة المجاورة مناسبة للاستخدام ، يتم تنفيذ تخطيط الموقع قبل بدء بناء المنزل وإجراء أعمال الأرض. المرحلة الأولى هي تخصيص المجالات الوظيفية وموقعها بالنسبة لبعضها البعض. في الرسم التخطيطي ، عادةً ما يتم الإشارة إلى المناطق المستقلة الصغيرة بالدوائر والأشكال البيضاوية:
قد تكون بعض المجالات الوظيفية مفقودة ، وبعضها قد يكون رمزيًا بحتًا – كل شيء فردي ويتم تضمينه في الخطة وفقًا لرغبات العميل المحددة. يمكن إجراء تخطيط الموقع يدويًا ، أو يمكنك استخدام برامج مجانية لهذه الأغراض.
القاعدة الأساسية لتصميم الموقع هي الحفاظ على أقصى مستوى من التشمس ، وكذلك عدم إعاقة تبادل الهواء في المنطقة. للقيام بذلك ، يجدر التخلي عن بناء الجدران والأسوار العالية للصم..
قد يكون الاستثناء هو الاتجاه الشمالي والغربي – حيث تهب الرياح القوية والباردة في أغلب الأحيان.
وقبل أن يكون لديك مطبخ صيفي ، تحتاج إلى اتخاذ قرار بشأن وردة الرياح والقيام بذلك بطريقة لا ينتشر فيها دخان الفحم والأطباق المطبوخة فوق موقعك ، بل يتخطى السياج فورًا.
السور الكلاسيكي والبديل
من النادر غياب الجيران. حتى في منزل الفرد ، من الممكن أن يكون هناك اتصال وثيق مع العائلات المجاورة. على الرغم من أن تصميم المنازل مصمم بطريقة تزيد من الحماية والخصوصية ، إلا أننا معرضون للخطر خارج المبنى..
بناء الأسوار الفارغة العالية ليس دائمًا ممكنًا ومناسبًا. قوانين البناء ، على سبيل المثال ، تحظر تركيب الأسوار التي يزيد ارتفاعها عن متر واحد بين منطقتين متجاورتين. في هذه الحالة ، يمكنك استخدام بدائل غير ضارة ولكنها فعالة للغاية. يمكن أن يكون السياج:
إذا سمح اتجاه الموقع ، فيمكنك إحاطة الجيران مباشرة بالمنزل ، ووضعه بطريقة تغطي الفناء من أعين المتطفلين.
منزل مع مرآب أو مرآب بالقرب من المنزل
عند اختيار مشاريع المنازل الخاصة ، يجدر النظر في مسافة قريبة من وسائل النقل العام وعدد السيارات في الأسرة. إذا كانت هناك محطات حافلات قريبة ، وقطار كهربائي قريب ، ولا توجد سيارة ولا يُتوقع ، فإن تخطيط منزل بدون مرآب مناسب. هذا الخيار مقبول أكثر في حالة بناء منزل ريفي. ولكن مع ذلك ، هناك حاجة إلى منطقة صغيرة لوقوف السيارات أمام المنزل مباشرة. في حالة قدوم الضيوف إليك ، أحضر معك مواد بناء أو إذا كانت هناك حاجة أخرى لسيارة. يعد تصميم المنازل التي تحتوي على مرآب مدمج أكثر ملاءمة لبناء الأكواخ التي سيتم استخدامها على مدار العام. في هذه الحالة ، من الضروري مراعاة عدد السيارات حتى لا تتجاوز أبعاد المرآب..
يمكن أن يكون المرآب المدمج غرفة مدفأة وغير مدفأة ، وتقع في الطابق السفلي أو في نفس المستوى مع الطابق الأول من المبنى. توفر المشاريع المختلفة خيارات مختلفة للوصول إلى المبنى. يمكنك الدخول إلى المرآب فقط من الشارع ، عبر بوابة الدخول والبوابة الخاصة. الحل الأكثر مثالية هو ترتيب المدخل والمخرج الثاني: من المرآب يمكنك الذهاب مباشرة إلى المنزل ، متجاوزًا الشارع. تكلفة بناء المرآب ، جنبًا إلى جنب مع منزل يتم بناؤه على نفس الأساس ، وتحت نفس السقف والجدران المشتركة ، أعلى بكثير من تكلفة الهيكل المنفصل. ومع ذلك ، فإن الموثوقية والوظائف وإمكانيات استخدامه تتفوق بشكل كبير على مبنى قائم بذاته..
يتطلب أي خيار لموقع المرآب مساحة صغيرة لوقوف السيارات. من المريح جدًا ترك السيارة أمام المنزل وعدم تشغيلها في المرآب إذا كنت تقود سيارتك بشكل متكرر خلال النهار. أيضًا ، سيستخدم أصدقاؤك موقف السيارات عندما يأتون للزيارة. يجب أن يكون موقف السيارات والجراج بالقرب من البوابة قدر الإمكان. يعتبر الدخول المباشر مثاليًا ، والذي يستبعد المناورات غير الضرورية على أراضي الموقع. إنه أكثر ملاءمة من وجهة نظر العملية ، ومفيد من وجهة نظر استخدام المنطقة..
اختيار عدد طوابق المنزل
يعتمد عدد الطوابق في الكوخ على رغبة أصحاب المنازل وخصائص موقع معين. من المقبول عمومًا أن يكون المنزل المكون من طابق واحد أكثر ملاءمة للاستخدام ، وأن المبنى المكون من طابقين أو أكثر أرخص في البناء وأكثر اقتصادا من حيث التدفئة واستهلاك الطاقة..
كوخ
يُنصح ببناء منزل من طابق واحد عندما يتم تخصيص مساحة كبيرة ومسطحة للبناء. في هذه الحالة ، ستكون تكلفة أعمال الأرض ضئيلة. ستشعر العائلات التي تضم كبار السن والأطفال الصغار براحة أكبر في مثل هذا المنزل. عدم وجود سلالم ومستوى ثان يجعل المنزل أكثر أمانًا وملاءمة للاستخدام. يمكن أن يشبه تصميم المنازل في طابق واحد من مساحة كبيرة منزل مانور قديم ، أو يمكن أن يكون له مظهر حديث للغاية. كل هذا يتوقف على شكل الصندوق والسقف والشكل الخارجي والمواد والتقنيات المستخدمة.
منزل من طابقين
تسمح لك مشاريع المنازل المكونة من طابقين باختيار منازل ريفية مناسبة ، وإنشاء منازل ريفية كبيرة ، وإيجاد حل في وجود قطعة أرض صغيرة. توفر خطة المنزل المكونة من طابقين المزيد من الفرص لوضع غرف المرافق واستخدام الزخارف المعمارية الوظيفية:
يمكن أن يلبي تصميم المنازل المكونة من طابقين أكثر المتطلبات تواضعًا ويمثل صندوقًا عاديًا بدون زخرفة ، أو يكون قصرًا كاملاً بواجهات معقدة الشكل وخطوط سقف مكسورة.
التخطيط الداخلي للمنزل
تنقسم المساحة الداخلية للمنزل وجميع الغرف إلى مناطق وظيفية.
اعتمادًا على عدد طوابق المبنى ، يتم تطبيق التقسيم الرأسي والأفقي على المساحة الداخلية. عند بناء منازل كبيرة جدًا ، يمكن أن تتضمن خطة الكوخ كلا المبدأين..
تقليديا ، في المنازل المكونة من طابقين ، يتم ترتيب الغرف الخاصة بالطابق العلوي ، والطابق السفلي عبارة عن غرف مشتركة وغرف المرافق. وفقًا للقواعد الأخرى ، تم جعل الجزء العلوي من المنزل إقطاعية للأطفال والضيوف ، وتم ترتيب منطقة الوالدين أدناه. يفترض تخطيط المنازل في طابق واحد التقسيم نفسه ، لكنه يستخدم اتجاهًا أفقيًا. تقع غرف المعيشة في جزء واحد من المنزل – بشكل رئيسي في الجنوب والشرق. يتم تجميع الغرف المشتركة والمرافق في جزء آخر من المنزل – الشمال والغرب. إذا كان المبنى محدودًا بحجمه الصغير ، فلا يمكن جعل بعض الغرف مستقلة أو مميزة. بعضها متوافق تمامًا. على سبيل المثال ، يتعايش المطبخ وغرفة الطعام وغرفة المعيشة جيدًا في مكان واحد. كل ما تحتاجه هو تقسيم المناطق المرئية والتأثيث المناسب.
الشرفة أو الشرفة: إضافة ممتعة لمنزل ريفي
لن يكون تطوير خطة لمنزل مع شرفة أو شرفة أرضية أغلى بكثير من صندوق عادي بدون هذه الهياكل المعمارية. سيكون البناء أيضًا مقبولًا من حيث الميزانية. لكن فوائد وفوائد هذا الملحق الشامل. اعتمادًا على المكان الذي توفر فيه خطة المنزل شرفة ، ستعتمد أيضًا الميزات الداخلية للتخطيط..
بغض النظر عن الموقع ، سيظل التراس دائمًا مكانًا رائعًا للاسترخاء في الطقس الممطر والقاسي. هنا يمكنك الجلوس بشكل مريح مع الأصدقاء أو تنظيم الأنشطة الترفيهية للأطفال في الطقس السيئ.
الميزة الوحيدة لتخطيط المنازل والمدرجات في الظروف المناخية المحلية هي ترتيب منطقة مغطاة بمساحة زجاجية كبيرة. يتيح لك ذلك استخدام غرفة غير مدفأة في الأحوال الجوية السيئة ، والحفاظ على مواد التشطيب في شكل مناسب لفترة أطول ، وحمايتها من آثار هطول الأمطار.
ما هو التخطيط مع الأبعاد؟?
سيشمل تخطيط المنزل عدة نقاط مهمة إلى حد ما. قبل أن تفهم التعقيدات المعمارية ، تحتاج إلى فهم الفرق بين مشروع المنزل – المعلمات وأوصاف البناء والحسابات المستقبلية.
ويشمل محاسبة مواد البناء وكذلك النظام المجاور:
كما هو مذكور أعلاه ، سيتضمن الهيكل التخطيطي مخططًا للمنزل مع علية ، حيث يتم تحديد المنطقة والموقع الداخلي لمباني المبنى الرئيسي ، مع وصف الأبواب والسلالم والقواطع والنوافذ في المخطط. اتضح أنه في حالة الرفض من خدمات المهندس المعماري ، فإن جميع مكونات وثائق المشروع ستقع على عاتق مالك العقار. الحقيقة هي أن تخطيط الشقة لا يمكن أن يوجد ببساطة بشكل منفصل عن الحساب المخطط. ومع ذلك ، وبتوجيه من المصمم ، يمكن لمالك المبنى رسم مخطط بمفرده..
كيف تصنع كعكة كعكة بيديك
لبدء بناء القصر ، من الضروري تصميم أماكن الغرف والأقسام الداخلية. يجب أن يكون رسم الخطة متسقًا مع العملية التكنولوجية:
تحديد جميع الأبعاد المطلوبة.
ثم ارسم الهياكل الوظيفية:
يشار إلى حدود الغرف غير السكنية بخط منقط. سيتم تحديد ارتفاع الغرفة وكذلك عدد الطوابق بشكل منفصل. علاوة على ذلك ، يتم تعيين رقم لكل كائن فردي ، على أساسه سيتم إنشاء الجدول. يتم تنفيذ بقية الإجراءات من قبل قسم الهندسة المعمارية المباشر.
مخططات المباني السكنية مع التخطيط
قبل اختيار مثال لمشروع البناء على قطعة أرض خاصة لمنزل ريفي ، من الضروري تحديد عدد الطوابق الموجودة في الغرفة. ستعتمد المنطقة ، وكذلك الميزانية ، على هذا. سوف يلعب الغرض من المبنى أيضًا دورًا مهمًا. في بعض الحالات ، تكون مساحة البناء حجة ممتازة لصالح بناء مبنى في طابق واحد..
مشروع البيت على طابق واحد 8 * 8 متر
هناك طلب كبير على مخطط مبنى سكني ورسم هيكل 8 * 8 أمتار في البناء الفردي ، وحتى في ظل ظروف المبنى الكثيف للغاية. هذا بسبب تكلفتها المعتدلة إلى حد ما. يمكن أن تختلف خطة المنزل المكون من طابق واحد اعتمادًا على ما إذا كان هناك طوابق سفلية أو مرآب أو علية أو مباني. إذا لزم الأمر ، يمكنك أيضًا تشغيل الأرضية الصفرية..
مخطط منزل ريفي 9 * 9 أمتار
يسمح لك مورد الأرض المحدود بوضع أكواخ كبيرة جدًا بحجم 9 * 9 أمتار. مشروع هذه المباني مكتمل ، وهو قادر أيضًا على استيعاب جميع المباني اللازمة وفقًا لخطة فردية. يمكن أن تكون تكنولوجيا البناء ومواد البناء مختلفة. عند التخطيط ، من المهم مراعاة قواعد التصميم مع وجود أرضية على شكل علية أو حجرة لتخزين سيارة شخصية..
تخطيط المنزل 10 * 10 متر
كوخ مماثل مناسب للعائلات الصغيرة. قبل البدء في التخطيط ، يجب أن تأخذ في الاعتبار كيفية تحديد موقع المبنى على الموقع ، وعدد السكان الذين سيعيشون. من المهم للغاية مراعاة أنواع التدفئة وإمدادات المياه ، فضلاً عن إمكانية إضافة التراسات ، فضلاً عن أماكن الجراج. سيقدر عشاق الغرف الكبيرة هذه الخطة بالتأكيد بنسبة 100٪. ستلبي الغرف الكبيرة المستطيلة جميع خصائص المبنى الخاص الفردي. نقدم لكم مشاهدة فيديو مراجعة لتخطيط منزل 10 * 10 متر.
منزل من طابقين + مخطط
تطوير منزل من طابقين ومشروعه بحجم كبير يجب أن يثق به المهندس المعماري. إن التنسيب المعقول للغرف سيجعل المبنى أكثر راحة. يجب أن تناقش مسبقًا مكان تركيب الدرج ، وكذلك موقع الغرفة بالنسبة إلى جوانب الإضاءة. يجب أن تواجه نوافذ المطبخ بالضرورة الجنوب. يجب وضع غرفة المعيشة في الغرب ، وستظل دائمًا مضيئة في غرفة النوم إذا كانت تواجه الشرق. سيكون من الجيد وضع الدرج من الجزء الشمالي. يجب أيضًا مراعاة موقع الكوخ بالنسبة للشوارع. على سبيل المثال ، يجب أن تكون الصالات وغرف النوم بعيدة عن الطرق السريعة المزعجة. يمكنك مناقشة جميع الفروق الدقيقة مع المصمم.
رسومات المنازل من الإطار
يتضمن رسم الإطار من منزل السجل مواد رسومية ونصية ، مع نماذج للبناء المستقبلي ، بالإضافة إلى وصفها التفصيلي. يمكنك شراء مشروع نموذجي جاهز أو تقديم طلب لخطة منزل ريفي بناءً على طلب فردي. تتكون تقنية الإطار للمنازل التي يمكن تشييدها بسرعة من جزأين – رسومات مع صورة تخطيطية ، وهي مهمة للبناء ، بالإضافة إلى جواز سفر معماري. سيكون وصف هيكل المبنى وتخطيط كتلة الواجهة ، المشار إليها في جواز السفر ، مطلوبًا إذا كنت بحاجة إلى تقديم مستندات إلى مؤسسة ائتمانية من أجل الحصول على قرض عقاري. توضح الرسومات جميع أحجام وتنسيقات المستندات المطلوبة لتقديمها إلى جهة حكومية من أجل تأكيد رخصة البناء.
مشاريع منزل خاص من طابق واحد
تم تقديمها كمنازل ريفية ومباني كبيرة كبيرة.
مشروع منزل من طابق واحد مع علية
تم تشييدها على قطع أراضي فسيحة إلى حد ما ، حيث تحتوي على بقعة بناء كبيرة. لإقامة مريحة لعائلة مكونة من أربعة أفراد – طفلين وشخصين بالغين – يكفي منزل بمساحة 120-160 متر مربع. وإذا أضفت مرآبًا ومبانيًا خارجية إلى منزل من طابق واحد ، فستزداد المساحة بشكل كبير. وفي منطقة صغيرة ، قد لا تكون هناك مساحة كافية لكل هذا..
تتمثل ميزة هذه المشاريع في عدم وجود سلالم في المنزل ، والقدرة على تثبيت حمام واحد فقط ، وراحة التنقل في مساحة من مستوى واحد. سلبي – منطقة بناء واسعة ، والحاجة إلى تخطيط دقيق لتقليل المساحة الميتة غير المستخدمة.
اقرأ أيضًا برامج تصميم المناظر الطبيعية
مشاريع أكواخ من طابقين
مناسب إذا كنت بحاجة إلى وضع منزل كبير المساحة على قطعة أرض صغيرة ، بالإضافة إلى تقسيم المناطق بشكل واضح: يتم نقل غرف النوم ومنطقة الترفيه إلى الطابق الثاني من المنزل في العلية ، وتقع غرف المرافق والغرف المشتركة في الأول.
يمكن بناء الكوخ المكون من طابقين من مجموعة متنوعة من المواد. هنا توجد مشاريع من الطوب ، ومنازل مصنوعة من كتل ، من جذوع الأشجار ، باستخدام تقنية لوحة الإطار. تتمثل ميزة هذا المنزل في أن تكاليف البناء والتدفئة أرخص من تدفئة المباني لمنزل بنفس المحيط ، ولكن في طابق واحد. ناقص كوخ من طابقين في وجود الدرج الإلزامي في المنزل. إنه لا يعقد حياة كبار السن والأطفال الصغار فحسب ، بل يأكل أيضًا جزءًا كبيرًا من المنطقة الصالحة للاستخدام..
مشروع كوخ من طابقين مع تخطيطات
مشروع تصميم المنزل
مرحلة التصميم النهائي. في هذه المرحلة ، يقررون نوع المظهر الذي سيكتسبه المنزل المستقبلي ، وكذلك الديكور الداخلي للمبنى. بالطبع ، من الأفضل التفكير في مشروع التصميم حتى في مرحلة إعداد المشروع الرئيسي..
مجموعة متنوعة من خطط المباني متعددة الطوابق للمعيشة
تحتل المباني متعددة الشقق والمباني الشاهقة المرتبة الأولى في ممارسة بناء المساكن. ويرجع ذلك إلى الرغبة في زيادة عدد المباني السكنية ، من خلال كثافة المباني في الطوابق وتقليل مساحات البناء..
يعد المنزل المكون من طابق واحد ورسم المخطط بالأبعاد في غاية الأهمية (مثل النقطة الأخيرة) ، لأنه بخلاف ذلك سيكون هناك ارتفاع كبير في تكلفة الشبكات الهندسية ، ستزداد المسافة من المنزل إلى العمل. يؤثر اختيار هيكل نوع المحمل ، وهو نوع من تخطيط المبنى في الحجم على شكل وكفاءة وهيكل مبنى متعدد الطوابق. يمكن أن تختلف المنازل في الحلول المعمارية والتخطيطية ، وسيكون موقع المبنى ذا أهمية كبيرة. يمكن أن تكون خطة البناء للعديد من الشقق من عدة أنواع.
الأكثر شعبية كان المقطعية. تعتبر المباني المكونة من خمسة طوابق والتي تم بناؤها قبل 50 عامًا مثالاً ممتازًا. يحتوي المنزل على درج ، يجاوره عدد معين من الشقق. الملاعب نفسها ذات أشكال مختلفة ، والشقق مثل الاستوديو ، غرفة واحدة ، غرفتين وثلاث غرف. عادة ما يكون لهذا الترتيب مخرج مشترك للأرضية ومدخل منفصل. هذا الخيار اقتصادي ولديه أيضًا عزل ممتاز للشقة. يمكن أن يكون عدد المداخل من 4 إلى 12 ، في حالة منفصلة حتى 16. سيعتمد عددها على:
قطع أراضي للتطوير.
تعتبر مجموعة متنوعة من أغطية الألواح المقطعية قائمة على أساس النقاط. وتسمى أيضًا برجًا ، يمكن أن يكون لها مخطط أرضي مشابه كما في حالة الأقسام. ولكن يوجد مدخل واحد فقط ، على سبيل المثال ، إذا تم تخصيص قطعة أرض صغيرة لعملية البناء ، وكان بها نقوش معقدة ، فستكون هذه الخطة خيارًا ممتازًا. لا يمكن العثور على منازل من نوع ممر مختلف في كثير من الأحيان. الفرق هنا هو أنه بدلاً من الدرج ، تم بناء ممر طويل ، ستذهب إليه جميع الشقق.
يرجى ملاحظة أن اتجاه الشقة هنا من جانب واحد – العيب الرئيسي لهذا الترتيب ، كما أن العزل ليس على أعلى مستوى. لهذا السبب ، يوجد مخطط مماثل عادة في بناء النزل والفنادق..
تشبه المنازل من نوع المعرض إلى حد ما منازل الممر. يمكن لكل شقة الوصول إلى معرض على طول الجدار الهيكلي الطولي. هذه الشقق جيدة التهوية ، حتى مع الحد الأدنى من المساحة. من الناحية الاقتصادية ، يعد هذا الترتيب مربحًا للغاية ، لأنه يسمح بخدمات العديد من الشقق بعدد صغير من السلالم أو المصاعد. ومع ذلك ، فإن العملية التكنولوجية للعزل الحراري في مناخ محلي قاسي لا تتميز دائمًا بالجودة الممتازة والمتانة..
قياس
قد يواجه أي خيال عدم القدرة على ملاءمته للأبعاد الحالية للشقة. لذلك ، فإن القياس الكفء للمباني هو أساس أسس المشروع المستقبلي..
ارسم أو اطبع مخطط شقتك ووضح عليه جميع الأبعاد الحقيقية لمبانيك. ضع علامة على الاتصالات والفتحات والارتفاعات على الخطة. باستخدام البوصلة ، حدد النقاط الأساسية.
خطة لتوسيع نطاق
الآن يجب أن ترسم مخطط الشقة بمقياس ، على سبيل المثال ، 1:50. يمكن القيام بذلك بالطريقة القديمة باستخدام المساطر وأقلام الرصاص..
ويمكنك وضع خطة في برامج خاصة على جهاز كمبيوتر ، على سبيل المثال ، في تطبيق Remplanner الممتاز ، حيث لا يمكنك رسم مخطط مجانًا فحسب ، بل يمكنك إنشاء مشروع تصميم كامل للشقة بأكملها.
وظائف Remplanner مثيرة للإعجاب: عدد غير محدود من الخيارات لإعادة تطوير الأثاث وترتيبه ، والتصور ثلاثي الأبعاد ، وحساب تكلفة المواد وحتى حساب التقديرات ونطاق العمل للبناة! بالإضافة إلى المساعدة المهنية المجانية في جميع المراحل.
وبالمناسبة ، تم اختبار Remplanner واعتماده من قبل مهندسين ومصممين حقيقيين – يمكنك تجربته بنفسك.!
Remplanner مخطط على الإنترنت
مهمة فنية
الشروط المرجعية هي خطتك لمزيد من العمل في المشروع. في ذلك ، تشير إلى رغباتك فيما يتعلق بأسلوب وتكوين ومحتوى المبنى والمعلومات الأخرى التي ستساعد في جعل التصميم الداخلي منطقيًا قدر الإمكان وتلبية جميع متطلباتك..
بالإضافة إلى جزء النص ، التقط صورًا للديكورات الداخلية التي ترغب في الإلهام بها أثناء العمل. يمكن القيام بذلك قبل أخذ قياسات الغرفة..
حل التخطيط
حان الوقت الآن لاتخاذ خطة الشقة ومحاولة وضع رغباتك الموضحة في الشروط المرجعية عليها. إذا كانت إعادة التطوير مطلوبة ، فتعلم أولاً كيفية القيام بذلك بشكل قانوني. في الغرف الناتجة ، حدد المناطق الوظيفية ورتب الأثاث اللازم.
للحصول على تصميم مريح ، ننصحك بدراسة “الكتاب المقدس لمصمم الشقق” – عمل بيتر نيوفرت ولودفيج نيف “التصميم والبناء”.
النموذج الحجمي
حان الوقت لتحويل التصميم المسطح للشقة إلى نموذج ثلاثي الأبعاد والقيام بنزهة مدروسة فيه! أقوم بعمل نموذج كهذا في SketchUp.
نتيجة لذلك ، هناك فهم لمدى ملاءمة الأفكار “المسطحة” في الحياة ، وفهم الاستخدام الكفء لأنواع مختلفة من مواد التشطيب ، ويتم العمل على تفاصيل الأثاث وغير ذلك الكثير. بالنسبة إلى “الإطار” الناتج ، ستتمكن دون تردد من التقاط مواد التشطيب وكل ما تحتاجه.
حل الأسلوب
قبل البدء في هذه المرحلة ، لديك فهم وظيفي ومريح واضح للديكور الداخلي الخاص بك في المستقبل. حان الوقت الآن لإعادة قراءة الشروط المرجعية ومراجعة صور التصميمات الداخلية الملهمة والبدء في التصميم بالمعنى الضيق للكلمة..
عند اختيار مواد التشطيب والأثاث وعناصر الإضاءة والعناصر الزخرفية ، لا تنسَ معلمات شقتك. يمكن أن تمنع الأسقف المنخفضة ونقص الضوء الطبيعي وعوامل أخرى التجسيد الجميل لأفكارك. بالمناسبة ، سيكون من السهل بعد ذلك ترجمة المواد المختارة إلى ميزانية تقريبية لشرائها..
المخططات
حان الوقت لترجمة أفكارك إلى خطة عمل كفؤة لتنفيذها! في نسخ تخطيط الشقة ، تحتاج إلى إنشاء رسومات لتفكيك وتركيب ووضع مواد التشطيب وتحديد نقاط تركيبات الإضاءة وترتيب المقابس والمفاتيح ورسم تخطيط البلاط في الحمامات.
يجب عليك إنشاء خطة عمل واضحة تسمح لك بإعادة جدولة عملية الإصلاح بهدوء والرضا عن نتيجتها. نعم ، مع رسومات العمل ، الإصلاحات لها نهايتها!