
تحتاج إلى معرفة كل شيء عن خطط منزل الإطار ، وكيفية التصميم بيديك ، لأن هذه المعرفة تتيح لك القيام بكل شيء بسرعة وبشكل واضح وكفاءة. لكن لهذا لا تزال بحاجة إلى معرفة إمكانيات خطط البناء الجاهزة وأنواعها. إذا تقرر إجراء التطوير بالكامل بشكل مستقل ، فأنت بحاجة إلى الإجابة عن سؤال آخر – في أي برنامج وكيفية إنشاء مشاريع قياسية فردية.
نظرة عامة على الخطط النموذجية الجاهزة
قصة واحدة
إن الرغبة في بناء منزل بيديك هي أكثر فأكثر ، وليس فقط لأنها تتيح لك توفير المال. ميزة مهمة هي أيضا أقصى قدر من المرونة للمباني المشكلة. ومع ذلك ، من أجل القيام بكل شيء كما ينبغي ، من الضروري تحديد مشروع نموذجي جاهز بشكل صحيح. يجب أن يعتمد اختيار خطة لمنزل الإطار للبناء الذاتي في المقام الأول على أحكام SNiP ، على مجموعات القواعد الحالية. أحد الخيارات يشمل:
- شرفة بطول 26 مترًا
- غرفة المعيشة أكثر من 66 متر مربع. م ؛
- 4 غرف نوم؛
- حجرة المؤن.
- غرفة المرافق
- كتلة المرجل ومناطق أخرى.

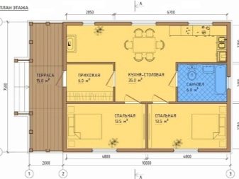
إذا كان حجم المنزل 6 × 6 أمتار ، فيمكنك استخدام مفهوم مختلف. على جانب واحد من الدهليز يوجد حمام ، وعلى الجانب الآخر – إحدى غرف النوم بمساحة 8 أمتار مربعة. م تقع غرفة النوم ذات الحجم نفسه في الزاوية اليمنى القصوى (كما تُرى من المدخل). مساحة المطبخ 11.5 “مربعات”.
منطقة العمل فيه ممتدة في خط. يتضمن الخيار الأكثر تعقيدًا ترتيب شرفة ذات شكل هندسي معقد بمساحة 22.7 مترًا مربعًا. م. يجد الأشخاص الذين يدخلون المنزل أنفسهم أولاً في غرفة ضيوف مساحتها 15 مترًا. على يساره المطبخ. على اليمين يوجد مدخل ودش ومرحاض. الغرف الأبعد عن المدخل هي غرفة المرجل وغرفتي نوم.

مبنى من طابق واحد بسيط للغاية وسهل التركيب. سوف يتطلب مواد بناء وتشطيب أقل بشكل ملحوظ. ستزيد سرعة البناء أكثر. ومع ذلك ، لاستيعاب جميع المباني اللازمة ، هناك حاجة بالتأكيد إلى مساحة كبيرة إلى حد ما..
يُنصح أيضًا بحجز مكان على الفور لترتيب أسرة الزهور (أسرة الزهور) ، وركن الحديقة ، والمباني الملحقة – وبالتالي ستكون هناك حاجة إلى مساحة أكبر حقًا.
من طابقين
يبدأ أحد الخيارات بشرفة طولها 3 أمتار. من هناك يمكنك الدخول إلى غرفة المعيشة في المطبخ ، والتي تقل مساحتها قليلاً عن 18 مترًا مربعًا. م مباشرة خلف هذه الغرفة توجد قاعة مشتركة كبيرة إلى حد ما. يمكنك الوصول إليها من شرفة أخرى ، وهناك أيضًا غرفة نوم ومصباح ثانٍ. يوجد في الطابق العلوي:
- غرفتا نوم؛
- قاعة؛
- حمام صغير.

خيار آخر يتضمن ترتيب مدخل 4.5 “مربع”. من هناك يمكنك الوصول إلى الممر الذي ينتهي جانبه الأيمن بحمام. يحتوي الطابق الأول أيضًا على غرفة نوم ومطبخ. تم تسليم الطابق الثاني بالكامل إلى منطقة النوم.
تسمح لك المباني المكونة من طابقين بالتقاعد بشكل أكثر فاعلية إذا كنت بحاجة ، على سبيل المثال ، إلى أن تكون في صمت. لكن الدرج غالبًا ما يكون حجر عثرة. ترتيبها مكلف للغاية ، وحتى أفضل الخيارات ليست آمنة تمامًا.. لذلك ، بالنسبة للعائلات التي لديها أطفال صغار وكبار السن ، هذا ليس أفضل نهج..
هل يستحق المنظر الرائع ، وجود شرفة أو علية ، مساحة متزايدة من أموالك ، سواء كانت تبرر أوجه القصور في المشروع ، عليك أن تقرر بنفسك.
معايير التصميم
على أي حال, ولكن عند وضع خطط عمل مفصلة لمنزل من طابق واحد ، فإنها تنطلق من المبادئ العامة للراحة والراحة. لا يتم ترتيب الأماكن بشكل عشوائي ، ولكن بترتيب محدد تمامًا..
الرواق إما مدمج مع دهليز ، أو مخصص لمنطقة منفصلة. إذا تم وضع خطة لمنزل إطار بحجم 6 × 6 أو أصغر ، فسيتم دمجها بشكل أساسي. عند تصميم القاعة ، يتم إيلاء أقصى قدر من الاهتمام لتوزيع التدفقات البشرية.

تم حل هذه المهمة بنجاح من خلال إبراز المجالات الوظيفية. هام: يجب أن تفكر في كيفية ربط القاعة بالغرف الأخرى في المنزل بالضبط. تم تصميم المطابخ في المنازل الخاصة بشكل أساسي في سطر واحد. ينصح بعض الخبراء بتجهيز “الجزر” التي تسمح لك بأداء مجموعة متنوعة من أنشطة الطهي بكفاءة أكبر. في مشروع منزل الإطار ، يمكنك إدخال كل من الحمامات المدمجة والمقسمة – حسب المساحة المتاحة وتفضيلاتك.

عند إنشاء مخطط غرفة نوم ، فإنهم يرفضون عن عمد تشبعهم بكمية كبيرة من الأثاث. هذا مهم بشكل خاص في المباني المكونة من طابق واحد ، حيث توجد مساحة صغيرة. هذه الغرفة نفسها تستخدم بشكل رئيسي في الليل ولها مساحة صغيرة نسبيًا.. عند وضع خطة عمل لمنزل الإطار ، من المفيد استخدام العلية قدر الإمكان.. يتم نقل غرف النوم إلى هناك ، وبالتالي توفير أقصى مساحة مفيدة أدناه..

يجب عمل “فطيرة” الجدار. عند الحساب والتفكير في التركيب ، يجب مراعاة حجم المبنى ومظهر المبنى والعوامل الطبيعية والمناخية. في الأساس ، يفضل المصممون البوليسترين الموسع أو الصوف المعدني..

في بعض الحالات ، يتم استخدام مواد أكثر صداقة للبيئة ، ولكن أداؤها أسوأ بشكل عام ، وعمر الخدمة أقصر. يجب أن يشتمل المشروع التفصيلي لمنزل الإطار للبناء الذاتي أيضًا على تشطيب خارجي من شأنه أن يقطع بشكل موثوق جميع العوامل الطبيعية غير المواتية.
يتضمن التصميم عالي الجودة تقسيم جميع المواد إلى أجزاء نصية ورسومية ، وإضافة المواصفات. لطالما أصبحت الإشارة إلى المعايير واللوائح التي يتم بموجبها إجراء الحسابات هي القاعدة في البيئة المهنية. يتم وضع المواصفات بحيث تظهر بوضوح كل من المساحة الإجمالية والحجم المطلوب للمواد. يتم تحديد التفاصيل المحددة للرسومات حسب متطلبات العملاء. وكلما زاد السعر ، كان المشروع أكثر تكلفة – ولكن من الأسهل بكثير البناء وفقًا لمجموعة من الوثائق التي تم إعدادها بدقة..

تحتوي المجموعة المثلى من المستندات ، بالإضافة إلى التصميم المعماري ومخطط الطابق ، على:
- مخطط تركيب التسقيف
- خطط لوضع أنابيب الغاز والتهوية وإمدادات المياه والصرف الصحي ؛
- قطع في الطائرات الطولية والعرضية ؛
- وصف مدخلات الاتصالات وإمكانيات توريد الموارد ؛
- معلمات تخصيص الأراضي؛
- التبرير الفني والاقتصادي للمشروع ؛
- تقدير وجدول العمل.

النهج الراسخ بالفعل في صناعة البناء هو تخصيص 20-25 متر مربع لكل مستأجر. م. لعائلة مكونة من 4 أفراد ، حتى مع التصميم الأكثر اقتضابًا والتوزيع الأنيق للمباني ، 90 مترًا مربعًا على الأقل. م نادرا ما تكون غرف التخزين الكبيرة مجهزة – في أغلب الأحيان لا تتجاوز 1-2 متر مربع. التكلفة الموصوفة في التقدير لا تعتمد فقط على المنطقة – تؤخذ في الاعتبار المكونات المحددة للإطار والسخانات ومواد الواجهة.

يجب تقديم حزمة كاملة من الوثائق للتسجيل. ستقوم المنظمات المشرفة بفحصه بعناية فائقة. لذلك ، ببساطة لا توجد “تفاهات” في مثل هذه الحالة. من الضروري مراعاة المسافات الموصى بها لحدود الموقع والمباني الأخرى والمناطق الصحية..
يتم حساب حجم المطابخ مع مراعاة عدد الشعلات الموجودة على مواقد الغاز والتهوية – وفقًا لمتطلبات تواتر دوران الهواء ؛ هناك العديد من الفروق الدقيقة الأخرى الأكثر دقة.

إذا كان عدد المستأجرين صغيرا ، فمن غير المعقول مطاردة عدد الطوابق والغرف. ولكن كلما أمكن ، من الضروري توفير غرفة احتياطية واحدة على الأقل حيث يمكن للضيوف العيش.. وفقًا للمعايير المعتمدة في روسيا ، من المستحيل تجهيز غرف الغلايات بحجم أقل من 5 أمتار مربعة. م يجب وضع البطاريات بشكل صارم تحت فتحات النوافذ – وفقط في الغرف التي لا توجد بها نوافذ على الإطلاق ، يُسمح بالاستثناءات. يجب وضع جميع المكونات الأساسية لنظام التدفئة في مناطق ساخنة فقط. يتم توفير غرف منفصلة لتخزين الوقود ، إن أمكن – ليس في المنزل ، ولكن خارجه.
يتم إدخال الغاز فقط من خلال الغرفة المتصلة به. يجب ألا تقل أسقفها عن 2.5 متر ولا يسمح بمياه الصرف الصحي التي يقل قطرها عن 0.1 متر. يجب أن يغوص تحت مستوى التجمد من الأرض.. يجب أن تفكر بعناية في تنفيذ التهوية في الحمام والمطبخ..
طرق الخلق
احترافي
إذا لم تكن راضيًا عن مشاريع البناء النموذجية ، ومن الواضح أن مهاراتك في إعداد الخطط ليست كافية ، فأنت بحاجة إلى الاتصال بالمتخصصين. هناك العديد من المنظمات التي يمكنها تطوير مشروع مقابل رسوم لأي موقع.. ولكن بالنسبة للمحترفين لإكمال المهمة ، سيتعين عليهم تقديم الكثير من المعلومات:
- حول مساحة المبنى المستقبلي وعدد الطوابق ؛
- حول وضع الغرف ووظائفها ؛
- مجالات وظيفية إضافية
- حول طريقة التسخين وفروقها الدقيقة ؛
- حول الربط ، الأرضيات ، الجدران الحاملة ، العوارض الخشبية ؛
- عن حالة التربة.

يصر المعماريون الحقيقيون دائمًا على الحصول على مخططات تخطيط المدن ، والتحقق من دقة الوثائق الحدودية ، والاستكشاف الجيولوجي للمنطقة وإصدار الشروط الفنية للاتصال بشبكات الاتصالات. كل هذا يعقد بشكل كبير ويزيد من تكلفة العمل. لكن بدون الاهتمام بمثل هذه اللحظات ، يمكنك أن تندم بمرارة – فقد تكون العواقب غير سارة للغاية ، وستؤدي بالتأكيد إلى إعاقة كل الاقتصاد الذي يمكن تصوره. سيجمع المحترفون بالتأكيد أكبر قدر ممكن من المعلومات ، وتختلف قائمتهم الدقيقة في كل حالة. ومع ذلك ، فإن المتطلبات العامة هي نفسها إلى حد ما.
بدأوا في إنشاء مشروعهم الفردي لمنزل الإطار ، مع مراعاة أطوال جوانب المبنى. يحدد عدد الطوابق ما إذا كانت الأساس والجدران الحاملة للحمل بحاجة إلى التعزيز. اعتمادًا على هيكل نظام التدفئة ، يختلف وضع الغلايات والمداخن..
لا يمكن لأي شخص التصميم بشكل احترافي في البرنامج للمهندسين المعماريين. تكلف جميع هذه البرامج تقريبًا الكثير من المال ، وليس من السهل إتقانها – لذلك ، حتى الإصدارات المخترقة الموزعة عبر الإنترنت لا تساعد كثيرًا..
هواة
يمكن إنشاء مخطط بيديك بمساعدة عدد من البرامج التي يتم توزيعها رسميًا مجانًا.. عادةً ما تكون بسيطة جدًا وتتضمن معالجة بالقوالب النموذجية ، والتي يتم إعادة صياغتها في الغالب إلى الحجم المطلوب ، وتقتصر على ذلك. تعتبر النمذجة الإلكترونية أكثر عملية وملاءمة من رسم المخططات على الورق. إنه يساعد حتى أولئك الذين يخلون تمامًا من الخيال المكاني – يمكن للتكنولوجيا الحديثة أن تتخيل تمامًا أي مخطط. يمكن إجراء التعديلات على جهاز الكمبيوتر بسهولة بالغة ، ولا داعي حتى لإعادة كل شيء باستمرار من البداية..
حتى حقيقة أن العديد من البرامج لا ينالون الجنسية الروسية ليست مشكلة كبيرة. تحتاج فقط إلى الانتباه إلى حقيقة أن تطبيقات الهندسة الأجنبية غالبًا ما تستخدم في البداية نظام الإجراءات الإنجليزي.. لجعل رسومات البناء بنفسك بشكل صحيح ، يمكنك اختيار تطبيق ArCon المدفوع. هذه حزمة قوية بالكامل يسهل فيها تصميم كل من المباني الداخلية والخارجية. ArCon يحسب الدرج تلقائيا. تم إيلاء الكثير من الاهتمام لجوانب التصميم ، بما في ذلك الإضاءة المتفاوتة.

البديل هو WoodEngine. السمة المميزة لها هي القدرة على عمل مشروع مفصل في كل من النسختين ثنائية الأبعاد وثلاثية الأبعاد (وحتى في كليهما في نفس الوقت). سيتم رسم جميع العقد تقريبًا تلقائيًا. يتم توفير حساب دقيق لكمية المواد المطلوبة. يتوفر الكثير من القوالب المفصلة للمعالجة..
إذا كنت بحاجة إلى تطوير مشروع مع علية لمستخدم مبتدئ أو عديم الخبرة ، فأنت بحاجة إلى الاهتمام بالبرامج الأبسط. على سبيل المثال ، في “Dom-3D”. يتم توزيع هذا التطبيق مجانًا ، ويعمل بدون مشاكل حتى على أجهزة الكمبيوتر القديمة جدًا. يساعد عدد كبير من المنشورات ودورات الفيديو على إتقانها..
لا يوجد سوى قيد واحد – لا يمكن تصميم منازل متطورة..

قد يُفضل Xilinx PlanAhead بالخبرة أو التدريب المتخصص.. إتقان هذا البرنامج من البداية يمثل مشكلة. ميزتها المهمة هي النمطية: يمكنك تعديل جميع الأجزاء دون تغيير الخطة الشاملة. كما تم تنفيذ حساب كمية المواد المطلوبة. إذا كنت تريد شيئًا بسيطًا ومتوازنًا ومجانيًا قدر الإمكان ، فسيقوم SketchUp بإنقاذك..
ولكن لا يمكن لأي برنامج تقديم نتائج موثوقة في حالة عدم وجود مجموعة كاملة من بيانات التصميم. يكاد يكون من المستحيل إجراء دراسة كفؤة للتضاريس والتربة على موقع يتم تطويره من الصفر بمفردنا. لذلك ، حتى مع وضع الخطط بشكل مستقل ، من الضروري استخدام خدمات الخبراء. يتراوح متوسط الدفع مقابل التصميم من الصفر من 2 إلى 5٪ من تكاليف البناء. يمكنك طلب خطة عبر الإنترنت فقط على المواقع التي أثبتت جدواها والتي أثبتت نفسها منذ فترة طويلة..

حتى إذا تم تصميم المنزل بشكل مستقل ، يجب أن تحتوي الخطة على معلومات حول:
- ارتفعت الرياح
- الخصائص المناخية للموقع ؛
- ارتفاع موقع مياه التربة ؛
- استخدام النوافذ الكبيرة والشرفات (إذا لزم الأمر) ؛
- موقع الاتصالات على الموقع ؛
- نوع الأساس
- ميزات ترتيب الأرضيات.
- موقع اللوحات الكهربائية ورافعات الطوارئ وحجب الاتصالات.

كل شيء عن خطط منازل الإطار
تحتاج إلى معرفة كل شيء عن خطط منزل الإطار ، وكيفية التصميم بيديك ، لأن هذه المعرفة تتيح لك القيام بكل شيء بسرعة وبشكل واضح وكفاءة. لكن لهذا لا تزال بحاجة إلى معرفة إمكانيات خطط البناء الجاهزة وأنواعها. إذا تقرر إجراء التطوير بالكامل بشكل مستقل ، فأنت بحاجة إلى الإجابة عن سؤال آخر – في أي برنامج وكيفية إنشاء مشاريع قياسية فردية.
نظرة عامة على الخطط النموذجية الجاهزة
قصة واحدة
إن الرغبة في بناء منزل بيديك هي أكثر فأكثر ، وليس فقط لأنها تتيح لك توفير المال. ميزة مهمة هي أيضا أقصى قدر من المرونة للمباني المشكلة. ومع ذلك ، من أجل القيام بكل شيء كما ينبغي ، من الضروري تحديد مشروع نموذجي جاهز بشكل صحيح. يجب أن يعتمد اختيار خطة لمنزل الإطار للبناء الذاتي في المقام الأول على أحكام SNiP ، على مجموعات القواعد الحالية. أحد الخيارات يشمل:
إذا كان حجم المنزل 6 × 6 أمتار ، فيمكنك استخدام مفهوم مختلف. على جانب واحد من الدهليز يوجد حمام ، وعلى الجانب الآخر – إحدى غرف النوم بمساحة 8 أمتار مربعة. م تقع غرفة النوم ذات الحجم نفسه في الزاوية اليمنى القصوى (كما تُرى من المدخل). مساحة المطبخ 11.5 “مربعات”.
منطقة العمل فيه ممتدة في خط. يتضمن الخيار الأكثر تعقيدًا ترتيب شرفة ذات شكل هندسي معقد بمساحة 22.7 مترًا مربعًا. م. يجد الأشخاص الذين يدخلون المنزل أنفسهم أولاً في غرفة ضيوف مساحتها 15 مترًا. على يساره المطبخ. على اليمين يوجد مدخل ودش ومرحاض. الغرف الأبعد عن المدخل هي غرفة المرجل وغرفتي نوم.
مبنى من طابق واحد بسيط للغاية وسهل التركيب. سوف يتطلب مواد بناء وتشطيب أقل بشكل ملحوظ. ستزيد سرعة البناء أكثر. ومع ذلك ، لاستيعاب جميع المباني اللازمة ، هناك حاجة بالتأكيد إلى مساحة كبيرة إلى حد ما..
يُنصح أيضًا بحجز مكان على الفور لترتيب أسرة الزهور (أسرة الزهور) ، وركن الحديقة ، والمباني الملحقة – وبالتالي ستكون هناك حاجة إلى مساحة أكبر حقًا.
من طابقين
يبدأ أحد الخيارات بشرفة طولها 3 أمتار. من هناك يمكنك الدخول إلى غرفة المعيشة في المطبخ ، والتي تقل مساحتها قليلاً عن 18 مترًا مربعًا. م مباشرة خلف هذه الغرفة توجد قاعة مشتركة كبيرة إلى حد ما. يمكنك الوصول إليها من شرفة أخرى ، وهناك أيضًا غرفة نوم ومصباح ثانٍ. يوجد في الطابق العلوي:
خيار آخر يتضمن ترتيب مدخل 4.5 “مربع”. من هناك يمكنك الوصول إلى الممر الذي ينتهي جانبه الأيمن بحمام. يحتوي الطابق الأول أيضًا على غرفة نوم ومطبخ. تم تسليم الطابق الثاني بالكامل إلى منطقة النوم.
تسمح لك المباني المكونة من طابقين بالتقاعد بشكل أكثر فاعلية إذا كنت بحاجة ، على سبيل المثال ، إلى أن تكون في صمت. لكن الدرج غالبًا ما يكون حجر عثرة. ترتيبها مكلف للغاية ، وحتى أفضل الخيارات ليست آمنة تمامًا.. لذلك ، بالنسبة للعائلات التي لديها أطفال صغار وكبار السن ، هذا ليس أفضل نهج..
هل يستحق المنظر الرائع ، وجود شرفة أو علية ، مساحة متزايدة من أموالك ، سواء كانت تبرر أوجه القصور في المشروع ، عليك أن تقرر بنفسك.
معايير التصميم
على أي حال, ولكن عند وضع خطط عمل مفصلة لمنزل من طابق واحد ، فإنها تنطلق من المبادئ العامة للراحة والراحة. لا يتم ترتيب الأماكن بشكل عشوائي ، ولكن بترتيب محدد تمامًا..
الرواق إما مدمج مع دهليز ، أو مخصص لمنطقة منفصلة. إذا تم وضع خطة لمنزل إطار بحجم 6 × 6 أو أصغر ، فسيتم دمجها بشكل أساسي. عند تصميم القاعة ، يتم إيلاء أقصى قدر من الاهتمام لتوزيع التدفقات البشرية.
تم حل هذه المهمة بنجاح من خلال إبراز المجالات الوظيفية. هام: يجب أن تفكر في كيفية ربط القاعة بالغرف الأخرى في المنزل بالضبط. تم تصميم المطابخ في المنازل الخاصة بشكل أساسي في سطر واحد. ينصح بعض الخبراء بتجهيز “الجزر” التي تسمح لك بأداء مجموعة متنوعة من أنشطة الطهي بكفاءة أكبر. في مشروع منزل الإطار ، يمكنك إدخال كل من الحمامات المدمجة والمقسمة – حسب المساحة المتاحة وتفضيلاتك.
عند إنشاء مخطط غرفة نوم ، فإنهم يرفضون عن عمد تشبعهم بكمية كبيرة من الأثاث. هذا مهم بشكل خاص في المباني المكونة من طابق واحد ، حيث توجد مساحة صغيرة. هذه الغرفة نفسها تستخدم بشكل رئيسي في الليل ولها مساحة صغيرة نسبيًا.. عند وضع خطة عمل لمنزل الإطار ، من المفيد استخدام العلية قدر الإمكان.. يتم نقل غرف النوم إلى هناك ، وبالتالي توفير أقصى مساحة مفيدة أدناه..
يجب عمل “فطيرة” الجدار. عند الحساب والتفكير في التركيب ، يجب مراعاة حجم المبنى ومظهر المبنى والعوامل الطبيعية والمناخية. في الأساس ، يفضل المصممون البوليسترين الموسع أو الصوف المعدني..
في بعض الحالات ، يتم استخدام مواد أكثر صداقة للبيئة ، ولكن أداؤها أسوأ بشكل عام ، وعمر الخدمة أقصر. يجب أن يشتمل المشروع التفصيلي لمنزل الإطار للبناء الذاتي أيضًا على تشطيب خارجي من شأنه أن يقطع بشكل موثوق جميع العوامل الطبيعية غير المواتية.
يتضمن التصميم عالي الجودة تقسيم جميع المواد إلى أجزاء نصية ورسومية ، وإضافة المواصفات. لطالما أصبحت الإشارة إلى المعايير واللوائح التي يتم بموجبها إجراء الحسابات هي القاعدة في البيئة المهنية. يتم وضع المواصفات بحيث تظهر بوضوح كل من المساحة الإجمالية والحجم المطلوب للمواد. يتم تحديد التفاصيل المحددة للرسومات حسب متطلبات العملاء. وكلما زاد السعر ، كان المشروع أكثر تكلفة – ولكن من الأسهل بكثير البناء وفقًا لمجموعة من الوثائق التي تم إعدادها بدقة..
تحتوي المجموعة المثلى من المستندات ، بالإضافة إلى التصميم المعماري ومخطط الطابق ، على:
النهج الراسخ بالفعل في صناعة البناء هو تخصيص 20-25 متر مربع لكل مستأجر. م. لعائلة مكونة من 4 أفراد ، حتى مع التصميم الأكثر اقتضابًا والتوزيع الأنيق للمباني ، 90 مترًا مربعًا على الأقل. م نادرا ما تكون غرف التخزين الكبيرة مجهزة – في أغلب الأحيان لا تتجاوز 1-2 متر مربع. التكلفة الموصوفة في التقدير لا تعتمد فقط على المنطقة – تؤخذ في الاعتبار المكونات المحددة للإطار والسخانات ومواد الواجهة.
يجب تقديم حزمة كاملة من الوثائق للتسجيل. ستقوم المنظمات المشرفة بفحصه بعناية فائقة. لذلك ، ببساطة لا توجد “تفاهات” في مثل هذه الحالة. من الضروري مراعاة المسافات الموصى بها لحدود الموقع والمباني الأخرى والمناطق الصحية..
يتم حساب حجم المطابخ مع مراعاة عدد الشعلات الموجودة على مواقد الغاز والتهوية – وفقًا لمتطلبات تواتر دوران الهواء ؛ هناك العديد من الفروق الدقيقة الأخرى الأكثر دقة.
إذا كان عدد المستأجرين صغيرا ، فمن غير المعقول مطاردة عدد الطوابق والغرف. ولكن كلما أمكن ، من الضروري توفير غرفة احتياطية واحدة على الأقل حيث يمكن للضيوف العيش.. وفقًا للمعايير المعتمدة في روسيا ، من المستحيل تجهيز غرف الغلايات بحجم أقل من 5 أمتار مربعة. م يجب وضع البطاريات بشكل صارم تحت فتحات النوافذ – وفقط في الغرف التي لا توجد بها نوافذ على الإطلاق ، يُسمح بالاستثناءات. يجب وضع جميع المكونات الأساسية لنظام التدفئة في مناطق ساخنة فقط. يتم توفير غرف منفصلة لتخزين الوقود ، إن أمكن – ليس في المنزل ، ولكن خارجه.
يتم إدخال الغاز فقط من خلال الغرفة المتصلة به. يجب ألا تقل أسقفها عن 2.5 متر ولا يسمح بمياه الصرف الصحي التي يقل قطرها عن 0.1 متر. يجب أن يغوص تحت مستوى التجمد من الأرض.. يجب أن تفكر بعناية في تنفيذ التهوية في الحمام والمطبخ..
طرق الخلق
احترافي
إذا لم تكن راضيًا عن مشاريع البناء النموذجية ، ومن الواضح أن مهاراتك في إعداد الخطط ليست كافية ، فأنت بحاجة إلى الاتصال بالمتخصصين. هناك العديد من المنظمات التي يمكنها تطوير مشروع مقابل رسوم لأي موقع.. ولكن بالنسبة للمحترفين لإكمال المهمة ، سيتعين عليهم تقديم الكثير من المعلومات:
يصر المعماريون الحقيقيون دائمًا على الحصول على مخططات تخطيط المدن ، والتحقق من دقة الوثائق الحدودية ، والاستكشاف الجيولوجي للمنطقة وإصدار الشروط الفنية للاتصال بشبكات الاتصالات. كل هذا يعقد بشكل كبير ويزيد من تكلفة العمل. لكن بدون الاهتمام بمثل هذه اللحظات ، يمكنك أن تندم بمرارة – فقد تكون العواقب غير سارة للغاية ، وستؤدي بالتأكيد إلى إعاقة كل الاقتصاد الذي يمكن تصوره. سيجمع المحترفون بالتأكيد أكبر قدر ممكن من المعلومات ، وتختلف قائمتهم الدقيقة في كل حالة. ومع ذلك ، فإن المتطلبات العامة هي نفسها إلى حد ما.
بدأوا في إنشاء مشروعهم الفردي لمنزل الإطار ، مع مراعاة أطوال جوانب المبنى. يحدد عدد الطوابق ما إذا كانت الأساس والجدران الحاملة للحمل بحاجة إلى التعزيز. اعتمادًا على هيكل نظام التدفئة ، يختلف وضع الغلايات والمداخن..
لا يمكن لأي شخص التصميم بشكل احترافي في البرنامج للمهندسين المعماريين. تكلف جميع هذه البرامج تقريبًا الكثير من المال ، وليس من السهل إتقانها – لذلك ، حتى الإصدارات المخترقة الموزعة عبر الإنترنت لا تساعد كثيرًا..
هواة
يمكن إنشاء مخطط بيديك بمساعدة عدد من البرامج التي يتم توزيعها رسميًا مجانًا.. عادةً ما تكون بسيطة جدًا وتتضمن معالجة بالقوالب النموذجية ، والتي يتم إعادة صياغتها في الغالب إلى الحجم المطلوب ، وتقتصر على ذلك. تعتبر النمذجة الإلكترونية أكثر عملية وملاءمة من رسم المخططات على الورق. إنه يساعد حتى أولئك الذين يخلون تمامًا من الخيال المكاني – يمكن للتكنولوجيا الحديثة أن تتخيل تمامًا أي مخطط. يمكن إجراء التعديلات على جهاز الكمبيوتر بسهولة بالغة ، ولا داعي حتى لإعادة كل شيء باستمرار من البداية..
حتى حقيقة أن العديد من البرامج لا ينالون الجنسية الروسية ليست مشكلة كبيرة. تحتاج فقط إلى الانتباه إلى حقيقة أن تطبيقات الهندسة الأجنبية غالبًا ما تستخدم في البداية نظام الإجراءات الإنجليزي.. لجعل رسومات البناء بنفسك بشكل صحيح ، يمكنك اختيار تطبيق ArCon المدفوع. هذه حزمة قوية بالكامل يسهل فيها تصميم كل من المباني الداخلية والخارجية. ArCon يحسب الدرج تلقائيا. تم إيلاء الكثير من الاهتمام لجوانب التصميم ، بما في ذلك الإضاءة المتفاوتة.
البديل هو WoodEngine. السمة المميزة لها هي القدرة على عمل مشروع مفصل في كل من النسختين ثنائية الأبعاد وثلاثية الأبعاد (وحتى في كليهما في نفس الوقت). سيتم رسم جميع العقد تقريبًا تلقائيًا. يتم توفير حساب دقيق لكمية المواد المطلوبة. يتوفر الكثير من القوالب المفصلة للمعالجة..
إذا كنت بحاجة إلى تطوير مشروع مع علية لمستخدم مبتدئ أو عديم الخبرة ، فأنت بحاجة إلى الاهتمام بالبرامج الأبسط. على سبيل المثال ، في “Dom-3D”. يتم توزيع هذا التطبيق مجانًا ، ويعمل بدون مشاكل حتى على أجهزة الكمبيوتر القديمة جدًا. يساعد عدد كبير من المنشورات ودورات الفيديو على إتقانها..
لا يوجد سوى قيد واحد – لا يمكن تصميم منازل متطورة..
قد يُفضل Xilinx PlanAhead بالخبرة أو التدريب المتخصص.. إتقان هذا البرنامج من البداية يمثل مشكلة. ميزتها المهمة هي النمطية: يمكنك تعديل جميع الأجزاء دون تغيير الخطة الشاملة. كما تم تنفيذ حساب كمية المواد المطلوبة. إذا كنت تريد شيئًا بسيطًا ومتوازنًا ومجانيًا قدر الإمكان ، فسيقوم SketchUp بإنقاذك..
ولكن لا يمكن لأي برنامج تقديم نتائج موثوقة في حالة عدم وجود مجموعة كاملة من بيانات التصميم. يكاد يكون من المستحيل إجراء دراسة كفؤة للتضاريس والتربة على موقع يتم تطويره من الصفر بمفردنا. لذلك ، حتى مع وضع الخطط بشكل مستقل ، من الضروري استخدام خدمات الخبراء. يتراوح متوسط الدفع مقابل التصميم من الصفر من 2 إلى 5٪ من تكاليف البناء. يمكنك طلب خطة عبر الإنترنت فقط على المواقع التي أثبتت جدواها والتي أثبتت نفسها منذ فترة طويلة..
حتى إذا تم تصميم المنزل بشكل مستقل ، يجب أن تحتوي الخطة على معلومات حول: