
تشمل المنازل الصغيرة ، كقاعدة عامة ، مشاريع تصل مساحتها إلى عدة عشرات من الأمتار المربعة. والبناء من البار ، بدوره ، ينطوي على تكاليف يتحملها معظم مالكي قطع الأراضي خارج المدينة..
معلومات عامة
يعتبر المنزل الصغير ، الذي يُعتبر تقليديًا صغيرًا ، مقارنة بالمشاريع التي تبلغ مساحتها هكتارًا واحدًا أو أكثر ، أرخص وأكثر ملاءمة للبناء على أساس تقنية شعاع الإطار. تعتبر المنازل الخشبية ، على عكس المنازل المبنية من الطوب ، أسرع في البناء – لا داعي للانتظار حتى تتقلص صفوف البناء بالطوب وتكتسب القوة. في المنازل الخشبية ، الملاط الأسمنتي والرمل وكتل البناء والطوب والحجر وما إلى ذلك غائبة تمامًا – الاستثناء الوحيد هو أساس الإطار الشريطي الذي تم وضعه من الخرسانة المسلحة.
لا يتداخل الحجم الصغير للمنزل مع تنظيم المباني الخارجية على شكل شرفة أرضية ، وتراسات تتجاوز المحيط الرئيسي (المستطيل أو المربع).
من الممكن إرفاق مرآب بورشة عمل – بينما لا يقع كلاهما في الطابق السفلي ، ولكن في المنطقة المجاورة مباشرة للمبنى الرئيسي.

من الصعب وضع جميع أنواع المباني الخارجية داخل محيط المنطقة الرئيسية المشغولة في الموقع – ثم يضحي المالك بشيء مهم. على سبيل المثال ، سيتم دمج غرفة النوم وغرفة المعيشة مع المطبخ ، أو يمكن وضع الحمام في الفناء ، في ملحق منفصل – وفقًا لمعايير القرن الحادي والعشرين ، هذا غير مقبول. لقد ولت أوقات الأفنية المشتركة ، عندما كان الجيران يستخدمون نفس المرحاض ، منذ زمن طويل..
تتمثل مزايا البيوت الخشبية في توفير كبير في التكاليف والحفاظ على الحرارة ، حيث يأتي الخشب في المرتبة الثانية بعد الخرسانة الخلوية (كتل سيليكات الغاز). والحقيقة هي أنه إذا لم يتم تسخين أي غرفة ، فعاجلاً أم آجلاً ستعطي آخر حرارة بالخارج وتتحول إلى ثلاجة في الشتاء. لكن الشجرة المعزولة عن الخارج تحافظ على دفئها جيدًا في الشتاء – بشرط أن يتم تدفئة المنزل من الداخل.
في الصيف ، يكون المنزل الخشبي أكثر برودة من منزل من الطوب أو حاوية الصلب..

كما لوحظت عيوب البيوت الخشبية: تمتص الشجرة الرطوبة جيدًا ، والمطلوب هنا حماية إضافية من الميكروبات والفطريات والعفن.. يجبر خطر الحريق الناجم عن الخشب المالك على تشريب الأخشاب والألواح الخشبية والخشب الرقائقي بالتشريب المانع للحريق كل 7 سنوات. يتم الطلاء أو الطلاء بالورنيش المضاد للماء كل عامين من الداخل وكل عام من الخارج ، لأن هطول الأمطار والأشعة فوق البنفسجية الشمسية تدمر المواد التي تصنع منها هذه الطلاءات.
يكاد يكون المنزل الصغير المصنوع من الخشب هو الحل الوحيد لأصحاب الأراضي الضيقة. بمساعدة إطار خشبي ، يمكن إعطاؤه أي شكل تقريبًا – في شكل حقيبة مقلمة موضوعة على الحافة ، أو كوخ ضيق ، إلخ.. هناك طلب كبير على المنازل الصغيرة ذات الطراز الريفي المبنية من جذوع الأشجار أو العوارض..
خيارات التخطيط
المنازل المكونة من طابق واحد والمكونة من طابقين – مع علية ، وطابق ثان كامل ، مع نافذة كبيرة في غرفة المعيشة في المطبخ ، مع مرآب منفصل أو مجاور ، وشرفة أرضية أو تراس – مطلوبة بشكل متساوٍ تقريبًا بين المطورين التي قد تقتصر ميزانيتها ، على سبيل المثال ، على مليون روبل.
سعر هذا المنزل (مع الأساس ، المجمع) بمليون روبل مناسب في روسيا في أوائل عام 2020. في 2010s ، يمكن أن يكون أقل من مرة ونصف إلى مرتين. لا تؤخذ تكلفة الموقع في الاعتبار – من الآن فصاعدًا ، يتم التركيز فقط على تكاليف البناء والتركيب البحتة.

وبالتالي, خطة بسيطة مع شرفة مريحة وواسعة – بدون شرفة وغيرها من الأدوات – بداية جيدة لأولئك الذين لا يحتاجون إلى تجاوزات معمارية وتخطيطية. يمكن إرفاق شرفة أكثر اتساعًا ، بالإضافة إلى مرآب وشرفة أرضية وسقيفة إضافية بشكل منفصل – عند اكتمال البناء والتشطيب الرئيسيين ، يتم توصيل المرافق. غرفتي نوم ومطبخ وغرفة طعام وحمام وصالة ملحقة.
مع شرفة
مثال على مشروع به شرفة واسعة ، يتزامن طولها مع طول المبنى الرئيسي ، له مدخل مركزي يقسم هذا التراس إلى قسمين. هنا ، توجد غرفتان متطابقتان على جانبي الرواق – التصميم متماثل. تنتهي نهاية الرواق بمدخل الحمام المشترك.
يمكن تحويل إحدى الغرف إلى مطبخ والأخرى إلى غرفة نوم. يشغل المنزل مساحة 6 × 6 على قطعة أرض ، منها 2 × 6 شرفة ، والباقي عبارة عن مبنى داخلي. بمعنى آخر ، تبلغ مساحة المعيشة 4 × 6 مساحة مشغولة في الموقع ، أي 24 متر مربع.

إنه مجهز على طراز دور علوي (“علوي”) ، وهو مزين بعوارض وعوارض سقفية تشكل جزءًا من الداخل. تقع غرفتي نوم وغرفة معيشة ومطبخ وردهة وحمام في الطابق الأول. لم يتم الإشارة إلى مدخل الطابق الثاني في هذه الخطة ، ولكن من السهل تجهيزه ، على سبيل المثال ، غرفة المعيشة في المطبخ ، عن طريق تثبيت سلم حلزوني أو صعود (زيادة الانحدار).
مع العلية
أبسط مشروع علية يبدو هكذا. يتم إصدار الشرفة ذات المدخل الرئيسي بشكل منفصل – إلى اليسار أو إلى اليمين ، يمكن “عكس” المشروع في الاتجاه الآخر قبل البدء في البناء. غرفة العلية هي الأبسط ، مع سقف منخفض يبلغ 2.2 متر ، على الجانب الخلفي (غير الأمامي) النافذة صغيرة ، ولكن إذا لزم الأمر من السهل توسيعها ، ثم سيتغير المشروع قليلاً.

مثال آخر لمنزل علية يحتوي على درج مكون من رحلتين مثبت مباشرة في غرفة المعيشة. تبلغ مساحة العلية 4.5×6 م ومساحة الطابق الأول 6×6. مجموعة قياسية من الغرف في الطابق الأول – غرفة نوم ومطبخ وحمام ودهليز – تسمح للزوجين المتزوجين بدون أطفال أو لعائلة مكونة من ثلاثة أفراد بالاستيعاب براحة نسبية. تبدو الشرفة وكأنها شرفة صغيرة أو شرفة أرضية وتبلغ مساحتها 400 × 120 سم.
يمكن للمالكين “المتقدمين” تحويل غرفة جلوس واسعة – في حالة عدم وجود ضيوف – جزئيًا إلى غرفة نوم: في كلتا الغرفتين ، غالبًا ما يتم تثبيت الأرائك القابلة للطي. ثم يتم منح غرفة النوم الرئيسية للأطفال ، ويقضي الزوجان الليل في غرفة المعيشة ، وهو خيار مؤقت مناسب حتى يتم إضافة غرف إضافية إلى المنزل ، مما يؤدي إلى تغيير المشروع.
مع جراج
المرآب ، كما هو الحال في معظم الحالات ، ليس تحت الأرض – إنه متصل بجواره. يشتمل المشروع على غرفة معيشة – طعام ، غرفتي نوم ، دهليز ، حمام ، مستودع صغير ، وقاعة. مساحة المرآب – 16.07 متر مربع. في الموقع ، يشغل الجزء الرئيسي – بدون مرآب – مساحة 9 × 9 أمتار ، وتتداخل القاعة وغرفة المعيشة وتناول الطعام قليلاً ، لذلك يجب تخصيص مساحة كلتا الغرفتين في هذا المكان. لايوجد بالمشروع دور ثاني كامل او علية.

ومع ذلك ، يختار بعض المالكين مشروعًا به مرآب مفتوح. في المثال التالي ، تشغل مساحة 27 م 2 ، والجزء الرئيسي من المنزل – 6 × 10.5 م – يشتمل على غرفة معيشة ومطبخ وغرفة نوم وصالة ودهليز وحمام وفرن.

يتم اختيار سقيفة المرآب المفتوحة بشكل أساسي من قبل الأشخاص الذين يفضلون خدمة وإصلاح سياراتهم في وضح النهار ، في مساحة أكثر انفتاحًا..
عيب مساحة المرآب هذه هو عدم وجود أرفف جدارية ، وهذا هو السبب في أن بعض مالكي السيارات يقومون بعد ذلك بتحويل المرآب إلى غرفة مغلقة..
مع نافذة كبيرة
في هذا المثال ، يقع المطبخ ، غرفة المعيشة في الطابق الأول ، تحت نافذة الخليج. في الطابق الثاني ، تفتح نافذة الخليج على غرفة النوم. هذا هو الحل الأكثر شيوعًا لمعظم المشاريع.. يفترض التصميم المعقد وجود قاعة ذات ممرات مائلة في الطابقين الأول والثاني ، وتكون الزاوية المائلة 45 درجة. حجم المبنى في الموقع 815×815 سم ، بما في ذلك نافذة الخليج. يوجد في الطابق الأرضي غرفة طعام ومطبخ وغرفة معيشة وحمام ، وفي الثانية توجد ثلاث غرف نوم.
زخرفة الواجهة
زخرفة المنازل من شريط انحياز ، مع واجهة جيدة التهوية وعزل. يستخدم انحياز بشكل أساسي في الألوان الفاتحة ، والألواح المعدنية كلاسيكية ، على الرغم من استخدام أرضيات الفينيل في كثير من الأحيان. غالبًا ما يكون السقف مزينًا بألوان زاهية أو داكنة..
استخدام بلاط الكلنكر والجص على الجدران الخشبية ، بما في ذلك العوارض ، غير مقبول. بديل للانحياز هو الأضواء الكاشفة – أيضًا مع العزل تحتها.
الغالبية العظمى من المشاريع على الواجهة لديها ما لا يقل عن نصف العدد الإجمالي للنوافذ ، وجزء كبير – المدخل من الواجهة.
تصميم غرفة وظيفي
التصميم الداخلي لا يعتمد على تقنيات البناء. لكل مالك الحق في تركيب ألواح الجدران من أي مادة ، بما في ذلك البلاستيك والمركب. يتضمن التصميم الوظيفي تصميمًا معقدًا: قاعة مائلة على المخطط ، وجدران زاوية مختصرة للغرف ، وبفضل ذلك يقضي أصحاب هذا المنزل وقتًا أقل في الانتقال من غرفة إلى أخرى. مثل هذا التصميم له عيب كبير – تعقيد وضع العلامات والبناء ، ولكن مع النهج الصحيح فإنه يوفر المواد.
غالبًا ما يتضمن تقسيم غرفة المعيشة في المطبخ (أو غرفة المطبخ – الطعام ، غرفة الطعام – غرفة المعيشة) ترتيبًا على شكل حرف L لمجموعة المطبخ. توجد طاولة وكراسي غرفة الطعام ، على سبيل المثال ، بالقرب من نافذة الخليج ، وتقع الأريكة والكراسي بذراعين وطاولة القهوة في زاوية الصالة المقابلة للمطبخ. تقع غرف النوم مقابل بعضها البعض – فيما يتعلق بالممر وعلى أحد جانبيها.
مشاريع منتهية
الخيارات أدناه لها التخطيط التالي.
- الحمام – 4.74 ، غرفة المعيشة – 11.8 ، القاعة – 11.84 ، غرفة النوم – 8.21 ، المطبخ – 10.99 ، غرفة المرجل – 4.49 ، الدهليز – 1.91 ، الشرفة – 3.13 مترًا مربعًا.
- الشرفة – 6.2 ، غرفة المعيشة – 21.5 ، المدخل – 7.8 ، القاعة – 7.1 ، الحمام – 3 ، المطبخ – 10.5 مترًا في العلية – غرفتي نوم 16.4 و 11.9 مترًا مربعًا.
- المرآب – 22 ، الدهليز – 3.7 ، المدخل – 5.3 ، الحمام في الطابق الأول – 5 ، غرفة المرجل – 5.3 ، المطبخ – 10.6 ، غرفة المعيشة – 23 ، الشرفة – 4.5. يوجد في العلية ثلاث غرف نوم – 10.6 ، 9.4 و 15.4 متر مربع ، القاعة – 4.2 ، الحمام الثاني – 6.7 ، المستودع – 3.7 متر مربع.
تشغل جميع المنازل مساحة 64 مترًا مربعًا على قطعة أرض.

مشاريع منازل صغيرة من البار
تشمل المنازل الصغيرة ، كقاعدة عامة ، مشاريع تصل مساحتها إلى عدة عشرات من الأمتار المربعة. والبناء من البار ، بدوره ، ينطوي على تكاليف يتحملها معظم مالكي قطع الأراضي خارج المدينة..
معلومات عامة
يعتبر المنزل الصغير ، الذي يُعتبر تقليديًا صغيرًا ، مقارنة بالمشاريع التي تبلغ مساحتها هكتارًا واحدًا أو أكثر ، أرخص وأكثر ملاءمة للبناء على أساس تقنية شعاع الإطار. تعتبر المنازل الخشبية ، على عكس المنازل المبنية من الطوب ، أسرع في البناء – لا داعي للانتظار حتى تتقلص صفوف البناء بالطوب وتكتسب القوة. في المنازل الخشبية ، الملاط الأسمنتي والرمل وكتل البناء والطوب والحجر وما إلى ذلك غائبة تمامًا – الاستثناء الوحيد هو أساس الإطار الشريطي الذي تم وضعه من الخرسانة المسلحة.
لا يتداخل الحجم الصغير للمنزل مع تنظيم المباني الخارجية على شكل شرفة أرضية ، وتراسات تتجاوز المحيط الرئيسي (المستطيل أو المربع).
من الممكن إرفاق مرآب بورشة عمل – بينما لا يقع كلاهما في الطابق السفلي ، ولكن في المنطقة المجاورة مباشرة للمبنى الرئيسي.
من الصعب وضع جميع أنواع المباني الخارجية داخل محيط المنطقة الرئيسية المشغولة في الموقع – ثم يضحي المالك بشيء مهم. على سبيل المثال ، سيتم دمج غرفة النوم وغرفة المعيشة مع المطبخ ، أو يمكن وضع الحمام في الفناء ، في ملحق منفصل – وفقًا لمعايير القرن الحادي والعشرين ، هذا غير مقبول. لقد ولت أوقات الأفنية المشتركة ، عندما كان الجيران يستخدمون نفس المرحاض ، منذ زمن طويل..
تتمثل مزايا البيوت الخشبية في توفير كبير في التكاليف والحفاظ على الحرارة ، حيث يأتي الخشب في المرتبة الثانية بعد الخرسانة الخلوية (كتل سيليكات الغاز). والحقيقة هي أنه إذا لم يتم تسخين أي غرفة ، فعاجلاً أم آجلاً ستعطي آخر حرارة بالخارج وتتحول إلى ثلاجة في الشتاء. لكن الشجرة المعزولة عن الخارج تحافظ على دفئها جيدًا في الشتاء – بشرط أن يتم تدفئة المنزل من الداخل.
في الصيف ، يكون المنزل الخشبي أكثر برودة من منزل من الطوب أو حاوية الصلب..
كما لوحظت عيوب البيوت الخشبية: تمتص الشجرة الرطوبة جيدًا ، والمطلوب هنا حماية إضافية من الميكروبات والفطريات والعفن.. يجبر خطر الحريق الناجم عن الخشب المالك على تشريب الأخشاب والألواح الخشبية والخشب الرقائقي بالتشريب المانع للحريق كل 7 سنوات. يتم الطلاء أو الطلاء بالورنيش المضاد للماء كل عامين من الداخل وكل عام من الخارج ، لأن هطول الأمطار والأشعة فوق البنفسجية الشمسية تدمر المواد التي تصنع منها هذه الطلاءات.
يكاد يكون المنزل الصغير المصنوع من الخشب هو الحل الوحيد لأصحاب الأراضي الضيقة. بمساعدة إطار خشبي ، يمكن إعطاؤه أي شكل تقريبًا – في شكل حقيبة مقلمة موضوعة على الحافة ، أو كوخ ضيق ، إلخ.. هناك طلب كبير على المنازل الصغيرة ذات الطراز الريفي المبنية من جذوع الأشجار أو العوارض..
خيارات التخطيط
المنازل المكونة من طابق واحد والمكونة من طابقين – مع علية ، وطابق ثان كامل ، مع نافذة كبيرة في غرفة المعيشة في المطبخ ، مع مرآب منفصل أو مجاور ، وشرفة أرضية أو تراس – مطلوبة بشكل متساوٍ تقريبًا بين المطورين التي قد تقتصر ميزانيتها ، على سبيل المثال ، على مليون روبل.
سعر هذا المنزل (مع الأساس ، المجمع) بمليون روبل مناسب في روسيا في أوائل عام 2020. في 2010s ، يمكن أن يكون أقل من مرة ونصف إلى مرتين. لا تؤخذ تكلفة الموقع في الاعتبار – من الآن فصاعدًا ، يتم التركيز فقط على تكاليف البناء والتركيب البحتة.
وبالتالي, خطة بسيطة مع شرفة مريحة وواسعة – بدون شرفة وغيرها من الأدوات – بداية جيدة لأولئك الذين لا يحتاجون إلى تجاوزات معمارية وتخطيطية. يمكن إرفاق شرفة أكثر اتساعًا ، بالإضافة إلى مرآب وشرفة أرضية وسقيفة إضافية بشكل منفصل – عند اكتمال البناء والتشطيب الرئيسيين ، يتم توصيل المرافق. غرفتي نوم ومطبخ وغرفة طعام وحمام وصالة ملحقة.
مع شرفة
مثال على مشروع به شرفة واسعة ، يتزامن طولها مع طول المبنى الرئيسي ، له مدخل مركزي يقسم هذا التراس إلى قسمين. هنا ، توجد غرفتان متطابقتان على جانبي الرواق – التصميم متماثل. تنتهي نهاية الرواق بمدخل الحمام المشترك.
يمكن تحويل إحدى الغرف إلى مطبخ والأخرى إلى غرفة نوم. يشغل المنزل مساحة 6 × 6 على قطعة أرض ، منها 2 × 6 شرفة ، والباقي عبارة عن مبنى داخلي. بمعنى آخر ، تبلغ مساحة المعيشة 4 × 6 مساحة مشغولة في الموقع ، أي 24 متر مربع.
إنه مجهز على طراز دور علوي (“علوي”) ، وهو مزين بعوارض وعوارض سقفية تشكل جزءًا من الداخل. تقع غرفتي نوم وغرفة معيشة ومطبخ وردهة وحمام في الطابق الأول. لم يتم الإشارة إلى مدخل الطابق الثاني في هذه الخطة ، ولكن من السهل تجهيزه ، على سبيل المثال ، غرفة المعيشة في المطبخ ، عن طريق تثبيت سلم حلزوني أو صعود (زيادة الانحدار).
مع العلية
أبسط مشروع علية يبدو هكذا. يتم إصدار الشرفة ذات المدخل الرئيسي بشكل منفصل – إلى اليسار أو إلى اليمين ، يمكن “عكس” المشروع في الاتجاه الآخر قبل البدء في البناء. غرفة العلية هي الأبسط ، مع سقف منخفض يبلغ 2.2 متر ، على الجانب الخلفي (غير الأمامي) النافذة صغيرة ، ولكن إذا لزم الأمر من السهل توسيعها ، ثم سيتغير المشروع قليلاً.
مثال آخر لمنزل علية يحتوي على درج مكون من رحلتين مثبت مباشرة في غرفة المعيشة. تبلغ مساحة العلية 4.5×6 م ومساحة الطابق الأول 6×6. مجموعة قياسية من الغرف في الطابق الأول – غرفة نوم ومطبخ وحمام ودهليز – تسمح للزوجين المتزوجين بدون أطفال أو لعائلة مكونة من ثلاثة أفراد بالاستيعاب براحة نسبية. تبدو الشرفة وكأنها شرفة صغيرة أو شرفة أرضية وتبلغ مساحتها 400 × 120 سم.
يمكن للمالكين “المتقدمين” تحويل غرفة جلوس واسعة – في حالة عدم وجود ضيوف – جزئيًا إلى غرفة نوم: في كلتا الغرفتين ، غالبًا ما يتم تثبيت الأرائك القابلة للطي. ثم يتم منح غرفة النوم الرئيسية للأطفال ، ويقضي الزوجان الليل في غرفة المعيشة ، وهو خيار مؤقت مناسب حتى يتم إضافة غرف إضافية إلى المنزل ، مما يؤدي إلى تغيير المشروع.
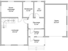
مع جراج
المرآب ، كما هو الحال في معظم الحالات ، ليس تحت الأرض – إنه متصل بجواره. يشتمل المشروع على غرفة معيشة – طعام ، غرفتي نوم ، دهليز ، حمام ، مستودع صغير ، وقاعة. مساحة المرآب – 16.07 متر مربع. في الموقع ، يشغل الجزء الرئيسي – بدون مرآب – مساحة 9 × 9 أمتار ، وتتداخل القاعة وغرفة المعيشة وتناول الطعام قليلاً ، لذلك يجب تخصيص مساحة كلتا الغرفتين في هذا المكان. لايوجد بالمشروع دور ثاني كامل او علية.
ومع ذلك ، يختار بعض المالكين مشروعًا به مرآب مفتوح. في المثال التالي ، تشغل مساحة 27 م 2 ، والجزء الرئيسي من المنزل – 6 × 10.5 م – يشتمل على غرفة معيشة ومطبخ وغرفة نوم وصالة ودهليز وحمام وفرن.
يتم اختيار سقيفة المرآب المفتوحة بشكل أساسي من قبل الأشخاص الذين يفضلون خدمة وإصلاح سياراتهم في وضح النهار ، في مساحة أكثر انفتاحًا..
عيب مساحة المرآب هذه هو عدم وجود أرفف جدارية ، وهذا هو السبب في أن بعض مالكي السيارات يقومون بعد ذلك بتحويل المرآب إلى غرفة مغلقة..
مع نافذة كبيرة
في هذا المثال ، يقع المطبخ ، غرفة المعيشة في الطابق الأول ، تحت نافذة الخليج. في الطابق الثاني ، تفتح نافذة الخليج على غرفة النوم. هذا هو الحل الأكثر شيوعًا لمعظم المشاريع.. يفترض التصميم المعقد وجود قاعة ذات ممرات مائلة في الطابقين الأول والثاني ، وتكون الزاوية المائلة 45 درجة. حجم المبنى في الموقع 815×815 سم ، بما في ذلك نافذة الخليج. يوجد في الطابق الأرضي غرفة طعام ومطبخ وغرفة معيشة وحمام ، وفي الثانية توجد ثلاث غرف نوم.
زخرفة الواجهة
زخرفة المنازل من شريط انحياز ، مع واجهة جيدة التهوية وعزل. يستخدم انحياز بشكل أساسي في الألوان الفاتحة ، والألواح المعدنية كلاسيكية ، على الرغم من استخدام أرضيات الفينيل في كثير من الأحيان. غالبًا ما يكون السقف مزينًا بألوان زاهية أو داكنة..
استخدام بلاط الكلنكر والجص على الجدران الخشبية ، بما في ذلك العوارض ، غير مقبول. بديل للانحياز هو الأضواء الكاشفة – أيضًا مع العزل تحتها.
الغالبية العظمى من المشاريع على الواجهة لديها ما لا يقل عن نصف العدد الإجمالي للنوافذ ، وجزء كبير – المدخل من الواجهة.
تصميم غرفة وظيفي
التصميم الداخلي لا يعتمد على تقنيات البناء. لكل مالك الحق في تركيب ألواح الجدران من أي مادة ، بما في ذلك البلاستيك والمركب. يتضمن التصميم الوظيفي تصميمًا معقدًا: قاعة مائلة على المخطط ، وجدران زاوية مختصرة للغرف ، وبفضل ذلك يقضي أصحاب هذا المنزل وقتًا أقل في الانتقال من غرفة إلى أخرى. مثل هذا التصميم له عيب كبير – تعقيد وضع العلامات والبناء ، ولكن مع النهج الصحيح فإنه يوفر المواد.
غالبًا ما يتضمن تقسيم غرفة المعيشة في المطبخ (أو غرفة المطبخ – الطعام ، غرفة الطعام – غرفة المعيشة) ترتيبًا على شكل حرف L لمجموعة المطبخ. توجد طاولة وكراسي غرفة الطعام ، على سبيل المثال ، بالقرب من نافذة الخليج ، وتقع الأريكة والكراسي بذراعين وطاولة القهوة في زاوية الصالة المقابلة للمطبخ. تقع غرف النوم مقابل بعضها البعض – فيما يتعلق بالممر وعلى أحد جانبيها.
مشاريع منتهية
الخيارات أدناه لها التخطيط التالي.
تشغل جميع المنازل مساحة 64 مترًا مربعًا على قطعة أرض.