
تبدو المنازل المبنية من الطوب الأبيض جميلة ومبتكرة. يتم بناء المباني بسرعة. كل مادة متضمنة في البناء لها خصائصها الخاصة ، والتي على أساسها يقوم الشخص الذي يريد أن يصبح صاحب منزل بالاختيار..
المميزات والعيوب
تتميز المنازل المبنية من الطوب الأبيض بعدد كبير من الجوانب الإيجابية..
- أهم خاصية تصميم هي شريحة السعر. سيجد الجميع خيارًا مناسبًا لأنفسهم ، اعتمادًا على تفضيلات الذوق والملاءة المالية..
- أثناء البناء يستخدمونها مادة شديدة المقاومة, بفضل المباني التي تم الحصول عليها من أي عدد من الطوابق.
- التصاميم مختلفة مقاومة الصقيع. يمكنك العيش براحة فيها تحت أي ظرف من الظروف.
- بناء موثوق بها, تحمل الأحمال الثقيلة.
- ميزة هامة للمنازل من الطوب الأبيض سلامة البيئة. كتل السيليكات الطبيعية لا تنبعث منها مواد كيميائية خطرة على صحة الإنسان.
- سهولة البناء. يمكن للجميع إنجاز المهمة بأقل قدر من الجهد.
- يمكن تزيين المباني بطرق مختلفة, باستخدام أي مواد تشطيب.
- يتميز المبنى بخصائص عزل جيدة للصوت. ويرجع ذلك إلى حقيقة أن طوب سيليكات الغاز الأبيض يستخدم في التصنيع ، وبعد استخدامه ، خاصةً من الصنف المجوف ، يتم إطفاء أي أصوات غريبة. لهذا السبب ، يتم استخدام المواد في بناء الجدران الحاملة ، والفواصل بين الغرف..
- عمر خدمة طويل. سيستمر مبنى من الطوب الأبيض مع الرعاية المناسبة لأكثر من مائة عام.
- جاذبية المظهر. بمرور الوقت ، قد يتغير اللون الأبيض فقط. يصبح رمادى قليلا.

منازل الطوب الأبيض لها بعض العيوب.
- وجود موصلية حرارية أقل مقارنة بالسيراميك. من الضروري وضع طبقة إضافية من المواد العازلة أو بناء جدار في 2-3 صفوف. لهذا السبب ، تصبح الهياكل أكثر سمكا..
- الكتل ثقيلة. يتجاوز وزن الصنف الخزفي بمقدار الثلث..
- تكاليف نقل كبيرة, ما يمكن أن يكون مشكلة كبيرة.
- لبناء هيكل تحتاج إلى بناء قاعدة أشرطة ضخمة وعالية وموثوقة للغاية.
- مقاومة منخفضة للرطوبة. يتميز تصميم الكتلة بمستوى عالٍ من امتصاص الماء والاحتفاظ به. لزيادة كره الماء ، من الضروري إضافة مواد خاصة ، مما يهدد بزيادة تكلفة الهيكل..
- في حالة الاتصال المستمر بالنار ، يفقد الهيكل قوته الميكانيكية. لن يحدث تدمير لبنة السيليكات ، حيث يمكنها تحمل ظروف درجات الحرارة العالية للغاية. لكن في الوقت نفسه ، يتم فقد القوة الميكانيكية للهيكل ، ويتم تدمير الكتل. لهذا السبب ، لا يتم إنشاء المداخن والمواقد والمدافئ المصنوعة من طوب السيليكات..
خيارات المواد
يكمن الفرق بين منتجات السيليكات في السماكة. لا تتم ملاحظة المعايير القياسية فقط فيما يتعلق بالأحجار الاصطناعية المزخرفة. المنتجات المجوفة والصلبة شائعة أيضًا..

عمارات من سيليكات الطوب تحظى بشعبية. يتم تقديم المواد في عدة فئات. منتج واحد يتميز بطول 25 سم وعرض 12 سم وسمك 6.5 ملم. يتم استخدام منتج واحد ونصف ومزدوج لتقوية المباني..

الوزن مهم أيضًا عند الاختيار. الوزن الفردي 3.7 كجم. لمدة عام ونصف ، يتراوح الوزن من 4.2 كجم إلى 5 كجم.
بالمقارنة مع عدد من مواد البناء الأخرى ، يتم إنتاج منتجات السيليكات بجهد أقل. تتم العملية في الجيوب. هذا هو السبب في أنه يوصى بإنتاج السيليكات في بيئة صناعية. هذا يرجع إلى عدم وجود فوائد مع كميات صغيرة من المواد التي تم الحصول عليها..

كتل السيليكات مصنوعة من ثلاثة مكونات. يتم إنتاج السيليكات على أساس الجير الجوي عالي الجودة. يتم تمثيله بنسبة 8-12 في المائة من الكتلة الكلية.
مطلوب إضافة رمل الكوارتز. يتم تنظيفها ونخلها. مقدارها 88-92 بالمائة من الكتلة الكلية للمنتج..

لتماسك بقية المكونات معًا ، من الضروري استخدام الماء. بمساعدتها ، يتم ترطيب المنتجات المصنعة.
كما أنها تعزز موثوقية وقوة منتجات السيليكات عن طريق إضافة المعدلات.. إنهم يحسنون المواد. بالإضافة إلى ذلك ، يُظهر أنه يقوم بإضافة أصباغ مقاومة للقلويات ، والتي بسببها تكتسب الكتل الرمادية البيضاء عددًا كبيرًا من الظلال..
في بعض الأحيان يتم استخدام الرماد بدلاً من إضافة رمل الكوارتز. قد تكون هناك خيارات مختلفة. عند 75 في المائة من الرماد ، يضاف 25 في المائة من الجير.
في السنوات الأخيرة ، بدأ الطلب على المباني السكنية في الزيادة من المواد التي تواجهها. ويرجع ذلك إلى سرعة تشييد المبنى ، وعدم وجود تكاليف مالية كبيرة ، ومؤشرات وزن تساوي 3.7 إلى 5.8 كجم.

يتميز الخيار الأخير بمظهر جذاب. خارجياً ، يتضح أن الهيكل مشابه للبناء المصنوع من الطوب الطبيعي والكتل الحجرية.
يتم استخدام المواد في بناء ليس فقط المباني من أي عدد من الطوابق. يتم نصب المرائب وورش العمل والمطابخ الصيفية وغرف الغلايات والأسوار من السيليكات وأنواع المواجهة.
تستخدم المنتجات في بناء المنشآت الصناعية الصغيرة ، وبناء الأقواس ، والعناصر المعمارية الأخرى ، وقنوات التهوية. تستخدم المنتجات أيضًا في مواجهة الأعمال..
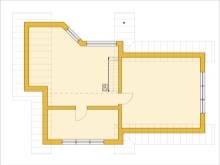
مشاريع البيت
منزل خاص من الطوب يبدو جميلًا وأصليًا. يتميز بعمر خدمة طويل ، مما يجعل العديد من الروس يفضلون هذا الخيار للمباني السكنية..
يتميز المبنى السكني الكبير بأصالته حيث يتسع لعدد كبير من الناس. قد تكون هناك أيضًا غرف ضيوف..

يمكن أن تتكون المنازل المبنية من الطوب الأبيض من طابق واحد أو طابقين. دعنا نفكر في هذه الخيارات بالتفصيل.
قصة واحدة
يختار العديد من مالكي المنازل منازل من طابق واحد. داخل المبنى ، يتم التفكير في كل شيء بأدق التفاصيل. الخيار التالي شائع بشكل خاص:
- قاعة كبيرة بمساحة 5 × 8 أمتار ، تستخدم لاستقبال الضيوف ؛
- بجانبه تم تجهيز الرواق.
- تقع عدة غرف نوم بالقرب من القاعة ، وستكون مريحة للبالغين والأطفال ؛
- يقع المطبخ على مسافة كبيرة من غرفة النوم والقاعة ، مما يقلل من خطر دخول الروائح الدخيلة إلى الغرف التي تنشأ أثناء الطهي ؛
- إذا رغبت في ذلك ، قم بتجهيز حمامات السباحة والأقبية وأقبية النبيذ والمزيد بالداخل.
من طابقين
تبدو المنازل المبنية من الطوب الأبيض جذابة. في الطابق الأرضي ، عادة ما يتم تجهيز غرف المرافق والمطبخ والصالة. يوجد في الطابق الثاني غرف نوم وغرف أطفال. حدد التصميم في كل حالة على حدة.

من أجل أن يقف الهيكل لفترة طويلة ، يظهر أنه يعزل المبنى من الداخل والخارج. لهذا ، يتم استخدام أنواع مختلفة من العزل. سيختار الجميع خيارًا مناسبًا لأنفسهم.
يوصى عادة لمنازل الطوب الأبيض بعزل السطح عن الخارج.. هذا يسمح لك بعدم تقليل المساحة الصالحة للاستخدام من المبنى. سيتشكل التكثف من الخارج وليس داخل المسكن.
تصميم الواجهة
تم تزيين المبنى بطرق مختلفة. يبدو كل خيار تصميم للواجهة جذابًا. يبدو المنزل المبني من الطوب الأبيض ذو السقف الرمادي أصليًا بشكل خاص. الخيار ذو السقف البني شائع أيضًا..

يمكن تغطية السطح بأي مادة تشطيب: جص ، تشطيب بحجر مواجه ، تثبيت انحياز. هناك العديد من الحلول الأخرى. يتم اختيارهم من قبل أصحابها اعتمادًا على تفضيلات ذوقهم وملاءتهم المالية. يجب ألا تكون النهاية أسوأ من السطح بدونها.
أمثلة جميلة
المظهر الخارجي للمباني البيضاء ذكي واحتفالي. يمكنك استكمالها بألوان أخرى. هذا يجعل المبنى مشرقًا ، ويساهم في إنشاء حل أسلوبي معين.. دعونا نفكر في بعض الأمثلة الجميلة بمزيد من التفصيل..
- القوطية لفترة طويلة جذبت انتباه الناس الذين يقيمون المباني السكنية من الطوب الأبيض. لتزيين المباني باستخدام تباين الألوان ، يظهر الحجر من مواد مختلفة. يمكن أيضًا لصق السطح.
لا يزال الكثير من الناس يستخدمون القوطية لتزيين السطح. إن وجود الثغرات المستطيلة ، مثل النوافذ ، والأقواس المرتفعة ملفت للنظر. تزوير مخرم تبدو أصلية في التصميم. هذا يساهم في الحصول على مبنى غير عادي وغامض..
- جذابة في الديكور الباروكي. يتميز المبنى بأباهته. تستخدم المباني على شكل أبراج قديمة ذات نوافذ كبيرة لتزيين الواجهة..
التصميم جميل وأصلي. إن وجود الأسقف والشرفات المحاطة بتزوير منحوت أمر رائع. يكمن الاختلاف بين المبنى في وجود درجات مهيبة وأعمدة وخطوط ناعمة. تساهم جميع العناصر في اكتساب مظهر ملكي.
- المبنى يبدو جميلاً من حيث الطراز بروفانس. في تشييد المباني ، يتم استخدام المواد الطبيعية المطلية بظلال دافئة. السقف مجهز بألواح خشبية.

منازل من الطوب الأبيض
تبدو المنازل المبنية من الطوب الأبيض جميلة ومبتكرة. يتم بناء المباني بسرعة. كل مادة متضمنة في البناء لها خصائصها الخاصة ، والتي على أساسها يقوم الشخص الذي يريد أن يصبح صاحب منزل بالاختيار..
المميزات والعيوب
تتميز المنازل المبنية من الطوب الأبيض بعدد كبير من الجوانب الإيجابية..
منازل الطوب الأبيض لها بعض العيوب.
خيارات المواد
يكمن الفرق بين منتجات السيليكات في السماكة. لا تتم ملاحظة المعايير القياسية فقط فيما يتعلق بالأحجار الاصطناعية المزخرفة. المنتجات المجوفة والصلبة شائعة أيضًا..
عمارات من سيليكات الطوب تحظى بشعبية. يتم تقديم المواد في عدة فئات. منتج واحد يتميز بطول 25 سم وعرض 12 سم وسمك 6.5 ملم. يتم استخدام منتج واحد ونصف ومزدوج لتقوية المباني..
الوزن مهم أيضًا عند الاختيار. الوزن الفردي 3.7 كجم. لمدة عام ونصف ، يتراوح الوزن من 4.2 كجم إلى 5 كجم.
بالمقارنة مع عدد من مواد البناء الأخرى ، يتم إنتاج منتجات السيليكات بجهد أقل. تتم العملية في الجيوب. هذا هو السبب في أنه يوصى بإنتاج السيليكات في بيئة صناعية. هذا يرجع إلى عدم وجود فوائد مع كميات صغيرة من المواد التي تم الحصول عليها..
كتل السيليكات مصنوعة من ثلاثة مكونات. يتم إنتاج السيليكات على أساس الجير الجوي عالي الجودة. يتم تمثيله بنسبة 8-12 في المائة من الكتلة الكلية.
مطلوب إضافة رمل الكوارتز. يتم تنظيفها ونخلها. مقدارها 88-92 بالمائة من الكتلة الكلية للمنتج..
لتماسك بقية المكونات معًا ، من الضروري استخدام الماء. بمساعدتها ، يتم ترطيب المنتجات المصنعة.
كما أنها تعزز موثوقية وقوة منتجات السيليكات عن طريق إضافة المعدلات.. إنهم يحسنون المواد. بالإضافة إلى ذلك ، يُظهر أنه يقوم بإضافة أصباغ مقاومة للقلويات ، والتي بسببها تكتسب الكتل الرمادية البيضاء عددًا كبيرًا من الظلال..
في بعض الأحيان يتم استخدام الرماد بدلاً من إضافة رمل الكوارتز. قد تكون هناك خيارات مختلفة. عند 75 في المائة من الرماد ، يضاف 25 في المائة من الجير.
في السنوات الأخيرة ، بدأ الطلب على المباني السكنية في الزيادة من المواد التي تواجهها. ويرجع ذلك إلى سرعة تشييد المبنى ، وعدم وجود تكاليف مالية كبيرة ، ومؤشرات وزن تساوي 3.7 إلى 5.8 كجم.
يتميز الخيار الأخير بمظهر جذاب. خارجياً ، يتضح أن الهيكل مشابه للبناء المصنوع من الطوب الطبيعي والكتل الحجرية.
يتم استخدام المواد في بناء ليس فقط المباني من أي عدد من الطوابق. يتم نصب المرائب وورش العمل والمطابخ الصيفية وغرف الغلايات والأسوار من السيليكات وأنواع المواجهة.
تستخدم المنتجات في بناء المنشآت الصناعية الصغيرة ، وبناء الأقواس ، والعناصر المعمارية الأخرى ، وقنوات التهوية. تستخدم المنتجات أيضًا في مواجهة الأعمال..
مشاريع البيت
منزل خاص من الطوب يبدو جميلًا وأصليًا. يتميز بعمر خدمة طويل ، مما يجعل العديد من الروس يفضلون هذا الخيار للمباني السكنية..
يتميز المبنى السكني الكبير بأصالته حيث يتسع لعدد كبير من الناس. قد تكون هناك أيضًا غرف ضيوف..
يمكن أن تتكون المنازل المبنية من الطوب الأبيض من طابق واحد أو طابقين. دعنا نفكر في هذه الخيارات بالتفصيل.
قصة واحدة
يختار العديد من مالكي المنازل منازل من طابق واحد. داخل المبنى ، يتم التفكير في كل شيء بأدق التفاصيل. الخيار التالي شائع بشكل خاص:
من طابقين
تبدو المنازل المبنية من الطوب الأبيض جذابة. في الطابق الأرضي ، عادة ما يتم تجهيز غرف المرافق والمطبخ والصالة. يوجد في الطابق الثاني غرف نوم وغرف أطفال. حدد التصميم في كل حالة على حدة.
من أجل أن يقف الهيكل لفترة طويلة ، يظهر أنه يعزل المبنى من الداخل والخارج. لهذا ، يتم استخدام أنواع مختلفة من العزل. سيختار الجميع خيارًا مناسبًا لأنفسهم.
يوصى عادة لمنازل الطوب الأبيض بعزل السطح عن الخارج.. هذا يسمح لك بعدم تقليل المساحة الصالحة للاستخدام من المبنى. سيتشكل التكثف من الخارج وليس داخل المسكن.
تصميم الواجهة
تم تزيين المبنى بطرق مختلفة. يبدو كل خيار تصميم للواجهة جذابًا. يبدو المنزل المبني من الطوب الأبيض ذو السقف الرمادي أصليًا بشكل خاص. الخيار ذو السقف البني شائع أيضًا..
يمكن تغطية السطح بأي مادة تشطيب: جص ، تشطيب بحجر مواجه ، تثبيت انحياز. هناك العديد من الحلول الأخرى. يتم اختيارهم من قبل أصحابها اعتمادًا على تفضيلات ذوقهم وملاءتهم المالية. يجب ألا تكون النهاية أسوأ من السطح بدونها.
أمثلة جميلة
المظهر الخارجي للمباني البيضاء ذكي واحتفالي. يمكنك استكمالها بألوان أخرى. هذا يجعل المبنى مشرقًا ، ويساهم في إنشاء حل أسلوبي معين.. دعونا نفكر في بعض الأمثلة الجميلة بمزيد من التفصيل..
لا يزال الكثير من الناس يستخدمون القوطية لتزيين السطح. إن وجود الثغرات المستطيلة ، مثل النوافذ ، والأقواس المرتفعة ملفت للنظر. تزوير مخرم تبدو أصلية في التصميم. هذا يساهم في الحصول على مبنى غير عادي وغامض..
التصميم جميل وأصلي. إن وجود الأسقف والشرفات المحاطة بتزوير منحوت أمر رائع. يكمن الاختلاف بين المبنى في وجود درجات مهيبة وأعمدة وخطوط ناعمة. تساهم جميع العناصر في اكتساب مظهر ملكي.