
يمكن أن تكون مشاريع المنازل البولندية ذات فائدة كبيرة لمطور خاص. منازل ريفية من طابق واحد وطابقين على الطراز البولندي مع شرفة أو شرفة أرضية زجاجية تستحق الاهتمام. ومع ذلك ، سيتعين علينا تحليل إيجابياتهم وسلبياتهم ، بالإضافة إلى ميزات المشاريع المختلفة.
ملامح منزل على الطراز البولندي
أهم ميزة لها هي استخدام المواد الطبيعية تمامًا.. لا يتم استخدام أي عناصر اصطناعية أو يتم تقديمها بشكل محدود للغاية. غالبًا ما يكون لسقف المنازل البولندية تكوين معقد ، ولكن يمكن أن يكون هناك أيضًا أسقف مسطحة عادية – فهي مقبولة ضمن الطراز. لتزيين الواجهات تستخدم الخشب والحجر. لكن يمكن أيضًا استخدام تقليدهم.. تم بناء المنزل “البولندي” الكلاسيكي في طابق واحد أو طابقين. بالنسبة له ، مساحة صغيرة نموذجية.

ليس من المناسب جدًا تجهيز مرآب مدمج أو تحت الأرض – وهذا لا يتوافق مع شرائع الأسلوب. لكن العدد الكبير من النوافذ التي تضمن الإضاءة الملائمة والراحة مرحب به تمامًا. عادة ما تكون الجدران مزينة باللون الرمادي أو البني أو الأبيض أو البيج..

إلى جانب القاعدة ، يمكن أيضًا استخدام لون إضافي. يجب أن يتناسب مع لون السقف. داخل المنزل ، تلعب غرفة المعيشة الدور الرئيسي ، والتي يجب أن تكون كبيرة. حجم كبير متاح أيضا للمطابخ.
لكن غرف النوم في المنازل البولندية صغيرة ، لكنها مليئة بالضوء والراحة..
المميزات والعيوب
تم بالفعل تحديد المزايا المهمة لمشاريع المنازل البولندية جزئيًا. إنها خفيفة ومحبوبة ومُحسّنة للمعيشة وليست أنيقة للبناء. بالتأكيد لن تبدو مملة حتى بعد 10-20 سنة. هذه المساكن مثالية للشباب الذين يبدأون منازلهم. سيكون من الممكن وضعها حتى في منطقة صغيرة..

التخطيط المجاني هو ميزة موضوعية أخرى لهذه الأكواخ.. يمكنك إظهارها بأمان لأشخاص آخرين وعدم الشعور بالخجل على الإطلاق من اختيارك. لن تكلف أعمال البناء والتركيب الكثير.
ومع ذلك ، يجب على المرء أن يفهم أن المشاريع الجاهزة “كما هو الحال في بولندا” سيظل من الصعب تنفيذها في الظروف المحلية. والسبب في ذلك هو خصوصية مواد البناء والمعايير والمناخية وغيرها من الميزات. يمكن أن يكون التكيف مكلفًا للغاية.
مشاريع منازل من طابق واحد
تعتبر خطط الكوخ بارتفاع طابق واحد جذابة للغاية لمعظم المطورين. ومع ذلك ، يتم استكمال أحد هذه الخيارات ، خلافًا للعرف ، بمرآب. صحيح ، في ظروف روسيا ، هذه الإضافة مناسبة تمامًا ، نظرًا للمسافات المتزايدة وعدم القدرة على الاستغناء عن السيارة. الواجهة مشطبة بالجبس الخفيف والخشب. تم تقديم المرآب بمهارة باستخدام نفس تصميم المبنى الرئيسي..

سيتم تجهيز ما يصل إلى 3 غرف نوم في العلية. كان هناك أيضا مكان للحمام. خزانة الملابس صغيرة – لكن حقيقة أن فريق المهندسين المعماريين لم ينسها يعد إضافة واضحة. يمكن تجهيز الطابق الأرضي بغرفة معيشة مساعدة (ولكن يمكن أيضًا تخصيصها للضيوف). الحل البديل هو تجهيز مكتب هناك أو غرفة ألعاب للأطفال.

يمكن استكمال المنزل الكلاسيكي ، “كما هو الحال في بولندا تقريبًا” ، بشرفة. يعتمد هذا المشروع على استخدام لبنات البناء الخزفية. الواجهة مغطاة بجص خفيف. الصالة خالية من الفواصل الداخلية وتنقسم إلى مناطق باستخدام الحلول الزخرفية. تم تركيب حمام مع دش في منطقة النهار لمنزل جميل.
ميزات أخرى:
- 3 غرف نوم مخصصة للترفيه في هذا المشروع ؛
- يتم توفير حمام إضافي ؛
- التراس المغطى مناسب للاسترخاء ، بغض النظر عن الموسم ؛
- يتم الوصول إلى الشرفة إما من غرفة الطعام أو من الحديقة.

يمكنك أيضًا استخدام مجموعة متنوعة من المنازل البولندية ذات الشرفات الأرضية الزجاجية.. ميزة نموذجية للغاية هي معدات المسكن مع سقف الجملون وشرفة كبيرة. في أحد هذه المشاريع ، يوجد فصل واضح بين المطبخ والصالة ، بينما المطبخ نفسه على اتصال كامل بالشرفة. الوحدة الدلالية المركزية للمنزل هي الموقد. تتيح الشرفة الأرضية المفتوحة الوصول إلى الحديقة ، مع توفير الوصول إلى ضوء الشمس من الخارج.
يمكن أيضًا بناء المنازل البولندية باستخدام الهياكل الخشبية. يتضمن أحد هذه الخيارات:
- ترتيب الأساس الشريط.
- أرضيات على عوارض خشبية
- تغطية السقف بالبلاط المعدني أو الأسمنتي والرمل ؛
- مرآب بطول 18 مترًا
- دهليز 4.1 متر مربع. م ؛
- غرفة معيشة 41.3 متر مربع. م.
تصميم منازل من طابقين
يمكن أن تكون شديدة التنوع. أحد الخيارات يعني الوصول إلى مساحة 180 مترًا مربعًا. م هذا المنزل المكون من طابقين مبني من الخرسانة الخلوية ولا يحتوي على مرآب. بفضل 3 حمامات ، سيكون المسكن مريحًا حتى لعائلة كبيرة. في غرفة المعيشة بمساحة 45 مترًا مربعًا. م يمكن بسهولة جمع جميع أفراد الأسرة.

ستكون قادرًا على طهي الطعام في المطبخ بحجم 20 “مربعًا” بهدوء تام. حتى مع الطهي النشط ، يمكنك في نفس الوقت الجلوس لشخص ما على الغداء – ولن يتدخل هؤلاء الأشخاص في بعضهم البعض. تظهر هنا نافذة كبيرة وشرفة أرضية كمرفقات. تم تجهيز الشرفة في الطابق الثاني ، وهي ممتعة للغاية من الناحية الجمالية.. بفضل الزجاج البانورامي ، ستكون معظم غرف المنزل خفيفة ومريحة.

يمكنك أيضًا اختيار مشروع منزل بولندي من طابقين مع حمامين فقط ، بما في ذلك أرضيات متجانسة مسبقة الصنع. المطبخ في هذه الحالة أصغر من المطبخ السابق ، فقط حوالي 11 مترًا مربعًا. م ، ولكن بالنسبة لمعظم شقق المدينة ، يعد هذا رقمًا بعيد المنال تقريبًا. تشهد أيضًا إمكانية تجهيز 4 غرف نوم كاملة لصالح هذا المفهوم. تبلغ مساحة غرفة المعيشة 22.5 مترًا مربعًا تقريبًا. يتم الحصول على المساحة الإجمالية حتى 1 متر مربع. م أكثر مما كانت عليه في الإصدار السابق.
قد تكون الجدة اللطيفة للكثيرين عبارة عن منزل بولندي مكون من طابقين مصنوع من الخرسانة الخلوية بمساحة 190 مترًا مربعًا. م.مميزاته:
- رفض المصممين من المرآب ؛
- ترتيب مطبخ واسع بمساحة 14 مترًا مربعًا. م ؛
- غرفة معيشة 33 متر
- وجود الشرفة
- إضافة نافذة كبيرة
- ترتيب 5 غرف نوم مريحة.

نسخة أخرى من منزل من طابقين في النسخة البولندية تبدأ من شرفة طولها 3 أمتار ، حيث يدخل الناس إلى قاعة طولها 9 أمتار.. تبلغ مساحة غرفة الضيوف الواقعة في الطابق الأرضي 12 مترًا مربعًا. م تمت إزالة الفواصل بين غرفة المعيشة والمطبخ ، لتشكيل مساحة غير قابلة للتجزئة. وأيضا أدناه يجهزون:
- منطقة خلع الملابس؛
- غرفة الغسيل؛
- حمام؛
- الضوء الثاني.
مزود بمصباح ثاني طبعا وبالطابق العلوي. لكن الدور الرئيسي يلعبه 3 غرف نوم من نفس الحجم. تبلغ مساحة قاعة الدرج 7.5 متر مربع. مساحة مخصصة لغرفتي ملابس صغيرتين.
يجب أيضًا الانتباه إلى خزانة الملابس الأكبر والحمام..

نسخة بديلة من منزل بولندي مكون من طابقين تبدأ من رواق يبلغ ارتفاعه 5 أمتار. تبلغ مساحة المطبخ ومنطقة تناول الطعام 25 مترًا مربعًا تقريبًا. م حجم غرفة المعيشة 27 مترا مربعا. م ولكن أولاً ، يدخل كل من يدخل الدهليز المتواضع. وكذلك يوجد في الطابق الأرضي خزانة ملابس وغرفة مرجل وقاعة مدخل وحمام..
في الطابق الثاني بالإضافة إلى غرف النوم يوجد:
- حمام؛
- حمام؛
- حجرة المؤن.
- الضوء الثاني
- صالة 12 متر.

مشاريع البيت البولندي
يمكن أن تكون مشاريع المنازل البولندية ذات فائدة كبيرة لمطور خاص. منازل ريفية من طابق واحد وطابقين على الطراز البولندي مع شرفة أو شرفة أرضية زجاجية تستحق الاهتمام. ومع ذلك ، سيتعين علينا تحليل إيجابياتهم وسلبياتهم ، بالإضافة إلى ميزات المشاريع المختلفة.
ملامح منزل على الطراز البولندي
أهم ميزة لها هي استخدام المواد الطبيعية تمامًا.. لا يتم استخدام أي عناصر اصطناعية أو يتم تقديمها بشكل محدود للغاية. غالبًا ما يكون لسقف المنازل البولندية تكوين معقد ، ولكن يمكن أن يكون هناك أيضًا أسقف مسطحة عادية – فهي مقبولة ضمن الطراز. لتزيين الواجهات تستخدم الخشب والحجر. لكن يمكن أيضًا استخدام تقليدهم.. تم بناء المنزل “البولندي” الكلاسيكي في طابق واحد أو طابقين. بالنسبة له ، مساحة صغيرة نموذجية.
ليس من المناسب جدًا تجهيز مرآب مدمج أو تحت الأرض – وهذا لا يتوافق مع شرائع الأسلوب. لكن العدد الكبير من النوافذ التي تضمن الإضاءة الملائمة والراحة مرحب به تمامًا. عادة ما تكون الجدران مزينة باللون الرمادي أو البني أو الأبيض أو البيج..
إلى جانب القاعدة ، يمكن أيضًا استخدام لون إضافي. يجب أن يتناسب مع لون السقف. داخل المنزل ، تلعب غرفة المعيشة الدور الرئيسي ، والتي يجب أن تكون كبيرة. حجم كبير متاح أيضا للمطابخ.
لكن غرف النوم في المنازل البولندية صغيرة ، لكنها مليئة بالضوء والراحة..
المميزات والعيوب
تم بالفعل تحديد المزايا المهمة لمشاريع المنازل البولندية جزئيًا. إنها خفيفة ومحبوبة ومُحسّنة للمعيشة وليست أنيقة للبناء. بالتأكيد لن تبدو مملة حتى بعد 10-20 سنة. هذه المساكن مثالية للشباب الذين يبدأون منازلهم. سيكون من الممكن وضعها حتى في منطقة صغيرة..
التخطيط المجاني هو ميزة موضوعية أخرى لهذه الأكواخ.. يمكنك إظهارها بأمان لأشخاص آخرين وعدم الشعور بالخجل على الإطلاق من اختيارك. لن تكلف أعمال البناء والتركيب الكثير.
ومع ذلك ، يجب على المرء أن يفهم أن المشاريع الجاهزة “كما هو الحال في بولندا” سيظل من الصعب تنفيذها في الظروف المحلية. والسبب في ذلك هو خصوصية مواد البناء والمعايير والمناخية وغيرها من الميزات. يمكن أن يكون التكيف مكلفًا للغاية.
مشاريع منازل من طابق واحد
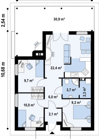
تعتبر خطط الكوخ بارتفاع طابق واحد جذابة للغاية لمعظم المطورين. ومع ذلك ، يتم استكمال أحد هذه الخيارات ، خلافًا للعرف ، بمرآب. صحيح ، في ظروف روسيا ، هذه الإضافة مناسبة تمامًا ، نظرًا للمسافات المتزايدة وعدم القدرة على الاستغناء عن السيارة. الواجهة مشطبة بالجبس الخفيف والخشب. تم تقديم المرآب بمهارة باستخدام نفس تصميم المبنى الرئيسي..
سيتم تجهيز ما يصل إلى 3 غرف نوم في العلية. كان هناك أيضا مكان للحمام. خزانة الملابس صغيرة – لكن حقيقة أن فريق المهندسين المعماريين لم ينسها يعد إضافة واضحة. يمكن تجهيز الطابق الأرضي بغرفة معيشة مساعدة (ولكن يمكن أيضًا تخصيصها للضيوف). الحل البديل هو تجهيز مكتب هناك أو غرفة ألعاب للأطفال.
يمكن استكمال المنزل الكلاسيكي ، “كما هو الحال في بولندا تقريبًا” ، بشرفة. يعتمد هذا المشروع على استخدام لبنات البناء الخزفية. الواجهة مغطاة بجص خفيف. الصالة خالية من الفواصل الداخلية وتنقسم إلى مناطق باستخدام الحلول الزخرفية. تم تركيب حمام مع دش في منطقة النهار لمنزل جميل.
ميزات أخرى:
يمكنك أيضًا استخدام مجموعة متنوعة من المنازل البولندية ذات الشرفات الأرضية الزجاجية.. ميزة نموذجية للغاية هي معدات المسكن مع سقف الجملون وشرفة كبيرة. في أحد هذه المشاريع ، يوجد فصل واضح بين المطبخ والصالة ، بينما المطبخ نفسه على اتصال كامل بالشرفة. الوحدة الدلالية المركزية للمنزل هي الموقد. تتيح الشرفة الأرضية المفتوحة الوصول إلى الحديقة ، مع توفير الوصول إلى ضوء الشمس من الخارج.
يمكن أيضًا بناء المنازل البولندية باستخدام الهياكل الخشبية. يتضمن أحد هذه الخيارات:
تصميم منازل من طابقين
يمكن أن تكون شديدة التنوع. أحد الخيارات يعني الوصول إلى مساحة 180 مترًا مربعًا. م هذا المنزل المكون من طابقين مبني من الخرسانة الخلوية ولا يحتوي على مرآب. بفضل 3 حمامات ، سيكون المسكن مريحًا حتى لعائلة كبيرة. في غرفة المعيشة بمساحة 45 مترًا مربعًا. م يمكن بسهولة جمع جميع أفراد الأسرة.
ستكون قادرًا على طهي الطعام في المطبخ بحجم 20 “مربعًا” بهدوء تام. حتى مع الطهي النشط ، يمكنك في نفس الوقت الجلوس لشخص ما على الغداء – ولن يتدخل هؤلاء الأشخاص في بعضهم البعض. تظهر هنا نافذة كبيرة وشرفة أرضية كمرفقات. تم تجهيز الشرفة في الطابق الثاني ، وهي ممتعة للغاية من الناحية الجمالية.. بفضل الزجاج البانورامي ، ستكون معظم غرف المنزل خفيفة ومريحة.
يمكنك أيضًا اختيار مشروع منزل بولندي من طابقين مع حمامين فقط ، بما في ذلك أرضيات متجانسة مسبقة الصنع. المطبخ في هذه الحالة أصغر من المطبخ السابق ، فقط حوالي 11 مترًا مربعًا. م ، ولكن بالنسبة لمعظم شقق المدينة ، يعد هذا رقمًا بعيد المنال تقريبًا. تشهد أيضًا إمكانية تجهيز 4 غرف نوم كاملة لصالح هذا المفهوم. تبلغ مساحة غرفة المعيشة 22.5 مترًا مربعًا تقريبًا. يتم الحصول على المساحة الإجمالية حتى 1 متر مربع. م أكثر مما كانت عليه في الإصدار السابق.
قد تكون الجدة اللطيفة للكثيرين عبارة عن منزل بولندي مكون من طابقين مصنوع من الخرسانة الخلوية بمساحة 190 مترًا مربعًا. م.مميزاته:
نسخة أخرى من منزل من طابقين في النسخة البولندية تبدأ من شرفة طولها 3 أمتار ، حيث يدخل الناس إلى قاعة طولها 9 أمتار.. تبلغ مساحة غرفة الضيوف الواقعة في الطابق الأرضي 12 مترًا مربعًا. م تمت إزالة الفواصل بين غرفة المعيشة والمطبخ ، لتشكيل مساحة غير قابلة للتجزئة. وأيضا أدناه يجهزون:
مزود بمصباح ثاني طبعا وبالطابق العلوي. لكن الدور الرئيسي يلعبه 3 غرف نوم من نفس الحجم. تبلغ مساحة قاعة الدرج 7.5 متر مربع. مساحة مخصصة لغرفتي ملابس صغيرتين.
يجب أيضًا الانتباه إلى خزانة الملابس الأكبر والحمام..
نسخة بديلة من منزل بولندي مكون من طابقين تبدأ من رواق يبلغ ارتفاعه 5 أمتار. تبلغ مساحة المطبخ ومنطقة تناول الطعام 25 مترًا مربعًا تقريبًا. م حجم غرفة المعيشة 27 مترا مربعا. م ولكن أولاً ، يدخل كل من يدخل الدهليز المتواضع. وكذلك يوجد في الطابق الأرضي خزانة ملابس وغرفة مرجل وقاعة مدخل وحمام..
في الطابق الثاني بالإضافة إلى غرف النوم يوجد: