
تم العثور على مشاريع منازل من طابقين وطابق واحد 7 × 7 أمتار بأعداد كبيرة. عند اختيارهم ، يجب الانتباه إلى الخيارات المختلفة لهياكل الإطارات المصنوعة من الخشب والطوب.. سيكون عليك أيضًا التفكير في تصميم المنازل ذات الشرفات والنوافذ الكبيرة والشرفات الأرضية والسندرات..
الخصائص
غالبًا ما يتم اختيار مشاريع 7 × 7 عندما يكون من الضروري تجهيز قطعة أرض متواضعة. يمكنك التغلب على قيود المساحة عن طريق إضافة علية أو حتى طابق علوي كامل الطول.. المساحة الإجمالية صغيرة نسبيًا ، مما يجعل من الممكن حجز أماكن للترفيه الصيفي وأعمال الحديقة حتى مع وجود مساحة محدودة. بالإضافة إلى ذلك ، فإن المبنى 7 × 7 مرن نسبيًا بالفعل ويمكن تكييفه ليناسب أي احتياجات. إذا كنت لا تسعى جاهدة لإنشاء سقف ذي شكل معقد ، ولكنك تتماشى مع الحلول الموحدة ، فيمكنك أيضًا توفير الوقت والمال ، وتقليل كثافة اليد العاملة في العمل.

ومع ذلك ، فإن المشاريع الفردية هي أيضا وثيقة الصلة بالموضوع. إنها تجعل من الممكن استخدام مزايا منطقة معينة بأفضل طريقة لإخماد عيوبها.. ينتبه الخبراء دائمًا إلى أن الخصائص المناخية للتضاريس وخصائص التربة يجب أن تكون في المقدمة.. لكل منطقة محددة ، يتم حساب معلمات الحماية من الظروف الخارجية بشكل فردي. في حالة الحاجة الملحة ، يتم استكمال المنازل 7 × 7 بمباني خارجية أخرى.

يناسب المبنى المكون من طابق واحد كبار السن أو عائلة صغيرة بشكل أفضل.. ومع ذلك ، حتى مع وجود ميزانية محدودة ، تسمح لك العلية بوضع أماكن إضافية. إذا خصصت مبلغًا كبيرًا وقمت ببناء طابق ثانٍ بالحجم الكامل ، يمكنك ضمان مستوى خاص من الراحة. تجبرك مساحة 7 × 7 على توخي الحذر الشديد في تحديد عدد الغرف والغرض منها. تم وضع هذه النقطة جيدًا في الخطط القياسية ، وليس من الضروري تغييرها دون مبرر بالغ الأهمية..
مشاريع المرآب
يمكن استكمال المسكن الذي يبلغ عرضه 7 أمتار بمساحة لوقوف السيارات.. من اختيارك:
- كامتداد
- في غرفة مرافق منفصلة ؛
- في القبو.

لا تفترض أن المرآب في المنزل يمكن صنعه بنفس الطريقة مثل سقيفة بسيطة أو كتلة المرافق. حتى مع وجود حمام مرفق ، فليس من الصحيح تمامًا مقارنته. التهوية الشاملة أمر حتمي هناك. يمكن استخدام جزء المرآب ليس فقط للسيارة. غالبًا ما يتم استخدامه لتجهيز ورشة عمل أو مجمع غلاية ، وهو أمر معقول جدًا.

يمكنك بناء منزل 7×7 م مع مرآب لتصليح السيارات من عوارض جانبية أو ملصقة. يعتمد الاختيار بينهما إلى حد كبير على ذوقك الخاص والفروق الدقيقة التقنية. يزيد الترابط بشكل كبير من قوة الهيكل مقارنة بقوة مادة متجانسة. يضمن توحيد تبخر الرطوبة توزيعه المنتظم في جميع أنحاء السماكة بأكملها. تعتبر المواد الموصوفة أرخص وأكثر عملية ، ولكن يجب التعامل مع جودتها بعناية فائقة حتى لا تخطئ.

غالبًا ما يتعين عليك الاختيار بين المنازل المبنية من الطوب والكتل. الخرسانة الخلوية أخف من الطوب عالي الجودة. لكن في الوقت نفسه ، غالبًا ما يتم التشكيك في قوتها. بالإضافة إلى ذلك ، فإن العديد من الكتل لا تتحمل الأحمال الموجبة بشكل سيئ. في معظم الحالات ، يتم الاختيار بطريقة حل وسط ، لأن جميع المواد لها خصائصها وعيوبها..
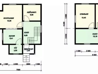
خطط البيت مع العلية
قد يتضمن التخطيط النموذجي لمثل هذا المبنى تخصيص المباني التالية في الطابق الأرضي:
- مطابخ.
- غرفة المرجل
- غرف نوم؛
- الرواق.
- غرفة المعيشة؛
- الحمامات.

الطبقة الثانية محجوزة عادة لزوج من غرف النوم وقاعة. في الجزء السفلي ، لا يزال يتم تجهيز رواق بمساحة صغيرة نسبيًا.. يوفر حل بديل للترتيب:
- مطابخ.
- غرفة المعيشة؛
- غرف نوم.

في أغلب الأحيان ، عند بناء منازل ريفية ذات نوافذ كبيرة ، يتعين عليك الاختيار بين الهياكل المصنوعة من الطوب أو الخرسانة الرغوية أو الهياكل الخرسانية الهوائية. يجب اتخاذ القرار بعناية فائقة. يتمتع المبنى الحجري بميزة لا شك فيها أنه يبدو تقليديًا ومثيرًا للإعجاب. ومع ذلك ، في هذه الحالة ، سيتعين عليك تحمل قدر كبير من العمل اليدوي. من الناحية الاقتصادية ، تفوز الخرسانة الرغوية بشكل مقنع تمامًا.

الشيء نفسه ينطبق على السعة الحرارية. حتى مع وجود مستوى مماثل من العزل في منزل خرساني رغوي ، يجب استهلاك قدر أقل بكثير من الحرارة مقارنة بالمبنى المصنوع من الطوب الخزفي الممتاز. ولكن مع قوة الموقف هو عكس ذلك: هنا بالفعل يتم سحب المباني المبنية من الطوب إلى المقدمة.
يوصى ببنائها في المناطق ذات الظروف الزلزالية غير المواتية ، والخرسانة الرغوية والخرسانة الهوائية لها خصائص مماثلة إلى حد ما.
رسومات الشرفة
في الواقع ، تختلف المنازل ذات التراسات والشرفات قليلاً من حيث التخطيط. كل ما هو مطلوب هو استبدال المنطقة المفتوحة بامتداد صغير مغطى أثناء البناء. حتى الأساس لذلك ليس مطلوبًا في كثير من الأحيان ، وحتى بعد ذلك يتم استخدام أبسط الهياكل الداعمة.. يحتوي أحد الخيارات الممكنة لمنزل ريفي من طابق واحد على:
- غرفة نوم 11 متر
- تبلغ مساحة الضيوف 16.7 مترًا مربعًا. م ؛
- مطبخ 9 م 2.

إذا اخترت منزلًا من طابقين بقياس 7 × 7 أمتار ، فيمكنك تجهيزه بما يلي:
- تبلغ مساحة الدهليز 4 أمتار مربعة تقريبًا. م ؛
- منطقة الضيوف 16 مترًا ؛
- بضع غرف نوم
- غرفة المعيشة؛
- شرفة صلبة جميلة.

في أغلب الأحيان ، يتم بناء المنازل الخشبية اليوم من البار. هذا الحل مقبول للمعيشة الموسمية وعلى مدار العام. ضمان استقرار ثابت للحرارة في جميع الظروف.
كما يتم ضمان جماليات المبنى والحد الأدنى من متطلبات تشطيبه. ومع ذلك ، عند صياغة واختيار المشاريع ، يتعين على المرء أن يتحمل انكماشًا كبيرًا..
مشاريع الشرفة
يمكن أن يحتوي المنزل الذي يبلغ ارتفاعه طابقين على:
- مطبخ؛
- حمام؛
- قاعة؛
- غرفة المعيشة؛
- غرفة المعيشة قاعة المدخل
- بضع غرف نوم
- قاعة إضافية في الطابق الثاني ؛
- شرفة.

يتيح لك خيار آخر للمباني المكونة من طابقين إبراز:
- حمام؛
- غرفة المرجل
- غرفة معيشة كبيرة؛
- قاعة مدخل مع نافذة 1.5×1.2 م ؛
- 3 غرف نوم صلبة (الطبقة العليا مخصصة لهم) ؛
- شرفة وشرفة من نفس المنطقة (حوالي 7.4 متر مربع).

من المهم جدًا التفكير في كيفية استخدام الشرفة بالضبط.. إن استخدامه حصريًا لتراكم الأشياء الضرورية في بعض الأحيان قد عفا عليه الزمن من الناحية الأخلاقية. تأكد من الانتباه إلى الاختيار بين التنفيذ المفتوح والمغلق. لا يعتمد هذا فقط على ملاءمة الشرفة لقضاء وقت الفراغ في فصل الشتاء ، ولكن أيضًا على خصوصيات ترتيبها ، والحاجة إلى العزل. عند اختيار خيار مفتوح ، لا يزال بإمكانك تنويع استخدام المظلات والمظلات بشكل كبير..

مشاريع منازل بحجم 7×7 متر
تم العثور على مشاريع منازل من طابقين وطابق واحد 7 × 7 أمتار بأعداد كبيرة. عند اختيارهم ، يجب الانتباه إلى الخيارات المختلفة لهياكل الإطارات المصنوعة من الخشب والطوب.. سيكون عليك أيضًا التفكير في تصميم المنازل ذات الشرفات والنوافذ الكبيرة والشرفات الأرضية والسندرات..
الخصائص
غالبًا ما يتم اختيار مشاريع 7 × 7 عندما يكون من الضروري تجهيز قطعة أرض متواضعة. يمكنك التغلب على قيود المساحة عن طريق إضافة علية أو حتى طابق علوي كامل الطول.. المساحة الإجمالية صغيرة نسبيًا ، مما يجعل من الممكن حجز أماكن للترفيه الصيفي وأعمال الحديقة حتى مع وجود مساحة محدودة. بالإضافة إلى ذلك ، فإن المبنى 7 × 7 مرن نسبيًا بالفعل ويمكن تكييفه ليناسب أي احتياجات. إذا كنت لا تسعى جاهدة لإنشاء سقف ذي شكل معقد ، ولكنك تتماشى مع الحلول الموحدة ، فيمكنك أيضًا توفير الوقت والمال ، وتقليل كثافة اليد العاملة في العمل.
ومع ذلك ، فإن المشاريع الفردية هي أيضا وثيقة الصلة بالموضوع. إنها تجعل من الممكن استخدام مزايا منطقة معينة بأفضل طريقة لإخماد عيوبها.. ينتبه الخبراء دائمًا إلى أن الخصائص المناخية للتضاريس وخصائص التربة يجب أن تكون في المقدمة.. لكل منطقة محددة ، يتم حساب معلمات الحماية من الظروف الخارجية بشكل فردي. في حالة الحاجة الملحة ، يتم استكمال المنازل 7 × 7 بمباني خارجية أخرى.
يناسب المبنى المكون من طابق واحد كبار السن أو عائلة صغيرة بشكل أفضل.. ومع ذلك ، حتى مع وجود ميزانية محدودة ، تسمح لك العلية بوضع أماكن إضافية. إذا خصصت مبلغًا كبيرًا وقمت ببناء طابق ثانٍ بالحجم الكامل ، يمكنك ضمان مستوى خاص من الراحة. تجبرك مساحة 7 × 7 على توخي الحذر الشديد في تحديد عدد الغرف والغرض منها. تم وضع هذه النقطة جيدًا في الخطط القياسية ، وليس من الضروري تغييرها دون مبرر بالغ الأهمية..
مشاريع المرآب
يمكن استكمال المسكن الذي يبلغ عرضه 7 أمتار بمساحة لوقوف السيارات.. من اختيارك:
لا تفترض أن المرآب في المنزل يمكن صنعه بنفس الطريقة مثل سقيفة بسيطة أو كتلة المرافق. حتى مع وجود حمام مرفق ، فليس من الصحيح تمامًا مقارنته. التهوية الشاملة أمر حتمي هناك. يمكن استخدام جزء المرآب ليس فقط للسيارة. غالبًا ما يتم استخدامه لتجهيز ورشة عمل أو مجمع غلاية ، وهو أمر معقول جدًا.
يمكنك بناء منزل 7×7 م مع مرآب لتصليح السيارات من عوارض جانبية أو ملصقة. يعتمد الاختيار بينهما إلى حد كبير على ذوقك الخاص والفروق الدقيقة التقنية. يزيد الترابط بشكل كبير من قوة الهيكل مقارنة بقوة مادة متجانسة. يضمن توحيد تبخر الرطوبة توزيعه المنتظم في جميع أنحاء السماكة بأكملها. تعتبر المواد الموصوفة أرخص وأكثر عملية ، ولكن يجب التعامل مع جودتها بعناية فائقة حتى لا تخطئ.
غالبًا ما يتعين عليك الاختيار بين المنازل المبنية من الطوب والكتل. الخرسانة الخلوية أخف من الطوب عالي الجودة. لكن في الوقت نفسه ، غالبًا ما يتم التشكيك في قوتها. بالإضافة إلى ذلك ، فإن العديد من الكتل لا تتحمل الأحمال الموجبة بشكل سيئ. في معظم الحالات ، يتم الاختيار بطريقة حل وسط ، لأن جميع المواد لها خصائصها وعيوبها..
خطط البيت مع العلية
قد يتضمن التخطيط النموذجي لمثل هذا المبنى تخصيص المباني التالية في الطابق الأرضي:
الطبقة الثانية محجوزة عادة لزوج من غرف النوم وقاعة. في الجزء السفلي ، لا يزال يتم تجهيز رواق بمساحة صغيرة نسبيًا.. يوفر حل بديل للترتيب:
في أغلب الأحيان ، عند بناء منازل ريفية ذات نوافذ كبيرة ، يتعين عليك الاختيار بين الهياكل المصنوعة من الطوب أو الخرسانة الرغوية أو الهياكل الخرسانية الهوائية. يجب اتخاذ القرار بعناية فائقة. يتمتع المبنى الحجري بميزة لا شك فيها أنه يبدو تقليديًا ومثيرًا للإعجاب. ومع ذلك ، في هذه الحالة ، سيتعين عليك تحمل قدر كبير من العمل اليدوي. من الناحية الاقتصادية ، تفوز الخرسانة الرغوية بشكل مقنع تمامًا.
الشيء نفسه ينطبق على السعة الحرارية. حتى مع وجود مستوى مماثل من العزل في منزل خرساني رغوي ، يجب استهلاك قدر أقل بكثير من الحرارة مقارنة بالمبنى المصنوع من الطوب الخزفي الممتاز. ولكن مع قوة الموقف هو عكس ذلك: هنا بالفعل يتم سحب المباني المبنية من الطوب إلى المقدمة.
يوصى ببنائها في المناطق ذات الظروف الزلزالية غير المواتية ، والخرسانة الرغوية والخرسانة الهوائية لها خصائص مماثلة إلى حد ما.
رسومات الشرفة
في الواقع ، تختلف المنازل ذات التراسات والشرفات قليلاً من حيث التخطيط. كل ما هو مطلوب هو استبدال المنطقة المفتوحة بامتداد صغير مغطى أثناء البناء. حتى الأساس لذلك ليس مطلوبًا في كثير من الأحيان ، وحتى بعد ذلك يتم استخدام أبسط الهياكل الداعمة.. يحتوي أحد الخيارات الممكنة لمنزل ريفي من طابق واحد على:
إذا اخترت منزلًا من طابقين بقياس 7 × 7 أمتار ، فيمكنك تجهيزه بما يلي:
في أغلب الأحيان ، يتم بناء المنازل الخشبية اليوم من البار. هذا الحل مقبول للمعيشة الموسمية وعلى مدار العام. ضمان استقرار ثابت للحرارة في جميع الظروف.
كما يتم ضمان جماليات المبنى والحد الأدنى من متطلبات تشطيبه. ومع ذلك ، عند صياغة واختيار المشاريع ، يتعين على المرء أن يتحمل انكماشًا كبيرًا..
مشاريع الشرفة
يمكن أن يحتوي المنزل الذي يبلغ ارتفاعه طابقين على:
يتيح لك خيار آخر للمباني المكونة من طابقين إبراز:
من المهم جدًا التفكير في كيفية استخدام الشرفة بالضبط.. إن استخدامه حصريًا لتراكم الأشياء الضرورية في بعض الأحيان قد عفا عليه الزمن من الناحية الأخلاقية. تأكد من الانتباه إلى الاختيار بين التنفيذ المفتوح والمغلق. لا يعتمد هذا فقط على ملاءمة الشرفة لقضاء وقت الفراغ في فصل الشتاء ، ولكن أيضًا على خصوصيات ترتيبها ، والحاجة إلى العزل. عند اختيار خيار مفتوح ، لا يزال بإمكانك تنويع استخدام المظلات والمظلات بشكل كبير..