
منزل بمساحة 300 متر مربع هو خيار متعدد الاستخدامات للإسكان في الضواحي. هذه الأكواخ مثالية لإقامة مريحة لعائلة كبيرة. بالإضافة إلى ذلك ، سيكون من الممكن في منزل ريفي وضع جميع المناطق السكنية والاقتصادية والتقنية اللازمة.. يجدر النظر بمزيد من التفصيل في ميزات البيوت والخيارات الشعبية..
المميزات والعيوب
الكوخ الريفي هو نوع شائع من المساكن يحلم به كل شخص ثانٍ. تشمل مزايا المباني الخاصة ما يلي:

بالإضافة إلى ذلك ، تبلغ مساحة المنزل 300 متر مربع. م يمكن أن يكون لديك عدة حيوانات أليفة. بالطبع ، هناك بعض السلبيات..
من بين العيوب الشائعة في كوخ ريفي:

ومع ذلك ، يمكن إصلاح جميع العيوب المذكورة أعلاه بسهولة. العيب الرئيسي الوحيد لمنزل كبير هو الحاجة إلى التنظيف المستمر وفواتير المرافق الرائعة. خلاف ذلك ، يعد المنزل الخاص بمساحة 300 متر مربع خيارًا جيدًا لعائلة كبيرة..
خيارات التخطيط
خصوصية المنزل بمساحة 300 متر مربع أنه يمكن تقسيمه بأي طريقة مناسبة.. ضع في اعتبارك خيارات التخطيط الشائعة.
-
مشروع قياسي لعائلة كبيرة. يمكن أن يكون من طابق واحد أو طابقين. داخل المبنى ، يجب توفير غرف سكنية ومرافق لإقامة مريحة للمالكين..
-
منزل كعقار تجاري. في هذه الحالة ، من المهم توفير الأماكن الوظيفية اللازمة المقابلة للنشاط المختار. تجدر الإشارة على الفور إلى أن إنشاء مثل هذا المنزل سيتطلب مشروع تصميم كبير. لن تعمل الخيارات القياسية.
-
بيت تعيش فيه أكثر من أسرة. يمكنك بناء هيكل مركب ، وجعل مساحة المعيشة متماثلة. في الوقت نفسه ، سيكون للمنزل مدخلين: أحدهما لعائلة والآخر للآخر..

تحتوي مشاريع المنازل المكونة من 300 مربع أو أكثر على الكثير من ميزات التصميم. يتطلب تطوير مشروع للمباني المكونة من طابق واحد مراعاة متطلبات معينة ، يتم فرض متطلبات أخرى على المباني المكونة من طابقين. على سبيل المثال ، في حالة بناء منزل من طابقين ، سيكون من الضروري أيضًا توفير حلول الأرضيات في المشروع..

وأيضًا عند تطوير منزل وإنشاء حلول تخطيط ، يجب أن تأخذ في الاعتبار المواد التي سيتم تجميع الهيكل منها. غالبًا ما يتم بناء المنازل من:

أخيرًا ، عند اختيار مشروع لمنزل مستقبلي من طابق واحد أو طابقين ، من الضروري مراعاة الخصائص الرئيسية لمساحة المعيشة..
ستساعد المساحة المخططة بشكل صحيح في جعل منزلك ليس مريحًا فحسب ، بل جميلًا أيضًا..

تتطلب مساحة كبيرة من منزل ريفي مشروعًا كبيرًا. لذلك ، سيتعين على المهندسين المعماريين والمهندسين والمصممين أن يأخذوا في الاعتبار حتى أصغر التفاصيل والفروق الدقيقة..
أمثلة على المشاريع
سيصبح المنزل الذي تبلغ مساحته 300 متر مربع مكانًا مريحًا للمعيشة إذا اقتربت بعناية من إنشاء مشروع ، وعهد بالعمل على الخطط إلى المهنيين. ومع ذلك ، قبل ذلك ، يمكنك التفكير في الخيارات الشائعة..
تُظهر الصورة منزلًا قياسيًا من طابقين مع شرفة مخصصة تعمل كمكان للاسترخاء. سيصبح هذا المنزل الريفي مكانًا مريحًا ليس فقط للمالكين ، ولكن أيضًا للضيوف..

يبدو الخيار الثاني أبسط ، ولكن يوجد مرآب لتصليح السيارات. ميزة الكوخ هي الظلال البيضاء التي تجعل المبنى أنيقًا وعصريًا ، على الرغم من أسلوب التنفيذ الكلاسيكي..

هذا هو منزل سقف مسطح مبتكر عالي التقنية حقيقي. هذا الخيار مناسب لمحبي الحداثة والحلول غير القياسية. سيستغرق بناء هذه المباني الكثير من الوقت ، ولكن بعد الانتهاء من البناء ، سيحصل أصحابها على نتيجة ممتازة..

تُظهر الصورة الرابعة كوخًا حديثًا آخر به عناصر كلاسيكية وبيت ضيافة منفصل. من السمات المميزة للمشروع حمام السباحة والشرفة حيث يمكنك الاستمتاع بأمسيات ممتعة مع العائلة أو الأصدقاء في فصل الصيف.

وهنا منزل من طابق واحد تبلغ مساحته 300 مربع. يبدو المبنى قاسيًا بعض الشيء وهو أكثر ملاءمة للأشخاص الذين يخططون للتو لتكوين أسرهم الخاصة. يمكن تغيير واجهة المبنى في المستقبل..

شركات المقاولات على استعداد لتقديم عدد كبير من البيوت بمساحة 300 متر مربع أو أكثر. تقدم المنظمات المماثلة تشييد المباني من الحجر والطوب والسجلات ، ويمكنك أيضًا طلب مشروع فردي.
مراجعة مشاريع منازل بمساحة 300 متر مربع. م
منزل بمساحة 300 متر مربع هو خيار متعدد الاستخدامات للإسكان في الضواحي. هذه الأكواخ مثالية لإقامة مريحة لعائلة كبيرة. بالإضافة إلى ذلك ، سيكون من الممكن في منزل ريفي وضع جميع المناطق السكنية والاقتصادية والتقنية اللازمة.. يجدر النظر بمزيد من التفصيل في ميزات البيوت والخيارات الشعبية..
المميزات والعيوب
الكوخ الريفي هو نوع شائع من المساكن يحلم به كل شخص ثانٍ. تشمل مزايا المباني الخاصة ما يلي:
القدرة على عدم رؤية الجيران أو سماعهم ؛
مساحة معيشة كبيرة
موقع خاص
هواء نقي؛
قلة الضوضاء من الشارع
السعر المنخفض لكل متر مربع.
بالإضافة إلى ذلك ، تبلغ مساحة المنزل 300 متر مربع. م يمكن أن يكون لديك عدة حيوانات أليفة. بالطبع ، هناك بعض السلبيات..
من بين العيوب الشائعة في كوخ ريفي:
إصلاحات منتظمة على حساب أصحاب المنازل ؛
صيانة الإقليم
ضعف أداء البريد.
ومع ذلك ، يمكن إصلاح جميع العيوب المذكورة أعلاه بسهولة. العيب الرئيسي الوحيد لمنزل كبير هو الحاجة إلى التنظيف المستمر وفواتير المرافق الرائعة. خلاف ذلك ، يعد المنزل الخاص بمساحة 300 متر مربع خيارًا جيدًا لعائلة كبيرة..
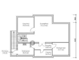
خيارات التخطيط
خصوصية المنزل بمساحة 300 متر مربع أنه يمكن تقسيمه بأي طريقة مناسبة.. ضع في اعتبارك خيارات التخطيط الشائعة.
مشروع قياسي لعائلة كبيرة. يمكن أن يكون من طابق واحد أو طابقين. داخل المبنى ، يجب توفير غرف سكنية ومرافق لإقامة مريحة للمالكين..
منزل كعقار تجاري. في هذه الحالة ، من المهم توفير الأماكن الوظيفية اللازمة المقابلة للنشاط المختار. تجدر الإشارة على الفور إلى أن إنشاء مثل هذا المنزل سيتطلب مشروع تصميم كبير. لن تعمل الخيارات القياسية.
بيت تعيش فيه أكثر من أسرة. يمكنك بناء هيكل مركب ، وجعل مساحة المعيشة متماثلة. في الوقت نفسه ، سيكون للمنزل مدخلين: أحدهما لعائلة والآخر للآخر..
تحتوي مشاريع المنازل المكونة من 300 مربع أو أكثر على الكثير من ميزات التصميم. يتطلب تطوير مشروع للمباني المكونة من طابق واحد مراعاة متطلبات معينة ، يتم فرض متطلبات أخرى على المباني المكونة من طابقين. على سبيل المثال ، في حالة بناء منزل من طابقين ، سيكون من الضروري أيضًا توفير حلول الأرضيات في المشروع..
وأيضًا عند تطوير منزل وإنشاء حلول تخطيط ، يجب أن تأخذ في الاعتبار المواد التي سيتم تجميع الهيكل منها. غالبًا ما يتم بناء المنازل من:
الخرسانة؛
الطوب.
منع؛
الخشب الرقائقي أو الأخشاب الأخرى.
أخيرًا ، عند اختيار مشروع لمنزل مستقبلي من طابق واحد أو طابقين ، من الضروري مراعاة الخصائص الرئيسية لمساحة المعيشة..
عدد الطوابق. عادة ما يتم وضع مساكن 300 مربع في طابق واحد أو طابقين. ومع ذلك ، فإن بعض الشركات على استعداد لبناء مبان من ثلاثة وأربعة طوابق..
المناطق والغرف. هذه اللحظة تحتاج إلى الكثير من الوقت. بالإضافة إلى غرف المعيشة والمنزلية ، يمكن للمنزل أن يوفر غرفًا للراحة: سينما وصالة ألعاب رياضية وغرف نوم للضيوف.
ستساعد المساحة المخططة بشكل صحيح في جعل منزلك ليس مريحًا فحسب ، بل جميلًا أيضًا..
تتطلب مساحة كبيرة من منزل ريفي مشروعًا كبيرًا. لذلك ، سيتعين على المهندسين المعماريين والمهندسين والمصممين أن يأخذوا في الاعتبار حتى أصغر التفاصيل والفروق الدقيقة..
أمثلة على المشاريع
سيصبح المنزل الذي تبلغ مساحته 300 متر مربع مكانًا مريحًا للمعيشة إذا اقتربت بعناية من إنشاء مشروع ، وعهد بالعمل على الخطط إلى المهنيين. ومع ذلك ، قبل ذلك ، يمكنك التفكير في الخيارات الشائعة..
تُظهر الصورة منزلًا قياسيًا من طابقين مع شرفة مخصصة تعمل كمكان للاسترخاء. سيصبح هذا المنزل الريفي مكانًا مريحًا ليس فقط للمالكين ، ولكن أيضًا للضيوف..
يبدو الخيار الثاني أبسط ، ولكن يوجد مرآب لتصليح السيارات. ميزة الكوخ هي الظلال البيضاء التي تجعل المبنى أنيقًا وعصريًا ، على الرغم من أسلوب التنفيذ الكلاسيكي..
هذا هو منزل سقف مسطح مبتكر عالي التقنية حقيقي. هذا الخيار مناسب لمحبي الحداثة والحلول غير القياسية. سيستغرق بناء هذه المباني الكثير من الوقت ، ولكن بعد الانتهاء من البناء ، سيحصل أصحابها على نتيجة ممتازة..
تُظهر الصورة الرابعة كوخًا حديثًا آخر به عناصر كلاسيكية وبيت ضيافة منفصل. من السمات المميزة للمشروع حمام السباحة والشرفة حيث يمكنك الاستمتاع بأمسيات ممتعة مع العائلة أو الأصدقاء في فصل الصيف.
وهنا منزل من طابق واحد تبلغ مساحته 300 مربع. يبدو المبنى قاسيًا بعض الشيء وهو أكثر ملاءمة للأشخاص الذين يخططون للتو لتكوين أسرهم الخاصة. يمكن تغيير واجهة المبنى في المستقبل..
شركات المقاولات على استعداد لتقديم عدد كبير من البيوت بمساحة 300 متر مربع أو أكثر. تقدم المنظمات المماثلة تشييد المباني من الحجر والطوب والسجلات ، ويمكنك أيضًا طلب مشروع فردي.