
بناء منزل 150 متر مربع. م ، من الضروري البدء في تطوير مشروع يأخذ في الاعتبار جميع رغبات مالك المستقبل. تقع هذه المباني في مناطق صغيرة نسبيًا ، حيث يمكنك ترتيب تصميم مريح لعائلة مكونة من 5 أشخاص.. تتمتع هذه المنازل بميزة مهمة – فهي مدمجة وعملية. نقدم لك خيارات لتصميم مسكن بمساحة 150 متر مربع حيث يمكنك تجهيز مرآب وعلية وتجسيد أي أفكار. يمكن تكييف المشاريع النموذجية مع المنطقة والتفضيلات الشخصية.
المميزات والعيوب
لبناء مثل هذا المنزل ، يمكنك اختيار كتلة رغوة ، والتي لها العديد من المزايا. هذه مادة ميسورة التكلفة توفر الاحتفاظ بالحرارة والمناخ الأمثل بالداخل. المزايا الرئيسية لهذا المسكن بمساحة 150 متر مربع. يمكن أن يُعزى م إلى فرصة تجسيد الفكرة الأكثر جرأة ، لتحقيق كل ما كنت تحلم به. على سبيل المثال ، يمكن أن يكون منزلًا من طابق واحد حيث يمكنك وضع مرآب لتصليح السيارات وحتى إنشاء علية. هذه المنطقة كافية تمامًا لإنشاء تصميم غير عادي وإنشاء منزل أنيق يكون فيه ممتعًا ومريحًا.

من المهم ملاحظة أن كتلة الرغوة كمادة بناء خفيفة الوزن للغاية ، لذلك يمكن تنفيذ العمل بشكل مستقل بدون معدات خاصة ، في حين أنه ليس من الضروري وضع أساس باهظ الثمن.

يلاحظ الخبراء أنه في منزل مصنوع من كتل الرغوة ، يمكنك توفير حوالي 30 ٪ من الأموال لتوفير التدفئة. سوف يستمر العقار لعقود دون أن يفقد خصائصه الأصلية.

بالنسبة للعيوب ، لا يمكنك تجهيز العديد من الغرف على 150 مربعًا ، خاصةً عندما يتعلق الأمر بأسرة كبيرة ، ولكن إذا كانت تتسع لـ 4-5 أشخاص ، فكل شيء على ما يرام.
خيارات تخطيط المنزل
بالإضافة إلى كتلة الرغوة ، يمكن أيضًا أن تكون المنازل مصنوعة من الخشب الطبيعي. لقد كانوا في الطلب منذ عقود. كمادة ، يمكنك اختيار الحزم اللاصقة ، والتي يمكنك من خلالها بناء مسكن بمساحة 150 مربعًا في وقت قصير. المادة لها العديد من المزايا التي يجب ملاحظتها. بادئ ذي بدء ، يتميز الخشب بموصلية حرارية منخفضة ، على عكس أعمال الطوب ، لذا يمكنك التوفير في التدفئة. من السهل العمل مع العناصر الهيكلية ، فهي تتمتع بالشكل الصحيح ، لذلك يتم تشييد الهيكل بسرعة كبيرة. هذه مادة صديقة للبيئة تتنفس ، لذلك يتم إنشاء مناخ محلي مثالي في الداخل ، وهو أمر مهم بنفس القدر.

تبدو المنازل المصنوعة من خشب القشرة الرقائقي مبهجة وجميلة من الناحية الجمالية ، ويمكن تجهيزها بعلية. وتجدر الإشارة إلى أن الخشب المستخدم تمت معالجته بعناية ، وبالتالي فإن نسبة الرطوبة منخفضة ، وبسبب موقع الرقائق ، يتم تقليل ظهور التشققات إلى الصفر. سيكون هذا المنزل متينًا ولن يتشوه بمرور الوقت ، ولكنه سيبقى لسنوات عديدة ، مما يمنح الراحة والدفء لسكانه. ستسقط المدخرات أيضًا على الأساس ، نظرًا لأن التعميق القوي ليس مطلوبًا بسبب الوزن المنخفض للخشب.

كما ذكر أعلاه ، غالبًا ما تستخدم كتل الرغوة في مشاريع المنازل التي تبلغ مساحتها 150 مترًا مربعًا. م وأكثر. غالبًا ما يتم دمج هذه المواد مع الطوب. ولكن إذا كنت ترغب في بناء منزل به علية ، فإن تحديد هذا الخيار سيضيف متاعب. لا يوجد الكثير من المخططات ، لذلك إذا كنت ترغب في تجسيد أفكار غير عادية ، فاختر الخشب الرقائقي الملصق.

من حيث المتانة ، يعتبر السيراميك هو الرائد بين المواد الأخرى ، لذلك يمكنك التفكير في مشاريع المنازل المبنية من الطوب ، والتي يمكنك من خلالها تنفيذ مجموعة واسعة من الأفكار المعمارية..
مع جراج
من المؤكد أن وجود المرآب بالنسبة للغالبية يلعب دورًا مهمًا ، لأن السيارة لم تعد لفترة طويلة عنصرًا فاخرًا. وإذا كنا نتحدث عن كوخ ريفي ، يمكنك الوصول إليه بالسيارة ، فإن بناء مكان لوقوف السيارات مطلوب. يفترض مشروع المنزل المكون من 150 مربعًا وجود مرآب لسيارة واحدة ، على الرغم من التصميم الصحيح ، حتى يمكن استيعاب سيارتين. للقيام بذلك ، تشير الخطة إلى توصيل الامتداد بالمنزل عن طريق الأبواب الداخلية. يقع المرآب في أحد أجزاء المنزل ، لذلك من الأسهل بكثير تنظيم كل شيء ، لأنك لست مضطرًا لوضع الاتصالات بشكل منفصل.
مع العلية
حتى في منزل من طابق واحد ، يمكنك تجهيز علية ، والتي ستكون مكانًا إضافيًا للاسترخاء وقضاء الوقت مع العائلة والأصدقاء.. تشمل المزايا الرئيسية لهذه المباني توفير الوقت والتكلفة ، حيث لا توجد حاجة لبناء جدار في الطابق الثاني.. إذا قمت بتصميم المبنى بشكل صحيح ، فلن تفقد مساحة المعيشة. يبدو المنزل ذو العلية أنيقًا وجميلًا ، وسيؤدي وجود سقف الجملون إلى تزيين الكوخ بصريًا ، مما يدل على المحيط. من الآمن أن نقول إن مثل هذا المشروع سيصبح حلاً تصميميًا مثيرًا للاهتمام ، وبفضله ستجسد الأفكار الإبداعية. تجذب منازل العلية الحديثة الكثير من الاهتمام ، ويمكن تثبيت النوافذ على السطح للاستمتاع بالسماء.
آخر
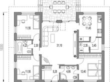
أما بالنسبة للمشاريع المقبولة عمومًا للمنازل المكونة من طابق واحد والتي تصل مساحتها إلى 150 مربعًا ، فإن التصميم ينص على وجود غرفتي نوم ، إحداهما تبلغ حوالي 18 مترًا مربعًا. م ، حيث توجد نافذة ، وفي النافذة الأصغر يمكنك الاستغناء عنها. بفضل تنظيم المساحة هذا ، يمكنك وضع الآباء والأطفال بشكل منفصل.. غرفة المعيشة 20 متر مربع. مطلوب م ، ستكون هذه القاعة فسيحة ، ويمكنك صنع مدفأة فيها من أجل الجو. يشغل المساحة المتبقية المطبخ والحمام والممر. حجم هذه الغرف هو نفسه في الشقق العادية. إذا لم يكن من المتوقع وجود مرآب ، فيمكنك إنشاء غرفة ملابس صغيرة. يؤدي الممر إلى المطبخ وغرفة المعيشة والحمام ، والتي يمكن فصلها أو دمجها حسب التفضيلات الشخصية. يمكنك دخول غرفة النوم والحضانة من الصالة. ومع ذلك ، هذا تخطيط قياسي يستخدمه الكثيرون ، ولكن بفضل المنطقة ، يمكنك توسيع الاحتمالات وإجراء التغييرات الخاصة بك مع المتخصص الذي يقوم بتطوير المشروع..

تجدر الإشارة إلى أنه لا يهم حقًا المواد التي تم بناء المنزل منها ، يمكن أن تكون مصنوعة من الخشب أو الخرسانة الخلوية ، إذا اقتربت من حل المشكلة بشكل احترافي ، يمكنك استخدام المساحة بشكل عقلاني من خلال جعل التصميم بالطريقة لطالما حلمت به.
تصميم
هناك العديد من الأساليب التي يمكن من خلالها إنشاء مساحة 150 مترًا مربعًا. م. هناك طلب كبير على اتجاه التكنولوجيا الفائقة ، والذي يجمع بين التقنيات الحديثة والهندسة المعمارية غير العادية. في كثير من الأحيان ، يتم تشييد المنازل المكونة من طابق واحد على هذا النمط ، حيث يوجد الكثير من المساحة الحرة.. تشمل السمات المميزة لمثل هذا المشروع وجود سقف مسطح ونوافذ ضخمة تسمح بدخول الكثير من الضوء. يجب التفكير جيدًا في الإضاءة – يوصي الخبراء بالزجاج البانورامي ومصابيح LED الداخلية. بالنسبة للظلال ، من الأفضل اختيار نظام ألوان باستيل ، سيبدو التصميم الأبيض أو الرمادي جميلًا ويتوافق تمامًا مع النمط المحدد..

يجب أن يكون المنزل من المعدن ، لذلك نرحب بالمنتجات المزورة وغيرها. تشمل المزايا الرئيسية للتكنولوجيا الفائقة الجماليات والتطبيق العملي ، والتي يتم نقلها في خطة هيكلية مدروسة بعناية. من الضروري تحديد المساحة بشكل صحيح حيث توجد أجزاء ليلا ونهارا وأجزاء منزلية.
تجذب المشاريع الاسكندنافية نفس القدر من الاهتمام. المكونات الرئيسية هي المواد الطبيعية المستخدمة في الزخرفة والهندسة البسيطة. يجب أن يحتوي المنزل على مساحة والكثير من الضوء ، لذا فإن وجود العلية أمر إلزامي تقريبًا ، كما أن النوافذ البانورامية مرحب بها أيضًا. الخشب الطبيعي في الخارج يجعل المنزل مريحًا. يمكنك تطوير مشروع مع حمام منزلي صغير ، إذا كنت تفضل مثل هذه الإجازة. يتم إيلاء اهتمام خاص للسقف في هذه المنازل ، ويتم اختيار البلاط لوضعه ، وأحيانًا يكون السطح أخضر للحصول على تصميم جميل. في المنازل الاسكندنافية ، توجد دائمًا غرف مرافق تقريبًا ، بينما يوفر الطراز مبنى واحدًا.

إذا كنت من أصحاب الأشكال والتصميمات البسيطة ، فيجب أن تناسب المنازل الفنلندية طباعك.. مثل هذا المشروع ميزانية ، في حين أنه لا يخلو من مزاياها. الميزة الرئيسية هي التطبيق العملي والراحة والبساطة. يجب أن يكون التصميم مريحًا ، وأن تكون غرف النوم صغيرة ، ويلزم وجود ساونا. اما السقف فهو الجملون والجدران الخارجية مغطاة بجوانب خشبية ويوجد به شرفة صغيرة.
أمثلة جميلة للمشاريع
فيما يلي بعض الأمثلة الجميلة التي تبلغ مساحتها 150 مترًا مربعًا. م:
- مشروع فنلندي مع شرفة فسيحة ؛
- لعشاق أسلوب التكنولوجيا الفائقة ؛
- نوافذ كبيرة توفر مناظر بانورامية جميلة.

مشاريع منازل من طابق واحد بمساحة 150 متر مربع. م
بناء منزل 150 متر مربع. م ، من الضروري البدء في تطوير مشروع يأخذ في الاعتبار جميع رغبات مالك المستقبل. تقع هذه المباني في مناطق صغيرة نسبيًا ، حيث يمكنك ترتيب تصميم مريح لعائلة مكونة من 5 أشخاص.. تتمتع هذه المنازل بميزة مهمة – فهي مدمجة وعملية. نقدم لك خيارات لتصميم مسكن بمساحة 150 متر مربع حيث يمكنك تجهيز مرآب وعلية وتجسيد أي أفكار. يمكن تكييف المشاريع النموذجية مع المنطقة والتفضيلات الشخصية.
المميزات والعيوب
لبناء مثل هذا المنزل ، يمكنك اختيار كتلة رغوة ، والتي لها العديد من المزايا. هذه مادة ميسورة التكلفة توفر الاحتفاظ بالحرارة والمناخ الأمثل بالداخل. المزايا الرئيسية لهذا المسكن بمساحة 150 متر مربع. يمكن أن يُعزى م إلى فرصة تجسيد الفكرة الأكثر جرأة ، لتحقيق كل ما كنت تحلم به. على سبيل المثال ، يمكن أن يكون منزلًا من طابق واحد حيث يمكنك وضع مرآب لتصليح السيارات وحتى إنشاء علية. هذه المنطقة كافية تمامًا لإنشاء تصميم غير عادي وإنشاء منزل أنيق يكون فيه ممتعًا ومريحًا.
من المهم ملاحظة أن كتلة الرغوة كمادة بناء خفيفة الوزن للغاية ، لذلك يمكن تنفيذ العمل بشكل مستقل بدون معدات خاصة ، في حين أنه ليس من الضروري وضع أساس باهظ الثمن.
يلاحظ الخبراء أنه في منزل مصنوع من كتل الرغوة ، يمكنك توفير حوالي 30 ٪ من الأموال لتوفير التدفئة. سوف يستمر العقار لعقود دون أن يفقد خصائصه الأصلية.
بالنسبة للعيوب ، لا يمكنك تجهيز العديد من الغرف على 150 مربعًا ، خاصةً عندما يتعلق الأمر بأسرة كبيرة ، ولكن إذا كانت تتسع لـ 4-5 أشخاص ، فكل شيء على ما يرام.
خيارات تخطيط المنزل
بالإضافة إلى كتلة الرغوة ، يمكن أيضًا أن تكون المنازل مصنوعة من الخشب الطبيعي. لقد كانوا في الطلب منذ عقود. كمادة ، يمكنك اختيار الحزم اللاصقة ، والتي يمكنك من خلالها بناء مسكن بمساحة 150 مربعًا في وقت قصير. المادة لها العديد من المزايا التي يجب ملاحظتها. بادئ ذي بدء ، يتميز الخشب بموصلية حرارية منخفضة ، على عكس أعمال الطوب ، لذا يمكنك التوفير في التدفئة. من السهل العمل مع العناصر الهيكلية ، فهي تتمتع بالشكل الصحيح ، لذلك يتم تشييد الهيكل بسرعة كبيرة. هذه مادة صديقة للبيئة تتنفس ، لذلك يتم إنشاء مناخ محلي مثالي في الداخل ، وهو أمر مهم بنفس القدر.
تبدو المنازل المصنوعة من خشب القشرة الرقائقي مبهجة وجميلة من الناحية الجمالية ، ويمكن تجهيزها بعلية. وتجدر الإشارة إلى أن الخشب المستخدم تمت معالجته بعناية ، وبالتالي فإن نسبة الرطوبة منخفضة ، وبسبب موقع الرقائق ، يتم تقليل ظهور التشققات إلى الصفر. سيكون هذا المنزل متينًا ولن يتشوه بمرور الوقت ، ولكنه سيبقى لسنوات عديدة ، مما يمنح الراحة والدفء لسكانه. ستسقط المدخرات أيضًا على الأساس ، نظرًا لأن التعميق القوي ليس مطلوبًا بسبب الوزن المنخفض للخشب.
كما ذكر أعلاه ، غالبًا ما تستخدم كتل الرغوة في مشاريع المنازل التي تبلغ مساحتها 150 مترًا مربعًا. م وأكثر. غالبًا ما يتم دمج هذه المواد مع الطوب. ولكن إذا كنت ترغب في بناء منزل به علية ، فإن تحديد هذا الخيار سيضيف متاعب. لا يوجد الكثير من المخططات ، لذلك إذا كنت ترغب في تجسيد أفكار غير عادية ، فاختر الخشب الرقائقي الملصق.
من حيث المتانة ، يعتبر السيراميك هو الرائد بين المواد الأخرى ، لذلك يمكنك التفكير في مشاريع المنازل المبنية من الطوب ، والتي يمكنك من خلالها تنفيذ مجموعة واسعة من الأفكار المعمارية..
مع جراج
من المؤكد أن وجود المرآب بالنسبة للغالبية يلعب دورًا مهمًا ، لأن السيارة لم تعد لفترة طويلة عنصرًا فاخرًا. وإذا كنا نتحدث عن كوخ ريفي ، يمكنك الوصول إليه بالسيارة ، فإن بناء مكان لوقوف السيارات مطلوب. يفترض مشروع المنزل المكون من 150 مربعًا وجود مرآب لسيارة واحدة ، على الرغم من التصميم الصحيح ، حتى يمكن استيعاب سيارتين. للقيام بذلك ، تشير الخطة إلى توصيل الامتداد بالمنزل عن طريق الأبواب الداخلية. يقع المرآب في أحد أجزاء المنزل ، لذلك من الأسهل بكثير تنظيم كل شيء ، لأنك لست مضطرًا لوضع الاتصالات بشكل منفصل.
مع العلية
حتى في منزل من طابق واحد ، يمكنك تجهيز علية ، والتي ستكون مكانًا إضافيًا للاسترخاء وقضاء الوقت مع العائلة والأصدقاء.. تشمل المزايا الرئيسية لهذه المباني توفير الوقت والتكلفة ، حيث لا توجد حاجة لبناء جدار في الطابق الثاني.. إذا قمت بتصميم المبنى بشكل صحيح ، فلن تفقد مساحة المعيشة. يبدو المنزل ذو العلية أنيقًا وجميلًا ، وسيؤدي وجود سقف الجملون إلى تزيين الكوخ بصريًا ، مما يدل على المحيط. من الآمن أن نقول إن مثل هذا المشروع سيصبح حلاً تصميميًا مثيرًا للاهتمام ، وبفضله ستجسد الأفكار الإبداعية. تجذب منازل العلية الحديثة الكثير من الاهتمام ، ويمكن تثبيت النوافذ على السطح للاستمتاع بالسماء.
آخر
أما بالنسبة للمشاريع المقبولة عمومًا للمنازل المكونة من طابق واحد والتي تصل مساحتها إلى 150 مربعًا ، فإن التصميم ينص على وجود غرفتي نوم ، إحداهما تبلغ حوالي 18 مترًا مربعًا. م ، حيث توجد نافذة ، وفي النافذة الأصغر يمكنك الاستغناء عنها. بفضل تنظيم المساحة هذا ، يمكنك وضع الآباء والأطفال بشكل منفصل.. غرفة المعيشة 20 متر مربع. مطلوب م ، ستكون هذه القاعة فسيحة ، ويمكنك صنع مدفأة فيها من أجل الجو. يشغل المساحة المتبقية المطبخ والحمام والممر. حجم هذه الغرف هو نفسه في الشقق العادية. إذا لم يكن من المتوقع وجود مرآب ، فيمكنك إنشاء غرفة ملابس صغيرة. يؤدي الممر إلى المطبخ وغرفة المعيشة والحمام ، والتي يمكن فصلها أو دمجها حسب التفضيلات الشخصية. يمكنك دخول غرفة النوم والحضانة من الصالة. ومع ذلك ، هذا تخطيط قياسي يستخدمه الكثيرون ، ولكن بفضل المنطقة ، يمكنك توسيع الاحتمالات وإجراء التغييرات الخاصة بك مع المتخصص الذي يقوم بتطوير المشروع..
تجدر الإشارة إلى أنه لا يهم حقًا المواد التي تم بناء المنزل منها ، يمكن أن تكون مصنوعة من الخشب أو الخرسانة الخلوية ، إذا اقتربت من حل المشكلة بشكل احترافي ، يمكنك استخدام المساحة بشكل عقلاني من خلال جعل التصميم بالطريقة لطالما حلمت به.
تصميم
هناك العديد من الأساليب التي يمكن من خلالها إنشاء مساحة 150 مترًا مربعًا. م. هناك طلب كبير على اتجاه التكنولوجيا الفائقة ، والذي يجمع بين التقنيات الحديثة والهندسة المعمارية غير العادية. في كثير من الأحيان ، يتم تشييد المنازل المكونة من طابق واحد على هذا النمط ، حيث يوجد الكثير من المساحة الحرة.. تشمل السمات المميزة لمثل هذا المشروع وجود سقف مسطح ونوافذ ضخمة تسمح بدخول الكثير من الضوء. يجب التفكير جيدًا في الإضاءة – يوصي الخبراء بالزجاج البانورامي ومصابيح LED الداخلية. بالنسبة للظلال ، من الأفضل اختيار نظام ألوان باستيل ، سيبدو التصميم الأبيض أو الرمادي جميلًا ويتوافق تمامًا مع النمط المحدد..
يجب أن يكون المنزل من المعدن ، لذلك نرحب بالمنتجات المزورة وغيرها. تشمل المزايا الرئيسية للتكنولوجيا الفائقة الجماليات والتطبيق العملي ، والتي يتم نقلها في خطة هيكلية مدروسة بعناية. من الضروري تحديد المساحة بشكل صحيح حيث توجد أجزاء ليلا ونهارا وأجزاء منزلية.
تجذب المشاريع الاسكندنافية نفس القدر من الاهتمام. المكونات الرئيسية هي المواد الطبيعية المستخدمة في الزخرفة والهندسة البسيطة. يجب أن يحتوي المنزل على مساحة والكثير من الضوء ، لذا فإن وجود العلية أمر إلزامي تقريبًا ، كما أن النوافذ البانورامية مرحب بها أيضًا. الخشب الطبيعي في الخارج يجعل المنزل مريحًا. يمكنك تطوير مشروع مع حمام منزلي صغير ، إذا كنت تفضل مثل هذه الإجازة. يتم إيلاء اهتمام خاص للسقف في هذه المنازل ، ويتم اختيار البلاط لوضعه ، وأحيانًا يكون السطح أخضر للحصول على تصميم جميل. في المنازل الاسكندنافية ، توجد دائمًا غرف مرافق تقريبًا ، بينما يوفر الطراز مبنى واحدًا.
إذا كنت من أصحاب الأشكال والتصميمات البسيطة ، فيجب أن تناسب المنازل الفنلندية طباعك.. مثل هذا المشروع ميزانية ، في حين أنه لا يخلو من مزاياها. الميزة الرئيسية هي التطبيق العملي والراحة والبساطة. يجب أن يكون التصميم مريحًا ، وأن تكون غرف النوم صغيرة ، ويلزم وجود ساونا. اما السقف فهو الجملون والجدران الخارجية مغطاة بجوانب خشبية ويوجد به شرفة صغيرة.
أمثلة جميلة للمشاريع
فيما يلي بعض الأمثلة الجميلة التي تبلغ مساحتها 150 مترًا مربعًا. م:
صغيرة في المظهر ، لكنها واسعة من الداخل ؛