
Дизайнът на ъглови кухни с различни размери с хладилник помага да се организира възможно най -ергономично подреждането на мебелите, да се създаде обмислен и уютен интериор. Подходящ е както за малки, така и за просторни стаи..
Предимства и недостатъци
Готови ъглови кухненски комплекти се предлагат в много магазини за мебели. Това показва, че този метод на планиране е търсен и има свои собствени предимства. Такива корпусни мебели също могат да бъдат направени по поръчка по ваша преценка.. Предимствата на ъглови кухненски комплекти с вграден хладилник са следните:
- рационално използване на всеки свободен метър пространство, дори в ъгъла на стаята;
- лесен достъп до всички мебели, домакински уреди и кухненски прибори;
- икономика на свободното пространство, отворена свободна зона остава в центъра на стаята;
- възможност за добавяне на нови модули и домакински уреди;
- ефективно зониране на кухнята, разделяне на място за готвене, съхранение на храна и ястия, трапезария;
- с висококачествени мебели и компетентно интериорно планиране, впечатляваща гледка към кухненския бокс.

Но не забравяйте за недостатъците на ъглови кухненски комплекти:
- чекмеджетата и вратите на съседни страни ще се пречат един на друг при отваряне;
- под мивката, инсталиран в ъгъла, се използва малко свободно пространство;
- достъпът до пространството под мивката става по -труден;
- в малка кухня изгледът от една част на ъгловия комплект ще изглежда много тромав.
Дизайнерски характеристики с минимален отпечатък
Но всички тези проблеми могат лесно да бъдат решени, ако внимателно планирате всички нюанси на интериора и закупите подходящи мебели и големи домакински уреди. Някои малки семейства, построени през съветската епоха, са имали рекордно малка кухня – 4 кв. м. Това е дори по -малко от стандартното "Хрушчов", за които минималният показател е 5,5 кв. м. Но дори и за такива малки помещения можете да планирате пълноценна работна зона с газов бойлер, хладилник и мивка. Ще има място за шкафове, чекмеджета и маса за хранене. Най -важното нещо в такива малки кухни е да се използва максимално височината на помещението, тя трябва да бъде най -малко 2,4 м дори според съветския ГОСТ. Поради височината липсата на място може да бъде компенсирана. Висящите шкафове и високите рафтове на много нива помагат особено за това..

Тъй като традиционно стандартните апартаменти с малка площ са построени у нас, местните производители на мебели се опитват да произвеждат слушалки с такива размери, така че да се поберат в скромен апартамент, защото има търсене за тях. Белези като "Мария", "ПОВИКВАНЕ", "Съобщение", "Явид", "Форема" други. Много от местните производители правят мебели по поръчка според дадените размери.. Следователно е възможно да се купят 2-3 подови секции и стенни шкафове за тях с размери 40-50 см, ъглов шкаф за мивка. Малка кухня в малко семейство или студио апартамент може да бъде оборудвана с ъглов комплект с хладилник на входа. Блокът за замразяване трябва да бъде избран като минимален по ширина и дълбочина, но всяка височина ще бъде подходяща. Тази категория хладилници принадлежи "Европейски" (за разлика от ниските и широките "Азиатски") от група А. Това означава, че ширината му е 45-55 см, дълбочината е 60-65 см, а височината му може да достигне 210 см. Производители, произвеждащи компактни модели маса: Gorenje, Deawoo, "Саратов", "Атлант" други.

Тесен хладилник и една част от слушалките са поставени до стената в непосредствена близост до входната врата.. След това идва ъгловият шкаф за мивката, а на съседната стена можете свободно да поставите още 2 секции с ширина 40-50 см, а зад тях плоча. Висящите се монтират над долните шкафове по цялата дължина на двете стени, като по този начин се оставя място за плотовете и много рафтове за поставяне на съдове и други предмети, необходими в кухнята. Останалото място в центъра е достатъчно, за да побере малка маса за хранене за 2 души.
Интериор в "Хрушчов"
Малки кухни с площ не повече от 7 кв. м. позволяват използването на ъглови слушалки за разпределяне на още повече свободно място в центъра. Мебели в "Хрушчов" с хладилник до прозореца може удобно да се групира, както следва. Първо, самият блок за замразяване се поставя пред отвора на прозореца. Той, както и в предишния случай, трябва да бъде избран като най -компактен – от група А. След това идва газовата печка, но между нея и хладилника трябва да се остави празнина от 10-15 см.

След печката се поставя една долна секция, след това ъгловата мивка и продължението на слушалките на съседната стена. Всички шкафове отдолу, заедно с мивката, могат да се комбинират с общ работен плот. Това ще придаде на кухнята единен хармоничен вид.. Отгоре всичко се допълва от стенни шкафове, а малката празнина между хладилника и печката също може да бъде запълнена с тясна секция – подобни малки отделения могат да бъдат намерени в магазините за мебели. Останалата част от зоната ще побере малка маса за хранене и 2-3 стола. Единственият недостатък на това оформление е, че хладилникът частично ще запуши прозореца..

В кухни с площ 7-8 кв. м. можете да организирате интериор с хладилник в ъгъла. Това ще ви позволи да не блокирате прозореца, повече естествена светлина ще проникне в стаята. Но тъй като водоснабдяването и канализацията в апартаментите обикновено се намират в ъгъла на кухнята, ще са необходими допълнителни тръбопроводи, мивката ще трябва да бъде преместена на друго място.
Голяма кухня
В кухните на жилищни сгради, които са заменени "Хрушчов", а в много съвременни къщи средната площ е 12 кв. м. Това доста ви позволява да поставите няколко долни секции с масивна плот за маса, с голям хладилник, печка с 4 горелки и дори пералня. За по -лесен достъп и за да не се извършват допълнителни комуникации, по -добре е да оставите мивка с мивка и шкаф под нея в ъгъла.

Има няколко места за успешното поставяне на хладилника: на вратата, до печката или между кухненските модули. Всичко зависи от предпочитанията на собствениците, но си струва да запомните, че не може да се постави близо до печката или отоплителните радиатори. Високите температури могат да повредят хладилника.. Въпреки че това не се отнася за съвременните котлони, които практически не отделят топлина на външната среда.

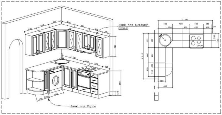
Преди да поръчате L-образен кухненски комплект, трябва да създадете подробен план с размери, като вземете предвид всички бъдещи модули и вградени уреди. Съседните стени, към които ще прилежат мебелите, трябва да бъдат подравнени колкото е възможно повече, в противен случай може да възникнат проблеми с монтажа. За по -голяма яснота си струва да скицирате скица на хартия и да вземете предвид размерите с малко поле, така че шрифтът да се побере в ограничено пространство.
Важни нюанси
Заедно с изчисляването на всички размери, си струва да се вземе предвид местоположението на контактите, така че те да са възможно най -близо до хладилника, електрическия котлон или плота и други кухненски уреди. Ако е необходимо, извършете допълнително окабеляване. По -добре е да направите гнезда с марж, в бъдеще това може да е полезно, например, ако инсталирате чист рафт с телевизор или микровълнова печка над плота.

Преди да изберете такава слушалка, трябва да обърнете внимание на два вида ъглови постаменти. Тя може да бъде скосена или правоъгълна. Първият тип е добър с това, че е изключително прост в дизайна, не изисква сложна инсталация. Обикновена врата най -често е окачена на скосен шкаф. Ако е инсталиран под мивката, тогава получавате удобен достъп до сифона на мивката, водопроводните тръби, маркучите от пералнята. Но този тип шкаф заема малко свободно място в кухнята..

Правоъгълен ъглов шкаф спестява място, доколкото е възможно. Но дизайнът на вратата е по -сложен за него. Най -често се използват две крила от съседни страни, които се сгъват при отваряне. С тази опция вътре могат да се монтират чекмеджета и рафтове за съхранение на съдове..

Височината на висящите шкафове може да бъде различна, но тя трябва да бъде избрана така, че да има достатъчно място за работната зона над плота. Оптималното разстояние между него и дъното на висящите шкафове е 40-60 см. Но също така трябва да оставите празно място до тавана, тъй като в повечето случаи има изпускателен канал към кухненския вентилационен отвор..
Осветление
Много правилно решение при проектирането на ъглови кухни би било организирането на допълнително осветление. Обикновено се прави с помощта на вградени прожектори над плота. Малки LED, халогенни или флуоресцентни лампи с ниска мощност са инсталирани в долната част на окачените шкафове. Тяхното предимство е ярка и приятна за очите светлина с ниска консумация на енергия.. Освен това те издържат значително по -дълго от крушките с нажежаема жичка..

Ъгловите кухненски шкафове могат да бъдат сглобени сами, без помощта на специалисти. Съвременните стандартни крепежни елементи могат да се монтират без никакви проблеми; за работа обикновено е достатъчно да имате под ръка отвертка Phillips или отвертка и шестоъгълник. Висящите шкафове могат лесно да се прикрепят към винтовете за стенен щепсел.
Цвят
Друг важен момент, на който трябва да обърнете внимание при планирането на ъглови кухни, е това е цветовата схема. За малките стаи е по -добре да изберете бели, светло бежови и светлосини нюанси. Този цвят визуално разширява стаята. Боядисването на мебели в такива тонове е възможно чрез ламиниране. Освен това гладките ламинирани повърхности се почистват лесно. В просторна кухня добър вариант би бил инсталирането на комплект в цвета на дървото: череша, млечен дъб, милански орех, бордо. Можете да изберете мебели и хладилник в сребърни цветове или да създадете хармонична комбинация от 2-3 тона, единият от които ще бъде доминиращ. Това ще се окаже добро решение за планиране на кухня за вашия дом..

С правилно планирано поставяне на всички елементи от ъглов комплект и едри уреди в кухня с площ от 12 кв. м. все още има много свободно пространство, на което можете да поставите доста голяма маса за хранене и предмети за декор, например библиотека с саксии или рафтове със сувенири.

Проектиране на ъглови кухни с различни размери с хладилник
Дизайнът на ъглови кухни с различни размери с хладилник помага да се организира възможно най -ергономично подреждането на мебелите, да се създаде обмислен и уютен интериор. Подходящ е както за малки, така и за просторни стаи..
Предимства и недостатъци
Готови ъглови кухненски комплекти се предлагат в много магазини за мебели. Това показва, че този метод на планиране е търсен и има свои собствени предимства. Такива корпусни мебели също могат да бъдат направени по поръчка по ваша преценка.. Предимствата на ъглови кухненски комплекти с вграден хладилник са следните:
Но не забравяйте за недостатъците на ъглови кухненски комплекти:
Дизайнерски характеристики с минимален отпечатък
Но всички тези проблеми могат лесно да бъдат решени, ако внимателно планирате всички нюанси на интериора и закупите подходящи мебели и големи домакински уреди. Някои малки семейства, построени през съветската епоха, са имали рекордно малка кухня – 4 кв. м. Това е дори по -малко от стандартното "Хрушчов", за които минималният показател е 5,5 кв. м. Но дори и за такива малки помещения можете да планирате пълноценна работна зона с газов бойлер, хладилник и мивка. Ще има място за шкафове, чекмеджета и маса за хранене. Най -важното нещо в такива малки кухни е да се използва максимално височината на помещението, тя трябва да бъде най -малко 2,4 м дори според съветския ГОСТ. Поради височината липсата на място може да бъде компенсирана. Висящите шкафове и високите рафтове на много нива помагат особено за това..
Тъй като традиционно стандартните апартаменти с малка площ са построени у нас, местните производители на мебели се опитват да произвеждат слушалки с такива размери, така че да се поберат в скромен апартамент, защото има търсене за тях. Белези като "Мария", "ПОВИКВАНЕ", "Съобщение", "Явид", "Форема" други. Много от местните производители правят мебели по поръчка според дадените размери.. Следователно е възможно да се купят 2-3 подови секции и стенни шкафове за тях с размери 40-50 см, ъглов шкаф за мивка. Малка кухня в малко семейство или студио апартамент може да бъде оборудвана с ъглов комплект с хладилник на входа. Блокът за замразяване трябва да бъде избран като минимален по ширина и дълбочина, но всяка височина ще бъде подходяща. Тази категория хладилници принадлежи "Европейски" (за разлика от ниските и широките "Азиатски") от група А. Това означава, че ширината му е 45-55 см, дълбочината е 60-65 см, а височината му може да достигне 210 см. Производители, произвеждащи компактни модели маса: Gorenje, Deawoo, "Саратов", "Атлант" други.
Тесен хладилник и една част от слушалките са поставени до стената в непосредствена близост до входната врата.. След това идва ъгловият шкаф за мивката, а на съседната стена можете свободно да поставите още 2 секции с ширина 40-50 см, а зад тях плоча. Висящите се монтират над долните шкафове по цялата дължина на двете стени, като по този начин се оставя място за плотовете и много рафтове за поставяне на съдове и други предмети, необходими в кухнята. Останалото място в центъра е достатъчно, за да побере малка маса за хранене за 2 души.
Интериор в "Хрушчов"
Малки кухни с площ не повече от 7 кв. м. позволяват използването на ъглови слушалки за разпределяне на още повече свободно място в центъра. Мебели в "Хрушчов" с хладилник до прозореца може удобно да се групира, както следва. Първо, самият блок за замразяване се поставя пред отвора на прозореца. Той, както и в предишния случай, трябва да бъде избран като най -компактен – от група А. След това идва газовата печка, но между нея и хладилника трябва да се остави празнина от 10-15 см.
След печката се поставя една долна секция, след това ъгловата мивка и продължението на слушалките на съседната стена. Всички шкафове отдолу, заедно с мивката, могат да се комбинират с общ работен плот. Това ще придаде на кухнята единен хармоничен вид.. Отгоре всичко се допълва от стенни шкафове, а малката празнина между хладилника и печката също може да бъде запълнена с тясна секция – подобни малки отделения могат да бъдат намерени в магазините за мебели. Останалата част от зоната ще побере малка маса за хранене и 2-3 стола. Единственият недостатък на това оформление е, че хладилникът частично ще запуши прозореца..
В кухни с площ 7-8 кв. м. можете да организирате интериор с хладилник в ъгъла. Това ще ви позволи да не блокирате прозореца, повече естествена светлина ще проникне в стаята. Но тъй като водоснабдяването и канализацията в апартаментите обикновено се намират в ъгъла на кухнята, ще са необходими допълнителни тръбопроводи, мивката ще трябва да бъде преместена на друго място.
Голяма кухня
В кухните на жилищни сгради, които са заменени "Хрушчов", а в много съвременни къщи средната площ е 12 кв. м. Това доста ви позволява да поставите няколко долни секции с масивна плот за маса, с голям хладилник, печка с 4 горелки и дори пералня. За по -лесен достъп и за да не се извършват допълнителни комуникации, по -добре е да оставите мивка с мивка и шкаф под нея в ъгъла.
Има няколко места за успешното поставяне на хладилника: на вратата, до печката или между кухненските модули. Всичко зависи от предпочитанията на собствениците, но си струва да запомните, че не може да се постави близо до печката или отоплителните радиатори. Високите температури могат да повредят хладилника.. Въпреки че това не се отнася за съвременните котлони, които практически не отделят топлина на външната среда.
Преди да поръчате L-образен кухненски комплект, трябва да създадете подробен план с размери, като вземете предвид всички бъдещи модули и вградени уреди. Съседните стени, към които ще прилежат мебелите, трябва да бъдат подравнени колкото е възможно повече, в противен случай може да възникнат проблеми с монтажа. За по -голяма яснота си струва да скицирате скица на хартия и да вземете предвид размерите с малко поле, така че шрифтът да се побере в ограничено пространство.
Важни нюанси
Заедно с изчисляването на всички размери, си струва да се вземе предвид местоположението на контактите, така че те да са възможно най -близо до хладилника, електрическия котлон или плота и други кухненски уреди. Ако е необходимо, извършете допълнително окабеляване. По -добре е да направите гнезда с марж, в бъдеще това може да е полезно, например, ако инсталирате чист рафт с телевизор или микровълнова печка над плота.
Преди да изберете такава слушалка, трябва да обърнете внимание на два вида ъглови постаменти. Тя може да бъде скосена или правоъгълна. Първият тип е добър с това, че е изключително прост в дизайна, не изисква сложна инсталация. Обикновена врата най -често е окачена на скосен шкаф. Ако е инсталиран под мивката, тогава получавате удобен достъп до сифона на мивката, водопроводните тръби, маркучите от пералнята. Но този тип шкаф заема малко свободно място в кухнята..
Правоъгълен ъглов шкаф спестява място, доколкото е възможно. Но дизайнът на вратата е по -сложен за него. Най -често се използват две крила от съседни страни, които се сгъват при отваряне. С тази опция вътре могат да се монтират чекмеджета и рафтове за съхранение на съдове..
Височината на висящите шкафове може да бъде различна, но тя трябва да бъде избрана така, че да има достатъчно място за работната зона над плота. Оптималното разстояние между него и дъното на висящите шкафове е 40-60 см. Но също така трябва да оставите празно място до тавана, тъй като в повечето случаи има изпускателен канал към кухненския вентилационен отвор..
Осветление
Много правилно решение при проектирането на ъглови кухни би било организирането на допълнително осветление. Обикновено се прави с помощта на вградени прожектори над плота. Малки LED, халогенни или флуоресцентни лампи с ниска мощност са инсталирани в долната част на окачените шкафове. Тяхното предимство е ярка и приятна за очите светлина с ниска консумация на енергия.. Освен това те издържат значително по -дълго от крушките с нажежаема жичка..
Ъгловите кухненски шкафове могат да бъдат сглобени сами, без помощта на специалисти. Съвременните стандартни крепежни елементи могат да се монтират без никакви проблеми; за работа обикновено е достатъчно да имате под ръка отвертка Phillips или отвертка и шестоъгълник. Висящите шкафове могат лесно да се прикрепят към винтовете за стенен щепсел.
Цвят
Друг важен момент, на който трябва да обърнете внимание при планирането на ъглови кухни, е това е цветовата схема. За малките стаи е по -добре да изберете бели, светло бежови и светлосини нюанси. Този цвят визуално разширява стаята. Боядисването на мебели в такива тонове е възможно чрез ламиниране. Освен това гладките ламинирани повърхности се почистват лесно. В просторна кухня добър вариант би бил инсталирането на комплект в цвета на дървото: череша, млечен дъб, милански орех, бордо. Можете да изберете мебели и хладилник в сребърни цветове или да създадете хармонична комбинация от 2-3 тона, единият от които ще бъде доминиращ. Това ще се окаже добро решение за планиране на кухня за вашия дом..
С правилно планирано поставяне на всички елементи от ъглов комплект и едри уреди в кухня с площ от 12 кв. м. все още има много свободно пространство, на което можете да поставите доста голяма маса за хранене и предмети за декор, например библиотека с саксии или рафтове със сувенири.