
Камина от гипсокартон е оригинално, екологично решение за модерен интериор. Можете да го направите и инсталирате сами, без допълнителни разходи. Такава камина изглежда стилно, спретнато и, за разлика от тухлена, не изисква специални грижи. Той се вписва идеално в пространството на градски апартамент и селска къща. Въпреки изкуствеността, камината от гипсокартон създава уютна атмосфера.
Целта на имитацията
Домашна камина от гипсокартон изпълнява не само декоративна функция, но и има много предимства. С негова помощ можете да затворите батериите, да придадете на стаята атмосфера, комфорт, интимност. Особеността е, че можете да построите камина със собствените си ръце в апартамент и в същото време да не събирате разрешителни за нейното изграждане. Фалшивата камина може да бъде с всякаква форма, размер, конфигурация и това й позволява да се впише във всеки интериор.

За да изградите камина, ще ви трябват прости материали, които се продават в магазините за хардуер. Експертите могат да покажат как правилно да се изгради камина, както и да вземат решение за избора на необходимите инструменти. Камините от гипсокартон са безопасни, тъй като дизайнът не позволява използването на открит пламък. Цената на изкуствените камини е ниска и можете да ги инсталирате със собствените си ръце без външна помощ..

Фалшива камина често се използва като рафт, стойка, декоративно парче. Вместо истински огън в подготвена ниша, лесно е да се подреди електрическа камина, имитация на пламък. Особеността е, че конструкцията може да се мести из апартамента, ако не е прикрепена към стената..
Вътрешен дизайн
Размерите на камината в апартамента трябва да съответстват на общото пространство на помещението, в което се намира. Големите камини са подходящи за голяма стая, малките конструкции ще изглеждат подходящи в малка стая. Фалшива камина често се инсталира в коридора, в хола, кухнята, спалнята и дори в банята. Понякога се използва като стойка за телевизор. Камината, в зависимост от интериора в стаята, може да бъде декорирана в класически стил, модерен, селски, английски, хай-тек.

Ако искате дизайнът да съответства на стила на апартамент или къща, обърнете специално внимание, когато се регистрирате за портал, комин или сайт преди пещта. Ако камината е направена в класически стил, тя е украсена с мрамор, естествено дърво. Рафтовете са незаменим декоративен елемент за такъв дизайн. С рафтовете камината изглежда красива, става функционална. Можете да поставите фигурки, свещници, вази върху тях.

Порталът за камина от гипсокартон е украсен със стъкло, електрическа камина. Порталът с аквариума изглежда оригинален и стилен. Може да се постави и на широк рафт. Електрическа камина, направена в стената, изглежда необичайно и напълно се слива с повърхността. Дизайнерите съветват да украсите празен портал с решетка от ковано желязо, горивна камера, свещи, оригинални вази, картина, огледало.
Изгледи
Фалшива камина се различава от истинската с невъзможността да запали огън вътре в портала. Камини от гипсокартон не са предназначени за открит огън, дори ако са завършени с огнеупорни материали! Техният портал се формира от имитация на пламък, който се включва и изключва, когато собственикът се нуждае от него. Оформлението на такава камина може да бъде поръчано от капитана или можете да го направите сами въз основа на съществуващите..
- Достоверно. Надеждна изкуствена камина изглежда като истинска. Камината има всички елементи, присъщи на този дизайн: камина, комин, рафт, решетка. Оформянето на чугунен, тухлен комин е сложен трудоемък процес, както и създаване на надеждна конструкция. Шиенето на тръба с трайни материали често не е завършено без професионални съвети и помощ отвън. Вградете електрически или биокамина в портал с този дизайн. Това ще създаде атмосфера на уют и топлина..
- Условно. Изкуствената условна камина е най -простият фалшив дизайн. Лесно е да си направите сами, той идеално ще се впише в модерния интериор и ще се превърне в централната част на стаята. Инсталирането на биокамина е прост процес, който е лесен за извършване самостоятелно. Електрическата камина изглежда елегантна и не изисква специални правила за монтаж.
- Символично. Символичните камини също са лесни за производство. Можете дори да си купите псевдо портал в магазин и да го инсталирате сами у дома. Фалшива камина изглежда красива, ако има оригинален дизайн. Изкуствеността на символната конструкция е присъща, следователно основната роля, която играе, е само декоративна. Манекен, корч действа като декорация в стаята. Бялата камина от гипсокартон изглежда красива на фона на бяла тухлена стена.
Материали и инструменти
Структурите от гипсокартон са най -популярните днес. Този материал най -често се използва за облицовка на рамката. Той върви добре с всяко покритие и е лесен за сглобяване. Лесно е да се подреди пространствена форма с всякаква сложност от гипсокартон. Цената на материала е ниска.
За изграждането на изкуствена камина са необходими инструменти. Необходимо е да закупите: U-образен метален профил, листове от гипсокартон, ламели, самонарезни винтове (14-15 мм), специални самонарезни винтове с потапяща глава, рулетка, дюбели, отвертка, мелница, перфоратор, отвес , ниво на сградата, силикон, шпакловка, боя на водна основа, елементи за декорация. Количеството материали зависи от направените изчисления и размера на конструкцията.

Рамката за камина от гипсокартон е изградена от стандартен профил. Обикновено за тези цели се използва метална стойка или направляващ профил. Рамка се създава от чертеж или оформление. Тя трябва да бъде фиксирана към стената и пода със специално лепило, ако камината е малка – със самонарезни винтове. Над кутията трябва да има солидна основа за по -нататъшно довършване (ако ще правите рафт).

Рамката трябва да бъде обшита с гипсокартон. Това е лек материал, който се поддава добре на рязане. Лесно е да се работи с него. Техническите характеристики на материала са такива, че той се използва не само за декоративни цели, но и за изграждане на неносещи прегради, окачени тавани, облицовки на стени, при създаване на колони, арки и други конструкции. Висококачествените гипсокартонени плоскости, произведени в съответствие с ГОСТ, са издръжливи и издържат на допълнително тегло.

След като направите рамката, тя трябва да бъде обшита с гипсокартон. За тези цели ще трябва да изрежете листа с ръчна мелница. Фугите трябва да бъдат допълнително обезопасени с профил (имайте предвид това при закупуване на материали). Облицовъчните шевове се фиксират с самонарезни винтове и шпакловка. Често материалът от гипсокартон не изисква довършване, така че след известно време облицовката на портала може да се смени, без да се разглобява устройството.
Производствена процедура
Преди да издигнете камина, решете мястото на строителството. Конструкцията трябва да бъде разположена близо до стената и да не пречи на свободното преминаване. Те не трябва да се прилепват към камината, да я докосват с ръце и крака. Неправилното място за камината може да развали впечатлението за пространството и самата конструкция. Когато решавате местоположението на фалшивата камина, ще са необходими скици.

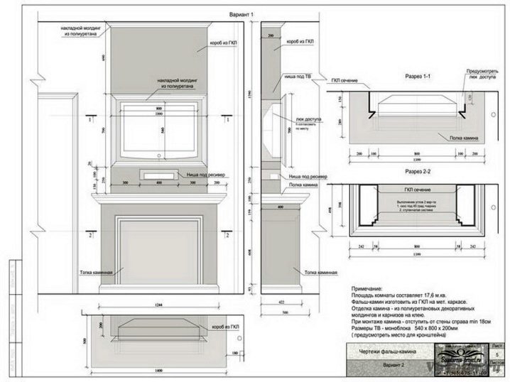
Отделете малко време за проектирането му, защото камината ще се превърне в доминиращ обект във вътрешността на стаята. Направете сами някои скици или помолете дизайнер да го направи. По скиците се прави чертеж, който показва реалните размери на конструкцията. Когато го разработвате, използвайте готови чертежи или скици. Можете да нарисувате груб дизайн върху голямо парче ватман и да го прикрепите към стената. Ако всичко ви подхожда, започнете да създавате прототипи.

Оформлението се извършва според чертежа, като се вземат предвид размерите на бъдещата камина. С негова помощ се правят изчисления и разходи за материали. Оформленията са направени от пяна или картон. Когато създавате оформление, не е необходимо да се придържате към точни изчисления. Той е необходим, за да има визуална представа за дизайна, който трябва да се направи. Оформлението може да показва грешки, лесно е да го премествате из апартамента и да експериментирате (изберете цвят, декор).

Следващият етап след прототипирането е изграждането.
- Камината е изградена върху рамка, използваща метален U-образен профил. За строителството се използват дървени ламели, огради, материали, които могат да бъдат намерени у дома след строителството. Рамката се сглобява на самонарезни винтове. На първо място, носеща рамка трябва да бъде прикрепена към стената и останалата част от рамката трябва да бъде сглобена върху нея..
- Нивото на сградата ще бъде необходимо за проверка на хоризонталните и вертикалните части на рамката. Правоъгълните монтажни зони се измерват с рулетка.
- Рамката е обшита с листове от гипсокартон с помощта на самонарезни винтове. Ако декорът отива на гипсокартон, напречната греда и страничните части са покрити в 2 слоя.
- Порталът е една от най -важните части на камината. Днес можете да намерите в продажба полиуретан, естествен камък, дървени декоративни портали. Дизайнът и стилът на портала трябва да съответстват на основния интериор, а размерът трябва да съответства точно на камината. Не забравяйте, че закупеният портал се монтира само веднъж..

Ако не искате да харчите пари за портал, направете го сами от гипсокартон.
- Залепете няколко парчета гипсокартон заедно с монтажно лепило, за да получите желаната дебелина. Изрежете по контура с трион, след това използвайте абразивна мрежа, за да изберете вдлъбнатини и прорези, направете кръгове, ако е необходимо.
- Когато външната форма на портала е готова, запълнете празнините с шпакловка и замажете външната повърхност с абразивна мрежа, за да получите равномерен бял слой.
- Последният етап е импрегниране с PVA замазка. Външно и по текстура е подобно на течно лепило. Необходимо е да накиснете няколко слоя с него и да изчакате, докато изсъхне напълно. Повърхността трябва да е матова, като мрамор. Такива камини от гипсокартон изглеждат естествени.

Друг метод стъпка по стъпка за издигане на фалшива камина. За да го изградите, ще ви трябват гипсокартон, профили на направляващи стелажи (за рамката), самонарезни винтове със скрита глава (фиксиращи листове), обикновени самонарезни винтове (от 1,4 до 1,6 см), дюбелни пирони (фиксиращи профили към стената и пода), грунд, шпакловка, лепило, фугираща смес.
Етап 1. Маркировката трябва да се постави върху пода и стените. Ще ви е необходим, за да инсталирате профилите. Трябва да работите в пълно съответствие с чертежа.
Стъпка 2. Прикрепете водачите по линиите, като вземете предвид структурата на повърхността.
Етап 3. Трябва да инсталирате стелажи в водачите, да закрепите всичко със самонарезни винтове. Рамката на камината се сглобява отделно, като се вземе предвид портала.
Етап 4. Рамката е покрита с гипсокартон.
Етап 5. Довършване и декорация, като се вземат предвид интериора и характеристиките на помещението.
Декор на портала
Декорацията на портала е един от най -креативните и приятни етапи на изграждане на фалшива камина. Лесно е да направите красив декор, ако използвате различни мостри, примери за готови дизайни. За украса на ръчно изработена камина се използват различни материали, като тапети, декоративни тухли, изкуствен камък, плочки.
- Тухла. Тухлена облицовка, истинска или изкуствена, изглежда луксозно и здраво. Ако камината е направена с високо качество, е трудно да се разграничи от истинската. Сянката на тухлата е подпряна под интериора на стаята. Ако стаята е направена в светли цветове, тухлата трябва да е млечна, бяла, бежова. Кафява, червена тухла се използва най -добре за селски стил или таванско помещение.
- Керамични плочки. Облицовката на керамични плочки е един от най -популярните методи. Керамичните плочки имат висока топлопроводимост, не изискват специална поддръжка, лесни са за монтаж. Голям избор от нюанси, текстури ви позволява да експериментирате с дизайна на камината. За полагане на такива плочки трябва да използвате специално топлоустойчиво лепило.
- Лепенки. Декорирането със самозалепващ се филм е прост и евтин начин. По -добре е да използвате филма, ако повърхността на конструкцията е идеално равна. Огромен избор от нюанси, филмови шарки създава специален акцент. По -добре е да използвате такъв материал за декорация, ако камината е с малки размери..
- дърво. Облицовката от естествено дърво изглежда красива и естествена. Този екологичен материал перфектно ще се впише в селски интериор и дори в модерен апартамент, ако изберете правилния нюанс..
- Естествен или изкуствен камък. Можете сами да украсите камината с естествен или изкуствен камък. Изглежда красиво и естетически в градски апартамент. Това е най -популярната и широко разпространена облицовка, която ви позволява да създадете реалистичен портал с шикозна релефна повърхност. Камъкът се фиксира със специално лепило за плочки. Цветът на финала се избира според стила на стаята.
- Мрамор. Ако отидете да украсите камината си с красив, издръжлив и огнеупорен материал, мраморът е идеален за тази цел. Този материал е най -добре използван за довършване на големи портали. Изглежда красиво в стая, направена в същия стил..
- Декоративна мазилка. Декорирането на камина с декоративна мазилка изглежда елегантно и модерно. Бяла, млечна, бежова или ярка мазилка със студени нюанси изглежда красиво на портала. Можете да го приложите сами или да наемете майстор. Цената на мазилката е ниска.
- Оцветител. Специалната бързосъхнеща домашна боя е идеална за декориране на камина в класически стил. Порталът е боядисан с бяла боя и допълнително декориран с мазилка. Плотът за камината е най -добре изработен от мрамор. В този случай камината ще изглежда скъпа и стилна..
- Стиропор. Формоването от стиропор изглежда леко и елегантно. Особеността на този материал е, че е лек, поддава се на рязане, лесно е да се боядисва и декорира. Стиропорът е перфектно прикрепен към конструкцията с лепило.
- Полиуретан. Облицовката на камина с полиуретан е модерно решение. Този материал често се използва, тъй като е огнеупорен, запазва привлекателен външен вид за дълго време, лесно се фиксира, има ниско тегло и полиуретанът не се напуква с времето. Разнообразие от довършителни работи ви позволява да изберете най -подходящия вариант за конкретен дизайн. Фиксирано полиуретаново покритие с лепило или механично.

Въпреки външната крехкост на гипсокартона, той е доста здрав и издръжлив материал. Той е в състояние да издържи теглото на изкуствени камъни, тухли, мрамор, плочки, декор. Материалът се поддава добре на боядисване, замазка. Декоративна тухла, мрамор е прикрепена към повърхността на гипсокартона с помощта на специално строително лепило. Има едно условие: ако финишът е тежък, рамката от гипсокартон трябва да бъде покрита на няколко слоя и се препоръчва да се постави грунд отгоре. Рамката също трябва да бъде изработена от здрав профил..

Ако се предполага, че в камината ще бъде монтирана електрическа камина, вътрешността трябва да бъде обшита с листове магнезит, а върху нея да се постави фолио. Този защитен слой не позволява на камината да се нагрява и предотвратява пожари. Голям минус на гипсокартона е, че той бързо се запалва. Ако искате да добавите изключителност към камината, поръчайте решетка от ковано желязо в сервиза. Това ще придаде на композицията завършен, най -реалистичен вид..

Камина от гипсокартон
Камина от гипсокартон е оригинално, екологично решение за модерен интериор. Можете да го направите и инсталирате сами, без допълнителни разходи. Такава камина изглежда стилно, спретнато и, за разлика от тухлена, не изисква специални грижи. Той се вписва идеално в пространството на градски апартамент и селска къща. Въпреки изкуствеността, камината от гипсокартон създава уютна атмосфера.
Целта на имитацията
Домашна камина от гипсокартон изпълнява не само декоративна функция, но и има много предимства. С негова помощ можете да затворите батериите, да придадете на стаята атмосфера, комфорт, интимност. Особеността е, че можете да построите камина със собствените си ръце в апартамент и в същото време да не събирате разрешителни за нейното изграждане. Фалшивата камина може да бъде с всякаква форма, размер, конфигурация и това й позволява да се впише във всеки интериор.
За да изградите камина, ще ви трябват прости материали, които се продават в магазините за хардуер. Експертите могат да покажат как правилно да се изгради камина, както и да вземат решение за избора на необходимите инструменти. Камините от гипсокартон са безопасни, тъй като дизайнът не позволява използването на открит пламък. Цената на изкуствените камини е ниска и можете да ги инсталирате със собствените си ръце без външна помощ..
Фалшива камина често се използва като рафт, стойка, декоративно парче. Вместо истински огън в подготвена ниша, лесно е да се подреди електрическа камина, имитация на пламък. Особеността е, че конструкцията може да се мести из апартамента, ако не е прикрепена към стената..
Вътрешен дизайн
Размерите на камината в апартамента трябва да съответстват на общото пространство на помещението, в което се намира. Големите камини са подходящи за голяма стая, малките конструкции ще изглеждат подходящи в малка стая. Фалшива камина често се инсталира в коридора, в хола, кухнята, спалнята и дори в банята. Понякога се използва като стойка за телевизор. Камината, в зависимост от интериора в стаята, може да бъде декорирана в класически стил, модерен, селски, английски, хай-тек.
Ако искате дизайнът да съответства на стила на апартамент или къща, обърнете специално внимание, когато се регистрирате за портал, комин или сайт преди пещта. Ако камината е направена в класически стил, тя е украсена с мрамор, естествено дърво. Рафтовете са незаменим декоративен елемент за такъв дизайн. С рафтовете камината изглежда красива, става функционална. Можете да поставите фигурки, свещници, вази върху тях.
Порталът за камина от гипсокартон е украсен със стъкло, електрическа камина. Порталът с аквариума изглежда оригинален и стилен. Може да се постави и на широк рафт. Електрическа камина, направена в стената, изглежда необичайно и напълно се слива с повърхността. Дизайнерите съветват да украсите празен портал с решетка от ковано желязо, горивна камера, свещи, оригинални вази, картина, огледало.
Изгледи
Фалшива камина се различава от истинската с невъзможността да запали огън вътре в портала. Камини от гипсокартон не са предназначени за открит огън, дори ако са завършени с огнеупорни материали! Техният портал се формира от имитация на пламък, който се включва и изключва, когато собственикът се нуждае от него. Оформлението на такава камина може да бъде поръчано от капитана или можете да го направите сами въз основа на съществуващите..
Материали и инструменти
Структурите от гипсокартон са най -популярните днес. Този материал най -често се използва за облицовка на рамката. Той върви добре с всяко покритие и е лесен за сглобяване. Лесно е да се подреди пространствена форма с всякаква сложност от гипсокартон. Цената на материала е ниска.
За изграждането на изкуствена камина са необходими инструменти. Необходимо е да закупите: U-образен метален профил, листове от гипсокартон, ламели, самонарезни винтове (14-15 мм), специални самонарезни винтове с потапяща глава, рулетка, дюбели, отвертка, мелница, перфоратор, отвес , ниво на сградата, силикон, шпакловка, боя на водна основа, елементи за декорация. Количеството материали зависи от направените изчисления и размера на конструкцията.
Рамката за камина от гипсокартон е изградена от стандартен профил. Обикновено за тези цели се използва метална стойка или направляващ профил. Рамка се създава от чертеж или оформление. Тя трябва да бъде фиксирана към стената и пода със специално лепило, ако камината е малка – със самонарезни винтове. Над кутията трябва да има солидна основа за по -нататъшно довършване (ако ще правите рафт).
Рамката трябва да бъде обшита с гипсокартон. Това е лек материал, който се поддава добре на рязане. Лесно е да се работи с него. Техническите характеристики на материала са такива, че той се използва не само за декоративни цели, но и за изграждане на неносещи прегради, окачени тавани, облицовки на стени, при създаване на колони, арки и други конструкции. Висококачествените гипсокартонени плоскости, произведени в съответствие с ГОСТ, са издръжливи и издържат на допълнително тегло.
След като направите рамката, тя трябва да бъде обшита с гипсокартон. За тези цели ще трябва да изрежете листа с ръчна мелница. Фугите трябва да бъдат допълнително обезопасени с профил (имайте предвид това при закупуване на материали). Облицовъчните шевове се фиксират с самонарезни винтове и шпакловка. Често материалът от гипсокартон не изисква довършване, така че след известно време облицовката на портала може да се смени, без да се разглобява устройството.
Производствена процедура
Преди да издигнете камина, решете мястото на строителството. Конструкцията трябва да бъде разположена близо до стената и да не пречи на свободното преминаване. Те не трябва да се прилепват към камината, да я докосват с ръце и крака. Неправилното място за камината може да развали впечатлението за пространството и самата конструкция. Когато решавате местоположението на фалшивата камина, ще са необходими скици.
Отделете малко време за проектирането му, защото камината ще се превърне в доминиращ обект във вътрешността на стаята. Направете сами някои скици или помолете дизайнер да го направи. По скиците се прави чертеж, който показва реалните размери на конструкцията. Когато го разработвате, използвайте готови чертежи или скици. Можете да нарисувате груб дизайн върху голямо парче ватман и да го прикрепите към стената. Ако всичко ви подхожда, започнете да създавате прототипи.
Оформлението се извършва според чертежа, като се вземат предвид размерите на бъдещата камина. С негова помощ се правят изчисления и разходи за материали. Оформленията са направени от пяна или картон. Когато създавате оформление, не е необходимо да се придържате към точни изчисления. Той е необходим, за да има визуална представа за дизайна, който трябва да се направи. Оформлението може да показва грешки, лесно е да го премествате из апартамента и да експериментирате (изберете цвят, декор).
Следващият етап след прототипирането е изграждането.
Ако не искате да харчите пари за портал, направете го сами от гипсокартон.
Друг метод стъпка по стъпка за издигане на фалшива камина. За да го изградите, ще ви трябват гипсокартон, профили на направляващи стелажи (за рамката), самонарезни винтове със скрита глава (фиксиращи листове), обикновени самонарезни винтове (от 1,4 до 1,6 см), дюбелни пирони (фиксиращи профили към стената и пода), грунд, шпакловка, лепило, фугираща смес.
Етап 1. Маркировката трябва да се постави върху пода и стените. Ще ви е необходим, за да инсталирате профилите. Трябва да работите в пълно съответствие с чертежа.
Стъпка 2. Прикрепете водачите по линиите, като вземете предвид структурата на повърхността.
Етап 3. Трябва да инсталирате стелажи в водачите, да закрепите всичко със самонарезни винтове. Рамката на камината се сглобява отделно, като се вземе предвид портала.
Етап 4. Рамката е покрита с гипсокартон.
Етап 5. Довършване и декорация, като се вземат предвид интериора и характеристиките на помещението.
Декор на портала
Декорацията на портала е един от най -креативните и приятни етапи на изграждане на фалшива камина. Лесно е да направите красив декор, ако използвате различни мостри, примери за готови дизайни. За украса на ръчно изработена камина се използват различни материали, като тапети, декоративни тухли, изкуствен камък, плочки.
Въпреки външната крехкост на гипсокартона, той е доста здрав и издръжлив материал. Той е в състояние да издържи теглото на изкуствени камъни, тухли, мрамор, плочки, декор. Материалът се поддава добре на боядисване, замазка. Декоративна тухла, мрамор е прикрепена към повърхността на гипсокартона с помощта на специално строително лепило. Има едно условие: ако финишът е тежък, рамката от гипсокартон трябва да бъде покрита на няколко слоя и се препоръчва да се постави грунд отгоре. Рамката също трябва да бъде изработена от здрав профил..
Ако се предполага, че в камината ще бъде монтирана електрическа камина, вътрешността трябва да бъде обшита с листове магнезит, а върху нея да се постави фолио. Този защитен слой не позволява на камината да се нагрява и предотвратява пожари. Голям минус на гипсокартона е, че той бързо се запалва. Ако искате да добавите изключителност към камината, поръчайте решетка от ковано желязо в сервиза. Това ще придаде на композицията завършен, най -реалистичен вид..