Особености
Сега няма нужда да бягате от килера към коридора, в който се намира огледалото в цял ръст, като вземете тази или онази комбинация от дрехи. И внезапното появяване на гости няма да ви изненада заради разхвърляния апартамент, защото всички неща могат да бъдат разпределени в съблекалнята. Дори в най -малкия апартамент е възможно да се постави съблекалня с компактни размери, в която да се съхраняват дрехи, обувки, аксесоари.

По този начин съблекалнята ще побира готови комбинации от дрехи, а нещата, подредени в определен ред, по-късно ще ви спестят време за търсене и избор. Спешно необходим артикул ще бъде намерен за секунди.
Съхранението на вещи може да се организира както според функционалното предназначение на дрехите, например тениски и тениски на един рафт, дънки и панталони на друг, така и разпределението на нещата по цвят. Инсталирайки съблекалня, винаги ще сте сигурни, че нещата са спретнато окачени, няма да се набръчкат и няма да загубят безупречния си вид..
Къде можете да поставите
Възможно е да се постави съблекалня в частна къща, в апартамент и дори в селска къща. Не се заблуждавайте, че собствениците на малки жилища трябва да се откажат от собствената си съблекалня. Съблекалнята може да бъде вградена или разположена в отделна стая.
Гардеробните стаи за всеки вкус и бюджет са представени на вашето внимание.
От килера
Ако имате складово помещение в оформлението на вашия апартамент, тогава препоръчваме да използвате тази стая по най -полезния начин. Поставяйки конструкция за съхранение на дрехи и вещи, можете да използвате цялата използваема площ по възможно най -добрия начин. Съблекалнята пасва идеално в размера на килера. Достатъчно е просто да добавите различни рафтове, чекмеджета, скоби за окачване на връхни дрехи към гардеробите. В кутиите можете да инсталирате разделителни ленти и да поставите там колани, аксесоари, шапки. Поставете добре сгънати дрехи по рафтовете, както и подредете обувки, подредени според сезоните.

Съблекалнята трябва да отговаря на вашите нужди, следователно към дизайна трябва да се подходи след анализ на броя на нещата. Разбирането на общото количество неща за съхранение ще помогне за правилното изчисляване на необходимия брой рафтове..
В спалнята
Ако спалнята е с впечатляващи размери и собственикът предпочита да има съблекалня на една ръка разстояние, тогава дизайнерите са готови да предложат най -различни варианти. Съблекалнята може да бъде с плъзгащи се врати или дори да има конструкция без врати. Индивидуална съблекалня с уникален дизайн е проектирана за всеки клиент..
В коридора
Най -доброто решение за запълване на коридора е да инсталирате съблекалня. Сега няма нужда да купувате гардероби и скринове, които заемат свободно място в стаите. Инсталирайки съблекалня в коридора, решавате няколко проблема едновременно: освобождавате свободното пространство в стаите и организирате празното пространство в коридора. Съблекалнята може да бъде проектирана като ъгъл, вграден в стената или всяка друга конфигурация.
От ниша
За да може интериорът да се отличава със своята индивидуалност, достатъчно е да използвате безплатни ниши за монтиране на гардеробна система. Можете да привлечете вниманието на другите към такъв нестандартен подход, интересен дизайн, а също така да направите всяка ниша полезна и функционална.
На тавана
Не трябва да крадете място за съблекалня в спалните на собствената ви вила, защото таванската стая върши отлична работа за решаването на този проблем. Използването на таванското помещение позволява рационално използване на жилищното пространство за нуждите на съвременния човек.
Под стълбите
Пространството под стълбите е доста просторно и ви позволява да поставяте неща и дрехи. Поставете съблекалнята под стълбите и ще спестите пари за закупуване на други мебели за съхранение.
Материали (редактиране)
За направата на съблекалня със собствените си ръце се използват различни материали. Предложеният списък с материали ще ви помогне да направите правилния избор.
Гипсокартонът ви позволява да направите отделна ниша в стаята, която допълнително е наситена с аксесоари за удобно съхранение на нещата. Гипсокартонът е лесен за боядисване, защото съблекалнята може да бъде направена за най -смелите предпочитания за цвят..
Лесно е да се направи съблекалня от стари мебели, с оригинален и уникален дизайн, с минимални инвестиции на пари и максимална икономия на време за производството на елементи.

ПДЧ е достъпен и често срещан материал за изработка на рамки, рафтове и чекмеджета. Позволява ви да създадете съблекалня в различни цветови вариации, с матово или гланцово покритие на лицевата повърхност..

Жокерската система е основа, която включва различни аксесоари за насищане на съблекални. Притежателите на чаши и рафтове, куки, закачалки ще направят съблекалнята функционална.

Шперплатът е материал с повишени якостни свойства. Шперплатът се използва широко за производството на прегради и рафтове в съблекални.

Дървото е естествен материал, който може да се използва за създаване на съблекални в детски стаи, летни вили, всякакви жилищни помещения, където собствениците се грижат за безопасността и екологичността на интериора..

Хромовите тръби ви позволяват да направите стайна гардеробна мрежа. Използват се тръби, чийто външен диаметър не надвишава 25 мм. Тръбата се реже лесно с ножовка, а свързващите и фиксиращи аксесоари ще помогнат за монтирането й в гардероба. Хромирана тръбна конструкция за висока производителност.
Как да го направите правилно: инструкции стъпка по стъпка
Планиране
Днес съблекалнята за повечето хора вече не е лукс, а необходим атрибут на жизнено пространство. Високият ритъм на живот изисква голямо количество дрехи, което е важно да се съхранява правилно. Добре проектираната съблекалня ще създаде определено настроение в стаята, ще спести място в други помещения, ще осигури удобство и комфорт в ежедневието.
Преди да проектирате съблекалня, трябва да решите нейното местоположение, изисквания за дизайн и капацитет, сумата на парите, които сте готови да похарчите за производство. Гардеробна стая може да бъде осигурена за всички членове на семейството или, напротив, за всеки може да се отделят отделни ниши. Размерът на стаята ще зависи от това дали искате да допълвате съхранението на дрехите си с предмети като одеяла, възглавници и комплекти спално бельо. Спортното оборудване може да бъде разположено и в съблекалнята.

Предварително сортирайте нещата, за да изчислите необходимия брой рафтове и закачалки. Препоръчително е да съставите няколко скици на съблекални и след консултация с всички членове на семейството да спрете избора на една. Когато проектирате, помислете за няколко допълнителни рафта, които може да ви потрябват в бъдеще..

При разработването на проект за мрежест гардероб трябва да се има предвид, че структурата на мрежест рафт може да издържи не повече от 60 кг. Такива системи обаче се отличават със своята достъпност и относителна лекота на инсталиране..
Монтаж
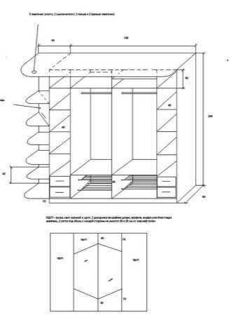
Рафтовете се монтират на разстояние 35 или 40 см един от друг. Дълбочината на рафтовете, като правило, е повече от 40 см. Широките рафтове ви позволяват да подреждате дрехи в няколко купчини. Дългите рафтове изискват допълнителна опора, за да се предотврати увисването от тежки предмети. Препоръчително е да поставите пръчките на разстояние 100 см един над друг. При наличие на дълги палта или рокли се допуска монтаж на едноредов прът. Чекмеджетата трябва да се монтират с помощта на качествени фитинги, които могат да издържат на големи натоварвания. Чекмеджетата, разположени над линията на гърдите, са изключително неудобни. Кошниците с тежки предмети не трябва да се поставят по -високо от височината им.

Плъзгащите се врати се вписват в почти всеки интериор и конфигурация на помещението. Такива врати се отличават не само със своята функционалност, но и добавят специален дизайн към интериора. Плъзгащите се врати са лесни за използване за деца и възрастни хора. За да монтирате врати, не се изисква опит или специални умения, просто поставете вратите в водачите.

Когато проектирате багажник в съблекалня, не трябва да забравяте, че не е обичайно да се съхранява бельо в тях, както и лекарства в отворени или прозрачни контейнери. Трябва предварително да помислите какво ще поставите на отворени рафтове. Стелажите са практични, защото могат да бъдат изработени в различни размери. Определете вашите нужди и действайте смело. Стелажите ви позволяват да спестите място и да съхранявате голямо количество различни неща и дрехи в сгънато състояние.
Осветление и вентилация
Необходимо е да се обърне специално внимание на създаването на достатъчно осветление и наличието на вентилация. Наличието на малко естествена светлина не изключва необходимостта от допълнителни източници на светлина, като полилеи, аплици, подови лампи. Светлината в зоната, където се намират огледалата, играе важна роля. Подовото осветление по целия периметър на помещението ще подобри осветяването на долните рафтове. Основната работа по осигуряване на чист въздух се извършва чрез вентилация. Именно вентилираното помещение гарантира защита срещу неприятни миризми и образуване на вредители. Също така вентилацията елиминира отлагането на прах върху дрехите и нещата..
Подреждане
Когато в съблекалнята има достатъчно свободно място, можете да инсталирате удобен стол или диван. Помислете за поставяне на огледала, които могат да бъдат самостоятелни или монтирани на стена. Ще бъде полезно да закупите допълнителни закачалки, които, ако е необходимо, ще ви помогнат да поставите нови дрехи.
Интересни идеи в интериора
Ето разнообразие от дизайни на гардеробни стаи, които могат да послужат като вдъхновение за проектирането на вашето собствено.
- Ето пример за съблекалня, която се намира в килера. Трябва да се отбележи, че стаята е направена така, че да отговаря на изискванията на мъжа. Рафтовете за чанти, обувки, дънкови панталони, пуловери и пуловери са подредени в определен ред..
- Тази килерче придобива съвсем различен звук, когато в него са проектирани рафтове, размерът на цялата дължина на стаята. Дизайнът на съблекалнята е украсен с релефна багета. Поради ограниченото пространство в конструкцията няма врати на панти, както и минимален брой чекмеджета.
- Дизайнът се отличава с наличието на вградени лампи по целия периметър на стаята. Точковото осветление ви позволява без усилия да намерите необходимите артикули на най -горните рафтове. Тъй като ширината на помещението е достатъчна, за да побере различни разтегателни рафтове, тази съблекалня е проектирана с всякакви вариации..
- Съблекалнята е проектирана в минималистичен стил, с малък брой чекмеджета. Плетените кошници с дръжки се използват за малки предмети и различни аксесоари. Панталоните не се съхраняват сгънати на рафтове, а се окачват на специални държачи. Конструкцията е монтирана към тавана и подовата повърхност, за да се гарантира стабилността на системата. Препоръчва се за монтаж в малка спалня. Гардеробът е икономична класа и ви позволява да се възползвате максимално от свободното пространство в спалнята на ниска цена. Ниска цена, удобство, лекота на монтаж – отличителни черти без конструкция на вратата.
- Плъзгащите се врати отделят зоната за спане от съблекалнята. Това решение е подходящо за помещения с обща площ над 18 кв. М. По правило в такива съблекални се поставят огледало в цял ръст и дъска за гладене. В отделна съблекалня е възможно да се съхраняват не само дрехи и обувки, но и домакински уреди, като прахосмукачка, ютия. Възможно е да се добавят рафтове към системата за съхранение на книги, семейни фотоалбуми, предмети за лична хигиена и козметика.
- Плъзгащите се врати, разделящи съблекалнята, ще бъдат модерно и практично решение. Изработени са от стъкло или огледала. Стъклото може да бъде цветно, прозрачно или тонирано. Често има гофрирано или шарено стъкло, както и мозайки. Цената на оригиналния дизайн на вратите на купето е сравнително висока, но те със сигурност ще обявят отличния вкус на собственика..
- Съблекалнята е представена от сложен дизайн, който поради големите огледала визуално увеличава пространството в коридора. Интересен дизайн със сигурност ще привлече вниманието на гостите. При липса на достатъчно светлина в коридора, вграденото осветление в гардеробната система ще бъде от значение..
- Разпространена версия на съблекалнята в руските апартаменти. Този избор е за предпочитане за големи апартаменти с широки коридори. Шарнирните врати създават известни неудобства за използване в коридори. Затова се препоръчват плъзгащи се врати, които се отличават със своята надеждност и стабилност. Такива съблекални са направени строго по размер и ви позволяват да скриете неравностите на стените на коридора..
- Дизайнерско предложение, което създава специфичен стил на интериор в апартамента. Плетените кошници от ракита придават оригиналност на съблекалнята. Няколко вертикални и хоризонтални прегради, наличието на куки придават на дизайна простота и минимализъм. Относително ниските разходи за производство и лекотата на инсталиране на такива съблекални също са обнадеждаващи..
- Смело решение, при което съблекалнята няма врати. Минималистичният дизайн се отличава с конструкцията. Препоръчително е да инсталирате двуреден закачалка в съблекалнята, ако имате голям брой блузи, якета, костюми.
- Отделна ниша е направена с помощта на гипсокартон, в който е монтирана гардеробна конструкция. Това решение помага да се използва всяко свободно пространство, налично в апартамента или къщата. Често жилищните проекти вече имат различни ниши, които са чудесни за гардероби. Можете да намерите къщи, в които за всеки член на семейството е отделена отделна ниша с съблекалня..
- Инсталирайте сгъваеми врати в нишата и съблекалнята е готова за насищане с рафтове или закачалка. Вратите могат да бъдат пластмасови, стъклени или дървени. Също така, различни текстурирани завеси изглеждат страхотно, които служат като отличен заместител на вратите. Производителите предлагат огромен набор от компоненти и готови системи за пълнене на съблекалнята.
- Просторно таванско помещение с модерна гардеробна система. Дискретна цветова палитра и ярък диван създават специален стил. Високите стени позволяват висящи стелажи за връхни дрехи като палта. А в тесни ниши е възможно да се съхраняват обувки.
- Съблекалнята е направена в светли цветове, които визуално добавят пространство в стаята. Липсата на естествена светлина се компенсира чрез инсталиране на различни лампи, насочени към всички ниши на тавана. Свободното пространство в средата на съблекалнята се използва за мебели, където се съхраняват и различни неща и дрехи.
- Наличието на апартамент на тавана не изключва възможността за инсталиране на съблекалня. Представен е дизайнът в пастелни цветове, който създава уют и комфорт. Ниската стена на тавана не позволява инсталирането на гардероб, поради което съхранението на нещата може да бъде организирано по най -добрия начин с помощта на гардеробна система, състояща се от хромирани тръби.
- Вградената гардеробна система използва най-добре празното пространство под стълбите. Гланцираните бели фасади придават въздух и лекота на интериора.
- Недостатъчното пространство е чудесно за съхранение на предмети извън сезона. Дизайнът може да бъде допълнен както от чекмеджета, така и от закачалки, удобни за поставяне на рокли, палта и други цялостни неща.

Как да направите съблекалня със собствените си ръце: майсторски клас
Особености
Сега няма нужда да бягате от килера към коридора, в който се намира огледалото в цял ръст, като вземете тази или онази комбинация от дрехи. И внезапното появяване на гости няма да ви изненада заради разхвърляния апартамент, защото всички неща могат да бъдат разпределени в съблекалнята. Дори в най -малкия апартамент е възможно да се постави съблекалня с компактни размери, в която да се съхраняват дрехи, обувки, аксесоари.
По този начин съблекалнята ще побира готови комбинации от дрехи, а нещата, подредени в определен ред, по-късно ще ви спестят време за търсене и избор. Спешно необходим артикул ще бъде намерен за секунди.
Съхранението на вещи може да се организира както според функционалното предназначение на дрехите, например тениски и тениски на един рафт, дънки и панталони на друг, така и разпределението на нещата по цвят. Инсталирайки съблекалня, винаги ще сте сигурни, че нещата са спретнато окачени, няма да се набръчкат и няма да загубят безупречния си вид..
Къде можете да поставите
Възможно е да се постави съблекалня в частна къща, в апартамент и дори в селска къща. Не се заблуждавайте, че собствениците на малки жилища трябва да се откажат от собствената си съблекалня. Съблекалнята може да бъде вградена или разположена в отделна стая.
Гардеробните стаи за всеки вкус и бюджет са представени на вашето внимание.
От килера
Ако имате складово помещение в оформлението на вашия апартамент, тогава препоръчваме да използвате тази стая по най -полезния начин. Поставяйки конструкция за съхранение на дрехи и вещи, можете да използвате цялата използваема площ по възможно най -добрия начин. Съблекалнята пасва идеално в размера на килера. Достатъчно е просто да добавите различни рафтове, чекмеджета, скоби за окачване на връхни дрехи към гардеробите. В кутиите можете да инсталирате разделителни ленти и да поставите там колани, аксесоари, шапки. Поставете добре сгънати дрехи по рафтовете, както и подредете обувки, подредени според сезоните.
Съблекалнята трябва да отговаря на вашите нужди, следователно към дизайна трябва да се подходи след анализ на броя на нещата. Разбирането на общото количество неща за съхранение ще помогне за правилното изчисляване на необходимия брой рафтове..
В спалнята
Ако спалнята е с впечатляващи размери и собственикът предпочита да има съблекалня на една ръка разстояние, тогава дизайнерите са готови да предложат най -различни варианти. Съблекалнята може да бъде с плъзгащи се врати или дори да има конструкция без врати. Индивидуална съблекалня с уникален дизайн е проектирана за всеки клиент..
В коридора
Най -доброто решение за запълване на коридора е да инсталирате съблекалня. Сега няма нужда да купувате гардероби и скринове, които заемат свободно място в стаите. Инсталирайки съблекалня в коридора, решавате няколко проблема едновременно: освобождавате свободното пространство в стаите и организирате празното пространство в коридора. Съблекалнята може да бъде проектирана като ъгъл, вграден в стената или всяка друга конфигурация.
От ниша
За да може интериорът да се отличава със своята индивидуалност, достатъчно е да използвате безплатни ниши за монтиране на гардеробна система. Можете да привлечете вниманието на другите към такъв нестандартен подход, интересен дизайн, а също така да направите всяка ниша полезна и функционална.
На тавана
Не трябва да крадете място за съблекалня в спалните на собствената ви вила, защото таванската стая върши отлична работа за решаването на този проблем. Използването на таванското помещение позволява рационално използване на жилищното пространство за нуждите на съвременния човек.
Под стълбите
Пространството под стълбите е доста просторно и ви позволява да поставяте неща и дрехи. Поставете съблекалнята под стълбите и ще спестите пари за закупуване на други мебели за съхранение.
Материали (редактиране)
За направата на съблекалня със собствените си ръце се използват различни материали. Предложеният списък с материали ще ви помогне да направите правилния избор.
Гипсокартонът ви позволява да направите отделна ниша в стаята, която допълнително е наситена с аксесоари за удобно съхранение на нещата. Гипсокартонът е лесен за боядисване, защото съблекалнята може да бъде направена за най -смелите предпочитания за цвят..
Лесно е да се направи съблекалня от стари мебели, с оригинален и уникален дизайн, с минимални инвестиции на пари и максимална икономия на време за производството на елементи.
ПДЧ е достъпен и често срещан материал за изработка на рамки, рафтове и чекмеджета. Позволява ви да създадете съблекалня в различни цветови вариации, с матово или гланцово покритие на лицевата повърхност..
Жокерската система е основа, която включва различни аксесоари за насищане на съблекални. Притежателите на чаши и рафтове, куки, закачалки ще направят съблекалнята функционална.
Шперплатът е материал с повишени якостни свойства. Шперплатът се използва широко за производството на прегради и рафтове в съблекални.
Дървото е естествен материал, който може да се използва за създаване на съблекални в детски стаи, летни вили, всякакви жилищни помещения, където собствениците се грижат за безопасността и екологичността на интериора..
Хромовите тръби ви позволяват да направите стайна гардеробна мрежа. Използват се тръби, чийто външен диаметър не надвишава 25 мм. Тръбата се реже лесно с ножовка, а свързващите и фиксиращи аксесоари ще помогнат за монтирането й в гардероба. Хромирана тръбна конструкция за висока производителност.
Как да го направите правилно: инструкции стъпка по стъпка
Планиране
Днес съблекалнята за повечето хора вече не е лукс, а необходим атрибут на жизнено пространство. Високият ритъм на живот изисква голямо количество дрехи, което е важно да се съхранява правилно. Добре проектираната съблекалня ще създаде определено настроение в стаята, ще спести място в други помещения, ще осигури удобство и комфорт в ежедневието.
Преди да проектирате съблекалня, трябва да решите нейното местоположение, изисквания за дизайн и капацитет, сумата на парите, които сте готови да похарчите за производство. Гардеробна стая може да бъде осигурена за всички членове на семейството или, напротив, за всеки може да се отделят отделни ниши. Размерът на стаята ще зависи от това дали искате да допълвате съхранението на дрехите си с предмети като одеяла, възглавници и комплекти спално бельо. Спортното оборудване може да бъде разположено и в съблекалнята.
Предварително сортирайте нещата, за да изчислите необходимия брой рафтове и закачалки. Препоръчително е да съставите няколко скици на съблекални и след консултация с всички членове на семейството да спрете избора на една. Когато проектирате, помислете за няколко допълнителни рафта, които може да ви потрябват в бъдеще..
При разработването на проект за мрежест гардероб трябва да се има предвид, че структурата на мрежест рафт може да издържи не повече от 60 кг. Такива системи обаче се отличават със своята достъпност и относителна лекота на инсталиране..
Монтаж
Рафтовете се монтират на разстояние 35 или 40 см един от друг. Дълбочината на рафтовете, като правило, е повече от 40 см. Широките рафтове ви позволяват да подреждате дрехи в няколко купчини. Дългите рафтове изискват допълнителна опора, за да се предотврати увисването от тежки предмети. Препоръчително е да поставите пръчките на разстояние 100 см един над друг. При наличие на дълги палта или рокли се допуска монтаж на едноредов прът. Чекмеджетата трябва да се монтират с помощта на качествени фитинги, които могат да издържат на големи натоварвания. Чекмеджетата, разположени над линията на гърдите, са изключително неудобни. Кошниците с тежки предмети не трябва да се поставят по -високо от височината им.
Плъзгащите се врати се вписват в почти всеки интериор и конфигурация на помещението. Такива врати се отличават не само със своята функционалност, но и добавят специален дизайн към интериора. Плъзгащите се врати са лесни за използване за деца и възрастни хора. За да монтирате врати, не се изисква опит или специални умения, просто поставете вратите в водачите.
Когато проектирате багажник в съблекалня, не трябва да забравяте, че не е обичайно да се съхранява бельо в тях, както и лекарства в отворени или прозрачни контейнери. Трябва предварително да помислите какво ще поставите на отворени рафтове. Стелажите са практични, защото могат да бъдат изработени в различни размери. Определете вашите нужди и действайте смело. Стелажите ви позволяват да спестите място и да съхранявате голямо количество различни неща и дрехи в сгънато състояние.
Осветление и вентилация
Необходимо е да се обърне специално внимание на създаването на достатъчно осветление и наличието на вентилация. Наличието на малко естествена светлина не изключва необходимостта от допълнителни източници на светлина, като полилеи, аплици, подови лампи. Светлината в зоната, където се намират огледалата, играе важна роля. Подовото осветление по целия периметър на помещението ще подобри осветяването на долните рафтове. Основната работа по осигуряване на чист въздух се извършва чрез вентилация. Именно вентилираното помещение гарантира защита срещу неприятни миризми и образуване на вредители. Също така вентилацията елиминира отлагането на прах върху дрехите и нещата..
Подреждане
Когато в съблекалнята има достатъчно свободно място, можете да инсталирате удобен стол или диван. Помислете за поставяне на огледала, които могат да бъдат самостоятелни или монтирани на стена. Ще бъде полезно да закупите допълнителни закачалки, които, ако е необходимо, ще ви помогнат да поставите нови дрехи.
Интересни идеи в интериора
Ето разнообразие от дизайни на гардеробни стаи, които могат да послужат като вдъхновение за проектирането на вашето собствено.