
“Хрушчовци” се наричат апартаменти в панелни и тухлени къщи с много апартаменти, които започнаха да се строят по време на управлението на Н. С. Хрушчов. Строителството обхваща периода от края на 50 -те до 80 -те години на миналия век. Тогава се предполагаше, че това ще бъде временно жилище за граждани, преместващи се от селски райони в големи столични райони.
В много градове на страната ни все още има такива къщи с малки апартаменти.. Основният недостатък на такова жилище е малка площ.. Когато не е възможно да се смени жилището с по -модерно, жителите на сградите “Хрушчов”, с помощта на преустройство и ремонт, се опитват визуално да увеличат пространството. Всички нюанси на такива промени ще бъдат обсъдени в тази статия..
Особености
Хрушчовете се различават от другите жилища с малкия си размер. Оформлението на такива апартаменти е различно., но има общи подробности:
- височина на тавана около 2,5 м, понякога 2,7 м;
- малка кухненска част;
- тесни коридори;
- наличието на малки вградени гардероби и мецанини;
- проходими стаи;
- лоша звукоизолация (в панелни къщи е по -лошо, отколкото в тухлени къщи).

В преработен апартамент те се опитват да вземат предвид и да сведат до минимум всички тези недостатъци. Ето основните идеи за превръщането на обикновен стандартен Хрушчов в красив, просторен и функционален корпус:
- Комбинирането на банята и тоалетната ще помогне за визуално увеличаване на пространството и успешно настаняване на необходимите предмети (пералня, домакински прибори).
- Преместване на вратите, за да се отървете от проходите.
- Разрушаването на завеси и издигането на леки зониращи конструкции ще добавят насипно състояние към малко пространство.
- Комбинирането на балкон със стая понякога е много подходящо.
Правила за зониране
Интериорните дизайнери често използват техника като зониране. Същността му е да отдели една функционална зона от друга в едно общо пространство, използвайки различни техники: светли и цветни акценти, мебели или декорация (под, стени, таван). Най -честите случаи, когато е необходимо зониране:
- Кухнята е комбинирана с хола. Зоната за отдих е отделена от зоната за приготвяне на храна с бар плот, който може да функционира като маса за хранене. Или използвайте различни материали или различни нюанси на подови настилки и стени.
- Ъгловият апартамент има стая с два прозореца. Такава стая може успешно да бъде разделена на две с помощта на прегради от гипсокартон, паравани или стелажи..
- Две съседни стаи са комбинирани (стая-стая, стая-склад, стая-балкон). Колкото и абсурдно да звучи, но когато комбинират две съседни стаи в Хрушчов, те искат да запазят функционалното си предназначение. В такива случаи подиумът често се използва..
Преди да изберете красива картина с ново оформление, е по -добре да прочетете и слушате рецензии на различни строителни форуми: понякога промените могат да бъдат трудни за изпълнение, а значителната възраст на къщите на Хрушчов може да наложи допълнителни разходи за ремонт. Също така е по -добре да изберете дизайнер въз основа на репутацията..

Заслужава да се спомене, че не всички промени в пространството на вашия апартамент са допустими в жилищна сграда:
- забранено е увеличаването на площта на кухнята или банята за сметка на жилищни квадратни метри с повече от 25%;
- не можете да комбинирате кухнята с друга стая с помощта на арка, ако печката е на газ (но това действие не е забранено в случай на електрическа печка);
- намесите в носещи конструкции (стени, прегради), както и тяхното отстраняване, са неприемливи;
- всякакви промени в схемите на общите инженерни комуникации са забранени;
- не можете да прехвърлите кухнята във всекидневната;
- неприемливо е оборудването на баня в зоните, където съседите отдолу са жилищни помещения; изключение правят двуетажните апартаменти, в които холът ви може да бъде разположен под баня;
- забранено е прехвърлянето на батерии за централно отопление към балкони и лоджии, дори ако са остъклени и изолирани;
- изключва се използването на тавански помещения като жилищни.

В допълнение към горните точки, си струва да си припомним, че всяко преустройство не трябва да влошава предишните условия на живот..
Как и къде да се договорим
Преди да проучите процедурата за легализиране на преустройството, си струва да решите кои промени във вашия дом трябва да бъдат регистрирани и кои не.
Реконструкция, подмяна на стари прозорци и врати с нови, добавяне на подиуми и вградени гардероби не е необходимо да се регистрират в специални услуги.

И тук всички действия, които след ремонт ще доведат до промени в конфигурацията на пространството (увеличаване и / или намаляване на броя и заснемането на стаи, подреждане на допълнителни помещения, прехвърляне на врати и прегради), както и промени в комуналните услуги (в електрическо окабеляване, тръбопроводи, вентилация, създаване на нови или промени в съществуващи бани) трябва да бъде записано в техническия паспорт на стаята.

Съвестното отношение към жилищното законодателство ще ви спаси от санкции, трудности при продажбата на този имот, извънредни ситуации.
Още преди да започне ремонтът, си струва да потърсите съвет от специалистите на следните предприятия, като предоставя проект на промени:
- Жилищна инспекция;
- Градски отдел за капитално строителство;
- адвокати, специализирани в въпросите на недвижимите имоти (такива представители обикновено са в агенциите за недвижими имоти);
- строителни и ремонтни фирми, дизайнерски фирми.

При консултацията не се издават разрешителни, вие само ще можете да отговорите на въпроса дали тези промени могат да бъдат направени. Ако след това реконструкцията е одобрена за вас, тогава алгоритъмът за по -нататъшни действия ще бъде приблизително следният. Първата стъпка е да получите заповед от Държавната жилищна инспекция (GZI) за правото да извършвате ремонтни дейности, това ще изисква следните документи:
- Документ за право на собственост върху апартамент (договор за покупко -продажба, приватизационен договор, наследствени права), признава се само оригиналът или нотариално заверено копие.
- Технически паспорт на апартамента, в който се планира ремонтът. При липса на технически паспорт, трябва да се свържете с Бюрото за техническа инвентаризация на вашия град (ОТИ). В същото време цената на услугите ще зависи от спешността на производството, обема на работата по прегледа. Минималната цена за такива услуги е 900 рубли.
- Заявление, посочващо преустройството на установената извадка. Формулярът може да бъде получен и попълнен директно при подаване на документи.
- Съгласие за преустройство на всички регистрирани хора, живеещи в апартамента.
- Директно проект за преустройство на самия апартамент. По -добре е той да бъде изготвен за вас от проектантска организация, която има сертификат SRO. Цената на такива услуги варира и може да бъде 15 000-30 000 рубли. Планът на нова стая може да бъде изготвен самостоятелно, ако предстоят малки промени, които не засягат носещите конструкции и комунални услуги (например изграждането на преграда).
- Документ за самоличност.

Горният списък е най -пълният за предоставяне на цялата територия на Руската федерация. В допълнение към този списък с документи, представители на инспекционните и разрешителните органи нямат право да искат. Можете да съставяте документи директно чрез GZI или MFC във вашия град. Последната опция е по -удобна, тъй като има функции за запис.

Дори ако предстоящите промени в апартамента не са значителни и не изискват специални разрешителни за легализация, такива промени трябва да бъдат направени в техническия паспорт на имота..
В къщи на стара сграда ремонтът може да бъде труден поради факта, че сградата принадлежи към историческото наследство на града. В такива случаи ще трябва да получите друго разрешение от отдела за защита на паметниците. Всички предоставени документи (име и количество) трябва да бъдат записани в разписка, която ще ви бъде предоставена, когато се свържете с MFC. Срок за разглеждане на заявлението 30 дни от датата на подаване на документите.

В резултат на разглеждане на заявлението ще бъде издаден документ или за разрешение, или за забрана за преустройство. В първия случай можете спокойно да продължите с ремонта. Във втория случай внимателно проучете документа, Официалните причини за отказ могат да бъдат три:
- Проектът е компилиран с грешки и / или съдържа неприемливи промени в помещенията.
- Предоставя се непълен пакет документи или тяхната автентичност е под въпрос.
- Подадена е молба с придружаващи документи за разглеждане до органи, които не се занимават с тези въпроси. Можете да избегнете такава грешка, ако се свържете с MFC: те сами доставят документите на необходимия орган..

Ако има увереност, че отказът е издаден неоснователно, можете да го оспорите в съда.
Втората стъпка ще бъде директно самият ремонт в стаята., спазване на нормите и правилата на закона, и в пълно съответствие с предоставения проект. Всяко отклонение от плана може да доведе до нарушаване на цялата процедура за легализиране на преустройството, увеличаване на сроковете и увеличаване на разходите за ремонт..

След края на преустройството трябва да получите Закона за завършената реорганизация. Този документ може да бъде получен и чрез MFC или директно от жилищната инспекция.. За регистрацията му ще ви трябва:
- подпише акт във фирмата, извършваща ремонта (трябва да има SRO), ако ремонтът е извършен от сили на трети страни; нужда от марки от отделите за проектиране и строителство;
- изготвят подписани актове за скрити работи, ако в резултат на ремонт са скрити някакви инженерни комуникации; актовете трябва да съдържат марки на строители и проектанти.

След като получи всички необходими подписи и маркировки, актът се представя на упълномощения орган. Инспекторът на жилищната инспекция проверява помещенията за съответствие с плана за преустройство. При липса на коментари собственикът на апартамента получава одобрен акт с маркировката на Жилищната инспекция.

След приключване на всички ремонтни дейности и получаване на разрешителни, резултатите от преустройството трябва да бъде вписан в техническия паспорт. Това ще стане от ОТИ. Когато кандидатствате за нов паспорт, не забравяйте да предоставите документ за собственост на жилищното пространство.

Техник ще пристигне в съоръжението и ще направи всички необходими измервания. След 25 дни ще можете да получите нов технически паспорт. Цената на услугите отново ще зависи от площта на помещенията, спешността на услугите и от вашия регион. Средно такива разходи са 2000-4000 рубли.

След това ще трябва да направите промени в кадастралния паспорт на обекта. Трябва да се свържете или с MFC на вашия град, или с отдел Rosreestr. Подгответе следните документи:
- технически план на апартамента; ще ви бъде издаден в ОТИ (по -добре е да поръчате както на хартиен, така и на електронен носител);
- нов технически паспорт;
- заявление за изменение на кадастралния план;
- документ за самоличност;
- плащат държавна такса от 200 рубли за хартиен паспорт и 150 рубли за електронен документ.

Последният етап: изменение на акта за собственост. Подайте необходимия пакет документи в Rosreestr (нов технически паспорт и кадастрален план, документ за самоличност, съществуващ сертификат за апартамент, разписка за плащане на държавно мито) и след 25 дни ще получите нов сертификат за собственост.
Процедурата за регистрация на преустройството е обезпокоителна и скъпа, но необходима. Ако не е възможно да направите това сами, можете да се доверите на служителите на строителни или адвокатски кантори, те ще изготвят всички необходими документи срещу заплащане.
Реконструкция
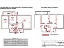
Сега нека преминем към най -приятната част от такава трудна задача като преустройството и помислете как можете да подобрите „Хрушчов“, като реорганизирате пространството.
Една стая
Средната площ на едностаен Хрушчов е 28-32 кв. м, докато много малка кухня на площ от 6-7 кв. м, 15-19 кв. м. Те се намират както с балкон, така и без него. Трудно е да се увеличи пространството в едностаен апартамент. Но също и 30 кв. m можете да оборудвате уютен и функционален кът за двама или трима души. Най -често в такива апартаменти:
- Комбинирайте банята, ако беше отделна. Увеличеното пространство ви позволява да поставите необходимите домакински уреди (пералня, сушилня). Понякога те заменят обичайната баня с душ кабина, почистват мивката.
- Преместете вратата на кухнята / стаята. Комбинираната кухня със стаята е зонирана чрез разделянето им с преграда, която служи като маса или бар. В някои случаи е удобно перваза на прозореца да стане част от работната кухненска повърхност. Апартаментите, в които единична стая е комбинирана с кухня, се наричат студиа..
- Балконът може да служи и като функционално пространство, но е по -добре да го остъклите и изолирате (не забравяйте, че радиаторите за централно отопление не могат да се преместват, но подовото отопление е приемливо). Можете да направите страничните стени слепи, да вградите гардероби и да получите удобно складово помещение. Или можете да инсталирате бюро и да получите проучване. Или оборудвайте зона за отдих.
Двустаен
В двустаен апартамент общата площ варира от 40-46 кв. м, жилищна площ 26-30 кв. м, а кухненската площ, като правило, е не повече от 6-7 кв. м. В този случай има малко повече място за въображение. Най -честите причини за преустройство в този случай:
- Малката площ на кухнята “Хрушчов”, като правило, води до комбинация със съседна стая. Резултатът е хол с трапезария..
- Често се започва преустройство в „парчето копейка“, за да се направят 2 стаи отделни.

За апартаменти, в които и двете стаи имат прозорци от едната страна, те често използват следната схема: те прехвърлят вратата срещу входа от коридора, а преминаването към втората стая се извършва през килера, а стаята за преминаване е отделена от преграда от гипсокартон, стелаж или празен шкаф.

Ако оформлението е в стил “трамвай”, тези стаи с прозорци от противоположните страни, е удобно да се издигне преграда в проходната стая, така че площта на коридора да се увеличи. В резултат на това площта на самата стая ще се намали леко, но в получения коридор е практично да се подредят рафтове и стелажи за съхранение на вещи и книги, а не да се затрупват дневни с обемисти мебели.
- Банята също попада в ремонт: за някой е удобно да има комбинирана, докато за други е по -удобно да има две отделни стаи.
Тристаен
Площта на “трешки” в къщите на сградите на Хрушчов достига около 60 квадратни метра. м. Следователно проблемите и характеристиките са едни и същи реконструкцията, като правило, е насочена към:
- увеличаване на площта на кухнята;
- увеличаване на банята;
- напускане на проходните стаи;
- създаване на 3 малки стаи 2 големи.
Четиристаен
Щастливите собственици на четиристаен апартамент вече имат на разположение 62-72 кв. м. Преустройствата са насочени, като правило, към увеличаване на кухнята и създаване на големи удобни стаи.
Красиви интериорни опции
Когато избирате дизайн за малки апартаменти в къщите на Хрушчов, трябва да дадете предпочитание на светли нюанси (бяло, сиво, пясъчно, бежово, кремаво), огледални и стъклени повърхности и да изберете спокоен интериорен стил, без излишни детайли, например класически , държава, хай-тек.

Разпространените оформления на двустайни апартаменти в ремарке са най-успешните и причиняват най-малките трудности при проектирането. Дори и без преустройство, можете функционално да подредите мебели в проходната стая и стаята забележимо ще се промени.

Всички тънкости на преустройството на “Хрушчов”, вижте следното видео.
Тънкостите на преустройството “Хрушчов”
“Хрушчовци” се наричат апартаменти в панелни и тухлени къщи с много апартаменти, които започнаха да се строят по време на управлението на Н. С. Хрушчов. Строителството обхваща периода от края на 50 -те до 80 -те години на миналия век. Тогава се предполагаше, че това ще бъде временно жилище за граждани, преместващи се от селски райони в големи столични райони.
В много градове на страната ни все още има такива къщи с малки апартаменти.. Основният недостатък на такова жилище е малка площ.. Когато не е възможно да се смени жилището с по -модерно, жителите на сградите “Хрушчов”, с помощта на преустройство и ремонт, се опитват визуално да увеличат пространството. Всички нюанси на такива промени ще бъдат обсъдени в тази статия..
Особености
Хрушчовете се различават от другите жилища с малкия си размер. Оформлението на такива апартаменти е различно., но има общи подробности:
В преработен апартамент те се опитват да вземат предвид и да сведат до минимум всички тези недостатъци. Ето основните идеи за превръщането на обикновен стандартен Хрушчов в красив, просторен и функционален корпус:
Правила за зониране
Интериорните дизайнери често използват техника като зониране. Същността му е да отдели една функционална зона от друга в едно общо пространство, използвайки различни техники: светли и цветни акценти, мебели или декорация (под, стени, таван). Най -честите случаи, когато е необходимо зониране:
Преди да изберете красива картина с ново оформление, е по -добре да прочетете и слушате рецензии на различни строителни форуми: понякога промените могат да бъдат трудни за изпълнение, а значителната възраст на къщите на Хрушчов може да наложи допълнителни разходи за ремонт. Също така е по -добре да изберете дизайнер въз основа на репутацията..
Заслужава да се спомене, че не всички промени в пространството на вашия апартамент са допустими в жилищна сграда:
В допълнение към горните точки, си струва да си припомним, че всяко преустройство не трябва да влошава предишните условия на живот..
Как и къде да се договорим
Преди да проучите процедурата за легализиране на преустройството, си струва да решите кои промени във вашия дом трябва да бъдат регистрирани и кои не.
Реконструкция, подмяна на стари прозорци и врати с нови, добавяне на подиуми и вградени гардероби не е необходимо да се регистрират в специални услуги.
И тук всички действия, които след ремонт ще доведат до промени в конфигурацията на пространството (увеличаване и / или намаляване на броя и заснемането на стаи, подреждане на допълнителни помещения, прехвърляне на врати и прегради), както и промени в комуналните услуги (в електрическо окабеляване, тръбопроводи, вентилация, създаване на нови или промени в съществуващи бани) трябва да бъде записано в техническия паспорт на стаята.
Съвестното отношение към жилищното законодателство ще ви спаси от санкции, трудности при продажбата на този имот, извънредни ситуации.
Още преди да започне ремонтът, си струва да потърсите съвет от специалистите на следните предприятия, като предоставя проект на промени:
При консултацията не се издават разрешителни, вие само ще можете да отговорите на въпроса дали тези промени могат да бъдат направени. Ако след това реконструкцията е одобрена за вас, тогава алгоритъмът за по -нататъшни действия ще бъде приблизително следният. Първата стъпка е да получите заповед от Държавната жилищна инспекция (GZI) за правото да извършвате ремонтни дейности, това ще изисква следните документи:
Горният списък е най -пълният за предоставяне на цялата територия на Руската федерация. В допълнение към този списък с документи, представители на инспекционните и разрешителните органи нямат право да искат. Можете да съставяте документи директно чрез GZI или MFC във вашия град. Последната опция е по -удобна, тъй като има функции за запис.
Дори ако предстоящите промени в апартамента не са значителни и не изискват специални разрешителни за легализация, такива промени трябва да бъдат направени в техническия паспорт на имота..
В къщи на стара сграда ремонтът може да бъде труден поради факта, че сградата принадлежи към историческото наследство на града. В такива случаи ще трябва да получите друго разрешение от отдела за защита на паметниците. Всички предоставени документи (име и количество) трябва да бъдат записани в разписка, която ще ви бъде предоставена, когато се свържете с MFC. Срок за разглеждане на заявлението 30 дни от датата на подаване на документите.
В резултат на разглеждане на заявлението ще бъде издаден документ или за разрешение, или за забрана за преустройство. В първия случай можете спокойно да продължите с ремонта. Във втория случай внимателно проучете документа, Официалните причини за отказ могат да бъдат три:
Ако има увереност, че отказът е издаден неоснователно, можете да го оспорите в съда.
Втората стъпка ще бъде директно самият ремонт в стаята., спазване на нормите и правилата на закона, и в пълно съответствие с предоставения проект. Всяко отклонение от плана може да доведе до нарушаване на цялата процедура за легализиране на преустройството, увеличаване на сроковете и увеличаване на разходите за ремонт..
След края на преустройството трябва да получите Закона за завършената реорганизация. Този документ може да бъде получен и чрез MFC или директно от жилищната инспекция.. За регистрацията му ще ви трябва:
След като получи всички необходими подписи и маркировки, актът се представя на упълномощения орган. Инспекторът на жилищната инспекция проверява помещенията за съответствие с плана за преустройство. При липса на коментари собственикът на апартамента получава одобрен акт с маркировката на Жилищната инспекция.
След приключване на всички ремонтни дейности и получаване на разрешителни, резултатите от преустройството трябва да бъде вписан в техническия паспорт. Това ще стане от ОТИ. Когато кандидатствате за нов паспорт, не забравяйте да предоставите документ за собственост на жилищното пространство.
Техник ще пристигне в съоръжението и ще направи всички необходими измервания. След 25 дни ще можете да получите нов технически паспорт. Цената на услугите отново ще зависи от площта на помещенията, спешността на услугите и от вашия регион. Средно такива разходи са 2000-4000 рубли.
След това ще трябва да направите промени в кадастралния паспорт на обекта. Трябва да се свържете или с MFC на вашия град, или с отдел Rosreestr. Подгответе следните документи:
Последният етап: изменение на акта за собственост. Подайте необходимия пакет документи в Rosreestr (нов технически паспорт и кадастрален план, документ за самоличност, съществуващ сертификат за апартамент, разписка за плащане на държавно мито) и след 25 дни ще получите нов сертификат за собственост.
Процедурата за регистрация на преустройството е обезпокоителна и скъпа, но необходима. Ако не е възможно да направите това сами, можете да се доверите на служителите на строителни или адвокатски кантори, те ще изготвят всички необходими документи срещу заплащане.
Реконструкция
Сега нека преминем към най -приятната част от такава трудна задача като преустройството и помислете как можете да подобрите „Хрушчов“, като реорганизирате пространството.
Една стая
Средната площ на едностаен Хрушчов е 28-32 кв. м, докато много малка кухня на площ от 6-7 кв. м, 15-19 кв. м. Те се намират както с балкон, така и без него. Трудно е да се увеличи пространството в едностаен апартамент. Но също и 30 кв. m можете да оборудвате уютен и функционален кът за двама или трима души. Най -често в такива апартаменти:
Двустаен
В двустаен апартамент общата площ варира от 40-46 кв. м, жилищна площ 26-30 кв. м, а кухненската площ, като правило, е не повече от 6-7 кв. м. В този случай има малко повече място за въображение. Най -честите причини за преустройство в този случай:
За апартаменти, в които и двете стаи имат прозорци от едната страна, те често използват следната схема: те прехвърлят вратата срещу входа от коридора, а преминаването към втората стая се извършва през килера, а стаята за преминаване е отделена от преграда от гипсокартон, стелаж или празен шкаф.
Ако оформлението е в стил “трамвай”, тези стаи с прозорци от противоположните страни, е удобно да се издигне преграда в проходната стая, така че площта на коридора да се увеличи. В резултат на това площта на самата стая ще се намали леко, но в получения коридор е практично да се подредят рафтове и стелажи за съхранение на вещи и книги, а не да се затрупват дневни с обемисти мебели.
Тристаен
Площта на “трешки” в къщите на сградите на Хрушчов достига около 60 квадратни метра. м. Следователно проблемите и характеристиките са едни и същи реконструкцията, като правило, е насочена към:
Четиристаен
Щастливите собственици на четиристаен апартамент вече имат на разположение 62-72 кв. м. Преустройствата са насочени, като правило, към увеличаване на кухнята и създаване на големи удобни стаи.
Красиви интериорни опции
Когато избирате дизайн за малки апартаменти в къщите на Хрушчов, трябва да дадете предпочитание на светли нюанси (бяло, сиво, пясъчно, бежово, кремаво), огледални и стъклени повърхности и да изберете спокоен интериорен стил, без излишни детайли, например класически , държава, хай-тек.
Разпространените оформления на двустайни апартаменти в ремарке са най-успешните и причиняват най-малките трудности при проектирането. Дори и без преустройство, можете функционално да подредите мебели в проходната стая и стаята забележимо ще се промени.
Всички тънкости на преустройството на “Хрушчов”, вижте следното видео.