
В процеса на избор на проект за изграждане на вила в крайградска зона е необходимо да се реши колко етажа ще има в сградата. От този момент зависи не само функционалността на дома, но и общата цена на работата. Изборът на етажност на сграда е пряко повлиян от площта на територията. Ако е малък, тогава едноетажни къщи винаги ще бъдат на място..
Характеристики на оформлението
Този тип развитие ще направи възможно реализирането на всички дизайнерски идеи. Готовата сграда се оказва възможно най -безопасна и издръжлива, но тази опция е подходяща само за малки семейства. Характеристиките на оформлението на едноетажни вили директно зависят от избрания проект. Основната цел е да се създаде пространство, в което всеки метър да се използва рационално. Ето защо необходимо е внимателно да се обмисли всеки момент, който може да повлияе на крайния резултат от работата.

Трябва да се направи така, така че всяка стая да е правилно разположена. Броят на проходимите стаи трябва да бъде сведен до минимум. Ако е необходимо, можете да създадете комбинирана баня, която ще спести възможно най -ценното пространство. Характеристиките на оформлението на големи къщи и малки структури са различни. Ако в просторни къщи е възможно да се създаде отделна съблекалня или други помещения, тогава в малки сгради такива моменти са изключени.
Ето защо е необходимо да се вземе предвид площта на вашата къща, за да се определи най -добрият вариант в конкретна ситуация..
Големи вили
Ако трябва да планирате къща с площ до 100 кв. m, тогава е необходимо да се обърне специално внимание на посоката на склоновете на покрива. Трябва да се уверите, че вятърът духа директно в тях. Благодарение на това може да се постигне минимално ниво на съпротивление, което изключва преждевременните деформации. Ако живеете в район, където посоката на вятъра се променя често и драстично, покривите от тазобедрен тип са подходящи за вас. Тези структури ви позволяват да създавате допълнителни равнини, които няма да позволят валежите да повлияят на стените на сградата..

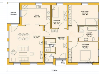
Създаване на план на къща с размери 150 кв. m трябва да се извършва, като се вземат предвид нюансите, характерни за ландшафтния дизайн на територията. Не е необходимо да се изгражда сграда в крайните точки., тъй като това ще доведе до деформация на сградата след минимален интервал от време. Местната администрация ще помогне да се избегнат проблеми и трудности в процеса на избор на място за поставяне на сграда. В такива тела можете да получите карта, показваща основните характеристики на релефа на сайта, поради което можете да построите къща на най -доброто място, като избягвате неприятни изненади в бъдеще..
За съхранение на неща можете да организирате отделна съблекалня. Там можете спретнато да сгънете дрехите си, спалното бельо, якетата и шубите. Можете също така да инсталирате гардероб, ниши, шарнирни рафтове в гардероба. Всички тези подробности ще ви позволят рационално да планирате пространството, чието използване ще бъде най -оптимално..
В големите вили често е оборудвана комбинирана баня. Такива помещения дават възможност да се спести възможно най -ценно пространство. Комбинираната баня има достатъчно място за монтиране на водопроводни инсталации, допълнителни мебели, пералня и сушилня..
Малки къщи
Оформлението на малка къща поражда много въпроси сред хората. Бих искал да спестя пари и да увелича вътрешното пространство, така че условията на живот да са удобни. Ако строите малка къща с площ 8×9, 10×12 или 9×12 кв. м тогава можете да използвате прости и достъпни съвети:
- най -добрият вариант би бил подреждането на сутеренния етаж. Там могат да се преместват различни стаи, като по този начин се спестява място;
- можете да създадете замислен мансарден покрив, който също ще се използва за различни цели;
- отличен избор би бил инсталирането на покрив само с един наклон, тъй като в бъдеще ще бъде възможно да се организира таванска стая или специална зона;
- в къща с малки размери е подходящ и плосък покрив, който ще се превърне в чудесно място за вашата релаксация;
- необичаен начин да увеличите ценното пространство е да организирате гараж или домашна работилница.

С помощта на тези ергономични елементи можете да направите оформлението на къщата по -разнообразно. Освен това сградата става интересна от функционална и архитектурна гледна точка. Особено внимание трябва да се обърне на подреждането на комуникационните системи. Добре е, ако е възможно да се намали дължината на тръбите в конструкцията на тръбопровода до минимум. В противен случай ще трябва да създадете много връзки, защото това е единственият начин да инсталирате дълги тръби. Ако има твърде много връзки в комуникациите, рискът от течове се увеличава значително..
Ако настройвате канализационна система, струва си да организирате добър отток на вода. Моля, имайте предвид, че тя трябва да борави с големи обеми течност, в края на краищата, голям брой домакински уреди са инсталирани в къщи, за работата на които е необходима вода.
Ето защо по този въпрос си струва да използвате помощта на опитни професионалисти, които могат да изчислят всичко правилно.

Организацията на комуникационните системи в сградата се извършва в съответствие с изискванията, които са представени от санитарно-техническите власти. Преработката на отпадъчни води се извършва в естествен режим, където ефектът на гравитацията е подходящ. Ето защо е необходимо да изберете правилното място, където ще се намира канализацията. За да организирате такава работа, ще ви е необходимо специално разрешение, което се издава от санитарните служби. Също така трябва внимателно да обмислите подреждането на ямата, където ще се изхвърлят отпадъчните води..

Не използвайте дъждовна канализация или водоеми за отводняване. В противен случай рискувате да получите глоба, тъй като санитарната инспекция незабавно ще реагира на такива нарушения. Може дори да бъдете призовани в съда от комунално предприятие, тъй като подобни действия са вредни за околната среда. Бъдете много внимателни при изучаването на онези правила и изисквания, които се прилагат за организацията на канализационната система на частна територия.
Мрежовите компании, които работят във вашия район, също могат да имат специални правила и изисквания. По принцип техните условия са свързани с използването на домакински уреди.

Необходимо е предварително да знаете всички важни нюанси, за да не се сблъскате с проблеми и неприятни изненади в бъдеще.. Има някои полезни насоки, които да ви помогнат да организирате правилно пространството си:
- можете да създадете ефектно оформление, ако изоставите стандартния коридор. Можете да изберете да изведете тази стая на затворена веранда. Също така подходящ вариант би бил инсталирането на просторен шкаф, който ще бъде разположен в непосредствена близост до вратата;
- някои хора предпочитат да комбинират кухнята и хола в едно пространство. Това ще разшири пространството, тъй като няма да има масивни прегради вътре в структурата;
- можете да спестите ценно пространство, като организирате комбинирана баня. Ъгловите водопроводни инсталации ще ви помогнат тук, което няма да заема твърде много място. В такава стая ще бъдете удобни и просторни;
- необходимо е активно да се използват ниши, стенни шкафове и други практични мебели, които да побират максималния брой неща. Избягвайте обемисти шкафове, както и огромни моливи, тъй като те крият ценно пространство;
- оборудвайте килер, комбиниран с съблекалня. Това е добро място за съхранение на предмети, които не носите в момента. Също така в такава стая можете да съхранявате инвентар, както и други строителни инструменти..
Опитайте да замените няколко дяла със структурни колони. Те ще бъдат проектирани от опитни професионалисти.
Само професионалистите ще могат да изчислят оптималното ниво на натоварване, което ще избегне проблеми в бъдеще..
Предимства и недостатъци
Сред предимствата на проектирането на едноетажна къща могат да се подчертаят следните точки:
- цената за изграждане на фундамент не е твърде висока, тъй като можете да се ограничите до най -простите му видове. Основата лесно ще издържи теглото на сградата, така че в бъдеще няма да се сблъскате с проблеми;
- можете също да спестите от изграждането на стени, защото не е нужно да се притеснявате как да укрепите конструкцията. Също така не сте ограничени в процеса на избор на най -добрия строителен материал за изпълнение на възложените ви задачи;
- много по-лесно е да се създаде инженерство в едноетажна сграда, отколкото в многоетажна сграда. Не е нужно да харчите много финанси и време за подреждането на комуникациите, както и за организацията на отоплителната система;
- простият дизайн на едноетажни къщи допринася за факта, че строителните работи отнемат много по-малко време;
- не е нужно да изграждате стълбище, водещо до втория етаж, което прави възможно значително да се спести от строителния процес.

Ако не се нуждаете от твърде много стаи, изберете едноетажна къща.. Тези сгради имат няколко слабости, които също заслужават да бъдат споменати:
- проектирането на такива къщи причинява много трудности, тъй като е необходимо да се създаде минимален брой стаи, които причиняват дискомфорт;
- едноетажните сгради изискват значителни разходи за подреждането на покрива;
- трудно е да се създаде оформление, което да спести ценно пространство в малка къща.
Въпреки тези недостатъци, едноетажните домове са популярни сред хората. Можете да получите своя мечтан дом, без да харчите много пари и усилия за изграждането му.
Стилистичен дизайн
Ако говорим за стила на къщата, тогава има много възможности. В днешно време сградите са декорирани в стилове, които предизвикват възхищение и наслада. Можете да изберете правилния интериор, като се фокусирате върху вашите нужди и възможности..
8 снимки
Модерни
Това е практичен и рационален вариант за декориране на дървена къща. Интериорът трябва да съдържа естествени нюанси, както и естествени материали. Агресивните комбинации от нюанси са неподходящи тук. Изберете мебели с гладки и спретнати линии. Стените могат да бъдат украсени с картини на художници от различни епохи. Модерният е стил, в който миналото е хармонично преплетено с настоящето.
7 снимки
Класически
Във финландските и други сгради класическият стил винаги ще бъде печеливш. В такъв интериор са подходящи таванни мазилки, копринени тапети, красиви лампи и антични елементи. Струва си да изберете меки нюанси, които ще създадат успокояваща и уютна атмосфера. Разбира се, мебелите са подходящи тук. от естествени материали. В спалнята може да се монтира голямо дървено легло, уютни кресла в коридора.
Най -добре е стените да бъдат завършени с изкуствен камък или дърво, тъй като еднакви решения трябва да бъдат проследени във всички интериорни детайли..
Таванско помещение
Това е интересен и необичаен стил, който е популярен в днешно време. Подходящ е за декориране на къща от трупи или други материали. Това е хармонична комбинация от индустриален дизайн на сгради със сложни решения. Незавършените тухлени стени се допълват от индустриални осветителни тела. Също така, такъв интериор може да съдържа други интересни “чипове”. Много хора не разбират какви са характеристиките на този стил, но той се утвърди положително сред почитателите на нестандартни решения. С негова помощ можете да се отдалечите от скучните и обикновени интериори, които в наше време вече не изненадват никого..
Минимализъм
Това е необичаен вариант, който ще ви помогне да създадете уникален интериор. Често може да се види в американски домове. Тук комбинираните помещения се допълват от панорамни прозорци. Мебелите са функционални и практични. Формите на обектите трябва да са ясни и равномерни. Всеки ъгъл на пространството се използва рационално, което е ключът към успешния интериорен дизайн.
Можете да изберете стила на интериорната декорация на дома, който ви подхожда. Вземете на борда английски къщи и други структури, които ще ви позволят да проявите въображение и креативност.
Основното е, че разбирате какви са особеностите на този или онзи материал. Само в този случай ще можете хармонично да ги комбинирате помежду си, което ще ви позволи да се насладите на резултатите от работата си..

Интериорният дизайн, в полза на който правите своя избор, трябва да бъде проследен във всяка стая в конструкцията. Това е единственият начин да създадете единно пространство, което да ви зарадва с ненадминат вид и функционалност. Обърнете внимание на характеристиките на материалите, които се използват в определен стил на интериора, цветове, форми и линии на мебели. Така че можете да се насладите на уюта, тъй като в къщата ще цари подходящата атмосфера. Разработчици, които работят в тази област много години подред, подчертайте следните характеристики на създаването на идеален дом:
- прозорците трябва да бъдат разположени на онези стени, които гледат към слънчевата страна на двора. Благодарение на това стаята ще бъде осветена през целия ден;
- стаите, в които хората ще почиват, трябва да бъдат разположени в задната част на къщата. Не забравяйте, че кухнята и коридорът са основните източници на шум, както и на неприятни миризми;
- не трябва да оборудвате детска стая и спалня, чиято площ е такава, че по -малко от 8 кв. м.

Най -добрият вариант би бил формата на стаята, която прилича на квадрат или правоъгълник. Не забравяйте, че дължината и ширината в случай на избор на правоъгълна форма не трябва да се различават повече от два пъти. Например, с ширина 3 m, дължината не трябва да надвишава 6 m.
8 снимки
Съвременни проекти
В процеса на планиране на частна къща е необходимо да се вземат предвид няколко полезни идеи, които ще ви позволят да постигнете желания резултат. За да намерите идеалната опция за всяка конкретна ситуация, внимателно проучете характеристиките на различните оформления.
С мазе на пода
Мазето е елемент от конструкция, който не е пълноценен етаж, поради което е невъзможно да се коригира ниският етаж на сграда с негова помощ. Подземната зона във вашия дом обаче може да бъде направена удобна и практична, в резултат на което мазето става неразделна част от общата площ на конструкцията. Ако говорим за мазе в едноетажна къща, тогава трябва да се помни, че този сайт не е подходящ за организиране на дневни. Дори и да имате дом с три спални, не бива да премествате една от стаите в мазето. Няма да можете да се чувствате комфортно поради недостатъчно осветление и липса на подходяща вентилация..
Въпреки това, дори в малки къщи с размери 10×12 кв. m, можете да създадете пералня или фитнес зала на сутерена. Семейството ще получи нови възможности за удобно съхранение на вещи, както и за монтаж на домакински уреди.
Не забравяйте, че цокълът може да се използва за тръбопроводи, пране и фитнес зала. Можете да инсталирате шкафове в мазето, за да съхранявате неща, за които няма място в къщата..
С таванско помещение
Това е точно опцията, която е широко разпространена и търсена сред хората. Разходите за организиране на таванско помещение често са равни на разходите за подреждане на две тавански пространства. Това е така, защото за да постигнете най -добър резултат, ще трябва да похарчите пари за допълнителна работа:
- затопляне на стаята;
- декорация на стаята;
- подреждане на отоплителната система.

Благодарение на това е възможно да се организират дневни на тавана с комфортни условия. Така че парите, инвестирани в процеса на ремонт, със сигурност ще се изплатят в бъдеще. Таванското помещение, подобно на мазето, не се счита за пълноценен етаж. Използваемата площ тук е доста малка, така че няма да е възможно напълно да се реши проблемът с липсата на място. Можете обаче да създадете интересно и разнообразно оформление на тясна къща без много усилия..
В къща с четири етажа таван определено не е необходим, но в едноетажна сграда е незаменим. Таванското помещение може да стане втори етаж в сградата. Тук можете да поставите спалня или малка баня. В зависимост от района на този сайт, човек може да избере коя стая да се премести тук..
На тавана може да има няколко малки спални. Също така тук често са оборудвани коридор или баня. Можете да направите баня, килер или други стаи.
С гараж
Ако къщата ви има само един етаж, все още можете да притежавате гараж или домашна работилница. Благодарение на такива решения ценното пространство може да бъде значително увеличено. Тук е подходящо симетрично оформление, което ви позволява правилно да организирате пространството, но някои хора правят избор в полза на определен брой стаи, които са подредени в произволен ред..

Ако говорим за симетрична версия на оформлението на конструкцията, тогава гаражното помещение трябва да бъде отделено от помещенията от жилищния тип. За такива цели можете да използвате капитални стени, които имат високо ниво на надеждност. Подобна сграда изглежда симетрична, когато е разделена наполовина на две отделни зони. Едната част ще бъде жилищна, а другата – парцел, отделен за създаване на гараж. Ако сте направили избор в полза на свободното разделяне на пространството, тогава гаражът просто ще прилепи към една от стените извън сградата..
Не забравяйте, че е необходимо да се изготви оформление много внимателно. Необходимо е да се предвиди възможност за достъп до помещенията не само от улицата, но и отстрани на конструкцията. Ето как можете бързо да стигнете до гаража или работилницата, без да страдате от лоши метеорологични условия..
За да увеличите ценното пространство във вашия дом, не е нужно да се ограничавате до една от тези опции. Можете да създадете и трите стаи едновременно, за да се насладите на комфорта и уютната среда на живот.
Декор
Много проекти са завършени със структурни елементи. Те имат положителен ефект върху архитектурата на сградата.. Сред тези подробности могат да се разграничат следните опции:
- декорация на еркера;
- балкони;
- веранди;
- тераси.

Всеки от тези елементи е разширение, единственото изключение е прозорецът на залива. Приложенията са необходими за топлия сезон, тъй като те дават възможност да се отпуснете в комфортни условия, наслаждавайки се на околните пейзажи. Зоната за сядане може да бъде организирана чрез изграждане на тераса или веранда. Вечер такива разширения се използват за уютно пиене на чай в кръга на любимите хора. На балкона можете да се отпуснете, да се любувате на територията, която заобикаля селската къща.

Еркерът е сложен елемент, който изпълнява други функции. Това е великолепен детайл от екстериора на всяка структура, тъй като прозорецът на залива коренно трансформира оформлението на сградата вътре в помещенията. Също така, използвайки еркера, можете да направите потока на естествената светлина по -интензивен, тъй като той ще влиза свободно в къщата от улицата. На чертежите с еркера отстрани на конструкцията можете да видите, че кутията със стандартни параметри става по -интересна, необичайна и оригинална.
Най -често еркерите се предпочитат да се монтират в сгради, изградени от дърво или камък. Видът на материала директно зависи от формата, в която ще бъде направен този елемент..
Полезни съвети
Разработването на проект за едноетажна къща е обезпокоителен и отговорен бизнес. Има много различни фактори, които трябва да се вземат предвид, за да се постигне желаният резултат, като същевременно се избегнат бъдещи проблеми. В процеса на работа е необходимо да се спазват определени правила, за да се направи всичко ефективно и бързо..
В самото начало трябва да решите мястото, на което ще бъде построена къщата. Тук се вземат предвид всички важни нюанси. Необходимо е да се проучи дълбочината на подземните води, да се реши възможността за полагане на комуникации, да се избере най -доброто място за изграждане на къща. В такава ситуация дори най -малките детайли са важни, тъй като грешките могат да доведат до непоправими последици в бъдеще.

След това е необходимо внимателно да се измери бъдещата структура, без да се изпуска всеки детайл от поглед. Най -често грешките в процеса на измерване причиняват неподходящ за използване корпус. Необходимо е да се изчисли квадратурата, да се определи местоположението на допълнителни помещения, внимателно да се изчисли размерът на територията. Това ще ви позволи да построите къща с оптимални размери, без да нарушавате основните строителни технологии..
Разбира се, всяка сграда трябва да отговаря на нормите на SNiP. Това е важен момент, без който е просто невъзможно да се пусне в експлоатация..
Спазването на правилата за безопасност също трябва да бъде проследено, защото в противен случай в къщата няма да се създадат удобни условия за живот. Освен това безопасността на хората, живеещи тук, може да бъде компрометирана..
Красиви примери
Можете да изберете някой от тези дизайни на къщи. Има няколко добри примера, които ще ви позволят да създадете уникална и оригинална структура..
Шикозна къща с покрив, разположен под лек наклон, ще се превърне във ваша гордост. Изглежда представително и солидно поради хармоничната комбинация от различни материали. Големите прозорци, които изпълват сградата с естествена светлина, са достойно допълнение към проекта..

Още една уютна къща, която диша с комфорт и уют. Дървесината, използвана в строителния процес, създава несравнима атмосфера. Фасадата е облагородена с сайдинг в пастелни цветове, който хармонично се комбинира с дървена ограда, която огражда терасата.

Ето един добър пример за рационално използване на сутеренния етаж. Можете да организирате малка фитнес зала, като поставите всички необходими симулатори и друго оборудване в стаята. Някои хора избират да превърнат мазето в килер, който се използва за съхранение на различни неща..

Дори покривът може да се използва рационално, ако е направен в плоска форма. Това е идеалното място за почивка. Тук можете да инсталирате камина и други елементи, с които можете напълно да се отпуснете, потопени в света на релаксация. Това могат да бъдат меки дивани, масичка за кафе, както и други интериорни елементи..

Просторна веранда, която ви позволява да инсталирате различни мебели, също ще бъде чудесно място за почивка. Можете да се отпуснете в уютна обстановка, докато се наслаждавате на природата, която заобикаля дома ви. Благодарение на това забавление можете да се настроите на романтично настроение..

Тази красива къща привлича вниманието със своя представителен вид. Стъклените врати са големи, така че максималното количество естествена светлина попада в стаята. Комбинацията от различни нюанси изглежда интересна и необичайна. Структурата изглежда ярко на фона на зеления пейзаж.

Това е пример за това как можете да организирате вътрешното пространство в къща от дърво. Уютна камина и лек стол ще ви позволят да се отпуснете и да се отпуснете, потопени в ненадминатата атмосфера на домашен уют. С такъв интериор можете да се почувствате като щастлив човек..

Когато избирате стил за декорация на дома, обърнете внимание на различни материали. Те изглеждат добре, когато се комбинират помежду си, така че можете да постигнете желания ефект с малко усилия. Готовата едноетажна къща ще бъде красива, уютна и комфортна.
Ще научите повече за тънкостите на оформлението на едноетажна къща в следващото видео..
Тънкостите на оформлението на едноетажна къща
В процеса на избор на проект за изграждане на вила в крайградска зона е необходимо да се реши колко етажа ще има в сградата. От този момент зависи не само функционалността на дома, но и общата цена на работата. Изборът на етажност на сграда е пряко повлиян от площта на територията. Ако е малък, тогава едноетажни къщи винаги ще бъдат на място..
Характеристики на оформлението
Този тип развитие ще направи възможно реализирането на всички дизайнерски идеи. Готовата сграда се оказва възможно най -безопасна и издръжлива, но тази опция е подходяща само за малки семейства. Характеристиките на оформлението на едноетажни вили директно зависят от избрания проект. Основната цел е да се създаде пространство, в което всеки метър да се използва рационално. Ето защо необходимо е внимателно да се обмисли всеки момент, който може да повлияе на крайния резултат от работата.
Трябва да се направи така, така че всяка стая да е правилно разположена. Броят на проходимите стаи трябва да бъде сведен до минимум. Ако е необходимо, можете да създадете комбинирана баня, която ще спести възможно най -ценното пространство. Характеристиките на оформлението на големи къщи и малки структури са различни. Ако в просторни къщи е възможно да се създаде отделна съблекалня или други помещения, тогава в малки сгради такива моменти са изключени.
Ето защо е необходимо да се вземе предвид площта на вашата къща, за да се определи най -добрият вариант в конкретна ситуация..
Големи вили
Ако трябва да планирате къща с площ до 100 кв. m, тогава е необходимо да се обърне специално внимание на посоката на склоновете на покрива. Трябва да се уверите, че вятърът духа директно в тях. Благодарение на това може да се постигне минимално ниво на съпротивление, което изключва преждевременните деформации. Ако живеете в район, където посоката на вятъра се променя често и драстично, покривите от тазобедрен тип са подходящи за вас. Тези структури ви позволяват да създавате допълнителни равнини, които няма да позволят валежите да повлияят на стените на сградата..
Създаване на план на къща с размери 150 кв. m трябва да се извършва, като се вземат предвид нюансите, характерни за ландшафтния дизайн на територията. Не е необходимо да се изгражда сграда в крайните точки., тъй като това ще доведе до деформация на сградата след минимален интервал от време. Местната администрация ще помогне да се избегнат проблеми и трудности в процеса на избор на място за поставяне на сграда. В такива тела можете да получите карта, показваща основните характеристики на релефа на сайта, поради което можете да построите къща на най -доброто място, като избягвате неприятни изненади в бъдеще..
За съхранение на неща можете да организирате отделна съблекалня. Там можете спретнато да сгънете дрехите си, спалното бельо, якетата и шубите. Можете също така да инсталирате гардероб, ниши, шарнирни рафтове в гардероба. Всички тези подробности ще ви позволят рационално да планирате пространството, чието използване ще бъде най -оптимално..
В големите вили често е оборудвана комбинирана баня. Такива помещения дават възможност да се спести възможно най -ценно пространство. Комбинираната баня има достатъчно място за монтиране на водопроводни инсталации, допълнителни мебели, пералня и сушилня..
Малки къщи
Оформлението на малка къща поражда много въпроси сред хората. Бих искал да спестя пари и да увелича вътрешното пространство, така че условията на живот да са удобни. Ако строите малка къща с площ 8×9, 10×12 или 9×12 кв. м тогава можете да използвате прости и достъпни съвети:
С помощта на тези ергономични елементи можете да направите оформлението на къщата по -разнообразно. Освен това сградата става интересна от функционална и архитектурна гледна точка. Особено внимание трябва да се обърне на подреждането на комуникационните системи. Добре е, ако е възможно да се намали дължината на тръбите в конструкцията на тръбопровода до минимум. В противен случай ще трябва да създадете много връзки, защото това е единственият начин да инсталирате дълги тръби. Ако има твърде много връзки в комуникациите, рискът от течове се увеличава значително..
Ако настройвате канализационна система, струва си да организирате добър отток на вода. Моля, имайте предвид, че тя трябва да борави с големи обеми течност, в края на краищата, голям брой домакински уреди са инсталирани в къщи, за работата на които е необходима вода.
Ето защо по този въпрос си струва да използвате помощта на опитни професионалисти, които могат да изчислят всичко правилно.
Организацията на комуникационните системи в сградата се извършва в съответствие с изискванията, които са представени от санитарно-техническите власти. Преработката на отпадъчни води се извършва в естествен режим, където ефектът на гравитацията е подходящ. Ето защо е необходимо да изберете правилното място, където ще се намира канализацията. За да организирате такава работа, ще ви е необходимо специално разрешение, което се издава от санитарните служби. Също така трябва внимателно да обмислите подреждането на ямата, където ще се изхвърлят отпадъчните води..
Не използвайте дъждовна канализация или водоеми за отводняване. В противен случай рискувате да получите глоба, тъй като санитарната инспекция незабавно ще реагира на такива нарушения. Може дори да бъдете призовани в съда от комунално предприятие, тъй като подобни действия са вредни за околната среда. Бъдете много внимателни при изучаването на онези правила и изисквания, които се прилагат за организацията на канализационната система на частна територия.
Мрежовите компании, които работят във вашия район, също могат да имат специални правила и изисквания. По принцип техните условия са свързани с използването на домакински уреди.
Необходимо е предварително да знаете всички важни нюанси, за да не се сблъскате с проблеми и неприятни изненади в бъдеще.. Има някои полезни насоки, които да ви помогнат да организирате правилно пространството си:
Опитайте да замените няколко дяла със структурни колони. Те ще бъдат проектирани от опитни професионалисти.
Само професионалистите ще могат да изчислят оптималното ниво на натоварване, което ще избегне проблеми в бъдеще..
Предимства и недостатъци
Сред предимствата на проектирането на едноетажна къща могат да се подчертаят следните точки:
Ако не се нуждаете от твърде много стаи, изберете едноетажна къща.. Тези сгради имат няколко слабости, които също заслужават да бъдат споменати:
Въпреки тези недостатъци, едноетажните домове са популярни сред хората. Можете да получите своя мечтан дом, без да харчите много пари и усилия за изграждането му.
Стилистичен дизайн
Ако говорим за стила на къщата, тогава има много възможности. В днешно време сградите са декорирани в стилове, които предизвикват възхищение и наслада. Можете да изберете правилния интериор, като се фокусирате върху вашите нужди и възможности..
Модерни
Това е практичен и рационален вариант за декориране на дървена къща. Интериорът трябва да съдържа естествени нюанси, както и естествени материали. Агресивните комбинации от нюанси са неподходящи тук. Изберете мебели с гладки и спретнати линии. Стените могат да бъдат украсени с картини на художници от различни епохи. Модерният е стил, в който миналото е хармонично преплетено с настоящето.
Класически
Във финландските и други сгради класическият стил винаги ще бъде печеливш. В такъв интериор са подходящи таванни мазилки, копринени тапети, красиви лампи и антични елементи. Струва си да изберете меки нюанси, които ще създадат успокояваща и уютна атмосфера. Разбира се, мебелите са подходящи тук. от естествени материали. В спалнята може да се монтира голямо дървено легло, уютни кресла в коридора.
Най -добре е стените да бъдат завършени с изкуствен камък или дърво, тъй като еднакви решения трябва да бъдат проследени във всички интериорни детайли..
Таванско помещение
Това е интересен и необичаен стил, който е популярен в днешно време. Подходящ е за декориране на къща от трупи или други материали. Това е хармонична комбинация от индустриален дизайн на сгради със сложни решения. Незавършените тухлени стени се допълват от индустриални осветителни тела. Също така, такъв интериор може да съдържа други интересни “чипове”. Много хора не разбират какви са характеристиките на този стил, но той се утвърди положително сред почитателите на нестандартни решения. С негова помощ можете да се отдалечите от скучните и обикновени интериори, които в наше време вече не изненадват никого..
Минимализъм
Това е необичаен вариант, който ще ви помогне да създадете уникален интериор. Често може да се види в американски домове. Тук комбинираните помещения се допълват от панорамни прозорци. Мебелите са функционални и практични. Формите на обектите трябва да са ясни и равномерни. Всеки ъгъл на пространството се използва рационално, което е ключът към успешния интериорен дизайн.
Можете да изберете стила на интериорната декорация на дома, който ви подхожда. Вземете на борда английски къщи и други структури, които ще ви позволят да проявите въображение и креативност.
Основното е, че разбирате какви са особеностите на този или онзи материал. Само в този случай ще можете хармонично да ги комбинирате помежду си, което ще ви позволи да се насладите на резултатите от работата си..
Интериорният дизайн, в полза на който правите своя избор, трябва да бъде проследен във всяка стая в конструкцията. Това е единственият начин да създадете единно пространство, което да ви зарадва с ненадминат вид и функционалност. Обърнете внимание на характеристиките на материалите, които се използват в определен стил на интериора, цветове, форми и линии на мебели. Така че можете да се насладите на уюта, тъй като в къщата ще цари подходящата атмосфера. Разработчици, които работят в тази област много години подред, подчертайте следните характеристики на създаването на идеален дом:
Най -добрият вариант би бил формата на стаята, която прилича на квадрат или правоъгълник. Не забравяйте, че дължината и ширината в случай на избор на правоъгълна форма не трябва да се различават повече от два пъти. Например, с ширина 3 m, дължината не трябва да надвишава 6 m.
Съвременни проекти
В процеса на планиране на частна къща е необходимо да се вземат предвид няколко полезни идеи, които ще ви позволят да постигнете желания резултат. За да намерите идеалната опция за всяка конкретна ситуация, внимателно проучете характеристиките на различните оформления.
С мазе на пода
Мазето е елемент от конструкция, който не е пълноценен етаж, поради което е невъзможно да се коригира ниският етаж на сграда с негова помощ. Подземната зона във вашия дом обаче може да бъде направена удобна и практична, в резултат на което мазето става неразделна част от общата площ на конструкцията. Ако говорим за мазе в едноетажна къща, тогава трябва да се помни, че този сайт не е подходящ за организиране на дневни. Дори и да имате дом с три спални, не бива да премествате една от стаите в мазето. Няма да можете да се чувствате комфортно поради недостатъчно осветление и липса на подходяща вентилация..
Въпреки това, дори в малки къщи с размери 10×12 кв. m, можете да създадете пералня или фитнес зала на сутерена. Семейството ще получи нови възможности за удобно съхранение на вещи, както и за монтаж на домакински уреди.
Не забравяйте, че цокълът може да се използва за тръбопроводи, пране и фитнес зала. Можете да инсталирате шкафове в мазето, за да съхранявате неща, за които няма място в къщата..
С таванско помещение
Това е точно опцията, която е широко разпространена и търсена сред хората. Разходите за организиране на таванско помещение често са равни на разходите за подреждане на две тавански пространства. Това е така, защото за да постигнете най -добър резултат, ще трябва да похарчите пари за допълнителна работа:
Благодарение на това е възможно да се организират дневни на тавана с комфортни условия. Така че парите, инвестирани в процеса на ремонт, със сигурност ще се изплатят в бъдеще. Таванското помещение, подобно на мазето, не се счита за пълноценен етаж. Използваемата площ тук е доста малка, така че няма да е възможно напълно да се реши проблемът с липсата на място. Можете обаче да създадете интересно и разнообразно оформление на тясна къща без много усилия..
В къща с четири етажа таван определено не е необходим, но в едноетажна сграда е незаменим. Таванското помещение може да стане втори етаж в сградата. Тук можете да поставите спалня или малка баня. В зависимост от района на този сайт, човек може да избере коя стая да се премести тук..
На тавана може да има няколко малки спални. Също така тук често са оборудвани коридор или баня. Можете да направите баня, килер или други стаи.
С гараж
Ако къщата ви има само един етаж, все още можете да притежавате гараж или домашна работилница. Благодарение на такива решения ценното пространство може да бъде значително увеличено. Тук е подходящо симетрично оформление, което ви позволява правилно да организирате пространството, но някои хора правят избор в полза на определен брой стаи, които са подредени в произволен ред..
Ако говорим за симетрична версия на оформлението на конструкцията, тогава гаражното помещение трябва да бъде отделено от помещенията от жилищния тип. За такива цели можете да използвате капитални стени, които имат високо ниво на надеждност. Подобна сграда изглежда симетрична, когато е разделена наполовина на две отделни зони. Едната част ще бъде жилищна, а другата – парцел, отделен за създаване на гараж. Ако сте направили избор в полза на свободното разделяне на пространството, тогава гаражът просто ще прилепи към една от стените извън сградата..
Не забравяйте, че е необходимо да се изготви оформление много внимателно. Необходимо е да се предвиди възможност за достъп до помещенията не само от улицата, но и отстрани на конструкцията. Ето как можете бързо да стигнете до гаража или работилницата, без да страдате от лоши метеорологични условия..
За да увеличите ценното пространство във вашия дом, не е нужно да се ограничавате до една от тези опции. Можете да създадете и трите стаи едновременно, за да се насладите на комфорта и уютната среда на живот.
Декор
Много проекти са завършени със структурни елементи. Те имат положителен ефект върху архитектурата на сградата.. Сред тези подробности могат да се разграничат следните опции:
Всеки от тези елементи е разширение, единственото изключение е прозорецът на залива. Приложенията са необходими за топлия сезон, тъй като те дават възможност да се отпуснете в комфортни условия, наслаждавайки се на околните пейзажи. Зоната за сядане може да бъде организирана чрез изграждане на тераса или веранда. Вечер такива разширения се използват за уютно пиене на чай в кръга на любимите хора. На балкона можете да се отпуснете, да се любувате на територията, която заобикаля селската къща.
Еркерът е сложен елемент, който изпълнява други функции. Това е великолепен детайл от екстериора на всяка структура, тъй като прозорецът на залива коренно трансформира оформлението на сградата вътре в помещенията. Също така, използвайки еркера, можете да направите потока на естествената светлина по -интензивен, тъй като той ще влиза свободно в къщата от улицата. На чертежите с еркера отстрани на конструкцията можете да видите, че кутията със стандартни параметри става по -интересна, необичайна и оригинална.
Най -често еркерите се предпочитат да се монтират в сгради, изградени от дърво или камък. Видът на материала директно зависи от формата, в която ще бъде направен този елемент..
Полезни съвети
Разработването на проект за едноетажна къща е обезпокоителен и отговорен бизнес. Има много различни фактори, които трябва да се вземат предвид, за да се постигне желаният резултат, като същевременно се избегнат бъдещи проблеми. В процеса на работа е необходимо да се спазват определени правила, за да се направи всичко ефективно и бързо..
В самото начало трябва да решите мястото, на което ще бъде построена къщата. Тук се вземат предвид всички важни нюанси. Необходимо е да се проучи дълбочината на подземните води, да се реши възможността за полагане на комуникации, да се избере най -доброто място за изграждане на къща. В такава ситуация дори най -малките детайли са важни, тъй като грешките могат да доведат до непоправими последици в бъдеще.
След това е необходимо внимателно да се измери бъдещата структура, без да се изпуска всеки детайл от поглед. Най -често грешките в процеса на измерване причиняват неподходящ за използване корпус. Необходимо е да се изчисли квадратурата, да се определи местоположението на допълнителни помещения, внимателно да се изчисли размерът на територията. Това ще ви позволи да построите къща с оптимални размери, без да нарушавате основните строителни технологии..
Разбира се, всяка сграда трябва да отговаря на нормите на SNiP. Това е важен момент, без който е просто невъзможно да се пусне в експлоатация..
Спазването на правилата за безопасност също трябва да бъде проследено, защото в противен случай в къщата няма да се създадат удобни условия за живот. Освен това безопасността на хората, живеещи тук, може да бъде компрометирана..
Красиви примери
Можете да изберете някой от тези дизайни на къщи. Има няколко добри примера, които ще ви позволят да създадете уникална и оригинална структура..
Шикозна къща с покрив, разположен под лек наклон, ще се превърне във ваша гордост. Изглежда представително и солидно поради хармоничната комбинация от различни материали. Големите прозорци, които изпълват сградата с естествена светлина, са достойно допълнение към проекта..
Още една уютна къща, която диша с комфорт и уют. Дървесината, използвана в строителния процес, създава несравнима атмосфера. Фасадата е облагородена с сайдинг в пастелни цветове, който хармонично се комбинира с дървена ограда, която огражда терасата.
Ето един добър пример за рационално използване на сутеренния етаж. Можете да организирате малка фитнес зала, като поставите всички необходими симулатори и друго оборудване в стаята. Някои хора избират да превърнат мазето в килер, който се използва за съхранение на различни неща..
Дори покривът може да се използва рационално, ако е направен в плоска форма. Това е идеалното място за почивка. Тук можете да инсталирате камина и други елементи, с които можете напълно да се отпуснете, потопени в света на релаксация. Това могат да бъдат меки дивани, масичка за кафе, както и други интериорни елементи..
Просторна веранда, която ви позволява да инсталирате различни мебели, също ще бъде чудесно място за почивка. Можете да се отпуснете в уютна обстановка, докато се наслаждавате на природата, която заобикаля дома ви. Благодарение на това забавление можете да се настроите на романтично настроение..
Тази красива къща привлича вниманието със своя представителен вид. Стъклените врати са големи, така че максималното количество естествена светлина попада в стаята. Комбинацията от различни нюанси изглежда интересна и необичайна. Структурата изглежда ярко на фона на зеления пейзаж.
Това е пример за това как можете да организирате вътрешното пространство в къща от дърво. Уютна камина и лек стол ще ви позволят да се отпуснете и да се отпуснете, потопени в ненадминатата атмосфера на домашен уют. С такъв интериор можете да се почувствате като щастлив човек..
Когато избирате стил за декорация на дома, обърнете внимание на различни материали. Те изглеждат добре, когато се комбинират помежду си, така че можете да постигнете желания ефект с малко усилия. Готовата едноетажна къща ще бъде красива, уютна и комфортна.
Ще научите повече за тънкостите на оформлението на едноетажна къща в следващото видео..