
Дизайнът на малки къщи може да бъде не по -малко привлекателен от дизайна на големи вили. След като внимателно проучихте плановете на малки къщи за постоянно пребиваване с тераса, можете да изберете идеята, която е оптимална от дизайнерска и практическа гледна точка.. Вниманието заслужава като красива компактна, уютна модерна вила с вана и други опции.
Особености
Традиционното убеждение, че малките къщи винаги се строят само поради ограничени финанси, постепенно остарява.. Факт е, че териториите, подходящи за комфортен живот и с добра инфраструктура, са почти изчерпани.. Ново строителство на отдалечени места също може да се извършва с всички удобства, но се оказва по -скъпо. Следователно икономически и практически оправдано решение може да бъде изграждането на компактни къщи за малки парцели, разпределени в близост до големи градове или дори директно в техните граници..

Малките жилища могат да се считат за до 50 м2 (върху основата). Но понякога тяхната площ се оказва забележимо по -малка. Всяко малко жилище е един вид компромис между желания и възможности. Малките къщи на базата на втория или дори третия етаж могат да достигнат до доста голяма площ. Компактните сгради понякога се правят по стилистични причини, имитиращи японски модели от феодалния период или скандинавски къщи за гости.

Много малките къщи понякога са привлекателни, защото могат да намалят броя на електрическите уреди и водопроводните инсталации.. Следователно окабеляването на съответните комуникации също се опростява. Но вече на площ от 45-47 кв. m и повече, окабеляването се различава малко от това, което се използва в големи вили.
Същата ситуация ще бъде и с отоплителните системи. На площ до 20-25 кв. m е достатъчно за една фурна, а на площ до 60 кв. m – единственият котел с умерена мощност.

Малки къщи:
-
са сравнително евтини (по отношение на консумацията на материали и дизайна, самите строителни работи);
-
се изграждат сравнително бързо;
-
ви позволяват да намалите разходите за поддръжка на жилища;
-
се отличават с по -ниски разходи за ремонт;
-
обикновено се изпълнява с опростен дизайн;
-
по -ефективен по отношение на сигурността (улеснява се подреждането на аларми, паник бутони, видеокамери и сензори за движение).

Появата на малки къщи често е дори по -привлекателна от тази на масивни вили. Продавайте ги по -бързо поради достъпната цена за купувачите.
Но има и слабости.. Така че в малка къща няма да е възможно да се настанят голям брой хора, особено да се приемат много гости.. Трудности могат да възникнат с големи амбиции по отношение на състава на помещенията и с установяването на големи домашни любимци..
Преглед на проекти на къщи за постоянно пребиваване
С тераса
Избирайки красиви малки къщи, оборудвани с тераси, можете да обърнете внимание на едно от най -простите решения. Той ще зарадва жителите:
-
действителната тераса с площ от 12,7 кв. m;
-
кухня и хол с площ около 17 кв. m;
-
10-метрова спалня;
-
3-метрова баня (не твърде голяма, но подходяща за най-простата подредба).

Но можете да разгледате и други схеми за оформление на средни жилищни сгради. Дори на обща площ от 36,9 кв. м (и жилищни около 19-20 кв. м.) ще се окаже доста добре да се установи. Размерът на терасата в този проект ще бъде около 11 м2. В 9-метровата всекидневна има достатъчно място за повечето неща, които обикновено се правят там.. Имаше и място за:
-
кухня-трапезария;
-
баня;
-
спални;
-
вестибюл;
-
зала.
С баня или сауна
Каквито и съвременни идеи в архитектурата да са страстни за собствениците на парцели, комфортът и хигиенните процедури са много важни за тях. Следователно къща, комбинирана с баня, ще се окаже сравнително добър избор.. Такова решение може дори да бъде забележимо по -голямо от основната дъска от 50 кв. м. И така, общата площ на един от готовите стандартни проекти достига 81 м2. И цялото това пространство намира своето използване.
Входът на сградата от светли тухли се намира в страничната стена. Площта на вестибюла е почти 2,5 м2. Частта от сауната е оборудвана както трябва: има съблекалня, собствен вътрешен вестибюл и пералня, парна баня.. Жилищни и помощни помещения са представени:
-
баня;
-
две спални;
-
хол;
-
зала;
-
баня.

Можете също така да разгледате интересни проекти на къщи с малка площ със сауна. Акцентът върху тази точка не е случаен: нейното подреждане очевидно е различно от подреждането на руска баня..
И затова във всеки план ще има тънкости и нюанси, които са напълно незабележими за непосветените. При една от тези опции общата площ е близо 70 кв. м, но жилищната площ е само около 43 квадратни метра. Има функционални опции като таванско помещение и втора светлина.
Душ банята е 6,6 м2. Всъщност за сауната са отпуснати 5,4 м2 по подобен план. Всичко останало също е „пораснало“:
-
има отделна баня;
-
холът заема малко повече от 16 м2;
-
кухнята и трапезарията бяха комбинирани;
-
оборудване на 15-метрова тераса;
-
тавански етаж се състои от спални и втора светлина.
С таванско помещение
Но разбира се, за да се оборудва самото таванско помещение, няма задължителна необходимост да се направи и баня.. Има много проекти, които илюстрират директно тази функция.. Един от тях е създаден на базата на газобетонни блокове. От верандата можете да преминете през коридора към хола (известен още като кухнята) и банята. Спалнята е раздалечена донякъде, а на втория етаж има няколко спални..

Можете да разгледате по -отблизо друг вариант. Кухнята, холът и холът са практически обединени тук, няма твърди граници между тях. Има отделен ъглов санитарен възел. Горе, на тавана, те поставиха няколко спални с различни размери..
Втората светлина не беше забравена и на двете нива.
С веранда
Затвореният тип тераса ви позволява да се наслаждавате на комфорта дори при студено време. Площта на верандата достига 6,1 кв. м. Вътре освен нея има 15-метрова кухня и всекидневна. На таванския етаж има спални с площ от 9 и 8.7 м2. Между тях има малка празнина, изпълнена с втора светлина..
От котелното
Частните къщи с печка или камина могат да бъдат уютни. Но и двата варианта трудно могат да се нарекат добро модерно решение.. Обикновено котелното помещение се намира на ъгъла..
Съвсем логично е тогава банята и кухнята да са на една линия с помещението за отоплително оборудване..
Коридорът разделя спалнята и помещението за сигурност (което може да се превърне и в офис, детска стая или складово помещение), а в края му има врата към банята.
С големи прозорци
Често сградите с панорамно остъкляване се появяват като най -добрите. Трябва веднага да се има предвид, че присъствието му веднага “повдига летвата” на малка площ. Може вече да включва жилища с висок комфорт, а не само до 50 кв. m както обикновено. И така, една от едноетажните къщи с големи прозорци започва от 6-метрова тераса. Те се присъединяват към нея хармонично:

Има и друг тип къща с големи прозорци. Спалнята се намира в ъгъла. По отношение на геометрията жилището е необичайно.
Покривът е силно избутан напред, което значително помага за защита на терасата и верандата от валежи.

Къщите с мазе и тераса се считат за сравнително малки с площ от 90 до 100-105 м2. В един от тези проекти площта на подземния слой е малка – само 6,4 квадратни метра. м. На първия етаж има място за:
-
спални;
-
хол от 30 квадрата;
-
допълнителна спалня;
-
баня;
-
зала;
-
вестибюл;
-
9-метрова кухня.
Опции за уютни летни вили
Дори и да не се строи на старомодните „6 декара“, а на по-солиден парцел, икономична и практична малка къща също може да дойде в съда.. Дървена сграда с доста зелен покрив с не съвсем стандартна форма е ярко потвърждение за това.. На приземния етаж, освен терасата, има хол и кухня. На горния етаж има спалня и балкон.
Тази комбинация от помещения позволява както нормална работа, така и удобна почивка..

От съображения за икономичност и максимална практичност, едноетажни къщи често се избират за лятни вили.. И такива опции също са в изобилие. Една от тях разполага с красиво обзаведена тераса, покрита с повдигнат покрив. Общата площ достига 45 кв. м. Въпреки че дизайнерите умишлено са изоставили подреждането на тавана, те са изработили всички комуникации – отопление, водоснабдяване, електричество и дори канализационна система с вентилация.

Можете да разгледате по -отблизо друга, малко по -голяма структура, удължена по дължина.. Тук изтичането на двускатния покрив вече се използва обичайно за контурите на основната част на къщата. Фасадата на къщата е завършена с имитация на дървен материал. Имаше място не само за спалнята, но дори и за детската стая. Размерът на верандата достига 11 м2.
Нюансите при избора на план
Мъдрите хора избират броя и състава на стаите стриктно според нуждите си, а не според нечии препоръки. Този на пръв поглед очевиден момент често се забравя в стремежа към модата и „да има такава и такава стая“. Разбира се, съображения като „на плана или на снимката къщата изглежда красива, затова трябва да бъде построена“ също са неправилни. Наложително е да се обърне внимание на:
-
ориентация към кардиналните точки;
-
съответстващи червени линии;
-
способността да се спазват нормите за противопожарни прекъсвания и санитарни разстояния при избора на конкретен проект;
-
лично удобство на местоположението на жилището на сайта;
-
дали тогава има достатъчно свободно пространство за други структури и нормални нужди.

При разработване на нов обект или продължителна (повече от 10 години) почивка в използването му, всички геодезически и геоложки проучвания трябва да се извършват от нулата. Следователно всички готови схеми в този случай ще трябва да бъдат изхвърлени – уви, единственият вариант остава отново първоначалното проучване на схемата по същество. Но дори и да е възможно типично решение, е наложително да се модифицира заедно с архитектите и проектантите. Както и да е, дори най-обикновеният изглеждащ сайт е уникален. И е по -добре предварително да предвидите изненади, отколкото да страдате по -късно..
Не се страхувайте да попитате архитектите за експликацията на помещенията, за инсолацията, санитарните стандарти, диаметрите на тръбите и характеристиките на основите.. Всичко това и много други могат също да повлияят значително на удобството и безопасността на домашната употреба. Важно е да се разбере, че ако проектът първоначално предвижда, да речем, дървен материал, е безполезно да се иска „да се направи същото, но от газови блокове“.
Защото пак няма да е „същото“ от техническа гледна точка. Товарите и центровете на тежест, топлинните и влажните условия се променят, вентилацията и механичната якост на конструкциите ще трябва да бъдат преизчислени.

Изводът е прост: не можете да промените материала в проекта, по -лесно е да направите нов проект. Добрият пакет документация задължително съдържа вертикални секции, хоризонтални планове и различни секции. В него ясно е посочено: какъв вид покрив ще се използва, какъв размер на слепите зони по всички оси, колко голям е процентът на остъкляване и т.н. Също така е необходимо да се провери изследването на окабеляването на електричество, вода, канализация и газ. Ако са предвидени стационарни стълби, техният дизайн и използваните материали трябва да бъдат изброени отделно..
По подразбиране всеки наемател, дори и да е малко дете, трябва да има минимум 12 кв. м. В идеалния случай за кухнята са разпределени 8-10 квадрата. Разбира се, за гост или селска къща изискванията са по -меки. Колко – трябва да се реши индивидуално. Спалнята, ако е възможно, се отстранява от входа и от шумните места.

Проекти за малки къщи
Дизайнът на малки къщи може да бъде не по -малко привлекателен от дизайна на големи вили. След като внимателно проучихте плановете на малки къщи за постоянно пребиваване с тераса, можете да изберете идеята, която е оптимална от дизайнерска и практическа гледна точка.. Вниманието заслужава като красива компактна, уютна модерна вила с вана и други опции.
Особености
Традиционното убеждение, че малките къщи винаги се строят само поради ограничени финанси, постепенно остарява.. Факт е, че териториите, подходящи за комфортен живот и с добра инфраструктура, са почти изчерпани.. Ново строителство на отдалечени места също може да се извършва с всички удобства, но се оказва по -скъпо. Следователно икономически и практически оправдано решение може да бъде изграждането на компактни къщи за малки парцели, разпределени в близост до големи градове или дори директно в техните граници..
Малките жилища могат да се считат за до 50 м2 (върху основата). Но понякога тяхната площ се оказва забележимо по -малка. Всяко малко жилище е един вид компромис между желания и възможности. Малките къщи на базата на втория или дори третия етаж могат да достигнат до доста голяма площ. Компактните сгради понякога се правят по стилистични причини, имитиращи японски модели от феодалния период или скандинавски къщи за гости.
Много малките къщи понякога са привлекателни, защото могат да намалят броя на електрическите уреди и водопроводните инсталации.. Следователно окабеляването на съответните комуникации също се опростява. Но вече на площ от 45-47 кв. m и повече, окабеляването се различава малко от това, което се използва в големи вили.
Същата ситуация ще бъде и с отоплителните системи. На площ до 20-25 кв. m е достатъчно за една фурна, а на площ до 60 кв. m – единственият котел с умерена мощност.
Малки къщи:
са сравнително евтини (по отношение на консумацията на материали и дизайна, самите строителни работи);
се изграждат сравнително бързо;
ви позволяват да намалите разходите за поддръжка на жилища;
се отличават с по -ниски разходи за ремонт;
обикновено се изпълнява с опростен дизайн;
по -ефективен по отношение на сигурността (улеснява се подреждането на аларми, паник бутони, видеокамери и сензори за движение).
Появата на малки къщи често е дори по -привлекателна от тази на масивни вили. Продавайте ги по -бързо поради достъпната цена за купувачите.
Но има и слабости.. Така че в малка къща няма да е възможно да се настанят голям брой хора, особено да се приемат много гости.. Трудности могат да възникнат с големи амбиции по отношение на състава на помещенията и с установяването на големи домашни любимци..
Преглед на проекти на къщи за постоянно пребиваване
С тераса
Избирайки красиви малки къщи, оборудвани с тераси, можете да обърнете внимание на едно от най -простите решения. Той ще зарадва жителите:
действителната тераса с площ от 12,7 кв. m;
кухня и хол с площ около 17 кв. m;
10-метрова спалня;
3-метрова баня (не твърде голяма, но подходяща за най-простата подредба).
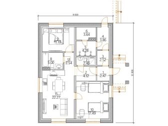
Но можете да разгледате и други схеми за оформление на средни жилищни сгради. Дори на обща площ от 36,9 кв. м (и жилищни около 19-20 кв. м.) ще се окаже доста добре да се установи. Размерът на терасата в този проект ще бъде около 11 м2. В 9-метровата всекидневна има достатъчно място за повечето неща, които обикновено се правят там.. Имаше и място за:
кухня-трапезария;
баня;
спални;
вестибюл;
зала.
С баня или сауна
Каквито и съвременни идеи в архитектурата да са страстни за собствениците на парцели, комфортът и хигиенните процедури са много важни за тях. Следователно къща, комбинирана с баня, ще се окаже сравнително добър избор.. Такова решение може дори да бъде забележимо по -голямо от основната дъска от 50 кв. м. И така, общата площ на един от готовите стандартни проекти достига 81 м2. И цялото това пространство намира своето използване.
Входът на сградата от светли тухли се намира в страничната стена. Площта на вестибюла е почти 2,5 м2. Частта от сауната е оборудвана както трябва: има съблекалня, собствен вътрешен вестибюл и пералня, парна баня.. Жилищни и помощни помещения са представени:
баня;
две спални;
хол;
зала;
баня.
Можете също така да разгледате интересни проекти на къщи с малка площ със сауна. Акцентът върху тази точка не е случаен: нейното подреждане очевидно е различно от подреждането на руска баня..
И затова във всеки план ще има тънкости и нюанси, които са напълно незабележими за непосветените. При една от тези опции общата площ е близо 70 кв. м, но жилищната площ е само около 43 квадратни метра. Има функционални опции като таванско помещение и втора светлина.
Душ банята е 6,6 м2. Всъщност за сауната са отпуснати 5,4 м2 по подобен план. Всичко останало също е „пораснало“:
има отделна баня;
холът заема малко повече от 16 м2;
кухнята и трапезарията бяха комбинирани;
оборудване на 15-метрова тераса;
тавански етаж се състои от спални и втора светлина.
С таванско помещение
Но разбира се, за да се оборудва самото таванско помещение, няма задължителна необходимост да се направи и баня.. Има много проекти, които илюстрират директно тази функция.. Един от тях е създаден на базата на газобетонни блокове. От верандата можете да преминете през коридора към хола (известен още като кухнята) и банята. Спалнята е раздалечена донякъде, а на втория етаж има няколко спални..
Можете да разгледате по -отблизо друг вариант. Кухнята, холът и холът са практически обединени тук, няма твърди граници между тях. Има отделен ъглов санитарен възел. Горе, на тавана, те поставиха няколко спални с различни размери..
Втората светлина не беше забравена и на двете нива.
С веранда
Затвореният тип тераса ви позволява да се наслаждавате на комфорта дори при студено време. Площта на верандата достига 6,1 кв. м. Вътре освен нея има 15-метрова кухня и всекидневна. На таванския етаж има спални с площ от 9 и 8.7 м2. Между тях има малка празнина, изпълнена с втора светлина..
От котелното
Частните къщи с печка или камина могат да бъдат уютни. Но и двата варианта трудно могат да се нарекат добро модерно решение.. Обикновено котелното помещение се намира на ъгъла..
Съвсем логично е тогава банята и кухнята да са на една линия с помещението за отоплително оборудване..
Коридорът разделя спалнята и помещението за сигурност (което може да се превърне и в офис, детска стая или складово помещение), а в края му има врата към банята.
С големи прозорци
Често сградите с панорамно остъкляване се появяват като най -добрите. Трябва веднага да се има предвид, че присъствието му веднага “повдига летвата” на малка площ. Може вече да включва жилища с висок комфорт, а не само до 50 кв. m както обикновено. И така, една от едноетажните къщи с големи прозорци започва от 6-метрова тераса. Те се присъединяват към нея хармонично:
кухня-хол малко над 18 кв. m;
зала;
коридор;
чифт спални;
скромна баня.
Има и друг тип къща с големи прозорци. Спалнята се намира в ъгъла. По отношение на геометрията жилището е необичайно.
Покривът е силно избутан напред, което значително помага за защита на терасата и верандата от валежи.
Къщите с мазе и тераса се считат за сравнително малки с площ от 90 до 100-105 м2. В един от тези проекти площта на подземния слой е малка – само 6,4 квадратни метра. м. На първия етаж има място за:
спални;
хол от 30 квадрата;
допълнителна спалня;
баня;
зала;
вестибюл;
9-метрова кухня.
Опции за уютни летни вили
Дори и да не се строи на старомодните „6 декара“, а на по-солиден парцел, икономична и практична малка къща също може да дойде в съда.. Дървена сграда с доста зелен покрив с не съвсем стандартна форма е ярко потвърждение за това.. На приземния етаж, освен терасата, има хол и кухня. На горния етаж има спалня и балкон.
Тази комбинация от помещения позволява както нормална работа, така и удобна почивка..
От съображения за икономичност и максимална практичност, едноетажни къщи често се избират за лятни вили.. И такива опции също са в изобилие. Една от тях разполага с красиво обзаведена тераса, покрита с повдигнат покрив. Общата площ достига 45 кв. м. Въпреки че дизайнерите умишлено са изоставили подреждането на тавана, те са изработили всички комуникации – отопление, водоснабдяване, електричество и дори канализационна система с вентилация.
Можете да разгледате по -отблизо друга, малко по -голяма структура, удължена по дължина.. Тук изтичането на двускатния покрив вече се използва обичайно за контурите на основната част на къщата. Фасадата на къщата е завършена с имитация на дървен материал. Имаше място не само за спалнята, но дори и за детската стая. Размерът на верандата достига 11 м2.
Нюансите при избора на план
Мъдрите хора избират броя и състава на стаите стриктно според нуждите си, а не според нечии препоръки. Този на пръв поглед очевиден момент често се забравя в стремежа към модата и „да има такава и такава стая“. Разбира се, съображения като „на плана или на снимката къщата изглежда красива, затова трябва да бъде построена“ също са неправилни. Наложително е да се обърне внимание на:
ориентация към кардиналните точки;
съответстващи червени линии;
способността да се спазват нормите за противопожарни прекъсвания и санитарни разстояния при избора на конкретен проект;
лично удобство на местоположението на жилището на сайта;
дали тогава има достатъчно свободно пространство за други структури и нормални нужди.
При разработване на нов обект или продължителна (повече от 10 години) почивка в използването му, всички геодезически и геоложки проучвания трябва да се извършват от нулата. Следователно всички готови схеми в този случай ще трябва да бъдат изхвърлени – уви, единственият вариант остава отново първоначалното проучване на схемата по същество. Но дори и да е възможно типично решение, е наложително да се модифицира заедно с архитектите и проектантите. Както и да е, дори най-обикновеният изглеждащ сайт е уникален. И е по -добре предварително да предвидите изненади, отколкото да страдате по -късно..
Не се страхувайте да попитате архитектите за експликацията на помещенията, за инсолацията, санитарните стандарти, диаметрите на тръбите и характеристиките на основите.. Всичко това и много други могат също да повлияят значително на удобството и безопасността на домашната употреба. Важно е да се разбере, че ако проектът първоначално предвижда, да речем, дървен материал, е безполезно да се иска „да се направи същото, но от газови блокове“.
Защото пак няма да е „същото“ от техническа гледна точка. Товарите и центровете на тежест, топлинните и влажните условия се променят, вентилацията и механичната якост на конструкциите ще трябва да бъдат преизчислени.
Изводът е прост: не можете да промените материала в проекта, по -лесно е да направите нов проект. Добрият пакет документация задължително съдържа вертикални секции, хоризонтални планове и различни секции. В него ясно е посочено: какъв вид покрив ще се използва, какъв размер на слепите зони по всички оси, колко голям е процентът на остъкляване и т.н. Също така е необходимо да се провери изследването на окабеляването на електричество, вода, канализация и газ. Ако са предвидени стационарни стълби, техният дизайн и използваните материали трябва да бъдат изброени отделно..
По подразбиране всеки наемател, дори и да е малко дете, трябва да има минимум 12 кв. м. В идеалния случай за кухнята са разпределени 8-10 квадрата. Разбира се, за гост или селска къща изискванията са по -меки. Колко – трябва да се реши индивидуално. Спалнята, ако е възможно, се отстранява от входа и от шумните места.