
Оформлението на къщата е един от основните компоненти на целия проект. Крайният резултат зависи от правилното моделиране на бъдещото жилище. За много U-образни къщи се считат за стандартна и стара класика. Помислете за основните характеристики на такива проекти.
Особености
За повечето хора U-образните къщи се считат за директна идентификация на лукс и комфорт.. Такива къщи често осигуряват всички необходими условия за живот.. Различните оформления и възможността за промяна на използваемата площ много често подкупват хора, които току -що са започнали да проектират къща.. Най -често основните характеристики на такива структури са рационалното използване на използваемата площ..

Благодарение на правилната геометрия и симетрия е възможно да се използва цялото жилищно пространство до милиметри за определени нужди, дори ако в проекта няма толкова много квадрати. Ако вземем предвид едноетажни къщи, огледалото ще помогне да се скрие или приспособи дори това, което на пръв поглед беше невъзможно. Например в едно крило ще има хол и кухня, а зад стената гараж. В отсрещното крило можете да подредите спални, офиси.
От фасадата къщата няма да изглежда някак тромава или неудобна.

Такива проекти подходящ за много малки парцели. Особено когато става въпрос за двуетажни къщи или къщи с таван. Също така си струва да се отбележи, че U-образните конструкции ви позволяват да изградите малък вътрешен двор в задния двор, в една и съща част, която е оградена със стени от три страни. Там можете да поставите басейн или фонтан, зона за барбекю или детска площадка. Ограниченията при избора на подобряване на територията ще зависят само от клиента. Правилното оформление ви позволява да оборудвате в такива къщи от две големи спални и една обща стая до няколко малки стаи. Това включва също спалня за гости, детски стаи и игрални или специални помощни помещения..

Голям плюс, който се отбелязва от много и който просто приписва U-образни къщи на класиката, е възможността за избор на различни архитектурни решения. Това могат да бъдат еркери, балкони или тавани, тераси над гаража, гаражи, комбинирани с помощни помещения, мазета. На фасадата, в зависимост от стила, можете да използвате мазилка, колони, различни шарки или допълнителни корнизи, когато става въпрос за двуетажни къщи.

Друга особеност е възможността да „играете“ с позицията на къщата. U-образните конструкции могат да бъдат позиционирани като удобни. Първият вариант е с вътрешен двор, а вторият вариант е, когато входната врата е задълбочена и разположена в кръпка. В този случай дизайнът и разкрасяването на къщата ще изглеждат съвсем различно..
Има много стилове на U-образни проекти. Може да е в скандинавски стил с големи панорамни прозорци и салон. Или високотехнологичен стил с нотка на модерност.
Такива къщи по проект могат да бъдат модифицирани и персонализирани според вашите предпочитания и желания. Няма ограничения за това..
Разположение на едноетажни къщи
Къщите с буквата “P” най -често се строят в крайградски частни сектори, рядко могат да бъдат намерени в обикновени летни вили. Такива планове са разработени за постоянно пребиваване с всички удобства и отоплителни и водоснабдителни системи. Това трябва да се вземе предвид във всеки случай. Дори ако свободната площ на обекта е малка, U-образните конструкции в идеалния случай ще се поберат на определеното място. И също така такива къщи рядко се комбинират с редици легла или поле с картофи. За мнозина изглежда неестетично, а за някои липсата на място решава много. Оформлението на едноетажни къщи може да бъде много разнообразно. Нека разгледаме някои от вариантите.
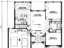
Първото нещо, на което си струва да се обърне внимание, ще бъде броят на хората, които ще живеят в къщата. Това е необходимо, за да се изчисли броят на стаите. Ако семейството се състои от трима души, тогава са необходими отделна спалня, детска стая и общ хол. Ако в семейството има повече от трима души, тогава използваемата площ на всяка стая ще намалее в полза на образуването на друга стая. Нека разгледаме по-отблизо U-образния проект на леко асиметрична къща.. Общата площ на къщата е 18,56×15,25 м. Къщата е обърната навътре и там се оформя малка тераса или зона за отдих..

В лявото крило има гараж, който заема 25 м2. Оттам врата води към малка зала, която заема 7,5 м2. Във фоайето има няколко врати. Едната води до стая от 7 м2 (може да се използва за съблекалня или склад). Също така в проекта си струва да се посочат местата на отводняване и водоснабдяване, особено е необходимо да се остави място за котелното помещение. Тя трябва да бъде изолирана.
Друга врата от залата води в просторен коридор, който върви право и надясно. Ако отидете направо, можете да видите местоположението на хола и кухнята, комбинирани с него. Тъй като това е комбинирано пространство, то ще бъде най -голямото в къщата. От около 42 квадрата.
Можете да проектирате стая по различни начини. В този случай можете да инсталирате големи панорамни врати, които ще преминават от хола към терасата..

Ако отидете от залата надясно, тогава в коридора ще има няколко врати от дясната страна. Там може да се разположи баня. Може да се комбинира или не. Площта на коридора е 22,8 м2, тоалетната заема от 1,5 до 2 м2. Общата баня може да включва както душ кабина, така и пълна вана..
В дясното крило има отделни, несъчетани спални стаи. Главната стая трябва да бъде най -голямата сред тях, тъй като съдържа отделна баня и съблекалня. Стаята за дрехи може да бъде оставена извън стаята. Обикновено за главната спалня се разпределят около 15-20 квадрата. Съблекалнята и банята заемат по 3 квадрата. Две съседни стаи са по 15 м2 всяка. Това може да бъде детска стая или офис, както и стая за гости..
Проекти на двуетажни къщи
Голямото семейство се нуждае от повече пространство. U-образни къщи с красива вътрешна къща са идеални за това. Такива структури са добри за крайградските зони, защото са модерни и многофункционални. Помислете за проекта на такава къща. Най-често се избират двуетажни конструкции поради малка площ, така че всичко да се вписва нормално. Следователно на приземния етаж се намира гараж, който заема средно 24 квадрата. Може да се позиционира както в десния, така и в левия калник. Ако няма кола, тогава е напълно възможно да оборудвате фитнес зала тук. Входната врата се намира в кръпка и заема 2,4 м2 заедно с малко стълбище.
Тамбуру, заедно с съблекалня, се разпределят 4,5 м2. От предверието вратата води към залата. Той е комбиниран с хола и е разделен от малка преграда, която разделя кухнята от трапезарията. Всекидневната е 22,6 м2, а кухнята-трапезарията е 17,2 м2. На приземния етаж се помещава и 9,4 м2 спалня за гости. До втория етаж има стълбище. Освен това има баня за гости и помощно помещение или котелно помещение.

На втория етаж има 4 стаи и две бани. Основната спалня е най -голямата и заема 17,2 м2 и е свързана с банята с 3,2 м2. Общата тоалетна на етажа е 4.46 м2. Останалите помещения могат да бъдат запазени за детски стаи или кабинети. Възможно е планиране и възстановяване на помещения, особено ако те не са носещи стени..
Къщите с формата на буквата “P” са идеални за хора, които обичат големи и просторни стаи, както и за тези, които искат да видят геометрията и простотата на линиите.
Тази посока в дизайна на къщи няма стилистични ограничения, което означава, че е напълно възможно да се намери идеален проект за комфортен престой..

Проекти на U-образни къщи
Оформлението на къщата е един от основните компоненти на целия проект. Крайният резултат зависи от правилното моделиране на бъдещото жилище. За много U-образни къщи се считат за стандартна и стара класика. Помислете за основните характеристики на такива проекти.
Особености
За повечето хора U-образните къщи се считат за директна идентификация на лукс и комфорт.. Такива къщи често осигуряват всички необходими условия за живот.. Различните оформления и възможността за промяна на използваемата площ много често подкупват хора, които току -що са започнали да проектират къща.. Най -често основните характеристики на такива структури са рационалното използване на използваемата площ..
Благодарение на правилната геометрия и симетрия е възможно да се използва цялото жилищно пространство до милиметри за определени нужди, дори ако в проекта няма толкова много квадрати. Ако вземем предвид едноетажни къщи, огледалото ще помогне да се скрие или приспособи дори това, което на пръв поглед беше невъзможно. Например в едно крило ще има хол и кухня, а зад стената гараж. В отсрещното крило можете да подредите спални, офиси.
От фасадата къщата няма да изглежда някак тромава или неудобна.
Такива проекти подходящ за много малки парцели. Особено когато става въпрос за двуетажни къщи или къщи с таван. Също така си струва да се отбележи, че U-образните конструкции ви позволяват да изградите малък вътрешен двор в задния двор, в една и съща част, която е оградена със стени от три страни. Там можете да поставите басейн или фонтан, зона за барбекю или детска площадка. Ограниченията при избора на подобряване на територията ще зависят само от клиента. Правилното оформление ви позволява да оборудвате в такива къщи от две големи спални и една обща стая до няколко малки стаи. Това включва също спалня за гости, детски стаи и игрални или специални помощни помещения..
Голям плюс, който се отбелязва от много и който просто приписва U-образни къщи на класиката, е възможността за избор на различни архитектурни решения. Това могат да бъдат еркери, балкони или тавани, тераси над гаража, гаражи, комбинирани с помощни помещения, мазета. На фасадата, в зависимост от стила, можете да използвате мазилка, колони, различни шарки или допълнителни корнизи, когато става въпрос за двуетажни къщи.
Друга особеност е възможността да „играете“ с позицията на къщата. U-образните конструкции могат да бъдат позиционирани като удобни. Първият вариант е с вътрешен двор, а вторият вариант е, когато входната врата е задълбочена и разположена в кръпка. В този случай дизайнът и разкрасяването на къщата ще изглеждат съвсем различно..
Има много стилове на U-образни проекти. Може да е в скандинавски стил с големи панорамни прозорци и салон. Или високотехнологичен стил с нотка на модерност.
Такива къщи по проект могат да бъдат модифицирани и персонализирани според вашите предпочитания и желания. Няма ограничения за това..
Разположение на едноетажни къщи
Къщите с буквата “P” най -често се строят в крайградски частни сектори, рядко могат да бъдат намерени в обикновени летни вили. Такива планове са разработени за постоянно пребиваване с всички удобства и отоплителни и водоснабдителни системи. Това трябва да се вземе предвид във всеки случай. Дори ако свободната площ на обекта е малка, U-образните конструкции в идеалния случай ще се поберат на определеното място. И също така такива къщи рядко се комбинират с редици легла или поле с картофи. За мнозина изглежда неестетично, а за някои липсата на място решава много. Оформлението на едноетажни къщи може да бъде много разнообразно. Нека разгледаме някои от вариантите.
Първото нещо, на което си струва да се обърне внимание, ще бъде броят на хората, които ще живеят в къщата. Това е необходимо, за да се изчисли броят на стаите. Ако семейството се състои от трима души, тогава са необходими отделна спалня, детска стая и общ хол. Ако в семейството има повече от трима души, тогава използваемата площ на всяка стая ще намалее в полза на образуването на друга стая. Нека разгледаме по-отблизо U-образния проект на леко асиметрична къща.. Общата площ на къщата е 18,56×15,25 м. Къщата е обърната навътре и там се оформя малка тераса или зона за отдих..
В лявото крило има гараж, който заема 25 м2. Оттам врата води към малка зала, която заема 7,5 м2. Във фоайето има няколко врати. Едната води до стая от 7 м2 (може да се използва за съблекалня или склад). Също така в проекта си струва да се посочат местата на отводняване и водоснабдяване, особено е необходимо да се остави място за котелното помещение. Тя трябва да бъде изолирана.
Друга врата от залата води в просторен коридор, който върви право и надясно. Ако отидете направо, можете да видите местоположението на хола и кухнята, комбинирани с него. Тъй като това е комбинирано пространство, то ще бъде най -голямото в къщата. От около 42 квадрата.
Можете да проектирате стая по различни начини. В този случай можете да инсталирате големи панорамни врати, които ще преминават от хола към терасата..
Ако отидете от залата надясно, тогава в коридора ще има няколко врати от дясната страна. Там може да се разположи баня. Може да се комбинира или не. Площта на коридора е 22,8 м2, тоалетната заема от 1,5 до 2 м2. Общата баня може да включва както душ кабина, така и пълна вана..
В дясното крило има отделни, несъчетани спални стаи. Главната стая трябва да бъде най -голямата сред тях, тъй като съдържа отделна баня и съблекалня. Стаята за дрехи може да бъде оставена извън стаята. Обикновено за главната спалня се разпределят около 15-20 квадрата. Съблекалнята и банята заемат по 3 квадрата. Две съседни стаи са по 15 м2 всяка. Това може да бъде детска стая или офис, както и стая за гости..
Проекти на двуетажни къщи
Голямото семейство се нуждае от повече пространство. U-образни къщи с красива вътрешна къща са идеални за това. Такива структури са добри за крайградските зони, защото са модерни и многофункционални. Помислете за проекта на такава къща. Най-често се избират двуетажни конструкции поради малка площ, така че всичко да се вписва нормално. Следователно на приземния етаж се намира гараж, който заема средно 24 квадрата. Може да се позиционира както в десния, така и в левия калник. Ако няма кола, тогава е напълно възможно да оборудвате фитнес зала тук. Входната врата се намира в кръпка и заема 2,4 м2 заедно с малко стълбище.
Тамбуру, заедно с съблекалня, се разпределят 4,5 м2. От предверието вратата води към залата. Той е комбиниран с хола и е разделен от малка преграда, която разделя кухнята от трапезарията. Всекидневната е 22,6 м2, а кухнята-трапезарията е 17,2 м2. На приземния етаж се помещава и 9,4 м2 спалня за гости. До втория етаж има стълбище. Освен това има баня за гости и помощно помещение или котелно помещение.
На втория етаж има 4 стаи и две бани. Основната спалня е най -голямата и заема 17,2 м2 и е свързана с банята с 3,2 м2. Общата тоалетна на етажа е 4.46 м2. Останалите помещения могат да бъдат запазени за детски стаи или кабинети. Възможно е планиране и възстановяване на помещения, особено ако те не са носещи стени..
Къщите с формата на буквата “P” са идеални за хора, които обичат големи и просторни стаи, както и за тези, които искат да видят геометрията и простотата на линиите.
Тази посока в дизайна на къщи няма стилистични ограничения, което означава, че е напълно възможно да се намери идеален проект за комфортен престой..