
Много жители на големите градове мислят за възможността да се преместят извън града или за изграждането на собствени къщи в частния сектор. Такова решение може да бъде свързано с различни точки, но след като сте го взели, трябва да решите избора – какъв тип къща ще бъде построена. Рамковите селски къщи са изключително редки, например с размери 6×7 m, за което ще бъде разгледано в статията. Те имат свои специфични характеристики, предимства и недостатъци..
Главна информация
Рамкова къща 6 на 7 метра е подходяща за ежедневието. Такава конструкция може да се експлоатира при топло и студено време, тъй като има всички необходими функции. В този случай могат да бъдат приложени няколко различни технологии..
- Канадският също предвижда изграждането на рамката, който след това се третира със специални вещества за защита от гризачи и други вредители. Вътрешното пространство е изпълнено с изолация, отвън е прикрепена специална защитна мембрана, а отвътре е прикрепен филм за пароизолация. Отвътре и отвън се извършва облицовка, като се използва OSB плоскости като основен материал.

Като цяло можем да кажем, че няма строги правила, можете да комбинирате няколко различни технологии, за да получите най -добрия резултат..
Рамковите конструкции могат да се характеризират с няколко предимства.
-
Достъпна цена. Използваните материали са евтини, основата може да има ниска носеща способност, облицовката се извършва с помощта на плоскости от втори клас.
-
Изграждането на структура отнема малко време. Няма нужда да чакате свиване, довършителните работи се извършват почти веднага след създаването на рамката.
-
Висока якост. Ако се спазват всички препоръки, конструкцията ще може да издържи 5-точков поривист вятър.
-
Атрактивен външен вид. Рамковите къщи могат да имат различни форми и красива гледка..
-
Различни видове оформления. Поддържащите конструкции и прегради могат да бъдат позиционирани по различни начини. Това се дължи на факта, че използваните материали не натоварват много основата..

Но има и няколко съществени недостатъка..
-
Не поставяйте тръбопроводи в стените, тъй като това ще доведе до кондензация.
-
Гризачите навлизат в кухината на стените. Дори когато третирате повърхността със специални вещества, вредителите могат да започнат внезапно, ще бъде трудно да ги премахнете.
-
Ниска степен на звукоизолация. Ако структурата се намира в рамките на града, дори и с използването на съвременни материали, ще бъде трудно да се реши проблемът.
-
Няма да е възможно да се извърши преустройство след построяването на сградата.
-
Ограничение по отношение на броя на етажите. В повечето случаи оформлението предвижда само един етаж и таванско помещение..
-
Трудно е да се поддържат високи температури през зимата.

Този тип структура е идеална за средни географски ширини с умерена влажност..
Основната характеристика на рамковите къщи е екологичността..
Дизайнът на самата къща осигурява обилно използване на дърво. Не може обаче да се говори за 100% екологичност – за да защитите структурата, ще трябва да обработите повърхността със специални средства.

OSB плочите се използват широко поради техните специални характеристики., които се придобиват чрез импрегниране на структурата с фенол, метанол и други подобни вещества. Плочите от циментови частици са по -малко вредни, но много по -тежки..
Стъклена вата често се използва като изолация. Доколко е екологично чист е труден въпрос; при работа с него голям брой малки частици могат да попаднат във въздуха..
Проекти на едноетажни вили
Можете да намерите много проекти на рамкови къщи. Най -често срещаните опции са:
- с тераса, която може да бъде отворена или затворена, изолирана.

Повечето проекти са подходящи за създаване на структури, които ще бъдат експлоатирани през лятото.. Но ако желаете, можете да построите рамкови къщи за постоянно пребиваване, за които ще трябва да извършите висококачествена изолация.
В продажба има домашен комплект за самостоятелно сглобяване. Това значително опростява процеса на изграждане на къща и довършване.
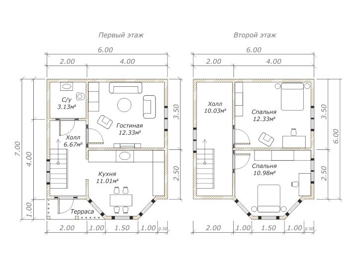
Разположение на двуетажни къщи
Можете да намерите проекти 6х7 м с два етажа. Когато ги разглеждате, трябва да вземете предвид редица фактори:
-
често вторият етаж е издигнат под формата на таван;
-
с два етажа трябва да обърнете специално внимание на носещата способност на основата;
-
с увеличаване на височината стабилността на цялата конструкция намалява.
Ще бъде малко по-трудно да се построи двуетажна къща. В същото време се обръща внимание на укрепването на носещите елементи на 2-ри етаж..

Като се имат предвид всички горепосочени характеристики, повечето проекти на двуетажни къщи с размери 6×7 приличат на сграда с таванско помещение като 2-ри етаж, която често се използва по свое усмотрение. Като правило има спални и шезлонги..
Дизайн
Въпреки относително ниската популярност на такива структури, можете да намерите много различни оформления с различен дизайн. Помислете за техните характеристики.
В повечето случаи дърво или сайдинг се използват като довършителни материали.. Напоследък се появиха изкуствени материали, които ще издържат много по -дълго от естествените..

Предпочитание се дава на меки и други съвременни покривни материали. Това се дължи на факта, че те са много по -леки, поради което не оказват силно натоварване върху основата..
Покривът е двускатен, с доста стръмен наклон. Това се прави, за да се изключи вероятността от натрупване на голямо количество валежи..

Най -често къщи с ъглови рамки. Площта може да варира от 60 до 90 кв. м в зависимост от броя на етажите. Вратите и прозорците се избират според вида на използвания довършителен материал и изискванията за къщата.
Примери за
Доста голямо разнообразие ви позволява да изберете подходящ проект. Най -популярните опции са:

А също така има проекти на летни къщи с голям брой различни стопански постройки.
Рамковите къщи са добър вариант, когато трябва да спестите пари за строителство. Преди да изберете проект директно, трябва да решите какви стаи трябва да бъдат, дали къщата ще се експлоатира само през лятото или през зимата, дали имате нужда от тераса или гараж.

Проекти на рамкови къщи с размери 6 на 7 метра
Много жители на големите градове мислят за възможността да се преместят извън града или за изграждането на собствени къщи в частния сектор. Такова решение може да бъде свързано с различни точки, но след като сте го взели, трябва да решите избора – какъв тип къща ще бъде построена. Рамковите селски къщи са изключително редки, например с размери 6×7 m, за което ще бъде разгледано в статията. Те имат свои специфични характеристики, предимства и недостатъци..
Главна информация
Рамкова къща 6 на 7 метра е подходяща за ежедневието. Такава конструкция може да се експлоатира при топло и студено време, тъй като има всички необходими функции. В този случай могат да бъдат приложени няколко различни технологии..
Финландският се счита за най -лесният вариант за изпълнение.. Тази технология предвижда създаване на рамка и полагане на изолация, след което се извършва облицовка от двете страни..
Като цяло можем да кажем, че няма строги правила, можете да комбинирате няколко различни технологии, за да получите най -добрия резултат..
Рамковите конструкции могат да се характеризират с няколко предимства.
Достъпна цена. Използваните материали са евтини, основата може да има ниска носеща способност, облицовката се извършва с помощта на плоскости от втори клас.
Изграждането на структура отнема малко време. Няма нужда да чакате свиване, довършителните работи се извършват почти веднага след създаването на рамката.
Висока якост. Ако се спазват всички препоръки, конструкцията ще може да издържи 5-точков поривист вятър.
Атрактивен външен вид. Рамковите къщи могат да имат различни форми и красива гледка..
Различни видове оформления. Поддържащите конструкции и прегради могат да бъдат позиционирани по различни начини. Това се дължи на факта, че използваните материали не натоварват много основата..
Но има и няколко съществени недостатъка..
Не поставяйте тръбопроводи в стените, тъй като това ще доведе до кондензация.
Гризачите навлизат в кухината на стените. Дори когато третирате повърхността със специални вещества, вредителите могат да започнат внезапно, ще бъде трудно да ги премахнете.
Ниска степен на звукоизолация. Ако структурата се намира в рамките на града, дори и с използването на съвременни материали, ще бъде трудно да се реши проблемът.
Няма да е възможно да се извърши преустройство след построяването на сградата.
Ограничение по отношение на броя на етажите. В повечето случаи оформлението предвижда само един етаж и таванско помещение..
Трудно е да се поддържат високи температури през зимата.
Този тип структура е идеална за средни географски ширини с умерена влажност..
Основната характеристика на рамковите къщи е екологичността..
Дизайнът на самата къща осигурява обилно използване на дърво. Не може обаче да се говори за 100% екологичност – за да защитите структурата, ще трябва да обработите повърхността със специални средства.
OSB плочите се използват широко поради техните специални характеристики., които се придобиват чрез импрегниране на структурата с фенол, метанол и други подобни вещества. Плочите от циментови частици са по -малко вредни, но много по -тежки..
Стъклена вата често се използва като изолация. Доколко е екологично чист е труден въпрос; при работа с него голям брой малки частици могат да попаднат във въздуха..
Проекти на едноетажни вили
Можете да намерите много проекти на рамкови къщи. Най -често срещаните опции са:
опцията със сауна може да се счита за доста необичайно решение, тъй като прекалено високата влажност и спадове на температурата влияят отрицателно върху основния материал;
можете да изберете проект с гараж за кола;
конструкциите с таван са много популярни, тъй като поради необходимостта от създаване на двускатен покрив, под покрива се образува много свободно пространство;
Повечето проекти са подходящи за създаване на структури, които ще бъдат експлоатирани през лятото.. Но ако желаете, можете да построите рамкови къщи за постоянно пребиваване, за които ще трябва да извършите висококачествена изолация.
В продажба има домашен комплект за самостоятелно сглобяване. Това значително опростява процеса на изграждане на къща и довършване.
Разположение на двуетажни къщи
Можете да намерите проекти 6х7 м с два етажа. Когато ги разглеждате, трябва да вземете предвид редица фактори:
често вторият етаж е издигнат под формата на таван;
с два етажа трябва да обърнете специално внимание на носещата способност на основата;
с увеличаване на височината стабилността на цялата конструкция намалява.
Ще бъде малко по-трудно да се построи двуетажна къща. В същото време се обръща внимание на укрепването на носещите елементи на 2-ри етаж..
Като се имат предвид всички горепосочени характеристики, повечето проекти на двуетажни къщи с размери 6×7 приличат на сграда с таванско помещение като 2-ри етаж, която често се използва по свое усмотрение. Като правило има спални и шезлонги..
Дизайн
Въпреки относително ниската популярност на такива структури, можете да намерите много различни оформления с различен дизайн. Помислете за техните характеристики.
В повечето случаи дърво или сайдинг се използват като довършителни материали.. Напоследък се появиха изкуствени материали, които ще издържат много по -дълго от естествените..
Предпочитание се дава на меки и други съвременни покривни материали. Това се дължи на факта, че те са много по -леки, поради което не оказват силно натоварване върху основата..
Покривът е двускатен, с доста стръмен наклон. Това се прави, за да се изключи вероятността от натрупване на голямо количество валежи..
Най -често къщи с ъглови рамки. Площта може да варира от 60 до 90 кв. м в зависимост от броя на етажите. Вратите и прозорците се избират според вида на използвания довършителен материал и изискванията за къщата.
Примери за
Доста голямо разнообразие ви позволява да изберете подходящ проект. Най -популярните опции са:
с две спални и таванско помещение;
А също така има проекти на летни къщи с голям брой различни стопански постройки.
Рамковите къщи са добър вариант, когато трябва да спестите пари за строителство. Преди да изберете проект директно, трябва да решите какви стаи трябва да бъдат, дали къщата ще се експлоатира само през лятото или през зимата, дали имате нужда от тераса или гараж.