
За тези, които решат да построят едноетажна къща, проектът не е труден за намиране; можете да се обърнете към типични материали или да подготвите свой собствен план. В статията ще ви разкажем за плюсовете и минусите на двата варианта, ще говорим за модерни къщи на 1 -ви етаж, за тяхното оформление и интериорен дизайн.
Преглед на проектите
Днес едноетажните частни къщи са много разнообразни. Използват се съвременни материали за всеки вкус, изграждат се интересни стилни фасади. Няма да изненадате никого с двускатен покрив, плоските покриви стават модерни, на които можете да инсталирате шезлонг и да се слънчеви бани, да подредите зона за барбекю или горна градина. Клиентът често избира европейски сгради, къщи в стил Арт Нуво, хай-тек, Bauhaus.

Строителството на едноетажна къща започва с избора на място. Дори малка вила ще надвишава размера на територията, което би било достатъчно за двуетажна сграда. Но това е единственият недостатък на такива проекти и може да бъде компенсиран с мецанин, таван или мазе, те ще струват по-малко от пълноценен втори етаж. Но има много повече предимства в едноетажните сгради.. Ако в семейството има възрастни хора или малки деца, използването на втория етаж става проблематично..

По-лесно и по-евтино е да се строят ниски къщи.. Липсата на стълби, водещи нагоре, спестява значителна част от използваемата площ. След като сте решили мястото, се избира проектът на бъдещата къща.
Тя може да бъде типична или индивидуална, всяка от тези опции има своите плюсове и минуси.
Индивидуален проект
Абсолютно нови разработки се правят по искане и желание на определено семейство, въплъщавайки всичките им мечти и фантазии. Ако клиентът иска да има изключителна къща, проектирана по негова поръчка, и така че никой да няма такава сграда, той трябва да закупи документацията от архитекта. Следователно проектите от нулата имат два съществени недостатъка:
- те са няколко пъти по -скъпи от стандартните опции;
- разработването им отнема време (може да отнеме месеци).
Типичен проект
В типичен проект чертежи, скици, оценки отдавна са разработени и документирани. По тези проекти са построени много къщи и тепърва ще се строят. Недостатъкът е получаването на стандартен дом, лишен от личност. Трудно е да промените и коригирате нещо за себе си..
Предимството на такива проекти е осезаемо ниската цена в сравнение с отделния вариант, тяхното разработване няма да се налага да чака с месеци. Освен това те са добри за хора, които не са решили желанията си и след като са прегледали много готови скици, могат да изберат къща по свой вкус..

За съжаление, типичните проекти не могат да отчитат изцяло геоложките условия на строителната площадка.. Следователно, след като се проучи релефът, прилежащите подземни води, наличието на тежести в тази област, е необходимо планът на къщата да се свърже с конкретна зона. За да промените документацията, ще трябва да се свържете с проектантската организация.
Характеристики на създаването на проект
Така че при изготвянето на проект се вземат предвид буквално всеки аспект: общата площ, броят на стаите, броят етажи, както и видът на основата и покрива, доставката на комуникации. Когато работите по собствен проект за модерна къща, трябва да обърнете внимание на следните точки.
- За комфортен престой извън града в едноетажна вила се нуждаете от територия не по -малко от 6 ара. Имайки само триста квадратни метра, трябва да сте подготвени, че конструкцията ще ги заеме почти изцяло. Свободно пространство ще остане само за предната градина или компактен двор пред фасадата.
- Ако сайтът е голям, по -добре е да не се строи сграда в най -високата или най -ниската точка. В първия случай тя ще страда от ветрове, във втория – от оттока на валежите..
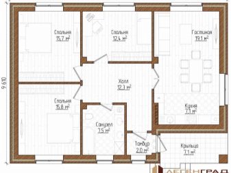
- За да избегнете проходими стаи, практикува се най -удобното оформление, това е антре в центъра на къщата, от което вратите водят до дневни и водопроводни помещения.
От улицата те влизат в залата през малък коридор или вестибюл.
- Съвременните домове често комбинират всекидневна с кухня и трапезария в полза на едно голямо пространство.. Предвиденото зониране става с помощта на декорация, осветление, мебели.
- Удобно е да имате входна входна врата в сградата, която води от кухнята към терасата, това може да осигури семейство за хранене на открито през топлия сезон. Освен това аварийният изход ще ви позволи да не обикаляте цялата къща, за да посетите задния двор..
- Трябва да се има предвид, че котелно помещение, баня, тоалетна, кухненската работна зона трябва да се намира в същата част на къщата. Това ще улесни и спести доставката на комуникации.
- Спални са построени далеч от входната врата, така че е по -лесно да се затопли в жилищните помещения.
С таванско помещение
Те прибягват до тавана, когато строят къща на малък парцел. Надстройката не може да се счита за пълноценен втори етаж, но решава проблема с разширяването на жилищните помещения. Обикновено кухнята, водопроводните помещения, антрето са разположени отдолу, а горното ниво е оставено за спални.. Ако къщата е достатъчно просторна, спалните се поставят на приземния етаж, а таванското помещение е заето от офис, билярдна стая, стаи за пораснали деца или други нужди..

Таванският етаж има свои специфики, за да го използвате през зимата, трябва да изолирате добре покрива и да донесете отопление, както и други комуникации. Поради наклона на покрива стените се издигат с височина 30-150 см, което затруднява поставянето на пълноценни корпусни мебели под тях. Такива зони са изпълнени с вградени по поръчка конструкции. Предлагаме да разгледаме няколко плана за едноетажни къщи с тавански помещения:
Опция 1
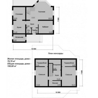
Въпреки компактността, общата площ на вилата, благодарение на тавана, е 150 кв. м. Входната врата на къщата води отстрани на покритата тераса, част от която е преустроена като преддверие. На 1 -ви етаж има баня, хол и кухня. Има вход към котелното от кухнята. Горното ниво е заето от 3 спални с съблекални и баня.
Вариант 2
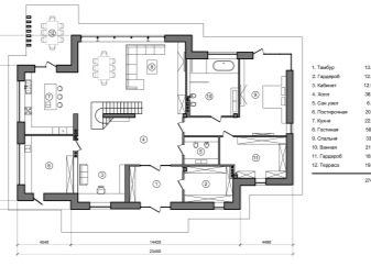
Сградата има 2 входа (от хола и вестибюла), с обща площ от 150,6 кв. м. На 1 -ви етаж има голяма зала с еркери, кухня, трапезария, офис и баня. Двустепенна стълба се намира в хола. Таванският етаж се заема от склад, баня и 2 спални с съблекални.
Към къщата е прикрепено котелно помещение.
С тераса
Когато изграждате селска къща, не трябва да пестите пари за изграждането на тераса. Колкото по -голям и удобен е той, толкова по -удобен ще бъде летен отдих на открито. На оборудваното място пред къщата те инсталират градински мебели, хамаци, люлки, оборудват зона за барбекю. Терасите са от различен тип.
- Напълно отворен, без навес или огради. Докато почивате, можете да получите максимална слънчева светлина и топлина.
- Покрит, разположен под един покрив с къщата. Тази опция е по -практична, тъй като покривът предпазва туристите от топлина и неочакван дъжд..
- Комбинираните платформи предлагат двоен комфорт – според настроението ви, можете да се слънчеви бани на слънце или да се отпуснете в сянката на балдахин.
- Тераса с барбекю прави почивката особено значима. Като пример ви предлагаме да се запознаете с къща в стил таванско помещение.

Ще дадем и няколко проекта на едноетажни къщи с тераси..
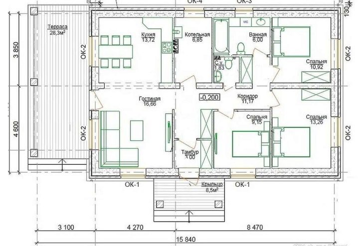
Опция 1
Просторна къща с три спални с размери 15,84 x 8,45 m. Сградата разполага с котелно, отделна баня и тоалетна. Кухнята и холът са обединени в едно пространство. Къщата съдържа голяма тераса, която изцяло заема страничната част. Изходът към терасата се осъществява от залата. Главният вход към сградата се намира от фасадата.
Вариант 2
Просторна вила с тераса, веранда (13.30x15x15 m), прикрепен гараж (26.82 кв. M) и навес. Разполага с три спални, съблекалня и хол с еркери. Къщата разполага с кухня, тоалетна, баня и пещ. Главният вход е от фасадата и води към преддверието. Вторият вход се намира от противоположната страна на сградата, на терасата, откъдето можете да стигнете до кухнята.
С големи прозорци
Съвременните жилища гравитират към свободно пространство, наситено с въздух и светлина. Все повече и повече вили се строят с европейско оформление, съчетаващи хола, трапезарията и кухнята в една голяма стая, която заема почти половината от къщата. Именно панорамните прозорци могат да осигурят пълна дневна светлина в огромна стая..
Мащабното остъкляване изглежда страхотно, също и отвън, прави фасадата стилна и модерна.

Понякога собствениците на къщи, допълнени с таван, изграждат дневни с втора светлина. В такива помещения прозорците отиват не само към пода, но и към самия покрив, чиито греди и греди могат да се гледат директно от залата. Трябва да се помни, че къщите с панорамни прозорци имат свои собствени характеристики..
- Големите прозорци не задържат топлината добре, през зимата те буквално издухват. Изходът са енергоспестяващите прозорци с двоен стъклопакет с ниски емисии, пълни със специален газ. Тяхната цена е много по -висока от конвенционалното остъкляване.
- През лятото, особено в южните райони, ще има толкова много слънце, че завесите, тапетите, книгите по рафтовете ще започнат да избледняват, а климатиците ще трябва да работят без почивка. Можете да инсталирате очила с променлива прозрачност, но ще трябва да платите за тях.
- Ако панорамните прозорци гледат към селскостопански сгради или ограда, няма да има малко смисъл от тях. Остъкляването с достъп до живописен ъгъл на градина, гора, резервоар ще може напълно да се реализира.

Предлагаме ви да се запознаете с примери за едноетажни къщи с панорамни прозорци.
- Модерна вила с втора светлина. Всекидневната се отваря към открита тераса.
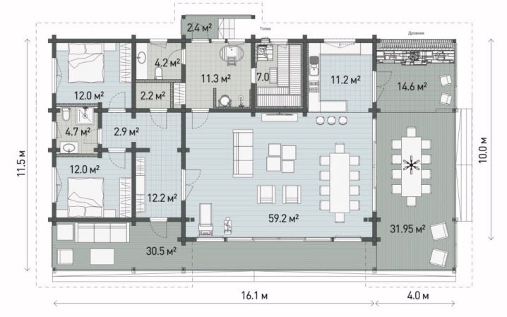
- Предна стена на едноетажна къща напълно остъклен.
- План на къщата 10.0×16.1 m. Вилата има панорамно остъкляване от фасадата и отстрани на голяма тераса.
Интериорна декорация
Съвременните едноетажни къщи с плоски покриви, огромни впечатляващи прозорци, каменни тераси често изглеждат така, сякаш са сглобени от различни геометрични форми.. Трудно е да си представим, че вътре в такава къща можете да намерите интериор в Прованс или барок. Такъв избор ще попречи на цялостното възприемане на вилата..

Интериорът на съвременните сгради се характеризира с модерни, високотехнологични, минималистични, фюжън тенденции, както и комбинирани дизайни с елементи на кубизъм, конструктивизъм и теми на Баухаус. От селските стилове хижата е най -подходяща за модерна вила, ако сградата се намира на диво, живописно място и от панорамните прозорци се виждат планински върхове или гора.

Предлагаме ви да се запознаете с интериорния дизайн на едноетажни къщи, като използвате примери..
- Ясни форми, цвят, многофактурни повърхности, минимален декор, простота и елегантност – всичко това принадлежи на посоката висока технология.
- Таванско помещение често се използва за украса на интериора на модерни къщи. Тухлена зидария, метални елементи придават индустриална ориентация на стила.
- В настройката bauhaus въпреки че има нотка на ретро, но благодарение на придържането към ясни геометрични пропорции, стилът се вписва добре в съвременната концепция за къщата.

Съвременният интериор е грандиозен и разнообразен, тъй като за създаването им се използват нови материали, които непрекъснато се разработват и произвеждат от конкурентни производители.
Днес не можете да плащате големи пари за естествено дърво и естествен камък, имитиращите материали трудно се различават от естествените, а по своите характеристики дори ги надминават..

Например, мраморен плот бързо абсорбира разлятото кафе или сок; поради голямата си порьозност е почти невъзможно да се справи с пренебрегвани петна. Изкуственият камък има висока плътност и лесно отблъсква влагата.

Естествената плоскост на открита тераса подлежи на гниене с течение на времето, а дървесно-полимерните композити (WPC) могат да издържат на лошо време. Дървесината, смесена с полимер, придобива силни, стабилни свойства. WPC се използва не само във външни условия, но и в помещения с висока влажност. Именно от такива материали се изграждат интериори на съвременни къщи..
Красиви примери
Съвременните едноетажни къщи са разнообразни, но в същото време лесно разпознаваеми. Предлагаме на вашето внимание селекция от удобни и красиви сгради.
- Тераса с барбекю под един покрив с къщата.
- Уютна къща, построена със скромен бюджет.
- Стилна високотехнологична сграда, интегрирана в естествения пейзаж.
- Къща с панорамни прозорци до резервоара.

Проекти на модерни едноетажни къщи
За тези, които решат да построят едноетажна къща, проектът не е труден за намиране; можете да се обърнете към типични материали или да подготвите свой собствен план. В статията ще ви разкажем за плюсовете и минусите на двата варианта, ще говорим за модерни къщи на 1 -ви етаж, за тяхното оформление и интериорен дизайн.
Преглед на проектите
Днес едноетажните частни къщи са много разнообразни. Използват се съвременни материали за всеки вкус, изграждат се интересни стилни фасади. Няма да изненадате никого с двускатен покрив, плоските покриви стават модерни, на които можете да инсталирате шезлонг и да се слънчеви бани, да подредите зона за барбекю или горна градина. Клиентът често избира европейски сгради, къщи в стил Арт Нуво, хай-тек, Bauhaus.
Строителството на едноетажна къща започва с избора на място. Дори малка вила ще надвишава размера на територията, което би било достатъчно за двуетажна сграда. Но това е единственият недостатък на такива проекти и може да бъде компенсиран с мецанин, таван или мазе, те ще струват по-малко от пълноценен втори етаж. Но има много повече предимства в едноетажните сгради.. Ако в семейството има възрастни хора или малки деца, използването на втория етаж става проблематично..
По-лесно и по-евтино е да се строят ниски къщи.. Липсата на стълби, водещи нагоре, спестява значителна част от използваемата площ. След като сте решили мястото, се избира проектът на бъдещата къща.
Тя може да бъде типична или индивидуална, всяка от тези опции има своите плюсове и минуси.
Индивидуален проект
Абсолютно нови разработки се правят по искане и желание на определено семейство, въплъщавайки всичките им мечти и фантазии. Ако клиентът иска да има изключителна къща, проектирана по негова поръчка, и така че никой да няма такава сграда, той трябва да закупи документацията от архитекта. Следователно проектите от нулата имат два съществени недостатъка:
Типичен проект
В типичен проект чертежи, скици, оценки отдавна са разработени и документирани. По тези проекти са построени много къщи и тепърва ще се строят. Недостатъкът е получаването на стандартен дом, лишен от личност. Трудно е да промените и коригирате нещо за себе си..
Предимството на такива проекти е осезаемо ниската цена в сравнение с отделния вариант, тяхното разработване няма да се налага да чака с месеци. Освен това те са добри за хора, които не са решили желанията си и след като са прегледали много готови скици, могат да изберат къща по свой вкус..
За съжаление, типичните проекти не могат да отчитат изцяло геоложките условия на строителната площадка.. Следователно, след като се проучи релефът, прилежащите подземни води, наличието на тежести в тази област, е необходимо планът на къщата да се свърже с конкретна зона. За да промените документацията, ще трябва да се свържете с проектантската организация.
Характеристики на създаването на проект
Така че при изготвянето на проект се вземат предвид буквално всеки аспект: общата площ, броят на стаите, броят етажи, както и видът на основата и покрива, доставката на комуникации. Когато работите по собствен проект за модерна къща, трябва да обърнете внимание на следните точки.
От улицата те влизат в залата през малък коридор или вестибюл.
С таванско помещение
Те прибягват до тавана, когато строят къща на малък парцел. Надстройката не може да се счита за пълноценен втори етаж, но решава проблема с разширяването на жилищните помещения. Обикновено кухнята, водопроводните помещения, антрето са разположени отдолу, а горното ниво е оставено за спални.. Ако къщата е достатъчно просторна, спалните се поставят на приземния етаж, а таванското помещение е заето от офис, билярдна стая, стаи за пораснали деца или други нужди..
Таванският етаж има свои специфики, за да го използвате през зимата, трябва да изолирате добре покрива и да донесете отопление, както и други комуникации. Поради наклона на покрива стените се издигат с височина 30-150 см, което затруднява поставянето на пълноценни корпусни мебели под тях. Такива зони са изпълнени с вградени по поръчка конструкции. Предлагаме да разгледаме няколко плана за едноетажни къщи с тавански помещения:
Опция 1
Въпреки компактността, общата площ на вилата, благодарение на тавана, е 150 кв. м. Входната врата на къщата води отстрани на покритата тераса, част от която е преустроена като преддверие. На 1 -ви етаж има баня, хол и кухня. Има вход към котелното от кухнята. Горното ниво е заето от 3 спални с съблекални и баня.
Вариант 2
Сградата има 2 входа (от хола и вестибюла), с обща площ от 150,6 кв. м. На 1 -ви етаж има голяма зала с еркери, кухня, трапезария, офис и баня. Двустепенна стълба се намира в хола. Таванският етаж се заема от склад, баня и 2 спални с съблекални.
Към къщата е прикрепено котелно помещение.
С тераса
Когато изграждате селска къща, не трябва да пестите пари за изграждането на тераса. Колкото по -голям и удобен е той, толкова по -удобен ще бъде летен отдих на открито. На оборудваното място пред къщата те инсталират градински мебели, хамаци, люлки, оборудват зона за барбекю. Терасите са от различен тип.
Ще дадем и няколко проекта на едноетажни къщи с тераси..
Опция 1
Просторна къща с три спални с размери 15,84 x 8,45 m. Сградата разполага с котелно, отделна баня и тоалетна. Кухнята и холът са обединени в едно пространство. Къщата съдържа голяма тераса, която изцяло заема страничната част. Изходът към терасата се осъществява от залата. Главният вход към сградата се намира от фасадата.
Вариант 2
Просторна вила с тераса, веранда (13.30x15x15 m), прикрепен гараж (26.82 кв. M) и навес. Разполага с три спални, съблекалня и хол с еркери. Къщата разполага с кухня, тоалетна, баня и пещ. Главният вход е от фасадата и води към преддверието. Вторият вход се намира от противоположната страна на сградата, на терасата, откъдето можете да стигнете до кухнята.
С големи прозорци
Съвременните жилища гравитират към свободно пространство, наситено с въздух и светлина. Все повече и повече вили се строят с европейско оформление, съчетаващи хола, трапезарията и кухнята в една голяма стая, която заема почти половината от къщата. Именно панорамните прозорци могат да осигурят пълна дневна светлина в огромна стая..
Мащабното остъкляване изглежда страхотно, също и отвън, прави фасадата стилна и модерна.
Понякога собствениците на къщи, допълнени с таван, изграждат дневни с втора светлина. В такива помещения прозорците отиват не само към пода, но и към самия покрив, чиито греди и греди могат да се гледат директно от залата. Трябва да се помни, че къщите с панорамни прозорци имат свои собствени характеристики..
Предлагаме ви да се запознаете с примери за едноетажни къщи с панорамни прозорци.
Интериорна декорация
Съвременните едноетажни къщи с плоски покриви, огромни впечатляващи прозорци, каменни тераси често изглеждат така, сякаш са сглобени от различни геометрични форми.. Трудно е да си представим, че вътре в такава къща можете да намерите интериор в Прованс или барок. Такъв избор ще попречи на цялостното възприемане на вилата..
Интериорът на съвременните сгради се характеризира с модерни, високотехнологични, минималистични, фюжън тенденции, както и комбинирани дизайни с елементи на кубизъм, конструктивизъм и теми на Баухаус. От селските стилове хижата е най -подходяща за модерна вила, ако сградата се намира на диво, живописно място и от панорамните прозорци се виждат планински върхове или гора.
Предлагаме ви да се запознаете с интериорния дизайн на едноетажни къщи, като използвате примери..
Съвременният интериор е грандиозен и разнообразен, тъй като за създаването им се използват нови материали, които непрекъснато се разработват и произвеждат от конкурентни производители.
Днес не можете да плащате големи пари за естествено дърво и естествен камък, имитиращите материали трудно се различават от естествените, а по своите характеристики дори ги надминават..
Например, мраморен плот бързо абсорбира разлятото кафе или сок; поради голямата си порьозност е почти невъзможно да се справи с пренебрегвани петна. Изкуственият камък има висока плътност и лесно отблъсква влагата.
Естествената плоскост на открита тераса подлежи на гниене с течение на времето, а дървесно-полимерните композити (WPC) могат да издържат на лошо време. Дървесината, смесена с полимер, придобива силни, стабилни свойства. WPC се използва не само във външни условия, но и в помещения с висока влажност. Именно от такива материали се изграждат интериори на съвременни къщи..
Красиви примери
Съвременните едноетажни къщи са разнообразни, но в същото време лесно разпознаваеми. Предлагаме на вашето внимание селекция от удобни и красиви сгради.