
Къщите с размери 8×11 метра са решение, което много самостроители могат да направят. Не можете да си купите проект, а само да построите жилищна сграда според чертежите на плана, който харесвате. Подробно описание ви позволява да поръчате необходимите строителни материали и след това стриктно да спазвате реда за строителство.
Предимства и недостатъци
Предимствата на дървените къщи са следните.
- Финландските къщи от дървени трупи ще издържат дълго – повече от едно десетилетие с подходяща грижа. Техният експлоатационен живот е най -малко 35 години. Разработчикът гарантира само няколко години устойчивост, но потребителят е в състояние да надвиши този гаранционен срок многократно.
- Безопасност – сградата е екологично чиста.
- Финландската къща спестява топлина. Дървото и изолацията могат да задържат топлината в продължение на много часове след временно спиране на газ или електричество.
- Скоростта на строителството. Технологията е толкова сложна, че е възможно да се построи къща за броени дни, без да се отчита полагането на основата..
- Дървото „диша“, не изгнива и не се разлага дълго време, абсорбирайки и отделяйки влага.
- Дървените и строителните технологии дават възможност за инсталиране на такава къща дори в зоната на земетресения и планински процеси..
- Пожарната безопасност се осигурява от негорими импрегнации.
- Дървото изолира вътрешността от външен шум (например шум от дъжд).
- Малката маса на къщата не претоварва основата. Същото не може да се каже за рамката от стоманобетон и тухлена зидария..

Има и недостатъци на дървото..
- Дървото изисква подходяща грижа: периодично обновяване на лаковото покритие, което се срутва за година или две от ултравиолетовата радиация.
- Огнеустойчивостта тук е само относителна. Това ще ви спаси от къс огън – но ако например случайно разлеете гориво, той ще изгори повърхностния слой от дърво, в който има импрегниране, а по -дълбоките слоеве ще се запалят сами. Само тухлени, бетонни, стоманени и пеноблокове ще дадат абсолютна пожароустойчивост.

Алтернатива на финландската къща е мезонет (или имение), построен на покрива на гигантски небостъргач. За да не се оказва натиск върху подовете, лежащи под него, той може да бъде изграден от бар или заоблени трупи. Недостатъкът на мезонета е ниската му защита срещу гръмотевични бури.
Проекти за тераси
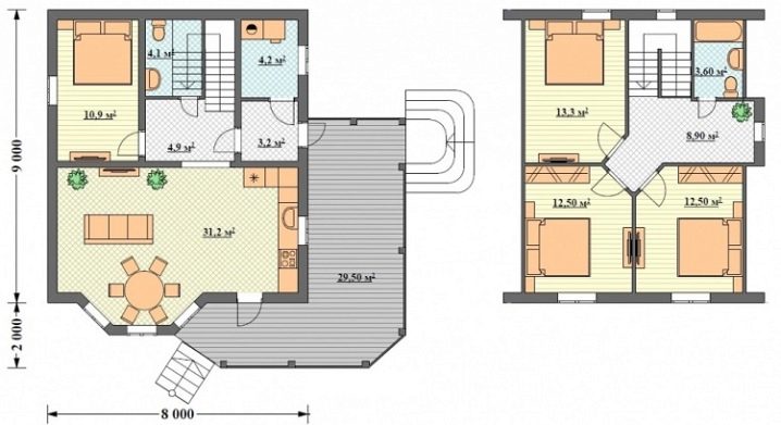
Проектите с място за тераса се подготвят предварително. Отначало това може да бъде обикновена къща с място за веранда на главния вход или до кухня-хол. Вградената в периметъра на сградата веранда може лесно да бъде преустроена в тераса: достатъчно е само да го остъклите и изолирате, ако със сигурност ще бъде целогодишен, а не лятна тераса.

Така че една от опциите на проекта може да има следното оформление:
- място за тераса – 15,7 м2;
- антре – 2,4;
- зала – 9,8;
- хол – 16,9;
- трапезария – 10,3;
- кухня – 5,3;
- баня и котелно – 5,7 “квадрата”.
Използваемата площ на първия етаж в този случай е 71,8 м2.

На втория етаж има:
- втора зала – 8,5 кв. m;
- баня – 5.7 (като на първия етаж);
- три спални – 11,2; 16,6 срещу 9,7.
Полезната площ на втория етаж е 51,7 м2. Къщата принадлежи към условно двуетажни сгради, но всъщност това е едноетажна сграда с таван.
Планове на къща с таванско помещение
Примерът на тавана, току -що обсъден по -горе. Нека дадем друг пример, където първият етаж е част от проекта на пълноценна двуетажна къща..
- 8,2 м2 балдахин тераса с два входа.
- Зала с площ от 10,7 кв. м,
- Кухня -всекидневна – 23.4.
- Спалня – 10.3.
- Баня – 4.1.
- Котелно помещение – 6.1.
- Тамбур – 3.4.

Входът в котелното е отделен. Всъщност цялото котелно помещение е прикрепено отделно, всичките му стени са носещи. Не е много удобен проект – в студа не всеки собственик иска да излезе за контрол, планирана поддръжка, подмяна на компоненти и т.н. Можете обаче да подредите входа през спалнята..
Сега премахваме втория етаж и изграждаме таванско помещение, като правим скосяване отстрани, където кухнята-хол се намира на първия етаж. Само една спалня за 20 м2 е достатъчна. Недостатъкът на ремоделирането е техническата и проектна сложност на изпълнението на къщата според актуализирания проект.
Разположение на къщи с гараж
Горните проекти са изградени с тухли, дървен материал (като финландска къща), стоманобетон или дървена рамкова технология. Трябва да разберете, че дизайнът и оформлението имат малък ефект върху строителните технологии. Във всички случаи се изгражда конструкция с висока якост, предназначена за повече от едно поколение собственици..
При условие, разбира се, строителите да се придържат към нормите и изискванията на SNiP, GOST, международните стандарти, те са добре запознати със здравината на материалите и имат представа колко променлива е почвата на строителната площадка, и те напълно се придържат към правилата за безопасност и здраве.

По -долу предлагаме пример за проект за къща с гараж, който има следното оформление:
- хол – 27,06 м2;
- тераса – 9,0;
- помощен блок – 7,2;
- зала – 5,46;
- кухня – 10,51;
- тамбур – 7,2;
- котелно помещение и баня – по 4.64;
- гараж – 32,34;
- веранда – 5,74.

Резултатът е красив, завършен проект (и къща на практика) със следните помещения на втория етаж:
- голяма стая – 18,74 кв. m;
- спални – 10.51 и 12.16;
- втора баня – 6,67;
- зала – 7.06;
- съблекалня – 7.2.
Стълбище води към залата на втория етаж в тесен проход..

Проекти на къщи с размери 8 на 11 метра
Къщите с размери 8×11 метра са решение, което много самостроители могат да направят. Не можете да си купите проект, а само да построите жилищна сграда според чертежите на плана, който харесвате. Подробно описание ви позволява да поръчате необходимите строителни материали и след това стриктно да спазвате реда за строителство.
Предимства и недостатъци
Предимствата на дървените къщи са следните.
Има и недостатъци на дървото..
Алтернатива на финландската къща е мезонет (или имение), построен на покрива на гигантски небостъргач. За да не се оказва натиск върху подовете, лежащи под него, той може да бъде изграден от бар или заоблени трупи. Недостатъкът на мезонета е ниската му защита срещу гръмотевични бури.
Проекти за тераси
Проектите с място за тераса се подготвят предварително. Отначало това може да бъде обикновена къща с място за веранда на главния вход или до кухня-хол. Вградената в периметъра на сградата веранда може лесно да бъде преустроена в тераса: достатъчно е само да го остъклите и изолирате, ако със сигурност ще бъде целогодишен, а не лятна тераса.
Така че една от опциите на проекта може да има следното оформление:
Използваемата площ на първия етаж в този случай е 71,8 м2.
На втория етаж има:
Полезната площ на втория етаж е 51,7 м2. Къщата принадлежи към условно двуетажни сгради, но всъщност това е едноетажна сграда с таван.
Планове на къща с таванско помещение
Примерът на тавана, току -що обсъден по -горе. Нека дадем друг пример, където първият етаж е част от проекта на пълноценна двуетажна къща..
Входът в котелното е отделен. Всъщност цялото котелно помещение е прикрепено отделно, всичките му стени са носещи. Не е много удобен проект – в студа не всеки собственик иска да излезе за контрол, планирана поддръжка, подмяна на компоненти и т.н. Можете обаче да подредите входа през спалнята..
Сега премахваме втория етаж и изграждаме таванско помещение, като правим скосяване отстрани, където кухнята-хол се намира на първия етаж. Само една спалня за 20 м2 е достатъчна. Недостатъкът на ремоделирането е техническата и проектна сложност на изпълнението на къщата според актуализирания проект.
Разположение на къщи с гараж
Горните проекти са изградени с тухли, дървен материал (като финландска къща), стоманобетон или дървена рамкова технология. Трябва да разберете, че дизайнът и оформлението имат малък ефект върху строителните технологии. Във всички случаи се изгражда конструкция с висока якост, предназначена за повече от едно поколение собственици..
При условие, разбира се, строителите да се придържат към нормите и изискванията на SNiP, GOST, международните стандарти, те са добре запознати със здравината на материалите и имат представа колко променлива е почвата на строителната площадка, и те напълно се придържат към правилата за безопасност и здраве.
По -долу предлагаме пример за проект за къща с гараж, който има следното оформление:
Резултатът е красив, завършен проект (и къща на практика) със следните помещения на втория етаж:
Стълбище води към залата на втория етаж в тесен проход..