
Проектът на къща с гараж под един покрив е един от най -атрактивните варианти в съвременното развитие. Наложително е да се проучат едноетажни и двуетажни варианти. Забележителни са и конструкции с гараж и таванско помещение, с баня и други интересни планове..
Предимства и недостатъци
В много случаи разпределението на отделно място на площадката за гаража е невъзможно или много трудно. В тази ситуация изграждането на къща, комбинирано с гараж, се оказва най -добрият избор.. При компетентен подход положителните аспекти на такова решение надвишават неговите недостатъци – но те все още трябва да бъдат проучени еднакво. Къщите, комбинирани с гаражи, се появиха преди всичко в САЩ, което не е изненадващо – именно там моторизацията започна по -рано, отколкото в други страни..

Скоро беше открито, че подобна комбинация, в допълнение към по -рационалното използване на пространството, има и други предимства:
- ви позволява да спестите пари за изграждането на самостоятелен гараж;
- дава възможност за свързване на паркомястото с общо отопление, водоснабдяване и канализация;
- осигурява удобен достъп до колата независимо от времето.
Има и друга сериозна опасност – гаражът представлява риск от експлозии и пожари..

Укрепването на конструкциите и принудителното използване на вентилация до голяма степен помага да се справим с подобни заплахи.. Внимание: всичко това трябва да се прави стриктно според проекта, а не по причини „да гарантираме достатъчно“ или „трябва да спестите“. Само специални проекти, подготвени от професионалисти, ви позволяват да решавате всички проблеми ефективно и безопасно.
.

Ако е невъзможно да се плащат услугите на архитектите, по -добре е да вземете за основа напълно завършен проект.. Също така си струва веднага да решите кой гараж ще бъде създаден в къщата – всички те имат свои силни и слаби страни..

Подземно паркомясто е най -защитено от лошо време и други външни влияния. Но изграждането под земята е доста трудно и може да се направи само на етапа на създаване на самата къща. Ако пропуснете този момент, нищо не може да се направи.
Освен това, подреждането на подземни гаражи и други мазета изобщо не е съвместимо с всички видове основи. Но полезното пространство се освобождава и общата височина на къщата се намалява..

Най -популярни са традиционните наземни гаражи.. Тяхното изграждане е добре установено и има голям брой проекти, които могат да бъдат изпълнени без проблеми. Технически всичко е просто: зоната за паркиране се намира на нивото на приземния етаж, а всички останали помещения се завършват във връзка с нея. Понякога има и гараж отстрани на земята – той е подобен на предишния тип и те имат общ минус – общата височина на къщата се увеличава; но можете да строите независимо от етапа на строителство на къщата.

Също така си струва да се вземат предвид такива нюанси като:
- ограничено гаражно пространство в самата къща, което намалява нейната функционалност;
- увеличена сложност на вилата с място за паркиране по отношение на архитектурата;
- заемане на полезно място, което теоретично може да бъде разпределено за други цели.
Преглед на проектите
Едноетажна
План на къщата заедно с гараж от 29,5 кв. m се оказва доста прилично решение. Можете да стигнете до и от колата през отделен вход. Прилежащото пространство е подходящо за организиране на относително малка тераса.. От 12-метровия коридор е лесно да се влезе в общото помещение, чийто размер надвишава 31 кв. м. Диаграмата показва и наличието на голям брой други помещения, чието предназначение може да бъде променено по ваша преценка..

Можете също да разгледате алтернативно решение.. Снимката показва къща с гараж, която заема почти 19 кв. м. Това не е толкова малко – подобна площ е достатъчна за паркирането на повечето джипове. Разработчиците са предвидили както “втора светлина”, така и предверие от 1,6 кв. М. м.
14-метровият коридор ще побере доста гости или голямо семейство; трябва да се подчертае, че има два допълнителни входа към къщата.
Двуетажна
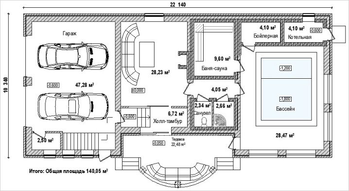
Вариантите за двуетажни къщи с гараж под един покрив могат да бъдат доста различни. Например, много интересно решение е, когато нивото на мазето е запазено за котелното помещение и за няколко различни по големина мазета, чиято цел варира по ваша преценка. Самият гараж в този проект се намира на приземния етаж и заема 36 кв. м. От 4-метровата веранда влизащите влизат в 8-метровия коридор.

Хол и гардероб са разположени по краищата му.. В 6-метровата баня има всичко необходимо за цялостни хигиенни процедури. Кухня 12 кв. м. ви позволява да се наслаждавате на готвенето. Площта на хола достига 28 кв. м. Гаражът има отделен вход, не можете да стигнете до него от къщата. Къща със сауна и гараж също трябва да се разглежда непременно. Тази опция включва малък (около 2 кв. М.) Душ. Зоната за сауна също е малка – малко повече от 4 “квадрата”. Размерът на съблекалнята е същият като този на парната баня. За релаксация след процедури за баня тук се разпределят около 10 м2..

Освен това мазето съдържа:
- техническо помещение;
- зала;
- билярдна зала;
- отделно пространство, което можете да използвате, както сметнете за добре.

Гараж под покрив от 39 м2, общ с къщата, ви позволява лесно да настаните няколко обикновени градски коли. Разбира се, ще бъде много по -трудно да поставите SUV там. Има и офис от 15 кв. м. Можете да влезете в къщата през верандата и вестибюла. Има и:
- кухня;
- котел блок;
- килер;
- зона за гости.
На тавана има:
- спални;
- баня;
- зала;
- Влизам в килера.

Има и друг вариант – този път с гараж от 19,8 кв. м. Размерът на зоната за гости достига 25,4 м2. Площта на вестибюла е 2,3 “квадрата”. Около 9 “квадрата” бяха взети под трапезарията. Страни на къщата – 13,74 и 9,4 м. На втория етаж спалните са разпределени по размер:
Уместно е да завършите историята с още една опция. Тя включва подреждането на 20-метров гараж. Площта на зоната за гости е почти 34 кв. м. Размерът на коридора е 12 квадратни метра. м. На последния етаж има няколко спални, има и „втора светлина“.
Опции за дизайн
Използваният материал е решаващ при избора на дизайн. Но можете също да „обърнете“ задачата – първо изберете стил, а след това съберете материал за него. В селските къщи и вили “руският имот с гараж” е доста разпространен. Всички такива сгради са издигнати от бара. Едва ли е възможно да ги срещнем в границите на голям град..

Това решение обаче има и много убедителни недостатъци.. Така че, гаражът не е обикновен навес и в него трябва да се създаде пълна вентилация. Само при това условие е възможно да се осигури подходящ комфорт при използването му..

Очевидно е, че проектирането и изграждането на вентилационни комуникации очевидно увеличава цената на строителните работи.. Самите въздуховоди и техните компоненти ще трябва да се погрижат допълнително.

Много хора понякога се дразнят от разпространението на миризми от автомобили, от петролни продукти и други използвани вещества. И отработените газове не са субективно неудобство, тъй като често се смята, че са много токсични. Веднага след като двигателят стартира, звукът му се разпространява из къщата. Теоретично този проблем се решава с помощта на звукоизолация, чието подреждане отново води до допълнителни разходи..

Проектите от дървени сгради с места за паркиране най -често се отличават с необичаен външен вид, но това не им пречи да поддържат пълна практичност.. Ако разработчиците поставят баланса между простота и изтънченост на първо място, тогава те трябва да изберат английския стил. За него са характерни простотата на линиите и липсата на претенциозни геометрични форми..
Въвеждането на мазилка или колони (понякога и двете) е допустимо, но тези елементи не трябва да усложняват прекалено създадената композиция.

Английският стил е съвместим с голямо разнообразие от строителни и довършителни материали. Някои сгради дори са издигнати от блокове от пяна. Фактът, че те очевидно не са били използвани в историческата практика в Англия, не разваля ни най -малко впечатлението. Но понякога краткостта на такъв подход престава да отговаря. След това трябва да направите избор в полза на тържествен и дори леко помпозен стил ампир. Тя изисква всички характеристики на сградите, за да създаде приятно, дори донякъде празнично настроение. Реализирането на тази идея не е лесно, особено като се има предвид чисто утилитарното предназначение на гаража. И все пак опитни хора могат да постигнат отлични резултати. Работата ще трябва да се подхожда с цялата отговорност. Ако нямате собствени умения, по -добре е да се обърнете към професионалисти.
Що се отнася до материалите, в повечето случаи те използват:
- дърво;
- газобетон;
- пенобетон;
- тухла.

Полезно е да разгледаме няколко директни примера за къщи с гараж под един покрив..
- Така че комбинация от бели и дървесни жълти цветове може да изглежда много привлекателна. В тази версия тъмнокафявият покрив с прозорци се възприема относително добре. Богатата тъмна врата на входа на гаража се оказва привлекателен детайл. Като цяло жилището се вписва идеално в околната среда..
- Струва си да разгледаме по-отблизо двуетажна къща с гараж. Важното му предимство е оборудването на добър балкон. Районът пред жилището е озеленен и декориран много атрактивно. Архитектите умело са избрали комбинация от тъмни и бели цветове.
Един от външните стълбове, украсен с естествен камък, се възприема много добре и дори оригинално.
- Къщата с лек люляк покрив също заслужава внимание. В центъра тя има сложна издатина – обаче, като останалата част от сградата. Резултатът е покрита веранда, украсена с масивни колони. Дизайнът на сградата е доминиран от светло жълт тон. Жилището изглежда дори незабележимо, но лаконично.

Проекти на къщи с гараж под един покрив
Проектът на къща с гараж под един покрив е един от най -атрактивните варианти в съвременното развитие. Наложително е да се проучат едноетажни и двуетажни варианти. Забележителни са и конструкции с гараж и таванско помещение, с баня и други интересни планове..
Предимства и недостатъци
В много случаи разпределението на отделно място на площадката за гаража е невъзможно или много трудно. В тази ситуация изграждането на къща, комбинирано с гараж, се оказва най -добрият избор.. При компетентен подход положителните аспекти на такова решение надвишават неговите недостатъци – но те все още трябва да бъдат проучени еднакво. Къщите, комбинирани с гаражи, се появиха преди всичко в САЩ, което не е изненадващо – именно там моторизацията започна по -рано, отколкото в други страни..
Скоро беше открито, че подобна комбинация, в допълнение към по -рационалното използване на пространството, има и други предимства:
Има и друга сериозна опасност – гаражът представлява риск от експлозии и пожари..
Укрепването на конструкциите и принудителното използване на вентилация до голяма степен помага да се справим с подобни заплахи.. Внимание: всичко това трябва да се прави стриктно според проекта, а не по причини „да гарантираме достатъчно“ или „трябва да спестите“. Само специални проекти, подготвени от професионалисти, ви позволяват да решавате всички проблеми ефективно и безопасно.
.
Ако е невъзможно да се плащат услугите на архитектите, по -добре е да вземете за основа напълно завършен проект.. Също така си струва веднага да решите кой гараж ще бъде създаден в къщата – всички те имат свои силни и слаби страни..
Подземно паркомясто е най -защитено от лошо време и други външни влияния. Но изграждането под земята е доста трудно и може да се направи само на етапа на създаване на самата къща. Ако пропуснете този момент, нищо не може да се направи.
Освен това, подреждането на подземни гаражи и други мазета изобщо не е съвместимо с всички видове основи. Но полезното пространство се освобождава и общата височина на къщата се намалява..
Най -популярни са традиционните наземни гаражи.. Тяхното изграждане е добре установено и има голям брой проекти, които могат да бъдат изпълнени без проблеми. Технически всичко е просто: зоната за паркиране се намира на нивото на приземния етаж, а всички останали помещения се завършват във връзка с нея. Понякога има и гараж отстрани на земята – той е подобен на предишния тип и те имат общ минус – общата височина на къщата се увеличава; но можете да строите независимо от етапа на строителство на къщата.
Също така си струва да се вземат предвид такива нюанси като:
Преглед на проектите
Едноетажна
План на къщата заедно с гараж от 29,5 кв. m се оказва доста прилично решение. Можете да стигнете до и от колата през отделен вход. Прилежащото пространство е подходящо за организиране на относително малка тераса.. От 12-метровия коридор е лесно да се влезе в общото помещение, чийто размер надвишава 31 кв. м. Диаграмата показва и наличието на голям брой други помещения, чието предназначение може да бъде променено по ваша преценка..
Можете също да разгледате алтернативно решение.. Снимката показва къща с гараж, която заема почти 19 кв. м. Това не е толкова малко – подобна площ е достатъчна за паркирането на повечето джипове. Разработчиците са предвидили както “втора светлина”, така и предверие от 1,6 кв. М. м.
14-метровият коридор ще побере доста гости или голямо семейство; трябва да се подчертае, че има два допълнителни входа към къщата.
Двуетажна
Вариантите за двуетажни къщи с гараж под един покрив могат да бъдат доста различни. Например, много интересно решение е, когато нивото на мазето е запазено за котелното помещение и за няколко различни по големина мазета, чиято цел варира по ваша преценка. Самият гараж в този проект се намира на приземния етаж и заема 36 кв. м. От 4-метровата веранда влизащите влизат в 8-метровия коридор.
Хол и гардероб са разположени по краищата му.. В 6-метровата баня има всичко необходимо за цялостни хигиенни процедури. Кухня 12 кв. м. ви позволява да се наслаждавате на готвенето. Площта на хола достига 28 кв. м. Гаражът има отделен вход, не можете да стигнете до него от къщата. Къща със сауна и гараж също трябва да се разглежда непременно. Тази опция включва малък (около 2 кв. М.) Душ. Зоната за сауна също е малка – малко повече от 4 “квадрата”. Размерът на съблекалнята е същият като този на парната баня. За релаксация след процедури за баня тук се разпределят около 10 м2..
Освен това мазето съдържа:
Гараж под покрив от 39 м2, общ с къщата, ви позволява лесно да настаните няколко обикновени градски коли. Разбира се, ще бъде много по -трудно да поставите SUV там. Има и офис от 15 кв. м. Можете да влезете в къщата през верандата и вестибюла. Има и:
На тавана има:
Има и друг вариант – този път с гараж от 19,8 кв. м. Размерът на зоната за гости достига 25,4 м2. Площта на вестибюла е 2,3 “квадрата”. Около 9 “квадрата” бяха взети под трапезарията. Страни на къщата – 13,74 и 9,4 м. На втория етаж спалните са разпределени по размер:
Уместно е да завършите историята с още една опция. Тя включва подреждането на 20-метров гараж. Площта на зоната за гости е почти 34 кв. м. Размерът на коридора е 12 квадратни метра. м. На последния етаж има няколко спални, има и „втора светлина“.
Опции за дизайн
Използваният материал е решаващ при избора на дизайн. Но можете също да „обърнете“ задачата – първо изберете стил, а след това съберете материал за него. В селските къщи и вили “руският имот с гараж” е доста разпространен. Всички такива сгради са издигнати от бара. Едва ли е възможно да ги срещнем в границите на голям град..
Това решение обаче има и много убедителни недостатъци.. Така че, гаражът не е обикновен навес и в него трябва да се създаде пълна вентилация. Само при това условие е възможно да се осигури подходящ комфорт при използването му..
Очевидно е, че проектирането и изграждането на вентилационни комуникации очевидно увеличава цената на строителните работи.. Самите въздуховоди и техните компоненти ще трябва да се погрижат допълнително.
Много хора понякога се дразнят от разпространението на миризми от автомобили, от петролни продукти и други използвани вещества. И отработените газове не са субективно неудобство, тъй като често се смята, че са много токсични. Веднага след като двигателят стартира, звукът му се разпространява из къщата. Теоретично този проблем се решава с помощта на звукоизолация, чието подреждане отново води до допълнителни разходи..
Проектите от дървени сгради с места за паркиране най -често се отличават с необичаен външен вид, но това не им пречи да поддържат пълна практичност.. Ако разработчиците поставят баланса между простота и изтънченост на първо място, тогава те трябва да изберат английския стил. За него са характерни простотата на линиите и липсата на претенциозни геометрични форми..
Въвеждането на мазилка или колони (понякога и двете) е допустимо, но тези елементи не трябва да усложняват прекалено създадената композиция.
Английският стил е съвместим с голямо разнообразие от строителни и довършителни материали. Някои сгради дори са издигнати от блокове от пяна. Фактът, че те очевидно не са били използвани в историческата практика в Англия, не разваля ни най -малко впечатлението. Но понякога краткостта на такъв подход престава да отговаря. След това трябва да направите избор в полза на тържествен и дори леко помпозен стил ампир. Тя изисква всички характеристики на сградите, за да създаде приятно, дори донякъде празнично настроение. Реализирането на тази идея не е лесно, особено като се има предвид чисто утилитарното предназначение на гаража. И все пак опитни хора могат да постигнат отлични резултати. Работата ще трябва да се подхожда с цялата отговорност. Ако нямате собствени умения, по -добре е да се обърнете към професионалисти.
Що се отнася до материалите, в повечето случаи те използват:
Полезно е да разгледаме няколко директни примера за къщи с гараж под един покрив..
Един от външните стълбове, украсен с естествен камък, се възприема много добре и дори оригинално.