
Проектът на едноетажна частна къща с две спални е задача, която не винаги се решава веднага. И няма нужда да бързате. Пространството в къща на един етаж вече няма да бъде автоматично разделено на обществено и частно и всяка стая също трябва да получава максимална слънчева светлина. И това са само няколко условия за компетентно планиране..
Особености
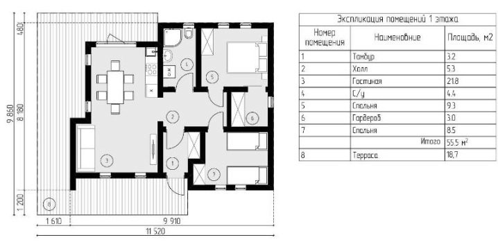
В предната част на едноетажна къща често са разположени технически помещения, в центъра е голям хол (сърцето на жилището), който е свързан с кухнята и трапезарията. И 2 “ръкави” могат да излязат от хола – обикновено това е на дете и възрастен. И в едната ще има първата спалня, в другата – втората, те са ясно разделени и разделени в условно частна зона. И такова решение е най -типичното, защото има зониране, логистика и рационалност..
Какво да вземете предвид при планирането на едноетажна къща с 2 спални.
-
Отдалечеността на спалните от най -натоварените места в къщата може да бъде трудна с това, но дългите коридори помагат. Дори е достатъчно да направите кухнята и трапезарията по -далеч от спалните, отколкото от хола..
-
Ако е възможно, направете отделен вход към спалния блок, той трябва да се използва. Можете също така да направите изход от спалните към терасата, например. Това ще ви помогне да се пенсионирате, да излезете на чист въздух преди лягане или тихо, без да пречите на никого, да напуснете къщата рано сутрин..
-
Когато планирате спални, трябва правилно да подредите мебелите в тях – така че зоната за спане да е отдалечена от стените, граничещи с общественото пространство.

Банята може да се намира в началото на къщата, където ще има технически помещения. Можете да различите баня в зоната за спане, една за две стаи – това е най -удобното.
Как могат да бъдат подредени стаите?
Има достатъчно опции, много зависи от първоначалните предпочитания, както и от това за кого точно са предназначени спалните. Това, което първо ще бъде стая за гости, може в крайна сметка да се превърне в детска спалня, така че трябва да мислите за бъдещето.
Опции за оформление на стаята.
-
Всекидневна с изходи към две спални. Оказва се, че холът е проходен, но пространството се използва възможно най-ефективно. Това често се случва, ако две спални общо са равни по размер на хола..
- От кухнята-трапезарията до малка антре, в непосредствена близост до вестибюла и банята, а оттам, от залата, има изходи към двете спални. Добър вариант за малки къщи.
-
Тамбурът и пещта са в съседство, а от вестибюла има вход към голяма обединяваща всекидневна. От едната страна на хола ще има изход към спалнята, а тази първа спалня ще се превърне в разходка за втората. Вариантът не е най -успешният, но е подходящ за тези, които не искат да направят няколко изхода от хола, а оставят само един. Също така може да се хареса на младите родители, които искат да имат възможно най -бърз достъп до спалнята на детето..
- Спалните могат да бъдат разположени в различни крила на къщата, а между тях в една и съща равнина ще има тераса. Не е най -често срещаният вариант, но изглежда красив. По този начин едната спалня вероятно ще бъде в съседство с кухнята-хола, а другата с баня..

И все пак, опцията за влизане в спалните от хола е най -честата. Не е подходящ само за тези, които обичат да организират шумни събирания в основната стая, а в спалните ще бъде невъзможно да се абстрахирате от него..
Съвети за планиране
Ако сайтът е закупен и зависи от изготвянето на проекта, ще трябва да вземете предвид няколко ключови момента:
-
разберете допустимите размери на къщата, като вземете предвид строителните норми;
-
вземете решение за помещенията, без които не можете – ако вместо една спалня те правят сауна, а има общо 2-3 спални, подобен избор едва ли ще бъде успешен (но все пак за някой е идеален, въпрос на приоритет);
-
оценете предимствата / недостатъците на типичните проекти – на какво ще се опира погледът на човек, влизащ в къщата (например банята не е опция), има ли визуални връзки на ключови елементи и много други;
-
реконструкцията не изисква големи усилия – ако решенията са затворени и нищо не може да се преиграе, това свързва ръцете в бъдеще, добре е, когато проектът е по -оживен и възстановяем.

Най -добрата схема е тази, при която почти няма компромиси. Където стаите са подредени в реда, в който първоначално са искали, а техническите помещения не заснемат повече кадри, отколкото е логично с общата площ. Случва се така, че не можете да откажете и от котелното, и от килера, и от съблекалнята, и в резултат – или минус спалнята, или много намалена площ от такава.
Всъщност има много добри, прости решения, достатъчно е само веднага да разделите важното и второстепенното, а не да се опитвате да направите максимум функционални включвания в малък проект.

Планове за едноетажни къщи с две спални
Проектът на едноетажна частна къща с две спални е задача, която не винаги се решава веднага. И няма нужда да бързате. Пространството в къща на един етаж вече няма да бъде автоматично разделено на обществено и частно и всяка стая също трябва да получава максимална слънчева светлина. И това са само няколко условия за компетентно планиране..
Особености
В предната част на едноетажна къща често са разположени технически помещения, в центъра е голям хол (сърцето на жилището), който е свързан с кухнята и трапезарията. И 2 “ръкави” могат да излязат от хола – обикновено това е на дете и възрастен. И в едната ще има първата спалня, в другата – втората, те са ясно разделени и разделени в условно частна зона. И такова решение е най -типичното, защото има зониране, логистика и рационалност..
Какво да вземете предвид при планирането на едноетажна къща с 2 спални.
Отдалечеността на спалните от най -натоварените места в къщата може да бъде трудна с това, но дългите коридори помагат. Дори е достатъчно да направите кухнята и трапезарията по -далеч от спалните, отколкото от хола..
Ако е възможно, направете отделен вход към спалния блок, той трябва да се използва. Можете също така да направите изход от спалните към терасата, например. Това ще ви помогне да се пенсионирате, да излезете на чист въздух преди лягане или тихо, без да пречите на никого, да напуснете къщата рано сутрин..
Когато планирате спални, трябва правилно да подредите мебелите в тях – така че зоната за спане да е отдалечена от стените, граничещи с общественото пространство.
Банята може да се намира в началото на къщата, където ще има технически помещения. Можете да различите баня в зоната за спане, една за две стаи – това е най -удобното.
Как могат да бъдат подредени стаите?
Има достатъчно опции, много зависи от първоначалните предпочитания, както и от това за кого точно са предназначени спалните. Това, което първо ще бъде стая за гости, може в крайна сметка да се превърне в детска спалня, така че трябва да мислите за бъдещето.
Опции за оформление на стаята.
Всекидневна с изходи към две спални. Оказва се, че холът е проходен, но пространството се използва възможно най-ефективно. Това често се случва, ако две спални общо са равни по размер на хола..
Входно антре между дневната-трапезарията-кухня и спалнята. Това е чудесен вариант, защото входното антре се превръща в зонер, който разделя къщата на обществени и частни зони..
Тамбурът и пещта са в съседство, а от вестибюла има вход към голяма обединяваща всекидневна. От едната страна на хола ще има изход към спалнята, а тази първа спалня ще се превърне в разходка за втората. Вариантът не е най -успешният, но е подходящ за тези, които не искат да направят няколко изхода от хола, а оставят само един. Също така може да се хареса на младите родители, които искат да имат възможно най -бърз достъп до спалнята на детето..
И все пак, опцията за влизане в спалните от хола е най -честата. Не е подходящ само за тези, които обичат да организират шумни събирания в основната стая, а в спалните ще бъде невъзможно да се абстрахирате от него..
Съвети за планиране
Ако сайтът е закупен и зависи от изготвянето на проекта, ще трябва да вземете предвид няколко ключови момента:
разберете допустимите размери на къщата, като вземете предвид строителните норми;
вземете решение за помещенията, без които не можете – ако вместо една спалня те правят сауна, а има общо 2-3 спални, подобен избор едва ли ще бъде успешен (но все пак за някой е идеален, въпрос на приоритет);
оценете предимствата / недостатъците на типичните проекти – на какво ще се опира погледът на човек, влизащ в къщата (например банята не е опция), има ли визуални връзки на ключови елементи и много други;
реконструкцията не изисква големи усилия – ако решенията са затворени и нищо не може да се преиграе, това свързва ръцете в бъдеще, добре е, когато проектът е по -оживен и възстановяем.
Най -добрата схема е тази, при която почти няма компромиси. Където стаите са подредени в реда, в който първоначално са искали, а техническите помещения не заснемат повече кадри, отколкото е логично с общата площ. Случва се така, че не можете да откажете и от котелното, и от килера, и от съблекалнята, и в резултат – или минус спалнята, или много намалена площ от такава.
Всъщност има много добри, прости решения, достатъчно е само веднага да разделите важното и второстепенното, а не да се опитвате да направите максимум функционални включвания в малък проект.