
Таванът се счита за един от основните декоративни елементи, поради което дизайнът и оформлението на помещението зависи от височината му. Високите стени изпълват пространството с усещане за комфорт и простор, докато ниските стени, напротив, го правят ограничено и претеглено..
Когато е необходимо да се създаде нов интериор в една стая, важно е да се обърне внимание на размерите на тавана и вече като се започне от неговите параметри, изберете подходящото покритие, осветителна система и декор. Освен това днес има много начини, чрез които можете визуално да повдигнете структурата и да направите стаята просторна и удобна..
Особености
Основният индикатор при закупуване на апартамент е височината на таваните му, тъй като именно това отваря големи възможности за декориране на стаи и влияе върху възприемането на пространството. Ето защо, когато избирате нов дом, трябва да вземете предвид оптималния размер на този показател. Те трябва да съответстват не само на ръста на хората, живеещи в апартамента, но и на площта на стаята..
Височината се счита за нормална, ако от протегнатата ръка на човек до припокриването остане най -малко 30 см. За големи помещения, които съчетават няколко функционални зони, височина най -малко 3,5 м ще бъде удобна, а 2,8 м са достатъчни за трапезарии и кухни.

Напоследък много апартаменти инсталират многостепенни окачени тавани и системи за подово отопление. Този тип монтажни работи правят помещенията топли и красиви, но височината на стаята в този случай се намалява с 20 см. Следователно тази опция за довършителни работи не е подходяща за ниски помещения., за тях трябва да създадете индивидуални проекти и да изберете интериор, който няма да зависи от височината на таваните.
Заслужава да се отбележи, че този показател се определя от собствените предпочитания на собствениците, тъй като някои от тях се чувстват комфортно в стая с височина 3 м, докато други, напротив, са доволни от минималния размер от 2,5 м..
Стандарти в съответствие с ГОСТ
Стандартната височина на тавана в апартамент се счита за относителен параметър, тъй като на практика най -често се използва такава концепция като оптимална височина. Показателите му са установени в съответствие с изискванията на SNIP, в съответствие с климатичните условия, стандартите за безопасност и ергономичността на жилищното пространство.
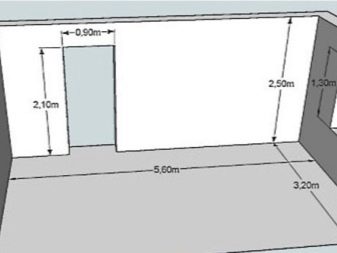
Според правилата минималната височина трябва да бъде:
- в хола и в кухнята – повече от 2,5 м;
- в коридори, коридори и предни помещения – повече от 2,1 м.

Освен това стандартът се определя отделно за горните и таванските етажи, които имат ограждащи и наклонени конструкции в дизайна си. В този случай площта на таваните не може да бъде по -малка от 50% от цялата площ на помещението. Удобната височина ще ви позволи рационално да разпределите пространството и да оборудвате правилно помещенията.
Ако оформлението на апартамента предвижда инсталирането на котелно помещение, тогава за него се изчислява и средната норма за височина на тавана, която обикновено е 2,2 m. В нежилищните зони на апартамента трябва да има нормална височина.
В къщи от различен тип
В апартаментите височината на таваните може да бъде различна, тъй като зависи от строителния проект на сградата. Днес на жилищния пазар можете да намерите къщи със старо и ново оформление. Например жилищата в „Сталинка“ се характеризират с голяма площ, стаите често са декорирани с красиви дъски и мазилки, а височината на стените в тях достига от 3,2 до 3,5 м.
Не е лесно да се извърши нова декорация в сталински къщи, тъй като преградите в стаите са изработени от дърво, а електрическото окабеляване е разположено отвън. Но ако мислите добре за дизайна, тогава можете да поставите висящи конструкции в стаите и да скриете всичко..

Не по -малко популярни са и „хрущовките“, които се характеризират с малка жилищна площ, добра звукоизолация и висококачествени тавани с височина от 2,5 до 3,2 м. С промяната на епохата те бяха заменени с апартаменти от нов тип – “Брежневка”, помещенията им станаха по -просторни, а проектът дори включваше добавяне на коридори.
Благодарение на височината на стаите, достигаща 3 м, собствениците на жилища в “Брежневка” имат възможност да вграждат плъзгащи се гардероби, мецанини и други мебели в стените.

По -голямата част от жилищния фонд се състои от панелни къщи. Първите сгради са построени на 5 етажа, височината на тавана в тях не надвишава 2,5 метра.
Днес можете да си купите апартамент не само в панелна пететажна сграда, но и в девет етажна сграда. Трудно е да се ремонтира жилище с такова оформление, тъй като ще трябва не само визуално да повдигнете таваните, но и да демонтирате преградите.
Що се отнася до собствениците на апартаменти в панелни нови сгради, те имаха късмет, тъй като височината на таваните на стаите стана много по -висока – от 2,7 метра.

Къщите от нов тип заслужават специално внимание; в своите монолитни апартаменти дизайнерите създават различни видове оформления, благодарение на които жилищата стават елитни и отговарят на всички нива на комфортен живот.
В нови сгради има и апартаменти от икономична класа, за разлика от бизнес-класа, за който височината на помещенията е 3 m, в тях този показател е равен на 2,7 m.

В жилищна сграда някои от стаите могат да бъдат разположени на таванския етаж, като правило има място за спални или кухни. За да се организира максимално горния етаж и да се направи жилищен, височината на тавана не може да бъде по -малка от 2,1 m.
Разбира се, този индикатор няма да позволи инсталирането на окачени конструкции, но се счита за достатъчен за довършване на подове с дъски или декоративни панели..
Как се измерва?
Преди да извършите ремонт в апартамент и да закупите мебели, трябва да знаете височината на стаите, тъй като изборът на довършителни материали и конструкции на корпуса ще зависи от неговите показатели.
За да направите правилно измервания, трябва да подготвите триметрова лента и да изпълните следните стъпки:
- Фиксирайте рулетката на пода. В този случай най -добре е да измерите височината заедно, един човек ще дърпа рулетката, а другият ще я задържи. Другият край на инструмента трябва да бъде прикрепен към тавана по такъв начин, че да е опънат и да не виси надолу. Номерът, посочен на знака, ще бъде размерът на височината.
- Ако не можете да намерите помощници, можете сами да измерите всичко. В този случай вместо рулетка се взема дълга нишка, към нейния край се прикрепя тежест и се правят измервания. Трябва да застанете на стълба или табуретка, да развиете конеца и веднага щом товарът докосне подовата настилка, той трябва да бъде отрязан. След това нишката се сгъва на няколко равни части и се измерва с обикновен метър или линийка..
Как визуално да направите горното?
Много хора смятат, че притежаването на апартамент с висок таван е голям успех, тъй като можете да превърнете всякакви дизайнерски идеи в реалност и е удобно да извършите модерно оформление на пространството. Всъщност не е така, твърде високите помещения се затоплят трудно, изискват голяма консумация на довършителни и декоративни материали. Ниските стаи са ергономични и удобни, но ако тяхната площ е твърде малка, тогава е необходима настройка, поради което липсата на височина се компенсира и стаята ще стане по -просторна и по -лека.
Можете визуално да увеличите тавана в една стая, като използвате прости дизайнерски трикове:
- Използвайте ниски мебели за интериора. Модулните структури, “притиснати” към пода, визуално ще повдигнат тавана.
- Премахнете ненужните елементи от прозорците и закачете завеси в неутрален цвят. В частна къща е най -добре да използвате прозрачни завеси, през които можете да се насладите на природата.
- Инсталирайте вградени лампи. За ниски тавани прожекторите се считат за идеални, тъй като не претоварват горното пространство с ненужни детайли..
- Напълнете интериора си с декор, състоящ се от вертикални ивици. Стените ще изглеждат по -високи и стаята ще се трансформира. Като цяло тази опция е подходяща за бани и тесни пространства..
- Завесите са най -добре избрани с шарки. и модел. Оригиналният орнамент върху текстил ще привлече вниманието и ще ви накара бавно да погледнете нагоре, благодарение на този трик височината на тавана ще стане невидима. В същото време не се препоръчва да се правят твърде широки первази върху конструкции..
- Подредете вертикално всички елементи в стаята. Илюзията за височина ще помогне за създаването на колекции от снимки и чинии, поставени на рафтовете до самия връх. Такава декоративна “писта” ще изглежда стилно и перфектно ще се впише във всеки стил..
- Допълнете интериора с осветление. LED лентите по периметъра на тавана, стенните лампи и подовите лампи равномерно разпределят осветлението в стаята и визуално затягат тавана.
- Изберете многостепенен дизайн с лъскава повърхност. В същото време оригинални ще изглеждат и текстурни композиции с ефект на полу-гланц, които могат да бъдат украсени с вложки под формата на диагонални линии..
- Довършване на покритието с декоративен материал, препоръчително е да използвате панели с вертикални ивици.
Полезни съвети за дизайн
Ако височината на таваните в апартамента надвишава нормата и е повече от 3 м, тогава всяка дизайнерска идея може да бъде реализирана в дизайна на стаите. Такива помещения се характеризират с липсата на затворено пространство, изобилие от въздух и светлина.. Днес проектите на апартаменти с високи тавани от 3,2 до 3,7 м са много популярни., те ви позволяват да създадете различен интериор в стаята с ярки декоративни елементи.
Най -често в такива помещения се прави допълнителен етаж, който служи като отлично място за почивка; библиотека и спалня също са поставени на таванските помещения..

Оформлението на стаи с високи тавани има свои собствени характеристики, а именно:
- Дизайнът трябва да съдържа масивни мебели, те хармонично ще запълнят пространството. В този случай е препоръчително да не прекалявате и визуално да не претоварвате стаята с ненужни детайли, в противен случай ще се получи обратният ефект.
- Стилът на таванското помещение е подходящ за просторни стаи. Тази посока се характеризира с липсата на пространствени граници и рационалното използване на пространството. Следователно завършването може да бъде направено от различни материали. Жилищните помещения с високи тавани, декорирани в стил Арт Нуво, изглеждат оригинални.
За да се подчертае височината на помещението, преградите се премахват в стаите и местата за съхранение се скриват..
- Интериорът трябва да бъде допълнен с елементи със сложни форми; вместо вътрешни прегради, инсталирайте сводести конструкции. Многостепенните системи за окачване се превръщат в истинска декорация на такива помещения, тяхното инсталиране няма да повлияе по никакъв начин на размера на стаята, а дизайнът ще придобие специални нотки на шик.

Що се отнася до ниските стаи, те изискват визуално разширяване на пространството.. Ето защо в дизайна е необходимо да се обърне внимание на подреждането на пространството и да се освободи колкото е възможно повече. Препоръчително е да завършите в светли нюанси, като предпочитате бежови и пастелни нюанси..
В този случай таванните конструкции не се препоръчват да се правят големи и да се състоят от много нива., най -добре е да инсталирате опънати тъкани с лъскава повърхност или изберете висящи композиции с прости форми.
Примери за обзавеждане за всяко оформление
Просторен апартамент с високи тавани отваря големи възможности за дизайнерско творчество, но за съжаление не всеки има такова жилище. Собствениците на малки жилища не трябва да се разстройват, тъй като можете също да направите стилни и красиви стаи от малки стаи. Ако таваните в апартамента са ниски, тогава зонирането на стаята ще бъде правилното решение..
Можете визуално да разделите пространството по различни начини: да окачите стелажи, да направите декоративни прегради или да използвате декоративни материали в декорацията, които се различават по цвят и текстура. В допълнение, в такъв интериор е необходимо да се използва максимално осветление, като се дава предпочитание не само на обикновените полилеи, но и на лампи, подови лампи, вградени лампи..
В същото време не можете да избирате полилеи с висулки и големи абажури, тъй като те ще намалят тавана.

За дневни, които съчетават място за почивка и кабинет, Препоръчително е да изберете насочени осветителни тела, те ще направят добро осветление, ще подчертаят красотата на мебелите и ще направят удобно да работят на масата или да четат книги.
В такива дневни се препоръчва да се поставят само най -необходимите мебели и да се украсяват, като се избягват ярки цветове..
Дрехите и нещата трябва да се поставят във вградени гардероби, те заемат минимално пространство и хармонично се вписват във всеки дизайн.

В допълнение, в декора трябва да осигурите всички малки неща и да придадете на интериора индивидуално докосване. Картини и семейни снимки са добър вариант..
Ако собствениците на къщата много обичат музиката, тогава можете да окачите и музикални инструменти по стените. Не трябва да забравяме за цветята, вазите с тях изглеждат добре както на рафтове, така и на маси, первази на прозорците..

Особено внимание трябва да се обърне на дизайна на банята. Въпреки че тази стая е с малка площ, тя трябва да бъде не само многофункционална и удобна за провеждане на водни процедури, но и оборудвана с необходимите мебели за съхранение на продукти за лична хигиена..
Завършването на банята трябва да бъде направено в светли нюанси., това ще се комбинира с шкафове и рафтове.

За мнозина кухнята се свързва само с готвене и хранене, но ако е правилно декорирана, тя ще служи и като отлично място за семейно пиене на чай и релакс, следователно в допълнение към стандартния комплект кухненски мебели, в стаята трябва да се инсталира малък диван. Така кухнята ще има две зони, където можете да готвите храна и да говорите с любимите си хора..

За да запълните кухнята със светлина, е необходимо да изберете светли нюанси за декориране на стените, тавана и подовите настилки. Кухненският комплект е най -добре поставен по периметъра на стаята, скривайки ъглите.
За малки кухни трансформиращите се маси са много подходящи. Те заемат минимум място и са удобни за използване, така че когато гостите пристигнат, те лесно се превръщат в маса за хранене..

Апартаментите с различни размери имат лоджия или балкон. Повечето собственици не обръщат внимание на дизайна си, в резултат на което малките пространства се превръщат в „складове за боклуци“. За да се избегне това, на балкона може да се монтира малка маса със столове. Ще се окаже мини-ресторант, където ще бъде приятно да закусваме или вечеряме, наслаждавайки се на гледката към града.
Добра идея е да засадите ракитни растения под балкона – грозде или бръшлян. Можете също така да комбинирате балкона с хола и това ще бъде чудесно продължение на стаята. В този случай можете да оборудвате зона за отдих върху нея, като поставите диван и масичка за кафе..

Спалнята се счита за специална стая в апартамента, която ви позволява не само да се пенсионирате, но и да се отпуснете напълно. Оформлението му трябва да бъде удобно и удобно. За малки спални са подходящи тавани с огледална повърхност; те визуално разширяват границите на стаята и придават на пространството атмосфера на романтика. Огледалата до леглото също изглеждат добре.
Не се препоръчва насилването на спалнята с масивни мебели., за обзавеждането му е достатъчно да изберете красиво легло, да подредите килери до него и да окачите няколко рафта за книги или предмети за декор. За декорация можете да използвате различни материали, но вложките от естествен камък и дърво изглеждат специално в стаята.

За това как визуално да повдигнете тавана, вижте следващия видеоклип.
Каква трябва да бъде стандартната височина на тавана в апартамент?
Таванът се счита за един от основните декоративни елементи, поради което дизайнът и оформлението на помещението зависи от височината му. Високите стени изпълват пространството с усещане за комфорт и простор, докато ниските стени, напротив, го правят ограничено и претеглено..
Когато е необходимо да се създаде нов интериор в една стая, важно е да се обърне внимание на размерите на тавана и вече като се започне от неговите параметри, изберете подходящото покритие, осветителна система и декор. Освен това днес има много начини, чрез които можете визуално да повдигнете структурата и да направите стаята просторна и удобна..
Особености
Основният индикатор при закупуване на апартамент е височината на таваните му, тъй като именно това отваря големи възможности за декориране на стаи и влияе върху възприемането на пространството. Ето защо, когато избирате нов дом, трябва да вземете предвид оптималния размер на този показател. Те трябва да съответстват не само на ръста на хората, живеещи в апартамента, но и на площта на стаята..
Височината се счита за нормална, ако от протегнатата ръка на човек до припокриването остане най -малко 30 см. За големи помещения, които съчетават няколко функционални зони, височина най -малко 3,5 м ще бъде удобна, а 2,8 м са достатъчни за трапезарии и кухни.
Напоследък много апартаменти инсталират многостепенни окачени тавани и системи за подово отопление. Този тип монтажни работи правят помещенията топли и красиви, но височината на стаята в този случай се намалява с 20 см. Следователно тази опция за довършителни работи не е подходяща за ниски помещения., за тях трябва да създадете индивидуални проекти и да изберете интериор, който няма да зависи от височината на таваните.
Заслужава да се отбележи, че този показател се определя от собствените предпочитания на собствениците, тъй като някои от тях се чувстват комфортно в стая с височина 3 м, докато други, напротив, са доволни от минималния размер от 2,5 м..
Стандарти в съответствие с ГОСТ
Стандартната височина на тавана в апартамент се счита за относителен параметър, тъй като на практика най -често се използва такава концепция като оптимална височина. Показателите му са установени в съответствие с изискванията на SNIP, в съответствие с климатичните условия, стандартите за безопасност и ергономичността на жилищното пространство.
Според правилата минималната височина трябва да бъде:
Освен това стандартът се определя отделно за горните и таванските етажи, които имат ограждащи и наклонени конструкции в дизайна си. В този случай площта на таваните не може да бъде по -малка от 50% от цялата площ на помещението. Удобната височина ще ви позволи рационално да разпределите пространството и да оборудвате правилно помещенията.
Ако оформлението на апартамента предвижда инсталирането на котелно помещение, тогава за него се изчислява и средната норма за височина на тавана, която обикновено е 2,2 m. В нежилищните зони на апартамента трябва да има нормална височина.
В къщи от различен тип
В апартаментите височината на таваните може да бъде различна, тъй като зависи от строителния проект на сградата. Днес на жилищния пазар можете да намерите къщи със старо и ново оформление. Например жилищата в „Сталинка“ се характеризират с голяма площ, стаите често са декорирани с красиви дъски и мазилки, а височината на стените в тях достига от 3,2 до 3,5 м.
Не е лесно да се извърши нова декорация в сталински къщи, тъй като преградите в стаите са изработени от дърво, а електрическото окабеляване е разположено отвън. Но ако мислите добре за дизайна, тогава можете да поставите висящи конструкции в стаите и да скриете всичко..
Не по -малко популярни са и „хрущовките“, които се характеризират с малка жилищна площ, добра звукоизолация и висококачествени тавани с височина от 2,5 до 3,2 м. С промяната на епохата те бяха заменени с апартаменти от нов тип – “Брежневка”, помещенията им станаха по -просторни, а проектът дори включваше добавяне на коридори.
Благодарение на височината на стаите, достигаща 3 м, собствениците на жилища в “Брежневка” имат възможност да вграждат плъзгащи се гардероби, мецанини и други мебели в стените.
По -голямата част от жилищния фонд се състои от панелни къщи. Първите сгради са построени на 5 етажа, височината на тавана в тях не надвишава 2,5 метра.
Днес можете да си купите апартамент не само в панелна пететажна сграда, но и в девет етажна сграда. Трудно е да се ремонтира жилище с такова оформление, тъй като ще трябва не само визуално да повдигнете таваните, но и да демонтирате преградите.
Що се отнася до собствениците на апартаменти в панелни нови сгради, те имаха късмет, тъй като височината на таваните на стаите стана много по -висока – от 2,7 метра.
Къщите от нов тип заслужават специално внимание; в своите монолитни апартаменти дизайнерите създават различни видове оформления, благодарение на които жилищата стават елитни и отговарят на всички нива на комфортен живот.
В нови сгради има и апартаменти от икономична класа, за разлика от бизнес-класа, за който височината на помещенията е 3 m, в тях този показател е равен на 2,7 m.
В жилищна сграда някои от стаите могат да бъдат разположени на таванския етаж, като правило има място за спални или кухни. За да се организира максимално горния етаж и да се направи жилищен, височината на тавана не може да бъде по -малка от 2,1 m.
Разбира се, този индикатор няма да позволи инсталирането на окачени конструкции, но се счита за достатъчен за довършване на подове с дъски или декоративни панели..
Как се измерва?
Преди да извършите ремонт в апартамент и да закупите мебели, трябва да знаете височината на стаите, тъй като изборът на довършителни материали и конструкции на корпуса ще зависи от неговите показатели.
За да направите правилно измервания, трябва да подготвите триметрова лента и да изпълните следните стъпки:
Как визуално да направите горното?
Много хора смятат, че притежаването на апартамент с висок таван е голям успех, тъй като можете да превърнете всякакви дизайнерски идеи в реалност и е удобно да извършите модерно оформление на пространството. Всъщност не е така, твърде високите помещения се затоплят трудно, изискват голяма консумация на довършителни и декоративни материали. Ниските стаи са ергономични и удобни, но ако тяхната площ е твърде малка, тогава е необходима настройка, поради което липсата на височина се компенсира и стаята ще стане по -просторна и по -лека.
Можете визуално да увеличите тавана в една стая, като използвате прости дизайнерски трикове:
Полезни съвети за дизайн
Ако височината на таваните в апартамента надвишава нормата и е повече от 3 м, тогава всяка дизайнерска идея може да бъде реализирана в дизайна на стаите. Такива помещения се характеризират с липсата на затворено пространство, изобилие от въздух и светлина.. Днес проектите на апартаменти с високи тавани от 3,2 до 3,7 м са много популярни., те ви позволяват да създадете различен интериор в стаята с ярки декоративни елементи.
Най -често в такива помещения се прави допълнителен етаж, който служи като отлично място за почивка; библиотека и спалня също са поставени на таванските помещения..
Оформлението на стаи с високи тавани има свои собствени характеристики, а именно:
За да се подчертае височината на помещението, преградите се премахват в стаите и местата за съхранение се скриват..
Що се отнася до ниските стаи, те изискват визуално разширяване на пространството.. Ето защо в дизайна е необходимо да се обърне внимание на подреждането на пространството и да се освободи колкото е възможно повече. Препоръчително е да завършите в светли нюанси, като предпочитате бежови и пастелни нюанси..
В този случай таванните конструкции не се препоръчват да се правят големи и да се състоят от много нива., най -добре е да инсталирате опънати тъкани с лъскава повърхност или изберете висящи композиции с прости форми.
Примери за обзавеждане за всяко оформление
Просторен апартамент с високи тавани отваря големи възможности за дизайнерско творчество, но за съжаление не всеки има такова жилище. Собствениците на малки жилища не трябва да се разстройват, тъй като можете също да направите стилни и красиви стаи от малки стаи. Ако таваните в апартамента са ниски, тогава зонирането на стаята ще бъде правилното решение..
Можете визуално да разделите пространството по различни начини: да окачите стелажи, да направите декоративни прегради или да използвате декоративни материали в декорацията, които се различават по цвят и текстура. В допълнение, в такъв интериор е необходимо да се използва максимално осветление, като се дава предпочитание не само на обикновените полилеи, но и на лампи, подови лампи, вградени лампи..
В същото време не можете да избирате полилеи с висулки и големи абажури, тъй като те ще намалят тавана.
За дневни, които съчетават място за почивка и кабинет, Препоръчително е да изберете насочени осветителни тела, те ще направят добро осветление, ще подчертаят красотата на мебелите и ще направят удобно да работят на масата или да четат книги.
В такива дневни се препоръчва да се поставят само най -необходимите мебели и да се украсяват, като се избягват ярки цветове..
Дрехите и нещата трябва да се поставят във вградени гардероби, те заемат минимално пространство и хармонично се вписват във всеки дизайн.
В допълнение, в декора трябва да осигурите всички малки неща и да придадете на интериора индивидуално докосване. Картини и семейни снимки са добър вариант..
Ако собствениците на къщата много обичат музиката, тогава можете да окачите и музикални инструменти по стените. Не трябва да забравяме за цветята, вазите с тях изглеждат добре както на рафтове, така и на маси, первази на прозорците..
Особено внимание трябва да се обърне на дизайна на банята. Въпреки че тази стая е с малка площ, тя трябва да бъде не само многофункционална и удобна за провеждане на водни процедури, но и оборудвана с необходимите мебели за съхранение на продукти за лична хигиена..
Завършването на банята трябва да бъде направено в светли нюанси., това ще се комбинира с шкафове и рафтове.
За мнозина кухнята се свързва само с готвене и хранене, но ако е правилно декорирана, тя ще служи и като отлично място за семейно пиене на чай и релакс, следователно в допълнение към стандартния комплект кухненски мебели, в стаята трябва да се инсталира малък диван. Така кухнята ще има две зони, където можете да готвите храна и да говорите с любимите си хора..
За да запълните кухнята със светлина, е необходимо да изберете светли нюанси за декориране на стените, тавана и подовите настилки. Кухненският комплект е най -добре поставен по периметъра на стаята, скривайки ъглите.
За малки кухни трансформиращите се маси са много подходящи. Те заемат минимум място и са удобни за използване, така че когато гостите пристигнат, те лесно се превръщат в маса за хранене..
Апартаментите с различни размери имат лоджия или балкон. Повечето собственици не обръщат внимание на дизайна си, в резултат на което малките пространства се превръщат в „складове за боклуци“. За да се избегне това, на балкона може да се монтира малка маса със столове. Ще се окаже мини-ресторант, където ще бъде приятно да закусваме или вечеряме, наслаждавайки се на гледката към града.
Добра идея е да засадите ракитни растения под балкона – грозде или бръшлян. Можете също така да комбинирате балкона с хола и това ще бъде чудесно продължение на стаята. В този случай можете да оборудвате зона за отдих върху нея, като поставите диван и масичка за кафе..
Спалнята се счита за специална стая в апартамента, която ви позволява не само да се пенсионирате, но и да се отпуснете напълно. Оформлението му трябва да бъде удобно и удобно. За малки спални са подходящи тавани с огледална повърхност; те визуално разширяват границите на стаята и придават на пространството атмосфера на романтика. Огледалата до леглото също изглеждат добре.
Не се препоръчва насилването на спалнята с масивни мебели., за обзавеждането му е достатъчно да изберете красиво легло, да подредите килери до него и да окачите няколко рафта за книги или предмети за декор. За декорация можете да използвате различни материали, но вложките от естествен камък и дърво изглеждат специално в стаята.
За това как визуално да повдигнете тавана, вижте следващия видеоклип.