
Собственикът на крайградска зона трябва сам да реши как иска да види къщата си. Преди започване на строителството е важно да се свържете с компетентни специалисти, така че те да завършат оформлението на едноетажна или двуетажна сграда.. Това значително ще спести време и пари при извършване на строителни работи..
Разположение на едноетажни къщи
Едноетажните къщи са популярни сред собствениците на земя. Те са икономични и функционални, тяхното изграждане не изисква огромни суми пари.. Необходимо е обаче да се обмисли оформлението на едноетажни къщи от 90 кв. м. до най -малкия детайл.
Проектирането на къщи с един етаж, въпреки ограниченото пространство, може да въплъти много дизайнерски идеи. С правилното оформление можете да получите безопасна и издръжлива сграда, която да побере малко семейство. Всеки проект, предназначен за създаване на едноетажни вили, има свои собствени характеристики. Обединява ги обаче основната цел – рационалното използване на пространството..

При планиране на 1-етажна сграда е необходимо правилно да се позиционира всяка стая, както и да се сведе до минимум броят на проходимите стаи. Можете да комбинирате баня в такива къщи, което значително ще увеличи площта на свободното пространство.
Трябва да се има предвид, че оформлението на къщи с големи размери и дизайнът на малки сгради са много различни, тъй като първият ви позволява да изберете съблекалня или други функционални помещения в отделни стаи.

Малките сгради не могат да си позволят такова оформление. Следователно е необходимо компетентно да използвате цялата площ на къщата, така че всяка стая да има своя собствена функционалност.
Едноетажна къща може да бъде направена от дървен материал или газобетон. Материалите са доста лесни за работа, което прави възможно издигането на сгради от тях в най -кратки срокове. Рамковите къщи са много популярни във всеки регион на Русия поради тяхната достъпна цена и отлични показатели..

Оформлението на къщата трябва да се обмисли внимателно и да се вземат предвид нейните основни принципи..
- На първо място се определя място за изграждане, което ще заема определено място на сайта.. Този показател най -често не надвишава 30%. Трябва също да вземете предвид одобрените стандарти, предлагащи оптималното разстояние на отстъпите от границите на сайта. След това те планират разполагането на функционални зони: входна група, зона за отдих и икономически блок.
- Във входната зона те планират коридор с гардероб, където ще бъдат разположени връхни дрехи. Баня и малко котелно помещение също са поставени в тази зона..
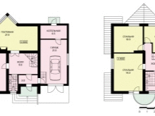
- Дневната зона в едноетажна къща най-често включва кухня, трапезария и хол.. По правило 8 кв. м., а площта на обща стая или хол е най -малко 16 квадратни метра. Спалните и шезлонгите са разположени от слънчевата страна на сградата.
- При подреждане на къща с един етаж от блокове от пяна, оборудването на стените в помещения, където се извършват мокри процеси, се извършва с тухли и с подреждането на вентилационни канали. За да се спести място, помощният блок, който включва помощни помещения, често е свързан с кухня или гараж. Наложително е да завършите оформлението на отоплението, така че всяка стая да е удобна..
Планове за двуетажни къщи
Къщите с площ от 90 м2 са отличен вариант, който може да се впише в гъста градска застройка или малък парцел извън града.. Такива конструкции са компактни и популярни поради малкия им отпечатък и ниските разходи за строителство. Различните планове на жилищни сгради имат индивидуални оформления, което ви позволява да поставите всички необходими помещения. В зависимост от желания от клиента брой етажи, квалифицирани специалисти могат да изберат необходимия план за двуетажна конструкция с тавански етаж или гараж..
С тераса
Двуетажна къща с тераса може да се превърне в голяма функционална вила, ако пространството е ограничено. Особеността на тези къщи е наличието на тераса, която през лятото може да играе ролята на допълнително пространство за отдих с голяма компания приятели, а през зимата – място, където можете да съхранявате градински инструменти..
С гараж
Ако желанията на собственика на сайта включват наличието на гараж в сградата, струва си да се разгледат някои от характеристиките на тази стая. За гараж за една кола се считат за оптимални размери 3х6 м. Освен това е необходимо да се осигури буферно пространство под жилището, за да се изключи проникването на отработени газове в помещението.

Можете да се справите с това, като използвате оформлението на студен вестибюл, затворена веранда или работилница..
Опции за дизайн
Къщи, чиято площ не надвишава 90 квадратни метра, могат да бъдат направени в различни стилове. Всеки собственик може да избере интериор според своите нужди и възможности.. Най -популярните опции за проектиране на крайградски сгради са следните.
- Модерни. Най -практичното и рационално решение, при което дървена къща може да бъде декорирана. Модерното съдържа естествени цветове и нюанси, както и материали с естествен произход. Всички детайли и дизайн имат гладки и спретнати линии.Този стил не се характеризира с наличието на агресивни комбинации от нюанси. Отличителна черта на този стил е, че елементи от миналия век са смесени с модерни облицовки..
- Класически. Класическият стил върви добре с финландски и подобни сгради. Този интериор се характеризира с наличието на мазилки, копринени тапети, красиви лампи и антични декоративни елементи. Този стил има меки нюанси, които създават уютна атмосфера..
- Таванско помещение. Този стил е доста популярен сред съвременните дизайнери. С негова помощ можете да украсите сграда от дървен материал или други материали. Таванското помещение е подходящо за хора, които предпочитат да използват нестандартни решения.
- Минимализъм. С помощта на тази посока можете да въплътите оригинални интериорни идеи, които могат да се наблюдават в къщи в американски или английски стил. Тук има функционалност и практичност на мебелите, ясна и равномерна форма на предметите, както и рационално използване на пространството. Интериорът в този стил се основава на тези принципи..
Съвети за избор на проект
Избор на проект на едно- или двуетажна къща с площ до 90 кв. м., трябва да обърнете внимание на основните критерии, благодарение на които ще бъде съставен оптималният план за бъдещо строителство.
Опитните майстори препоръчват да се вземат предвид следните фактори, преди да се изготви проект:
- вземат предвид географските характеристики на земята;
- взема решение за бюджета, отпуснат за строителство на къща;
- изберете броя на етажите, наличието на гараж, таван или тераса;
- помислете за оформлението, като вземете предвид прогнозата за развитието на семейството.

След това трябва внимателно да проучите проекта, предложен от специалисти, да изразите желаните промени и да го одобрите.
Красиви примери
Всеки собственик на вила избира дизайн въз основа на собствените си предпочитания. Струва си обаче да се обмислят красиви примери, които вече са станали уникални и оригинални къщи..
- Едноетажна къща с наклонен покрив изглежда оригинална. Дизайнът има солиден вид и хармонично съчетава различни материали. Този екстериор може да бъде допълнен с панорамни прозорци, които ви позволяват да запълните стаята с много естествена светлина..
- Също така отличен вариант би била къща, за създаването на която е използвано естествено дърво.. Фасадата на такава структура е направена от сайдинг в пастелни цветове. Дървената ограда, използвана за ограда на терасата, изглежда органична.
- Първоначалното решение би било използване на сутеренния етаж за подреждане на фитнес зала или като складово помещение.
- Плосък покрив също така ви позволява да създадете уникален дизайн и да поставите върху него пространство за отдих с дивани и други елементи.

Избираме проект на къщи с площ от 90 кв. м
Собственикът на крайградска зона трябва сам да реши как иска да види къщата си. Преди започване на строителството е важно да се свържете с компетентни специалисти, така че те да завършат оформлението на едноетажна или двуетажна сграда.. Това значително ще спести време и пари при извършване на строителни работи..
Разположение на едноетажни къщи
Едноетажните къщи са популярни сред собствениците на земя. Те са икономични и функционални, тяхното изграждане не изисква огромни суми пари.. Необходимо е обаче да се обмисли оформлението на едноетажни къщи от 90 кв. м. до най -малкия детайл.
Проектирането на къщи с един етаж, въпреки ограниченото пространство, може да въплъти много дизайнерски идеи. С правилното оформление можете да получите безопасна и издръжлива сграда, която да побере малко семейство. Всеки проект, предназначен за създаване на едноетажни вили, има свои собствени характеристики. Обединява ги обаче основната цел – рационалното използване на пространството..
При планиране на 1-етажна сграда е необходимо правилно да се позиционира всяка стая, както и да се сведе до минимум броят на проходимите стаи. Можете да комбинирате баня в такива къщи, което значително ще увеличи площта на свободното пространство.
Трябва да се има предвид, че оформлението на къщи с големи размери и дизайнът на малки сгради са много различни, тъй като първият ви позволява да изберете съблекалня или други функционални помещения в отделни стаи.
Малките сгради не могат да си позволят такова оформление. Следователно е необходимо компетентно да използвате цялата площ на къщата, така че всяка стая да има своя собствена функционалност.
Едноетажна къща може да бъде направена от дървен материал или газобетон. Материалите са доста лесни за работа, което прави възможно издигането на сгради от тях в най -кратки срокове. Рамковите къщи са много популярни във всеки регион на Русия поради тяхната достъпна цена и отлични показатели..
Оформлението на къщата трябва да се обмисли внимателно и да се вземат предвид нейните основни принципи..
Планове за двуетажни къщи
Къщите с площ от 90 м2 са отличен вариант, който може да се впише в гъста градска застройка или малък парцел извън града.. Такива конструкции са компактни и популярни поради малкия им отпечатък и ниските разходи за строителство. Различните планове на жилищни сгради имат индивидуални оформления, което ви позволява да поставите всички необходими помещения. В зависимост от желания от клиента брой етажи, квалифицирани специалисти могат да изберат необходимия план за двуетажна конструкция с тавански етаж или гараж..
С тераса
Двуетажна къща с тераса може да се превърне в голяма функционална вила, ако пространството е ограничено. Особеността на тези къщи е наличието на тераса, която през лятото може да играе ролята на допълнително пространство за отдих с голяма компания приятели, а през зимата – място, където можете да съхранявате градински инструменти..
С гараж
Ако желанията на собственика на сайта включват наличието на гараж в сградата, струва си да се разгледат някои от характеристиките на тази стая. За гараж за една кола се считат за оптимални размери 3х6 м. Освен това е необходимо да се осигури буферно пространство под жилището, за да се изключи проникването на отработени газове в помещението.
Можете да се справите с това, като използвате оформлението на студен вестибюл, затворена веранда или работилница..
Опции за дизайн
Къщи, чиято площ не надвишава 90 квадратни метра, могат да бъдат направени в различни стилове. Всеки собственик може да избере интериор според своите нужди и възможности.. Най -популярните опции за проектиране на крайградски сгради са следните.
Съвети за избор на проект
Избор на проект на едно- или двуетажна къща с площ до 90 кв. м., трябва да обърнете внимание на основните критерии, благодарение на които ще бъде съставен оптималният план за бъдещо строителство.
Опитните майстори препоръчват да се вземат предвид следните фактори, преди да се изготви проект:
След това трябва внимателно да проучите проекта, предложен от специалисти, да изразите желаните промени и да го одобрите.
Красиви примери
Всеки собственик на вила избира дизайн въз основа на собствените си предпочитания. Струва си обаче да се обмислят красиви примери, които вече са станали уникални и оригинални къщи..