
Penkit laudoilta antamiseen
Yksi maan tärkeimmistä esineistä on tavallinen penkki. On miellyttävää istua penkillä varjossa kuumana kesäpäivänä tai illalla työpäivän päätteeksi. Kaupat tarjoavat laajan valikoiman puisto-, maa- ja penkkejä, mutta täällä ilmenee useita vaikeuksia. Ensinnäkin tällaisen tuotteen hinta on melko korkea ja laatu ei välttämättä sovi sinulle. Toiseksi on ongelma tuotteen toimittamisessa esikaupunkialueelle.
Kaikki nämä ongelmat poistetaan, jos teet penkin kesäasunnolle omin käsin. Suurimmat edut tässä tapauksessa ovat materiaalien saatavuus valmistukseen sekä kyky suunnitella penkki kätevällä kokoonpanolla. Näiden tehtävien perusteella ehdotetaan projektia kesämökin penkille, jonka voit tehdä itse. Tätä varten 2 x kuusi metriä riittää. Kun ne on leikattu 1,5 metrin pituisiksi, niiden kuljettaminen määränpäähän on melko helppoa..
Hanki 40 mm lankkuja varmistaaksesi penkin riittävän luotettavuuden ja lujuuden. Kun otetaan huomioon penkkien sijainti kadulla, selkään ja istuimeen tehdään aukkoja sadeveden poistamiseksi. Siksi penkkien istuimen kokonaisleveys on neljäkymmentä senttimetriä, mikä takaa mukavan istumisen. Selkänojan kaltevuus 18 ° on valittu parhaan ergonomian takaamiseksi. Työkaluista tarvitset rautasahan, poran puuporakoneilla, sähköisen palapelin, ruuvimeisselin (ruuvimeisselin) ja improvisoituja materiaaleja (neliö, lyijykynä, mittanauha).
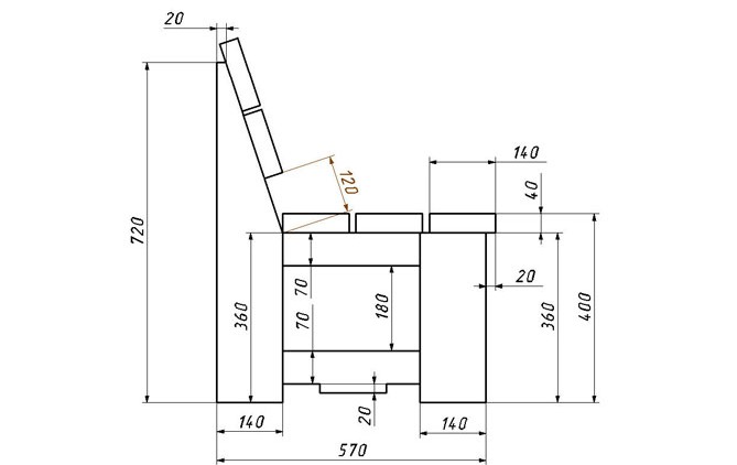
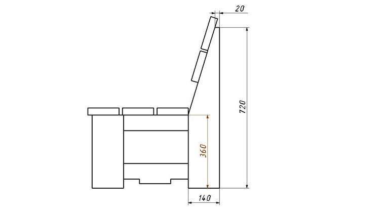
Puupenkin mitat

Teemme penkkiä kesäasuntoon
Ensin valmistamme halutun kokoiset levyt ja palkit. Sinulla on oltava viisi puolitoista metriä levyä, kaksi 360 mm levyä. ja kaksi – 52 cm, jotka sahataan 4 palkkiin, joita käytämme jalkojen ja istuimen kiinnittämiseen. Jalat ja selkänojan pidike ovat kaksi 720 mm: n levyä, joihin leikkaukset tehdään. Leikatut levyt ajellaan porausten poistamiseksi. Kun kitkat on poistettu, sinun on tehtävä levyjen ja palkkien reunat sileiksi. Ennen kuin aloitat maaseutupöydän asennuksen, sen käyttöiän pidentämiseksi puu käsitellään antiseptisellä aineella. Halutun sävyn saamiseksi voit käyttää värillistä antiseptistä ainetta.
Kaavio – piirustus: Penkki selkänojalla

Aloitamme penkin asennuksen laudoista jaloilla, jotka liitämme toisiinsa poikkitankojen ja itsekelausruuvien avulla. Kun käytät lautaa ja palkkia penkkiin mökille, sinun on oltava erittäin varovainen jalkojen oikean muodon suhteen. Itse rakenteen vakaus riippuu niistä. Syventämällä jalat maahan, penkin vakautta voidaan parantaa merkittävästi. Jalkoina voit käyttää hamppua tai tukkien kantoja. On suositeltavaa liittää penkin liitokset puisilla tappeilla (kuten video näyttää).
Kuva: PENKKIEN KÄDET
Itsekierteittäviä ruuveja käytetään istuimen ja selkänojan kiinnittämiseen penkkiin. Jos ne eivät ole tarpeeksi pitkiä, sinun on tehtävä reikä etukäteen, joka ylittää kierrekorkin halkaisijan. Kiinnikkeet on tehty takaa, jotta kiinnikkeet näkymättömiä. Selvittäen sopivimman selkänojan kaltevuuden kiinnitämme pysäyttimet itsekierteittävillä ruuveilla kulmien ja levyjen avulla.
Penkkien selkänojien asennus
Viimeisessä vaiheessa penkin jalat kiinnitetään toisiinsa asentamalla alempi poikkipalkki. Niiden käsittely mastiksilla auttaa estämään jalkojen imeytymistä sateen kosteuteen. Tätä varten ämpäri, jossa on suojaava yhdiste, kuumennetaan tulen päällä, kunnes mastiksista tulee nestemäinen. Kun puutarhapenkki on käännetty, jalat käsitellään huolellisesti harjalla koko pinnan yli. Täydellistä kuivausta varten on odotettava yksi päivä ja vasta sitten suoritetaan jatkokäsittely..
Kuva: penkki, alhaalta
Koottu tuote on päällystetty jahtilakalla tai erikoiskyllästyksellä suojaamaan sitä kosteudelta. Luonnollisesti lakkapinta näyttää paljon paremmalta, mutta lakkapinta kylmenee. Yhden kerroksen pinnoite puutarhan penkistä tekee siitä karkean. Jotta penkki olisi sileä, kiiltävä, voit ylläpitää erityistä tekniikkaa.
Samaan aikaan, kun ensimmäinen lakkakerros on kuivunut, levy käsitellään hiekkapaperilla ja peitetään lakalla vielä kaksi kertaa, kuivumisen jälkeen voit käyttää penkkiä.
Huomautus! Jos haluat säästää aikaa ja ostaa valmiita tuotteita, suosittelemme ottamaan yhteyttä yritykseen Kupistol. Se on kuuluisa myytyjen huonekalujen laadusta, erinomaisesta palvelusta (nopea toimitus, kokoonpano samana toimituspäivänä, palautusvaihtoehdot) ja alhaisista hinnoista. Koti- ja kesämökkejä varten on valtava valikoima huonekaluja, joten jokainen ostaja voi valita huonekalut eri kriteerien, kuten suunnittelun, materiaalin, hinnan jne., Perusteella..
Katso video penkin valmistamisesta maassa
Suosittelemme myös, että tutustut verkkosivustomme osioon, jossa esitetään kotitekoisia kesämökkituotteita, ja osioon käsitöiden tekemisestä hyödyllisen videon avulla.
Tee-se-itse-penkit kesämökeille
Penkit laudoilta antamiseen
Yksi maan tärkeimmistä esineistä on tavallinen penkki. On miellyttävää istua penkillä varjossa kuumana kesäpäivänä tai illalla työpäivän päätteeksi. Kaupat tarjoavat laajan valikoiman puisto-, maa- ja penkkejä, mutta täällä ilmenee useita vaikeuksia. Ensinnäkin tällaisen tuotteen hinta on melko korkea ja laatu ei välttämättä sovi sinulle. Toiseksi on ongelma tuotteen toimittamisessa esikaupunkialueelle.
Kaikki nämä ongelmat poistetaan, jos teet penkin kesäasunnolle omin käsin. Suurimmat edut tässä tapauksessa ovat materiaalien saatavuus valmistukseen sekä kyky suunnitella penkki kätevällä kokoonpanolla. Näiden tehtävien perusteella ehdotetaan projektia kesämökin penkille, jonka voit tehdä itse. Tätä varten 2 x kuusi metriä riittää. Kun ne on leikattu 1,5 metrin pituisiksi, niiden kuljettaminen määränpäähän on melko helppoa..
Hanki 40 mm lankkuja varmistaaksesi penkin riittävän luotettavuuden ja lujuuden. Kun otetaan huomioon penkkien sijainti kadulla, selkään ja istuimeen tehdään aukkoja sadeveden poistamiseksi. Siksi penkkien istuimen kokonaisleveys on neljäkymmentä senttimetriä, mikä takaa mukavan istumisen. Selkänojan kaltevuus 18 ° on valittu parhaan ergonomian takaamiseksi. Työkaluista tarvitset rautasahan, poran puuporakoneilla, sähköisen palapelin, ruuvimeisselin (ruuvimeisselin) ja improvisoituja materiaaleja (neliö, lyijykynä, mittanauha).
Teemme penkkiä kesäasuntoon
Ensin valmistamme halutun kokoiset levyt ja palkit. Sinulla on oltava viisi puolitoista metriä levyä, kaksi 360 mm levyä. ja kaksi – 52 cm, jotka sahataan 4 palkkiin, joita käytämme jalkojen ja istuimen kiinnittämiseen. Jalat ja selkänojan pidike ovat kaksi 720 mm: n levyä, joihin leikkaukset tehdään. Leikatut levyt ajellaan porausten poistamiseksi. Kun kitkat on poistettu, sinun on tehtävä levyjen ja palkkien reunat sileiksi. Ennen kuin aloitat maaseutupöydän asennuksen, sen käyttöiän pidentämiseksi puu käsitellään antiseptisellä aineella. Halutun sävyn saamiseksi voit käyttää värillistä antiseptistä ainetta.
Aloitamme penkin asennuksen laudoista jaloilla, jotka liitämme toisiinsa poikkitankojen ja itsekelausruuvien avulla. Kun käytät lautaa ja palkkia penkkiin mökille, sinun on oltava erittäin varovainen jalkojen oikean muodon suhteen. Itse rakenteen vakaus riippuu niistä. Syventämällä jalat maahan, penkin vakautta voidaan parantaa merkittävästi. Jalkoina voit käyttää hamppua tai tukkien kantoja. On suositeltavaa liittää penkin liitokset puisilla tappeilla (kuten video näyttää).
Itsekierteittäviä ruuveja käytetään istuimen ja selkänojan kiinnittämiseen penkkiin. Jos ne eivät ole tarpeeksi pitkiä, sinun on tehtävä reikä etukäteen, joka ylittää kierrekorkin halkaisijan. Kiinnikkeet on tehty takaa, jotta kiinnikkeet näkymättömiä. Selvittäen sopivimman selkänojan kaltevuuden kiinnitämme pysäyttimet itsekierteittävillä ruuveilla kulmien ja levyjen avulla.
Viimeisessä vaiheessa penkin jalat kiinnitetään toisiinsa asentamalla alempi poikkipalkki. Niiden käsittely mastiksilla auttaa estämään jalkojen imeytymistä sateen kosteuteen. Tätä varten ämpäri, jossa on suojaava yhdiste, kuumennetaan tulen päällä, kunnes mastiksista tulee nestemäinen. Kun puutarhapenkki on käännetty, jalat käsitellään huolellisesti harjalla koko pinnan yli. Täydellistä kuivausta varten on odotettava yksi päivä ja vasta sitten suoritetaan jatkokäsittely..
Koottu tuote on päällystetty jahtilakalla tai erikoiskyllästyksellä suojaamaan sitä kosteudelta. Luonnollisesti lakkapinta näyttää paljon paremmalta, mutta lakkapinta kylmenee. Yhden kerroksen pinnoite puutarhan penkistä tekee siitä karkean. Jotta penkki olisi sileä, kiiltävä, voit ylläpitää erityistä tekniikkaa.
Samaan aikaan, kun ensimmäinen lakkakerros on kuivunut, levy käsitellään hiekkapaperilla ja peitetään lakalla vielä kaksi kertaa, kuivumisen jälkeen voit käyttää penkkiä.
Huomautus! Jos haluat säästää aikaa ja ostaa valmiita tuotteita, suosittelemme ottamaan yhteyttä yritykseen Kupistol. Se on kuuluisa myytyjen huonekalujen laadusta, erinomaisesta palvelusta (nopea toimitus, kokoonpano samana toimituspäivänä, palautusvaihtoehdot) ja alhaisista hinnoista. Koti- ja kesämökkejä varten on valtava valikoima huonekaluja, joten jokainen ostaja voi valita huonekalut eri kriteerien, kuten suunnittelun, materiaalin, hinnan jne., Perusteella..
Katso video penkin valmistamisesta maassa
Suosittelemme myös, että tutustut verkkosivustomme osioon, jossa esitetään kotitekoisia kesämökkituotteita, ja osioon käsitöiden tekemisestä hyödyllisen videon avulla.