
Talvella lumipuhaltimen aihe muuttuu erittäin ajankohtaiseksi, koska lumi kaataa ja kaataa kaiken, ja sinun ja minun täytyy nousta ja mennä eteenpäin … töihin, taloudenhoitoon, kauppoihin. Edistys ei pysähdy, ja nykyaikaiset käsityöläiset reagoivat luovasti lumipuhaltimien luomiseen omilla käsillään, jotka kykenevät poistamaan lumilaastareita ja puhdistamaan käytävät. Mistä nämä yksiköt eivät keksi: moottorilohkoista, moottorisahoista …
Tämä artikkeli yrittää selittää sinulle prosessin, jolla luodaan pieni, ketterä lumipuhallin tavallisesta moottorisahasta. Tällainen lumipuhallin on kevyt, helppokäyttöinen eikä ole kovin vaikea valmistaa, ja jotta voit nähdä ja esitellä kaiken, esittelemme lumenpuhaltimien piirustukset.
Moottorisaha alkaen 5 hv ja yläpuolella on ihanteellinen tälle lumilingolle.
Tarkastellaan Ural 2T -moottorisahaan perustuvaa lumipuhallinta. Tämän moottorisahan moottorista saatavalla hitauskytkimellä on tärkeä rooli sulakkeena, ja jos vieras esine pääsee roottoriin, se reagoi välittömästi ja estää voimansiirron, mikä suojaa laitetta erittäin ei -toivotuilta rikkoutumiselta. Lisäksi Ural 2T -moottori on varustettu 1: 2 -alennusvaihteella.
Valmistuksen helpottamiseksi emme käytä suurta määrää sorvattuja osia ja kalliita materiaaleja, vaan tehtävämme on tehdä tämän rakenteen kokoaminen mahdollisimman helpoksi kesäasuntoon. Tämän lumipuhaltimen hyvä puoli on, että osat ja materiaalit ovat saatavilla ja helppo valmistaa..
Moottorisahan lumipuhallin, piirustukset:

Joten edessämme ovat piirustukset moottorisahan moottoriin perustuvasta lumipuhaltimesta:

Kuten huomasit, moottorisahan moottori, jotta vältytään vääristymiltä käytön aikana (epätasainen lumen tarttuminen kauhalla tai heiluminen sivulta toiselle) on sijoitettu pitkittäisakselille..
Jotta voimme käyttää Ural 2T -moottorisahan osia täysimääräisesti, kiinnitämme Ural -kaasusäiliön yksikköön ja kiinnitämme sen kahdella pultilla ohjaustukeen. Moottoripyörän tavanomainen kaasukahva auttaa meitä hallitsemaan kaasua..
Lumipuhaltimen runko on hitsattu metalliputkista, joiden neliöleikkaus on 20x20x1,7 mm, ja se on kauha, kaksi vipua ja ohjauspalkki. Muuten kauhan yläosa on valmistettu neliömäisestä putkesta, jossa on pienempi osa, nimittäin 10x10x1,7 mm. Kauhan asentamiseen käytetään sinkittyä levyä, jonka paksuus on vähintään 0,5 mm. Tavalliset alumiinista valmistetut niitit, joiden halkaisija on 5 mm, auttavat kiinnittämään tinalevyt runkoon..
Ja jotta laitteen kauha liukuu helposti lumen pinnan yli, kauhan alaosaan on hitsattava metallilevy, jonka mitat ovat 600x40x4 mm, ja samankokoinen polyeteeniliuska tähän levyyn.
Nyt kiinnitetään huomiomme moottorisahan lumipuhaltimen päätyökappaleeseen.

Se on akseli, johon on hitsattu ruuveja:

Niinpä ruuvin roottori koostuu:
- Akseli, joka on valmistettu tavallisesta 1/2 ” putkesta;
- Akseliin asennettu vetopyörä (z = 33);
- Kaksi tukilaakeria, jotka on kiinnitetty itse koteloon;
- Erityinen metallilevy, jota kutsutaan roottorin “siipiksi” ja jonka mitat ovat 30×4 mm;
- Kaksi roottorin siipiä;
- Kahdeksan ruuvin terää;
- Neljä siipiä ruuvin terille;
- Kaksi tukikulmaa.
Roottori ja kaksi vastakkain suunnattua ruuvia sijaitsevat käyttöakselilla. Työakselin valmistamiseksi valmistele tavallinen vesiputki 22×2 mm ja leikkaa siitä 568 mm pitkä pala.
Akselin on päädyttävä laakereihin, jotta tämä olisi mahdollista, sinun on hitsattava teräsputket (päät) putken (akselin) kahteen päähän, jotka kiinnitetään laakereihin.
Puhutaan nyt laakereista. Yksikkömme tarvitsee kaksi suljettua kuulalaakeria 40x16x16 mm.
Jos haluat kiinnittää teräslaakeripesän runkoon, sinun on leikattava kaksi 25 x 25 x 4 mm: n metallikulmaa ja ruuvattava ne runkoon kahdella M8 x 40 mm: n pultilla.
Itse akseliin, sen keskelle, on kiinnitettävä vielä yksi ketjupyörä, joka välittää vääntömomentin moottorista akselille ketjuvaihteiston avulla. Tässä tärkeässä hammaspyörässä pitäisi olla 33 hammasta 12,7 asteikolla, ja se kiinnitetään laippaan neljällä M6x30mm ruuvilla. Voimansiirtoketju voidaan ottaa moottoripyörästä. Kätevyyden ja rikkoutumisen välttämiseksi ketjun käyttö on parasta piilottaa lumilingon runkoon.
Nyt sinun on hitsattava terät työakseliin, jonka avulla lumi otetaan talteen. Otamme 12 teräsnauhaa (6 kummallakin puolella) ja hitsaamme ne, ruuvin terät kiinnitetään niihin.
Ruuviterien itse tekemiseksi sinun on valmistettava 4 mm paksu vaalea duralumiinilevy ja leikattava hevosenkengät pois palapelillä. Koska terät eivät ole kiinteitä, niiden kiinnittäminen ja purkaminen on helpompaa rikkoutumisen aikana.
Jotta lumipuhallin selviytyisi vanhasta, tiheästä lumesta, sinun on leikattava ruuvien terien hampaat. Tämän jälkeen kiinnitämme ruuveilla puoliterät ruuveilla MB-pulteilla. Kaikki ruuvattavien ruuvien ulkonevat osat on leikattava ja niitattava hyvin, jotta ne eivät löysty käytön aikana..

Tässä on moottorisahan lumilingon runko (alusta):
- Moottorisahan kaasusäiliö;
- Moottori;
- Lumipuhallinpyörä;
- Nivelakseli;
- Asennus laakereilla;
- Lumilingon vetopyörä.

Lumipuhaltimen roottorissa on kaksi terää, jotka voidaan valmistaa sekä duralumiinista että teräksestä, paksuus 2 mm, jos laitat ruostumattomasta teräksestä valmistetut terät, se on yleensä hieno.

Jotta terät eivät osuisi akselin pyöriessä, ruuvaa ne mittaamalla sama etäisyys akselin molemmilta puolilta. Tarkkailemalla symmetriaa roottorin ja ruuvin lapojen asennuksessa tasapainotamme rakennetta. Kun asennat roottorin laakereihin, sinun on myös tasapainotettava rakenne, tasapainotettava se.
Vaihdamme vaihteiston vetopyörän moottorissa olevaan kardaanikäyttöön, minkä vuoksi moottorin vähennysventtiili on kytketty ketjupyörän vetopyörään, jossa on 17 hammasta ja 12,7 mm: n nousu. Tämä ketjupyörä on asennettava potkurin akselille toisen kyynärpään loppuun.
Yksikön koteloon on asennettu kaksi suljettua kuulalaakeria, joiden mitat ovat 40x16x17 mm ja joihin kardaaniakseli lepää.
Teräsrunko ruuvataan runkoon 40x40x4 mm: n ja 120 mm: n kulmien avulla.
Teemme akselin tavallisesta vesiputkesta, jonka pituus on 550 mm ja halkaisija 26 mm, jonka päistä hitsataan kaksi putkea, joiden ulkohalkaisija on 20 mm, ja sitten pyörät, joissa on jo sisäänrakennetut laakerit tavallisista kaksipyöräisistä kärryistä, on asennettu niihin. Pyörät voidaan kiinnittää pultilla М10х30 mm.
Jotta ruuvien siepattu lumi voidaan heittää oikeaan suuntaan, sinun on kiinnitettävä kauhaan erityinen holkki, mutta tiheällä lumella holkki voi olla tukossa, tämä on otettava huomioon ja toimitettava.
DIY bensiinilumipuhallin moottorisahasta
Kun olet tutustunut moottorisahan perusteella omin käsin tehtyjen lumipuhaltimien piirustuksiin, voit tehdä tämän tekniikan ihmeen omin käsin improvisoidusta materiaalista, joka muuten painaa vain 35 kg. olla ohjattava ja taloudellinen.
DIY -moottorisahan lumipuhallin
Talvella lumipuhaltimen aihe muuttuu erittäin ajankohtaiseksi, koska lumi kaataa ja kaataa kaiken, ja sinun ja minun täytyy nousta ja mennä eteenpäin … töihin, taloudenhoitoon, kauppoihin. Edistys ei pysähdy, ja nykyaikaiset käsityöläiset reagoivat luovasti lumipuhaltimien luomiseen omilla käsillään, jotka kykenevät poistamaan lumilaastareita ja puhdistamaan käytävät. Mistä nämä yksiköt eivät keksi: moottorilohkoista, moottorisahoista …
Tämä artikkeli yrittää selittää sinulle prosessin, jolla luodaan pieni, ketterä lumipuhallin tavallisesta moottorisahasta. Tällainen lumipuhallin on kevyt, helppokäyttöinen eikä ole kovin vaikea valmistaa, ja jotta voit nähdä ja esitellä kaiken, esittelemme lumenpuhaltimien piirustukset.
Moottorisaha alkaen 5 hv ja yläpuolella on ihanteellinen tälle lumilingolle.
Tarkastellaan Ural 2T -moottorisahaan perustuvaa lumipuhallinta. Tämän moottorisahan moottorista saatavalla hitauskytkimellä on tärkeä rooli sulakkeena, ja jos vieras esine pääsee roottoriin, se reagoi välittömästi ja estää voimansiirron, mikä suojaa laitetta erittäin ei -toivotuilta rikkoutumiselta. Lisäksi Ural 2T -moottori on varustettu 1: 2 -alennusvaihteella.
Valmistuksen helpottamiseksi emme käytä suurta määrää sorvattuja osia ja kalliita materiaaleja, vaan tehtävämme on tehdä tämän rakenteen kokoaminen mahdollisimman helpoksi kesäasuntoon. Tämän lumipuhaltimen hyvä puoli on, että osat ja materiaalit ovat saatavilla ja helppo valmistaa..
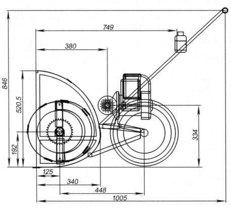
Moottorisahan lumipuhallin, piirustukset:
Joten edessämme ovat piirustukset moottorisahan moottoriin perustuvasta lumipuhaltimesta:
Kuten huomasit, moottorisahan moottori, jotta vältytään vääristymiltä käytön aikana (epätasainen lumen tarttuminen kauhalla tai heiluminen sivulta toiselle) on sijoitettu pitkittäisakselille..
Jotta voimme käyttää Ural 2T -moottorisahan osia täysimääräisesti, kiinnitämme Ural -kaasusäiliön yksikköön ja kiinnitämme sen kahdella pultilla ohjaustukeen. Moottoripyörän tavanomainen kaasukahva auttaa meitä hallitsemaan kaasua..
Lumipuhaltimen runko on hitsattu metalliputkista, joiden neliöleikkaus on 20x20x1,7 mm, ja se on kauha, kaksi vipua ja ohjauspalkki. Muuten kauhan yläosa on valmistettu neliömäisestä putkesta, jossa on pienempi osa, nimittäin 10x10x1,7 mm. Kauhan asentamiseen käytetään sinkittyä levyä, jonka paksuus on vähintään 0,5 mm. Tavalliset alumiinista valmistetut niitit, joiden halkaisija on 5 mm, auttavat kiinnittämään tinalevyt runkoon..
Ja jotta laitteen kauha liukuu helposti lumen pinnan yli, kauhan alaosaan on hitsattava metallilevy, jonka mitat ovat 600x40x4 mm, ja samankokoinen polyeteeniliuska tähän levyyn.
Nyt kiinnitetään huomiomme moottorisahan lumipuhaltimen päätyökappaleeseen.
Se on akseli, johon on hitsattu ruuveja:
Niinpä ruuvin roottori koostuu:
Roottori ja kaksi vastakkain suunnattua ruuvia sijaitsevat käyttöakselilla. Työakselin valmistamiseksi valmistele tavallinen vesiputki 22×2 mm ja leikkaa siitä 568 mm pitkä pala.
Akselin on päädyttävä laakereihin, jotta tämä olisi mahdollista, sinun on hitsattava teräsputket (päät) putken (akselin) kahteen päähän, jotka kiinnitetään laakereihin.
Puhutaan nyt laakereista. Yksikkömme tarvitsee kaksi suljettua kuulalaakeria 40x16x16 mm.
Jos haluat kiinnittää teräslaakeripesän runkoon, sinun on leikattava kaksi 25 x 25 x 4 mm: n metallikulmaa ja ruuvattava ne runkoon kahdella M8 x 40 mm: n pultilla.
Itse akseliin, sen keskelle, on kiinnitettävä vielä yksi ketjupyörä, joka välittää vääntömomentin moottorista akselille ketjuvaihteiston avulla. Tässä tärkeässä hammaspyörässä pitäisi olla 33 hammasta 12,7 asteikolla, ja se kiinnitetään laippaan neljällä M6x30mm ruuvilla. Voimansiirtoketju voidaan ottaa moottoripyörästä. Kätevyyden ja rikkoutumisen välttämiseksi ketjun käyttö on parasta piilottaa lumilingon runkoon.
Nyt sinun on hitsattava terät työakseliin, jonka avulla lumi otetaan talteen. Otamme 12 teräsnauhaa (6 kummallakin puolella) ja hitsaamme ne, ruuvin terät kiinnitetään niihin.
Ruuviterien itse tekemiseksi sinun on valmistettava 4 mm paksu vaalea duralumiinilevy ja leikattava hevosenkengät pois palapelillä. Koska terät eivät ole kiinteitä, niiden kiinnittäminen ja purkaminen on helpompaa rikkoutumisen aikana.
Jotta lumipuhallin selviytyisi vanhasta, tiheästä lumesta, sinun on leikattava ruuvien terien hampaat. Tämän jälkeen kiinnitämme ruuveilla puoliterät ruuveilla MB-pulteilla. Kaikki ruuvattavien ruuvien ulkonevat osat on leikattava ja niitattava hyvin, jotta ne eivät löysty käytön aikana..
Tässä on moottorisahan lumilingon runko (alusta):
Lumipuhaltimen roottorissa on kaksi terää, jotka voidaan valmistaa sekä duralumiinista että teräksestä, paksuus 2 mm, jos laitat ruostumattomasta teräksestä valmistetut terät, se on yleensä hieno.
Jotta terät eivät osuisi akselin pyöriessä, ruuvaa ne mittaamalla sama etäisyys akselin molemmilta puolilta. Tarkkailemalla symmetriaa roottorin ja ruuvin lapojen asennuksessa tasapainotamme rakennetta. Kun asennat roottorin laakereihin, sinun on myös tasapainotettava rakenne, tasapainotettava se.
Vaihdamme vaihteiston vetopyörän moottorissa olevaan kardaanikäyttöön, minkä vuoksi moottorin vähennysventtiili on kytketty ketjupyörän vetopyörään, jossa on 17 hammasta ja 12,7 mm: n nousu. Tämä ketjupyörä on asennettava potkurin akselille toisen kyynärpään loppuun.
Yksikön koteloon on asennettu kaksi suljettua kuulalaakeria, joiden mitat ovat 40x16x17 mm ja joihin kardaaniakseli lepää.
Teräsrunko ruuvataan runkoon 40x40x4 mm: n ja 120 mm: n kulmien avulla.
Teemme akselin tavallisesta vesiputkesta, jonka pituus on 550 mm ja halkaisija 26 mm, jonka päistä hitsataan kaksi putkea, joiden ulkohalkaisija on 20 mm, ja sitten pyörät, joissa on jo sisäänrakennetut laakerit tavallisista kaksipyöräisistä kärryistä, on asennettu niihin. Pyörät voidaan kiinnittää pultilla М10х30 mm.
Jotta ruuvien siepattu lumi voidaan heittää oikeaan suuntaan, sinun on kiinnitettävä kauhaan erityinen holkki, mutta tiheällä lumella holkki voi olla tukossa, tämä on otettava huomioon ja toimitettava.
DIY bensiinilumipuhallin moottorisahasta
Kun olet tutustunut moottorisahan perusteella omin käsin tehtyjen lumipuhaltimien piirustuksiin, voit tehdä tämän tekniikan ihmeen omin käsin improvisoidusta materiaalista, joka muuten painaa vain 35 kg. olla ohjattava ja taloudellinen.