
Някога дървото се е считало за основен материал за изграждане на къщи. Дори и днес са оцелели голям брой жилищни къщи, които все още са в експлоатация. Следващият популярен строителен материал беше тухла. Все още се смята за една от най -качествените и най -удобните къщи за строителство. На строителния пазар обаче той постепенно се заменя с блок от пяна. Какво е това, защо е по -добре и по -полезно от горните материали: нека разгледаме по -отблизо примера за изграждане на малки къщи с таванско помещение от пеноблокове.
Характеристики на дизайна
Пяна блокове са доста големи паралелепипеди, състоящи се от смес от пясък, вода и цимент с добавяне на пенообразуващ компонент. Последната съставка добавя порьозност към блоковете и осигурява на строителния материал първата част от името. Уникалността на този материал се крие в неговата ниска цена, висока звукоизолация и топлоизолация. Лесен за обработка (може да се реже, пробива, нарязва).
Самите блокове от пяна, както и лепилото за тях, се нуждаят от много малко в сравнение с подобни сгради от други строителни материали.

Напоследък стана удобно и модерно да се използва пяна при изграждането на частни къщи с таванско помещение.. Това е случаят, когато възниква желание да се увеличи жизненото пространство, без да се прибягва до отнемащи време процеси на разширяване.. След като решите да прекроите таванското си пространство в таванско помещение, никога няма да съжалявате за избора си..

Нека разгледаме основните му предимства.
- Това е чудесна възможност да се отървете от мястото на натрупване на ненужни неща, оставени „за по -късно“. За собствениците на апартаменти такова място се нарича балкон. Основното нещо е да не започнете да криете всичко това в ъглите и в гаража в импулсите, за да се отървете от ненужните неща (ако има такива).
- Използването на блокове от пяна е чудесен начин да спестите пари за скъпи ремонти. Пяна блокове са много евтин материал, който има мощни характеристики..
- Спестяване на място в двора. Семейството получава голяма къща, без да използва ягодови легла.
- Намалени топлинни загуби. За да може таванското пространство да стане жилищно, е необходимо да го изолирате. Следователно има намаляване на топлинните загуби през покрива..
- Удобно живеене на приземния етаж на къщата в процес на завършване на тавана. Малко натоварване върху основата на къщата в сравнение с изграждането на втория етаж.
- Общото тегло на къщата от пяна няма да бъде голямо.

Основната характеристика на тавански къщи е наличието на прости проекти, готови за изграждане. Някои дизайнери и строителни фирми могат да ви предложат оформлението на постоянна жилищна сграда и временно жилище на селска къща. За да опознаете по -добре проектите на тавански къщи от пеноблокове, трябва да обърнете голямо внимание на самия строителен материал и основните му характеристики.
Характеристики на блока от пяна
Днес похвали в полза на този порест строителен материал се чуват на всеки ъгъл. Удобно е да се използва, за да се сведе до минимум времето, прекарано в изграждането на къща с таванско помещение. Тъй като типичните блокове от пенобетон са големи (в сравнение със същата тухла), те се полагат много по -бързо..
Друга удобна характеристика е използването на специално лепило за свързване на блоковете в една монолитна структура. Това гарантира намаляване на топлинните загуби поради пълното отсъствие на студени мостове между блоковете..

Шевовете са с дебелина не повече от 3-5 мм, което прави възможно лесно, ефективно и бързо закрепване на материала заедно, изисквайки минимален разход на лепилен разтвор. Енергоспестяващите характеристики на блокове от пяна гарантират тяхната гъвкавост в смисъл, че тези стени няма да се нуждаят от изолация. Достатъчно е просто да покриете сивата повърхност с избрания сайдинг..

Огнеустойчивост и влагоустойчивост на блокове от пяна на най -високо ниво. Този материал не е податлив на гниене, външен вид, разпространение на мухъл и микроорганизми. Това включва и спокойното отношение на строителния материал към спада на температурата. Къща, построена от тези порести блокове, ще диша. През зимата няма да можете да се задръстите от мухъл по стените в стаята, дори ако имате океан в банята..
Перфектно плоската повърхност на всички повърхности от пенобетонни блокове (максималната грешка е 3 мм за самата дефектна тухла) дава идеално плоски стени без допълнителна мазилка.

За изграждането на дори малка къща от мансарден тип от блокове от пяна възможно най-бързо, удобно и ефективно трябва да се придържате към основните технологични правила.
- Рамкова конструкция. Тук говорим повече за покрива. На този елемент трябва да се обърне специално внимание. След като сте пропуснали и най -малък детайл, можете да съсипете целия проект и да стигнете до допълнителни разходи под формата на пълна промяна на покрива на къща с таванско помещение.
- Избор на най -добрата изолация и хидроизолация за покрива. Минералната вата и базалтовата изолация се считат за най -оптималните днес..
- Обшивка на вътрешната част на покрива също играе важна роля. Често това са листове от шперплат, по -рядко – гипсокартон.
- Директно покриване. Тъй като самите блокове от пяна са доста леки, тогава таванският покрив също трябва да има нисък индикатор в този смисъл..

Разбира се, най -добре е да поверите изграждането на покрив за къща с таванско помещение от пенобетонни блокове на професионалисти. За да се избегнат неприятни последици, причинени от основното непознаване на нюансите на този процес. Архитектурното поле днес предлага голям брой проекти за къщи от този тип..
Можете да намерите безплатни и да ги персонализирате според вашите предпочитания. Но в този случай рискувате да станете един от собствениците на типична сграда със стандартно оформление. Има изход: можете да направите поръчка за индивидуален дизайн.
Какви опции са възможни за къщи с таван от пенобетон ще бъдат обсъдени по -нататък.
Проекти
Проектирането на всяка сграда, и още повече на жилищна, трябва да започне с откриването акценти, които включват:
- площ на обекта, подходяща за изграждане;
- броят на хората, планирани да живеят;
- естеството на жилището (целогодишно или сезонно);
- общият бюджет, отпуснат за изграждането на къща с таванско покритие от пяна.

Когато всички основни въпроси бъдат изяснени, можете да започнете да избирате оформления. Най -често срещаният проект за къща днес се счита за къща с размери 6×6 m.. Това е не само бюджетен вариант за временен сезонен приют, но и малка стая за семейство от 2-3 души. Сред проекти от този тип можете да намерите двустаен приземен етаж и едностаен таван..
Тук е важно да се балансира оформлението на стаите, така че всички членове на семейството да се чувстват комфортно. Например, в горната част на къщата можете да подредите гардероб, като разделите пространството на малка стая за дрехи и зона за спане..

Когато проектирате такава малка къща, можете леко да намалите стаите, но да увеличите техния брой. Основното в този процес е да не превърнете удобните крайградски жилища в пчелен кошер.. На приземния етаж можете да оборудвате комбинирана кухня-трапезария и всекидневна.
Ще има разширение с отворена веранда и гараж, ако територията позволява. В този случай таванският блок е напълно разпределен за жилищно ползване..

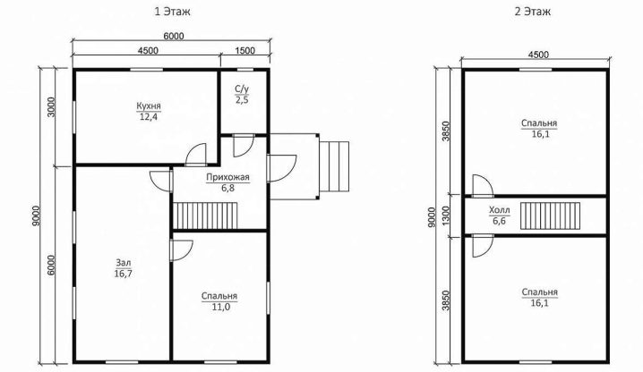
Следващите най -популярни области за подобряване на дома с таван са готови проекти 6×8, 6×9, понякога 6 на 10 m. Последният вариант вече се счита за голяма къща с таванско помещение. Основната разлика между тези опции от предишната е правоъгълната форма и няколко метра плюс на всяка от двете дълги страни. Този размер вече може да побере четиричленно семейство.

Например, такъв проект удобно разполага с една всекидневна, кухня, всекидневна и баня на приземния етаж. Отлично решение тук е антрето, от което стълбището излиза на тавана. Горната част е напълно запазена за дневни. Има две от тях, с приятен размер, разделени от антре със стълбище. Такова отделно подреждане на стъпалата е удобно за семейства с малки деца. И като цяло се чувствате много по -комфортно, когато пред очите ви няма зидаща дупка в пода..

Друг общ размер на къщи с таван е площ 7×8 m, 7×9 m. Такъв готов проект за строителство от блокове от пяна позволява на въображението да се скита, но в рамките на посочените рамки. Също така е приемливо да се организира голяма кухня-трапезария на приземния етаж, стая за гости, спалня и баня. Таванският етаж тихо лежи под шезлонгите на капитана, допълнителна баня и дори малка съблекалня. Снимката показва оригиналния проект на къща 7 на 8 м с приблизително удобно оформление.

Проектите на къщи 8×8, 8×9 и 8×10 m вдъхват приятна стабилност и пространство. С площ от почти 80 квадрата не е трудно да се изготви индивидуален проект за изграждане на къща от пяна. Тук получаваме не просто пълноценен втори етаж с необикновена форма. Такава къща може лесно да побере не само всички членове на голямо семейство, но и да приеме своите гости. Уютната открита тераса ще се превърне в приятно място за вечерни събирания на чаша топъл чай или кафе..

Всичко, което се отнася до по-големи размери, може да се квалифицира като големи нискоетажни конструкции за постоянно пребиваване. Едва ли някой иска да има селска къща 9×9, 9 на 12 и 10×10 м. Имения 120 кв. м. от блокове от пяна с тавански етаж ви позволяват да оборудвате оригиналния горен етаж. Тук голяма всекидневна плавно ще премине в отворено таванско помещение в сянката на високи дървета..

Много по -трудно е да се оборудва гнездо 4 на 5 m. Професионалистите обаче се справят с тази задача с гръм и трясък. Удобно е да се поставят в такива помещения в зоните за баня. Тъй като блокът от пяна е устойчив на влага, тази опция за разработването на сценария на крайградска зона радва собствениците си. Удобството на този проект се крие във факта, че на таванския етаж можете да останете за една нощ.
Чертежи – рисунки, но за вдъхновение искам лично да видя къщи с таванско помещение, направено от блокове от пяна, за да измисля свой собствен проект, който не прилича на нищо преди.
Красиви примери
За да видите вдъхновяващите снимки възможно най -точно и ясно, нека започнем с големи площи..
Къща с таванско помещение от блокове от пяна с площ над 100 квадратни метра. Просторен, подходящ за семейства. Какво ви е необходимо за крайградско постоянно пребиваване. Нестандартният дизайн, деликатните пастелни тонове на облицовката и покривите създават уют и спокойствие. Малък балкон на таванския етаж може да се използва като място за релакс и уединение.

Доста ярък и стилен пример за друга сравнително голяма къща с таван 7 на 9 м. Собствениците на такъв проект могат да си позволят по една баня на всеки етаж, както и 4 спални. Отвън къщата не прилича на самостоятелна къща, боядисана е в приятен светъл нюанс..
Допълнителните прозорци добавят естествена светлина и топлина и уют към този под.

Малка къща с таванско помещение от блокове от пяна и открита тераса изглежда необичайно и елегантно, обшита с PVC сайдинг със строителни елементи, изработени в бяло. Зеленият метален покрив създава хармонична картина на единство с природата. Тричленно семейство може удобно да се настани в такава къща..

Много модерни проекти се създават с разширения на гаража. Разбира се, много по -удобно е да влезете директно в къщата от гаража, отколкото да вървите по улицата. С това допълнение не се страхувате от лошо време. Тази къща е предназначена за семейство от 4 души, има площ 8×10 m.
По принцип гаражните конструкции се вписват точно в големи къщи с тавански помещения от пяна. В същото време гаражи се строят от същия материал..

Сред изобилието от безплатни и платени проекти за изграждане на къщи, не се фокусирайте върху цената, а върху крайния резултат, който искате да получите. Не забравяйте за важен момент: дори да сте уверени в способностите си, не пренебрегвайте съветите на професионалисти във вашата област. Това важи особено за въпросите на покрива, топло- и хидроизолацията, както и за други важни моменти при изграждането на издръжлива и висококачествена къща от блокове от пяна. Купувайте качествени суровини: това ще допринесе за издръжливостта на конструкцията.
Преглед на къща от пяна, не като всички останали, вижте следващото видео.
Къщи с таванско помещение от блокове от пяна: прости проекти и планиране на пространството
Някога дървото се е считало за основен материал за изграждане на къщи. Дори и днес са оцелели голям брой жилищни къщи, които все още са в експлоатация. Следващият популярен строителен материал беше тухла. Все още се смята за една от най -качествените и най -удобните къщи за строителство. На строителния пазар обаче той постепенно се заменя с блок от пяна. Какво е това, защо е по -добре и по -полезно от горните материали: нека разгледаме по -отблизо примера за изграждане на малки къщи с таванско помещение от пеноблокове.
Характеристики на дизайна
Пяна блокове са доста големи паралелепипеди, състоящи се от смес от пясък, вода и цимент с добавяне на пенообразуващ компонент. Последната съставка добавя порьозност към блоковете и осигурява на строителния материал първата част от името. Уникалността на този материал се крие в неговата ниска цена, висока звукоизолация и топлоизолация. Лесен за обработка (може да се реже, пробива, нарязва).
Самите блокове от пяна, както и лепилото за тях, се нуждаят от много малко в сравнение с подобни сгради от други строителни материали.
Напоследък стана удобно и модерно да се използва пяна при изграждането на частни къщи с таванско помещение.. Това е случаят, когато възниква желание да се увеличи жизненото пространство, без да се прибягва до отнемащи време процеси на разширяване.. След като решите да прекроите таванското си пространство в таванско помещение, никога няма да съжалявате за избора си..
Нека разгледаме основните му предимства.
Основната характеристика на тавански къщи е наличието на прости проекти, готови за изграждане. Някои дизайнери и строителни фирми могат да ви предложат оформлението на постоянна жилищна сграда и временно жилище на селска къща. За да опознаете по -добре проектите на тавански къщи от пеноблокове, трябва да обърнете голямо внимание на самия строителен материал и основните му характеристики.
Характеристики на блока от пяна
Днес похвали в полза на този порест строителен материал се чуват на всеки ъгъл. Удобно е да се използва, за да се сведе до минимум времето, прекарано в изграждането на къща с таванско помещение. Тъй като типичните блокове от пенобетон са големи (в сравнение със същата тухла), те се полагат много по -бързо..
Друга удобна характеристика е използването на специално лепило за свързване на блоковете в една монолитна структура. Това гарантира намаляване на топлинните загуби поради пълното отсъствие на студени мостове между блоковете..
Шевовете са с дебелина не повече от 3-5 мм, което прави възможно лесно, ефективно и бързо закрепване на материала заедно, изисквайки минимален разход на лепилен разтвор. Енергоспестяващите характеристики на блокове от пяна гарантират тяхната гъвкавост в смисъл, че тези стени няма да се нуждаят от изолация. Достатъчно е просто да покриете сивата повърхност с избрания сайдинг..
Огнеустойчивост и влагоустойчивост на блокове от пяна на най -високо ниво. Този материал не е податлив на гниене, външен вид, разпространение на мухъл и микроорганизми. Това включва и спокойното отношение на строителния материал към спада на температурата. Къща, построена от тези порести блокове, ще диша. През зимата няма да можете да се задръстите от мухъл по стените в стаята, дори ако имате океан в банята..
Перфектно плоската повърхност на всички повърхности от пенобетонни блокове (максималната грешка е 3 мм за самата дефектна тухла) дава идеално плоски стени без допълнителна мазилка.
За изграждането на дори малка къща от мансарден тип от блокове от пяна възможно най-бързо, удобно и ефективно трябва да се придържате към основните технологични правила.
Разбира се, най -добре е да поверите изграждането на покрив за къща с таванско помещение от пенобетонни блокове на професионалисти. За да се избегнат неприятни последици, причинени от основното непознаване на нюансите на този процес. Архитектурното поле днес предлага голям брой проекти за къщи от този тип..
Можете да намерите безплатни и да ги персонализирате според вашите предпочитания. Но в този случай рискувате да станете един от собствениците на типична сграда със стандартно оформление. Има изход: можете да направите поръчка за индивидуален дизайн.
Какви опции са възможни за къщи с таван от пенобетон ще бъдат обсъдени по -нататък.
Проекти
Проектирането на всяка сграда, и още повече на жилищна, трябва да започне с откриването акценти, които включват:
Когато всички основни въпроси бъдат изяснени, можете да започнете да избирате оформления. Най -често срещаният проект за къща днес се счита за къща с размери 6×6 m.. Това е не само бюджетен вариант за временен сезонен приют, но и малка стая за семейство от 2-3 души. Сред проекти от този тип можете да намерите двустаен приземен етаж и едностаен таван..
Тук е важно да се балансира оформлението на стаите, така че всички членове на семейството да се чувстват комфортно. Например, в горната част на къщата можете да подредите гардероб, като разделите пространството на малка стая за дрехи и зона за спане..
Когато проектирате такава малка къща, можете леко да намалите стаите, но да увеличите техния брой. Основното в този процес е да не превърнете удобните крайградски жилища в пчелен кошер.. На приземния етаж можете да оборудвате комбинирана кухня-трапезария и всекидневна.
Ще има разширение с отворена веранда и гараж, ако територията позволява. В този случай таванският блок е напълно разпределен за жилищно ползване..
Следващите най -популярни области за подобряване на дома с таван са готови проекти 6×8, 6×9, понякога 6 на 10 m. Последният вариант вече се счита за голяма къща с таванско помещение. Основната разлика между тези опции от предишната е правоъгълната форма и няколко метра плюс на всяка от двете дълги страни. Този размер вече може да побере четиричленно семейство.
Например, такъв проект удобно разполага с една всекидневна, кухня, всекидневна и баня на приземния етаж. Отлично решение тук е антрето, от което стълбището излиза на тавана. Горната част е напълно запазена за дневни. Има две от тях, с приятен размер, разделени от антре със стълбище. Такова отделно подреждане на стъпалата е удобно за семейства с малки деца. И като цяло се чувствате много по -комфортно, когато пред очите ви няма зидаща дупка в пода..
Друг общ размер на къщи с таван е площ 7×8 m, 7×9 m. Такъв готов проект за строителство от блокове от пяна позволява на въображението да се скита, но в рамките на посочените рамки. Също така е приемливо да се организира голяма кухня-трапезария на приземния етаж, стая за гости, спалня и баня. Таванският етаж тихо лежи под шезлонгите на капитана, допълнителна баня и дори малка съблекалня. Снимката показва оригиналния проект на къща 7 на 8 м с приблизително удобно оформление.
Проектите на къщи 8×8, 8×9 и 8×10 m вдъхват приятна стабилност и пространство. С площ от почти 80 квадрата не е трудно да се изготви индивидуален проект за изграждане на къща от пяна. Тук получаваме не просто пълноценен втори етаж с необикновена форма. Такава къща може лесно да побере не само всички членове на голямо семейство, но и да приеме своите гости. Уютната открита тераса ще се превърне в приятно място за вечерни събирания на чаша топъл чай или кафе..
Всичко, което се отнася до по-големи размери, може да се квалифицира като големи нискоетажни конструкции за постоянно пребиваване. Едва ли някой иска да има селска къща 9×9, 9 на 12 и 10×10 м. Имения 120 кв. м. от блокове от пяна с тавански етаж ви позволяват да оборудвате оригиналния горен етаж. Тук голяма всекидневна плавно ще премине в отворено таванско помещение в сянката на високи дървета..
Много по -трудно е да се оборудва гнездо 4 на 5 m. Професионалистите обаче се справят с тази задача с гръм и трясък. Удобно е да се поставят в такива помещения в зоните за баня. Тъй като блокът от пяна е устойчив на влага, тази опция за разработването на сценария на крайградска зона радва собствениците си. Удобството на този проект се крие във факта, че на таванския етаж можете да останете за една нощ.
Чертежи – рисунки, но за вдъхновение искам лично да видя къщи с таванско помещение, направено от блокове от пяна, за да измисля свой собствен проект, който не прилича на нищо преди.
Красиви примери
За да видите вдъхновяващите снимки възможно най -точно и ясно, нека започнем с големи площи..
Къща с таванско помещение от блокове от пяна с площ над 100 квадратни метра. Просторен, подходящ за семейства. Какво ви е необходимо за крайградско постоянно пребиваване. Нестандартният дизайн, деликатните пастелни тонове на облицовката и покривите създават уют и спокойствие. Малък балкон на таванския етаж може да се използва като място за релакс и уединение.
Доста ярък и стилен пример за друга сравнително голяма къща с таван 7 на 9 м. Собствениците на такъв проект могат да си позволят по една баня на всеки етаж, както и 4 спални. Отвън къщата не прилича на самостоятелна къща, боядисана е в приятен светъл нюанс..
Допълнителните прозорци добавят естествена светлина и топлина и уют към този под.
Малка къща с таванско помещение от блокове от пяна и открита тераса изглежда необичайно и елегантно, обшита с PVC сайдинг със строителни елементи, изработени в бяло. Зеленият метален покрив създава хармонична картина на единство с природата. Тричленно семейство може удобно да се настани в такава къща..
Много модерни проекти се създават с разширения на гаража. Разбира се, много по -удобно е да влезете директно в къщата от гаража, отколкото да вървите по улицата. С това допълнение не се страхувате от лошо време. Тази къща е предназначена за семейство от 4 души, има площ 8×10 m.
По принцип гаражните конструкции се вписват точно в големи къщи с тавански помещения от пяна. В същото време гаражи се строят от същия материал..
Сред изобилието от безплатни и платени проекти за изграждане на къщи, не се фокусирайте върху цената, а върху крайния резултат, който искате да получите. Не забравяйте за важен момент: дори да сте уверени в способностите си, не пренебрегвайте съветите на професионалисти във вашата област. Това важи особено за въпросите на покрива, топло- и хидроизолацията, както и за други важни моменти при изграждането на издръжлива и висококачествена къща от блокове от пяна. Купувайте качествени суровини: това ще допринесе за издръжливостта на конструкцията.
Преглед на къща от пяна, не като всички останали, вижте следващото видео.