
Вероятно всеки човек е бил изправен пред проблема със сушенето на дрехи, който се състои в намирането на правилното място. Изходът от тази ситуация ще бъде вашият балкон или лоджия. Как точно, ще разкажем в нашата статия.
7 снимки
Особености
Балконът е чудесно място с добра вентилация. Това несъмнено трябва да се използва за ваша собствена изгода – за отглеждане на различни растения, оборудване с всичко необходимо за релаксация, а също така, съчетавайки бизнес с удоволствие, можете да инсталирате сушилня за дрехи.
На първо място, трябва да решите мястото, където ще се извърши инсталацията. Въз основа на това трябва да се избере подходящата опция. Всеки от тях също се различава по своята форма и функционалност, всеки има свои характеристики и недостатъци..

Сушилня може да бъде закупена в магазина. При това обърнете внимание на производителя, неговата репутация и опит. Така че на добре доказани компании може да се вярва. Но твърде евтините модели трябва да ви предупредят. Ако искате да спестите пари, тогава можете да предпочетете друг вариант. Например, можете да направите своя собствена сушилня..
Има и специални схеми, според които можете да сглобите сушилня дори със собствените си ръце, докато сте у дома, например с помощта на PVC тръби. Те се използват във водопроводни инсталации и могат да бъдат закупени във всеки магазин с подобна тематика. Сушилните са изработени от различни материали, от пластмаса до цветни метали. Следователно можете да изберете необходимата опция по ваша преценка и най -важното – бюджета.

Сушилнята за стени е чудесен вариант, особено за малки балкони. Това е метална основа, куха вътре, в която е монтиран специален пружинен механизъм с въжета. Ако е необходимо, той се простира на определено разстояние и можете безопасно да закачите прането, а след изсушаване незабавно го натиснете обратно, за да спестите място. Тази конструкция се фиксира към стената с необходимите винтове.

Има специални модели с допълнителни рафтове за бельо с тегло до 20 кг. Обичайните стандартни опции държат половината време. Недостатъкът може да бъде, че с течение на времето, под тежестта на бельото, въжетата могат да провиснат и трябва да се сменят. Много домакини предпочитат този конкретен вариант, тъй като сушилните за стена са доста практични, функционални и лесни за използване..
Предимства
Стенната версия на сушилнята е доста популярна сред съвременните хора. Те имат разнообразие от модели, които успешно ще се впишат в пространството и стила на вашия балкон. Какво друго е предимството:
- Дизайнът на сушилнята е доста прост. Може лесно да се сглобява, сглобява и дори самостоятелно. Това няма да ви причини допълнителни трудности..
- Практичен и надежден. Ако правилно сте инсталирали сушилнята на стената и дизайнът отговаря на декларираните характеристики, тогава няма съмнение относно нейната надеждност. Такъв продукт ще ви служи дълго време, ако се използва правилно..
- Лесна употреба. Можете да окачите сушилнята навсякъде, където ви е удобно да я използвате. Това ще освободи останалото пространство, от което се нуждаете. Самият дизайн също е доста удобен. Вътре в тялото има барабан, върху който лесно могат да се навият бельо за дрехи. Ако има такава нужда, барабанното колело ще може да навие излишната дължина, благодарение на вградената пружина.
9 снимки
- Стенната сушилня може да бъде сгъната и поставена така, че да не пречи на преминаването на хора. Самите въжета се развиват и се крият в барабана. Компактността е друго предимство на продукта.
- Наличност. Съвременните производители предлагат широка гама сушилни на голямо разнообразие от цени. Можете да изберете подходящ вариант за себе си и да го използвате с удоволствие. Разбира се, колкото по -скъпа е структурата, толкова по -здрава и по -добра ще бъде тя (ако я купувате от надеждни фирми).
- Страхотно настроение. Когато цялото пространство е добре организирано, вие и членовете на вашето семейство ще бъдете в отлично настроение. Прането ще изсъхне ефективно на определено място и ще получите допълнително място, за да поставите други необходими неща там..
Сортове
Съвременните производители произвеждат много видове сушилни за стени. Всички те се различават по ценова политика, състав, дизайн. Основните модели включват:
- Опции, които могат да бъдат прикрепени към стената на просторна лоджия. Такива продукти могат да имат голямо разнообразие от дизайни. Тя може да бъде компактна и миниатюрна сушилня като релси за кърпи. Има и многостепенен модел, който издържа двадесет килограма пране..
- Инерционни сушилни за стени на достъпна цена. Тези модели имат предимно компактно тяло, което е прикрепено към стената. Вътре в него има специален пружинен барабан с линии за дрехи. Тази прибираща се конструкция е предназначена главно за шест килограма тегло. Въжените куки са разположени от противоположната страна. Този модел ще бъде удобен за малки балкони. Разбира се, струва си да си припомним, че с времето въжетата ще провиснат..
- Конзолни модели. Тези сушилни за стена се плъзгат. Те могат да издържат на впечатляващо тегло на прането до десет килограма. Те представляват конструкция под формата на акордеон, който е прикрепен към стената..
9 снимки
Със собствените си ръце
Можете също така да опитате да направите сами дизайна на сушилнята. Това е доста дълъг и сложен процес, но ако желаете, можете да опитате да го направите. По този начин можете да спестите време, пари и пари. За изработката са ви необходими инструменти и някои материали.

Необходимо е да се закупят две греди, материалът, за който могат да служат както дърво, така и желязо. След това трябва да пробиете отвор с малък диаметър по цялата дължина. Поставете релсите около краищата на балкона си и ги закрепете с винтове, като предварително дърпате бельото за дрехи. Можете предварително да боядисате цялата структура в желания от вас цвят. Използвайки пластмасова основа, можете да използвате водопроводни тръби от PVC.
За да направите такава сушилня, можете да използвате въображението си и да измислите нещо необичайно и оригинално във вашия стил. Например, можете да използвате същия PVC материал и сами да заварявате конструкцията или да се доверите на квалифицирани специалисти.

Ако все пак решите да го инсталирате сами, тогава отлично решение би било да закупите специален комплект, който съдържа всички необходими елементи. Те трябва само да бъдат инсталирани на избраното от вас място..
Можете да опитате да закупите всички части, необходими за дизайна, или да прибягвате до съветите на опитни специалисти.

Първо намерете две или повече прави греди от дърво, желязо или друг материал и ги закрепете със специални болтове към бетонна или тухлена основа. Това е необходимо за по -добър монтаж, в противен случай, ако се завинтва към балконските панели, които обикновено са изработени от PVC, цялата конструкция може да се срути напълно, тъй като пластмасата, особено тънката пластмаса, не е предназначена за сериозни товари.
След това трябва да издърпате въжето, за предпочитане с голям диаметър, за здравина. Ако балконът е дълъг, тогава в този случай е необходимо да се използват допълнителни греди, като се монтират по средата, тъй като въжето, опънато в този случай, може да не издържи и в най -добрия случай да се провисне и в най -лошия случай да се счупи.

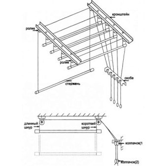
Има и по -оригинални опции, например ролкова сушилня. Той се различава от стандартния модел по това, че отстрани има ролки, върху които се дърпа въжето, и с тяхна помощ можете да преместите продукта в различни посоки. По този начин мобилният продукт може лесно да се премества и взема със себе си..

Ако имате, да речем, пространство от само 1 метър, а другата част на балкона е пълнена с нещо, тогава просто не можете да стигнете до останалата част от въжето. В този случай такава конструкция с ролки ще ви бъде полезна, с помощта на която можете да преместите прането, като останете на едно място. Има и удобни сгъваеми модели, които можете удобно да съхранявате на балкона..

Разказахме ви подробно за съществуващите видове сушилни, инсталирани на балкона, за техните предимства и недостатъци. Но най -важното е, че при избора обърнете внимание не на това кой продукт е най -добрият и най -популярен, въпреки че това също е важно, а на вашите желания и възможности. Ето защо, след като анализирате цялата информация, която сме предоставили, опитайте се да я приложите в полза на вас и вашите близки..

Стенна сушилня за дрехи на балкона
Вероятно всеки човек е бил изправен пред проблема със сушенето на дрехи, който се състои в намирането на правилното място. Изходът от тази ситуация ще бъде вашият балкон или лоджия. Как точно, ще разкажем в нашата статия.
Особености
Балконът е чудесно място с добра вентилация. Това несъмнено трябва да се използва за ваша собствена изгода – за отглеждане на различни растения, оборудване с всичко необходимо за релаксация, а също така, съчетавайки бизнес с удоволствие, можете да инсталирате сушилня за дрехи.
На първо място, трябва да решите мястото, където ще се извърши инсталацията. Въз основа на това трябва да се избере подходящата опция. Всеки от тях също се различава по своята форма и функционалност, всеки има свои характеристики и недостатъци..
Сушилня може да бъде закупена в магазина. При това обърнете внимание на производителя, неговата репутация и опит. Така че на добре доказани компании може да се вярва. Но твърде евтините модели трябва да ви предупредят. Ако искате да спестите пари, тогава можете да предпочетете друг вариант. Например, можете да направите своя собствена сушилня..
Има и специални схеми, според които можете да сглобите сушилня дори със собствените си ръце, докато сте у дома, например с помощта на PVC тръби. Те се използват във водопроводни инсталации и могат да бъдат закупени във всеки магазин с подобна тематика. Сушилните са изработени от различни материали, от пластмаса до цветни метали. Следователно можете да изберете необходимата опция по ваша преценка и най -важното – бюджета.
Сушилнята за стени е чудесен вариант, особено за малки балкони. Това е метална основа, куха вътре, в която е монтиран специален пружинен механизъм с въжета. Ако е необходимо, той се простира на определено разстояние и можете безопасно да закачите прането, а след изсушаване незабавно го натиснете обратно, за да спестите място. Тази конструкция се фиксира към стената с необходимите винтове.
Има специални модели с допълнителни рафтове за бельо с тегло до 20 кг. Обичайните стандартни опции държат половината време. Недостатъкът може да бъде, че с течение на времето, под тежестта на бельото, въжетата могат да провиснат и трябва да се сменят. Много домакини предпочитат този конкретен вариант, тъй като сушилните за стена са доста практични, функционални и лесни за използване..
Предимства
Стенната версия на сушилнята е доста популярна сред съвременните хора. Те имат разнообразие от модели, които успешно ще се впишат в пространството и стила на вашия балкон. Какво друго е предимството:
Сортове
Съвременните производители произвеждат много видове сушилни за стени. Всички те се различават по ценова политика, състав, дизайн. Основните модели включват:
Със собствените си ръце
Можете също така да опитате да направите сами дизайна на сушилнята. Това е доста дълъг и сложен процес, но ако желаете, можете да опитате да го направите. По този начин можете да спестите време, пари и пари. За изработката са ви необходими инструменти и някои материали.
Необходимо е да се закупят две греди, материалът, за който могат да служат както дърво, така и желязо. След това трябва да пробиете отвор с малък диаметър по цялата дължина. Поставете релсите около краищата на балкона си и ги закрепете с винтове, като предварително дърпате бельото за дрехи. Можете предварително да боядисате цялата структура в желания от вас цвят. Използвайки пластмасова основа, можете да използвате водопроводни тръби от PVC.
За да направите такава сушилня, можете да използвате въображението си и да измислите нещо необичайно и оригинално във вашия стил. Например, можете да използвате същия PVC материал и сами да заварявате конструкцията или да се доверите на квалифицирани специалисти.
Ако все пак решите да го инсталирате сами, тогава отлично решение би било да закупите специален комплект, който съдържа всички необходими елементи. Те трябва само да бъдат инсталирани на избраното от вас място..
Можете да опитате да закупите всички части, необходими за дизайна, или да прибягвате до съветите на опитни специалисти.
Първо намерете две или повече прави греди от дърво, желязо или друг материал и ги закрепете със специални болтове към бетонна или тухлена основа. Това е необходимо за по -добър монтаж, в противен случай, ако се завинтва към балконските панели, които обикновено са изработени от PVC, цялата конструкция може да се срути напълно, тъй като пластмасата, особено тънката пластмаса, не е предназначена за сериозни товари.
След това трябва да издърпате въжето, за предпочитане с голям диаметър, за здравина. Ако балконът е дълъг, тогава в този случай е необходимо да се използват допълнителни греди, като се монтират по средата, тъй като въжето, опънато в този случай, може да не издържи и в най -добрия случай да се провисне и в най -лошия случай да се счупи.
Има и по -оригинални опции, например ролкова сушилня. Той се различава от стандартния модел по това, че отстрани има ролки, върху които се дърпа въжето, и с тяхна помощ можете да преместите продукта в различни посоки. По този начин мобилният продукт може лесно да се премества и взема със себе си..
Ако имате, да речем, пространство от само 1 метър, а другата част на балкона е пълнена с нещо, тогава просто не можете да стигнете до останалата част от въжето. В този случай такава конструкция с ролки ще ви бъде полезна, с помощта на която можете да преместите прането, като останете на едно място. Има и удобни сгъваеми модели, които можете удобно да съхранявате на балкона..
Разказахме ви подробно за съществуващите видове сушилни, инсталирани на балкона, за техните предимства и недостатъци. Но най -важното е, че при избора обърнете внимание не на това кой продукт е най -добрият и най -популярен, въпреки че това също е важно, а на вашите желания и възможности. Ето защо, след като анализирате цялата информация, която сме предоставили, опитайте се да я приложите в полза на вас и вашите близки..